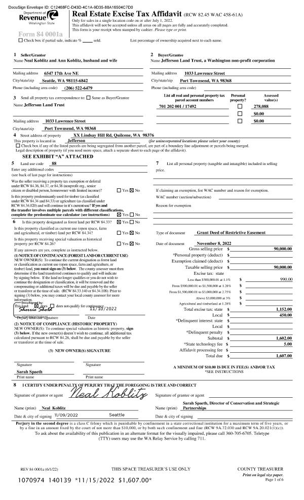
Property
Account |
| Property ID: | 36844 | Abbreviated Legal Description: | OLYMPIC CANAL ADDITION 2 BLK 7 LOT 8 |
| Parcel # / Geo ID: | 980400708 | Agent Code: | |
| Type: | Real | | |
| Tax Area: | 0441 - 1-46F4E4H2C1L1P2 | Land Use Code | 91 |
| Open Space: | N | DFL | N |
| Historic Property: | N | Remodel Property: | N |
| Multi-Family Redevelopment: | N | | |
| Township: | 25N | Section: | 21 |
| Range: | 2W |
Location |
| Address: | | Mapsco: | 012/014 |
| Neighborhood: | OLYMPIC CANAL TRACTS | Map ID: | |
| Neighborhood CD: | 1250 |
Owner |
| Name: | VICTOR K VALENZUELA | Owner ID: | 107822 |
| Mailing Address: | 15916 46TH AVE E TACOMA, WA 98446-5910 | % Ownership: | 100.0000000000% |
| | | Exemptions: | |
Pay Tax Due
Select the appropriate checkbox next to the year to be paid. Multiple years may be selected.
*Convenience Fee not included
Taxes and Assessment Details
Property Tax Information as of
03/11/2026
Click on "Statement Details" to expand or collapse a tax statement.
* Please enter a valid date ** Please enter a valid date *
Statement Details |
| 2026 | 26059 | STATE - STATE LEVY (SCHOOL) | $25.35 | $25.34 | $0.00 | $0.00 | $0.00 | $50.69 |
| 2026 | 26059 | COUNTY - COUNTY LEVIES (CE, DD, VET, MH) | $10.14 | $10.12 | $0.00 | $0.00 | $0.00 | $20.26 |
| 2026 | 26059 | CONSERVE - CONSERVATION FUTURES | $0.31 | $0.30 | $0.00 | $0.00 | $0.00 | $0.61 |
| 2026 | 26059 | COROADS - COUNTY ROADS (ROADS, DIV TO CE) | $8.18 | $8.17 | $0.00 | $0.00 | $0.00 | $16.35 |
| 2026 | 26059 | PORTPT - PORT DISTRICT | $4.09 | $4.09 | $0.00 | $0.00 | $0.00 | $8.18 |
| 2026 | 26059 | PUD1 - PUD #1 | $0.66 | $0.66 | $0.00 | $0.00 | $0.00 | $1.32 |
| 2026 | 26059 | LIB1 - LIBRARY DIST #1 | $3.17 | $3.16 | $0.00 | $0.00 | $0.00 | $6.33 |
| 2026 | 26059 | HD2 - HOSP DIST #2 | $0.59 | $0.59 | $0.00 | $0.00 | $0.00 | $1.18 |
| 2026 | 26059 | SD46 - SCHOOL DIST #46 | $7.60 | $7.59 | $0.00 | $0.00 | $0.00 | $15.19 |
| 2026 | 26059 | FD4 - FIRE DISTRICT #4 | $18.40 | $18.40 | $0.00 | $0.00 | $0.00 | $36.80 |
| 2026 | 26059 | EMS4 - FIRE DIST #4 EMS | $5.12 | $5.12 | $0.00 | $0.00 | $0.00 | $10.24 |
| 2026 | 26059 | CEM1 - CEMETERY DIST #1 | $0.12 | $0.12 | $0.00 | $0.00 | $0.00 | $0.24 |
| 2026 | 26059 | FP - DNR Forest Fire Protection Assmt | $8.50 | $8.50 | $0.00 | $0.00 | $0.00 | $17.00 |
| 2026 | 26059 | FPLCA - DNR Landowner Contingency Assmt | $3.00 | $3.00 | $0.00 | $0.00 | $0.00 | $6.00 |
| 2026 | 26059 | JCCD - JC Conservation District | $2.53 | $2.53 | $0.00 | $0.00 | $0.00 | $5.06 |
| 2026 | 26059 | NWA - Noxious Weed Assessment | $2.98 | $2.97 | $0.00 | $0.00 | $0.00 | $5.95 |
| 2026 | 26059 | WAT - Clean Water District | $13.00 | $13.00 | $0.00 | $0.00 | $0.00 | $26.00 |
| 2026 | 26059 | FP ADMIN - FP ADMIN | $0.50 | $0.00 | $0.00 | $0.00 | $0.00 | $0.50 |
| 2026 | 26059 | TOTAL: | $114.24 | $113.66 | $0.00 | $0.00 | $0.00 | $227.90 |
|
| 2026 | 26059 | $114.24 | $113.66 | $0.00 | $0.00 | $0.00 | $227.90 |
Statement Details |
| 2025 | 26127 | STATE - STATE LEVY (SCHOOL) | $25.18 | $25.18 | $2.01 | $1.26 | $25.18 | $28.45 |
| 2025 | 26127 | COUNTY - COUNTY LEVIES (CE, DD, VET, MH) | $9.92 | $9.88 | $0.78 | $0.49 | $9.92 | $11.15 |
| 2025 | 26127 | CONSERVE - CONSERVATION FUTURES | $0.30 | $0.29 | $0.02 | $0.01 | $0.30 | $0.32 |
| 2025 | 26127 | COROADS - COUNTY ROADS (ROADS, DIV TO CE) | $7.94 | $7.93 | $0.63 | $0.40 | $7.94 | $8.96 |
| 2025 | 26127 | PORTPT - PORT DISTRICT | $4.05 | $4.04 | $0.33 | $0.20 | $4.05 | $4.57 |
| 2025 | 26127 | PUD1 - PUD #1 | $0.65 | $0.65 | $0.05 | $0.03 | $0.65 | $0.73 |
| 2025 | 26127 | LIB1 - LIBRARY DIST #1 | $3.07 | $3.07 | $0.25 | $0.15 | $3.07 | $3.47 |
| 2025 | 26127 | HD2 - HOSP DIST #2 | $0.58 | $0.58 | $0.05 | $0.03 | $0.58 | $0.66 |
| 2025 | 26127 | SD46 - SCHOOL DIST #46 | $6.66 | $6.65 | $0.53 | $0.33 | $6.66 | $7.51 |
| 2025 | 26127 | FD4 - FIRE DISTRICT #4 | $18.45 | $18.44 | $1.47 | $0.92 | $18.45 | $20.83 |
| 2025 | 26127 | EMS4 - FIRE DIST #4 EMS | $5.12 | $5.11 | $0.41 | $0.26 | $5.12 | $5.78 |
| 2025 | 26127 | CEM1 - CEMETERY DIST #1 | $0.12 | $0.12 | $0.01 | $0.01 | $0.12 | $0.14 |
| 2025 | 26127 | FP - DNR Forest Fire Protection Assmt | $8.50 | $8.50 | $0.68 | $0.42 | $8.50 | $9.60 |
| 2025 | 26127 | FPLCA - DNR Landowner Contingency Assmt | $3.00 | $3.00 | $0.24 | $0.15 | $3.00 | $3.39 |
| 2025 | 26127 | JCCD - JC Conservation District | $2.53 | $2.53 | $0.20 | $0.13 | $2.53 | $2.86 |
| 2025 | 26127 | NWA - Noxious Weed Assessment | $2.15 | $2.15 | $0.17 | $0.11 | $2.15 | $2.43 |
| 2025 | 26127 | WAT - Clean Water District | $13.00 | $13.00 | $1.04 | $0.65 | $13.00 | $14.69 |
| 2025 | 26127 | FP ADMIN - FP ADMIN | $0.50 | $0.00 | $0.00 | $0.00 | $0.50 | $0.00 |
| 2025 | 26127 | TOTAL: | $111.72 | $111.12 | $8.87 | $5.55 | $111.72 | $125.54 |
|
| 2025 | 26127 | $111.72 | $111.12 | $8.87 | $5.55 | $111.72 | $125.54 |
Statement Details |
| 2024 | 26178 | STATE - STATE LEVY (SCHOOL) | $24.29 | $24.29 | $0.00 | $0.00 | $48.58 | $0.00 |
| 2024 | 26178 | COUNTY - COUNTY LEVIES (CE, DD, VET, MH) | $10.40 | $10.40 | $0.00 | $0.00 | $20.80 | $0.00 |
| 2024 | 26178 | CONSERVE - CONSERVATION FUTURES | $0.31 | $0.31 | $0.00 | $0.00 | $0.62 | $0.00 |
| 2024 | 26178 | COROADS - COUNTY ROADS (ROADS, DIV TO CE) | $8.37 | $8.36 | $0.00 | $0.00 | $16.73 | $0.00 |
| 2024 | 26178 | PORTPT - PORT DISTRICT | $4.30 | $4.29 | $0.00 | $0.00 | $8.59 | $0.00 |
| 2024 | 26178 | PUD1 - PUD #1 | $0.69 | $0.68 | $0.00 | $0.00 | $1.37 | $0.00 |
| 2024 | 26178 | LIB1 - LIBRARY DIST #1 | $3.24 | $3.23 | $0.00 | $0.00 | $6.47 | $0.00 |
| 2024 | 26178 | HD2 - HOSP DIST #2 | $0.61 | $0.60 | $0.00 | $0.00 | $1.21 | $0.00 |
| 2024 | 26178 | SD46 - SCHOOL DIST #46 | $7.30 | $7.29 | $0.00 | $0.00 | $14.59 | $0.00 |
| 2024 | 26178 | FD4 - FIRE DISTRICT #4 | $18.84 | $18.84 | $0.00 | $0.00 | $37.68 | $0.00 |
| 2024 | 26178 | EMS4 - FIRE DIST #4 EMS | $5.25 | $5.25 | $0.00 | $0.00 | $10.50 | $0.00 |
| 2024 | 26178 | CEM1 - CEMETERY DIST #1 | $0.13 | $0.12 | $0.00 | $0.00 | $0.25 | $0.00 |
| 2024 | 26178 | FP - DNR Forest Fire Protection Assmt | $8.50 | $8.50 | $0.00 | $0.00 | $17.00 | $0.00 |
| 2024 | 26178 | FPLCA - DNR Landowner Contingency Assmt | $3.00 | $3.00 | $0.00 | $0.00 | $6.00 | $0.00 |
| 2024 | 26178 | JCCD - JC Conservation District | $2.53 | $2.53 | $0.00 | $0.00 | $5.06 | $0.00 |
| 2024 | 26178 | NWA - Noxious Weed Assessment | $2.15 | $2.15 | $0.00 | $0.00 | $4.30 | $0.00 |
| 2024 | 26178 | WAT - Clean Water District | $12.50 | $12.50 | $0.00 | $0.00 | $25.00 | $0.00 |
| 2024 | 26178 | FP ADMIN - FP ADMIN | $0.50 | $0.00 | $0.00 | $0.00 | $0.50 | $0.00 |
| 2024 | 26178 | TOTAL: | $112.91 | $112.34 | $0.00 | $0.00 | $225.25 | $0.00 |
|
| 2024 | 26178 | $112.91 | $112.34 | $0.00 | $0.00 | $225.25 | $0.00 |
Statement Details |
| 2023 | 26219 | STATE - STATE LEVY (SCHOOL) | $16.49 | $16.47 | $0.00 | $0.00 | $32.96 | $0.00 |
| 2023 | 26219 | COUNTY - COUNTY LEVIES (CE, DD, VET, MH) | $7.19 | $7.19 | $0.00 | $0.00 | $14.38 | $0.00 |
| 2023 | 26219 | CONSERVE - CONSERVATION FUTURES | $0.22 | $0.21 | $0.00 | $0.00 | $0.43 | $0.00 |
| 2023 | 26219 | COROADS - COUNTY ROADS (ROADS, DIV TO CE) | $5.82 | $5.82 | $0.00 | $0.00 | $11.64 | $0.00 |
| 2023 | 26219 | PORTPT - PORT DISTRICT | $3.03 | $3.03 | $0.00 | $0.00 | $6.06 | $0.00 |
| 2023 | 26219 | PUD1 - PUD #1 | $0.48 | $0.47 | $0.00 | $0.00 | $0.95 | $0.00 |
| 2023 | 26219 | LIB1 - LIBRARY DIST #1 | $2.25 | $2.25 | $0.00 | $0.00 | $4.50 | $0.00 |
| 2023 | 26219 | HD2 - HOSP DIST #2 | $0.42 | $0.42 | $0.00 | $0.00 | $0.84 | $0.00 |
| 2023 | 26219 | SD46 - SCHOOL DIST #46 | $5.38 | $5.38 | $0.00 | $0.00 | $10.76 | $0.00 |
| 2023 | 26219 | FD4 - FIRE DISTRICT #4 | $8.95 | $8.94 | $0.00 | $0.00 | $17.89 | $0.00 |
| 2023 | 26219 | EMS4 - FIRE DIST #4 EMS | $2.55 | $2.54 | $0.00 | $0.00 | $5.09 | $0.00 |
| 2023 | 26219 | CEM1 - CEMETERY DIST #1 | $0.09 | $0.09 | $0.00 | $0.00 | $0.18 | $0.00 |
| 2023 | 26219 | FP - DNR Forest Fire Protection Assmt | $8.50 | $8.50 | $0.00 | $0.00 | $17.00 | $0.00 |
| 2023 | 26219 | FPLCA - DNR Landowner Contingency Assmt | $3.00 | $3.00 | $0.00 | $0.00 | $6.00 | $0.00 |
| 2023 | 26219 | JCCD - JC Conservation District | $2.53 | $2.53 | $0.00 | $0.00 | $5.06 | $0.00 |
| 2023 | 26219 | NWA - Noxious Weed Assessment | $2.15 | $2.15 | $0.00 | $0.00 | $4.30 | $0.00 |
| 2023 | 26219 | WAT - Clean Water District | $12.00 | $12.00 | $0.00 | $0.00 | $24.00 | $0.00 |
| 2023 | 26219 | FP ADMIN - FP ADMIN | $0.50 | $0.00 | $0.00 | $0.00 | $0.50 | $0.00 |
| 2023 | 26219 | TOTAL: | $81.55 | $80.99 | $0.00 | $0.00 | $162.54 | $0.00 |
|
| 2023 | 26219 | $81.55 | $80.99 | $0.00 | $0.00 | $162.54 | $0.00 |
Values
| (+) Improvement Homesite Value: | + | $0 | |
| (+) Improvement Non-Homesite Value: | + | $0 | |
| (+) Land Homesite Value: | + | $0 | |
| (+) Land Non-Homesite Value: | + | $22,050 | |
| (+) Curr Use (HS): | + | $0 | $0 |
| (+) Curr Use (NHS): | + | $0 | $0 |
| | | -------------------------- | |
| (=) Market Value: | = | $22,050 | |
| (–) Productivity Loss: | – | $0 | |
| | | -------------------------- | |
| (=) Subtotal: | = | $22,050 | |
| (+) Senior Appraised Value: | + | $0 | |
| (+) Non-Senior Appraised Value: | + | $22,050 | |
| | | -------------------------- | |
| (=) Total Appraised Value: | = | $22,050 | |
| (–) Senior Exemption Loss: | – | $0 | |
| (–) Exemption Loss: | – | $0 | |
| | | -------------------------- | |
| (=) Taxable Value: | = | $22,050 | |
Taxing Jurisdiction
| Owner: | VICTOR K VALENZUELA | | |
| % Ownership: | 100.0000000000% | | |
| Total Value: | $22,050 | | |
| Tax Area: | 0441 - 1-46F4E4H2C1L1P2 |
| CE | COUNTY CURRENT EXPENSE | 0.9034619479 | $22,050 | $22,050 | $19.92 | | |
| CNTYDD | DEVELOPMENTAL DISABILITIES | 0.0052121823 | $22,050 | $22,050 | $0.11 | | |
| CNTYVET | VETERANS RELIEF | 0.0052777810 | $22,050 | $22,050 | $0.12 | | |
| MENTAL | MENTAL HEALTH | 0.0052121823 | $22,050 | $22,050 | $0.11 | | |
| ROADS | COUNTY ROADS | 0.7415066410 | $22,050 | $22,050 | $16.35 | | |
| ROADSCU | COUNTY ROADS TO CUR EXP | 0.0000000000 | $22,050 | $22,050 | $0.00 | | |
| HOSP2CASH | HOSP DIST #2 GENERAL | 0.0536075306 | $22,050 | $22,050 | $1.18 | | |
| SCH46MO | SCHOOL DIST #46 EP & O | 0.6890207067 | $22,050 | $22,050 | $15.19 | | |
| CEM1 | CEMETERY DIST #1 GENERAL | 0.0107168292 | $22,050 | $22,050 | $0.24 | | |
| CONSERVE | CONSERVATION FUTURES | 0.0275621078 | $22,050 | $22,050 | $0.61 | | |
| EMS4 | FIRE DIST #4 EMS | 0.4644216158 | $22,050 | $22,050 | $10.24 | | |
| FD4 | FIRE DIST #4 GENERAL | 1.3939598390 | $22,050 | $22,050 | $30.74 | | |
| FD4BOND | FIRE DIST #4 BOND 2019 | 0.2748466981 | $22,050 | $22,050 | $6.06 | | |
| LIB1 | LIBRARY DIST #1 GENERAL | 0.2868827388 | $22,050 | $22,050 | $6.33 | | |
| PORTPT | PORT OF PT GENERAL | 0.1134941229 | $22,050 | $22,050 | $2.50 | | |
| PORTPTIDD | PORT OF PT IDD 2019 | 0.2577346692 | $22,050 | $22,050 | $5.68 | | |
| PUD1 | PUD #1 GENERAL | 0.0597888892 | $22,050 | $22,050 | $1.32 | | |
| STATE | STATE SCHOOL PART 1 | 1.4940692947 | $22,050 | $22,050 | $32.94 | | |
| STATE2 | STATE SCHOOL PART 2 | 0.8050170049 | $22,050 | $22,050 | $17.75 | | |
| | Total Tax Rate: | 7.5917927814 | | | | | |
| | | | | Taxes w/Current Exemptions: | $167.39 | | |
| | | | | Taxes w/o Exemptions: | $167.39 | | |
Improvement / Building
Sketch
| No sketches available for this property. |
Property Image
Land
| 1 | 1250-1185L | | 0.0000 | 0.00 | 0.00 | 0.00 | 1.00 | $22,050 | $0 |
Roll Value History
| 2026 | N/A | N/A | N/A | N/A | N/A |
| 2025 | $0 | $22,050 | $0 | $22,050 | $22,050 |
| 2024 | $0 | $21,000 | $0 | $21,000 | $21,000 |
| 2023 | $0 | $21,000 | $0 | $21,000 | $21,000 |
| 2022 | $0 | $14,000 | $0 | $14,000 | $14,000 |
Deed and Sales History
| 1 | 10/17/2022 | SWD | Statutory Warranty Deed | STEVEN W SCHLAEFLI | VICTOR K VALENZUELA | | | $30,000.00 | 140005 | |
| 2 | 04/23/2013 | SWD | Statutory Warranty Deed | LARRY L HOWE TRUSTEE | STEVEN W SCHLAEFLI | | | $20,000.00 | 119149 | |
| 3 | 12/17/2010 | SWD | Statutory Warranty Deed | OLYMPIC CANAL MAINTENANCE | HOWE, LARRY L/TRUSTEE | 0 | 0 | $14,200.00 | 115334 | 0 |
| 4 | 09/03/2010 | SHRD | Sheriff Deed | HERNANDEZ, ANTHONY JC SHE | OLYMPIC CANAL MAINTENANCE CO | 0 | 0 | -$9,650.00 | 114899 | 0 |
| 5 | 08/28/2009 | MISC | MISC | SHERIFF OF JEFFERSON COUN | OLYMPIC CANAL MAINTENANCE COMP | 0 | 0 | $0.00 | 113321 | 0 |
| 6 | 05/05/2005 | SWD | Statutory Warranty Deed | KEAY, MICHELE L | DAVIS, JOCELYN | | | $115,000.00 | 103450 | 0 |
| 7 | 06/05/2002 | SWD | Statutory Warranty Deed | DEBRA LYNN ROBBINS | MICHELE L KEAY | 0 | 0 | $84,000.00 | 94831 | 0 |
|   | |
Payout Agreement
| No payout information available.. |