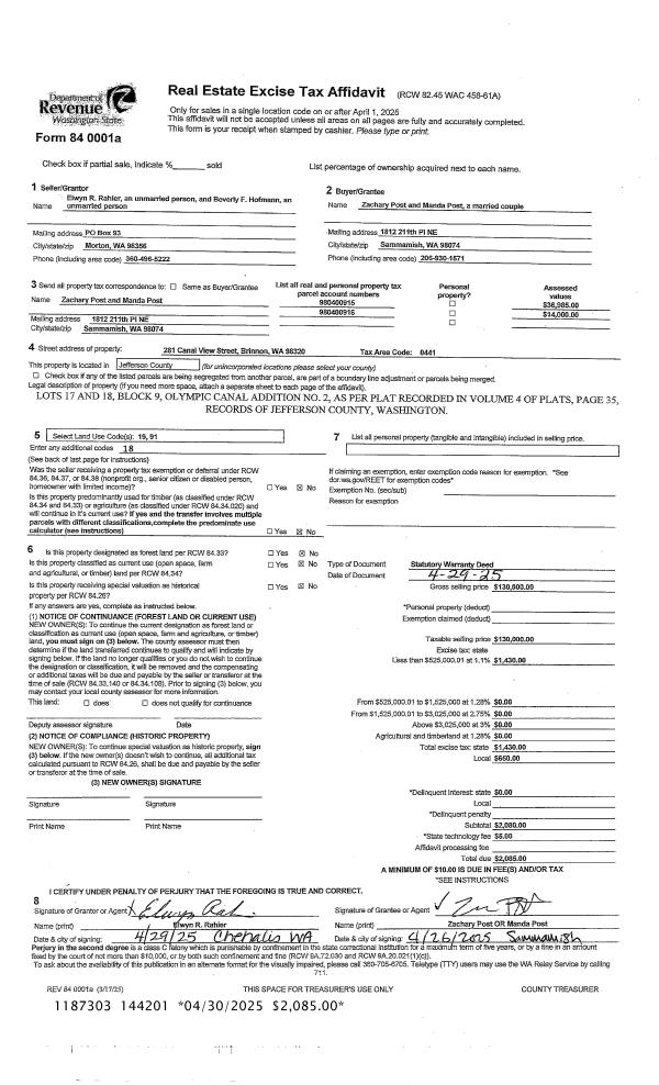
Property
Account |
| Property ID: | 36863 | Abbreviated Legal Description: | OLYMPIC CANAL ADDITION 2 BLK 9 LOT 17 |
| Parcel # / Geo ID: | 980400915 | Agent Code: | |
| Type: | Real | | |
| Tax Area: | 0441 - 1-46F4E4H2C1L1P2 | Land Use Code | 19 |
| Open Space: | N | DFL | N |
| Historic Property: | N | Remodel Property: | N |
| Multi-Family Redevelopment: | N | | |
| Township: | 25N | Section: | 21 |
| Range: | 2W |
Location |
| Address: | 281 CANAL VIEW ST BRINNON, WA 98320 | Mapsco: | 012/036 |
| Neighborhood: | OLYMPIC CANAL TRACTS | Map ID: | |
| Neighborhood CD: | 1250 |
Owner |
| Name: | ZACHARY & MANDA POST | Owner ID: | 112491 |
| Mailing Address: | 1812 211TH PL NE SAMMAMISH, WA 98074-4216 | % Ownership: | 100.0000000000% |
| | | Exemptions: | |
Pay Tax Due
There is currently No Amount Due on this property.
Taxes and Assessment Details
Property Tax Information as of
03/11/2026
Click on "Statement Details" to expand or collapse a tax statement.
* Please enter a valid date ** Please enter a valid date *
Statement Details |
| | TOTAL: | $0.00 | $0.00 | $0.00 | $0.00 | $0.00 | $0.00 |
|
| | $0.00 | $0.00 | $0.00 | $0.00 | $0.00 | $0.00 |
Values
| (+) Improvement Homesite Value: | + | $0 | |
| (+) Improvement Non-Homesite Value: | + | $21,397 | |
| (+) Land Homesite Value: | + | $0 | |
| (+) Land Non-Homesite Value: | + | $31,500 | |
| (+) Curr Use (HS): | + | $0 | $0 |
| (+) Curr Use (NHS): | + | $0 | $0 |
| | | -------------------------- | |
| (=) Market Value: | = | $52,897 | |
| (–) Productivity Loss: | – | $0 | |
| | | -------------------------- | |
| (=) Subtotal: | = | $52,897 | |
| (+) Senior Appraised Value: | + | $0 | |
| (+) Non-Senior Appraised Value: | + | $52,897 | |
| | | -------------------------- | |
| (=) Total Appraised Value: | = | $52,897 | |
| (–) Senior Exemption Loss: | – | $0 | |
| (–) Exemption Loss: | – | $0 | |
| | | -------------------------- | |
| (=) Taxable Value: | = | $52,897 | |
Taxing Jurisdiction
| Owner: | ZACHARY & MANDA POST | | |
| % Ownership: | 100.0000000000% | | |
| Total Value: | N/A | | |
| Tax Area: | 0441 - 1-46F4E4H2C1L1P2 |
| CE | COUNTY CURRENT EXPENSE | N/A | N/A | N/A | N/A | | |
| CNTYDD | DEVELOPMENTAL DISABILITIES | N/A | N/A | N/A | N/A | | |
| CNTYVET | VETERANS RELIEF | N/A | N/A | N/A | N/A | | |
| MENTAL | MENTAL HEALTH | N/A | N/A | N/A | N/A | | |
| ROADS | COUNTY ROADS | N/A | N/A | N/A | N/A | | |
| HOSP2CASH | HOSP DIST #2 GENERAL | N/A | N/A | N/A | N/A | | |
| SCH46MO | SCHOOL DIST #46 EP & O | N/A | N/A | N/A | N/A | | |
| CEM1 | CEMETERY DIST #1 GENERAL | N/A | N/A | N/A | N/A | | |
| CONSERVE | CONSERVATION FUTURES | N/A | N/A | N/A | N/A | | |
| EMS4 | FIRE DIST #4 EMS | N/A | N/A | N/A | N/A | | |
| FD4 | FIRE DIST #4 GENERAL | N/A | N/A | N/A | N/A | | |
| FD4BOND | FIRE DIST #4 BOND 2019 | N/A | N/A | N/A | N/A | | |
| LIB1 | LIBRARY DIST #1 GENERAL | N/A | N/A | N/A | N/A | | |
| PORTPT | PORT OF PT GENERAL | N/A | N/A | N/A | N/A | | |
| PORTPTIDD | PORT OF PT IDD 2019 | N/A | N/A | N/A | N/A | | |
| PUD1 | PUD #1 GENERAL | N/A | N/A | N/A | N/A | | |
| STATE | STATE SCHOOL PART 1 | N/A | N/A | N/A | N/A | | |
| STATE2 | STATE SCHOOL PART 2 | N/A | N/A | N/A | N/A | | |
| | Total Tax Rate: | N/A | | | | | |
| | | | | Taxes w/Current Exemptions: | N/A | | |
| | | | | Taxes w/o Exemptions: | N/A | | |
Improvement / Building
| Improvement #1: | Residential Bldg | State Code: | 19 | 0.0 sqft | Value: | $21,397 |
| | Type | Description | Class CD | Sub Class CD | Year Built | Area |
| | CARPTN | Carport W/O Floor | 1 | * | 0 | 240.0 |
| | DECK | Deck (Table Not Dep) | 4 | * | 0 | 112.0 |
| | CARPTN | Carport W/O Floor | 2 | * | 0 | 660.0 |
| | SHED | Shed (Table Not Dep) | 5 | * | 0 | 120.0 |
| | HWPOR | House Wood Porch | 3 | * | 0 | 40.0 |
Sketch
Property Image
Land
| 1 | 1250-1155L | Avg to Good Lots some fronting hwy | 0.0000 | 0.00 | 0.00 | 0.00 | 1.00 | $31,500 | $0 |
Roll Value History
| 2026 | N/A | N/A | N/A | N/A | N/A |
| 2025 | $22,081 | $27,300 | $0 | $49,381 | $49,381 |
| 2024 | $17,985 | $19,000 | $0 | $36,985 | $36,985 |
| 2023 | $17,985 | $19,000 | $0 | $36,985 | $36,985 |
| 2022 | $16,350 | $18,000 | $0 | $34,350 | $34,350 |
Deed and Sales History
| 1 | 04/29/2025 | SWD | Statutory Warranty Deed | ELWYN R RAHIER | ZACHARY & MANDA POST | | | $130,000.00 | 144201 | |
|   | |
| 2 | 06/02/2009 | SWD | Statutory Warranty Deed | DAVI, ROBERT/JEAN VICKERS | RAHIER, ELWYN/HOFMANN, BEVERLY | | | $45,000.00 | 112958 | 0 |
| 3 | 08/05/2003 | SWD | Statutory Warranty Deed | REICK, MITCH | DAVI, ROBERT/VICKERS, JEAN | 0 | 0 | $17,000.00 | 97969 | 0 |
|   | |
| 4 | 07/27/2002 | SWD | Statutory Warranty Deed | HENRY L MEYER TRTEE | MITCH REICK | 0 | 0 | $12,500.00 | 95301 | 0 |
|   | |
| 5 | 10/24/1995 | QCD | Quit Claim Deed | MEYER, HENRY L | MEYER LIVING TRUST | 0 | 0 | $0.00 | 78190 | 0 |
| 6 | 06/10/1993 | SWD | Statutory Warranty Deed | SIMON, KETRON/MONIKA | MEYER, HL/KL/EL | 0 | 0 | $5,500.00 | 71395 | 0 |
Payout Agreement
| No payout information available.. |