Property
Account |
| Property ID: | 36867 | Abbreviated Legal Description: | OLYMPIC CANAL ADDITION 2 BLK 9 LOT 21 |
| Parcel # / Geo ID: | 980400919 | Agent Code: | |
| Type: | Real | | |
| Tax Area: | 0441 - 1-46F4E4H2C1L1P2 | Land Use Code | 19 |
| Open Space: | N | DFL | N |
| Historic Property: | N | Remodel Property: | N |
| Multi-Family Redevelopment: | N | | |
| Township: | 25N | Section: | 21 |
| Range: | 2W |
Location |
| Address: | 231 CANAL VIEW ST BRINNON, WA 98320 | Mapsco: | 012/040 |
| Neighborhood: | OLYMPIC CANAL TRACTS | Map ID: | |
| Neighborhood CD: | 1250 |
Owner |
| Name: | NORMAN W SMITH | Owner ID: | 110719 |
| Mailing Address: | DENISE L THOMPSON 27531 144TH AVE SE KENT, WA 98042-9055 | % Ownership: | 100.0000000000% |
| | | Exemptions: | |
Pay Tax Due
Select the appropriate checkbox next to the year to be paid. Multiple years may be selected.
*Convenience Fee not included
Taxes and Assessment Details
Property Tax Information as of
03/10/2026
Click on "Statement Details" to expand or collapse a tax statement.
* Please enter a valid date ** Please enter a valid date *
Statement Details |
| 2026 | 26082 | STATE - STATE LEVY (SCHOOL) | $42.42 | $42.41 | $0.00 | $0.00 | $0.00 | $84.83 |
| 2026 | 26082 | COUNTY - COUNTY LEVIES (CE, DD, VET, MH) | $16.97 | $16.93 | $0.00 | $0.00 | $0.00 | $33.90 |
| 2026 | 26082 | CONSERVE - CONSERVATION FUTURES | $0.51 | $0.51 | $0.00 | $0.00 | $0.00 | $1.02 |
| 2026 | 26082 | COROADS - COUNTY ROADS (ROADS, DIV TO CE) | $13.68 | $13.68 | $0.00 | $0.00 | $0.00 | $27.36 |
| 2026 | 26082 | PORTPT - PORT DISTRICT | $6.86 | $6.84 | $0.00 | $0.00 | $0.00 | $13.70 |
| 2026 | 26082 | PUD1 - PUD #1 | $1.11 | $1.10 | $0.00 | $0.00 | $0.00 | $2.21 |
| 2026 | 26082 | LIB1 - LIBRARY DIST #1 | $5.29 | $5.29 | $0.00 | $0.00 | $0.00 | $10.58 |
| 2026 | 26082 | HD2 - HOSP DIST #2 | $0.99 | $0.99 | $0.00 | $0.00 | $0.00 | $1.98 |
| 2026 | 26082 | SD46 - SCHOOL DIST #46 | $12.71 | $12.71 | $0.00 | $0.00 | $0.00 | $25.42 |
| 2026 | 26082 | FD4 - FIRE DISTRICT #4 | $30.79 | $30.78 | $0.00 | $0.00 | $0.00 | $61.57 |
| 2026 | 26082 | EMS4 - FIRE DIST #4 EMS | $8.57 | $8.57 | $0.00 | $0.00 | $0.00 | $17.14 |
| 2026 | 26082 | CEM1 - CEMETERY DIST #1 | $0.20 | $0.20 | $0.00 | $0.00 | $0.00 | $0.40 |
| 2026 | 26082 | JCCD - JC Conservation District | $2.55 | $2.55 | $0.00 | $0.00 | $0.00 | $5.10 |
| 2026 | 26082 | NWA - Noxious Weed Assessment | $2.98 | $2.97 | $0.00 | $0.00 | $0.00 | $5.95 |
| 2026 | 26082 | OSS - On Site Septic | $23.10 | $23.10 | $0.00 | $0.00 | $0.00 | $46.20 |
| 2026 | 26082 | WAT - Clean Water District | $13.00 | $13.00 | $0.00 | $0.00 | $0.00 | $26.00 |
| 2026 | 26082 | TOTAL: | $181.73 | $181.63 | $0.00 | $0.00 | $0.00 | $363.36 |
|
| 2026 | 26082 | $181.73 | $181.63 | $0.00 | $0.00 | $0.00 | $363.36 |
Statement Details |
| 2025 | 26150 | STATE - STATE LEVY (SCHOOL) | $42.22 | $42.21 | $0.00 | $0.00 | $84.43 | $0.00 |
| 2025 | 26150 | COUNTY - COUNTY LEVIES (CE, DD, VET, MH) | $16.62 | $16.59 | $0.00 | $0.00 | $33.21 | $0.00 |
| 2025 | 26150 | CONSERVE - CONSERVATION FUTURES | $0.50 | $0.50 | $0.00 | $0.00 | $1.00 | $0.00 |
| 2025 | 26150 | COROADS - COUNTY ROADS (ROADS, DIV TO CE) | $13.30 | $13.30 | $0.00 | $0.00 | $26.60 | $0.00 |
| 2025 | 26150 | PORTPT - PORT DISTRICT | $6.78 | $6.77 | $0.00 | $0.00 | $13.55 | $0.00 |
| 2025 | 26150 | PUD1 - PUD #1 | $1.09 | $1.08 | $0.00 | $0.00 | $2.17 | $0.00 |
| 2025 | 26150 | LIB1 - LIBRARY DIST #1 | $5.15 | $5.14 | $0.00 | $0.00 | $10.29 | $0.00 |
| 2025 | 26150 | HD2 - HOSP DIST #2 | $0.97 | $0.97 | $0.00 | $0.00 | $1.94 | $0.00 |
| 2025 | 26150 | SD46 - SCHOOL DIST #46 | $11.16 | $11.16 | $0.00 | $0.00 | $22.32 | $0.00 |
| 2025 | 26150 | FD4 - FIRE DISTRICT #4 | $30.93 | $30.92 | $0.00 | $0.00 | $61.85 | $0.00 |
| 2025 | 26150 | EMS4 - FIRE DIST #4 EMS | $8.58 | $8.58 | $0.00 | $0.00 | $17.16 | $0.00 |
| 2025 | 26150 | CEM1 - CEMETERY DIST #1 | $0.20 | $0.20 | $0.00 | $0.00 | $0.40 | $0.00 |
| 2025 | 26150 | JCCD - JC Conservation District | $2.55 | $2.55 | $0.00 | $0.00 | $5.10 | $0.00 |
| 2025 | 26150 | NWA - Noxious Weed Assessment | $2.15 | $2.15 | $0.00 | $0.00 | $4.30 | $0.00 |
| 2025 | 26150 | OSS - On Site Septic | $21.50 | $21.50 | $0.00 | $0.00 | $43.00 | $0.00 |
| 2025 | 26150 | WAT - Clean Water District | $13.00 | $13.00 | $0.00 | $0.00 | $26.00 | $0.00 |
| 2025 | 26150 | TOTAL: | $176.70 | $176.62 | $0.00 | $0.00 | $353.32 | $0.00 |
|
| 2025 | 26150 | $176.70 | $176.62 | $0.00 | $0.00 | $353.32 | $0.00 |
Statement Details |
| 2024 | 26201 | STATE - STATE LEVY (SCHOOL) | $39.58 | $39.56 | $0.00 | $0.00 | $79.14 | $0.00 |
| 2024 | 26201 | COUNTY - COUNTY LEVIES (CE, DD, VET, MH) | $16.95 | $16.91 | $0.00 | $0.00 | $33.86 | $0.00 |
| 2024 | 26201 | CONSERVE - CONSERVATION FUTURES | $0.51 | $0.51 | $0.00 | $0.00 | $1.02 | $0.00 |
| 2024 | 26201 | COROADS - COUNTY ROADS (ROADS, DIV TO CE) | $13.63 | $13.62 | $0.00 | $0.00 | $27.25 | $0.00 |
| 2024 | 26201 | PORTPT - PORT DISTRICT | $7.00 | $6.99 | $0.00 | $0.00 | $13.99 | $0.00 |
| 2024 | 26201 | PUD1 - PUD #1 | $1.11 | $1.11 | $0.00 | $0.00 | $2.22 | $0.00 |
| 2024 | 26201 | LIB1 - LIBRARY DIST #1 | $5.27 | $5.27 | $0.00 | $0.00 | $10.54 | $0.00 |
| 2024 | 26201 | HD2 - HOSP DIST #2 | $0.99 | $0.99 | $0.00 | $0.00 | $1.98 | $0.00 |
| 2024 | 26201 | SD46 - SCHOOL DIST #46 | $11.88 | $11.88 | $0.00 | $0.00 | $23.76 | $0.00 |
| 2024 | 26201 | FD4 - FIRE DISTRICT #4 | $30.69 | $30.69 | $0.00 | $0.00 | $61.38 | $0.00 |
| 2024 | 26201 | EMS4 - FIRE DIST #4 EMS | $8.56 | $8.55 | $0.00 | $0.00 | $17.11 | $0.00 |
| 2024 | 26201 | CEM1 - CEMETERY DIST #1 | $0.20 | $0.20 | $0.00 | $0.00 | $0.40 | $0.00 |
| 2024 | 26201 | JCCD - JC Conservation District | $2.55 | $2.55 | $0.00 | $0.00 | $5.10 | $0.00 |
| 2024 | 26201 | NWA - Noxious Weed Assessment | $2.15 | $2.15 | $0.00 | $0.00 | $4.30 | $0.00 |
| 2024 | 26201 | OSS - On Site Septic | $21.00 | $21.00 | $0.00 | $0.00 | $42.00 | $0.00 |
| 2024 | 26201 | WAT - Clean Water District | $12.50 | $12.50 | $0.00 | $0.00 | $25.00 | $0.00 |
| 2024 | 26201 | TOTAL: | $174.57 | $174.48 | $0.00 | $0.00 | $349.05 | $0.00 |
|
| 2024 | 26201 | $174.57 | $174.48 | $0.00 | $0.00 | $349.05 | $0.00 |
Statement Details |
| 2023 | 26242 | STATE - STATE LEVY (SCHOOL) | $37.36 | $37.36 | $0.00 | $0.00 | $74.72 | $0.00 |
| 2023 | 26242 | COUNTY - COUNTY LEVIES (CE, DD, VET, MH) | $16.32 | $16.29 | $0.00 | $0.00 | $32.61 | $0.00 |
| 2023 | 26242 | CONSERVE - CONSERVATION FUTURES | $0.49 | $0.49 | $0.00 | $0.00 | $0.98 | $0.00 |
| 2023 | 26242 | COROADS - COUNTY ROADS (ROADS, DIV TO CE) | $13.19 | $13.18 | $0.00 | $0.00 | $26.37 | $0.00 |
| 2023 | 26242 | PORTPT - PORT DISTRICT | $6.88 | $6.86 | $0.00 | $0.00 | $13.74 | $0.00 |
| 2023 | 26242 | PUD1 - PUD #1 | $1.08 | $1.08 | $0.00 | $0.00 | $2.16 | $0.00 |
| 2023 | 26242 | LIB1 - LIBRARY DIST #1 | $5.11 | $5.10 | $0.00 | $0.00 | $10.21 | $0.00 |
| 2023 | 26242 | HD2 - HOSP DIST #2 | $0.95 | $0.95 | $0.00 | $0.00 | $1.90 | $0.00 |
| 2023 | 26242 | SD46 - SCHOOL DIST #46 | $12.19 | $12.19 | $0.00 | $0.00 | $24.38 | $0.00 |
| 2023 | 26242 | FD4 - FIRE DISTRICT #4 | $20.28 | $20.27 | $0.00 | $0.00 | $40.55 | $0.00 |
| 2023 | 26242 | EMS4 - FIRE DIST #4 EMS | $5.77 | $5.76 | $0.00 | $0.00 | $11.53 | $0.00 |
| 2023 | 26242 | CEM1 - CEMETERY DIST #1 | $0.21 | $0.20 | $0.00 | $0.00 | $0.41 | $0.00 |
| 2023 | 26242 | JCCD - JC Conservation District | $2.55 | $2.55 | $0.00 | $0.00 | $5.10 | $0.00 |
| 2023 | 26242 | NWA - Noxious Weed Assessment | $2.15 | $2.15 | $0.00 | $0.00 | $4.30 | $0.00 |
| 2023 | 26242 | OSS - On Site Septic | $20.50 | $20.50 | $0.00 | $0.00 | $41.00 | $0.00 |
| 2023 | 26242 | WAT - Clean Water District | $12.00 | $12.00 | $0.00 | $0.00 | $24.00 | $0.00 |
| 2023 | 26242 | TOTAL: | $157.03 | $156.93 | $0.00 | $0.00 | $313.96 | $0.00 |
|
| 2023 | 26242 | $157.03 | $156.93 | $0.00 | $0.00 | $313.96 | $0.00 |
Values
| (+) Improvement Homesite Value: | + | $0 | |
| (+) Improvement Non-Homesite Value: | + | $16,946 | |
| (+) Land Homesite Value: | + | $0 | |
| (+) Land Non-Homesite Value: | + | $19,950 | |
| (+) Curr Use (HS): | + | $0 | $0 |
| (+) Curr Use (NHS): | + | $0 | $0 |
| | | -------------------------- | |
| (=) Market Value: | = | $36,896 | |
| (–) Productivity Loss: | – | $0 | |
| | | -------------------------- | |
| (=) Subtotal: | = | $36,896 | |
| (+) Senior Appraised Value: | + | $0 | |
| (+) Non-Senior Appraised Value: | + | $36,896 | |
| | | -------------------------- | |
| (=) Total Appraised Value: | = | $36,896 | |
| (–) Senior Exemption Loss: | – | $0 | |
| (–) Exemption Loss: | – | $0 | |
| | | -------------------------- | |
| (=) Taxable Value: | = | $36,896 | |
Taxing Jurisdiction
| Owner: | NORMAN W SMITH | | |
| % Ownership: | 100.0000000000% | | |
| Total Value: | $36,896 | | |
| Tax Area: | 0441 - 1-46F4E4H2C1L1P2 |
| CE | COUNTY CURRENT EXPENSE | 0.9034619479 | $36,896 | $36,896 | $33.33 | | |
| CNTYDD | DEVELOPMENTAL DISABILITIES | 0.0052121823 | $36,896 | $36,896 | $0.19 | | |
| CNTYVET | VETERANS RELIEF | 0.0052777810 | $36,896 | $36,896 | $0.19 | | |
| MENTAL | MENTAL HEALTH | 0.0052121823 | $36,896 | $36,896 | $0.19 | | |
| ROADS | COUNTY ROADS | 0.7415066410 | $36,896 | $36,896 | $27.36 | | |
| ROADSCU | COUNTY ROADS TO CUR EXP | 0.0000000000 | $36,896 | $36,896 | $0.00 | | |
| HOSP2CASH | HOSP DIST #2 GENERAL | 0.0536075306 | $36,896 | $36,896 | $1.98 | | |
| SCH46MO | SCHOOL DIST #46 EP & O | 0.6890207067 | $36,896 | $36,896 | $25.42 | | |
| CEM1 | CEMETERY DIST #1 GENERAL | 0.0107168292 | $36,896 | $36,896 | $0.40 | | |
| CONSERVE | CONSERVATION FUTURES | 0.0275621078 | $36,896 | $36,896 | $1.02 | | |
| EMS4 | FIRE DIST #4 EMS | 0.4644216158 | $36,896 | $36,896 | $17.14 | | |
| FD4 | FIRE DIST #4 GENERAL | 1.3939598390 | $36,896 | $36,896 | $51.43 | | |
| FD4BOND | FIRE DIST #4 BOND 2019 | 0.2748466981 | $36,896 | $36,896 | $10.14 | | |
| LIB1 | LIBRARY DIST #1 GENERAL | 0.2868827388 | $36,896 | $36,896 | $10.58 | | |
| PORTPT | PORT OF PT GENERAL | 0.1134941229 | $36,896 | $36,896 | $4.19 | | |
| PORTPTIDD | PORT OF PT IDD 2019 | 0.2577346692 | $36,896 | $36,896 | $9.51 | | |
| PUD1 | PUD #1 GENERAL | 0.0597888892 | $36,896 | $36,896 | $2.21 | | |
| STATE | STATE SCHOOL PART 1 | 1.4940692947 | $36,896 | $36,896 | $55.13 | | |
| STATE2 | STATE SCHOOL PART 2 | 0.8050170049 | $36,896 | $36,896 | $29.70 | | |
| | Total Tax Rate: | 7.5917927814 | | | | | |
| | | | | Taxes w/Current Exemptions: | $280.11 | | |
| | | | | Taxes w/o Exemptions: | $280.11 | | |
Improvement / Building
| Improvement #1: | Residential Bldg | State Code: | 19 | 400.0 sqft | Value: | $16,946 |
| Bathrooms (#): | 1 (FULL) | Bedrooms (#): | 1 | | Exterior Wall: | PL/T1 | Fireplace: | WD ST-GOOD | | Floor Construction: | FRAME | Foundation: | PO&BL | | Heating/Cooling: | WD/NO | Inside Verify: | NO | | Interior Finish: | FIN | Roof Cover: | COMP |
|
| | Type | Description | Class CD | Sub Class CD | Year Built | Area |
| | MA | Main Area | 3- | C1S | 1963 | 400.0 |
| | SHED | Shed (Table Not Dep) | 3 | * | 1963 | 15.0 |
| | SHED | Shed (Table Not Dep) | 3 | * | 1963 | 32.0 |
Sketch
Property Image
Land
| 1 | 1250-1185L | | 0.0000 | 0.00 | 0.00 | 0.00 | 1.00 | $19,950 | $0 |
Roll Value History
| 2026 | N/A | N/A | N/A | N/A | N/A |
| 2025 | $16,946 | $19,950 | $0 | $36,896 | $36,896 |
| 2024 | $16,210 | $19,000 | $0 | $35,210 | $35,210 |
| 2023 | $16,210 | $18,000 | $0 | $34,210 | $34,210 |
| 2022 | $14,736 | $17,000 | $0 | $31,736 | $31,736 |
Deed and Sales History
| 1 | 03/27/2024 | QCD | Quit Claim Deed | NORMAN W SMITH | NORMAN W SMITH | | | | 142494 | |
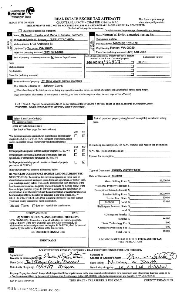
| 2 | 10/31/2018 | SWD | Statutory Warranty Deed | MARIA K BROWN | NORMAN W SMITH | | | $25,000.00 | 131307 | |
| 3 | 07/28/2010 | QCD | Quit Claim Deed | PIERCY, GLENN W/SALLIE | BROWN, MARIA K | | | $0.00 | 114693 | 0 |
Payout Agreement
| No payout information available.. |