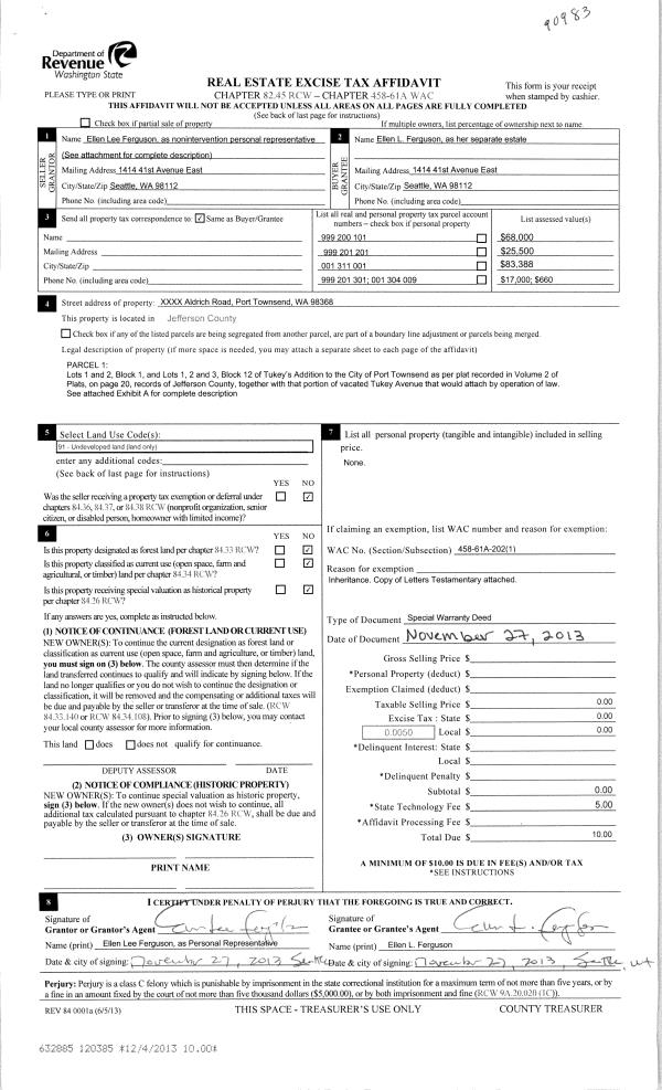
Property
Account |
| Property ID: | 36877 | Abbreviated Legal Description: | OLYMPIC CANAL ADDITION 2 BLK 10 LOTS 9 & 10 |
| Parcel # / Geo ID: | 980401008 | Agent Code: | |
| Type: | Real | | |
| Tax Area: | 0441 - 1-46F4E4H2C1L1P2 | Land Use Code | 19 |
| Open Space: | N | DFL | N |
| Historic Property: | N | Remodel Property: | N |
| Multi-Family Redevelopment: | N | | |
| Township: | 25N | Section: | 21 |
| Range: | 2W |
Location |
| Address: | 501 SALMON ST BRINNON, WA 98320 | Mapsco: | 012/051 |
| Neighborhood: | OLYMPIC CANAL TRACTS | Map ID: | |
| Neighborhood CD: | 1250 |
Owner |
| Name: | DON JACOBSEN | Owner ID: | 18902 |
| Mailing Address: | STEPHANIE JACOBSEN 10609 SIERRA DR E PUYALLUP, WA 98374-2457 | % Ownership: | 100.0000000000% |
| | | Exemptions: | |
Pay Tax Due
Select the appropriate checkbox next to the year to be paid. Multiple years may be selected.
*Convenience Fee not included
Taxes and Assessment Details
Property Tax Information as of
03/10/2026
Click on "Statement Details" to expand or collapse a tax statement.
* Please enter a valid date ** Please enter a valid date *
Statement Details |
| 2026 | 26092 | STATE - STATE LEVY (SCHOOL) | $83.71 | $83.71 | $0.00 | $0.00 | $0.00 | $167.42 |
| 2026 | 26092 | COUNTY - COUNTY LEVIES (CE, DD, VET, MH) | $33.47 | $33.46 | $0.00 | $0.00 | $0.00 | $66.93 |
| 2026 | 26092 | CONSERVE - CONSERVATION FUTURES | $1.01 | $1.00 | $0.00 | $0.00 | $0.00 | $2.01 |
| 2026 | 26092 | COROADS - COUNTY ROADS (ROADS, DIV TO CE) | $27.00 | $27.00 | $0.00 | $0.00 | $0.00 | $54.00 |
| 2026 | 26092 | PORTPT - PORT DISTRICT | $13.53 | $13.51 | $0.00 | $0.00 | $0.00 | $27.04 |
| 2026 | 26092 | PUD1 - PUD #1 | $2.18 | $2.17 | $0.00 | $0.00 | $0.00 | $4.35 |
| 2026 | 26092 | LIB1 - LIBRARY DIST #1 | $10.45 | $10.44 | $0.00 | $0.00 | $0.00 | $20.89 |
| 2026 | 26092 | HD2 - HOSP DIST #2 | $1.95 | $1.95 | $0.00 | $0.00 | $0.00 | $3.90 |
| 2026 | 26092 | SD46 - SCHOOL DIST #46 | $25.09 | $25.09 | $0.00 | $0.00 | $0.00 | $50.18 |
| 2026 | 26092 | FD4 - FIRE DISTRICT #4 | $60.77 | $60.76 | $0.00 | $0.00 | $0.00 | $121.53 |
| 2026 | 26092 | EMS4 - FIRE DIST #4 EMS | $16.91 | $16.91 | $0.00 | $0.00 | $0.00 | $33.82 |
| 2026 | 26092 | CEM1 - CEMETERY DIST #1 | $0.39 | $0.39 | $0.00 | $0.00 | $0.00 | $0.78 |
| 2026 | 26092 | FP - DNR Forest Fire Protection Assmt | $8.50 | $8.50 | $0.00 | $0.00 | $0.00 | $17.00 |
| 2026 | 26092 | FPLCA - DNR Landowner Contingency Assmt | $3.00 | $3.00 | $0.00 | $0.00 | $0.00 | $6.00 |
| 2026 | 26092 | JCCD - JC Conservation District | $2.55 | $2.55 | $0.00 | $0.00 | $0.00 | $5.10 |
| 2026 | 26092 | NWA - Noxious Weed Assessment | $2.98 | $2.97 | $0.00 | $0.00 | $0.00 | $5.95 |
| 2026 | 26092 | WAT - Clean Water District | $13.00 | $13.00 | $0.00 | $0.00 | $0.00 | $26.00 |
| 2026 | 26092 | FP ADMIN - FP ADMIN | $0.50 | $0.00 | $0.00 | $0.00 | $0.00 | $0.50 |
| 2026 | 26092 | TOTAL: | $306.99 | $306.41 | $0.00 | $0.00 | $0.00 | $613.40 |
|
| 2026 | 26092 | $306.99 | $306.41 | $0.00 | $0.00 | $0.00 | $613.40 |
Statement Details |
| 2025 | 26160 | STATE - STATE LEVY (SCHOOL) | $83.28 | $83.28 | $0.00 | $0.00 | $166.56 | $0.00 |
| 2025 | 26160 | COUNTY - COUNTY LEVIES (CE, DD, VET, MH) | $32.76 | $32.74 | $0.00 | $0.00 | $65.50 | $0.00 |
| 2025 | 26160 | CONSERVE - CONSERVATION FUTURES | $0.98 | $0.98 | $0.00 | $0.00 | $1.96 | $0.00 |
| 2025 | 26160 | COROADS - COUNTY ROADS (ROADS, DIV TO CE) | $26.24 | $26.23 | $0.00 | $0.00 | $52.47 | $0.00 |
| 2025 | 26160 | PORTPT - PORT DISTRICT | $13.37 | $13.36 | $0.00 | $0.00 | $26.73 | $0.00 |
| 2025 | 26160 | PUD1 - PUD #1 | $2.15 | $2.14 | $0.00 | $0.00 | $4.29 | $0.00 |
| 2025 | 26160 | LIB1 - LIBRARY DIST #1 | $10.15 | $10.15 | $0.00 | $0.00 | $20.30 | $0.00 |
| 2025 | 26160 | HD2 - HOSP DIST #2 | $1.91 | $1.91 | $0.00 | $0.00 | $3.82 | $0.00 |
| 2025 | 26160 | SD46 - SCHOOL DIST #46 | $22.01 | $22.01 | $0.00 | $0.00 | $44.02 | $0.00 |
| 2025 | 26160 | FD4 - FIRE DISTRICT #4 | $61.00 | $61.00 | $0.00 | $0.00 | $122.00 | $0.00 |
| 2025 | 26160 | EMS4 - FIRE DIST #4 EMS | $16.93 | $16.92 | $0.00 | $0.00 | $33.85 | $0.00 |
| 2025 | 26160 | CEM1 - CEMETERY DIST #1 | $0.39 | $0.39 | $0.00 | $0.00 | $0.78 | $0.00 |
| 2025 | 26160 | FP - DNR Forest Fire Protection Assmt | $8.50 | $8.50 | $0.00 | $0.00 | $17.00 | $0.00 |
| 2025 | 26160 | FPLCA - DNR Landowner Contingency Assmt | $3.00 | $3.00 | $0.00 | $0.00 | $6.00 | $0.00 |
| 2025 | 26160 | JCCD - JC Conservation District | $2.55 | $2.55 | $0.00 | $0.00 | $5.10 | $0.00 |
| 2025 | 26160 | NWA - Noxious Weed Assessment | $2.15 | $2.15 | $0.00 | $0.00 | $4.30 | $0.00 |
| 2025 | 26160 | WAT - Clean Water District | $13.00 | $13.00 | $0.00 | $0.00 | $26.00 | $0.00 |
| 2025 | 26160 | FP ADMIN - FP ADMIN | $0.50 | $0.00 | $0.00 | $0.00 | $0.50 | $0.00 |
| 2025 | 26160 | TOTAL: | $300.87 | $300.31 | $0.00 | $0.00 | $601.18 | $0.00 |
|
| 2025 | 26160 | $300.87 | $300.31 | $0.00 | $0.00 | $601.18 | $0.00 |
Statement Details |
| 2024 | 26211 | STATE - STATE LEVY (SCHOOL) | $74.56 | $74.56 | $0.00 | $0.00 | $149.12 | $0.00 |
| 2024 | 26211 | COUNTY - COUNTY LEVIES (CE, DD, VET, MH) | $31.91 | $31.90 | $0.00 | $0.00 | $63.81 | $0.00 |
| 2024 | 26211 | CONSERVE - CONSERVATION FUTURES | $0.96 | $0.95 | $0.00 | $0.00 | $1.91 | $0.00 |
| 2024 | 26211 | COROADS - COUNTY ROADS (ROADS, DIV TO CE) | $25.68 | $25.67 | $0.00 | $0.00 | $51.35 | $0.00 |
| 2024 | 26211 | PORTPT - PORT DISTRICT | $13.18 | $13.18 | $0.00 | $0.00 | $26.36 | $0.00 |
| 2024 | 26211 | PUD1 - PUD #1 | $2.10 | $2.09 | $0.00 | $0.00 | $4.19 | $0.00 |
| 2024 | 26211 | LIB1 - LIBRARY DIST #1 | $9.94 | $9.93 | $0.00 | $0.00 | $19.87 | $0.00 |
| 2024 | 26211 | HD2 - HOSP DIST #2 | $1.86 | $1.86 | $0.00 | $0.00 | $3.72 | $0.00 |
| 2024 | 26211 | SD46 - SCHOOL DIST #46 | $22.39 | $22.38 | $0.00 | $0.00 | $44.77 | $0.00 |
| 2024 | 26211 | FD4 - FIRE DISTRICT #4 | $57.82 | $57.82 | $0.00 | $0.00 | $115.64 | $0.00 |
| 2024 | 26211 | EMS4 - FIRE DIST #4 EMS | $16.12 | $16.11 | $0.00 | $0.00 | $32.23 | $0.00 |
| 2024 | 26211 | CEM1 - CEMETERY DIST #1 | $0.38 | $0.37 | $0.00 | $0.00 | $0.75 | $0.00 |
| 2024 | 26211 | JCCD - JC Conservation District | $2.55 | $2.55 | $0.00 | $0.00 | $5.10 | $0.00 |
| 2024 | 26211 | NWA - Noxious Weed Assessment | $2.15 | $2.15 | $0.00 | $0.00 | $4.30 | $0.00 |
| 2024 | 26211 | WAT - Clean Water District | $12.50 | $12.50 | $0.00 | $0.00 | $25.00 | $0.00 |
| 2024 | 26211 | TOTAL: | $274.10 | $274.02 | $0.00 | $0.00 | $548.12 | $0.00 |
|
| 2024 | 26211 | $274.10 | $274.02 | $0.00 | $0.00 | $548.12 | $0.00 |
Statement Details |
| 2023 | 26252 | STATE - STATE LEVY (SCHOOL) | $67.57 | $67.55 | $0.00 | $0.00 | $135.12 | $0.00 |
| 2023 | 26252 | COUNTY - COUNTY LEVIES (CE, DD, VET, MH) | $29.49 | $29.46 | $0.00 | $0.00 | $58.95 | $0.00 |
| 2023 | 26252 | CONSERVE - CONSERVATION FUTURES | $0.89 | $0.88 | $0.00 | $0.00 | $1.77 | $0.00 |
| 2023 | 26252 | COROADS - COUNTY ROADS (ROADS, DIV TO CE) | $23.86 | $23.85 | $0.00 | $0.00 | $47.71 | $0.00 |
| 2023 | 26252 | PORTPT - PORT DISTRICT | $12.42 | $12.42 | $0.00 | $0.00 | $24.84 | $0.00 |
| 2023 | 26252 | PUD1 - PUD #1 | $1.96 | $1.95 | $0.00 | $0.00 | $3.91 | $0.00 |
| 2023 | 26252 | LIB1 - LIBRARY DIST #1 | $9.23 | $9.23 | $0.00 | $0.00 | $18.46 | $0.00 |
| 2023 | 26252 | HD2 - HOSP DIST #2 | $1.73 | $1.71 | $0.00 | $0.00 | $3.44 | $0.00 |
| 2023 | 26252 | SD46 - SCHOOL DIST #46 | $22.05 | $22.05 | $0.00 | $0.00 | $44.10 | $0.00 |
| 2023 | 26252 | FD4 - FIRE DISTRICT #4 | $36.66 | $36.66 | $0.00 | $0.00 | $73.32 | $0.00 |
| 2023 | 26252 | EMS4 - FIRE DIST #4 EMS | $10.43 | $10.42 | $0.00 | $0.00 | $20.85 | $0.00 |
| 2023 | 26252 | CEM1 - CEMETERY DIST #1 | $0.37 | $0.37 | $0.00 | $0.00 | $0.74 | $0.00 |
| 2023 | 26252 | JCCD - JC Conservation District | $2.55 | $2.55 | $0.00 | $0.00 | $5.10 | $0.00 |
| 2023 | 26252 | NWA - Noxious Weed Assessment | $2.15 | $2.15 | $0.00 | $0.00 | $4.30 | $0.00 |
| 2023 | 26252 | WAT - Clean Water District | $12.00 | $12.00 | $0.00 | $0.00 | $24.00 | $0.00 |
| 2023 | 26252 | TOTAL: | $233.36 | $233.25 | $0.00 | $0.00 | $466.61 | $0.00 |
|
| 2023 | 26252 | $233.36 | $233.25 | $0.00 | $0.00 | $466.61 | $0.00 |
Values
| (+) Improvement Homesite Value: | + | $0 | |
| (+) Improvement Non-Homesite Value: | + | $23,684 | |
| (+) Land Homesite Value: | + | $0 | |
| (+) Land Non-Homesite Value: | + | $49,140 | |
| (+) Curr Use (HS): | + | $0 | $0 |
| (+) Curr Use (NHS): | + | $0 | $0 |
| | | -------------------------- | |
| (=) Market Value: | = | $72,824 | |
| (–) Productivity Loss: | – | $0 | |
| | | -------------------------- | |
| (=) Subtotal: | = | $72,824 | |
| (+) Senior Appraised Value: | + | $0 | |
| (+) Non-Senior Appraised Value: | + | $72,824 | |
| | | -------------------------- | |
| (=) Total Appraised Value: | = | $72,824 | |
| (–) Senior Exemption Loss: | – | $0 | |
| (–) Exemption Loss: | – | $0 | |
| | | -------------------------- | |
| (=) Taxable Value: | = | $72,824 | |
Taxing Jurisdiction
| Owner: | DON JACOBSEN | | |
| % Ownership: | 100.0000000000% | | |
| Total Value: | $72,824 | | |
| Tax Area: | 0441 - 1-46F4E4H2C1L1P2 |
| CE | COUNTY CURRENT EXPENSE | 0.9034619479 | $72,824 | $72,824 | $65.79 | | |
| CNTYDD | DEVELOPMENTAL DISABILITIES | 0.0052121823 | $72,824 | $72,824 | $0.38 | | |
| CNTYVET | VETERANS RELIEF | 0.0052777810 | $72,824 | $72,824 | $0.38 | | |
| MENTAL | MENTAL HEALTH | 0.0052121823 | $72,824 | $72,824 | $0.38 | | |
| ROADS | COUNTY ROADS | 0.7415066410 | $72,824 | $72,824 | $54.00 | | |
| ROADSCU | COUNTY ROADS TO CUR EXP | 0.0000000000 | $72,824 | $72,824 | $0.00 | | |
| HOSP2CASH | HOSP DIST #2 GENERAL | 0.0536075306 | $72,824 | $72,824 | $3.90 | | |
| SCH46MO | SCHOOL DIST #46 EP & O | 0.6890207067 | $72,824 | $72,824 | $50.18 | | |
| CEM1 | CEMETERY DIST #1 GENERAL | 0.0107168292 | $72,824 | $72,824 | $0.78 | | |
| CONSERVE | CONSERVATION FUTURES | 0.0275621078 | $72,824 | $72,824 | $2.01 | | |
| EMS4 | FIRE DIST #4 EMS | 0.4644216158 | $72,824 | $72,824 | $33.82 | | |
| FD4 | FIRE DIST #4 GENERAL | 1.3939598390 | $72,824 | $72,824 | $101.51 | | |
| FD4BOND | FIRE DIST #4 BOND 2019 | 0.2748466981 | $72,824 | $72,824 | $20.02 | | |
| LIB1 | LIBRARY DIST #1 GENERAL | 0.2868827388 | $72,824 | $72,824 | $20.89 | | |
| PORTPT | PORT OF PT GENERAL | 0.1134941229 | $72,824 | $72,824 | $8.27 | | |
| PORTPTIDD | PORT OF PT IDD 2019 | 0.2577346692 | $72,824 | $72,824 | $18.77 | | |
| PUD1 | PUD #1 GENERAL | 0.0597888892 | $72,824 | $72,824 | $4.35 | | |
| STATE | STATE SCHOOL PART 1 | 1.4940692947 | $72,824 | $72,824 | $108.80 | | |
| STATE2 | STATE SCHOOL PART 2 | 0.8050170049 | $72,824 | $72,824 | $58.62 | | |
| | Total Tax Rate: | 7.5917927814 | | | | | |
| | | | | Taxes w/Current Exemptions: | $552.85 | | |
| | | | | Taxes w/o Exemptions: | $552.85 | | |
Improvement / Building
| Improvement #1: | Residential Bldg | State Code: | 19 | 392.0 sqft | Value: | $23,684 |
| Exterior Wall: | SI/ST | Fireplace: | WD ST-GOOD | | Floor Construction: | FRAME | Foundation: | PO&BL | | Inside Verify: | NO | Interior Finish: | FIN | | Roof Cover: | COMP |   |   |
|
| | Type | Description | Class CD | Sub Class CD | Year Built | Area |
| | MA | Main Area | 2- | C1S | 2009 | 196.0 |
| | MA | Main Area | 2- | C1S | 2009 | 196.0 |
| | HDECK | House Deck | 3 | * | 2009 | 168.0 |
Sketch
Property Image
Land
| 1 | 1250-1185L | | 0.0000 | 0.00 | 0.00 | 0.00 | 1.00 | $43,260 | $0 |
| 2 | 1250-1185L | | 0.0000 | 0.00 | 0.00 | 0.00 | 1.00 | $5,880 | $0 |
Roll Value History
| 2026 | N/A | N/A | N/A | N/A | N/A |
| 2025 | $23,684 | $49,140 | $0 | $72,824 | $72,824 |
| 2024 | $22,655 | $46,800 | $0 | $69,455 | $69,455 |
| 2023 | $22,655 | $41,800 | $0 | $64,455 | $64,455 |
| 2022 | $20,595 | $36,800 | $0 | $57,395 | $57,395 |
Deed and Sales History
| 1 | 05/03/2001 | SWD | Statutory Warranty Deed | HOULTON, LARRY/JANET | JACOBSEN, DON/STEPHANIE | 0 | 0 | $0.00 | 92132 | 0 |
Payout Agreement
| No payout information available.. |