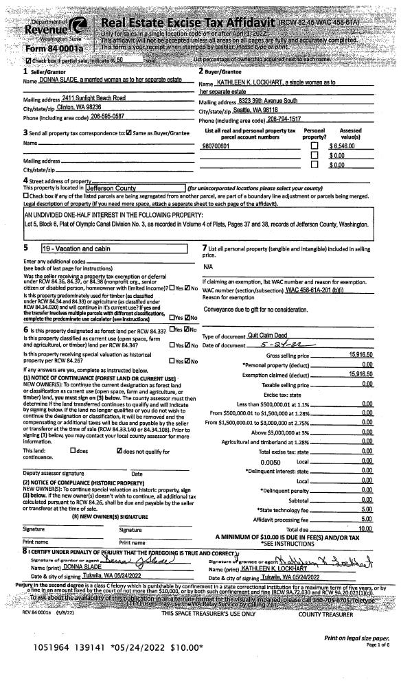
Property
Account |
| Property ID: | 36913 | Abbreviated Legal Description: | OLYMPIC CANAL ADDITION 3 BLK 6 LOT 5 |
| Parcel # / Geo ID: | 980700601 | Agent Code: | |
| Type: | Real | | |
| Tax Area: | 0441 - 1-46F4E4H2C1L1P2 | Land Use Code | 19 |
| Open Space: | N | DFL | N |
| Historic Property: | N | Remodel Property: | N |
| Multi-Family Redevelopment: | N | | |
| Township: | 25N | Section: | 21 |
| Range: | 2W |
Location |
| Address: | | Mapsco: | 013/026 |
| Neighborhood: | OLYMPIC CANAL TRACTS | Map ID: | |
| Neighborhood CD: | 1250 |
Owner |
| Name: | KATHLEEN K LOCKHART | Owner ID: | 107022 |
| Mailing Address: | 3616 83RD PL NE MARYSVILLE, WA 98270-7219 | % Ownership: | 100.0000000000% |
| | | Exemptions: | |
Pay Tax Due
Select the appropriate checkbox next to the year to be paid. Multiple years may be selected.
*Convenience Fee not included
Taxes and Assessment Details
Property Tax Information as of
03/12/2026
Click on "Statement Details" to expand or collapse a tax statement.
* Please enter a valid date ** Please enter a valid date *
Statement Details |
| 2026 | 26128 | STATE - STATE LEVY (SCHOOL) | $25.13 | $25.13 | $0.00 | $0.00 | $0.00 | $50.26 |
| 2026 | 26128 | COUNTY - COUNTY LEVIES (CE, DD, VET, MH) | $10.06 | $10.03 | $0.00 | $0.00 | $0.00 | $20.09 |
| 2026 | 26128 | CONSERVE - CONSERVATION FUTURES | $0.30 | $0.30 | $0.00 | $0.00 | $0.00 | $0.60 |
| 2026 | 26128 | COROADS - COUNTY ROADS (ROADS, DIV TO CE) | $8.11 | $8.10 | $0.00 | $0.00 | $0.00 | $16.21 |
| 2026 | 26128 | PORTPT - PORT DISTRICT | $4.06 | $4.05 | $0.00 | $0.00 | $0.00 | $8.11 |
| 2026 | 26128 | PUD1 - PUD #1 | $0.66 | $0.65 | $0.00 | $0.00 | $0.00 | $1.31 |
| 2026 | 26128 | LIB1 - LIBRARY DIST #1 | $3.14 | $3.13 | $0.00 | $0.00 | $0.00 | $6.27 |
| 2026 | 26128 | HD2 - HOSP DIST #2 | $0.59 | $0.58 | $0.00 | $0.00 | $0.00 | $1.17 |
| 2026 | 26128 | SD46 - SCHOOL DIST #46 | $7.53 | $7.53 | $0.00 | $0.00 | $0.00 | $15.06 |
| 2026 | 26128 | FD4 - FIRE DISTRICT #4 | $18.25 | $18.23 | $0.00 | $0.00 | $0.00 | $36.48 |
| 2026 | 26128 | EMS4 - FIRE DIST #4 EMS | $5.08 | $5.07 | $0.00 | $0.00 | $0.00 | $10.15 |
| 2026 | 26128 | CEM1 - CEMETERY DIST #1 | $0.12 | $0.11 | $0.00 | $0.00 | $0.00 | $0.23 |
| 2026 | 26128 | FP - DNR Forest Fire Protection Assmt | $8.50 | $8.50 | $0.00 | $0.00 | $0.00 | $17.00 |
| 2026 | 26128 | FPLCA - DNR Landowner Contingency Assmt | $3.00 | $3.00 | $0.00 | $0.00 | $0.00 | $6.00 |
| 2026 | 26128 | JCCD - JC Conservation District | $2.55 | $2.55 | $0.00 | $0.00 | $0.00 | $5.10 |
| 2026 | 26128 | NWA - Noxious Weed Assessment | $2.98 | $2.97 | $0.00 | $0.00 | $0.00 | $5.95 |
| 2026 | 26128 | OSS - On Site Septic | $23.10 | $23.10 | $0.00 | $0.00 | $0.00 | $46.20 |
| 2026 | 26128 | WAT - Clean Water District | $13.00 | $13.00 | $0.00 | $0.00 | $0.00 | $26.00 |
| 2026 | 26128 | FP ADMIN - FP ADMIN | $0.50 | $0.00 | $0.00 | $0.00 | $0.00 | $0.50 |
| 2026 | 26128 | TOTAL: | $136.66 | $136.03 | $0.00 | $0.00 | $0.00 | $272.69 |
|
| 2026 | 26128 | $136.66 | $136.03 | $0.00 | $0.00 | $0.00 | $272.69 |
Statement Details |
| 2025 | 26196 | STATE - STATE LEVY (SCHOOL) | $24.99 | $24.98 | $0.00 | $0.00 | $49.97 | $0.00 |
| 2025 | 26196 | COUNTY - COUNTY LEVIES (CE, DD, VET, MH) | $9.84 | $9.81 | $0.00 | $0.00 | $19.65 | $0.00 |
| 2025 | 26196 | CONSERVE - CONSERVATION FUTURES | $0.30 | $0.29 | $0.00 | $0.00 | $0.59 | $0.00 |
| 2025 | 26196 | COROADS - COUNTY ROADS (ROADS, DIV TO CE) | $7.88 | $7.87 | $0.00 | $0.00 | $15.75 | $0.00 |
| 2025 | 26196 | PORTPT - PORT DISTRICT | $4.02 | $4.00 | $0.00 | $0.00 | $8.02 | $0.00 |
| 2025 | 26196 | PUD1 - PUD #1 | $0.65 | $0.64 | $0.00 | $0.00 | $1.29 | $0.00 |
| 2025 | 26196 | LIB1 - LIBRARY DIST #1 | $3.05 | $3.04 | $0.00 | $0.00 | $6.09 | $0.00 |
| 2025 | 26196 | HD2 - HOSP DIST #2 | $0.58 | $0.57 | $0.00 | $0.00 | $1.15 | $0.00 |
| 2025 | 26196 | SD46 - SCHOOL DIST #46 | $6.61 | $6.60 | $0.00 | $0.00 | $13.21 | $0.00 |
| 2025 | 26196 | FD4 - FIRE DISTRICT #4 | $18.30 | $18.30 | $0.00 | $0.00 | $36.60 | $0.00 |
| 2025 | 26196 | EMS4 - FIRE DIST #4 EMS | $5.08 | $5.08 | $0.00 | $0.00 | $10.16 | $0.00 |
| 2025 | 26196 | CEM1 - CEMETERY DIST #1 | $0.12 | $0.12 | $0.00 | $0.00 | $0.24 | $0.00 |
| 2025 | 26196 | FP - DNR Forest Fire Protection Assmt | $8.50 | $8.50 | $0.00 | $0.00 | $17.00 | $0.00 |
| 2025 | 26196 | FPLCA - DNR Landowner Contingency Assmt | $3.00 | $3.00 | $0.00 | $0.00 | $6.00 | $0.00 |
| 2025 | 26196 | JCCD - JC Conservation District | $2.55 | $2.55 | $0.00 | $0.00 | $5.10 | $0.00 |
| 2025 | 26196 | NWA - Noxious Weed Assessment | $2.15 | $2.15 | $0.00 | $0.00 | $4.30 | $0.00 |
| 2025 | 26196 | OSS - On Site Septic | $21.50 | $21.50 | $0.00 | $0.00 | $43.00 | $0.00 |
| 2025 | 26196 | WAT - Clean Water District | $13.00 | $13.00 | $0.00 | $0.00 | $26.00 | $0.00 |
| 2025 | 26196 | FP ADMIN - FP ADMIN | $0.50 | $0.00 | $0.00 | $0.00 | $0.50 | $0.00 |
| 2025 | 26196 | TOTAL: | $132.62 | $132.00 | $0.00 | $0.00 | $264.62 | $0.00 |
|
| 2025 | 26196 | $132.62 | $132.00 | $0.00 | $0.00 | $264.62 | $0.00 |
Statement Details |
| 2024 | 26247 | STATE - STATE LEVY (SCHOOL) | $24.11 | $24.10 | $0.00 | $0.00 | $48.21 | $0.00 |
| 2024 | 26247 | COUNTY - COUNTY LEVIES (CE, DD, VET, MH) | $10.32 | $10.32 | $0.00 | $0.00 | $20.64 | $0.00 |
| 2024 | 26247 | CONSERVE - CONSERVATION FUTURES | $0.31 | $0.31 | $0.00 | $0.00 | $0.62 | $0.00 |
| 2024 | 26247 | COROADS - COUNTY ROADS (ROADS, DIV TO CE) | $8.30 | $8.30 | $0.00 | $0.00 | $16.60 | $0.00 |
| 2024 | 26247 | PORTPT - PORT DISTRICT | $4.27 | $4.25 | $0.00 | $0.00 | $8.52 | $0.00 |
| 2024 | 26247 | PUD1 - PUD #1 | $0.68 | $0.68 | $0.00 | $0.00 | $1.36 | $0.00 |
| 2024 | 26247 | LIB1 - LIBRARY DIST #1 | $3.21 | $3.21 | $0.00 | $0.00 | $6.42 | $0.00 |
| 2024 | 26247 | HD2 - HOSP DIST #2 | $0.60 | $0.60 | $0.00 | $0.00 | $1.20 | $0.00 |
| 2024 | 26247 | SD46 - SCHOOL DIST #46 | $7.24 | $7.23 | $0.00 | $0.00 | $14.47 | $0.00 |
| 2024 | 26247 | FD4 - FIRE DISTRICT #4 | $18.70 | $18.69 | $0.00 | $0.00 | $37.39 | $0.00 |
| 2024 | 26247 | EMS4 - FIRE DIST #4 EMS | $5.21 | $5.21 | $0.00 | $0.00 | $10.42 | $0.00 |
| 2024 | 26247 | CEM1 - CEMETERY DIST #1 | $0.12 | $0.12 | $0.00 | $0.00 | $0.24 | $0.00 |
| 2024 | 26247 | FP - DNR Forest Fire Protection Assmt | $8.50 | $8.50 | $0.00 | $0.00 | $17.00 | $0.00 |
| 2024 | 26247 | FPLCA - DNR Landowner Contingency Assmt | $3.00 | $3.00 | $0.00 | $0.00 | $6.00 | $0.00 |
| 2024 | 26247 | JCCD - JC Conservation District | $2.55 | $2.55 | $0.00 | $0.00 | $5.10 | $0.00 |
| 2024 | 26247 | NWA - Noxious Weed Assessment | $2.15 | $2.15 | $0.00 | $0.00 | $4.30 | $0.00 |
| 2024 | 26247 | OSS - On Site Septic | $21.00 | $21.00 | $0.00 | $0.00 | $42.00 | $0.00 |
| 2024 | 26247 | WAT - Clean Water District | $12.50 | $12.50 | $0.00 | $0.00 | $25.00 | $0.00 |
| 2024 | 26247 | FP ADMIN - FP ADMIN | $0.50 | $0.00 | $0.00 | $0.00 | $0.50 | $0.00 |
| 2024 | 26247 | TOTAL: | $133.27 | $132.72 | $0.00 | $0.00 | $265.99 | $0.00 |
|
| 2024 | 26247 | $133.27 | $132.72 | $0.00 | $0.00 | $265.99 | $0.00 |
Statement Details |
| 2023 | 26288 | STATE - STATE LEVY (SCHOOL) | $24.08 | $24.07 | $0.00 | $0.00 | $48.15 | $0.00 |
| 2023 | 26288 | COUNTY - COUNTY LEVIES (CE, DD, VET, MH) | $10.51 | $10.50 | $0.00 | $0.00 | $21.01 | $0.00 |
| 2023 | 26288 | CONSERVE - CONSERVATION FUTURES | $0.32 | $0.31 | $0.00 | $0.00 | $0.63 | $0.00 |
| 2023 | 26288 | COROADS - COUNTY ROADS (ROADS, DIV TO CE) | $8.51 | $8.49 | $0.00 | $0.00 | $17.00 | $0.00 |
| 2023 | 26288 | PORTPT - PORT DISTRICT | $4.43 | $4.42 | $0.00 | $0.00 | $8.85 | $0.00 |
| 2023 | 26288 | PUD1 - PUD #1 | $0.70 | $0.69 | $0.00 | $0.00 | $1.39 | $0.00 |
| 2023 | 26288 | LIB1 - LIBRARY DIST #1 | $3.29 | $3.29 | $0.00 | $0.00 | $6.58 | $0.00 |
| 2023 | 26288 | HD2 - HOSP DIST #2 | $0.62 | $0.61 | $0.00 | $0.00 | $1.23 | $0.00 |
| 2023 | 26288 | SD46 - SCHOOL DIST #46 | $7.86 | $7.86 | $0.00 | $0.00 | $15.72 | $0.00 |
| 2023 | 26288 | FD4 - FIRE DISTRICT #4 | $13.07 | $13.06 | $0.00 | $0.00 | $26.13 | $0.00 |
| 2023 | 26288 | EMS4 - FIRE DIST #4 EMS | $3.72 | $3.71 | $0.00 | $0.00 | $7.43 | $0.00 |
| 2023 | 26288 | CEM1 - CEMETERY DIST #1 | $0.13 | $0.13 | $0.00 | $0.00 | $0.26 | $0.00 |
| 2023 | 26288 | FP - DNR Forest Fire Protection Assmt | $8.50 | $8.50 | $0.00 | $0.00 | $17.00 | $0.00 |
| 2023 | 26288 | FPLCA - DNR Landowner Contingency Assmt | $3.00 | $3.00 | $0.00 | $0.00 | $6.00 | $0.00 |
| 2023 | 26288 | JCCD - JC Conservation District | $2.55 | $2.55 | $0.00 | $0.00 | $5.10 | $0.00 |
| 2023 | 26288 | NWA - Noxious Weed Assessment | $2.15 | $2.15 | $0.00 | $0.00 | $4.30 | $0.00 |
| 2023 | 26288 | OSS - On Site Septic | $20.50 | $20.50 | $0.00 | $0.00 | $41.00 | $0.00 |
| 2023 | 26288 | WAT - Clean Water District | $12.00 | $12.00 | $0.00 | $0.00 | $24.00 | $0.00 |
| 2023 | 26288 | FP ADMIN - FP ADMIN | $0.50 | $0.00 | $0.00 | $0.00 | $0.50 | $0.00 |
| 2023 | 26288 | TOTAL: | $126.44 | $125.84 | $0.00 | $0.00 | $252.28 | $0.00 |
|
| 2023 | 26288 | $126.44 | $125.84 | $0.00 | $0.00 | $252.28 | $0.00 |
Values
| (+) Improvement Homesite Value: | + | $0 | |
| (+) Improvement Non-Homesite Value: | + | $4,405 | |
| (+) Land Homesite Value: | + | $0 | |
| (+) Land Non-Homesite Value: | + | $17,456 | |
| (+) Curr Use (HS): | + | $0 | $0 |
| (+) Curr Use (NHS): | + | $0 | $0 |
| | | -------------------------- | |
| (=) Market Value: | = | $21,861 | |
| (–) Productivity Loss: | – | $0 | |
| | | -------------------------- | |
| (=) Subtotal: | = | $21,861 | |
| (+) Senior Appraised Value: | + | $0 | |
| (+) Non-Senior Appraised Value: | + | $21,861 | |
| | | -------------------------- | |
| (=) Total Appraised Value: | = | $21,861 | |
| (–) Senior Exemption Loss: | – | $0 | |
| (–) Exemption Loss: | – | $0 | |
| | | -------------------------- | |
| (=) Taxable Value: | = | $21,861 | |
Taxing Jurisdiction
| Owner: | KATHLEEN K LOCKHART | | |
| % Ownership: | 100.0000000000% | | |
| Total Value: | $21,861 | | |
| Tax Area: | 0441 - 1-46F4E4H2C1L1P2 |
| CE | COUNTY CURRENT EXPENSE | 0.9034619479 | $21,861 | $21,861 | $19.75 | | |
| CNTYDD | DEVELOPMENTAL DISABILITIES | 0.0052121823 | $21,861 | $21,861 | $0.11 | | |
| CNTYVET | VETERANS RELIEF | 0.0052777810 | $21,861 | $21,861 | $0.12 | | |
| MENTAL | MENTAL HEALTH | 0.0052121823 | $21,861 | $21,861 | $0.11 | | |
| ROADS | COUNTY ROADS | 0.7415066410 | $21,861 | $21,861 | $16.21 | | |
| ROADSCU | COUNTY ROADS TO CUR EXP | 0.0000000000 | $21,861 | $21,861 | $0.00 | | |
| HOSP2CASH | HOSP DIST #2 GENERAL | 0.0536075306 | $21,861 | $21,861 | $1.17 | | |
| SCH46MO | SCHOOL DIST #46 EP & O | 0.6890207067 | $21,861 | $21,861 | $15.06 | | |
| CEM1 | CEMETERY DIST #1 GENERAL | 0.0107168292 | $21,861 | $21,861 | $0.23 | | |
| CONSERVE | CONSERVATION FUTURES | 0.0275621078 | $21,861 | $21,861 | $0.60 | | |
| EMS4 | FIRE DIST #4 EMS | 0.4644216158 | $21,861 | $21,861 | $10.15 | | |
| FD4 | FIRE DIST #4 GENERAL | 1.3939598390 | $21,861 | $21,861 | $30.47 | | |
| FD4BOND | FIRE DIST #4 BOND 2019 | 0.2748466981 | $21,861 | $21,861 | $6.01 | | |
| LIB1 | LIBRARY DIST #1 GENERAL | 0.2868827388 | $21,861 | $21,861 | $6.27 | | |
| PORTPT | PORT OF PT GENERAL | 0.1134941229 | $21,861 | $21,861 | $2.48 | | |
| PORTPTIDD | PORT OF PT IDD 2019 | 0.2577346692 | $21,861 | $21,861 | $5.63 | | |
| PUD1 | PUD #1 GENERAL | 0.0597888892 | $21,861 | $21,861 | $1.31 | | |
| STATE | STATE SCHOOL PART 1 | 1.4940692947 | $21,861 | $21,861 | $32.66 | | |
| STATE2 | STATE SCHOOL PART 2 | 0.8050170049 | $21,861 | $21,861 | $17.60 | | |
| | Total Tax Rate: | 7.5917927814 | | | | | |
| | | | | Taxes w/Current Exemptions: | $165.94 | | |
| | | | | Taxes w/o Exemptions: | $165.94 | | |
Improvement / Building
| Improvement #1: | Residential Bldg | State Code: | 19 | 246.0 sqft | Value: | $4,405 |
| Bedrooms (#): | 1 | Exterior Wall: | PL/T1 | | Floor Construction: | FRAME | Foundation: | PO&BL | | Heating/Cooling: | WD/NO | Interior Finish: | FIN | | Roof Cover: | COMP |   |   |
|
Sketch
Property Image
Land
| 1 | 1250-1185L | | 0.0000 | 0.00 | 0.00 | 0.00 | 1.00 | $17,456 | $0 |
Roll Value History
| 2026 | N/A | N/A | N/A | N/A | N/A |
| 2025 | $4,405 | $17,456 | $0 | $21,861 | $21,861 |
| 2024 | $4,213 | $16,625 | $0 | $20,838 | $20,838 |
| 2023 | $4,213 | $16,625 | $0 | $20,838 | $20,838 |
| 2022 | $3,830 | $16,625 | $0 | $20,455 | $20,455 |
Deed and Sales History
| 1 | 05/24/2022 | QCD | Quit Claim Deed | DONNA SLADE | KATHLEEN K LOCKHART | | | | 139141 | |
| 2 | 05/24/2022 | QCD | Quit Claim Deed | JOHN O LOCKHART | DONNA SLADE | | | | 139139 | |
| 3 | 05/30/1995 | QCD | Quit Claim Deed | LOCKHART, JOHN O/FERN A | LOCKHART, RANDALL W/KATHLEEN K | 0 | 0 | $0.00 | 77018 | 0 |
Payout Agreement
| No payout information available.. |