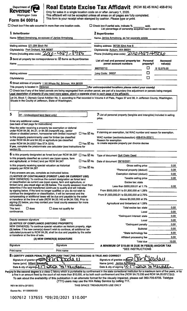
Property
Account |
| Property ID: | 36937 | Abbreviated Legal Description: | OLYMPIC CANAL ADDITION 3 BLK 7 LOT 24 |
| Parcel # / Geo ID: | 980700712 | Agent Code: | |
| Type: | Real | | |
| Tax Area: | 0441 - 1-46F4E4H2C1L1P2 | Land Use Code | 18 |
| Open Space: | N | DFL | N |
| Historic Property: | N | Remodel Property: | N |
| Multi-Family Redevelopment: | N | | |
| Township: | 25N | Section: | 21 |
| Range: | 2W |
Location |
| Address: | | Mapsco: | 014/017 |
| Neighborhood: | OLYMPIC CANAL TRACTS | Map ID: | |
| Neighborhood CD: | 1250 |
Owner |
| Name: | CHRISTIAN & LISA DENZLER | Owner ID: | 105617 |
| Mailing Address: | 36728 32ND AVE S AUBURN, WA 98001-8837 | % Ownership: | 100.0000000000% |
| | | Exemptions: | |
Pay Tax Due
Select the appropriate checkbox next to the year to be paid. Multiple years may be selected.
*Convenience Fee not included
Taxes and Assessment Details
Property Tax Information as of
03/11/2026
Click on "Statement Details" to expand or collapse a tax statement.
* Please enter a valid date ** Please enter a valid date *
Statement Details |
| 2026 | 26151 | STATE - STATE LEVY (SCHOOL) | $28.82 | $28.81 | $0.00 | $0.00 | $0.00 | $57.63 |
| 2026 | 26151 | COUNTY - COUNTY LEVIES (CE, DD, VET, MH) | $11.54 | $11.50 | $0.00 | $0.00 | $0.00 | $23.04 |
| 2026 | 26151 | CONSERVE - CONSERVATION FUTURES | $0.35 | $0.34 | $0.00 | $0.00 | $0.00 | $0.69 |
| 2026 | 26151 | COROADS - COUNTY ROADS (ROADS, DIV TO CE) | $9.30 | $9.29 | $0.00 | $0.00 | $0.00 | $18.59 |
| 2026 | 26151 | PORTPT - PORT DISTRICT | $4.65 | $4.65 | $0.00 | $0.00 | $0.00 | $9.30 |
| 2026 | 26151 | PUD1 - PUD #1 | $0.75 | $0.75 | $0.00 | $0.00 | $0.00 | $1.50 |
| 2026 | 26151 | LIB1 - LIBRARY DIST #1 | $3.60 | $3.59 | $0.00 | $0.00 | $0.00 | $7.19 |
| 2026 | 26151 | HD2 - HOSP DIST #2 | $0.67 | $0.67 | $0.00 | $0.00 | $0.00 | $1.34 |
| 2026 | 26151 | SD46 - SCHOOL DIST #46 | $8.64 | $8.63 | $0.00 | $0.00 | $0.00 | $17.27 |
| 2026 | 26151 | FD4 - FIRE DISTRICT #4 | $20.92 | $20.91 | $0.00 | $0.00 | $0.00 | $41.83 |
| 2026 | 26151 | EMS4 - FIRE DIST #4 EMS | $5.82 | $5.82 | $0.00 | $0.00 | $0.00 | $11.64 |
| 2026 | 26151 | CEM1 - CEMETERY DIST #1 | $0.14 | $0.13 | $0.00 | $0.00 | $0.00 | $0.27 |
| 2026 | 26151 | JCCD - JC Conservation District | $2.53 | $2.53 | $0.00 | $0.00 | $0.00 | $5.06 |
| 2026 | 26151 | NWA - Noxious Weed Assessment | $2.98 | $2.97 | $0.00 | $0.00 | $0.00 | $5.95 |
| 2026 | 26151 | OSS - On Site Septic | $23.10 | $23.10 | $0.00 | $0.00 | $0.00 | $46.20 |
| 2026 | 26151 | WAT - Clean Water District | $13.00 | $13.00 | $0.00 | $0.00 | $0.00 | $26.00 |
| 2026 | 26151 | TOTAL: | $136.81 | $136.69 | $0.00 | $0.00 | $0.00 | $273.50 |
|
| 2026 | 26151 | $136.81 | $136.69 | $0.00 | $0.00 | $0.00 | $273.50 |
Statement Details |
| 2025 | 26219 | STATE - STATE LEVY (SCHOOL) | $28.63 | $28.63 | $0.00 | $0.00 | $57.26 | $0.00 |
| 2025 | 26219 | COUNTY - COUNTY LEVIES (CE, DD, VET, MH) | $11.28 | $11.24 | $0.00 | $0.00 | $22.52 | $0.00 |
| 2025 | 26219 | CONSERVE - CONSERVATION FUTURES | $0.34 | $0.34 | $0.00 | $0.00 | $0.68 | $0.00 |
| 2025 | 26219 | COROADS - COUNTY ROADS (ROADS, DIV TO CE) | $9.02 | $9.02 | $0.00 | $0.00 | $18.04 | $0.00 |
| 2025 | 26219 | PORTPT - PORT DISTRICT | $4.60 | $4.59 | $0.00 | $0.00 | $9.19 | $0.00 |
| 2025 | 26219 | PUD1 - PUD #1 | $0.74 | $0.73 | $0.00 | $0.00 | $1.47 | $0.00 |
| 2025 | 26219 | LIB1 - LIBRARY DIST #1 | $3.49 | $3.49 | $0.00 | $0.00 | $6.98 | $0.00 |
| 2025 | 26219 | HD2 - HOSP DIST #2 | $0.66 | $0.65 | $0.00 | $0.00 | $1.31 | $0.00 |
| 2025 | 26219 | SD46 - SCHOOL DIST #46 | $7.57 | $7.56 | $0.00 | $0.00 | $15.13 | $0.00 |
| 2025 | 26219 | FD4 - FIRE DISTRICT #4 | $20.98 | $20.97 | $0.00 | $0.00 | $41.95 | $0.00 |
| 2025 | 26219 | EMS4 - FIRE DIST #4 EMS | $5.82 | $5.82 | $0.00 | $0.00 | $11.64 | $0.00 |
| 2025 | 26219 | CEM1 - CEMETERY DIST #1 | $0.14 | $0.13 | $0.00 | $0.00 | $0.27 | $0.00 |
| 2025 | 26219 | JCCD - JC Conservation District | $2.55 | $2.55 | $0.00 | $0.00 | $5.10 | $0.00 |
| 2025 | 26219 | NWA - Noxious Weed Assessment | $2.15 | $2.15 | $0.00 | $0.00 | $4.30 | $0.00 |
| 2025 | 26219 | OSS - On Site Septic | $21.50 | $21.50 | $0.00 | $0.00 | $43.00 | $0.00 |
| 2025 | 26219 | WAT - Clean Water District | $13.00 | $13.00 | $0.00 | $0.00 | $26.00 | $0.00 |
| 2025 | 26219 | TOTAL: | $132.47 | $132.37 | $0.00 | $0.00 | $264.84 | $0.00 |
|
| 2025 | 26219 | $132.47 | $132.37 | $0.00 | $0.00 | $264.84 | $0.00 |
Statement Details |
| 2024 | 26271 | STATE - STATE LEVY (SCHOOL) | $27.63 | $27.62 | $0.00 | $0.00 | $55.25 | $0.00 |
| 2024 | 26271 | COUNTY - COUNTY LEVIES (CE, DD, VET, MH) | $11.83 | $11.81 | $0.00 | $0.00 | $23.64 | $0.00 |
| 2024 | 26271 | CONSERVE - CONSERVATION FUTURES | $0.36 | $0.35 | $0.00 | $0.00 | $0.71 | $0.00 |
| 2024 | 26271 | COROADS - COUNTY ROADS (ROADS, DIV TO CE) | $9.51 | $9.51 | $0.00 | $0.00 | $19.02 | $0.00 |
| 2024 | 26271 | PORTPT - PORT DISTRICT | $4.89 | $4.88 | $0.00 | $0.00 | $9.77 | $0.00 |
| 2024 | 26271 | PUD1 - PUD #1 | $0.78 | $0.77 | $0.00 | $0.00 | $1.55 | $0.00 |
| 2024 | 26271 | LIB1 - LIBRARY DIST #1 | $3.68 | $3.68 | $0.00 | $0.00 | $7.36 | $0.00 |
| 2024 | 26271 | HD2 - HOSP DIST #2 | $0.69 | $0.69 | $0.00 | $0.00 | $1.38 | $0.00 |
| 2024 | 26271 | SD46 - SCHOOL DIST #46 | $8.29 | $8.29 | $0.00 | $0.00 | $16.58 | $0.00 |
| 2024 | 26271 | FD4 - FIRE DISTRICT #4 | $21.42 | $21.42 | $0.00 | $0.00 | $42.84 | $0.00 |
| 2024 | 26271 | EMS4 - FIRE DIST #4 EMS | $5.97 | $5.97 | $0.00 | $0.00 | $11.94 | $0.00 |
| 2024 | 26271 | CEM1 - CEMETERY DIST #1 | $0.14 | $0.14 | $0.00 | $0.00 | $0.28 | $0.00 |
| 2024 | 26271 | JCCD - JC Conservation District | $2.55 | $2.55 | $0.00 | $0.00 | $5.10 | $0.00 |
| 2024 | 26271 | NWA - Noxious Weed Assessment | $2.15 | $2.15 | $0.00 | $0.00 | $4.30 | $0.00 |
| 2024 | 26271 | OSS - On Site Septic | $21.00 | $21.00 | $0.00 | $0.00 | $42.00 | $0.00 |
| 2024 | 26271 | WAT - Clean Water District | $12.50 | $12.50 | $0.00 | $0.00 | $25.00 | $0.00 |
| 2024 | 26271 | TOTAL: | $133.39 | $133.33 | $0.00 | $0.00 | $266.72 | $0.00 |
|
| 2024 | 26271 | $133.39 | $133.33 | $0.00 | $0.00 | $266.72 | $0.00 |
Statement Details |
| 2023 | 26312 | STATE - STATE LEVY (SCHOOL) | $26.79 | $26.78 | $0.00 | $0.00 | $53.57 | $0.00 |
| 2023 | 26312 | COUNTY - COUNTY LEVIES (CE, DD, VET, MH) | $11.70 | $11.66 | $0.00 | $0.00 | $23.36 | $0.00 |
| 2023 | 26312 | CONSERVE - CONSERVATION FUTURES | $0.35 | $0.35 | $0.00 | $0.00 | $0.70 | $0.00 |
| 2023 | 26312 | COROADS - COUNTY ROADS (ROADS, DIV TO CE) | $9.46 | $9.45 | $0.00 | $0.00 | $18.91 | $0.00 |
| 2023 | 26312 | PORTPT - PORT DISTRICT | $4.93 | $4.92 | $0.00 | $0.00 | $9.85 | $0.00 |
| 2023 | 26312 | PUD1 - PUD #1 | $0.78 | $0.77 | $0.00 | $0.00 | $1.55 | $0.00 |
| 2023 | 26312 | LIB1 - LIBRARY DIST #1 | $3.66 | $3.66 | $0.00 | $0.00 | $7.32 | $0.00 |
| 2023 | 26312 | HD2 - HOSP DIST #2 | $0.69 | $0.67 | $0.00 | $0.00 | $1.36 | $0.00 |
| 2023 | 26312 | SD46 - SCHOOL DIST #46 | $8.74 | $8.74 | $0.00 | $0.00 | $17.48 | $0.00 |
| 2023 | 26312 | FD4 - FIRE DISTRICT #4 | $14.54 | $14.53 | $0.00 | $0.00 | $29.07 | $0.00 |
| 2023 | 26312 | EMS4 - FIRE DIST #4 EMS | $4.14 | $4.13 | $0.00 | $0.00 | $8.27 | $0.00 |
| 2023 | 26312 | CEM1 - CEMETERY DIST #1 | $0.15 | $0.14 | $0.00 | $0.00 | $0.29 | $0.00 |
| 2023 | 26312 | JCCD - JC Conservation District | $2.55 | $2.55 | $0.00 | $0.00 | $5.10 | $0.00 |
| 2023 | 26312 | NWA - Noxious Weed Assessment | $2.15 | $2.15 | $0.00 | $0.00 | $4.30 | $0.00 |
| 2023 | 26312 | OSS - On Site Septic | $20.50 | $20.50 | $0.00 | $0.00 | $41.00 | $0.00 |
| 2023 | 26312 | WAT - Clean Water District | $12.00 | $12.00 | $0.00 | $0.00 | $24.00 | $0.00 |
| 2023 | 26312 | TOTAL: | $123.13 | $123.00 | $0.00 | $0.00 | $246.13 | $0.00 |
|
| 2023 | 26312 | $123.13 | $123.00 | $0.00 | $0.00 | $246.13 | $0.00 |
Values
| (+) Improvement Homesite Value: | + | $0 | |
| (+) Improvement Non-Homesite Value: | + | $1,441 | |
| (+) Land Homesite Value: | + | $0 | |
| (+) Land Non-Homesite Value: | + | $23,625 | |
| (+) Curr Use (HS): | + | $0 | $0 |
| (+) Curr Use (NHS): | + | $0 | $0 |
| | | -------------------------- | |
| (=) Market Value: | = | $25,066 | |
| (–) Productivity Loss: | – | $0 | |
| | | -------------------------- | |
| (=) Subtotal: | = | $25,066 | |
| (+) Senior Appraised Value: | + | $0 | |
| (+) Non-Senior Appraised Value: | + | $25,066 | |
| | | -------------------------- | |
| (=) Total Appraised Value: | = | $25,066 | |
| (–) Senior Exemption Loss: | – | $0 | |
| (–) Exemption Loss: | – | $0 | |
| | | -------------------------- | |
| (=) Taxable Value: | = | $25,066 | |
Taxing Jurisdiction
| Owner: | CHRISTIAN & LISA DENZLER | | |
| % Ownership: | 100.0000000000% | | |
| Total Value: | $25,066 | | |
| Tax Area: | 0441 - 1-46F4E4H2C1L1P2 |
| CE | COUNTY CURRENT EXPENSE | 0.9034619479 | $25,066 | $25,066 | $22.65 | | |
| CNTYDD | DEVELOPMENTAL DISABILITIES | 0.0052121823 | $25,066 | $25,066 | $0.13 | | |
| CNTYVET | VETERANS RELIEF | 0.0052777810 | $25,066 | $25,066 | $0.13 | | |
| MENTAL | MENTAL HEALTH | 0.0052121823 | $25,066 | $25,066 | $0.13 | | |
| ROADS | COUNTY ROADS | 0.7415066410 | $25,066 | $25,066 | $18.59 | | |
| ROADSCU | COUNTY ROADS TO CUR EXP | 0.0000000000 | $25,066 | $25,066 | $0.00 | | |
| HOSP2CASH | HOSP DIST #2 GENERAL | 0.0536075306 | $25,066 | $25,066 | $1.34 | | |
| SCH46MO | SCHOOL DIST #46 EP & O | 0.6890207067 | $25,066 | $25,066 | $17.27 | | |
| CEM1 | CEMETERY DIST #1 GENERAL | 0.0107168292 | $25,066 | $25,066 | $0.27 | | |
| CONSERVE | CONSERVATION FUTURES | 0.0275621078 | $25,066 | $25,066 | $0.69 | | |
| EMS4 | FIRE DIST #4 EMS | 0.4644216158 | $25,066 | $25,066 | $11.64 | | |
| FD4 | FIRE DIST #4 GENERAL | 1.3939598390 | $25,066 | $25,066 | $34.94 | | |
| FD4BOND | FIRE DIST #4 BOND 2019 | 0.2748466981 | $25,066 | $25,066 | $6.89 | | |
| LIB1 | LIBRARY DIST #1 GENERAL | 0.2868827388 | $25,066 | $25,066 | $7.19 | | |
| PORTPT | PORT OF PT GENERAL | 0.1134941229 | $25,066 | $25,066 | $2.84 | | |
| PORTPTIDD | PORT OF PT IDD 2019 | 0.2577346692 | $25,066 | $25,066 | $6.46 | | |
| PUD1 | PUD #1 GENERAL | 0.0597888892 | $25,066 | $25,066 | $1.50 | | |
| STATE | STATE SCHOOL PART 1 | 1.4940692947 | $25,066 | $25,066 | $37.45 | | |
| STATE2 | STATE SCHOOL PART 2 | 0.8050170049 | $25,066 | $25,066 | $20.18 | | |
| | Total Tax Rate: | 7.5917927814 | | | | | |
| | | | | Taxes w/Current Exemptions: | $190.29 | | |
| | | | | Taxes w/o Exemptions: | $190.29 | | |
Improvement / Building
| Improvement #1: | Residential Bldg | State Code: | 19 | 0.0 sqft | Value: | $1,441 |
Sketch
Property Image
Land
| 1 | 1250-1185L | | 0.0000 | 0.00 | 0.00 | 0.00 | 1.00 | $23,625 | $0 |
Roll Value History
| 2026 | N/A | N/A | N/A | N/A | N/A |
| 2025 | $1,441 | $23,625 | $0 | $25,066 | $25,066 |
| 2024 | $1,378 | $22,500 | $0 | $23,878 | $23,878 |
| 2023 | $1,378 | $22,500 | $0 | $23,878 | $23,878 |
| 2022 | $1,253 | $21,500 | $0 | $22,753 | $22,753 |
Deed and Sales History
| 1 | 09/07/2021 | SWD | Statutory Warranty Deed | TIM MC MULLEN | CHRISTIAN & LISA DENZLER | | | $33,333.00 | 137656 | |
| 2 | 09/16/2021 | QCD | Quit Claim Deed | MILLARD ARMSTRONG | JANICE ARMSTRONG | | | | 137655 | |
| 3 | 08/12/2010 | QCD | Quit Claim Deed | SAUERS, FRANK/BETTY | MC MULLEN, TIM & SHERIE/ | 0 | 0 | $0.00 | 114756 | 0 |
Payout Agreement
| No payout information available.. |