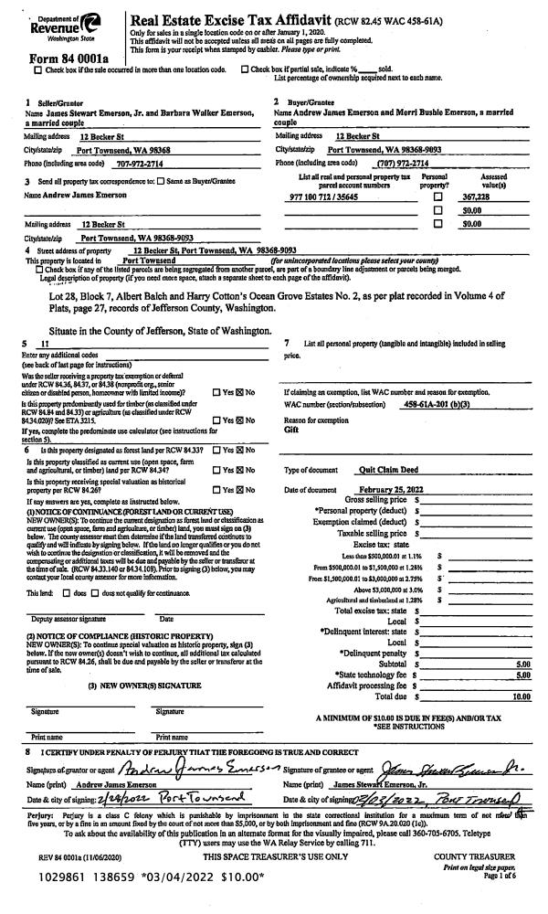
Property
Account |
| Property ID: | 37003 | Abbreviated Legal Description: | OLYMPIC CANAL ADDITION 4 BLK 22 LOT 27 |
| Parcel # / Geo ID: | 981002225 | Agent Code: | |
| Type: | Real | | |
| Tax Area: | 0441 - 1-46F4E4H2C1L1P2 | Land Use Code | 18 |
| Open Space: | N | DFL | N |
| Historic Property: | N | Remodel Property: | N |
| Multi-Family Redevelopment: | N | | |
| Township: | 25N | Section: | 16 |
| Range: | 2W |
Location |
| Address: | 330 KELLY RD BRINNON, WA 98320 | Mapsco: | 015/028 |
| Neighborhood: | OLYMPIC CANAL TRACTS | Map ID: | |
| Neighborhood CD: | 1250 |
Owner |
| Name: | JOELLE WHITE | Owner ID: | 113351 |
| Mailing Address: | ROBERT S WHITE MADISON WHITE JTWROS 120 NARROW WAY SEQUIM, WA 98382-7146 | % Ownership: | 100.0000000000% |
| | | Exemptions: | |
Pay Tax Due
Select the appropriate checkbox next to the year to be paid. Multiple years may be selected.
*Convenience Fee not included
Taxes and Assessment Details
Property Tax Information as of
03/10/2026
Click on "Statement Details" to expand or collapse a tax statement.
* Please enter a valid date ** Please enter a valid date *
Statement Details |
| 2026 | 26216 | STATE - STATE LEVY (SCHOOL) | $87.31 | $87.31 | $0.00 | $0.00 | $87.31 | $87.31 |
| 2026 | 26216 | COUNTY - COUNTY LEVIES (CE, DD, VET, MH) | $34.91 | $34.91 | $0.00 | $0.00 | $34.91 | $34.91 |
| 2026 | 26216 | CONSERVE - CONSERVATION FUTURES | $1.05 | $1.04 | $0.00 | $0.00 | $1.05 | $1.04 |
| 2026 | 26216 | COROADS - COUNTY ROADS (ROADS, DIV TO CE) | $28.16 | $28.16 | $0.00 | $0.00 | $28.16 | $28.16 |
| 2026 | 26216 | PORTPT - PORT DISTRICT | $14.10 | $14.10 | $0.00 | $0.00 | $14.10 | $14.10 |
| 2026 | 26216 | PUD1 - PUD #1 | $2.27 | $2.27 | $0.00 | $0.00 | $2.27 | $2.27 |
| 2026 | 26216 | LIB1 - LIBRARY DIST #1 | $10.90 | $10.89 | $0.00 | $0.00 | $10.90 | $10.89 |
| 2026 | 26216 | HD2 - HOSP DIST #2 | $2.04 | $2.03 | $0.00 | $0.00 | $2.04 | $2.03 |
| 2026 | 26216 | SD46 - SCHOOL DIST #46 | $26.17 | $26.16 | $0.00 | $0.00 | $26.17 | $26.16 |
| 2026 | 26216 | FD4 - FIRE DISTRICT #4 | $63.38 | $63.38 | $0.00 | $0.00 | $63.38 | $63.38 |
| 2026 | 26216 | EMS4 - FIRE DIST #4 EMS | $17.64 | $17.63 | $0.00 | $0.00 | $17.64 | $17.63 |
| 2026 | 26216 | CEM1 - CEMETERY DIST #1 | $0.41 | $0.40 | $0.00 | $0.00 | $0.41 | $0.40 |
| 2026 | 26216 | JCCD - JC Conservation District | $2.53 | $2.53 | $0.00 | $0.00 | $2.53 | $2.53 |
| 2026 | 26216 | NWA - Noxious Weed Assessment | $2.98 | $2.97 | $0.00 | $0.00 | $2.98 | $2.97 |
| 2026 | 26216 | OSS - On Site Septic | $23.10 | $23.10 | $0.00 | $0.00 | $23.10 | $23.10 |
| 2026 | 26216 | WAT - Clean Water District | $13.00 | $13.00 | $0.00 | $0.00 | $13.00 | $13.00 |
| 2026 | 26216 | TOTAL: | $329.95 | $329.88 | $0.00 | $0.00 | $329.95 | $329.88 |
|
| 2026 | 26216 | $329.95 | $329.88 | $0.00 | $0.00 | $329.95 | $329.88 |
Statement Details |
| 2025 | 26285 | STATE - STATE LEVY (SCHOOL) | $86.79 | $86.79 | $0.00 | $0.00 | $173.58 | $0.00 |
| 2025 | 26285 | COUNTY - COUNTY LEVIES (CE, DD, VET, MH) | $34.15 | $34.12 | $0.00 | $0.00 | $68.27 | $0.00 |
| 2025 | 26285 | CONSERVE - CONSERVATION FUTURES | $1.03 | $1.02 | $0.00 | $0.00 | $2.05 | $0.00 |
| 2025 | 26285 | COROADS - COUNTY ROADS (ROADS, DIV TO CE) | $27.35 | $27.33 | $0.00 | $0.00 | $54.68 | $0.00 |
| 2025 | 26285 | PORTPT - PORT DISTRICT | $13.94 | $13.92 | $0.00 | $0.00 | $27.86 | $0.00 |
| 2025 | 26285 | PUD1 - PUD #1 | $2.24 | $2.23 | $0.00 | $0.00 | $4.47 | $0.00 |
| 2025 | 26285 | LIB1 - LIBRARY DIST #1 | $10.58 | $10.58 | $0.00 | $0.00 | $21.16 | $0.00 |
| 2025 | 26285 | HD2 - HOSP DIST #2 | $1.99 | $1.99 | $0.00 | $0.00 | $3.98 | $0.00 |
| 2025 | 26285 | SD46 - SCHOOL DIST #46 | $22.94 | $22.94 | $0.00 | $0.00 | $45.88 | $0.00 |
| 2025 | 26285 | FD4 - FIRE DISTRICT #4 | $63.58 | $63.57 | $0.00 | $0.00 | $127.15 | $0.00 |
| 2025 | 26285 | EMS4 - FIRE DIST #4 EMS | $17.64 | $17.64 | $0.00 | $0.00 | $35.28 | $0.00 |
| 2025 | 26285 | CEM1 - CEMETERY DIST #1 | $0.41 | $0.41 | $0.00 | $0.00 | $0.82 | $0.00 |
| 2025 | 26285 | JCCD - JC Conservation District | $2.55 | $2.55 | $0.00 | $0.00 | $5.10 | $0.00 |
| 2025 | 26285 | NWA - Noxious Weed Assessment | $2.15 | $2.15 | $0.00 | $0.00 | $4.30 | $0.00 |
| 2025 | 26285 | OSS - On Site Septic | $21.50 | $21.50 | $0.00 | $0.00 | $43.00 | $0.00 |
| 2025 | 26285 | WAT - Clean Water District | $13.00 | $13.00 | $0.00 | $0.00 | $26.00 | $0.00 |
| 2025 | 26285 | TOTAL: | $321.84 | $321.74 | $0.00 | $0.00 | $643.58 | $0.00 |
|
| 2025 | 26285 | $321.84 | $321.74 | $0.00 | $0.00 | $643.58 | $0.00 |
Statement Details |
| 2024 | 26337 | STATE - STATE LEVY (SCHOOL) | $77.96 | $77.94 | $0.00 | $0.00 | $155.90 | $0.00 |
| 2024 | 26337 | COUNTY - COUNTY LEVIES (CE, DD, VET, MH) | $33.36 | $33.36 | $0.00 | $0.00 | $66.72 | $0.00 |
| 2024 | 26337 | CONSERVE - CONSERVATION FUTURES | $1.00 | $1.00 | $0.00 | $0.00 | $2.00 | $0.00 |
| 2024 | 26337 | COROADS - COUNTY ROADS (ROADS, DIV TO CE) | $26.85 | $26.84 | $0.00 | $0.00 | $53.69 | $0.00 |
| 2024 | 26337 | PORTPT - PORT DISTRICT | $13.78 | $13.78 | $0.00 | $0.00 | $27.56 | $0.00 |
| 2024 | 26337 | PUD1 - PUD #1 | $2.19 | $2.19 | $0.00 | $0.00 | $4.38 | $0.00 |
| 2024 | 26337 | LIB1 - LIBRARY DIST #1 | $10.39 | $10.38 | $0.00 | $0.00 | $20.77 | $0.00 |
| 2024 | 26337 | HD2 - HOSP DIST #2 | $1.95 | $1.94 | $0.00 | $0.00 | $3.89 | $0.00 |
| 2024 | 26337 | SD46 - SCHOOL DIST #46 | $23.40 | $23.40 | $0.00 | $0.00 | $46.80 | $0.00 |
| 2024 | 26337 | FD4 - FIRE DISTRICT #4 | $60.45 | $60.45 | $0.00 | $0.00 | $120.90 | $0.00 |
| 2024 | 26337 | EMS4 - FIRE DIST #4 EMS | $16.85 | $16.84 | $0.00 | $0.00 | $33.69 | $0.00 |
| 2024 | 26337 | CEM1 - CEMETERY DIST #1 | $0.40 | $0.39 | $0.00 | $0.00 | $0.79 | $0.00 |
| 2024 | 26337 | JCCD - JC Conservation District | $2.55 | $2.55 | $0.00 | $0.00 | $5.10 | $0.00 |
| 2024 | 26337 | NWA - Noxious Weed Assessment | $2.15 | $2.15 | $0.00 | $0.00 | $4.30 | $0.00 |
| 2024 | 26337 | OSS - On Site Septic | $21.00 | $21.00 | $0.00 | $0.00 | $42.00 | $0.00 |
| 2024 | 26337 | WAT - Clean Water District | $12.50 | $12.50 | $0.00 | $0.00 | $25.00 | $0.00 |
| 2024 | 26337 | TOTAL: | $306.78 | $306.71 | $0.00 | $0.00 | $613.49 | $0.00 |
|
| 2024 | 26337 | $306.78 | $306.71 | $0.00 | $0.00 | $613.49 | $0.00 |
Statement Details |
| 2023 | 26378 | STATE - STATE LEVY (SCHOOL) | $72.25 | $72.23 | $0.00 | $0.00 | $144.48 | $0.00 |
| 2023 | 26378 | COUNTY - COUNTY LEVIES (CE, DD, VET, MH) | $31.53 | $31.52 | $0.00 | $0.00 | $63.05 | $0.00 |
| 2023 | 26378 | CONSERVE - CONSERVATION FUTURES | $0.95 | $0.94 | $0.00 | $0.00 | $1.89 | $0.00 |
| 2023 | 26378 | COROADS - COUNTY ROADS (ROADS, DIV TO CE) | $25.51 | $25.50 | $0.00 | $0.00 | $51.01 | $0.00 |
| 2023 | 26378 | PORTPT - PORT DISTRICT | $13.28 | $13.27 | $0.00 | $0.00 | $26.55 | $0.00 |
| 2023 | 26378 | PUD1 - PUD #1 | $2.09 | $2.09 | $0.00 | $0.00 | $4.18 | $0.00 |
| 2023 | 26378 | LIB1 - LIBRARY DIST #1 | $9.87 | $9.87 | $0.00 | $0.00 | $19.74 | $0.00 |
| 2023 | 26378 | HD2 - HOSP DIST #2 | $1.85 | $1.83 | $0.00 | $0.00 | $3.68 | $0.00 |
| 2023 | 26378 | SD46 - SCHOOL DIST #46 | $23.58 | $23.58 | $0.00 | $0.00 | $47.16 | $0.00 |
| 2023 | 26378 | FD4 - FIRE DISTRICT #4 | $39.21 | $39.20 | $0.00 | $0.00 | $78.41 | $0.00 |
| 2023 | 26378 | EMS4 - FIRE DIST #4 EMS | $11.15 | $11.15 | $0.00 | $0.00 | $22.30 | $0.00 |
| 2023 | 26378 | CEM1 - CEMETERY DIST #1 | $0.40 | $0.39 | $0.00 | $0.00 | $0.79 | $0.00 |
| 2023 | 26378 | JCCD - JC Conservation District | $2.55 | $2.55 | $0.00 | $0.00 | $5.10 | $0.00 |
| 2023 | 26378 | NWA - Noxious Weed Assessment | $2.15 | $2.15 | $0.00 | $0.00 | $4.30 | $0.00 |
| 2023 | 26378 | OSS - On Site Septic | $20.50 | $20.50 | $0.00 | $0.00 | $41.00 | $0.00 |
| 2023 | 26378 | WAT - Clean Water District | $12.00 | $12.00 | $0.00 | $0.00 | $24.00 | $0.00 |
| 2023 | 26378 | TOTAL: | $268.87 | $268.77 | $0.00 | $0.00 | $537.64 | $0.00 |
|
| 2023 | 26378 | $268.87 | $268.77 | $0.00 | $0.00 | $537.64 | $0.00 |
Values
| (+) Improvement Homesite Value: | + | $0 | |
| (+) Improvement Non-Homesite Value: | + | $11,641 | |
| (+) Land Homesite Value: | + | $0 | |
| (+) Land Non-Homesite Value: | + | $64,313 | |
| (+) Curr Use (HS): | + | $0 | $0 |
| (+) Curr Use (NHS): | + | $0 | $0 |
| | | -------------------------- | |
| (=) Market Value: | = | $75,954 | |
| (–) Productivity Loss: | – | $0 | |
| | | -------------------------- | |
| (=) Subtotal: | = | $75,954 | |
| (+) Senior Appraised Value: | + | $0 | |
| (+) Non-Senior Appraised Value: | + | $75,954 | |
| | | -------------------------- | |
| (=) Total Appraised Value: | = | $75,954 | |
| (–) Senior Exemption Loss: | – | $0 | |
| (–) Exemption Loss: | – | $0 | |
| | | -------------------------- | |
| (=) Taxable Value: | = | $75,954 | |
Taxing Jurisdiction
| Owner: | JOELLE WHITE | | |
| % Ownership: | 100.0000000000% | | |
| Total Value: | $75,954 | | |
| Tax Area: | 0441 - 1-46F4E4H2C1L1P2 |
| CE | COUNTY CURRENT EXPENSE | 0.9034619479 | $75,954 | $75,954 | $68.62 | | |
| CNTYDD | DEVELOPMENTAL DISABILITIES | 0.0052121823 | $75,954 | $75,954 | $0.40 | | |
| CNTYVET | VETERANS RELIEF | 0.0052777810 | $75,954 | $75,954 | $0.40 | | |
| MENTAL | MENTAL HEALTH | 0.0052121823 | $75,954 | $75,954 | $0.40 | | |
| ROADS | COUNTY ROADS | 0.7415066410 | $75,954 | $75,954 | $56.32 | | |
| ROADSCU | COUNTY ROADS TO CUR EXP | 0.0000000000 | $75,954 | $75,954 | $0.00 | | |
| HOSP2CASH | HOSP DIST #2 GENERAL | 0.0536075306 | $75,954 | $75,954 | $4.07 | | |
| SCH46MO | SCHOOL DIST #46 EP & O | 0.6890207067 | $75,954 | $75,954 | $52.33 | | |
| CEM1 | CEMETERY DIST #1 GENERAL | 0.0107168292 | $75,954 | $75,954 | $0.81 | | |
| CONSERVE | CONSERVATION FUTURES | 0.0275621078 | $75,954 | $75,954 | $2.09 | | |
| EMS4 | FIRE DIST #4 EMS | 0.4644216158 | $75,954 | $75,954 | $35.27 | | |
| FD4 | FIRE DIST #4 GENERAL | 1.3939598390 | $75,954 | $75,954 | $105.88 | | |
| FD4BOND | FIRE DIST #4 BOND 2019 | 0.2748466981 | $75,954 | $75,954 | $20.88 | | |
| LIB1 | LIBRARY DIST #1 GENERAL | 0.2868827388 | $75,954 | $75,954 | $21.79 | | |
| PORTPT | PORT OF PT GENERAL | 0.1134941229 | $75,954 | $75,954 | $8.62 | | |
| PORTPTIDD | PORT OF PT IDD 2019 | 0.2577346692 | $75,954 | $75,954 | $19.58 | | |
| PUD1 | PUD #1 GENERAL | 0.0597888892 | $75,954 | $75,954 | $4.54 | | |
| STATE | STATE SCHOOL PART 1 | 1.4940692947 | $75,954 | $75,954 | $113.48 | | |
| STATE2 | STATE SCHOOL PART 2 | 0.8050170049 | $75,954 | $75,954 | $61.14 | | |
| | Total Tax Rate: | 7.5917927814 | | | | | |
| | | | | Taxes w/Current Exemptions: | $576.62 | | |
| | | | | Taxes w/o Exemptions: | $576.62 | | |
Improvement / Building
| Improvement #1: | Residential Bldg | State Code: | 19 | 200.0 sqft | Value: | $11,641 |
| Exterior Wall: | METAL | Floor Construction: | FRAME | | Foundation: | PO&BL | Inside Verify: | NO | | Roof Cover: | METAL |   |   |
|
| | Type | Description | Class CD | Sub Class CD | Year Built | Area |
| | MA | Main Area | 2- | C1S | 2001 | 200.0 |
| | SHED | Shed (Table Not Dep) | 2 | * | 2001 | 56.0 |
| | CARPT | Carport (Table Not Dep) | 2 | * | 2001 | 210.0 |
Sketch
| No sketches available for this property. |
Property Image
Land
| 1 | 1250-1116L | | 0.0000 | 0.00 | 0.00 | 0.00 | 1.00 | $64,313 | $0 |
Roll Value History
| 2026 | N/A | N/A | N/A | N/A | N/A |
| 2025 | $11,641 | $64,313 | $0 | $75,954 | $75,954 |
| 2024 | $11,135 | $61,250 | $0 | $72,385 | $72,385 |
| 2023 | $11,135 | $56,250 | $0 | $67,385 | $67,385 |
| 2022 | $10,123 | $51,250 | $0 | $61,373 | $61,373 |
Deed and Sales History
| 1 | 09/17/2025 | QCD | Quit Claim Deed | MARK MATRIOTTI | JOELLE WHITE | | | $0.00 | 144951 | |
| 2 | 09/19/2025 | DTH CERT | Death Certificate | STEPHAN MATRIOTTI | | | | | 0 | |
| 3 | 01/10/2025 | QCD | Quit Claim Deed | JUNE MATRIOTTI | ROBERT S WHITE | | | | 143749 | |
| 4 | 01/09/2025 | QCD | Quit Claim Deed | PATRICIA WHITAKER | ROBERT S WHITE | | | | 143748 | |
| 5 | 04/07/2022 | QCD | Quit Claim Deed | GLENDA BROWNFIELD | JOELLE WHITE | | | | 138843 | |
| 6 | 02/24/1999 | QCD | Quit Claim Deed | MATRIOTTI, JUNE | BROWNFIELD, GLENDA/ET AL | 0 | 0 | $0.00 | 86469 | 0 |
Payout Agreement
| No payout information available.. |