Property
Account |
| Property ID: | 37021 | Abbreviated Legal Description: | OLYMPIC CANAL ADDITION 4 BLK 23 LOT 13 |
| Parcel # / Geo ID: | 981002313 | Agent Code: | |
| Type: | Real | | |
| Tax Area: | 0441 - 1-46F4E4H2C1L1P2 | Land Use Code | 19 |
| Open Space: | N | DFL | N |
| Historic Property: | N | Remodel Property: | N |
| Multi-Family Redevelopment: | N | | |
| Township: | 25N | Section: | 16 |
| Range: | 2W |
Location |
| Address: | 191 KELLY RD BRINNON, WA 98320 | Mapsco: | 016/013 |
| Neighborhood: | OLYMPIC CANAL TRACTS | Map ID: | |
| Neighborhood CD: | 1250 |
Owner |
| Name: | MOLLY HODGES | Owner ID: | 111747 |
| Mailing Address: | 14802 BOTHELL WAY NE UNIT A212 LAKE FOREST PARK, WA 98155-7654 | % Ownership: | 100.0000000000% |
| | | Exemptions: | |
Pay Tax Due
There is currently No Amount Due on this property.
Taxes and Assessment Details
Property Tax Information as of
03/10/2026
Click on "Statement Details" to expand or collapse a tax statement.
* Please enter a valid date ** Please enter a valid date *
Statement Details |
| | TOTAL: | $0.00 | $0.00 | $0.00 | $0.00 | $0.00 | $0.00 |
|
| | $0.00 | $0.00 | $0.00 | $0.00 | $0.00 | $0.00 |
Values
| (+) Improvement Homesite Value: | + | $0 | |
| (+) Improvement Non-Homesite Value: | + | $22,855 | |
| (+) Land Homesite Value: | + | $0 | |
| (+) Land Non-Homesite Value: | + | $73,500 | |
| (+) Curr Use (HS): | + | $0 | $0 |
| (+) Curr Use (NHS): | + | $0 | $0 |
| | | -------------------------- | |
| (=) Market Value: | = | $96,355 | |
| (–) Productivity Loss: | – | $0 | |
| | | -------------------------- | |
| (=) Subtotal: | = | $96,355 | |
| (+) Senior Appraised Value: | + | $0 | |
| (+) Non-Senior Appraised Value: | + | $96,355 | |
| | | -------------------------- | |
| (=) Total Appraised Value: | = | $96,355 | |
| (–) Senior Exemption Loss: | – | $0 | |
| (–) Exemption Loss: | – | $0 | |
| | | -------------------------- | |
| (=) Taxable Value: | = | $96,355 | |
Taxing Jurisdiction
| Owner: | MOLLY HODGES | | |
| % Ownership: | 100.0000000000% | | |
| Total Value: | $96,355 | | |
| Tax Area: | 0441 - 1-46F4E4H2C1L1P2 |
| CE | COUNTY CURRENT EXPENSE | 0.9034619479 | $96,355 | $96,355 | $87.05 | | |
| CNTYDD | DEVELOPMENTAL DISABILITIES | 0.0052121823 | $96,355 | $96,355 | $0.50 | | |
| CNTYVET | VETERANS RELIEF | 0.0052777810 | $96,355 | $96,355 | $0.51 | | |
| MENTAL | MENTAL HEALTH | 0.0052121823 | $96,355 | $96,355 | $0.50 | | |
| ROADS | COUNTY ROADS | 0.7415066410 | $96,355 | $96,355 | $71.45 | | |
| ROADSCU | COUNTY ROADS TO CUR EXP | 0.0000000000 | $96,355 | $96,355 | $0.00 | | |
| HOSP2CASH | HOSP DIST #2 GENERAL | 0.0536075306 | $96,355 | $96,355 | $5.17 | | |
| SCH46MO | SCHOOL DIST #46 EP & O | 0.6890207067 | $96,355 | $96,355 | $66.39 | | |
| CEM1 | CEMETERY DIST #1 GENERAL | 0.0107168292 | $96,355 | $96,355 | $1.03 | | |
| CONSERVE | CONSERVATION FUTURES | 0.0275621078 | $96,355 | $96,355 | $2.66 | | |
| EMS4 | FIRE DIST #4 EMS | 0.4644216158 | $96,355 | $96,355 | $44.75 | | |
| FD4 | FIRE DIST #4 GENERAL | 1.3939598390 | $96,355 | $96,355 | $134.32 | | |
| FD4BOND | FIRE DIST #4 BOND 2019 | 0.2748466981 | $96,355 | $96,355 | $26.48 | | |
| LIB1 | LIBRARY DIST #1 GENERAL | 0.2868827388 | $96,355 | $96,355 | $27.64 | | |
| PORTPT | PORT OF PT GENERAL | 0.1134941229 | $96,355 | $96,355 | $10.94 | | |
| PORTPTIDD | PORT OF PT IDD 2019 | 0.2577346692 | $96,355 | $96,355 | $24.83 | | |
| PUD1 | PUD #1 GENERAL | 0.0597888892 | $96,355 | $96,355 | $5.76 | | |
| STATE | STATE SCHOOL PART 1 | 1.4940692947 | $96,355 | $96,355 | $143.96 | | |
| STATE2 | STATE SCHOOL PART 2 | 0.8050170049 | $96,355 | $96,355 | $77.57 | | |
| | Total Tax Rate: | 7.5917927814 | | | | | |
| | | | | Taxes w/Current Exemptions: | $731.51 | | |
| | | | | Taxes w/o Exemptions: | $731.51 | | |
Improvement / Building
| Improvement #1: | Residential Bldg | State Code: | 19 | 418.0 sqft | Value: | $22,855 |
| Bathrooms (#): | 1 (FULL) | Bedrooms (#): | 1 | | Exterior Wall: | SI/ST | Fireplace: | WD ST-GOOD | | Floor Construction: | FRAME | Foundation: | CONBL | | Heating/Cooling: | ELBB | Inside Verify: | NO | | Interior Finish: | FIN | Roof Cover: | COMP |
|
| | Type | Description | Class CD | Sub Class CD | Year Built | Area |
| | MA | Main Area | 3 | C1S | 1960 | 418.0 |
| | CDECK | Cabin Deck | 3 | * | 1960 | 187.0 |
| | SHED | Shed (Table Not Dep) | 3 | * | 1960 | 96.0 |
Sketch
Property Image
Land
| 1 | 1250-1275S | Premium Site with Excellent Characeristics/Access | 0.0000 | 0.00 | 0.00 | 0.00 | 1.00 | $73,500 | $0 |
Roll Value History
| 2026 | N/A | N/A | N/A | N/A | N/A |
| 2025 | $22,855 | $73,500 | $0 | $96,355 | $96,355 |
| 2024 | $21,861 | $44,000 | $0 | $65,861 | $65,861 |
| 2023 | $44,899 | $39,000 | $0 | $83,899 | $83,899 |
| 2022 | $40,817 | $34,000 | $0 | $74,817 | $74,817 |
Deed and Sales History
| 1 | 11/15/2024 | SWD | Statutory Warranty Deed | KNIGHT SCOT LLC | MOLLY HODGES | | | $139,000.00 | 143488 | |
|   | |
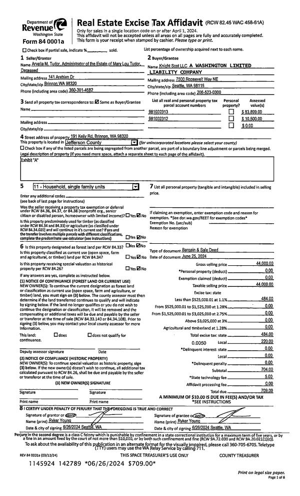
| 2 | 06/25/2024 | BSD | Bargain and Sale Deed | MARY LOU TUDOR | KNIGHT SCOT LLC | | | $44,000.00 | 142789 | |
|   | |
| 3 | 09/25/2012 | SWD | Statutory Warranty Deed | BOONE, DAVID L, LEONE, MA | TUDOR III, JOHN | 0 | 0 | $0.00 | 118107 | 0 |
| 4 | 09/30/1998 | WD | Warranty Deed | ANDERSON, LISA ETCHEY | BOONE, DAVID L | 0 | 0 | $0.00 | 86444 | 0 |
Payout Agreement
| No payout information available.. |