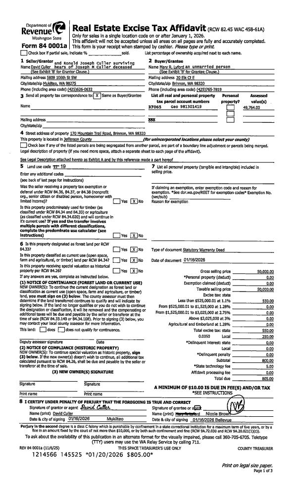
Property
Account |
| Property ID: | 37065 | Abbreviated Legal Description: | OLYMPIC CANAL ADDITION 5 BLK 14 LOT 19 |
| Parcel # / Geo ID: | 981301419 | Agent Code: | |
| Type: | Real | | |
| Tax Area: | 0441 - 1-46F4E4H2C1L1P2 | Land Use Code | 19 |
| Open Space: | N | DFL | N |
| Historic Property: | N | Remodel Property: | N |
| Multi-Family Redevelopment: | N | | |
| Township: | 25N | Section: | 21 |
| Range: | 2W |
Location |
| Address: | 170 MOUNTAIN TRAIL RD BRINNON, WA 98320 | Mapsco: | 017/019 |
| Neighborhood: | OLYMPIC CANAL TRACTS | Map ID: | |
| Neighborhood CD: | 1250 |
Owner |
| Name: | MARY R LYFORD | Owner ID: | 113954 |
| Mailing Address: | 30 ELK CT E BRINNON, WA 98320-9668 | % Ownership: | 100.0000000000% |
| | | Exemptions: | |
Pay Tax Due
Select the appropriate checkbox next to the year to be paid. Multiple years may be selected.
*Convenience Fee not included
Taxes and Assessment Details
Property Tax Information as of
03/12/2026
Click on "Statement Details" to expand or collapse a tax statement.
* Please enter a valid date ** Please enter a valid date *
Statement Details |
| 2026 | 26278 | STATE - STATE LEVY (SCHOOL) | $57.21 | $57.20 | $0.00 | $0.00 | $0.00 | $114.41 |
| 2026 | 26278 | COUNTY - COUNTY LEVIES (CE, DD, VET, MH) | $22.87 | $22.87 | $0.00 | $0.00 | $0.00 | $45.74 |
| 2026 | 26278 | CONSERVE - CONSERVATION FUTURES | $0.69 | $0.68 | $0.00 | $0.00 | $0.00 | $1.37 |
| 2026 | 26278 | COROADS - COUNTY ROADS (ROADS, DIV TO CE) | $18.45 | $18.45 | $0.00 | $0.00 | $0.00 | $36.90 |
| 2026 | 26278 | PORTPT - PORT DISTRICT | $9.25 | $9.23 | $0.00 | $0.00 | $0.00 | $18.48 |
| 2026 | 26278 | PUD1 - PUD #1 | $1.49 | $1.49 | $0.00 | $0.00 | $0.00 | $2.98 |
| 2026 | 26278 | LIB1 - LIBRARY DIST #1 | $7.14 | $7.14 | $0.00 | $0.00 | $0.00 | $14.28 |
| 2026 | 26278 | HD2 - HOSP DIST #2 | $1.34 | $1.33 | $0.00 | $0.00 | $0.00 | $2.67 |
| 2026 | 26278 | SD46 - SCHOOL DIST #46 | $17.15 | $17.14 | $0.00 | $0.00 | $0.00 | $34.29 |
| 2026 | 26278 | FD4 - FIRE DISTRICT #4 | $41.53 | $41.52 | $0.00 | $0.00 | $0.00 | $83.05 |
| 2026 | 26278 | EMS4 - FIRE DIST #4 EMS | $11.56 | $11.55 | $0.00 | $0.00 | $0.00 | $23.11 |
| 2026 | 26278 | CEM1 - CEMETERY DIST #1 | $0.27 | $0.26 | $0.00 | $0.00 | $0.00 | $0.53 |
| 2026 | 26278 | FP - DNR Forest Fire Protection Assmt | $8.50 | $8.50 | $0.00 | $0.00 | $0.00 | $17.00 |
| 2026 | 26278 | FPLCA - DNR Landowner Contingency Assmt | $3.00 | $3.00 | $0.00 | $0.00 | $0.00 | $6.00 |
| 2026 | 26278 | JCCD - JC Conservation District | $2.55 | $2.55 | $0.00 | $0.00 | $0.00 | $5.10 |
| 2026 | 26278 | NWA - Noxious Weed Assessment | $2.98 | $2.97 | $0.00 | $0.00 | $0.00 | $5.95 |
| 2026 | 26278 | OSS - On Site Septic | $23.10 | $23.10 | $0.00 | $0.00 | $0.00 | $46.20 |
| 2026 | 26278 | WAT - Clean Water District | $13.00 | $13.00 | $0.00 | $0.00 | $0.00 | $26.00 |
| 2026 | 26278 | FP ADMIN - FP ADMIN | $0.50 | $0.00 | $0.00 | $0.00 | $0.00 | $0.50 |
| 2026 | 26278 | TOTAL: | $242.58 | $241.98 | $0.00 | $0.00 | $0.00 | $484.56 |
|
| 2026 | 26278 | $242.58 | $241.98 | $0.00 | $0.00 | $0.00 | $484.56 |
Statement Details |
| 2025 | 26347 | STATE - STATE LEVY (SCHOOL) | $56.85 | $56.84 | $0.00 | $0.00 | $113.69 | $0.00 |
| 2025 | 26347 | COUNTY - COUNTY LEVIES (CE, DD, VET, MH) | $22.37 | $22.34 | $0.00 | $0.00 | $44.71 | $0.00 |
| 2025 | 26347 | CONSERVE - CONSERVATION FUTURES | $0.67 | $0.67 | $0.00 | $0.00 | $1.34 | $0.00 |
| 2025 | 26347 | COROADS - COUNTY ROADS (ROADS, DIV TO CE) | $17.92 | $17.90 | $0.00 | $0.00 | $35.82 | $0.00 |
| 2025 | 26347 | PORTPT - PORT DISTRICT | $9.12 | $9.12 | $0.00 | $0.00 | $18.24 | $0.00 |
| 2025 | 26347 | PUD1 - PUD #1 | $1.47 | $1.46 | $0.00 | $0.00 | $2.93 | $0.00 |
| 2025 | 26347 | LIB1 - LIBRARY DIST #1 | $6.93 | $6.93 | $0.00 | $0.00 | $13.86 | $0.00 |
| 2025 | 26347 | HD2 - HOSP DIST #2 | $1.31 | $1.30 | $0.00 | $0.00 | $2.61 | $0.00 |
| 2025 | 26347 | SD46 - SCHOOL DIST #46 | $15.03 | $15.02 | $0.00 | $0.00 | $30.05 | $0.00 |
| 2025 | 26347 | FD4 - FIRE DISTRICT #4 | $41.65 | $41.63 | $0.00 | $0.00 | $83.28 | $0.00 |
| 2025 | 26347 | EMS4 - FIRE DIST #4 EMS | $11.55 | $11.55 | $0.00 | $0.00 | $23.10 | $0.00 |
| 2025 | 26347 | CEM1 - CEMETERY DIST #1 | $0.27 | $0.27 | $0.00 | $0.00 | $0.54 | $0.00 |
| 2025 | 26347 | FP - DNR Forest Fire Protection Assmt | $8.50 | $8.50 | $0.00 | $0.00 | $17.00 | $0.00 |
| 2025 | 26347 | FPLCA - DNR Landowner Contingency Assmt | $3.00 | $3.00 | $0.00 | $0.00 | $6.00 | $0.00 |
| 2025 | 26347 | JCCD - JC Conservation District | $2.55 | $2.55 | $0.00 | $0.00 | $5.10 | $0.00 |
| 2025 | 26347 | NWA - Noxious Weed Assessment | $2.15 | $2.15 | $0.00 | $0.00 | $4.30 | $0.00 |
| 2025 | 26347 | OSS - On Site Septic | $21.50 | $21.50 | $0.00 | $0.00 | $43.00 | $0.00 |
| 2025 | 26347 | WAT - Clean Water District | $13.00 | $13.00 | $0.00 | $0.00 | $26.00 | $0.00 |
| 2025 | 26347 | FP ADMIN - FP ADMIN | $0.50 | $0.00 | $0.00 | $0.00 | $0.50 | $0.00 |
| 2025 | 26347 | TOTAL: | $236.34 | $235.73 | $0.00 | $0.00 | $472.07 | $0.00 |
|
| 2025 | 26347 | $236.34 | $235.73 | $0.00 | $0.00 | $472.07 | $0.00 |
Statement Details |
| 2024 | 26399 | STATE - STATE LEVY (SCHOOL) | $49.06 | $49.06 | $0.00 | $0.00 | $98.12 | $0.00 |
| 2024 | 26399 | COUNTY - COUNTY LEVIES (CE, DD, VET, MH) | $21.00 | $20.99 | $0.00 | $0.00 | $41.99 | $0.00 |
| 2024 | 26399 | CONSERVE - CONSERVATION FUTURES | $0.63 | $0.63 | $0.00 | $0.00 | $1.26 | $0.00 |
| 2024 | 26399 | COROADS - COUNTY ROADS (ROADS, DIV TO CE) | $16.89 | $16.89 | $0.00 | $0.00 | $33.78 | $0.00 |
| 2024 | 26399 | PORTPT - PORT DISTRICT | $8.67 | $8.67 | $0.00 | $0.00 | $17.34 | $0.00 |
| 2024 | 26399 | PUD1 - PUD #1 | $1.38 | $1.38 | $0.00 | $0.00 | $2.76 | $0.00 |
| 2024 | 26399 | LIB1 - LIBRARY DIST #1 | $6.54 | $6.53 | $0.00 | $0.00 | $13.07 | $0.00 |
| 2024 | 26399 | HD2 - HOSP DIST #2 | $1.23 | $1.22 | $0.00 | $0.00 | $2.45 | $0.00 |
| 2024 | 26399 | SD46 - SCHOOL DIST #46 | $14.73 | $14.73 | $0.00 | $0.00 | $29.46 | $0.00 |
| 2024 | 26399 | FD4 - FIRE DISTRICT #4 | $38.05 | $38.04 | $0.00 | $0.00 | $76.09 | $0.00 |
| 2024 | 26399 | EMS4 - FIRE DIST #4 EMS | $10.60 | $10.60 | $0.00 | $0.00 | $21.20 | $0.00 |
| 2024 | 26399 | CEM1 - CEMETERY DIST #1 | $0.25 | $0.25 | $0.00 | $0.00 | $0.50 | $0.00 |
| 2024 | 26399 | FP - DNR Forest Fire Protection Assmt | $8.50 | $8.50 | $0.00 | $0.00 | $17.00 | $0.00 |
| 2024 | 26399 | FPLCA - DNR Landowner Contingency Assmt | $3.00 | $3.00 | $0.00 | $0.00 | $6.00 | $0.00 |
| 2024 | 26399 | JCCD - JC Conservation District | $2.55 | $2.55 | $0.00 | $0.00 | $5.10 | $0.00 |
| 2024 | 26399 | NWA - Noxious Weed Assessment | $2.15 | $2.15 | $0.00 | $0.00 | $4.30 | $0.00 |
| 2024 | 26399 | OSS - On Site Septic | $21.00 | $21.00 | $0.00 | $0.00 | $42.00 | $0.00 |
| 2024 | 26399 | WAT - Clean Water District | $12.50 | $12.50 | $0.00 | $0.00 | $25.00 | $0.00 |
| 2024 | 26399 | FP ADMIN - FP ADMIN | $0.50 | $0.00 | $0.00 | $0.00 | $0.50 | $0.00 |
| 2024 | 26399 | TOTAL: | $219.23 | $218.69 | $0.00 | $0.00 | $437.92 | $0.00 |
|
| 2024 | 26399 | $219.23 | $218.69 | $0.00 | $0.00 | $437.92 | $0.00 |
Statement Details |
| 2023 | 26440 | STATE - STATE LEVY (SCHOOL) | $43.67 | $43.67 | $0.00 | $0.00 | $87.34 | $0.00 |
| 2023 | 26440 | COUNTY - COUNTY LEVIES (CE, DD, VET, MH) | $19.06 | $19.06 | $0.00 | $0.00 | $38.12 | $0.00 |
| 2023 | 26440 | CONSERVE - CONSERVATION FUTURES | $0.57 | $0.57 | $0.00 | $0.00 | $1.14 | $0.00 |
| 2023 | 26440 | COROADS - COUNTY ROADS (ROADS, DIV TO CE) | $15.42 | $15.41 | $0.00 | $0.00 | $30.83 | $0.00 |
| 2023 | 26440 | PORTPT - PORT DISTRICT | $8.04 | $8.02 | $0.00 | $0.00 | $16.06 | $0.00 |
| 2023 | 26440 | PUD1 - PUD #1 | $1.27 | $1.26 | $0.00 | $0.00 | $2.53 | $0.00 |
| 2023 | 26440 | LIB1 - LIBRARY DIST #1 | $5.97 | $5.96 | $0.00 | $0.00 | $11.93 | $0.00 |
| 2023 | 26440 | HD2 - HOSP DIST #2 | $1.11 | $1.11 | $0.00 | $0.00 | $2.22 | $0.00 |
| 2023 | 26440 | SD46 - SCHOOL DIST #46 | $14.26 | $14.25 | $0.00 | $0.00 | $28.51 | $0.00 |
| 2023 | 26440 | FD4 - FIRE DISTRICT #4 | $23.70 | $23.70 | $0.00 | $0.00 | $47.40 | $0.00 |
| 2023 | 26440 | EMS4 - FIRE DIST #4 EMS | $6.74 | $6.74 | $0.00 | $0.00 | $13.48 | $0.00 |
| 2023 | 26440 | CEM1 - CEMETERY DIST #1 | $0.24 | $0.24 | $0.00 | $0.00 | $0.48 | $0.00 |
| 2023 | 26440 | FP - DNR Forest Fire Protection Assmt | $8.50 | $8.50 | $0.00 | $0.00 | $17.00 | $0.00 |
| 2023 | 26440 | FPLCA - DNR Landowner Contingency Assmt | $3.00 | $3.00 | $0.00 | $0.00 | $6.00 | $0.00 |
| 2023 | 26440 | JCCD - JC Conservation District | $2.55 | $2.55 | $0.00 | $0.00 | $5.10 | $0.00 |
| 2023 | 26440 | NWA - Noxious Weed Assessment | $2.15 | $2.15 | $0.00 | $0.00 | $4.30 | $0.00 |
| 2023 | 26440 | OSS - On Site Septic | $20.50 | $20.50 | $0.00 | $0.00 | $41.00 | $0.00 |
| 2023 | 26440 | WAT - Clean Water District | $12.00 | $12.00 | $0.00 | $0.00 | $24.00 | $0.00 |
| 2023 | 26440 | FP ADMIN - FP ADMIN | $0.50 | $0.00 | $0.00 | $0.00 | $0.50 | $0.00 |
| 2023 | 26440 | TOTAL: | $189.25 | $188.69 | $0.00 | $0.00 | $377.94 | $0.00 |
|
| 2023 | 26440 | $189.25 | $188.69 | $0.00 | $0.00 | $377.94 | $0.00 |
Values
| (+) Improvement Homesite Value: | + | $0 | |
| (+) Improvement Non-Homesite Value: | + | $3,564 | |
| (+) Land Homesite Value: | + | $0 | |
| (+) Land Non-Homesite Value: | + | $46,200 | |
| (+) Curr Use (HS): | + | $0 | $0 |
| (+) Curr Use (NHS): | + | $0 | $0 |
| | | -------------------------- | |
| (=) Market Value: | = | $49,764 | |
| (–) Productivity Loss: | – | $0 | |
| | | -------------------------- | |
| (=) Subtotal: | = | $49,764 | |
| (+) Senior Appraised Value: | + | $0 | |
| (+) Non-Senior Appraised Value: | + | $49,764 | |
| | | -------------------------- | |
| (=) Total Appraised Value: | = | $49,764 | |
| (–) Senior Exemption Loss: | – | $0 | |
| (–) Exemption Loss: | – | $0 | |
| | | -------------------------- | |
| (=) Taxable Value: | = | $49,764 | |
Taxing Jurisdiction
| Owner: | MARY R LYFORD | | |
| % Ownership: | 100.0000000000% | | |
| Total Value: | $49,764 | | |
| Tax Area: | 0441 - 1-46F4E4H2C1L1P2 |
| CE | COUNTY CURRENT EXPENSE | 0.9034619479 | $49,764 | $49,764 | $44.96 | | |
| CNTYDD | DEVELOPMENTAL DISABILITIES | 0.0052121823 | $49,764 | $49,764 | $0.26 | | |
| CNTYVET | VETERANS RELIEF | 0.0052777810 | $49,764 | $49,764 | $0.26 | | |
| MENTAL | MENTAL HEALTH | 0.0052121823 | $49,764 | $49,764 | $0.26 | | |
| ROADS | COUNTY ROADS | 0.7415066410 | $49,764 | $49,764 | $36.90 | | |
| ROADSCU | COUNTY ROADS TO CUR EXP | 0.0000000000 | $49,764 | $49,764 | $0.00 | | |
| HOSP2CASH | HOSP DIST #2 GENERAL | 0.0536075306 | $49,764 | $49,764 | $2.67 | | |
| SCH46MO | SCHOOL DIST #46 EP & O | 0.6890207067 | $49,764 | $49,764 | $34.29 | | |
| CEM1 | CEMETERY DIST #1 GENERAL | 0.0107168292 | $49,764 | $49,764 | $0.53 | | |
| CONSERVE | CONSERVATION FUTURES | 0.0275621078 | $49,764 | $49,764 | $1.37 | | |
| EMS4 | FIRE DIST #4 EMS | 0.4644216158 | $49,764 | $49,764 | $23.11 | | |
| FD4 | FIRE DIST #4 GENERAL | 1.3939598390 | $49,764 | $49,764 | $69.37 | | |
| FD4BOND | FIRE DIST #4 BOND 2019 | 0.2748466981 | $49,764 | $49,764 | $13.68 | | |
| LIB1 | LIBRARY DIST #1 GENERAL | 0.2868827388 | $49,764 | $49,764 | $14.28 | | |
| PORTPT | PORT OF PT GENERAL | 0.1134941229 | $49,764 | $49,764 | $5.65 | | |
| PORTPTIDD | PORT OF PT IDD 2019 | 0.2577346692 | $49,764 | $49,764 | $12.83 | | |
| PUD1 | PUD #1 GENERAL | 0.0597888892 | $49,764 | $49,764 | $2.98 | | |
| STATE | STATE SCHOOL PART 1 | 1.4940692947 | $49,764 | $49,764 | $74.35 | | |
| STATE2 | STATE SCHOOL PART 2 | 0.8050170049 | $49,764 | $49,764 | $40.06 | | |
| | Total Tax Rate: | 7.5917927814 | | | | | |
| | | | | Taxes w/Current Exemptions: | $377.81 | | |
| | | | | Taxes w/o Exemptions: | $377.81 | | |
Improvement / Building
| Improvement #1: | Residential Bldg | State Code: | 19 | 390.0 sqft | Value: | $3,564 |
| Bathrooms (#): | 1 (FULL) | Bedrooms (#): | 1 | | Exterior Wall: | PL/T1 | Fireplace: | WD ST-GOOD | | Floor Construction: | FRAME | Foundation: | PO&BL | | Heating/Cooling: | WD/NO | Inside Verify: | NO | | Interior Finish: | FIN | Roof Cover: | COMP |
|
Sketch
Property Image
Land
| 1 | 1250-1185L | | 0.0000 | 0.00 | 0.00 | 0.00 | 1.00 | $46,200 | $0 |
Roll Value History
| 2026 | N/A | N/A | N/A | N/A | N/A |
| 2025 | $3,564 | $46,200 | $0 | $49,764 | $49,764 |
| 2024 | $3,409 | $44,000 | $0 | $47,409 | $47,409 |
| 2023 | $3,409 | $39,000 | $0 | $42,409 | $42,409 |
| 2022 | $3,099 | $34,000 | $0 | $37,099 | $37,099 |
Deed and Sales History
| 1 | 01/16/2026 | SWD | Statutory Warranty Deed | DAVID CULLER | MARY R LYFORD | | | $50,000.00 | 145525 | |
| 2 | 09/09/2022 | LOP | Lack of Probate | JOSEPH M CULLER | DAVID CULLER | | | | 0 | 656415 |
| 3 | 08/17/2022 | QCD | Quit Claim Deed | CORAZON FERNANDEZ | DAVID CULLER | | | $10,000.00 | 139776 | |
Payout Agreement
| No payout information available.. |