Property
Account |
| Property ID: | 37100 | Abbreviated Legal Description: | OLYMPIC CANAL ADDITION 5 BLK 14 LOT 56 |
| Parcel # / Geo ID: | 981301454 | Agent Code: | |
| Type: | Real | | |
| Tax Area: | 0441 - 1-46F4E4H2C1L1P2 | Land Use Code | 19 |
| Open Space: | N | DFL | N |
| Historic Property: | N | Remodel Property: | N |
| Multi-Family Redevelopment: | N | | |
| Township: | 25N | Section: | 16 |
| Range: | 2W |
Location |
| Address: | 640 MOUNTAIN TRAIL RD BRINNON, WA 98320 | Mapsco: | 017/056 |
| Neighborhood: | OLYMPIC CANAL TRACTS | Map ID: | |
| Neighborhood CD: | 1250 |
Owner |
| Name: | MARK JAMES | Owner ID: | 18943 |
| Mailing Address: | PO BOX 404 AUBURN, WA 98071-0404 | % Ownership: | 100.0000000000% |
| | | Exemptions: | |
Pay Tax Due
Select the appropriate checkbox next to the year to be paid. Multiple years may be selected.
*Convenience Fee not included
Taxes and Assessment Details
Property Tax Information as of
03/10/2026
Click on "Statement Details" to expand or collapse a tax statement.
* Please enter a valid date ** Please enter a valid date *
Statement Details |
| 2026 | 26313 | STATE - STATE LEVY (SCHOOL) | $284.51 | $284.50 | $0.00 | $0.00 | $0.00 | $569.01 |
| 2026 | 26313 | COUNTY - COUNTY LEVIES (CE, DD, VET, MH) | $113.76 | $113.73 | $0.00 | $0.00 | $0.00 | $227.49 |
| 2026 | 26313 | CONSERVE - CONSERVATION FUTURES | $3.41 | $3.41 | $0.00 | $0.00 | $0.00 | $6.82 |
| 2026 | 26313 | COROADS - COUNTY ROADS (ROADS, DIV TO CE) | $91.76 | $91.76 | $0.00 | $0.00 | $0.00 | $183.52 |
| 2026 | 26313 | PORTPT - PORT DISTRICT | $45.95 | $45.93 | $0.00 | $0.00 | $0.00 | $91.88 |
| 2026 | 26313 | PUD1 - PUD #1 | $7.40 | $7.40 | $0.00 | $0.00 | $0.00 | $14.80 |
| 2026 | 26313 | LIB1 - LIBRARY DIST #1 | $35.50 | $35.50 | $0.00 | $0.00 | $0.00 | $71.00 |
| 2026 | 26313 | HD2 - HOSP DIST #2 | $6.64 | $6.63 | $0.00 | $0.00 | $0.00 | $13.27 |
| 2026 | 26313 | SD46 - SCHOOL DIST #46 | $85.27 | $85.26 | $0.00 | $0.00 | $0.00 | $170.53 |
| 2026 | 26313 | FD4 - FIRE DISTRICT #4 | $206.51 | $206.51 | $0.00 | $0.00 | $0.00 | $413.02 |
| 2026 | 26313 | EMS4 - FIRE DIST #4 EMS | $57.47 | $57.47 | $0.00 | $0.00 | $0.00 | $114.94 |
| 2026 | 26313 | CEM1 - CEMETERY DIST #1 | $1.33 | $1.32 | $0.00 | $0.00 | $0.00 | $2.65 |
| 2026 | 26313 | JCCD - JC Conservation District | $2.55 | $2.55 | $0.00 | $0.00 | $0.00 | $5.10 |
| 2026 | 26313 | NWA - Noxious Weed Assessment | $2.98 | $2.97 | $0.00 | $0.00 | $0.00 | $5.95 |
| 2026 | 26313 | OSS - On Site Septic | $23.10 | $23.10 | $0.00 | $0.00 | $0.00 | $46.20 |
| 2026 | 26313 | WAT - Clean Water District | $13.00 | $13.00 | $0.00 | $0.00 | $0.00 | $26.00 |
| 2026 | 26313 | TOTAL: | $981.14 | $981.04 | $0.00 | $0.00 | $0.00 | $1962.18 |
|
| 2026 | 26313 | $981.14 | $981.04 | $0.00 | $0.00 | $0.00 | $1962.18 |
Statement Details |
| 2025 | 26382 | STATE - STATE LEVY (SCHOOL) | $283.56 | $283.56 | $0.00 | $0.00 | $567.12 | $0.00 |
| 2025 | 26382 | COUNTY - COUNTY LEVIES (CE, DD, VET, MH) | $111.51 | $111.50 | $0.00 | $0.00 | $223.01 | $0.00 |
| 2025 | 26382 | CONSERVE - CONSERVATION FUTURES | $3.35 | $3.34 | $0.00 | $0.00 | $6.69 | $0.00 |
| 2025 | 26382 | COROADS - COUNTY ROADS (ROADS, DIV TO CE) | $89.34 | $89.33 | $0.00 | $0.00 | $178.67 | $0.00 |
| 2025 | 26382 | PORTPT - PORT DISTRICT | $45.51 | $45.50 | $0.00 | $0.00 | $91.01 | $0.00 |
| 2025 | 26382 | PUD1 - PUD #1 | $7.30 | $7.29 | $0.00 | $0.00 | $14.59 | $0.00 |
| 2025 | 26382 | LIB1 - LIBRARY DIST #1 | $34.57 | $34.56 | $0.00 | $0.00 | $69.13 | $0.00 |
| 2025 | 26382 | HD2 - HOSP DIST #2 | $6.51 | $6.50 | $0.00 | $0.00 | $13.01 | $0.00 |
| 2025 | 26382 | SD46 - SCHOOL DIST #46 | $74.95 | $74.94 | $0.00 | $0.00 | $149.89 | $0.00 |
| 2025 | 26382 | FD4 - FIRE DISTRICT #4 | $207.71 | $207.70 | $0.00 | $0.00 | $415.41 | $0.00 |
| 2025 | 26382 | EMS4 - FIRE DIST #4 EMS | $57.63 | $57.63 | $0.00 | $0.00 | $115.26 | $0.00 |
| 2025 | 26382 | CEM1 - CEMETERY DIST #1 | $1.34 | $1.33 | $0.00 | $0.00 | $2.67 | $0.00 |
| 2025 | 26382 | JCCD - JC Conservation District | $2.55 | $2.55 | $0.00 | $0.00 | $5.10 | $0.00 |
| 2025 | 26382 | NWA - Noxious Weed Assessment | $2.15 | $2.15 | $0.00 | $0.00 | $4.30 | $0.00 |
| 2025 | 26382 | OSS - On Site Septic | $21.50 | $21.50 | $0.00 | $0.00 | $43.00 | $0.00 |
| 2025 | 26382 | WAT - Clean Water District | $13.00 | $13.00 | $0.00 | $0.00 | $26.00 | $0.00 |
| 2025 | 26382 | TOTAL: | $962.48 | $962.38 | $0.00 | $0.00 | $1924.86 | $0.00 |
|
| 2025 | 26382 | $962.48 | $962.38 | $0.00 | $0.00 | $1924.86 | $0.00 |
Statement Details |
| 2024 | 26434 | STATE - STATE LEVY (SCHOOL) | $267.80 | $267.78 | $0.00 | $0.00 | $535.58 | $0.00 |
| 2024 | 26434 | COUNTY - COUNTY LEVIES (CE, DD, VET, MH) | $114.60 | $114.57 | $0.00 | $0.00 | $229.17 | $0.00 |
| 2024 | 26434 | CONSERVE - CONSERVATION FUTURES | $3.44 | $3.43 | $0.00 | $0.00 | $6.87 | $0.00 |
| 2024 | 26434 | COROADS - COUNTY ROADS (ROADS, DIV TO CE) | $92.22 | $92.20 | $0.00 | $0.00 | $184.42 | $0.00 |
| 2024 | 26434 | PORTPT - PORT DISTRICT | $47.33 | $47.33 | $0.00 | $0.00 | $94.66 | $0.00 |
| 2024 | 26434 | PUD1 - PUD #1 | $7.53 | $7.52 | $0.00 | $0.00 | $15.05 | $0.00 |
| 2024 | 26434 | LIB1 - LIBRARY DIST #1 | $35.68 | $35.67 | $0.00 | $0.00 | $71.35 | $0.00 |
| 2024 | 26434 | HD2 - HOSP DIST #2 | $6.69 | $6.68 | $0.00 | $0.00 | $13.37 | $0.00 |
| 2024 | 26434 | SD46 - SCHOOL DIST #46 | $80.39 | $80.39 | $0.00 | $0.00 | $160.78 | $0.00 |
| 2024 | 26434 | FD4 - FIRE DISTRICT #4 | $207.67 | $207.67 | $0.00 | $0.00 | $415.34 | $0.00 |
| 2024 | 26434 | EMS4 - FIRE DIST #4 EMS | $57.88 | $57.87 | $0.00 | $0.00 | $115.75 | $0.00 |
| 2024 | 26434 | CEM1 - CEMETERY DIST #1 | $1.36 | $1.35 | $0.00 | $0.00 | $2.71 | $0.00 |
| 2024 | 26434 | JCCD - JC Conservation District | $2.55 | $2.55 | $0.00 | $0.00 | $5.10 | $0.00 |
| 2024 | 26434 | NWA - Noxious Weed Assessment | $2.15 | $2.15 | $0.00 | $0.00 | $4.30 | $0.00 |
| 2024 | 26434 | OSS - On Site Septic | $21.00 | $21.00 | $0.00 | $0.00 | $42.00 | $0.00 |
| 2024 | 26434 | WAT - Clean Water District | $12.50 | $12.50 | $0.00 | $0.00 | $25.00 | $0.00 |
| 2024 | 26434 | TOTAL: | $960.79 | $960.66 | $0.00 | $0.00 | $1921.45 | $0.00 |
|
| 2024 | 26434 | $960.79 | $960.66 | $0.00 | $0.00 | $1921.45 | $0.00 |
Statement Details |
| 2023 | 26475 | STATE - STATE LEVY (SCHOOL) | $247.18 | $247.18 | $0.00 | $0.00 | $494.36 | $0.00 |
| 2023 | 26475 | COUNTY - COUNTY LEVIES (CE, DD, VET, MH) | $107.86 | $107.85 | $0.00 | $0.00 | $215.71 | $0.00 |
| 2023 | 26475 | CONSERVE - CONSERVATION FUTURES | $3.24 | $3.23 | $0.00 | $0.00 | $6.47 | $0.00 |
| 2023 | 26475 | COROADS - COUNTY ROADS (ROADS, DIV TO CE) | $87.27 | $87.26 | $0.00 | $0.00 | $174.53 | $0.00 |
| 2023 | 26475 | PORTPT - PORT DISTRICT | $45.44 | $45.44 | $0.00 | $0.00 | $90.88 | $0.00 |
| 2023 | 26475 | PUD1 - PUD #1 | $7.15 | $7.15 | $0.00 | $0.00 | $14.30 | $0.00 |
| 2023 | 26475 | LIB1 - LIBRARY DIST #1 | $33.77 | $33.76 | $0.00 | $0.00 | $67.53 | $0.00 |
| 2023 | 26475 | HD2 - HOSP DIST #2 | $6.30 | $6.29 | $0.00 | $0.00 | $12.59 | $0.00 |
| 2023 | 26475 | SD46 - SCHOOL DIST #46 | $80.68 | $80.67 | $0.00 | $0.00 | $161.35 | $0.00 |
| 2023 | 26475 | FD4 - FIRE DISTRICT #4 | $134.15 | $134.14 | $0.00 | $0.00 | $268.29 | $0.00 |
| 2023 | 26475 | EMS4 - FIRE DIST #4 EMS | $38.15 | $38.15 | $0.00 | $0.00 | $76.30 | $0.00 |
| 2023 | 26475 | CEM1 - CEMETERY DIST #1 | $1.35 | $1.35 | $0.00 | $0.00 | $2.70 | $0.00 |
| 2023 | 26475 | JCCD - JC Conservation District | $2.55 | $2.55 | $0.00 | $0.00 | $5.10 | $0.00 |
| 2023 | 26475 | NWA - Noxious Weed Assessment | $2.15 | $2.15 | $0.00 | $0.00 | $4.30 | $0.00 |
| 2023 | 26475 | OSS - On Site Septic | $20.50 | $20.50 | $0.00 | $0.00 | $41.00 | $0.00 |
| 2023 | 26475 | WAT - Clean Water District | $12.00 | $12.00 | $0.00 | $0.00 | $24.00 | $0.00 |
| 2023 | 26475 | TOTAL: | $829.74 | $829.67 | $0.00 | $0.00 | $1659.41 | $0.00 |
|
| 2023 | 26475 | $829.74 | $829.67 | $0.00 | $0.00 | $1659.41 | $0.00 |
Values
| (+) Improvement Homesite Value: | + | $0 | |
| (+) Improvement Non-Homesite Value: | + | $189,743 | |
| (+) Land Homesite Value: | + | $0 | |
| (+) Land Non-Homesite Value: | + | $57,750 | |
| (+) Curr Use (HS): | + | $0 | $0 |
| (+) Curr Use (NHS): | + | $0 | $0 |
| | | -------------------------- | |
| (=) Market Value: | = | $247,493 | |
| (–) Productivity Loss: | – | $0 | |
| | | -------------------------- | |
| (=) Subtotal: | = | $247,493 | |
| (+) Senior Appraised Value: | + | $0 | |
| (+) Non-Senior Appraised Value: | + | $247,493 | |
| | | -------------------------- | |
| (=) Total Appraised Value: | = | $247,493 | |
| (–) Senior Exemption Loss: | – | $0 | |
| (–) Exemption Loss: | – | $0 | |
| | | -------------------------- | |
| (=) Taxable Value: | = | $247,493 | |
Taxing Jurisdiction
| Owner: | MARK JAMES | | |
| % Ownership: | 100.0000000000% | | |
| Total Value: | $247,493 | | |
| Tax Area: | 0441 - 1-46F4E4H2C1L1P2 |
| CE | COUNTY CURRENT EXPENSE | 0.9034619479 | $247,493 | $247,493 | $223.60 | | |
| CNTYDD | DEVELOPMENTAL DISABILITIES | 0.0052121823 | $247,493 | $247,493 | $1.29 | | |
| CNTYVET | VETERANS RELIEF | 0.0052777810 | $247,493 | $247,493 | $1.31 | | |
| MENTAL | MENTAL HEALTH | 0.0052121823 | $247,493 | $247,493 | $1.29 | | |
| ROADS | COUNTY ROADS | 0.7415066410 | $247,493 | $247,493 | $183.52 | | |
| ROADSCU | COUNTY ROADS TO CUR EXP | 0.0000000000 | $247,493 | $247,493 | $0.00 | | |
| HOSP2CASH | HOSP DIST #2 GENERAL | 0.0536075306 | $247,493 | $247,493 | $13.27 | | |
| SCH46MO | SCHOOL DIST #46 EP & O | 0.6890207067 | $247,493 | $247,493 | $170.53 | | |
| CEM1 | CEMETERY DIST #1 GENERAL | 0.0107168292 | $247,493 | $247,493 | $2.65 | | |
| CONSERVE | CONSERVATION FUTURES | 0.0275621078 | $247,493 | $247,493 | $6.82 | | |
| EMS4 | FIRE DIST #4 EMS | 0.4644216158 | $247,493 | $247,493 | $114.94 | | |
| FD4 | FIRE DIST #4 GENERAL | 1.3939598390 | $247,493 | $247,493 | $345.00 | | |
| FD4BOND | FIRE DIST #4 BOND 2019 | 0.2748466981 | $247,493 | $247,493 | $68.02 | | |
| LIB1 | LIBRARY DIST #1 GENERAL | 0.2868827388 | $247,493 | $247,493 | $71.00 | | |
| PORTPT | PORT OF PT GENERAL | 0.1134941229 | $247,493 | $247,493 | $28.09 | | |
| PORTPTIDD | PORT OF PT IDD 2019 | 0.2577346692 | $247,493 | $247,493 | $63.79 | | |
| PUD1 | PUD #1 GENERAL | 0.0597888892 | $247,493 | $247,493 | $14.80 | | |
| STATE | STATE SCHOOL PART 1 | 1.4940692947 | $247,493 | $247,493 | $369.77 | | |
| STATE2 | STATE SCHOOL PART 2 | 0.8050170049 | $247,493 | $247,493 | $199.24 | | |
| | Total Tax Rate: | 7.5917927814 | | | | | |
| | | | | Taxes w/Current Exemptions: | $1,878.93 | | |
| | | | | Taxes w/o Exemptions: | $1,878.93 | | |
Improvement / Building
| Improvement #1: | Residential Bldg | State Code: | 19 | 560.0 sqft | Value: | $35,428 |
| Bathrooms (#): | 1 (FULL) | Bedrooms (#): | 1 | | Exterior Wall: | PL/T1 | Fireplace: | WD ST-GOOD | | Floor Construction: | FRAME | Foundation: | PO&BL | | Heating/Cooling: | ELBB | Inside Verify: | NO | | Interior Finish: | FIN | Roof Cover: | METAL |
|
| | Type | Description | Class CD | Sub Class CD | Year Built | Area |
| | MA | Main Area | 4 | C15F | 1967 | 560.0 |
| | CLOFT | Cabin Loft | 4 | C15F | 1967 | 289.0 |
| Improvement #2: | Residential Bldg | State Code: | 11 | 1228.0 sqft | Value: | $154,315 |
| Bathrooms (#): | 1 (FULL) | Bathrooms (#): | 1 (HALF) | | Bedrooms (#): | 2 | Exterior Wall: | PL/T1 | | Fireplace: | WD ST-GOOD | Floor Construction: | FRAME | | Foundation: | CONPR | Heating/Cooling: | ELBB | | Inside Verify: | NO | Roof Cover: | COMP |
|
| | Type | Description | Class CD | Sub Class CD | Year Built | Area |
| | MA | Main Area | 3- | 1S | 1981 | 1228.0 |
| | SHED | Shed (Table Not Dep) | 3 | * | 1981 | 192.0 |
Sketch
Property Image
Land
| 1 | 1250-1116L | | 0.0000 | 0.00 | 0.00 | 0.00 | 1.00 | $57,750 | $0 |
Roll Value History
| 2026 | N/A | N/A | N/A | N/A | N/A |
| 2025 | $189,743 | $57,750 | $0 | $247,493 | $247,493 |
| 2024 | $181,494 | $55,000 | $0 | $236,494 | $236,494 |
| 2023 | $181,494 | $50,000 | $0 | $231,494 | $231,494 |
| 2022 | $164,994 | $45,000 | $0 | $209,994 | $209,994 |
Deed and Sales History
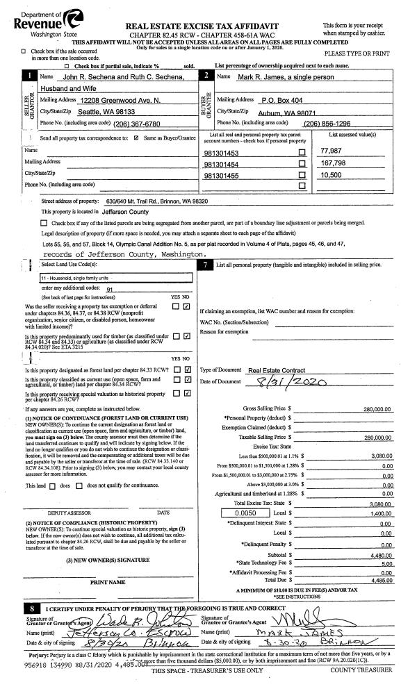
| 1 | 08/31/2020 | REC | Real Estate Contract | JOHN SECHENA | MARK JAMES | | | $280,000.00 | 134990 | |
|   | |
| 2 | 04/10/1997 | SWD | Statutory Warranty Deed | TRIMM, MARY R/EST | SECHENA, JOHN/RUTH | 0 | 0 | $90,000.00 | 81724 | 0 |
|   | |
Payout Agreement
| No payout information available.. |