Property
Account |
| Property ID: | 37104 | Abbreviated Legal Description: | OLYMPIC CANAL ADDITION 5 BLK 14 LOT 60 |
| Parcel # / Geo ID: | 981301458 | Agent Code: | |
| Type: | Real | | |
| Tax Area: | 0441 - 1-46F4E4H2C1L1P2 | Land Use Code | 91 |
| Open Space: | N | DFL | N |
| Historic Property: | N | Remodel Property: | N |
| Multi-Family Redevelopment: | N | | |
| Township: | 25N | Section: | 16 |
| Range: | 2W |
Location |
| Address: | | Mapsco: | 017/060 |
| Neighborhood: | OLYMPIC CANAL TRACTS | Map ID: | |
| Neighborhood CD: | 1250 |
Owner |
| Name: | WILLIAM J BATTEN | Owner ID: | 113259 |
| Mailing Address: | YONG S QUATRINI PO BOX 8657 OLYMPIA, WA 98509-8657 | % Ownership: | 100.0000000000% |
| | | Exemptions: | |
Pay Tax Due
Select the appropriate checkbox next to the year to be paid. Multiple years may be selected.
*Convenience Fee not included
Taxes and Assessment Details
Property Tax Information as of
03/12/2026
Click on "Statement Details" to expand or collapse a tax statement.
* Please enter a valid date ** Please enter a valid date *
Statement Details |
| 2026 | 26317 | STATE - STATE LEVY (SCHOOL) | $30.18 | $30.17 | $0.00 | $0.00 | $0.00 | $60.35 |
| 2026 | 26317 | COUNTY - COUNTY LEVIES (CE, DD, VET, MH) | $12.07 | $12.07 | $0.00 | $0.00 | $0.00 | $24.14 |
| 2026 | 26317 | CONSERVE - CONSERVATION FUTURES | $0.36 | $0.36 | $0.00 | $0.00 | $0.00 | $0.72 |
| 2026 | 26317 | COROADS - COUNTY ROADS (ROADS, DIV TO CE) | $9.73 | $9.73 | $0.00 | $0.00 | $0.00 | $19.46 |
| 2026 | 26317 | PORTPT - PORT DISTRICT | $4.88 | $4.87 | $0.00 | $0.00 | $0.00 | $9.75 |
| 2026 | 26317 | PUD1 - PUD #1 | $0.79 | $0.78 | $0.00 | $0.00 | $0.00 | $1.57 |
| 2026 | 26317 | LIB1 - LIBRARY DIST #1 | $3.77 | $3.76 | $0.00 | $0.00 | $0.00 | $7.53 |
| 2026 | 26317 | HD2 - HOSP DIST #2 | $0.71 | $0.70 | $0.00 | $0.00 | $0.00 | $1.41 |
| 2026 | 26317 | SD46 - SCHOOL DIST #46 | $9.05 | $9.04 | $0.00 | $0.00 | $0.00 | $18.09 |
| 2026 | 26317 | FD4 - FIRE DISTRICT #4 | $21.91 | $21.89 | $0.00 | $0.00 | $0.00 | $43.80 |
| 2026 | 26317 | EMS4 - FIRE DIST #4 EMS | $6.10 | $6.09 | $0.00 | $0.00 | $0.00 | $12.19 |
| 2026 | 26317 | CEM1 - CEMETERY DIST #1 | $0.14 | $0.14 | $0.00 | $0.00 | $0.00 | $0.28 |
| 2026 | 26317 | JCCD - JC Conservation District | $2.53 | $2.53 | $0.00 | $0.00 | $0.00 | $5.06 |
| 2026 | 26317 | NWA - Noxious Weed Assessment | $2.98 | $2.97 | $0.00 | $0.00 | $0.00 | $5.95 |
| 2026 | 26317 | WAT - Clean Water District | $13.00 | $13.00 | $0.00 | $0.00 | $0.00 | $26.00 |
| 2026 | 26317 | TOTAL: | $118.20 | $118.10 | $0.00 | $0.00 | $0.00 | $236.30 |
|
| 2026 | 26317 | $118.20 | $118.10 | $0.00 | $0.00 | $0.00 | $236.30 |
Statement Details |
| 2025 | 26386 | STATE - STATE LEVY (SCHOOL) | $29.98 | $29.97 | $0.00 | $0.00 | $59.95 | $0.00 |
| 2025 | 26386 | COUNTY - COUNTY LEVIES (CE, DD, VET, MH) | $11.80 | $11.77 | $0.00 | $0.00 | $23.57 | $0.00 |
| 2025 | 26386 | CONSERVE - CONSERVATION FUTURES | $0.36 | $0.35 | $0.00 | $0.00 | $0.71 | $0.00 |
| 2025 | 26386 | COROADS - COUNTY ROADS (ROADS, DIV TO CE) | $9.44 | $9.44 | $0.00 | $0.00 | $18.88 | $0.00 |
| 2025 | 26386 | PORTPT - PORT DISTRICT | $4.82 | $4.80 | $0.00 | $0.00 | $9.62 | $0.00 |
| 2025 | 26386 | PUD1 - PUD #1 | $0.77 | $0.77 | $0.00 | $0.00 | $1.54 | $0.00 |
| 2025 | 26386 | LIB1 - LIBRARY DIST #1 | $3.66 | $3.65 | $0.00 | $0.00 | $7.31 | $0.00 |
| 2025 | 26386 | HD2 - HOSP DIST #2 | $0.69 | $0.69 | $0.00 | $0.00 | $1.38 | $0.00 |
| 2025 | 26386 | SD46 - SCHOOL DIST #46 | $7.93 | $7.92 | $0.00 | $0.00 | $15.85 | $0.00 |
| 2025 | 26386 | FD4 - FIRE DISTRICT #4 | $21.96 | $21.95 | $0.00 | $0.00 | $43.91 | $0.00 |
| 2025 | 26386 | EMS4 - FIRE DIST #4 EMS | $6.09 | $6.09 | $0.00 | $0.00 | $12.18 | $0.00 |
| 2025 | 26386 | CEM1 - CEMETERY DIST #1 | $0.14 | $0.14 | $0.00 | $0.00 | $0.28 | $0.00 |
| 2025 | 26386 | JCCD - JC Conservation District | $2.53 | $2.53 | $0.00 | $0.00 | $5.06 | $0.00 |
| 2025 | 26386 | NWA - Noxious Weed Assessment | $2.15 | $2.15 | $0.00 | $0.00 | $4.30 | $0.00 |
| 2025 | 26386 | WAT - Clean Water District | $13.00 | $13.00 | $0.00 | $0.00 | $26.00 | $0.00 |
| 2025 | 26386 | TOTAL: | $115.32 | $115.22 | $0.00 | $0.00 | $230.54 | $0.00 |
|
| 2025 | 26386 | $115.32 | $115.22 | $0.00 | $0.00 | $230.54 | $0.00 |
Statement Details |
| 2024 | 26438 | STATE - STATE LEVY (SCHOOL) | $28.93 | $28.91 | $0.00 | $0.00 | $57.84 | $0.00 |
| 2024 | 26438 | COUNTY - COUNTY LEVIES (CE, DD, VET, MH) | $12.38 | $12.37 | $0.00 | $0.00 | $24.75 | $0.00 |
| 2024 | 26438 | CONSERVE - CONSERVATION FUTURES | $0.37 | $0.37 | $0.00 | $0.00 | $0.74 | $0.00 |
| 2024 | 26438 | COROADS - COUNTY ROADS (ROADS, DIV TO CE) | $9.97 | $9.95 | $0.00 | $0.00 | $19.92 | $0.00 |
| 2024 | 26438 | PORTPT - PORT DISTRICT | $5.12 | $5.11 | $0.00 | $0.00 | $10.23 | $0.00 |
| 2024 | 26438 | PUD1 - PUD #1 | $0.82 | $0.81 | $0.00 | $0.00 | $1.63 | $0.00 |
| 2024 | 26438 | LIB1 - LIBRARY DIST #1 | $3.86 | $3.85 | $0.00 | $0.00 | $7.71 | $0.00 |
| 2024 | 26438 | HD2 - HOSP DIST #2 | $0.72 | $0.72 | $0.00 | $0.00 | $1.44 | $0.00 |
| 2024 | 26438 | SD46 - SCHOOL DIST #46 | $8.68 | $8.68 | $0.00 | $0.00 | $17.36 | $0.00 |
| 2024 | 26438 | FD4 - FIRE DISTRICT #4 | $22.43 | $22.42 | $0.00 | $0.00 | $44.85 | $0.00 |
| 2024 | 26438 | EMS4 - FIRE DIST #4 EMS | $6.25 | $6.25 | $0.00 | $0.00 | $12.50 | $0.00 |
| 2024 | 26438 | CEM1 - CEMETERY DIST #1 | $0.15 | $0.14 | $0.00 | $0.00 | $0.29 | $0.00 |
| 2024 | 26438 | JCCD - JC Conservation District | $2.53 | $2.53 | $0.00 | $0.00 | $5.06 | $0.00 |
| 2024 | 26438 | NWA - Noxious Weed Assessment | $2.15 | $2.15 | $0.00 | $0.00 | $4.30 | $0.00 |
| 2024 | 26438 | WAT - Clean Water District | $12.50 | $12.50 | $0.00 | $0.00 | $25.00 | $0.00 |
| 2024 | 26438 | TOTAL: | $116.86 | $116.76 | $0.00 | $0.00 | $233.62 | $0.00 |
|
| 2024 | 26438 | $116.86 | $116.76 | $0.00 | $0.00 | $233.62 | $0.00 |
Statement Details |
| 2023 | 26479 | STATE - STATE LEVY (SCHOOL) | $29.43 | $29.42 | $0.00 | $0.00 | $58.85 | $0.00 |
| 2023 | 26479 | COUNTY - COUNTY LEVIES (CE, DD, VET, MH) | $12.86 | $12.83 | $0.00 | $0.00 | $25.69 | $0.00 |
| 2023 | 26479 | CONSERVE - CONSERVATION FUTURES | $0.39 | $0.38 | $0.00 | $0.00 | $0.77 | $0.00 |
| 2023 | 26479 | COROADS - COUNTY ROADS (ROADS, DIV TO CE) | $10.39 | $10.39 | $0.00 | $0.00 | $20.78 | $0.00 |
| 2023 | 26479 | PORTPT - PORT DISTRICT | $5.42 | $5.40 | $0.00 | $0.00 | $10.82 | $0.00 |
| 2023 | 26479 | PUD1 - PUD #1 | $0.85 | $0.85 | $0.00 | $0.00 | $1.70 | $0.00 |
| 2023 | 26479 | LIB1 - LIBRARY DIST #1 | $4.02 | $4.02 | $0.00 | $0.00 | $8.04 | $0.00 |
| 2023 | 26479 | HD2 - HOSP DIST #2 | $0.76 | $0.74 | $0.00 | $0.00 | $1.50 | $0.00 |
| 2023 | 26479 | SD46 - SCHOOL DIST #46 | $9.61 | $9.60 | $0.00 | $0.00 | $19.21 | $0.00 |
| 2023 | 26479 | FD4 - FIRE DISTRICT #4 | $15.97 | $15.97 | $0.00 | $0.00 | $31.94 | $0.00 |
| 2023 | 26479 | EMS4 - FIRE DIST #4 EMS | $4.54 | $4.54 | $0.00 | $0.00 | $9.08 | $0.00 |
| 2023 | 26479 | CEM1 - CEMETERY DIST #1 | $0.16 | $0.16 | $0.00 | $0.00 | $0.32 | $0.00 |
| 2023 | 26479 | JCCD - JC Conservation District | $2.53 | $2.53 | $0.00 | $0.00 | $5.06 | $0.00 |
| 2023 | 26479 | NWA - Noxious Weed Assessment | $2.15 | $2.15 | $0.00 | $0.00 | $4.30 | $0.00 |
| 2023 | 26479 | WAT - Clean Water District | $12.00 | $12.00 | $0.00 | $0.00 | $24.00 | $0.00 |
| 2023 | 26479 | TOTAL: | $111.08 | $110.98 | $0.00 | $0.00 | $222.06 | $0.00 |
|
| 2023 | 26479 | $111.08 | $110.98 | $0.00 | $0.00 | $222.06 | $0.00 |
Values
| (+) Improvement Homesite Value: | + | $0 | |
| (+) Improvement Non-Homesite Value: | + | $0 | |
| (+) Land Homesite Value: | + | $0 | |
| (+) Land Non-Homesite Value: | + | $26,250 | |
| (+) Curr Use (HS): | + | $0 | $0 |
| (+) Curr Use (NHS): | + | $0 | $0 |
| | | -------------------------- | |
| (=) Market Value: | = | $26,250 | |
| (–) Productivity Loss: | – | $0 | |
| | | -------------------------- | |
| (=) Subtotal: | = | $26,250 | |
| (+) Senior Appraised Value: | + | $0 | |
| (+) Non-Senior Appraised Value: | + | $26,250 | |
| | | -------------------------- | |
| (=) Total Appraised Value: | = | $26,250 | |
| (–) Senior Exemption Loss: | – | $0 | |
| (–) Exemption Loss: | – | $0 | |
| | | -------------------------- | |
| (=) Taxable Value: | = | $26,250 | |
Taxing Jurisdiction
| Owner: | WILLIAM J BATTEN | | |
| % Ownership: | 100.0000000000% | | |
| Total Value: | $26,250 | | |
| Tax Area: | 0441 - 1-46F4E4H2C1L1P2 |
| CE | COUNTY CURRENT EXPENSE | 0.9034619479 | $26,250 | $26,250 | $23.72 | | |
| CNTYDD | DEVELOPMENTAL DISABILITIES | 0.0052121823 | $26,250 | $26,250 | $0.14 | | |
| CNTYVET | VETERANS RELIEF | 0.0052777810 | $26,250 | $26,250 | $0.14 | | |
| MENTAL | MENTAL HEALTH | 0.0052121823 | $26,250 | $26,250 | $0.14 | | |
| ROADS | COUNTY ROADS | 0.7415066410 | $26,250 | $26,250 | $19.46 | | |
| ROADSCU | COUNTY ROADS TO CUR EXP | 0.0000000000 | $26,250 | $26,250 | $0.00 | | |
| HOSP2CASH | HOSP DIST #2 GENERAL | 0.0536075306 | $26,250 | $26,250 | $1.41 | | |
| SCH46MO | SCHOOL DIST #46 EP & O | 0.6890207067 | $26,250 | $26,250 | $18.09 | | |
| CEM1 | CEMETERY DIST #1 GENERAL | 0.0107168292 | $26,250 | $26,250 | $0.28 | | |
| CONSERVE | CONSERVATION FUTURES | 0.0275621078 | $26,250 | $26,250 | $0.72 | | |
| EMS4 | FIRE DIST #4 EMS | 0.4644216158 | $26,250 | $26,250 | $12.19 | | |
| FD4 | FIRE DIST #4 GENERAL | 1.3939598390 | $26,250 | $26,250 | $36.59 | | |
| FD4BOND | FIRE DIST #4 BOND 2019 | 0.2748466981 | $26,250 | $26,250 | $7.21 | | |
| LIB1 | LIBRARY DIST #1 GENERAL | 0.2868827388 | $26,250 | $26,250 | $7.53 | | |
| PORTPT | PORT OF PT GENERAL | 0.1134941229 | $26,250 | $26,250 | $2.98 | | |
| PORTPTIDD | PORT OF PT IDD 2019 | 0.2577346692 | $26,250 | $26,250 | $6.77 | | |
| PUD1 | PUD #1 GENERAL | 0.0597888892 | $26,250 | $26,250 | $1.57 | | |
| STATE | STATE SCHOOL PART 1 | 1.4940692947 | $26,250 | $26,250 | $39.22 | | |
| STATE2 | STATE SCHOOL PART 2 | 0.8050170049 | $26,250 | $26,250 | $21.13 | | |
| | Total Tax Rate: | 7.5917927814 | | | | | |
| | | | | Taxes w/Current Exemptions: | $199.29 | | |
| | | | | Taxes w/o Exemptions: | $199.29 | | |
Improvement / Building
Sketch
| No sketches available for this property. |
Property Image
Land
| 1 | 1250-1116L | | 0.0000 | 0.00 | 0.00 | 0.00 | 1.00 | $26,250 | $0 |
Roll Value History
| 2026 | N/A | N/A | N/A | N/A | N/A |
| 2025 | $0 | $26,250 | $0 | $26,250 | $26,250 |
| 2024 | $0 | $25,000 | $0 | $25,000 | $25,000 |
| 2023 | $0 | $25,000 | $0 | $25,000 | $25,000 |
| 2022 | $0 | $25,000 | $0 | $25,000 | $25,000 |
Deed and Sales History
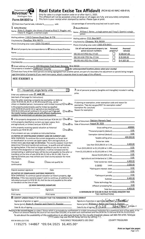
| 1 | 08/28/2025 | SWD | Statutory Warranty Deed | RICKY E HUGGLER | WILLIAM J BATTEN | | | $400,000.00 | 144867 | |
|   | |
| 2 | 01/23/2014 | QCD | Quit Claim Deed | FRED A HUGGLER | RICKY E HUGGLER | | | | 120677 | |
| 3 | 09/08/1994 | REC | Real Estate Contract | MCNABB, VERNON L/GLORIA M | HUGGLER, FRED A/ET AL | 0 | 0 | $0.00 | 75128 | 0 |
Payout Agreement
| No payout information available.. |