Property
Account |
| Property ID: | 37166 | Abbreviated Legal Description: | OLYMPIC CANAL ADDITION 6 BLK 13 LOT 27 |
| Parcel # / Geo ID: | 981601314 | Agent Code: | |
| Type: | Real | | |
| Tax Area: | 0441 - 1-46F4E4H2C1L1P2 | Land Use Code | 18 |
| Open Space: | N | DFL | N |
| Historic Property: | N | Remodel Property: | N |
| Multi-Family Redevelopment: | N | | |
| Township: | 25N | Section: | 21 |
| Range: | 2W |
Location |
| Address: | | Mapsco: | 019/017 |
| Neighborhood: | OLYMPIC CANAL TRACTS | Map ID: | |
| Neighborhood CD: | 1250 |
Owner |
| Name: | LF FAHLER DUNLAP | Owner ID: | 90146 |
| Mailing Address: | DORIS DUNLAP GILBERT & DEBRA EVANS PO BOX 592 MOSIER, OR 97040-0592 | % Ownership: | 100.0000000000% |
| | | Exemptions: | |
Pay Tax Due
There is currently No Amount Due on this property.
Taxes and Assessment Details
Property Tax Information as of
03/11/2026
Click on "Statement Details" to expand or collapse a tax statement.
* Please enter a valid date ** Please enter a valid date *
Statement Details |
| 2026 | 26379 | STATE - STATE LEVY (SCHOOL) | $34.35 | $34.34 | $0.00 | $0.00 | $68.69 | $0.00 |
| 2026 | 26379 | COUNTY - COUNTY LEVIES (CE, DD, VET, MH) | $13.74 | $13.74 | $0.00 | $0.00 | $27.48 | $0.00 |
| 2026 | 26379 | CONSERVE - CONSERVATION FUTURES | $0.41 | $0.41 | $0.00 | $0.00 | $0.82 | $0.00 |
| 2026 | 26379 | COROADS - COUNTY ROADS (ROADS, DIV TO CE) | $11.08 | $11.08 | $0.00 | $0.00 | $22.16 | $0.00 |
| 2026 | 26379 | PORTPT - PORT DISTRICT | $5.55 | $5.54 | $0.00 | $0.00 | $11.09 | $0.00 |
| 2026 | 26379 | PUD1 - PUD #1 | $0.90 | $0.89 | $0.00 | $0.00 | $1.79 | $0.00 |
| 2026 | 26379 | LIB1 - LIBRARY DIST #1 | $4.29 | $4.28 | $0.00 | $0.00 | $8.57 | $0.00 |
| 2026 | 26379 | HD2 - HOSP DIST #2 | $0.80 | $0.80 | $0.00 | $0.00 | $1.60 | $0.00 |
| 2026 | 26379 | SD46 - SCHOOL DIST #46 | $10.30 | $10.29 | $0.00 | $0.00 | $20.59 | $0.00 |
| 2026 | 26379 | FD4 - FIRE DISTRICT #4 | $24.94 | $24.92 | $0.00 | $0.00 | $49.86 | $0.00 |
| 2026 | 26379 | EMS4 - FIRE DIST #4 EMS | $6.94 | $6.94 | $0.00 | $0.00 | $13.88 | $0.00 |
| 2026 | 26379 | CEM1 - CEMETERY DIST #1 | $0.16 | $0.16 | $0.00 | $0.00 | $0.32 | $0.00 |
| 2026 | 26379 | FP - DNR Forest Fire Protection Assmt | $8.50 | $8.50 | $0.00 | $0.00 | $17.00 | $0.00 |
| 2026 | 26379 | FPLCA - DNR Landowner Contingency Assmt | $3.00 | $3.00 | $0.00 | $0.00 | $6.00 | $0.00 |
| 2026 | 26379 | JCCD - JC Conservation District | $2.53 | $2.53 | $0.00 | $0.00 | $5.06 | $0.00 |
| 2026 | 26379 | NWA - Noxious Weed Assessment | $2.98 | $2.97 | $0.00 | $0.00 | $5.95 | $0.00 |
| 2026 | 26379 | OSS - On Site Septic | $23.10 | $23.10 | $0.00 | $0.00 | $46.20 | $0.00 |
| 2026 | 26379 | WAT - Clean Water District | $13.00 | $13.00 | $0.00 | $0.00 | $26.00 | $0.00 |
| 2026 | 26379 | FP ADMIN - FP ADMIN | $0.50 | $0.00 | $0.00 | $0.00 | $0.50 | $0.00 |
| 2026 | 26379 | TOTAL: | $167.07 | $166.49 | $0.00 | $0.00 | $333.56 | $0.00 |
|
| 2026 | 26379 | $167.07 | $166.49 | $0.00 | $0.00 | $333.56 | $0.00 |
Statement Details |
| 2025 | 26448 | STATE - STATE LEVY (SCHOOL) | $34.18 | $34.16 | $0.00 | $0.00 | $68.34 | $0.00 |
| 2025 | 26448 | COUNTY - COUNTY LEVIES (CE, DD, VET, MH) | $13.45 | $13.42 | $0.00 | $0.00 | $26.87 | $0.00 |
| 2025 | 26448 | CONSERVE - CONSERVATION FUTURES | $0.41 | $0.40 | $0.00 | $0.00 | $0.81 | $0.00 |
| 2025 | 26448 | COROADS - COUNTY ROADS (ROADS, DIV TO CE) | $10.77 | $10.76 | $0.00 | $0.00 | $21.53 | $0.00 |
| 2025 | 26448 | PORTPT - PORT DISTRICT | $5.49 | $5.48 | $0.00 | $0.00 | $10.97 | $0.00 |
| 2025 | 26448 | PUD1 - PUD #1 | $0.88 | $0.88 | $0.00 | $0.00 | $1.76 | $0.00 |
| 2025 | 26448 | LIB1 - LIBRARY DIST #1 | $4.17 | $4.16 | $0.00 | $0.00 | $8.33 | $0.00 |
| 2025 | 26448 | HD2 - HOSP DIST #2 | $0.79 | $0.78 | $0.00 | $0.00 | $1.57 | $0.00 |
| 2025 | 26448 | SD46 - SCHOOL DIST #46 | $9.03 | $9.03 | $0.00 | $0.00 | $18.06 | $0.00 |
| 2025 | 26448 | FD4 - FIRE DISTRICT #4 | $25.04 | $25.02 | $0.00 | $0.00 | $50.06 | $0.00 |
| 2025 | 26448 | EMS4 - FIRE DIST #4 EMS | $6.95 | $6.94 | $0.00 | $0.00 | $13.89 | $0.00 |
| 2025 | 26448 | CEM1 - CEMETERY DIST #1 | $0.16 | $0.16 | $0.00 | $0.00 | $0.32 | $0.00 |
| 2025 | 26448 | FP - DNR Forest Fire Protection Assmt | $8.50 | $8.50 | $0.00 | $0.00 | $17.00 | $0.00 |
| 2025 | 26448 | FPLCA - DNR Landowner Contingency Assmt | $3.00 | $3.00 | $0.00 | $0.00 | $6.00 | $0.00 |
| 2025 | 26448 | JCCD - JC Conservation District | $2.55 | $2.55 | $0.00 | $0.00 | $5.10 | $0.00 |
| 2025 | 26448 | NWA - Noxious Weed Assessment | $2.15 | $2.15 | $0.00 | $0.00 | $4.30 | $0.00 |
| 2025 | 26448 | OSS - On Site Septic | $21.50 | $21.50 | $0.00 | $0.00 | $43.00 | $0.00 |
| 2025 | 26448 | WAT - Clean Water District | $13.00 | $13.00 | $0.00 | $0.00 | $26.00 | $0.00 |
| 2025 | 26448 | FP ADMIN - FP ADMIN | $0.50 | $0.00 | $0.00 | $0.00 | $0.50 | $0.00 |
| 2025 | 26448 | TOTAL: | $162.52 | $161.89 | $0.00 | $0.00 | $324.41 | $0.00 |
|
| 2025 | 26448 | $162.52 | $161.89 | $0.00 | $0.00 | $324.41 | $0.00 |
Statement Details |
| 2024 | 26500 | STATE - STATE LEVY (SCHOOL) | $32.97 | $32.97 | $0.00 | $0.00 | $65.94 | $0.00 |
| 2024 | 26500 | COUNTY - COUNTY LEVIES (CE, DD, VET, MH) | $14.11 | $14.11 | $0.00 | $0.00 | $28.22 | $0.00 |
| 2024 | 26500 | CONSERVE - CONSERVATION FUTURES | $0.43 | $0.42 | $0.00 | $0.00 | $0.85 | $0.00 |
| 2024 | 26500 | COROADS - COUNTY ROADS (ROADS, DIV TO CE) | $11.36 | $11.35 | $0.00 | $0.00 | $22.71 | $0.00 |
| 2024 | 26500 | PORTPT - PORT DISTRICT | $5.83 | $5.82 | $0.00 | $0.00 | $11.65 | $0.00 |
| 2024 | 26500 | PUD1 - PUD #1 | $0.93 | $0.92 | $0.00 | $0.00 | $1.85 | $0.00 |
| 2024 | 26500 | LIB1 - LIBRARY DIST #1 | $4.39 | $4.39 | $0.00 | $0.00 | $8.78 | $0.00 |
| 2024 | 26500 | HD2 - HOSP DIST #2 | $0.83 | $0.82 | $0.00 | $0.00 | $1.65 | $0.00 |
| 2024 | 26500 | SD46 - SCHOOL DIST #46 | $9.90 | $9.89 | $0.00 | $0.00 | $19.79 | $0.00 |
| 2024 | 26500 | FD4 - FIRE DISTRICT #4 | $25.57 | $25.56 | $0.00 | $0.00 | $51.13 | $0.00 |
| 2024 | 26500 | EMS4 - FIRE DIST #4 EMS | $7.13 | $7.12 | $0.00 | $0.00 | $14.25 | $0.00 |
| 2024 | 26500 | CEM1 - CEMETERY DIST #1 | $0.17 | $0.16 | $0.00 | $0.00 | $0.33 | $0.00 |
| 2024 | 26500 | FP - DNR Forest Fire Protection Assmt | $8.50 | $8.50 | $0.00 | $0.00 | $17.00 | $0.00 |
| 2024 | 26500 | FPLCA - DNR Landowner Contingency Assmt | $3.00 | $3.00 | $0.00 | $0.00 | $6.00 | $0.00 |
| 2024 | 26500 | JCCD - JC Conservation District | $2.55 | $2.55 | $0.00 | $0.00 | $5.10 | $0.00 |
| 2024 | 26500 | NWA - Noxious Weed Assessment | $2.15 | $2.15 | $0.00 | $0.00 | $4.30 | $0.00 |
| 2024 | 26500 | OSS - On Site Septic | $21.00 | $21.00 | $0.00 | $0.00 | $42.00 | $0.00 |
| 2024 | 26500 | WAT - Clean Water District | $12.50 | $12.50 | $0.00 | $0.00 | $25.00 | $0.00 |
| 2024 | 26500 | FP ADMIN - FP ADMIN | $0.50 | $0.00 | $0.00 | $0.00 | $0.50 | $0.00 |
| 2024 | 26500 | TOTAL: | $163.82 | $163.23 | $0.00 | $0.00 | $327.05 | $0.00 |
|
| 2024 | 26500 | $163.82 | $163.23 | $0.00 | $0.00 | $327.05 | $0.00 |
Statement Details |
| 2023 | 26541 | STATE - STATE LEVY (SCHOOL) | $31.36 | $31.34 | $0.00 | $0.00 | $62.70 | $0.00 |
| 2023 | 26541 | COUNTY - COUNTY LEVIES (CE, DD, VET, MH) | $13.69 | $13.68 | $0.00 | $0.00 | $27.37 | $0.00 |
| 2023 | 26541 | CONSERVE - CONSERVATION FUTURES | $0.41 | $0.41 | $0.00 | $0.00 | $0.82 | $0.00 |
| 2023 | 26541 | COROADS - COUNTY ROADS (ROADS, DIV TO CE) | $11.08 | $11.06 | $0.00 | $0.00 | $22.14 | $0.00 |
| 2023 | 26541 | PORTPT - PORT DISTRICT | $5.77 | $5.76 | $0.00 | $0.00 | $11.53 | $0.00 |
| 2023 | 26541 | PUD1 - PUD #1 | $0.91 | $0.90 | $0.00 | $0.00 | $1.81 | $0.00 |
| 2023 | 26541 | LIB1 - LIBRARY DIST #1 | $4.29 | $4.28 | $0.00 | $0.00 | $8.57 | $0.00 |
| 2023 | 26541 | HD2 - HOSP DIST #2 | $0.81 | $0.79 | $0.00 | $0.00 | $1.60 | $0.00 |
| 2023 | 26541 | SD46 - SCHOOL DIST #46 | $10.24 | $10.23 | $0.00 | $0.00 | $20.47 | $0.00 |
| 2023 | 26541 | FD4 - FIRE DISTRICT #4 | $17.02 | $17.01 | $0.00 | $0.00 | $34.03 | $0.00 |
| 2023 | 26541 | EMS4 - FIRE DIST #4 EMS | $4.84 | $4.84 | $0.00 | $0.00 | $9.68 | $0.00 |
| 2023 | 26541 | CEM1 - CEMETERY DIST #1 | $0.17 | $0.17 | $0.00 | $0.00 | $0.34 | $0.00 |
| 2023 | 26541 | FP - DNR Forest Fire Protection Assmt | $8.50 | $8.50 | $0.00 | $0.00 | $17.00 | $0.00 |
| 2023 | 26541 | FPLCA - DNR Landowner Contingency Assmt | $3.00 | $3.00 | $0.00 | $0.00 | $6.00 | $0.00 |
| 2023 | 26541 | JCCD - JC Conservation District | $2.55 | $2.55 | $0.00 | $0.00 | $5.10 | $0.00 |
| 2023 | 26541 | NWA - Noxious Weed Assessment | $2.15 | $2.15 | $0.00 | $0.00 | $4.30 | $0.00 |
| 2023 | 26541 | OSS - On Site Septic | $20.50 | $20.50 | $0.00 | $0.00 | $41.00 | $0.00 |
| 2023 | 26541 | WAT - Clean Water District | $12.00 | $12.00 | $0.00 | $0.00 | $24.00 | $0.00 |
| 2023 | 26541 | FP ADMIN - FP ADMIN | $0.50 | $0.00 | $0.00 | $0.00 | $0.50 | $0.00 |
| 2023 | 26541 | TOTAL: | $149.79 | $149.17 | $0.00 | $0.00 | $298.96 | $0.00 |
|
| 2023 | 26541 | $149.79 | $149.17 | $0.00 | $0.00 | $298.96 | $0.00 |
Values
| (+) Improvement Homesite Value: | + | $0 | |
| (+) Improvement Non-Homesite Value: | + | $9,931 | |
| (+) Land Homesite Value: | + | $0 | |
| (+) Land Non-Homesite Value: | + | $19,950 | |
| (+) Curr Use (HS): | + | $0 | $0 |
| (+) Curr Use (NHS): | + | $0 | $0 |
| | | -------------------------- | |
| (=) Market Value: | = | $29,881 | |
| (–) Productivity Loss: | – | $0 | |
| | | -------------------------- | |
| (=) Subtotal: | = | $29,881 | |
| (+) Senior Appraised Value: | + | $0 | |
| (+) Non-Senior Appraised Value: | + | $29,881 | |
| | | -------------------------- | |
| (=) Total Appraised Value: | = | $29,881 | |
| (–) Senior Exemption Loss: | – | $0 | |
| (–) Exemption Loss: | – | $0 | |
| | | -------------------------- | |
| (=) Taxable Value: | = | $29,881 | |
Taxing Jurisdiction
| Owner: | LF FAHLER DUNLAP | | |
| % Ownership: | 100.0000000000% | | |
| Total Value: | $29,881 | | |
| Tax Area: | 0441 - 1-46F4E4H2C1L1P2 |
| CE | COUNTY CURRENT EXPENSE | 0.9034619479 | $29,881 | $29,881 | $27.00 | | |
| CNTYDD | DEVELOPMENTAL DISABILITIES | 0.0052121823 | $29,881 | $29,881 | $0.16 | | |
| CNTYVET | VETERANS RELIEF | 0.0052777810 | $29,881 | $29,881 | $0.16 | | |
| MENTAL | MENTAL HEALTH | 0.0052121823 | $29,881 | $29,881 | $0.16 | | |
| ROADS | COUNTY ROADS | 0.7415066410 | $29,881 | $29,881 | $22.16 | | |
| ROADSCU | COUNTY ROADS TO CUR EXP | 0.0000000000 | $29,881 | $29,881 | $0.00 | | |
| HOSP2CASH | HOSP DIST #2 GENERAL | 0.0536075306 | $29,881 | $29,881 | $1.60 | | |
| SCH46MO | SCHOOL DIST #46 EP & O | 0.6890207067 | $29,881 | $29,881 | $20.59 | | |
| CEM1 | CEMETERY DIST #1 GENERAL | 0.0107168292 | $29,881 | $29,881 | $0.32 | | |
| CONSERVE | CONSERVATION FUTURES | 0.0275621078 | $29,881 | $29,881 | $0.82 | | |
| EMS4 | FIRE DIST #4 EMS | 0.4644216158 | $29,881 | $29,881 | $13.88 | | |
| FD4 | FIRE DIST #4 GENERAL | 1.3939598390 | $29,881 | $29,881 | $41.65 | | |
| FD4BOND | FIRE DIST #4 BOND 2019 | 0.2748466981 | $29,881 | $29,881 | $8.21 | | |
| LIB1 | LIBRARY DIST #1 GENERAL | 0.2868827388 | $29,881 | $29,881 | $8.57 | | |
| PORTPT | PORT OF PT GENERAL | 0.1134941229 | $29,881 | $29,881 | $3.39 | | |
| PORTPTIDD | PORT OF PT IDD 2019 | 0.2577346692 | $29,881 | $29,881 | $7.70 | | |
| PUD1 | PUD #1 GENERAL | 0.0597888892 | $29,881 | $29,881 | $1.79 | | |
| STATE | STATE SCHOOL PART 1 | 1.4940692947 | $29,881 | $29,881 | $44.64 | | |
| STATE2 | STATE SCHOOL PART 2 | 0.8050170049 | $29,881 | $29,881 | $24.05 | | |
| | Total Tax Rate: | 7.5917927814 | | | | | |
| | | | | Taxes w/Current Exemptions: | $226.85 | | |
| | | | | Taxes w/o Exemptions: | $226.85 | | |
Improvement / Building
| Improvement #1: | Residential Bldg | State Code: | 19 | 0.0 sqft | Value: | $9,931 |
| | Type | Description | Class CD | Sub Class CD | Year Built | Area |
| | CARPTN | Carport W/O Floor | 1 | * | 2012 | 522.0 |
| | SHED | Shed (Table Not Dep) | 4 | * | 1989 | 133.0 |
| | SHED | Shed (Table Not Dep) | 3 | * | 2006 | 65.0 |
Sketch
Property Image
Land
| 1 | 1250-1185L | | 0.0000 | 0.00 | 0.00 | 0.00 | 1.00 | $19,950 | $0 |
Roll Value History
| 2026 | N/A | N/A | N/A | N/A | N/A |
| 2025 | $9,931 | $19,950 | $0 | $29,881 | $29,881 |
| 2024 | $9,500 | $19,000 | $0 | $28,500 | $28,500 |
| 2023 | $9,500 | $19,000 | $0 | $28,500 | $28,500 |
| 2022 | $8,636 | $18,000 | $0 | $26,636 | $26,636 |
Deed and Sales History
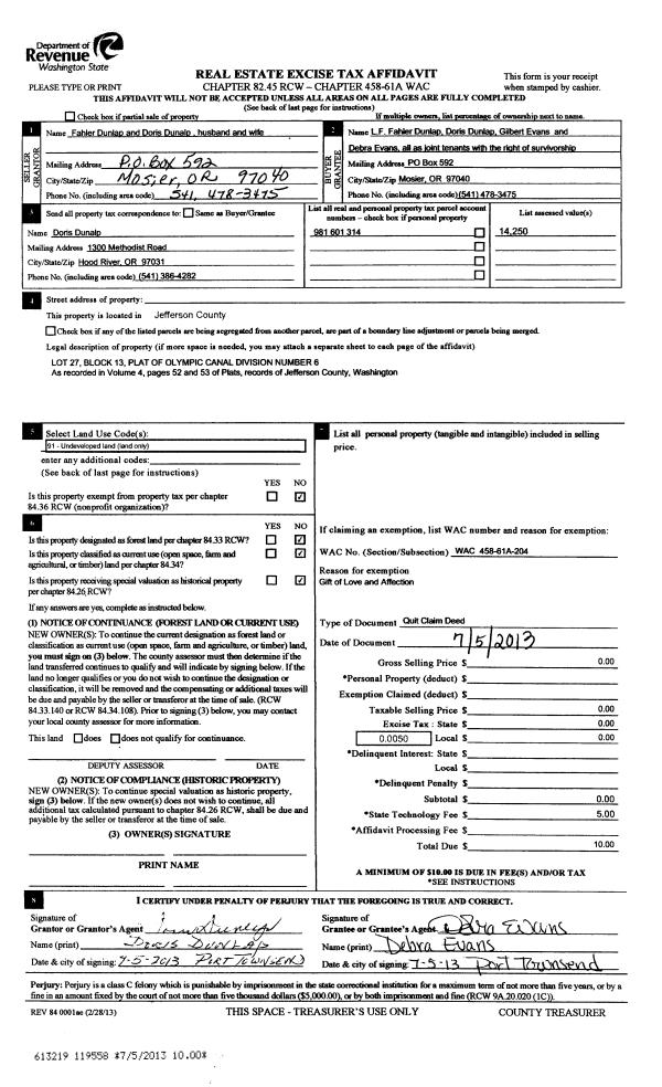
| 1 | 07/05/2013 | QCD | Quit Claim Deed | GILBERT & DEBRA EVANS | LF FAHLER DUNLAP | | | | 119557 | |
| 2 | 07/05/2013 | QCD | Quit Claim Deed | LF FAHLER DUNLAP | LF FAHLER DUNLAP | | | | 119558 | |
| 3 | 03/28/2002 | QCD | Quit Claim Deed | DUNLAP, LYNN/BETTY | DUNLAP, F & D/EVANS, G & D | 0 | 0 | $0.00 | 94394 | 0 |
Payout Agreement
| No payout information available.. |