Property
Account |
| Property ID: | 37169 | Abbreviated Legal Description: | OLYMPIC CANAL ADDITION 6 BLK 13 LOT 31 |
| Parcel # / Geo ID: | 981601318 | Agent Code: | |
| Type: | Real | | |
| Tax Area: | 0441 - 1-46F4E4H2C1L1P2 | Land Use Code | 11 |
| Open Space: | N | DFL | N |
| Historic Property: | N | Remodel Property: | N |
| Multi-Family Redevelopment: | N | | |
| Township: | 25N | Section: | 21 |
| Range: | 2W |
Location |
| Address: | 110 TRAILWOOD DR BRINNON, WA 98320 | Mapsco: | 019/021 |
| Neighborhood: | OLYMPIC CANAL TRACTS | Map ID: | |
| Neighborhood CD: | 1250 |
Owner |
| Name: | FEDERAL HOME LOAN MORTGAGE CORP | Owner ID: | 113113 |
| Mailing Address: | C/O NEW AMERICAN FUNDING LLC 8201 N FM 620 RD UNIT 120 AUSTIN, TX 78726-4075 | % Ownership: | 100.0000000000% |
| | | Exemptions: | |
Pay Tax Due
Select the appropriate checkbox next to the year to be paid. Multiple years may be selected.
*Convenience Fee not included
Taxes and Assessment Details
Property Tax Information as of
03/10/2026
Click on "Statement Details" to expand or collapse a tax statement.
* Please enter a valid date ** Please enter a valid date *
Statement Details |
| 2026 | 26382 | STATE - STATE LEVY (SCHOOL) | $200.85 | $200.83 | $0.00 | $0.00 | $0.00 | $401.68 |
| 2026 | 26382 | COUNTY - COUNTY LEVIES (CE, DD, VET, MH) | $80.31 | $80.28 | $0.00 | $0.00 | $0.00 | $160.59 |
| 2026 | 26382 | CONSERVE - CONSERVATION FUTURES | $2.41 | $2.41 | $0.00 | $0.00 | $0.00 | $4.82 |
| 2026 | 26382 | COROADS - COUNTY ROADS (ROADS, DIV TO CE) | $64.78 | $64.77 | $0.00 | $0.00 | $0.00 | $129.55 |
| 2026 | 26382 | PORTPT - PORT DISTRICT | $32.44 | $32.42 | $0.00 | $0.00 | $0.00 | $64.86 |
| 2026 | 26382 | PUD1 - PUD #1 | $5.23 | $5.22 | $0.00 | $0.00 | $0.00 | $10.45 |
| 2026 | 26382 | LIB1 - LIBRARY DIST #1 | $25.06 | $25.06 | $0.00 | $0.00 | $0.00 | $50.12 |
| 2026 | 26382 | HD2 - HOSP DIST #2 | $4.69 | $4.68 | $0.00 | $0.00 | $0.00 | $9.37 |
| 2026 | 26382 | SD46 - SCHOOL DIST #46 | $60.19 | $60.19 | $0.00 | $0.00 | $0.00 | $120.38 |
| 2026 | 26382 | FD4 - FIRE DISTRICT #4 | $145.78 | $145.78 | $0.00 | $0.00 | $0.00 | $291.56 |
| 2026 | 26382 | EMS4 - FIRE DIST #4 EMS | $40.57 | $40.57 | $0.00 | $0.00 | $0.00 | $81.14 |
| 2026 | 26382 | CEM1 - CEMETERY DIST #1 | $0.94 | $0.93 | $0.00 | $0.00 | $0.00 | $1.87 |
| 2026 | 26382 | JCCD - JC Conservation District | $2.55 | $2.55 | $0.00 | $0.00 | $0.00 | $5.10 |
| 2026 | 26382 | NWA - Noxious Weed Assessment | $2.98 | $2.97 | $0.00 | $0.00 | $0.00 | $5.95 |
| 2026 | 26382 | OSS - On Site Septic | $23.10 | $23.10 | $0.00 | $0.00 | $0.00 | $46.20 |
| 2026 | 26382 | WAT - Clean Water District | $13.00 | $13.00 | $0.00 | $0.00 | $0.00 | $26.00 |
| 2026 | 26382 | TOTAL: | $704.88 | $704.76 | $0.00 | $0.00 | $0.00 | $1409.64 |
|
| 2026 | 26382 | $704.88 | $704.76 | $0.00 | $0.00 | $0.00 | $1409.64 |
Statement Details |
| 2025 | 26451 | STATE - STATE LEVY (SCHOOL) | $200.17 | $200.16 | $0.00 | $0.00 | $400.33 | $0.00 |
| 2025 | 26451 | COUNTY - COUNTY LEVIES (CE, DD, VET, MH) | $78.72 | $78.70 | $0.00 | $0.00 | $157.42 | $0.00 |
| 2025 | 26451 | CONSERVE - CONSERVATION FUTURES | $2.36 | $2.36 | $0.00 | $0.00 | $4.72 | $0.00 |
| 2025 | 26451 | COROADS - COUNTY ROADS (ROADS, DIV TO CE) | $63.07 | $63.06 | $0.00 | $0.00 | $126.13 | $0.00 |
| 2025 | 26451 | PORTPT - PORT DISTRICT | $32.12 | $32.12 | $0.00 | $0.00 | $64.24 | $0.00 |
| 2025 | 26451 | PUD1 - PUD #1 | $5.15 | $5.15 | $0.00 | $0.00 | $10.30 | $0.00 |
| 2025 | 26451 | LIB1 - LIBRARY DIST #1 | $24.40 | $24.40 | $0.00 | $0.00 | $48.80 | $0.00 |
| 2025 | 26451 | HD2 - HOSP DIST #2 | $4.59 | $4.59 | $0.00 | $0.00 | $9.18 | $0.00 |
| 2025 | 26451 | SD46 - SCHOOL DIST #46 | $52.91 | $52.90 | $0.00 | $0.00 | $105.81 | $0.00 |
| 2025 | 26451 | FD4 - FIRE DISTRICT #4 | $146.62 | $146.62 | $0.00 | $0.00 | $293.24 | $0.00 |
| 2025 | 26451 | EMS4 - FIRE DIST #4 EMS | $40.68 | $40.68 | $0.00 | $0.00 | $81.36 | $0.00 |
| 2025 | 26451 | CEM1 - CEMETERY DIST #1 | $0.94 | $0.94 | $0.00 | $0.00 | $1.88 | $0.00 |
| 2025 | 26451 | JCCD - JC Conservation District | $2.55 | $2.55 | $0.00 | $0.00 | $5.10 | $0.00 |
| 2025 | 26451 | NWA - Noxious Weed Assessment | $2.15 | $2.15 | $0.00 | $0.00 | $4.30 | $0.00 |
| 2025 | 26451 | OSS - On Site Septic | $21.50 | $21.50 | $0.00 | $0.00 | $43.00 | $0.00 |
| 2025 | 26451 | WAT - Clean Water District | $13.00 | $13.00 | $0.00 | $0.00 | $26.00 | $0.00 |
| 2025 | 26451 | TOTAL: | $690.93 | $690.88 | $0.00 | $0.00 | $1381.81 | $0.00 |
|
| 2025 | 26451 | $690.93 | $690.88 | $0.00 | $0.00 | $1381.81 | $0.00 |
Statement Details |
| 2024 | 26503 | STATE - STATE LEVY (SCHOOL) | $187.34 | $187.33 | $0.00 | $0.00 | $374.67 | $0.00 |
| 2024 | 26503 | COUNTY - COUNTY LEVIES (CE, DD, VET, MH) | $80.18 | $80.16 | $0.00 | $0.00 | $160.34 | $0.00 |
| 2024 | 26503 | CONSERVE - CONSERVATION FUTURES | $2.41 | $2.40 | $0.00 | $0.00 | $4.81 | $0.00 |
| 2024 | 26503 | COROADS - COUNTY ROADS (ROADS, DIV TO CE) | $64.51 | $64.50 | $0.00 | $0.00 | $129.01 | $0.00 |
| 2024 | 26503 | PORTPT - PORT DISTRICT | $33.11 | $33.11 | $0.00 | $0.00 | $66.22 | $0.00 |
| 2024 | 26503 | PUD1 - PUD #1 | $5.27 | $5.26 | $0.00 | $0.00 | $10.53 | $0.00 |
| 2024 | 26503 | LIB1 - LIBRARY DIST #1 | $24.96 | $24.95 | $0.00 | $0.00 | $49.91 | $0.00 |
| 2024 | 26503 | HD2 - HOSP DIST #2 | $4.68 | $4.67 | $0.00 | $0.00 | $9.35 | $0.00 |
| 2024 | 26503 | SD46 - SCHOOL DIST #46 | $56.24 | $56.24 | $0.00 | $0.00 | $112.48 | $0.00 |
| 2024 | 26503 | FD4 - FIRE DISTRICT #4 | $145.28 | $145.27 | $0.00 | $0.00 | $290.55 | $0.00 |
| 2024 | 26503 | EMS4 - FIRE DIST #4 EMS | $40.49 | $40.48 | $0.00 | $0.00 | $80.97 | $0.00 |
| 2024 | 26503 | CEM1 - CEMETERY DIST #1 | $0.95 | $0.94 | $0.00 | $0.00 | $1.89 | $0.00 |
| 2024 | 26503 | JCCD - JC Conservation District | $2.55 | $2.55 | $0.00 | $0.00 | $5.10 | $0.00 |
| 2024 | 26503 | NWA - Noxious Weed Assessment | $2.15 | $2.15 | $0.00 | $0.00 | $4.30 | $0.00 |
| 2024 | 26503 | OSS - On Site Septic | $21.00 | $21.00 | $0.00 | $0.00 | $42.00 | $0.00 |
| 2024 | 26503 | WAT - Clean Water District | $12.50 | $12.50 | $0.00 | $0.00 | $25.00 | $0.00 |
| 2024 | 26503 | TOTAL: | $683.62 | $683.51 | $0.00 | $0.00 | $1367.13 | $0.00 |
|
| 2024 | 26503 | $683.62 | $683.51 | $0.00 | $0.00 | $1367.13 | $0.00 |
Statement Details |
| 2023 | 26544 | STATE - STATE LEVY (SCHOOL) | $171.20 | $171.20 | $0.00 | $0.00 | $342.40 | $0.00 |
| 2023 | 26544 | COUNTY - COUNTY LEVIES (CE, DD, VET, MH) | $74.72 | $74.70 | $0.00 | $0.00 | $149.42 | $0.00 |
| 2023 | 26544 | CONSERVE - CONSERVATION FUTURES | $2.24 | $2.24 | $0.00 | $0.00 | $4.48 | $0.00 |
| 2023 | 26544 | COROADS - COUNTY ROADS (ROADS, DIV TO CE) | $60.44 | $60.44 | $0.00 | $0.00 | $120.88 | $0.00 |
| 2023 | 26544 | PORTPT - PORT DISTRICT | $31.48 | $31.46 | $0.00 | $0.00 | $62.94 | $0.00 |
| 2023 | 26544 | PUD1 - PUD #1 | $4.95 | $4.95 | $0.00 | $0.00 | $9.90 | $0.00 |
| 2023 | 26544 | LIB1 - LIBRARY DIST #1 | $23.39 | $23.38 | $0.00 | $0.00 | $46.77 | $0.00 |
| 2023 | 26544 | HD2 - HOSP DIST #2 | $4.37 | $4.35 | $0.00 | $0.00 | $8.72 | $0.00 |
| 2023 | 26544 | SD46 - SCHOOL DIST #46 | $55.88 | $55.87 | $0.00 | $0.00 | $111.75 | $0.00 |
| 2023 | 26544 | FD4 - FIRE DISTRICT #4 | $92.91 | $92.91 | $0.00 | $0.00 | $185.82 | $0.00 |
| 2023 | 26544 | EMS4 - FIRE DIST #4 EMS | $26.43 | $26.42 | $0.00 | $0.00 | $52.85 | $0.00 |
| 2023 | 26544 | CEM1 - CEMETERY DIST #1 | $0.94 | $0.93 | $0.00 | $0.00 | $1.87 | $0.00 |
| 2023 | 26544 | JCCD - JC Conservation District | $2.55 | $2.55 | $0.00 | $0.00 | $5.10 | $0.00 |
| 2023 | 26544 | NWA - Noxious Weed Assessment | $2.15 | $2.15 | $0.00 | $0.00 | $4.30 | $0.00 |
| 2023 | 26544 | OSS - On Site Septic | $20.50 | $20.50 | $0.00 | $0.00 | $41.00 | $0.00 |
| 2023 | 26544 | WAT - Clean Water District | $12.00 | $12.00 | $0.00 | $0.00 | $24.00 | $0.00 |
| 2023 | 26544 | TOTAL: | $586.15 | $586.05 | $0.00 | $0.00 | $1172.20 | $0.00 |
|
| 2023 | 26544 | $586.15 | $586.05 | $0.00 | $0.00 | $1172.20 | $0.00 |
Values
| (+) Improvement Homesite Value: | + | $132,188 | |
| (+) Improvement Non-Homesite Value: | + | $0 | |
| (+) Land Homesite Value: | + | $42,525 | |
| (+) Land Non-Homesite Value: | + | $0 | |
| (+) Curr Use (HS): | + | $0 | $0 |
| (+) Curr Use (NHS): | + | $0 | $0 |
| | | -------------------------- | |
| (=) Market Value: | = | $174,713 | |
| (–) Productivity Loss: | – | $0 | |
| | | -------------------------- | |
| (=) Subtotal: | = | $174,713 | |
| (+) Senior Appraised Value: | + | $0 | |
| (+) Non-Senior Appraised Value: | + | $174,713 | |
| | | -------------------------- | |
| (=) Total Appraised Value: | = | $174,713 | |
| (–) Senior Exemption Loss: | – | $0 | |
| (–) Exemption Loss: | – | $0 | |
| | | -------------------------- | |
| (=) Taxable Value: | = | $174,713 | |
Taxing Jurisdiction
| Owner: | FEDERAL HOME LOAN MORTGAGE CORP | | |
| % Ownership: | 100.0000000000% | | |
| Total Value: | $174,713 | | |
| Tax Area: | 0441 - 1-46F4E4H2C1L1P2 |
| CE | COUNTY CURRENT EXPENSE | 0.9034619479 | $174,713 | $174,713 | $157.85 | | |
| CNTYDD | DEVELOPMENTAL DISABILITIES | 0.0052121823 | $174,713 | $174,713 | $0.91 | | |
| CNTYVET | VETERANS RELIEF | 0.0052777810 | $174,713 | $174,713 | $0.92 | | |
| MENTAL | MENTAL HEALTH | 0.0052121823 | $174,713 | $174,713 | $0.91 | | |
| ROADS | COUNTY ROADS | 0.7415066410 | $174,713 | $174,713 | $129.55 | | |
| ROADSCU | COUNTY ROADS TO CUR EXP | 0.0000000000 | $174,713 | $174,713 | $0.00 | | |
| HOSP2CASH | HOSP DIST #2 GENERAL | 0.0536075306 | $174,713 | $174,713 | $9.37 | | |
| SCH46MO | SCHOOL DIST #46 EP & O | 0.6890207067 | $174,713 | $174,713 | $120.38 | | |
| CEM1 | CEMETERY DIST #1 GENERAL | 0.0107168292 | $174,713 | $174,713 | $1.87 | | |
| CONSERVE | CONSERVATION FUTURES | 0.0275621078 | $174,713 | $174,713 | $4.82 | | |
| EMS4 | FIRE DIST #4 EMS | 0.4644216158 | $174,713 | $174,713 | $81.14 | | |
| FD4 | FIRE DIST #4 GENERAL | 1.3939598390 | $174,713 | $174,713 | $243.54 | | |
| FD4BOND | FIRE DIST #4 BOND 2019 | 0.2748466981 | $174,713 | $174,713 | $48.02 | | |
| LIB1 | LIBRARY DIST #1 GENERAL | 0.2868827388 | $174,713 | $174,713 | $50.12 | | |
| PORTPT | PORT OF PT GENERAL | 0.1134941229 | $174,713 | $174,713 | $19.83 | | |
| PORTPTIDD | PORT OF PT IDD 2019 | 0.2577346692 | $174,713 | $174,713 | $45.03 | | |
| PUD1 | PUD #1 GENERAL | 0.0597888892 | $174,713 | $174,713 | $10.45 | | |
| STATE | STATE SCHOOL PART 1 | 1.4940692947 | $174,713 | $174,713 | $261.03 | | |
| STATE2 | STATE SCHOOL PART 2 | 0.8050170049 | $174,713 | $174,713 | $140.65 | | |
| | Total Tax Rate: | 7.5917927814 | | | | | |
| | | | | Taxes w/Current Exemptions: | $1,326.39 | | |
| | | | | Taxes w/o Exemptions: | $1,326.39 | | |
Improvement / Building
| Improvement #1: | Residential Bldg | State Code: | 11 | 1448.0 sqft | Value: | $132,188 |
| Bathrooms (#): | 1 (FULL) | Bathrooms (#): | 1 (HALF) | | Bedrooms (#): | 2 | Exterior Wall: | PL/T1 | | Fireplace: | WD ST-GOOD | Floor Construction: | FRAME | | Foundation: | CONPR | Heating/Cooling: | ELBB | | Inside Verify: | NO | Roof Cover: | METAL |
|
| | Type | Description | Class CD | Sub Class CD | Year Built | Area |
| | MA | Main Area | 2- | 15SF | 1968 | 1052.0 |
| | MA2 | Second Floor Main Area | 2- | 15SF | 1968 | 396.0 |
| | HWPOR | House Wood Porch | 1 | 15SF | 1968 | 40.0 |
| | HBAL | House Balcony | 1 | 15SF | 1968 | 64.0 |
| | HDECK | House Deck | 1 | 15SF | 1968 | 192.0 |
| | GBSMT | Basement Garage | 1 | 15SF | 1968 | 512.0 |
| | BSMTF | House basement finished | 1 | 15SF | 1968 | 176.0 |
| | BSMTU | House basement unfinished | 1 | 15SF | 1968 | 176.0 |
| | SHED | Shed (Table Not Dep) | 4 | * | 1968 | 64.0 |
Sketch
Property Image
Land
| 1 | 1250-1185L | | 0.0000 | 0.00 | 0.00 | 0.00 | 1.00 | $42,525 | $0 |
Roll Value History
| 2026 | N/A | N/A | N/A | N/A | N/A |
| 2025 | $132,188 | $42,525 | $0 | $174,713 | $174,713 |
| 2024 | $126,441 | $40,500 | $0 | $166,941 | $166,941 |
| 2023 | $126,441 | $35,500 | $0 | $161,941 | $161,941 |
| 2022 | $114,946 | $30,500 | $0 | $145,446 | $145,446 |
Deed and Sales History
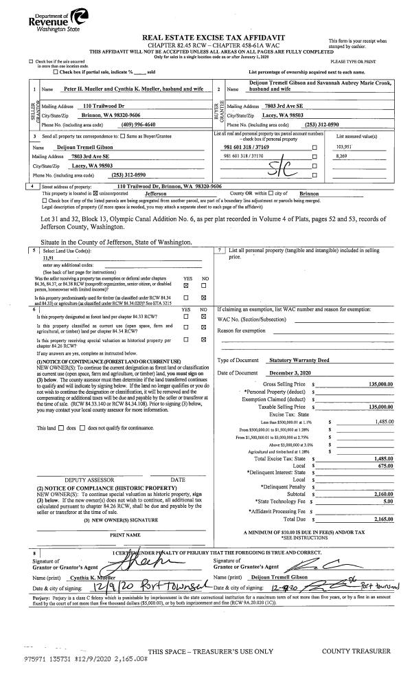
| 1 | 08/11/2025 | TRED | Trustee Deed | DEIJOUN TREMELL GIBSON | FEDERAL HOME LOAN MORTGAGE CORP | | | | 144740 | |
| 2 | 12/03/2020 | SWD | Statutory Warranty Deed | PETER H & CYNTHIA K MUELLER | DEIJOUN TREMELL GIBSON | | | $135,000.00 | 135731 | |
|   | |
| 3 | 06/06/2014 | REC | Real Estate Contract | MICHAEL A HAYES | PETER H & CYNTHIA K MUELLER | | | $99,900.00 | 121340 | |
|   | |
| 4 | 06/27/2005 | SWD | Statutory Warranty Deed | JOHNSTON, STAN/CANDY | HAYES, MICHAEL & SANDRA/PRUDEN | | | $41,500.00 | 104091 | 0 |
| 5 | 02/12/2004 | SWD | Statutory Warranty Deed | WASHINGTON STATE PATROL | JOHNSTON, STAN/CANDY | 0 | 0 | $0.00 | 99458 | 0 |
| 6 | 10/02/2002 | WD | Warranty Deed | GRESHAM, JAMES H | JOHNSON, RON P/TRACY L | 0 | 0 | $42,704.00 | 95846 | 0 |
|   | |
| 7 | 03/10/1999 | WD | Warranty Deed | SMITH, SHARON A | GRESHAM, JAMES H | 0 | 0 | $36,500.00 | 87332 | 0 |
|   | |
| 8 | 04/05/1995 | QCD | Quit Claim Deed | OLSEN, JAMES W | HUMPHRIES, JOH E/ELSIE V | 0 | 0 | $0.00 | 76641 | 0 |
| 9 | 03/10/1995 | QCD | Quit Claim Deed | HUMPHRIES, JOHN E/ALICE | HUMPHRIES, JOHN E/ELSIE V | 0 | 0 | $0.00 | 76436 | 0 |
Payout Agreement
| No payout information available.. |