Property
Account |
| Property ID: | 37219 | Abbreviated Legal Description: | OLYMPIC CANAL ADDITION 7 BLK 14 LOT 72 |
| Parcel # / Geo ID: | 981901412 | Agent Code: | |
| Type: | Real | | |
| Tax Area: | 0441 - 1-46F4E4H2C1L1P2 | Land Use Code | 18 |
| Open Space: | N | DFL | N |
| Historic Property: | N | Remodel Property: | N |
| Multi-Family Redevelopment: | N | | |
| Township: | 25N | Section: | 16 |
| Range: | 2W |
Location |
| Address: | 800 MOUNTAIN TRAIL RD BRINNON, WA 98320 | Mapsco: | 020/012 |
| Neighborhood: | OLYMPIC CANAL TRACTS | Map ID: | |
| Neighborhood CD: | 1250 |
Owner |
| Name: | KIRT E HANNEM JR & JILL K HANNEM | Owner ID: | 107758 |
| Mailing Address: | 600 ROSES LAKE DR MANSON, WA 98831-9082 | % Ownership: | 100.0000000000% |
| | | Exemptions: | |
Pay Tax Due
Select the appropriate checkbox next to the year to be paid. Multiple years may be selected.
*Convenience Fee not included
Taxes and Assessment Details
Property Tax Information as of
03/10/2026
Click on "Statement Details" to expand or collapse a tax statement.
* Please enter a valid date ** Please enter a valid date *
Statement Details |
| 2026 | 26432 | STATE - STATE LEVY (SCHOOL) | $43.46 | $43.45 | $0.00 | $0.00 | $0.00 | $86.91 |
| 2026 | 26432 | COUNTY - COUNTY LEVIES (CE, DD, VET, MH) | $17.38 | $17.37 | $0.00 | $0.00 | $0.00 | $34.75 |
| 2026 | 26432 | CONSERVE - CONSERVATION FUTURES | $0.52 | $0.52 | $0.00 | $0.00 | $0.00 | $1.04 |
| 2026 | 26432 | COROADS - COUNTY ROADS (ROADS, DIV TO CE) | $14.02 | $14.01 | $0.00 | $0.00 | $0.00 | $28.03 |
| 2026 | 26432 | PORTPT - PORT DISTRICT | $7.02 | $7.01 | $0.00 | $0.00 | $0.00 | $14.03 |
| 2026 | 26432 | PUD1 - PUD #1 | $1.13 | $1.13 | $0.00 | $0.00 | $0.00 | $2.26 |
| 2026 | 26432 | LIB1 - LIBRARY DIST #1 | $5.42 | $5.42 | $0.00 | $0.00 | $0.00 | $10.84 |
| 2026 | 26432 | HD2 - HOSP DIST #2 | $1.02 | $1.01 | $0.00 | $0.00 | $0.00 | $2.03 |
| 2026 | 26432 | SD46 - SCHOOL DIST #46 | $13.02 | $13.02 | $0.00 | $0.00 | $0.00 | $26.04 |
| 2026 | 26432 | FD4 - FIRE DISTRICT #4 | $31.55 | $31.53 | $0.00 | $0.00 | $0.00 | $63.08 |
| 2026 | 26432 | EMS4 - FIRE DIST #4 EMS | $8.78 | $8.78 | $0.00 | $0.00 | $0.00 | $17.56 |
| 2026 | 26432 | CEM1 - CEMETERY DIST #1 | $0.21 | $0.20 | $0.00 | $0.00 | $0.00 | $0.41 |
| 2026 | 26432 | FPLCA - DNR Landowner Contingency Assmt | $3.00 | $3.00 | $0.00 | $0.00 | $0.00 | $6.00 |
| 2026 | 26432 | JCCD - JC Conservation District | $2.53 | $2.53 | $0.00 | $0.00 | $0.00 | $5.06 |
| 2026 | 26432 | NWA - Noxious Weed Assessment | $2.98 | $2.97 | $0.00 | $0.00 | $0.00 | $5.95 |
| 2026 | 26432 | WAT - Clean Water District | $13.00 | $13.00 | $0.00 | $0.00 | $0.00 | $26.00 |
| 2026 | 26432 | TOTAL: | $165.04 | $164.95 | $0.00 | $0.00 | $0.00 | $329.99 |
|
| 2026 | 26432 | $165.04 | $164.95 | $0.00 | $0.00 | $0.00 | $329.99 |
Statement Details |
| 2025 | 26501 | STATE - STATE LEVY (SCHOOL) | $43.17 | $43.16 | $0.00 | $0.00 | $86.33 | $0.00 |
| 2025 | 26501 | COUNTY - COUNTY LEVIES (CE, DD, VET, MH) | $16.99 | $16.95 | $0.00 | $0.00 | $33.94 | $0.00 |
| 2025 | 26501 | CONSERVE - CONSERVATION FUTURES | $0.51 | $0.51 | $0.00 | $0.00 | $1.02 | $0.00 |
| 2025 | 26501 | COROADS - COUNTY ROADS (ROADS, DIV TO CE) | $13.60 | $13.60 | $0.00 | $0.00 | $27.20 | $0.00 |
| 2025 | 26501 | PORTPT - PORT DISTRICT | $6.93 | $6.92 | $0.00 | $0.00 | $13.85 | $0.00 |
| 2025 | 26501 | PUD1 - PUD #1 | $1.11 | $1.11 | $0.00 | $0.00 | $2.22 | $0.00 |
| 2025 | 26501 | LIB1 - LIBRARY DIST #1 | $5.26 | $5.26 | $0.00 | $0.00 | $10.52 | $0.00 |
| 2025 | 26501 | HD2 - HOSP DIST #2 | $0.99 | $0.99 | $0.00 | $0.00 | $1.98 | $0.00 |
| 2025 | 26501 | SD46 - SCHOOL DIST #46 | $11.41 | $11.41 | $0.00 | $0.00 | $22.82 | $0.00 |
| 2025 | 26501 | FD4 - FIRE DISTRICT #4 | $31.62 | $31.61 | $0.00 | $0.00 | $63.23 | $0.00 |
| 2025 | 26501 | EMS4 - FIRE DIST #4 EMS | $8.77 | $8.77 | $0.00 | $0.00 | $17.54 | $0.00 |
| 2025 | 26501 | CEM1 - CEMETERY DIST #1 | $0.21 | $0.20 | $0.00 | $0.00 | $0.41 | $0.00 |
| 2025 | 26501 | FPLCA - DNR Landowner Contingency Assmt | $3.00 | $3.00 | $0.00 | $0.00 | $6.00 | $0.00 |
| 2025 | 26501 | JCCD - JC Conservation District | $2.55 | $2.55 | $0.00 | $0.00 | $5.10 | $0.00 |
| 2025 | 26501 | NWA - Noxious Weed Assessment | $2.15 | $2.15 | $0.00 | $0.00 | $4.30 | $0.00 |
| 2025 | 26501 | WAT - Clean Water District | $13.00 | $13.00 | $0.00 | $0.00 | $26.00 | $0.00 |
| 2025 | 26501 | TOTAL: | $161.27 | $161.19 | $0.00 | $0.00 | $322.46 | $0.00 |
|
| 2025 | 26501 | $161.27 | $161.19 | $0.00 | $0.00 | $322.46 | $0.00 |
Statement Details |
| 2024 | 26553 | STATE - STATE LEVY (SCHOOL) | $35.29 | $35.28 | $0.00 | $0.00 | $70.57 | $0.00 |
| 2024 | 26553 | COUNTY - COUNTY LEVIES (CE, DD, VET, MH) | $15.11 | $15.08 | $0.00 | $0.00 | $30.19 | $0.00 |
| 2024 | 26553 | CONSERVE - CONSERVATION FUTURES | $0.46 | $0.45 | $0.00 | $0.00 | $0.91 | $0.00 |
| 2024 | 26553 | COROADS - COUNTY ROADS (ROADS, DIV TO CE) | $12.15 | $12.14 | $0.00 | $0.00 | $24.29 | $0.00 |
| 2024 | 26553 | PORTPT - PORT DISTRICT | $6.24 | $6.23 | $0.00 | $0.00 | $12.47 | $0.00 |
| 2024 | 26553 | PUD1 - PUD #1 | $0.99 | $0.99 | $0.00 | $0.00 | $1.98 | $0.00 |
| 2024 | 26553 | LIB1 - LIBRARY DIST #1 | $4.70 | $4.70 | $0.00 | $0.00 | $9.40 | $0.00 |
| 2024 | 26553 | HD2 - HOSP DIST #2 | $0.88 | $0.88 | $0.00 | $0.00 | $1.76 | $0.00 |
| 2024 | 26553 | SD46 - SCHOOL DIST #46 | $10.59 | $10.59 | $0.00 | $0.00 | $21.18 | $0.00 |
| 2024 | 26553 | FD4 - FIRE DISTRICT #4 | $27.37 | $27.35 | $0.00 | $0.00 | $54.72 | $0.00 |
| 2024 | 26553 | EMS4 - FIRE DIST #4 EMS | $7.63 | $7.62 | $0.00 | $0.00 | $15.25 | $0.00 |
| 2024 | 26553 | CEM1 - CEMETERY DIST #1 | $0.18 | $0.18 | $0.00 | $0.00 | $0.36 | $0.00 |
| 2024 | 26553 | FPLCA - DNR Landowner Contingency Assmt | $3.00 | $3.00 | $0.00 | $0.00 | $6.00 | $0.00 |
| 2024 | 26553 | JCCD - JC Conservation District | $2.55 | $2.55 | $0.00 | $0.00 | $5.10 | $0.00 |
| 2024 | 26553 | NWA - Noxious Weed Assessment | $2.15 | $2.15 | $0.00 | $0.00 | $4.30 | $0.00 |
| 2024 | 26553 | WAT - Clean Water District | $12.50 | $12.50 | $0.00 | $0.00 | $25.00 | $0.00 |
| 2024 | 26553 | TOTAL: | $141.79 | $141.69 | $0.00 | $0.00 | $283.48 | $0.00 |
|
| 2024 | 26553 | $141.79 | $141.69 | $0.00 | $0.00 | $283.48 | $0.00 |
Statement Details |
| 2023 | 26594 | STATE - STATE LEVY (SCHOOL) | $32.37 | $32.37 | $0.00 | $0.00 | $64.74 | $0.00 |
| 2023 | 26594 | COUNTY - COUNTY LEVIES (CE, DD, VET, MH) | $14.13 | $14.12 | $0.00 | $0.00 | $28.25 | $0.00 |
| 2023 | 26594 | CONSERVE - CONSERVATION FUTURES | $0.43 | $0.42 | $0.00 | $0.00 | $0.85 | $0.00 |
| 2023 | 26594 | COROADS - COUNTY ROADS (ROADS, DIV TO CE) | $11.43 | $11.42 | $0.00 | $0.00 | $22.85 | $0.00 |
| 2023 | 26594 | PORTPT - PORT DISTRICT | $5.96 | $5.94 | $0.00 | $0.00 | $11.90 | $0.00 |
| 2023 | 26594 | PUD1 - PUD #1 | $0.94 | $0.93 | $0.00 | $0.00 | $1.87 | $0.00 |
| 2023 | 26594 | LIB1 - LIBRARY DIST #1 | $4.42 | $4.42 | $0.00 | $0.00 | $8.84 | $0.00 |
| 2023 | 26594 | HD2 - HOSP DIST #2 | $0.83 | $0.82 | $0.00 | $0.00 | $1.65 | $0.00 |
| 2023 | 26594 | SD46 - SCHOOL DIST #46 | $10.57 | $10.56 | $0.00 | $0.00 | $21.13 | $0.00 |
| 2023 | 26594 | FD4 - FIRE DISTRICT #4 | $17.58 | $17.56 | $0.00 | $0.00 | $35.14 | $0.00 |
| 2023 | 26594 | EMS4 - FIRE DIST #4 EMS | $5.00 | $4.99 | $0.00 | $0.00 | $9.99 | $0.00 |
| 2023 | 26594 | CEM1 - CEMETERY DIST #1 | $0.18 | $0.17 | $0.00 | $0.00 | $0.35 | $0.00 |
| 2023 | 26594 | FP - DNR Forest Fire Protection Assmt | $8.50 | $8.50 | $0.00 | $0.00 | $17.00 | $0.00 |
| 2023 | 26594 | FPLCA - DNR Landowner Contingency Assmt | $3.00 | $3.00 | $0.00 | $0.00 | $6.00 | $0.00 |
| 2023 | 26594 | JCCD - JC Conservation District | $2.55 | $2.55 | $0.00 | $0.00 | $5.10 | $0.00 |
| 2023 | 26594 | NWA - Noxious Weed Assessment | $2.15 | $2.15 | $0.00 | $0.00 | $4.30 | $0.00 |
| 2023 | 26594 | WAT - Clean Water District | $12.00 | $12.00 | $0.00 | $0.00 | $24.00 | $0.00 |
| 2023 | 26594 | FP ADMIN - FP ADMIN | $0.50 | $0.00 | $0.00 | $0.00 | $0.50 | $0.00 |
| 2023 | 26594 | TOTAL: | $132.54 | $131.92 | $0.00 | $0.00 | $264.46 | $0.00 |
|
| 2023 | 26594 | $132.54 | $131.92 | $0.00 | $0.00 | $264.46 | $0.00 |
Values
| (+) Improvement Homesite Value: | + | $0 | |
| (+) Improvement Non-Homesite Value: | + | $0 | |
| (+) Land Homesite Value: | + | $0 | |
| (+) Land Non-Homesite Value: | + | $37,800 | |
| (+) Curr Use (HS): | + | $0 | $0 |
| (+) Curr Use (NHS): | + | $0 | $0 |
| | | -------------------------- | |
| (=) Market Value: | = | $37,800 | |
| (–) Productivity Loss: | – | $0 | |
| | | -------------------------- | |
| (=) Subtotal: | = | $37,800 | |
| (+) Senior Appraised Value: | + | $0 | |
| (+) Non-Senior Appraised Value: | + | $37,800 | |
| | | -------------------------- | |
| (=) Total Appraised Value: | = | $37,800 | |
| (–) Senior Exemption Loss: | – | $0 | |
| (–) Exemption Loss: | – | $0 | |
| | | -------------------------- | |
| (=) Taxable Value: | = | $37,800 | |
Taxing Jurisdiction
| Owner: | KIRT E HANNEM JR & JILL K HANNEM | | |
| % Ownership: | 100.0000000000% | | |
| Total Value: | $37,800 | | |
| Tax Area: | 0441 - 1-46F4E4H2C1L1P2 |
| CE | COUNTY CURRENT EXPENSE | 0.9034619479 | $37,800 | $37,800 | $34.15 | | |
| CNTYDD | DEVELOPMENTAL DISABILITIES | 0.0052121823 | $37,800 | $37,800 | $0.20 | | |
| CNTYVET | VETERANS RELIEF | 0.0052777810 | $37,800 | $37,800 | $0.20 | | |
| MENTAL | MENTAL HEALTH | 0.0052121823 | $37,800 | $37,800 | $0.20 | | |
| ROADS | COUNTY ROADS | 0.7415066410 | $37,800 | $37,800 | $28.03 | | |
| ROADSCU | COUNTY ROADS TO CUR EXP | 0.0000000000 | $37,800 | $37,800 | $0.00 | | |
| HOSP2CASH | HOSP DIST #2 GENERAL | 0.0536075306 | $37,800 | $37,800 | $2.03 | | |
| SCH46MO | SCHOOL DIST #46 EP & O | 0.6890207067 | $37,800 | $37,800 | $26.04 | | |
| CEM1 | CEMETERY DIST #1 GENERAL | 0.0107168292 | $37,800 | $37,800 | $0.41 | | |
| CONSERVE | CONSERVATION FUTURES | 0.0275621078 | $37,800 | $37,800 | $1.04 | | |
| EMS4 | FIRE DIST #4 EMS | 0.4644216158 | $37,800 | $37,800 | $17.56 | | |
| FD4 | FIRE DIST #4 GENERAL | 1.3939598390 | $37,800 | $37,800 | $52.69 | | |
| FD4BOND | FIRE DIST #4 BOND 2019 | 0.2748466981 | $37,800 | $37,800 | $10.39 | | |
| LIB1 | LIBRARY DIST #1 GENERAL | 0.2868827388 | $37,800 | $37,800 | $10.84 | | |
| PORTPT | PORT OF PT GENERAL | 0.1134941229 | $37,800 | $37,800 | $4.29 | | |
| PORTPTIDD | PORT OF PT IDD 2019 | 0.2577346692 | $37,800 | $37,800 | $9.74 | | |
| PUD1 | PUD #1 GENERAL | 0.0597888892 | $37,800 | $37,800 | $2.26 | | |
| STATE | STATE SCHOOL PART 1 | 1.4940692947 | $37,800 | $37,800 | $56.48 | | |
| STATE2 | STATE SCHOOL PART 2 | 0.8050170049 | $37,800 | $37,800 | $30.43 | | |
| | Total Tax Rate: | 7.5917927814 | | | | | |
| | | | | Taxes w/Current Exemptions: | $286.98 | | |
| | | | | Taxes w/o Exemptions: | $286.98 | | |
Improvement / Building
Sketch
| No sketches available for this property. |
Property Image
Land
| 1 | 1250-1185L | | 0.0000 | 0.00 | 0.00 | 0.00 | 1.00 | $37,800 | $0 |
Roll Value History
| 2026 | N/A | N/A | N/A | N/A | N/A |
| 2025 | $0 | $37,800 | $0 | $37,800 | $37,800 |
| 2024 | $0 | $36,000 | $0 | $36,000 | $36,000 |
| 2023 | $0 | $30,500 | $0 | $30,500 | $30,500 |
| 2022 | $0 | $27,500 | $0 | $27,500 | $27,500 |
Deed and Sales History
| 1 | 10/20/2023 | SWD | Statutory Warranty Deed | DOUG & BARBARA BUTTON | KIRT E HANNEM JR & JILL K HANNEM | | | $100,000.00 | 141763 | |
|   | |
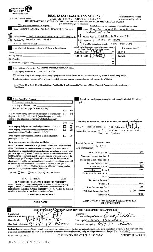
| 2 | 08/14/2017 | QCD | Quit Claim Deed | ROBERT LEITZ | DOUG & BARBARA BUTTON | | | | 128318 | |
| 3 | 04/30/2007 | QCD | Quit Claim Deed | LEITZ, DAVID R | LEITZ, ROBERT | | | $0.00 | 109427 | 0 |
| 4 | 07/13/2004 | REC | Real Estate Contract | OWENSBY, MARK ET AL | LEITZ, DAVID R | 0 | 0 | $30,000.00 | 100860 | 0 |
|   | |
| 5 | 11/13/2001 | QCD | Quit Claim Deed | OWENSBY, BEEBEE I | OWENSBY, MARK A, BEEBEE I, BRE | 0 | 0 | $0.00 | 93474 | 0 |
| 6 | 10/25/2001 | SWD | Statutory Warranty Deed | STEVENS, ROBERT N/MARY L | OWENSBY, BEEBEE | 0 | 0 | $23,000.00 | 93398 | 0 |
|   | |
Payout Agreement
| No payout information available.. |