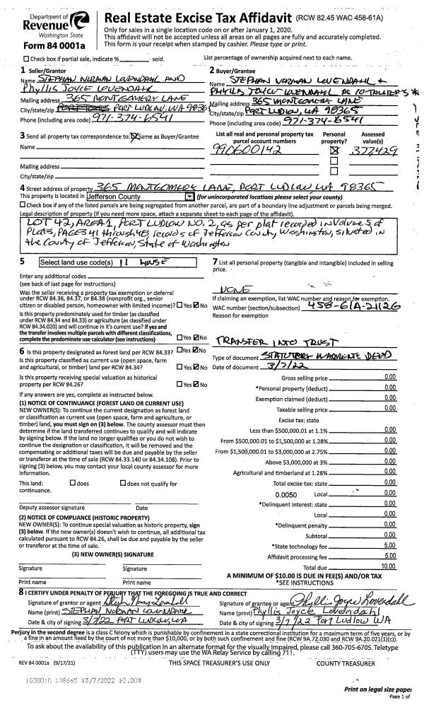
Property
Account |
| Property ID: | 37228 | Abbreviated Legal Description: | OLYMPIC CANAL ADDITION 7 BLK 14 LOT 82 TGTH/EASE |
| Parcel # / Geo ID: | 981901421 | Agent Code: | |
| Type: | Real | | |
| Tax Area: | 0441 - 1-46F4E4H2C1L1P2 | Land Use Code | 19 |
| Open Space: | N | DFL | N |
| Historic Property: | N | Remodel Property: | N |
| Multi-Family Redevelopment: | N | | |
| Township: | 25N | Section: | 16 |
| Range: | 2W |
Location |
| Address: | 32 CLIFFLINE CT BRINNON, WA 98320 | Mapsco: | 020/022 |
| Neighborhood: | OLYMPIC CANAL TRACTS | Map ID: | |
| Neighborhood CD: | 1250 |
Owner |
| Name: | JEFFERY J MALMGREN | Owner ID: | 99126 |
| Mailing Address: | 32 CLIFFLINE CT BRINNON, WA 98320-9662 | % Ownership: | 100.0000000000% |
| | | Exemptions: | |
Pay Tax Due
Select the appropriate checkbox next to the year to be paid. Multiple years may be selected.
*Convenience Fee not included
Taxes and Assessment Details
Property Tax Information as of
03/10/2026
Click on "Statement Details" to expand or collapse a tax statement.
* Please enter a valid date ** Please enter a valid date *
Statement Details |
| 2026 | 26441 | STATE - STATE LEVY (SCHOOL) | $39.10 | $39.09 | $0.00 | $0.00 | $0.00 | $78.19 |
| 2026 | 26441 | COUNTY - COUNTY LEVIES (CE, DD, VET, MH) | $15.63 | $15.63 | $0.00 | $0.00 | $0.00 | $31.26 |
| 2026 | 26441 | CONSERVE - CONSERVATION FUTURES | $0.47 | $0.47 | $0.00 | $0.00 | $0.00 | $0.94 |
| 2026 | 26441 | COROADS - COUNTY ROADS (ROADS, DIV TO CE) | $12.61 | $12.61 | $0.00 | $0.00 | $0.00 | $25.22 |
| 2026 | 26441 | PORTPT - PORT DISTRICT | $6.31 | $6.31 | $0.00 | $0.00 | $0.00 | $12.62 |
| 2026 | 26441 | PUD1 - PUD #1 | $1.02 | $1.01 | $0.00 | $0.00 | $0.00 | $2.03 |
| 2026 | 26441 | LIB1 - LIBRARY DIST #1 | $4.88 | $4.88 | $0.00 | $0.00 | $0.00 | $9.76 |
| 2026 | 26441 | HD2 - HOSP DIST #2 | $0.91 | $0.91 | $0.00 | $0.00 | $0.00 | $1.82 |
| 2026 | 26441 | SD46 - SCHOOL DIST #46 | $11.72 | $11.71 | $0.00 | $0.00 | $0.00 | $23.43 |
| 2026 | 26441 | FD4 - FIRE DISTRICT #4 | $28.38 | $28.37 | $0.00 | $0.00 | $0.00 | $56.75 |
| 2026 | 26441 | EMS4 - FIRE DIST #4 EMS | $7.90 | $7.89 | $0.00 | $0.00 | $0.00 | $15.79 |
| 2026 | 26441 | CEM1 - CEMETERY DIST #1 | $0.18 | $0.18 | $0.00 | $0.00 | $0.00 | $0.36 |
| 2026 | 26441 | FPLCA - DNR Landowner Contingency Assmt | $3.00 | $3.00 | $0.00 | $0.00 | $0.00 | $6.00 |
| 2026 | 26441 | JCCD - JC Conservation District | $2.55 | $2.55 | $0.00 | $0.00 | $0.00 | $5.10 |
| 2026 | 26441 | NWA - Noxious Weed Assessment | $2.98 | $2.97 | $0.00 | $0.00 | $0.00 | $5.95 |
| 2026 | 26441 | OSS - On Site Septic | $23.10 | $23.10 | $0.00 | $0.00 | $0.00 | $46.20 |
| 2026 | 26441 | WAT - Clean Water District | $13.00 | $13.00 | $0.00 | $0.00 | $0.00 | $26.00 |
| 2026 | 26441 | TOTAL: | $173.74 | $173.68 | $0.00 | $0.00 | $0.00 | $347.42 |
|
| 2026 | 26441 | $173.74 | $173.68 | $0.00 | $0.00 | $0.00 | $347.42 |
Statement Details |
| 2025 | 26510 | STATE - STATE LEVY (SCHOOL) | $38.87 | $38.87 | $0.00 | $0.00 | $77.74 | $0.00 |
| 2025 | 26510 | COUNTY - COUNTY LEVIES (CE, DD, VET, MH) | $15.30 | $15.27 | $0.00 | $0.00 | $30.57 | $0.00 |
| 2025 | 26510 | CONSERVE - CONSERVATION FUTURES | $0.46 | $0.46 | $0.00 | $0.00 | $0.92 | $0.00 |
| 2025 | 26510 | COROADS - COUNTY ROADS (ROADS, DIV TO CE) | $12.25 | $12.24 | $0.00 | $0.00 | $24.49 | $0.00 |
| 2025 | 26510 | PORTPT - PORT DISTRICT | $6.24 | $6.23 | $0.00 | $0.00 | $12.47 | $0.00 |
| 2025 | 26510 | PUD1 - PUD #1 | $1.00 | $1.00 | $0.00 | $0.00 | $2.00 | $0.00 |
| 2025 | 26510 | LIB1 - LIBRARY DIST #1 | $4.74 | $4.74 | $0.00 | $0.00 | $9.48 | $0.00 |
| 2025 | 26510 | HD2 - HOSP DIST #2 | $0.89 | $0.89 | $0.00 | $0.00 | $1.78 | $0.00 |
| 2025 | 26510 | SD46 - SCHOOL DIST #46 | $10.28 | $10.27 | $0.00 | $0.00 | $20.55 | $0.00 |
| 2025 | 26510 | FD4 - FIRE DISTRICT #4 | $28.48 | $28.47 | $0.00 | $0.00 | $56.95 | $0.00 |
| 2025 | 26510 | EMS4 - FIRE DIST #4 EMS | $7.90 | $7.90 | $0.00 | $0.00 | $15.80 | $0.00 |
| 2025 | 26510 | CEM1 - CEMETERY DIST #1 | $0.19 | $0.18 | $0.00 | $0.00 | $0.37 | $0.00 |
| 2025 | 26510 | FPLCA - DNR Landowner Contingency Assmt | $3.00 | $3.00 | $0.00 | $0.00 | $6.00 | $0.00 |
| 2025 | 26510 | JCCD - JC Conservation District | $2.55 | $2.55 | $0.00 | $0.00 | $5.10 | $0.00 |
| 2025 | 26510 | NWA - Noxious Weed Assessment | $2.15 | $2.15 | $0.00 | $0.00 | $4.30 | $0.00 |
| 2025 | 26510 | OSS - On Site Septic | $21.50 | $21.50 | $0.00 | $0.00 | $43.00 | $0.00 |
| 2025 | 26510 | WAT - Clean Water District | $13.00 | $13.00 | $0.00 | $0.00 | $26.00 | $0.00 |
| 2025 | 26510 | TOTAL: | $168.80 | $168.72 | $0.00 | $0.00 | $337.52 | $0.00 |
|
| 2025 | 26510 | $168.80 | $168.72 | $0.00 | $0.00 | $337.52 | $0.00 |
Statement Details |
| 2024 | 26562 | STATE - STATE LEVY (SCHOOL) | $37.51 | $37.50 | $0.00 | $0.00 | $75.01 | $0.00 |
| 2024 | 26562 | COUNTY - COUNTY LEVIES (CE, DD, VET, MH) | $16.05 | $16.04 | $0.00 | $0.00 | $32.09 | $0.00 |
| 2024 | 26562 | CONSERVE - CONSERVATION FUTURES | $0.48 | $0.48 | $0.00 | $0.00 | $0.96 | $0.00 |
| 2024 | 26562 | COROADS - COUNTY ROADS (ROADS, DIV TO CE) | $12.92 | $12.91 | $0.00 | $0.00 | $25.83 | $0.00 |
| 2024 | 26562 | PORTPT - PORT DISTRICT | $6.63 | $6.62 | $0.00 | $0.00 | $13.25 | $0.00 |
| 2024 | 26562 | PUD1 - PUD #1 | $1.06 | $1.05 | $0.00 | $0.00 | $2.11 | $0.00 |
| 2024 | 26562 | LIB1 - LIBRARY DIST #1 | $5.00 | $4.99 | $0.00 | $0.00 | $9.99 | $0.00 |
| 2024 | 26562 | HD2 - HOSP DIST #2 | $0.94 | $0.93 | $0.00 | $0.00 | $1.87 | $0.00 |
| 2024 | 26562 | SD46 - SCHOOL DIST #46 | $11.26 | $11.26 | $0.00 | $0.00 | $22.52 | $0.00 |
| 2024 | 26562 | FD4 - FIRE DISTRICT #4 | $29.09 | $29.08 | $0.00 | $0.00 | $58.17 | $0.00 |
| 2024 | 26562 | EMS4 - FIRE DIST #4 EMS | $8.11 | $8.10 | $0.00 | $0.00 | $16.21 | $0.00 |
| 2024 | 26562 | CEM1 - CEMETERY DIST #1 | $0.19 | $0.19 | $0.00 | $0.00 | $0.38 | $0.00 |
| 2024 | 26562 | FPLCA - DNR Landowner Contingency Assmt | $3.00 | $3.00 | $0.00 | $0.00 | $6.00 | $0.00 |
| 2024 | 26562 | JCCD - JC Conservation District | $2.55 | $2.55 | $0.00 | $0.00 | $5.10 | $0.00 |
| 2024 | 26562 | NWA - Noxious Weed Assessment | $2.15 | $2.15 | $0.00 | $0.00 | $4.30 | $0.00 |
| 2024 | 26562 | OSS - On Site Septic | $21.00 | $21.00 | $0.00 | $0.00 | $42.00 | $0.00 |
| 2024 | 26562 | WAT - Clean Water District | $12.50 | $12.50 | $0.00 | $0.00 | $25.00 | $0.00 |
| 2024 | 26562 | TOTAL: | $170.44 | $170.35 | $0.00 | $0.00 | $340.79 | $0.00 |
|
| 2024 | 26562 | $170.44 | $170.35 | $0.00 | $0.00 | $340.79 | $0.00 |
Statement Details |
| 2023 | 26603 | STATE - STATE LEVY (SCHOOL) | $36.19 | $36.19 | $0.00 | $0.00 | $72.38 | $0.00 |
| 2023 | 26603 | COUNTY - COUNTY LEVIES (CE, DD, VET, MH) | $15.79 | $15.79 | $0.00 | $0.00 | $31.58 | $0.00 |
| 2023 | 26603 | CONSERVE - CONSERVATION FUTURES | $0.48 | $0.47 | $0.00 | $0.00 | $0.95 | $0.00 |
| 2023 | 26603 | COROADS - COUNTY ROADS (ROADS, DIV TO CE) | $12.78 | $12.77 | $0.00 | $0.00 | $25.55 | $0.00 |
| 2023 | 26603 | PORTPT - PORT DISTRICT | $6.66 | $6.65 | $0.00 | $0.00 | $13.31 | $0.00 |
| 2023 | 26603 | PUD1 - PUD #1 | $1.05 | $1.04 | $0.00 | $0.00 | $2.09 | $0.00 |
| 2023 | 26603 | LIB1 - LIBRARY DIST #1 | $4.95 | $4.94 | $0.00 | $0.00 | $9.89 | $0.00 |
| 2023 | 26603 | HD2 - HOSP DIST #2 | $0.93 | $0.92 | $0.00 | $0.00 | $1.85 | $0.00 |
| 2023 | 26603 | SD46 - SCHOOL DIST #46 | $11.81 | $11.81 | $0.00 | $0.00 | $23.62 | $0.00 |
| 2023 | 26603 | FD4 - FIRE DISTRICT #4 | $19.65 | $19.64 | $0.00 | $0.00 | $39.29 | $0.00 |
| 2023 | 26603 | EMS4 - FIRE DIST #4 EMS | $5.59 | $5.58 | $0.00 | $0.00 | $11.17 | $0.00 |
| 2023 | 26603 | CEM1 - CEMETERY DIST #1 | $0.20 | $0.20 | $0.00 | $0.00 | $0.40 | $0.00 |
| 2023 | 26603 | FPLCA - DNR Landowner Contingency Assmt | $3.00 | $3.00 | $0.00 | $0.00 | $6.00 | $0.00 |
| 2023 | 26603 | JCCD - JC Conservation District | $2.55 | $2.55 | $0.00 | $0.00 | $5.10 | $0.00 |
| 2023 | 26603 | NWA - Noxious Weed Assessment | $2.15 | $2.15 | $0.00 | $0.00 | $4.30 | $0.00 |
| 2023 | 26603 | OSS - On Site Septic | $20.50 | $20.50 | $0.00 | $0.00 | $41.00 | $0.00 |
| 2023 | 26603 | WAT - Clean Water District | $12.00 | $12.00 | $0.00 | $0.00 | $24.00 | $0.00 |
| 2023 | 26603 | TOTAL: | $156.28 | $156.20 | $0.00 | $0.00 | $312.48 | $0.00 |
|
| 2023 | 26603 | $156.28 | $156.20 | $0.00 | $0.00 | $312.48 | $0.00 |
Values
| (+) Improvement Homesite Value: | + | $0 | |
| (+) Improvement Non-Homesite Value: | + | $7,757 | |
| (+) Land Homesite Value: | + | $0 | |
| (+) Land Non-Homesite Value: | + | $26,250 | |
| (+) Curr Use (HS): | + | $0 | $0 |
| (+) Curr Use (NHS): | + | $0 | $0 |
| | | -------------------------- | |
| (=) Market Value: | = | $34,007 | |
| (–) Productivity Loss: | – | $0 | |
| | | -------------------------- | |
| (=) Subtotal: | = | $34,007 | |
| (+) Senior Appraised Value: | + | $0 | |
| (+) Non-Senior Appraised Value: | + | $34,007 | |
| | | -------------------------- | |
| (=) Total Appraised Value: | = | $34,007 | |
| (–) Senior Exemption Loss: | – | $0 | |
| (–) Exemption Loss: | – | $0 | |
| | | -------------------------- | |
| (=) Taxable Value: | = | $34,007 | |
Taxing Jurisdiction
| Owner: | JEFFERY J MALMGREN | | |
| % Ownership: | 100.0000000000% | | |
| Total Value: | $34,007 | | |
| Tax Area: | 0441 - 1-46F4E4H2C1L1P2 |
| CE | COUNTY CURRENT EXPENSE | 0.9034619479 | $34,007 | $34,007 | $30.72 | | |
| CNTYDD | DEVELOPMENTAL DISABILITIES | 0.0052121823 | $34,007 | $34,007 | $0.18 | | |
| CNTYVET | VETERANS RELIEF | 0.0052777810 | $34,007 | $34,007 | $0.18 | | |
| MENTAL | MENTAL HEALTH | 0.0052121823 | $34,007 | $34,007 | $0.18 | | |
| ROADS | COUNTY ROADS | 0.7415066410 | $34,007 | $34,007 | $25.22 | | |
| ROADSCU | COUNTY ROADS TO CUR EXP | 0.0000000000 | $34,007 | $34,007 | $0.00 | | |
| HOSP2CASH | HOSP DIST #2 GENERAL | 0.0536075306 | $34,007 | $34,007 | $1.82 | | |
| SCH46MO | SCHOOL DIST #46 EP & O | 0.6890207067 | $34,007 | $34,007 | $23.43 | | |
| CEM1 | CEMETERY DIST #1 GENERAL | 0.0107168292 | $34,007 | $34,007 | $0.36 | | |
| CONSERVE | CONSERVATION FUTURES | 0.0275621078 | $34,007 | $34,007 | $0.94 | | |
| EMS4 | FIRE DIST #4 EMS | 0.4644216158 | $34,007 | $34,007 | $15.79 | | |
| FD4 | FIRE DIST #4 GENERAL | 1.3939598390 | $34,007 | $34,007 | $47.40 | | |
| FD4BOND | FIRE DIST #4 BOND 2019 | 0.2748466981 | $34,007 | $34,007 | $9.35 | | |
| LIB1 | LIBRARY DIST #1 GENERAL | 0.2868827388 | $34,007 | $34,007 | $9.76 | | |
| PORTPT | PORT OF PT GENERAL | 0.1134941229 | $34,007 | $34,007 | $3.86 | | |
| PORTPTIDD | PORT OF PT IDD 2019 | 0.2577346692 | $34,007 | $34,007 | $8.76 | | |
| PUD1 | PUD #1 GENERAL | 0.0597888892 | $34,007 | $34,007 | $2.03 | | |
| STATE | STATE SCHOOL PART 1 | 1.4940692947 | $34,007 | $34,007 | $50.81 | | |
| STATE2 | STATE SCHOOL PART 2 | 0.8050170049 | $34,007 | $34,007 | $27.38 | | |
| | Total Tax Rate: | 7.5917927814 | | | | | |
| | | | | Taxes w/Current Exemptions: | $258.17 | | |
| | | | | Taxes w/o Exemptions: | $258.17 | | |
Improvement / Building
| Improvement #1: | Residential Bldg | State Code: | 19 | 372.0 sqft | Value: | $7,757 |
| Bathrooms (#): | 1 (FULL) | Bedrooms (#): | 1 | | Exterior Wall: | PL/T1 | Floor Construction: | FRAME | | Foundation: | PO&BL | Heating/Cooling: | WD/NO | | Inside Verify: | NO | Interior Finish: | FIN | | Roof Cover: | COMP |   |   |
|
| | Type | Description | Class CD | Sub Class CD | Year Built | Area |
| | MA | Main Area | 2+ | C1S | 0 | 372.0 |
| | CRPO | Cabin Roof Porch | 3 | * | 0 | 33.0 |
Sketch
Property Image
Land
| 1 | 1250-1116L | | 0.0000 | 0.00 | 0.00 | 0.00 | 1.00 | $26,250 | $0 |
Roll Value History
| 2026 | N/A | N/A | N/A | N/A | N/A |
| 2025 | $7,757 | $26,250 | $0 | $34,007 | $34,007 |
| 2024 | $7,420 | $25,000 | $0 | $32,420 | $32,420 |
| 2023 | $7,420 | $25,000 | $0 | $32,420 | $32,420 |
| 2022 | $6,745 | $24,000 | $0 | $30,745 | $30,745 |
Deed and Sales History
| 1 | 07/02/2025 | QCD | Quit Claim Deed | JEFFERY J MALMGREN | JEFFERY J MALMGREN | | | | 144524 | |
| 2 | 03/13/2022 | QCD | Quit Claim Deed | JEFFERY J MALMGREN | JEFFERY J MALMGREN | | | | 138702 | |
| 3 | 04/23/2018 | SWD | Statutory Warranty Deed | GREGG H DEBORAH L ZANFINO | JEFFERY J MALMGREN | | | $139,000.00 | 130019 | |
|   | |
| 4 | 08/03/2016 | SWD | Statutory Warranty Deed | JAMES GREEN | GREGG H DEBORAH L ZANFINO | | | $145,000.00 | 126046 | |
|   | |
| 5 | 06/15/2010 | SWD | Statutory Warranty Deed | ENGLAND, MARVIN G/MARGARE | GREEN, JAMES | | | $160,000.00 | 114529 | 0 |
| 6 | 04/01/2005 | EASE | Assignment of Easement | GREEN CROW A WASHINGTON C | ENGLAND, MARVIN/MARGARET | | | $1,000.00 | 103264 | 0 |
| 7 | 06/02/1997 | QCD | Quit Claim Deed | ENGLAND, MARVIN G | ENGLAND, MARVIN G/MARGARET M | 0 | 0 | $0.00 | 82136 | 0 |
Payout Agreement
| No payout information available.. |