Property
Account |
| Property ID: | 37266 | Abbreviated Legal Description: | OLYMPIC CANAL ADDITION 7 BLK 15 LOT 42 |
| Parcel # / Geo ID: | 981901526 | Agent Code: | |
| Type: | Real | | |
| Tax Area: | 0441 - 1-46F4E4H2C1L1P2 | Land Use Code | 91 |
| Open Space: | N | DFL | N |
| Historic Property: | N | Remodel Property: | N |
| Multi-Family Redevelopment: | N | | |
| Township: | 25N | Section: | 16 |
| Range: | 2W |
Location |
| Address: | | Mapsco: | 021/013 |
| Neighborhood: | OLYMPIC CANAL TRACTS | Map ID: | |
| Neighborhood CD: | 1250 |
Owner |
| Name: | MARC R UELTSCHI | Owner ID: | 29361 |
| Mailing Address: | AMANDA M UELTSCHI PO BOX 877 BATTLE GROUND, WA 98604-0877 | % Ownership: | 100.0000000000% |
| | | Exemptions: | |
Pay Tax Due
Select the appropriate checkbox next to the year to be paid. Multiple years may be selected.
*Convenience Fee not included
Taxes and Assessment Details
Property Tax Information as of
03/11/2026
Click on "Statement Details" to expand or collapse a tax statement.
* Please enter a valid date ** Please enter a valid date *
Statement Details |
| 2026 | 26479 | STATE - STATE LEVY (SCHOOL) | $11.83 | $11.82 | $0.00 | $0.00 | $0.00 | $23.65 |
| 2026 | 26479 | COUNTY - COUNTY LEVIES (CE, DD, VET, MH) | $4.74 | $4.71 | $0.00 | $0.00 | $0.00 | $9.45 |
| 2026 | 26479 | CONSERVE - CONSERVATION FUTURES | $0.14 | $0.14 | $0.00 | $0.00 | $0.00 | $0.28 |
| 2026 | 26479 | COROADS - COUNTY ROADS (ROADS, DIV TO CE) | $3.82 | $3.81 | $0.00 | $0.00 | $0.00 | $7.63 |
| 2026 | 26479 | PORTPT - PORT DISTRICT | $1.92 | $1.90 | $0.00 | $0.00 | $0.00 | $3.82 |
| 2026 | 26479 | PUD1 - PUD #1 | $0.31 | $0.31 | $0.00 | $0.00 | $0.00 | $0.62 |
| 2026 | 26479 | LIB1 - LIBRARY DIST #1 | $1.48 | $1.47 | $0.00 | $0.00 | $0.00 | $2.95 |
| 2026 | 26479 | HD2 - HOSP DIST #2 | $0.28 | $0.27 | $0.00 | $0.00 | $0.00 | $0.55 |
| 2026 | 26479 | SD46 - SCHOOL DIST #46 | $3.55 | $3.54 | $0.00 | $0.00 | $0.00 | $7.09 |
| 2026 | 26479 | FD4 - FIRE DISTRICT #4 | $8.59 | $8.58 | $0.00 | $0.00 | $0.00 | $17.17 |
| 2026 | 26479 | EMS4 - FIRE DIST #4 EMS | $2.39 | $2.39 | $0.00 | $0.00 | $0.00 | $4.78 |
| 2026 | 26479 | CEM1 - CEMETERY DIST #1 | $0.06 | $0.05 | $0.00 | $0.00 | $0.00 | $0.11 |
| 2026 | 26479 | FPLCA - DNR Landowner Contingency Assmt | $3.00 | $3.00 | $0.00 | $0.00 | $0.00 | $6.00 |
| 2026 | 26479 | JCCD - JC Conservation District | $2.53 | $2.53 | $0.00 | $0.00 | $0.00 | $5.06 |
| 2026 | 26479 | NWA - Noxious Weed Assessment | $2.98 | $2.97 | $0.00 | $0.00 | $0.00 | $5.95 |
| 2026 | 26479 | WAT - Clean Water District | $13.00 | $13.00 | $0.00 | $0.00 | $0.00 | $26.00 |
| 2026 | 26479 | TOTAL: | $60.62 | $60.49 | $0.00 | $0.00 | $0.00 | $121.11 |
|
| 2026 | 26479 | $60.62 | $60.49 | $0.00 | $0.00 | $0.00 | $121.11 |
Statement Details |
| 2025 | 26548 | STATE - STATE LEVY (SCHOOL) | $11.75 | $11.75 | $0.00 | $0.00 | $23.50 | $0.00 |
| 2025 | 26548 | COUNTY - COUNTY LEVIES (CE, DD, VET, MH) | $4.63 | $4.60 | $0.00 | $0.00 | $9.23 | $0.00 |
| 2025 | 26548 | CONSERVE - CONSERVATION FUTURES | $0.14 | $0.14 | $0.00 | $0.00 | $0.28 | $0.00 |
| 2025 | 26548 | COROADS - COUNTY ROADS (ROADS, DIV TO CE) | $3.71 | $3.70 | $0.00 | $0.00 | $7.41 | $0.00 |
| 2025 | 26548 | PORTPT - PORT DISTRICT | $1.89 | $1.88 | $0.00 | $0.00 | $3.77 | $0.00 |
| 2025 | 26548 | PUD1 - PUD #1 | $0.30 | $0.30 | $0.00 | $0.00 | $0.60 | $0.00 |
| 2025 | 26548 | LIB1 - LIBRARY DIST #1 | $1.43 | $1.43 | $0.00 | $0.00 | $2.86 | $0.00 |
| 2025 | 26548 | HD2 - HOSP DIST #2 | $0.27 | $0.27 | $0.00 | $0.00 | $0.54 | $0.00 |
| 2025 | 26548 | SD46 - SCHOOL DIST #46 | $3.11 | $3.10 | $0.00 | $0.00 | $6.21 | $0.00 |
| 2025 | 26548 | FD4 - FIRE DISTRICT #4 | $8.61 | $8.60 | $0.00 | $0.00 | $17.21 | $0.00 |
| 2025 | 26548 | EMS4 - FIRE DIST #4 EMS | $2.39 | $2.39 | $0.00 | $0.00 | $4.78 | $0.00 |
| 2025 | 26548 | CEM1 - CEMETERY DIST #1 | $0.06 | $0.05 | $0.00 | $0.00 | $0.11 | $0.00 |
| 2025 | 26548 | FPLCA - DNR Landowner Contingency Assmt | $3.00 | $3.00 | $0.00 | $0.00 | $6.00 | $0.00 |
| 2025 | 26548 | JCCD - JC Conservation District | $2.53 | $2.53 | $0.00 | $0.00 | $5.06 | $0.00 |
| 2025 | 26548 | NWA - Noxious Weed Assessment | $2.15 | $2.15 | $0.00 | $0.00 | $4.30 | $0.00 |
| 2025 | 26548 | WAT - Clean Water District | $13.00 | $13.00 | $0.00 | $0.00 | $26.00 | $0.00 |
| 2025 | 26548 | TOTAL: | $58.97 | $58.89 | $0.00 | $0.00 | $117.86 | $0.00 |
|
| 2025 | 26548 | $58.97 | $58.89 | $0.00 | $0.00 | $117.86 | $0.00 |
Statement Details |
| 2024 | 26600 | STATE - STATE LEVY (SCHOOL) | $11.34 | $11.34 | $0.00 | $0.00 | $22.68 | $0.00 |
| 2024 | 26600 | COUNTY - COUNTY LEVIES (CE, DD, VET, MH) | $4.86 | $4.84 | $0.00 | $0.00 | $9.70 | $0.00 |
| 2024 | 26600 | CONSERVE - CONSERVATION FUTURES | $0.15 | $0.14 | $0.00 | $0.00 | $0.29 | $0.00 |
| 2024 | 26600 | COROADS - COUNTY ROADS (ROADS, DIV TO CE) | $3.91 | $3.89 | $0.00 | $0.00 | $7.80 | $0.00 |
| 2024 | 26600 | PORTPT - PORT DISTRICT | $2.01 | $2.00 | $0.00 | $0.00 | $4.01 | $0.00 |
| 2024 | 26600 | PUD1 - PUD #1 | $0.32 | $0.32 | $0.00 | $0.00 | $0.64 | $0.00 |
| 2024 | 26600 | LIB1 - LIBRARY DIST #1 | $1.51 | $1.51 | $0.00 | $0.00 | $3.02 | $0.00 |
| 2024 | 26600 | HD2 - HOSP DIST #2 | $0.29 | $0.28 | $0.00 | $0.00 | $0.57 | $0.00 |
| 2024 | 26600 | SD46 - SCHOOL DIST #46 | $3.41 | $3.40 | $0.00 | $0.00 | $6.81 | $0.00 |
| 2024 | 26600 | FD4 - FIRE DISTRICT #4 | $8.79 | $8.79 | $0.00 | $0.00 | $17.58 | $0.00 |
| 2024 | 26600 | EMS4 - FIRE DIST #4 EMS | $2.45 | $2.45 | $0.00 | $0.00 | $4.90 | $0.00 |
| 2024 | 26600 | CEM1 - CEMETERY DIST #1 | $0.06 | $0.05 | $0.00 | $0.00 | $0.11 | $0.00 |
| 2024 | 26600 | FPLCA - DNR Landowner Contingency Assmt | $3.00 | $3.00 | $0.00 | $0.00 | $6.00 | $0.00 |
| 2024 | 26600 | JCCD - JC Conservation District | $2.53 | $2.53 | $0.00 | $0.00 | $5.06 | $0.00 |
| 2024 | 26600 | NWA - Noxious Weed Assessment | $2.15 | $2.15 | $0.00 | $0.00 | $4.30 | $0.00 |
| 2024 | 26600 | WAT - Clean Water District | $12.50 | $12.50 | $0.00 | $0.00 | $25.00 | $0.00 |
| 2024 | 26600 | TOTAL: | $59.28 | $59.19 | $0.00 | $0.00 | $118.47 | $0.00 |
|
| 2024 | 26600 | $59.28 | $59.19 | $0.00 | $0.00 | $118.47 | $0.00 |
Statement Details |
| 2023 | 26641 | STATE - STATE LEVY (SCHOOL) | $11.54 | $11.53 | $0.00 | $0.00 | $23.07 | $0.00 |
| 2023 | 26641 | COUNTY - COUNTY LEVIES (CE, DD, VET, MH) | $5.04 | $5.04 | $0.00 | $0.00 | $10.08 | $0.00 |
| 2023 | 26641 | CONSERVE - CONSERVATION FUTURES | $0.15 | $0.15 | $0.00 | $0.00 | $0.30 | $0.00 |
| 2023 | 26641 | COROADS - COUNTY ROADS (ROADS, DIV TO CE) | $4.07 | $4.07 | $0.00 | $0.00 | $8.14 | $0.00 |
| 2023 | 26641 | PORTPT - PORT DISTRICT | $2.12 | $2.12 | $0.00 | $0.00 | $4.24 | $0.00 |
| 2023 | 26641 | PUD1 - PUD #1 | $0.34 | $0.33 | $0.00 | $0.00 | $0.67 | $0.00 |
| 2023 | 26641 | LIB1 - LIBRARY DIST #1 | $1.58 | $1.57 | $0.00 | $0.00 | $3.15 | $0.00 |
| 2023 | 26641 | HD2 - HOSP DIST #2 | $0.30 | $0.28 | $0.00 | $0.00 | $0.58 | $0.00 |
| 2023 | 26641 | SD46 - SCHOOL DIST #46 | $3.77 | $3.76 | $0.00 | $0.00 | $7.53 | $0.00 |
| 2023 | 26641 | FD4 - FIRE DISTRICT #4 | $6.26 | $6.26 | $0.00 | $0.00 | $12.52 | $0.00 |
| 2023 | 26641 | EMS4 - FIRE DIST #4 EMS | $1.78 | $1.78 | $0.00 | $0.00 | $3.56 | $0.00 |
| 2023 | 26641 | CEM1 - CEMETERY DIST #1 | $0.07 | $0.06 | $0.00 | $0.00 | $0.13 | $0.00 |
| 2023 | 26641 | FPLCA - DNR Landowner Contingency Assmt | $3.00 | $3.00 | $0.00 | $0.00 | $6.00 | $0.00 |
| 2023 | 26641 | JCCD - JC Conservation District | $2.53 | $2.53 | $0.00 | $0.00 | $5.06 | $0.00 |
| 2023 | 26641 | NWA - Noxious Weed Assessment | $2.15 | $2.15 | $0.00 | $0.00 | $4.30 | $0.00 |
| 2023 | 26641 | WAT - Clean Water District | $12.00 | $12.00 | $0.00 | $0.00 | $24.00 | $0.00 |
| 2023 | 26641 | TOTAL: | $56.70 | $56.63 | $0.00 | $0.00 | $113.33 | $0.00 |
|
| 2023 | 26641 | $56.70 | $56.63 | $0.00 | $0.00 | $113.33 | $0.00 |
Values
| (+) Improvement Homesite Value: | + | $0 | |
| (+) Improvement Non-Homesite Value: | + | $0 | |
| (+) Land Homesite Value: | + | $0 | |
| (+) Land Non-Homesite Value: | + | $10,290 | |
| (+) Curr Use (HS): | + | $0 | $0 |
| (+) Curr Use (NHS): | + | $0 | $0 |
| | | -------------------------- | |
| (=) Market Value: | = | $10,290 | |
| (–) Productivity Loss: | – | $0 | |
| | | -------------------------- | |
| (=) Subtotal: | = | $10,290 | |
| (+) Senior Appraised Value: | + | $0 | |
| (+) Non-Senior Appraised Value: | + | $10,290 | |
| | | -------------------------- | |
| (=) Total Appraised Value: | = | $10,290 | |
| (–) Senior Exemption Loss: | – | $0 | |
| (–) Exemption Loss: | – | $0 | |
| | | -------------------------- | |
| (=) Taxable Value: | = | $10,290 | |
Taxing Jurisdiction
| Owner: | MARC R UELTSCHI | | |
| % Ownership: | 100.0000000000% | | |
| Total Value: | $10,290 | | |
| Tax Area: | 0441 - 1-46F4E4H2C1L1P2 |
| CE | COUNTY CURRENT EXPENSE | 0.9034619479 | $10,290 | $10,290 | $9.30 | | |
| CNTYDD | DEVELOPMENTAL DISABILITIES | 0.0052121823 | $10,290 | $10,290 | $0.05 | | |
| CNTYVET | VETERANS RELIEF | 0.0052777810 | $10,290 | $10,290 | $0.05 | | |
| MENTAL | MENTAL HEALTH | 0.0052121823 | $10,290 | $10,290 | $0.05 | | |
| ROADS | COUNTY ROADS | 0.7415066410 | $10,290 | $10,290 | $7.63 | | |
| ROADSCU | COUNTY ROADS TO CUR EXP | 0.0000000000 | $10,290 | $10,290 | $0.00 | | |
| HOSP2CASH | HOSP DIST #2 GENERAL | 0.0536075306 | $10,290 | $10,290 | $0.55 | | |
| SCH46MO | SCHOOL DIST #46 EP & O | 0.6890207067 | $10,290 | $10,290 | $7.09 | | |
| CEM1 | CEMETERY DIST #1 GENERAL | 0.0107168292 | $10,290 | $10,290 | $0.11 | | |
| CONSERVE | CONSERVATION FUTURES | 0.0275621078 | $10,290 | $10,290 | $0.28 | | |
| EMS4 | FIRE DIST #4 EMS | 0.4644216158 | $10,290 | $10,290 | $4.78 | | |
| FD4 | FIRE DIST #4 GENERAL | 1.3939598390 | $10,290 | $10,290 | $14.34 | | |
| FD4BOND | FIRE DIST #4 BOND 2019 | 0.2748466981 | $10,290 | $10,290 | $2.83 | | |
| LIB1 | LIBRARY DIST #1 GENERAL | 0.2868827388 | $10,290 | $10,290 | $2.95 | | |
| PORTPT | PORT OF PT GENERAL | 0.1134941229 | $10,290 | $10,290 | $1.17 | | |
| PORTPTIDD | PORT OF PT IDD 2019 | 0.2577346692 | $10,290 | $10,290 | $2.65 | | |
| PUD1 | PUD #1 GENERAL | 0.0597888892 | $10,290 | $10,290 | $0.62 | | |
| STATE | STATE SCHOOL PART 1 | 1.4940692947 | $10,290 | $10,290 | $15.37 | | |
| STATE2 | STATE SCHOOL PART 2 | 0.8050170049 | $10,290 | $10,290 | $8.28 | | |
| | Total Tax Rate: | 7.5917927814 | | | | | |
| | | | | Taxes w/Current Exemptions: | $78.10 | | |
| | | | | Taxes w/o Exemptions: | $78.10 | | |
Improvement / Building
Sketch
| No sketches available for this property. |
Property Image
Land
| 1 | 1250-1185L | | 0.0000 | 0.00 | 0.00 | 0.00 | 1.00 | $10,290 | $0 |
Roll Value History
| 2026 | N/A | N/A | N/A | N/A | N/A |
| 2025 | $0 | $10,290 | $0 | $10,290 | $10,290 |
| 2024 | $0 | $9,800 | $0 | $9,800 | $9,800 |
| 2023 | $0 | $9,800 | $0 | $9,800 | $9,800 |
| 2022 | $0 | $9,800 | $0 | $9,800 | $9,800 |
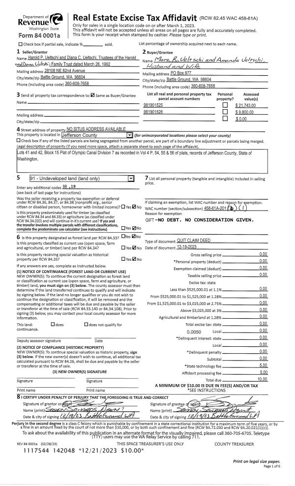
Deed and Sales History
| 1 | 12/19/2023 | QCD | Quit Claim Deed | HAROLD P UELTSCHI TRTEE | MARC R UELTSCHI | | | | 142048 | |
| 2 | 03/26/1992 | QCD | Quit Claim Deed | UELTSCHI, HAROLD P/DIANA | UELTSCHI FAMILY TRUST | 0 | 0 | $0.00 | 68056 | 0 |
Payout Agreement
| No payout information available.. |