Property
Account |
| Property ID: | 37282 | Abbreviated Legal Description: | OLYMPIC CANAL ADDITION 7 BLK 16 LOT 13 |
| Parcel # / Geo ID: | 981901609 | Agent Code: | |
| Type: | Real | | |
| Tax Area: | 0441 - 1-46F4E4H2C1L1P2 | Land Use Code | 91 |
| Open Space: | N | DFL | N |
| Historic Property: | N | Remodel Property: | N |
| Multi-Family Redevelopment: | N | | |
| Township: | 25N | Section: | 16 |
| Range: | 2W |
Location |
| Address: | 30 RIDGE DR BRINNON, WA 98320 | Mapsco: | 021/039 |
| Neighborhood: | OLYMPIC CANAL TRACTS | Map ID: | |
| Neighborhood CD: | 1250 |
Owner |
| Name: | LESLEY CHAN | Owner ID: | 110940 |
| Mailing Address: | MICHAEL KLINGELE 4012 NE 18TH ST RENTON, WA 98056-3372 | % Ownership: | 100.0000000000% |
| | | Exemptions: | |
Pay Tax Due
There is currently No Amount Due on this property.
Taxes and Assessment Details
Property Tax Information as of
03/12/2026
Click on "Statement Details" to expand or collapse a tax statement.
* Please enter a valid date ** Please enter a valid date *
Statement Details |
| 2026 | 26495 | STATE - STATE LEVY (SCHOOL) | $16.90 | $16.89 | $0.00 | $0.00 | $33.79 | $0.00 |
| 2026 | 26495 | COUNTY - COUNTY LEVIES (CE, DD, VET, MH) | $6.76 | $6.76 | $0.00 | $0.00 | $13.52 | $0.00 |
| 2026 | 26495 | CONSERVE - CONSERVATION FUTURES | $0.21 | $0.20 | $0.00 | $0.00 | $0.41 | $0.00 |
| 2026 | 26495 | COROADS - COUNTY ROADS (ROADS, DIV TO CE) | $5.45 | $5.45 | $0.00 | $0.00 | $10.90 | $0.00 |
| 2026 | 26495 | PORTPT - PORT DISTRICT | $2.74 | $2.72 | $0.00 | $0.00 | $5.46 | $0.00 |
| 2026 | 26495 | PUD1 - PUD #1 | $0.44 | $0.44 | $0.00 | $0.00 | $0.88 | $0.00 |
| 2026 | 26495 | LIB1 - LIBRARY DIST #1 | $2.11 | $2.11 | $0.00 | $0.00 | $4.22 | $0.00 |
| 2026 | 26495 | HD2 - HOSP DIST #2 | $0.40 | $0.39 | $0.00 | $0.00 | $0.79 | $0.00 |
| 2026 | 26495 | SD46 - SCHOOL DIST #46 | $5.07 | $5.06 | $0.00 | $0.00 | $10.13 | $0.00 |
| 2026 | 26495 | FD4 - FIRE DISTRICT #4 | $12.27 | $12.26 | $0.00 | $0.00 | $24.53 | $0.00 |
| 2026 | 26495 | EMS4 - FIRE DIST #4 EMS | $3.42 | $3.41 | $0.00 | $0.00 | $6.83 | $0.00 |
| 2026 | 26495 | CEM1 - CEMETERY DIST #1 | $0.08 | $0.08 | $0.00 | $0.00 | $0.16 | $0.00 |
| 2026 | 26495 | FP - DNR Forest Fire Protection Assmt | $8.50 | $8.50 | $0.00 | $0.00 | $17.00 | $0.00 |
| 2026 | 26495 | FPLCA - DNR Landowner Contingency Assmt | $3.00 | $3.00 | $0.00 | $0.00 | $6.00 | $0.00 |
| 2026 | 26495 | JCCD - JC Conservation District | $2.53 | $2.53 | $0.00 | $0.00 | $5.06 | $0.00 |
| 2026 | 26495 | NWA - Noxious Weed Assessment | $2.98 | $2.97 | $0.00 | $0.00 | $5.95 | $0.00 |
| 2026 | 26495 | WAT - Clean Water District | $13.00 | $13.00 | $0.00 | $0.00 | $26.00 | $0.00 |
| 2026 | 26495 | FP ADMIN - FP ADMIN | $0.50 | $0.00 | $0.00 | $0.00 | $0.50 | $0.00 |
| 2026 | 26495 | TOTAL: | $86.36 | $85.77 | $0.00 | $0.00 | $172.13 | $0.00 |
|
| 2026 | 26495 | $86.36 | $85.77 | $0.00 | $0.00 | $172.13 | $0.00 |
Statement Details |
| 2025 | 26564 | STATE - STATE LEVY (SCHOOL) | $16.80 | $16.78 | $0.00 | $0.00 | $33.58 | $0.00 |
| 2025 | 26564 | COUNTY - COUNTY LEVIES (CE, DD, VET, MH) | $6.61 | $6.59 | $0.00 | $0.00 | $13.20 | $0.00 |
| 2025 | 26564 | CONSERVE - CONSERVATION FUTURES | $0.20 | $0.20 | $0.00 | $0.00 | $0.40 | $0.00 |
| 2025 | 26564 | COROADS - COUNTY ROADS (ROADS, DIV TO CE) | $5.30 | $5.28 | $0.00 | $0.00 | $10.58 | $0.00 |
| 2025 | 26564 | PORTPT - PORT DISTRICT | $2.70 | $2.69 | $0.00 | $0.00 | $5.39 | $0.00 |
| 2025 | 26564 | PUD1 - PUD #1 | $0.43 | $0.43 | $0.00 | $0.00 | $0.86 | $0.00 |
| 2025 | 26564 | LIB1 - LIBRARY DIST #1 | $2.05 | $2.04 | $0.00 | $0.00 | $4.09 | $0.00 |
| 2025 | 26564 | HD2 - HOSP DIST #2 | $0.39 | $0.38 | $0.00 | $0.00 | $0.77 | $0.00 |
| 2025 | 26564 | SD46 - SCHOOL DIST #46 | $4.44 | $4.43 | $0.00 | $0.00 | $8.87 | $0.00 |
| 2025 | 26564 | FD4 - FIRE DISTRICT #4 | $12.30 | $12.29 | $0.00 | $0.00 | $24.59 | $0.00 |
| 2025 | 26564 | EMS4 - FIRE DIST #4 EMS | $3.41 | $3.41 | $0.00 | $0.00 | $6.82 | $0.00 |
| 2025 | 26564 | CEM1 - CEMETERY DIST #1 | $0.08 | $0.08 | $0.00 | $0.00 | $0.16 | $0.00 |
| 2025 | 26564 | FP - DNR Forest Fire Protection Assmt | $8.50 | $8.50 | $0.00 | $0.00 | $17.00 | $0.00 |
| 2025 | 26564 | FPLCA - DNR Landowner Contingency Assmt | $3.00 | $3.00 | $0.00 | $0.00 | $6.00 | $0.00 |
| 2025 | 26564 | JCCD - JC Conservation District | $2.53 | $2.53 | $0.00 | $0.00 | $5.06 | $0.00 |
| 2025 | 26564 | NWA - Noxious Weed Assessment | $2.15 | $2.15 | $0.00 | $0.00 | $4.30 | $0.00 |
| 2025 | 26564 | WAT - Clean Water District | $13.00 | $13.00 | $0.00 | $0.00 | $26.00 | $0.00 |
| 2025 | 26564 | FP ADMIN - FP ADMIN | $0.50 | $0.00 | $0.00 | $0.00 | $0.50 | $0.00 |
| 2025 | 26564 | TOTAL: | $84.39 | $83.78 | $0.00 | $0.00 | $168.17 | $0.00 |
|
| 2025 | 26564 | $84.39 | $83.78 | $0.00 | $0.00 | $168.17 | $0.00 |
Statement Details |
| 2024 | 26616 | STATE - STATE LEVY (SCHOOL) | $16.20 | $16.19 | $0.00 | $0.00 | $32.39 | $0.00 |
| 2024 | 26616 | COUNTY - COUNTY LEVIES (CE, DD, VET, MH) | $6.93 | $6.93 | $0.00 | $0.00 | $13.86 | $0.00 |
| 2024 | 26616 | CONSERVE - CONSERVATION FUTURES | $0.21 | $0.21 | $0.00 | $0.00 | $0.42 | $0.00 |
| 2024 | 26616 | COROADS - COUNTY ROADS (ROADS, DIV TO CE) | $5.58 | $5.57 | $0.00 | $0.00 | $11.15 | $0.00 |
| 2024 | 26616 | PORTPT - PORT DISTRICT | $2.87 | $2.85 | $0.00 | $0.00 | $5.72 | $0.00 |
| 2024 | 26616 | PUD1 - PUD #1 | $0.46 | $0.45 | $0.00 | $0.00 | $0.91 | $0.00 |
| 2024 | 26616 | LIB1 - LIBRARY DIST #1 | $2.16 | $2.15 | $0.00 | $0.00 | $4.31 | $0.00 |
| 2024 | 26616 | HD2 - HOSP DIST #2 | $0.41 | $0.40 | $0.00 | $0.00 | $0.81 | $0.00 |
| 2024 | 26616 | SD46 - SCHOOL DIST #46 | $4.86 | $4.86 | $0.00 | $0.00 | $9.72 | $0.00 |
| 2024 | 26616 | FD4 - FIRE DISTRICT #4 | $12.56 | $12.56 | $0.00 | $0.00 | $25.12 | $0.00 |
| 2024 | 26616 | EMS4 - FIRE DIST #4 EMS | $3.50 | $3.50 | $0.00 | $0.00 | $7.00 | $0.00 |
| 2024 | 26616 | CEM1 - CEMETERY DIST #1 | $0.08 | $0.08 | $0.00 | $0.00 | $0.16 | $0.00 |
| 2024 | 26616 | FP - DNR Forest Fire Protection Assmt | $8.50 | $8.50 | $0.00 | $0.00 | $17.00 | $0.00 |
| 2024 | 26616 | FPLCA - DNR Landowner Contingency Assmt | $3.00 | $3.00 | $0.00 | $0.00 | $6.00 | $0.00 |
| 2024 | 26616 | JCCD - JC Conservation District | $2.53 | $2.53 | $0.00 | $0.00 | $5.06 | $0.00 |
| 2024 | 26616 | NWA - Noxious Weed Assessment | $2.15 | $2.15 | $0.00 | $0.00 | $4.30 | $0.00 |
| 2024 | 26616 | WAT - Clean Water District | $12.50 | $12.50 | $0.00 | $0.00 | $25.00 | $0.00 |
| 2024 | 26616 | FP ADMIN - FP ADMIN | $0.50 | $0.00 | $0.00 | $0.00 | $0.50 | $0.00 |
| 2024 | 26616 | TOTAL: | $85.00 | $84.43 | $0.00 | $0.00 | $169.43 | $0.00 |
|
| 2024 | 26616 | $85.00 | $84.43 | $0.00 | $0.00 | $169.43 | $0.00 |
Statement Details |
| 2023 | 26657 | STATE - STATE LEVY (SCHOOL) | $16.49 | $16.47 | $0.00 | $0.00 | $32.96 | $0.00 |
| 2023 | 26657 | COUNTY - COUNTY LEVIES (CE, DD, VET, MH) | $7.19 | $7.19 | $0.00 | $0.00 | $14.38 | $0.00 |
| 2023 | 26657 | CONSERVE - CONSERVATION FUTURES | $0.22 | $0.21 | $0.00 | $0.00 | $0.43 | $0.00 |
| 2023 | 26657 | COROADS - COUNTY ROADS (ROADS, DIV TO CE) | $5.82 | $5.82 | $0.00 | $0.00 | $11.64 | $0.00 |
| 2023 | 26657 | PORTPT - PORT DISTRICT | $3.03 | $3.03 | $0.00 | $0.00 | $6.06 | $0.00 |
| 2023 | 26657 | PUD1 - PUD #1 | $0.48 | $0.47 | $0.00 | $0.00 | $0.95 | $0.00 |
| 2023 | 26657 | LIB1 - LIBRARY DIST #1 | $2.25 | $2.25 | $0.00 | $0.00 | $4.50 | $0.00 |
| 2023 | 26657 | HD2 - HOSP DIST #2 | $0.42 | $0.42 | $0.00 | $0.00 | $0.84 | $0.00 |
| 2023 | 26657 | SD46 - SCHOOL DIST #46 | $5.38 | $5.38 | $0.00 | $0.00 | $10.76 | $0.00 |
| 2023 | 26657 | FD4 - FIRE DISTRICT #4 | $8.95 | $8.94 | $0.00 | $0.00 | $17.89 | $0.00 |
| 2023 | 26657 | EMS4 - FIRE DIST #4 EMS | $2.55 | $2.54 | $0.00 | $0.00 | $5.09 | $0.00 |
| 2023 | 26657 | CEM1 - CEMETERY DIST #1 | $0.09 | $0.09 | $0.00 | $0.00 | $0.18 | $0.00 |
| 2023 | 26657 | FP - DNR Forest Fire Protection Assmt | $8.50 | $8.50 | $0.00 | $0.00 | $17.00 | $0.00 |
| 2023 | 26657 | FPLCA - DNR Landowner Contingency Assmt | $3.00 | $3.00 | $0.00 | $0.00 | $6.00 | $0.00 |
| 2023 | 26657 | JCCD - JC Conservation District | $2.53 | $2.53 | $0.00 | $0.00 | $5.06 | $0.00 |
| 2023 | 26657 | NWA - Noxious Weed Assessment | $2.15 | $2.15 | $0.00 | $0.00 | $4.30 | $0.00 |
| 2023 | 26657 | WAT - Clean Water District | $12.00 | $12.00 | $0.00 | $0.00 | $24.00 | $0.00 |
| 2023 | 26657 | FP ADMIN - FP ADMIN | $0.50 | $0.00 | $0.00 | $0.00 | $0.50 | $0.00 |
| 2023 | 26657 | TOTAL: | $81.55 | $80.99 | $0.00 | $0.00 | $162.54 | $0.00 |
|
| 2023 | 26657 | $81.55 | $80.99 | $0.00 | $0.00 | $162.54 | $0.00 |
Values
| (+) Improvement Homesite Value: | + | $0 | |
| (+) Improvement Non-Homesite Value: | + | $0 | |
| (+) Land Homesite Value: | + | $0 | |
| (+) Land Non-Homesite Value: | + | $14,700 | |
| (+) Curr Use (HS): | + | $0 | $0 |
| (+) Curr Use (NHS): | + | $0 | $0 |
| | | -------------------------- | |
| (=) Market Value: | = | $14,700 | |
| (–) Productivity Loss: | – | $0 | |
| | | -------------------------- | |
| (=) Subtotal: | = | $14,700 | |
| (+) Senior Appraised Value: | + | $0 | |
| (+) Non-Senior Appraised Value: | + | $14,700 | |
| | | -------------------------- | |
| (=) Total Appraised Value: | = | $14,700 | |
| (–) Senior Exemption Loss: | – | $0 | |
| (–) Exemption Loss: | – | $0 | |
| | | -------------------------- | |
| (=) Taxable Value: | = | $14,700 | |
Taxing Jurisdiction
| Owner: | LESLEY CHAN | | |
| % Ownership: | 100.0000000000% | | |
| Total Value: | $14,700 | | |
| Tax Area: | 0441 - 1-46F4E4H2C1L1P2 |
| CE | COUNTY CURRENT EXPENSE | 0.9034619479 | $14,700 | $14,700 | $13.28 | | |
| CNTYDD | DEVELOPMENTAL DISABILITIES | 0.0052121823 | $14,700 | $14,700 | $0.08 | | |
| CNTYVET | VETERANS RELIEF | 0.0052777810 | $14,700 | $14,700 | $0.08 | | |
| MENTAL | MENTAL HEALTH | 0.0052121823 | $14,700 | $14,700 | $0.08 | | |
| ROADS | COUNTY ROADS | 0.7415066410 | $14,700 | $14,700 | $10.90 | | |
| ROADSCU | COUNTY ROADS TO CUR EXP | 0.0000000000 | $14,700 | $14,700 | $0.00 | | |
| HOSP2CASH | HOSP DIST #2 GENERAL | 0.0536075306 | $14,700 | $14,700 | $0.79 | | |
| SCH46MO | SCHOOL DIST #46 EP & O | 0.6890207067 | $14,700 | $14,700 | $10.13 | | |
| CEM1 | CEMETERY DIST #1 GENERAL | 0.0107168292 | $14,700 | $14,700 | $0.16 | | |
| CONSERVE | CONSERVATION FUTURES | 0.0275621078 | $14,700 | $14,700 | $0.41 | | |
| EMS4 | FIRE DIST #4 EMS | 0.4644216158 | $14,700 | $14,700 | $6.83 | | |
| FD4 | FIRE DIST #4 GENERAL | 1.3939598390 | $14,700 | $14,700 | $20.49 | | |
| FD4BOND | FIRE DIST #4 BOND 2019 | 0.2748466981 | $14,700 | $14,700 | $4.04 | | |
| LIB1 | LIBRARY DIST #1 GENERAL | 0.2868827388 | $14,700 | $14,700 | $4.22 | | |
| PORTPT | PORT OF PT GENERAL | 0.1134941229 | $14,700 | $14,700 | $1.67 | | |
| PORTPTIDD | PORT OF PT IDD 2019 | 0.2577346692 | $14,700 | $14,700 | $3.79 | | |
| PUD1 | PUD #1 GENERAL | 0.0597888892 | $14,700 | $14,700 | $0.88 | | |
| STATE | STATE SCHOOL PART 1 | 1.4940692947 | $14,700 | $14,700 | $21.96 | | |
| STATE2 | STATE SCHOOL PART 2 | 0.8050170049 | $14,700 | $14,700 | $11.83 | | |
| | Total Tax Rate: | 7.5917927814 | | | | | |
| | | | | Taxes w/Current Exemptions: | $111.62 | | |
| | | | | Taxes w/o Exemptions: | $111.62 | | |
Improvement / Building
Sketch
| No sketches available for this property. |
Property Image
Land
| 1 | 1250-1185L | | 0.0000 | 0.00 | 0.00 | 0.00 | 1.00 | $14,700 | $0 |
Roll Value History
| 2026 | N/A | N/A | N/A | N/A | N/A |
| 2025 | $0 | $14,700 | $0 | $14,700 | $14,700 |
| 2024 | $0 | $14,000 | $0 | $14,000 | $14,000 |
| 2023 | $0 | $14,000 | $0 | $14,000 | $14,000 |
| 2022 | $0 | $14,000 | $0 | $14,000 | $14,000 |
Deed and Sales History
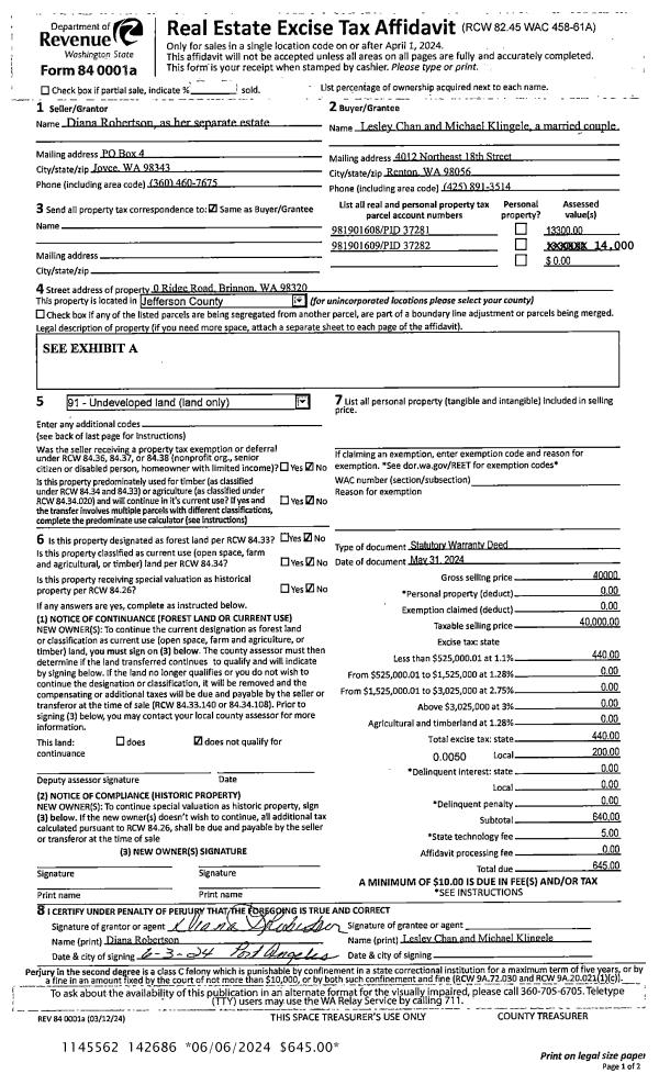
| 1 | 05/31/2024 | SWD | Statutory Warranty Deed | DIANA ROBERTSON | LESLEY CHAN | | | $40,000.00 | 142686 | |
|   | |
| 2 | 04/11/2014 | QCD | Quit Claim Deed | MAURICE D GALLATIN | DIANA ROBERTSON | | | $20,475.00 | 121122 | |
|   | |
Payout Agreement
| No payout information available.. |