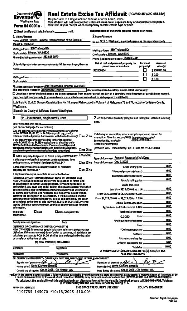
Property
Account |
| Property ID: | 37380 | Abbreviated Legal Description: | OLYMPIC CANAL ADDITION 10 BLK 2 LOTS 3 & 4 |
| Parcel # / Geo ID: | 982800204 | Agent Code: | |
| Type: | Real | | |
| Tax Area: | 0441 - 1-46F4E4H2C1L1P2 | Land Use Code | 11 |
| Open Space: | N | DFL | N |
| Historic Property: | N | Remodel Property: | N |
| Multi-Family Redevelopment: | N | | |
| Township: | 25N | Section: | 21 |
| Range: | 2W |
Location |
| Address: | 350 TRAILWOOD DR BRINNON, WA 98320 | Mapsco: | 023/030 |
| Neighborhood: | OLYMPIC CANAL TRACTS | Map ID: | |
| Neighborhood CD: | 1250 |
Owner |
| Name: | SCOT D FLESHMAN | Owner ID: | 113482 |
| Mailing Address: | 350 TRAILWOOD DR BRINNON, WA 98320-9601 | % Ownership: | 100.0000000000% |
| | | Exemptions: | |
Pay Tax Due
Select the appropriate checkbox next to the year to be paid. Multiple years may be selected.
*Convenience Fee not included
Taxes and Assessment Details
Property Tax Information as of
03/12/2026
Click on "Statement Details" to expand or collapse a tax statement.
* Please enter a valid date ** Please enter a valid date *
Statement Details |
| 2026 | 26592 | STATE - STATE LEVY (SCHOOL) | $284.63 | $284.62 | $0.00 | $0.00 | $0.00 | $569.25 |
| 2026 | 26592 | COUNTY - COUNTY LEVIES (CE, DD, VET, MH) | $113.81 | $113.78 | $0.00 | $0.00 | $0.00 | $227.59 |
| 2026 | 26592 | CONSERVE - CONSERVATION FUTURES | $3.41 | $3.41 | $0.00 | $0.00 | $0.00 | $6.82 |
| 2026 | 26592 | COROADS - COUNTY ROADS (ROADS, DIV TO CE) | $91.80 | $91.80 | $0.00 | $0.00 | $0.00 | $183.60 |
| 2026 | 26592 | PORTPT - PORT DISTRICT | $45.96 | $45.95 | $0.00 | $0.00 | $0.00 | $91.91 |
| 2026 | 26592 | PUD1 - PUD #1 | $7.40 | $7.40 | $0.00 | $0.00 | $0.00 | $14.80 |
| 2026 | 26592 | LIB1 - LIBRARY DIST #1 | $35.52 | $35.51 | $0.00 | $0.00 | $0.00 | $71.03 |
| 2026 | 26592 | HD2 - HOSP DIST #2 | $6.64 | $6.63 | $0.00 | $0.00 | $0.00 | $13.27 |
| 2026 | 26592 | SD46 - SCHOOL DIST #46 | $85.30 | $85.30 | $0.00 | $0.00 | $0.00 | $170.60 |
| 2026 | 26592 | FD4 - FIRE DISTRICT #4 | $206.60 | $206.59 | $0.00 | $0.00 | $0.00 | $413.19 |
| 2026 | 26592 | EMS4 - FIRE DIST #4 EMS | $57.50 | $57.49 | $0.00 | $0.00 | $0.00 | $114.99 |
| 2026 | 26592 | CEM1 - CEMETERY DIST #1 | $1.33 | $1.32 | $0.00 | $0.00 | $0.00 | $2.65 |
| 2026 | 26592 | FP - DNR Forest Fire Protection Assmt | $8.50 | $8.50 | $0.00 | $0.00 | $0.00 | $17.00 |
| 2026 | 26592 | FPLCA - DNR Landowner Contingency Assmt | $3.00 | $3.00 | $0.00 | $0.00 | $0.00 | $6.00 |
| 2026 | 26592 | JCCD - JC Conservation District | $2.55 | $2.55 | $0.00 | $0.00 | $0.00 | $5.10 |
| 2026 | 26592 | NWA - Noxious Weed Assessment | $2.98 | $2.97 | $0.00 | $0.00 | $0.00 | $5.95 |
| 2026 | 26592 | OSS - On Site Septic | $23.10 | $23.10 | $0.00 | $0.00 | $0.00 | $46.20 |
| 2026 | 26592 | WAT - Clean Water District | $13.00 | $13.00 | $0.00 | $0.00 | $0.00 | $26.00 |
| 2026 | 26592 | FP ADMIN - FP ADMIN | $0.50 | $0.00 | $0.00 | $0.00 | $0.00 | $0.50 |
| 2026 | 26592 | TOTAL: | $993.53 | $992.92 | $0.00 | $0.00 | $0.00 | $1986.45 |
|
| 2026 | 26592 | $993.53 | $992.92 | $0.00 | $0.00 | $0.00 | $1986.45 |
Statement Details |
| 2025 | 26661 | STATE - STATE LEVY (SCHOOL) | $329.74 | $0.00 | $0.00 | $0.00 | $329.74 | $0.00 |
| 2025 | 26661 | COUNTY - COUNTY LEVIES (CE, DD, VET, MH) | $138.93 | $0.00 | $0.00 | $0.00 | $138.93 | $0.00 |
| 2025 | 26661 | CONSERVE - CONSERVATION FUTURES | $4.17 | $0.00 | $0.00 | $0.00 | $4.17 | $0.00 |
| 2025 | 26661 | COROADS - COUNTY ROADS (ROADS, DIV TO CE) | $111.29 | $0.00 | $0.00 | $0.00 | $111.29 | $0.00 |
| 2025 | 26661 | PORTPT - PORT DISTRICT | $56.68 | $0.00 | $0.00 | $0.00 | $56.68 | $0.00 |
| 2025 | 26661 | PUD1 - PUD #1 | $9.09 | $0.00 | $0.00 | $0.00 | $9.09 | $0.00 |
| 2025 | 26661 | LIB1 - LIBRARY DIST #1 | $43.06 | $0.00 | $0.00 | $0.00 | $43.06 | $0.00 |
| 2025 | 26661 | HD2 - HOSP DIST #2 | $8.11 | $0.00 | $0.00 | $0.00 | $8.11 | $0.00 |
| 2025 | 26661 | SD46 - SCHOOL DIST #46 | $75.60 | $0.00 | $0.00 | $0.00 | $75.60 | $0.00 |
| 2025 | 26661 | FD4 - FIRE DISTRICT #4 | $250.62 | $0.00 | $0.00 | $0.00 | $250.62 | $0.00 |
| 2025 | 26661 | EMS4 - FIRE DIST #4 EMS | $71.80 | $0.00 | $0.00 | $0.00 | $71.80 | $0.00 |
| 2025 | 26661 | CEM1 - CEMETERY DIST #1 | $1.66 | $0.00 | $0.00 | $0.00 | $1.66 | $0.00 |
| 2025 | 26661 | FP - DNR Forest Fire Protection Assmt | $17.00 | $0.00 | $0.00 | $0.00 | $17.00 | $0.00 |
| 2025 | 26661 | FPLCA - DNR Landowner Contingency Assmt | $6.00 | $0.00 | $0.00 | $0.00 | $6.00 | $0.00 |
| 2025 | 26661 | OSS - On Site Septic | $43.00 | $0.00 | $0.00 | $0.00 | $43.00 | $0.00 |
| 2025 | 26661 | FP ADMIN - FP ADMIN | $0.50 | $0.00 | $0.00 | $0.00 | $0.50 | $0.00 |
| 2025 | 26661 | TOTAL: | $1167.25 | $0.00 | $0.00 | $0.00 | $1167.25 | $0.00 |
|
| 2025 | 26661 | $1167.25 | $0.00 | $0.00 | $0.00 | $1167.25 | $0.00 |
Statement Details |
| 2024 | 26714 | STATE - STATE LEVY (SCHOOL) | $42.58 | $42.57 | $0.00 | $0.00 | $85.15 | $0.00 |
| 2024 | 26714 | COUNTY - COUNTY LEVIES (CE, DD, VET, MH) | $28.00 | $27.99 | $0.00 | $0.00 | $55.99 | $0.00 |
| 2024 | 26714 | CONSERVE - CONSERVATION FUTURES | $0.84 | $0.84 | $0.00 | $0.00 | $1.68 | $0.00 |
| 2024 | 26714 | COROADS - COUNTY ROADS (ROADS, DIV TO CE) | $22.53 | $22.51 | $0.00 | $0.00 | $45.04 | $0.00 |
| 2024 | 26714 | PORTPT - PORT DISTRICT | $11.57 | $11.55 | $0.00 | $0.00 | $23.12 | $0.00 |
| 2024 | 26714 | PUD1 - PUD #1 | $1.84 | $1.84 | $0.00 | $0.00 | $3.68 | $0.00 |
| 2024 | 26714 | LIB1 - LIBRARY DIST #1 | $8.72 | $8.71 | $0.00 | $0.00 | $17.43 | $0.00 |
| 2024 | 26714 | HD2 - HOSP DIST #2 | $1.64 | $1.63 | $0.00 | $0.00 | $3.27 | $0.00 |
| 2024 | 26714 | SD46 - SCHOOL DIST #46 | $0.00 | $0.00 | $0.00 | $0.00 | $0.00 | $0.00 |
| 2024 | 26714 | FD4 - FIRE DISTRICT #4 | $42.41 | $42.41 | $0.00 | $0.00 | $84.82 | $0.00 |
| 2024 | 26714 | EMS4 - FIRE DIST #4 EMS | $14.14 | $14.13 | $0.00 | $0.00 | $28.27 | $0.00 |
| 2024 | 26714 | CEM1 - CEMETERY DIST #1 | $0.33 | $0.33 | $0.00 | $0.00 | $0.66 | $0.00 |
| 2024 | 26714 | FP - DNR Forest Fire Protection Assmt | $8.50 | $8.50 | $0.00 | $0.00 | $17.00 | $0.00 |
| 2024 | 26714 | FPLCA - DNR Landowner Contingency Assmt | $3.00 | $3.00 | $0.00 | $0.00 | $6.00 | $0.00 |
| 2024 | 26714 | JCCD - JC Conservation District | $2.55 | $2.55 | $0.00 | $0.00 | $5.10 | $0.00 |
| 2024 | 26714 | NWA - Noxious Weed Assessment | $2.15 | $2.15 | $0.00 | $0.00 | $4.30 | $0.00 |
| 2024 | 26714 | OSS - On Site Septic | $21.00 | $21.00 | $0.00 | $0.00 | $42.00 | $0.00 |
| 2024 | 26714 | WAT - Clean Water District | $12.50 | $12.50 | $0.00 | $0.00 | $25.00 | $0.00 |
| 2024 | 26714 | FP ADMIN - FP ADMIN | $0.50 | $0.00 | $0.00 | $0.00 | $0.50 | $0.00 |
| 2024 | 26714 | TOTAL: | $224.80 | $224.21 | $0.00 | $0.00 | $449.01 | $0.00 |
|
| 2024 | 26714 | $224.80 | $224.21 | $0.00 | $0.00 | $449.01 | $0.00 |
Statement Details |
| 2023 | 26755 | STATE - STATE LEVY (SCHOOL) | $163.42 | $0.00 | $0.00 | $0.00 | $163.42 | $0.00 |
| 2023 | 26755 | COUNTY - COUNTY LEVIES (CE, DD, VET, MH) | $109.45 | $0.00 | $0.00 | $0.00 | $109.45 | $0.00 |
| 2023 | 26755 | CONSERVE - CONSERVATION FUTURES | $3.28 | $0.00 | $0.00 | $0.00 | $3.28 | $0.00 |
| 2023 | 26755 | COROADS - COUNTY ROADS (ROADS, DIV TO CE) | $88.55 | $0.00 | $0.00 | $0.00 | $88.55 | $0.00 |
| 2023 | 26755 | PORTPT - PORT DISTRICT | $46.10 | $0.00 | $0.00 | $0.00 | $46.10 | $0.00 |
| 2023 | 26755 | PUD1 - PUD #1 | $7.26 | $0.00 | $0.00 | $0.00 | $7.26 | $0.00 |
| 2023 | 26755 | LIB1 - LIBRARY DIST #1 | $34.26 | $0.00 | $0.00 | $0.00 | $34.26 | $0.00 |
| 2023 | 26755 | HD2 - HOSP DIST #2 | $6.39 | $0.00 | $0.00 | $0.00 | $6.39 | $0.00 |
| 2023 | 26755 | SD46 - SCHOOL DIST #46 | $0.00 | $0.00 | $0.00 | $0.00 | $0.00 | $0.00 |
| 2023 | 26755 | FD4 - FIRE DISTRICT #4 | $100.07 | $0.00 | $0.00 | $0.00 | $100.07 | $0.00 |
| 2023 | 26755 | EMS4 - FIRE DIST #4 EMS | $38.71 | $0.00 | $0.00 | $0.00 | $38.71 | $0.00 |
| 2023 | 26755 | CEM1 - CEMETERY DIST #1 | $1.37 | $0.00 | $0.00 | $0.00 | $1.37 | $0.00 |
| 2023 | 26755 | FP - DNR Forest Fire Protection Assmt | $17.00 | $0.00 | $0.00 | $0.00 | $17.00 | $0.00 |
| 2023 | 26755 | FPLCA - DNR Landowner Contingency Assmt | $6.00 | $0.00 | $0.00 | $0.00 | $6.00 | $0.00 |
| 2023 | 26755 | OSS - On Site Septic | $41.00 | $0.00 | $0.00 | $0.00 | $41.00 | $0.00 |
| 2023 | 26755 | FP ADMIN - FP ADMIN | $0.50 | $0.00 | $0.00 | $0.00 | $0.50 | $0.00 |
| 2023 | 26755 | TOTAL: | $663.36 | $0.00 | $0.00 | $0.00 | $663.36 | $0.00 |
|
| 2023 | 26755 | $663.36 | $0.00 | $0.00 | $0.00 | $663.36 | $0.00 |
Values
| (+) Improvement Homesite Value: | + | $194,048 | |
| (+) Improvement Non-Homesite Value: | + | $0 | |
| (+) Land Homesite Value: | + | $53,550 | |
| (+) Land Non-Homesite Value: | + | $0 | |
| (+) Curr Use (HS): | + | $0 | $0 |
| (+) Curr Use (NHS): | + | $0 | $0 |
| | | -------------------------- | |
| (=) Market Value: | = | $247,598 | |
| (–) Productivity Loss: | – | $0 | |
| | | -------------------------- | |
| (=) Subtotal: | = | $247,598 | |
| (+) Senior Appraised Value: | + | $0 | |
| (+) Non-Senior Appraised Value: | + | $247,598 | |
| | | -------------------------- | |
| (=) Total Appraised Value: | = | $247,598 | |
| (–) Senior Exemption Loss: | – | $0 | |
| (–) Exemption Loss: | – | $0 | |
| | | -------------------------- | |
| (=) Taxable Value: | = | $247,598 | |
Taxing Jurisdiction
| Owner: | SCOT D FLESHMAN | | |
| % Ownership: | 100.0000000000% | | |
| Total Value: | $247,598 | | |
| Tax Area: | 0441 - 1-46F4E4H2C1L1P2 |
| CE | COUNTY CURRENT EXPENSE | 0.9034619479 | $247,598 | $247,598 | $223.70 | | |
| CNTYDD | DEVELOPMENTAL DISABILITIES | 0.0052121823 | $247,598 | $247,598 | $1.29 | | |
| CNTYVET | VETERANS RELIEF | 0.0052777810 | $247,598 | $247,598 | $1.31 | | |
| MENTAL | MENTAL HEALTH | 0.0052121823 | $247,598 | $247,598 | $1.29 | | |
| ROADS | COUNTY ROADS | 0.7415066410 | $247,598 | $247,598 | $183.60 | | |
| ROADSCU | COUNTY ROADS TO CUR EXP | 0.0000000000 | $247,598 | $247,598 | $0.00 | | |
| HOSP2CASH | HOSP DIST #2 GENERAL | 0.0536075306 | $247,598 | $247,598 | $13.27 | | |
| SCH46MO | SCHOOL DIST #46 EP & O | 0.6890207067 | $247,598 | $247,598 | $170.60 | | |
| CEM1 | CEMETERY DIST #1 GENERAL | 0.0107168292 | $247,598 | $247,598 | $2.65 | | |
| CONSERVE | CONSERVATION FUTURES | 0.0275621078 | $247,598 | $247,598 | $6.82 | | |
| EMS4 | FIRE DIST #4 EMS | 0.4644216158 | $247,598 | $247,598 | $114.99 | | |
| FD4 | FIRE DIST #4 GENERAL | 1.3939598390 | $247,598 | $247,598 | $345.14 | | |
| FD4BOND | FIRE DIST #4 BOND 2019 | 0.2748466981 | $247,598 | $247,598 | $68.05 | | |
| LIB1 | LIBRARY DIST #1 GENERAL | 0.2868827388 | $247,598 | $247,598 | $71.03 | | |
| PORTPT | PORT OF PT GENERAL | 0.1134941229 | $247,598 | $247,598 | $28.10 | | |
| PORTPTIDD | PORT OF PT IDD 2019 | 0.2577346692 | $247,598 | $247,598 | $63.81 | | |
| PUD1 | PUD #1 GENERAL | 0.0597888892 | $247,598 | $247,598 | $14.80 | | |
| STATE | STATE SCHOOL PART 1 | 1.4940692947 | $247,598 | $247,598 | $369.93 | | |
| STATE2 | STATE SCHOOL PART 2 | 0.8050170049 | $247,598 | $247,598 | $199.32 | | |
| | Total Tax Rate: | 7.5917927814 | | | | | |
| | | | | Taxes w/Current Exemptions: | $1,879.70 | | |
| | | | | Taxes w/o Exemptions: | $1,879.70 | | |
Improvement / Building
| Improvement #1: | Residential Bldg | State Code: | 11 | 984.0 sqft | Value: | $194,048 |
| Bathrooms (#): | 1 (FULL) | Bedrooms (#): | 2 | | Exterior Wall: | PL/T1 | Fireplace: | SIN 1-GOOD | | Floor Construction: | FRAME | Foundation: | CONPR | | Heating/Cooling: | ELBB | Inside Verify: | NO | | Roof Cover: | METAL |   |   |
|
| | Type | Description | Class CD | Sub Class CD | Year Built | Area |
| | MA | Main Area | 3 | 15SF | 1967 | 984.0 |
| | HLOFT | House Loft | 3 | 15SF | 1967 | 240.0 |
| | HDECK | House Deck | 3 | * | 1967 | 160.0 |
| | PATIO | House Patio | 3 | * | 1967 | 208.0 |
| | GDET | Detached Garage | 3 | * | 1993 | 1080.0 |
| | SHED | Shed (Table Not Dep) | 4 | * | 1967 | 320.0 |
Sketch
Property Image
Land
| 1 | 1250-1185L | | 0.0000 | 0.00 | 0.00 | 0.00 | 1.00 | $46,200 | $0 |
| 2 | 1250-1185L | | 0.0000 | 0.00 | 0.00 | 0.00 | 1.00 | $7,350 | $0 |
Roll Value History
| 2026 | N/A | N/A | N/A | N/A | N/A |
| 2025 | $194,048 | $53,550 | $0 | $247,598 | $247,598 |
| 2024 | $185,611 | $51,000 | $0 | $236,611 | $56,545 |
| 2023 | $185,611 | $46,000 | $0 | $231,611 | $56,545 |
| 2022 | $168,737 | $41,000 | $0 | $209,737 | $106,545 |
Deed and Sales History
| 1 | 10/09/2025 | PRD | Personal Representatives Deed | DARRELL A FLESHMAN | SCOT D FLESHMAN | | | | 145070 | |
| 2 | 05/28/1999 | SWD | Statutory Warranty Deed | SICKEL, GEORGE Z/KAREN M | FLESHMAN, DARRELL A/MIRIAM E | 0 | 0 | $105,000.00 | 87016 | 0 |
Payout Agreement
| No payout information available.. |