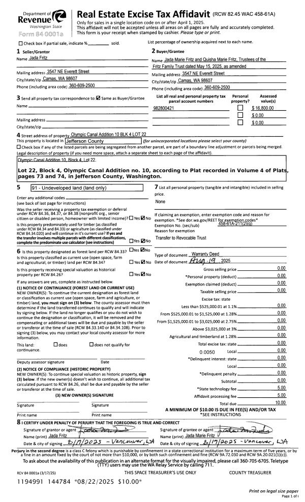
Property
Account |
| Property ID: | 37438 | Abbreviated Legal Description: | OLYMPIC CANAL ADDITION 10 BLK 4 LOT 22 |
| Parcel # / Geo ID: | 982800421 | Agent Code: | |
| Type: | Real | | |
| Tax Area: | 0441 - 1-46F4E4H2C1L1P2 | Land Use Code | 91 |
| Open Space: | N | DFL | N |
| Historic Property: | N | Remodel Property: | N |
| Multi-Family Redevelopment: | N | | |
| Township: | 25N | Section: | 16 |
| Range: | 2W |
Location |
| Address: | | Mapsco: | 024/034 |
| Neighborhood: | OLYMPIC CANAL TRACTS | Map ID: | |
| Neighborhood CD: | 1250 |
Owner |
| Name: | FRITZ FAMILY TRUST | Owner ID: | 113190 |
| Mailing Address: | JADA M FRITZ & QUISHA M FRITZ TRUSTEES 3547 NE EVERETT ST CAMAS, WA 98607 | % Ownership: | 100.0000000000% |
| | | Exemptions: | |
Pay Tax Due
Select the appropriate checkbox next to the year to be paid. Multiple years may be selected.
*Convenience Fee not included
Taxes and Assessment Details
Property Tax Information as of
03/10/2026
Click on "Statement Details" to expand or collapse a tax statement.
* Please enter a valid date ** Please enter a valid date *
Statement Details |
| 2026 | 26645 | STATE - STATE LEVY (SCHOOL) | $20.28 | $20.28 | $0.00 | $0.00 | $0.00 | $40.56 |
| 2026 | 26645 | COUNTY - COUNTY LEVIES (CE, DD, VET, MH) | $8.12 | $8.09 | $0.00 | $0.00 | $0.00 | $16.21 |
| 2026 | 26645 | CONSERVE - CONSERVATION FUTURES | $0.25 | $0.24 | $0.00 | $0.00 | $0.00 | $0.49 |
| 2026 | 26645 | COROADS - COUNTY ROADS (ROADS, DIV TO CE) | $6.54 | $6.54 | $0.00 | $0.00 | $0.00 | $13.08 |
| 2026 | 26645 | PORTPT - PORT DISTRICT | $3.28 | $3.27 | $0.00 | $0.00 | $0.00 | $6.55 |
| 2026 | 26645 | PUD1 - PUD #1 | $0.53 | $0.52 | $0.00 | $0.00 | $0.00 | $1.05 |
| 2026 | 26645 | LIB1 - LIBRARY DIST #1 | $2.53 | $2.53 | $0.00 | $0.00 | $0.00 | $5.06 |
| 2026 | 26645 | HD2 - HOSP DIST #2 | $0.48 | $0.47 | $0.00 | $0.00 | $0.00 | $0.95 |
| 2026 | 26645 | SD46 - SCHOOL DIST #46 | $6.08 | $6.07 | $0.00 | $0.00 | $0.00 | $12.15 |
| 2026 | 26645 | FD4 - FIRE DISTRICT #4 | $14.73 | $14.71 | $0.00 | $0.00 | $0.00 | $29.44 |
| 2026 | 26645 | EMS4 - FIRE DIST #4 EMS | $4.10 | $4.09 | $0.00 | $0.00 | $0.00 | $8.19 |
| 2026 | 26645 | CEM1 - CEMETERY DIST #1 | $0.10 | $0.09 | $0.00 | $0.00 | $0.00 | $0.19 |
| 2026 | 26645 | JCCD - JC Conservation District | $2.53 | $2.53 | $0.00 | $0.00 | $0.00 | $5.06 |
| 2026 | 26645 | NWA - Noxious Weed Assessment | $2.98 | $2.97 | $0.00 | $0.00 | $0.00 | $5.95 |
| 2026 | 26645 | WAT - Clean Water District | $13.00 | $13.00 | $0.00 | $0.00 | $0.00 | $26.00 |
| 2026 | 26645 | TOTAL: | $85.53 | $85.40 | $0.00 | $0.00 | $0.00 | $170.93 |
|
| 2026 | 26645 | $85.53 | $85.40 | $0.00 | $0.00 | $0.00 | $170.93 |
Statement Details |
| 2025 | 26714 | STATE - STATE LEVY (SCHOOL) | $20.15 | $20.14 | $0.00 | $0.00 | $40.29 | $0.00 |
| 2025 | 26714 | COUNTY - COUNTY LEVIES (CE, DD, VET, MH) | $7.94 | $7.90 | $0.00 | $0.00 | $15.84 | $0.00 |
| 2025 | 26714 | CONSERVE - CONSERVATION FUTURES | $0.24 | $0.24 | $0.00 | $0.00 | $0.48 | $0.00 |
| 2025 | 26714 | COROADS - COUNTY ROADS (ROADS, DIV TO CE) | $6.35 | $6.34 | $0.00 | $0.00 | $12.69 | $0.00 |
| 2025 | 26714 | PORTPT - PORT DISTRICT | $3.24 | $3.23 | $0.00 | $0.00 | $6.47 | $0.00 |
| 2025 | 26714 | PUD1 - PUD #1 | $0.52 | $0.52 | $0.00 | $0.00 | $1.04 | $0.00 |
| 2025 | 26714 | LIB1 - LIBRARY DIST #1 | $2.46 | $2.45 | $0.00 | $0.00 | $4.91 | $0.00 |
| 2025 | 26714 | HD2 - HOSP DIST #2 | $0.46 | $0.46 | $0.00 | $0.00 | $0.92 | $0.00 |
| 2025 | 26714 | SD46 - SCHOOL DIST #46 | $5.33 | $5.32 | $0.00 | $0.00 | $10.65 | $0.00 |
| 2025 | 26714 | FD4 - FIRE DISTRICT #4 | $14.76 | $14.75 | $0.00 | $0.00 | $29.51 | $0.00 |
| 2025 | 26714 | EMS4 - FIRE DIST #4 EMS | $4.10 | $4.09 | $0.00 | $0.00 | $8.19 | $0.00 |
| 2025 | 26714 | CEM1 - CEMETERY DIST #1 | $0.10 | $0.09 | $0.00 | $0.00 | $0.19 | $0.00 |
| 2025 | 26714 | JCCD - JC Conservation District | $2.53 | $2.53 | $0.00 | $0.00 | $5.06 | $0.00 |
| 2025 | 26714 | NWA - Noxious Weed Assessment | $2.15 | $2.15 | $0.00 | $0.00 | $4.30 | $0.00 |
| 2025 | 26714 | WAT - Clean Water District | $13.00 | $13.00 | $0.00 | $0.00 | $26.00 | $0.00 |
| 2025 | 26714 | TOTAL: | $83.33 | $83.21 | $0.00 | $0.00 | $166.54 | $0.00 |
|
| 2025 | 26714 | $83.33 | $83.21 | $0.00 | $0.00 | $166.54 | $0.00 |
Statement Details |
| 2024 | 26769 | STATE - STATE LEVY (SCHOOL) | $19.44 | $19.43 | $0.00 | $0.00 | $38.87 | $0.00 |
| 2024 | 26769 | COUNTY - COUNTY LEVIES (CE, DD, VET, MH) | $8.33 | $8.30 | $0.00 | $0.00 | $16.63 | $0.00 |
| 2024 | 26769 | CONSERVE - CONSERVATION FUTURES | $0.25 | $0.25 | $0.00 | $0.00 | $0.50 | $0.00 |
| 2024 | 26769 | COROADS - COUNTY ROADS (ROADS, DIV TO CE) | $6.70 | $6.68 | $0.00 | $0.00 | $13.38 | $0.00 |
| 2024 | 26769 | PORTPT - PORT DISTRICT | $3.44 | $3.43 | $0.00 | $0.00 | $6.87 | $0.00 |
| 2024 | 26769 | PUD1 - PUD #1 | $0.55 | $0.54 | $0.00 | $0.00 | $1.09 | $0.00 |
| 2024 | 26769 | LIB1 - LIBRARY DIST #1 | $2.59 | $2.59 | $0.00 | $0.00 | $5.18 | $0.00 |
| 2024 | 26769 | HD2 - HOSP DIST #2 | $0.49 | $0.48 | $0.00 | $0.00 | $0.97 | $0.00 |
| 2024 | 26769 | SD46 - SCHOOL DIST #46 | $5.84 | $5.83 | $0.00 | $0.00 | $11.67 | $0.00 |
| 2024 | 26769 | FD4 - FIRE DISTRICT #4 | $15.07 | $15.07 | $0.00 | $0.00 | $30.14 | $0.00 |
| 2024 | 26769 | EMS4 - FIRE DIST #4 EMS | $4.20 | $4.20 | $0.00 | $0.00 | $8.40 | $0.00 |
| 2024 | 26769 | CEM1 - CEMETERY DIST #1 | $0.10 | $0.10 | $0.00 | $0.00 | $0.20 | $0.00 |
| 2024 | 26769 | JCCD - JC Conservation District | $2.53 | $2.53 | $0.00 | $0.00 | $5.06 | $0.00 |
| 2024 | 26769 | NWA - Noxious Weed Assessment | $2.15 | $2.15 | $0.00 | $0.00 | $4.30 | $0.00 |
| 2024 | 26769 | WAT - Clean Water District | $12.50 | $12.50 | $0.00 | $0.00 | $25.00 | $0.00 |
| 2024 | 26769 | TOTAL: | $84.18 | $84.08 | $0.00 | $0.00 | $168.26 | $0.00 |
|
| 2024 | 26769 | $84.18 | $84.08 | $0.00 | $0.00 | $168.26 | $0.00 |
Statement Details |
| 2023 | 26810 | STATE - STATE LEVY (SCHOOL) | $19.78 | $19.77 | $0.00 | $0.00 | $39.55 | $0.00 |
| 2023 | 26810 | COUNTY - COUNTY LEVIES (CE, DD, VET, MH) | $8.63 | $8.63 | $0.00 | $0.00 | $17.26 | $0.00 |
| 2023 | 26810 | CONSERVE - CONSERVATION FUTURES | $0.26 | $0.26 | $0.00 | $0.00 | $0.52 | $0.00 |
| 2023 | 26810 | COROADS - COUNTY ROADS (ROADS, DIV TO CE) | $6.99 | $6.97 | $0.00 | $0.00 | $13.96 | $0.00 |
| 2023 | 26810 | PORTPT - PORT DISTRICT | $3.64 | $3.63 | $0.00 | $0.00 | $7.27 | $0.00 |
| 2023 | 26810 | PUD1 - PUD #1 | $0.57 | $0.57 | $0.00 | $0.00 | $1.14 | $0.00 |
| 2023 | 26810 | LIB1 - LIBRARY DIST #1 | $2.70 | $2.70 | $0.00 | $0.00 | $5.40 | $0.00 |
| 2023 | 26810 | HD2 - HOSP DIST #2 | $0.51 | $0.50 | $0.00 | $0.00 | $1.01 | $0.00 |
| 2023 | 26810 | SD46 - SCHOOL DIST #46 | $6.46 | $6.45 | $0.00 | $0.00 | $12.91 | $0.00 |
| 2023 | 26810 | FD4 - FIRE DISTRICT #4 | $10.74 | $10.73 | $0.00 | $0.00 | $21.47 | $0.00 |
| 2023 | 26810 | EMS4 - FIRE DIST #4 EMS | $3.05 | $3.05 | $0.00 | $0.00 | $6.10 | $0.00 |
| 2023 | 26810 | CEM1 - CEMETERY DIST #1 | $0.11 | $0.11 | $0.00 | $0.00 | $0.22 | $0.00 |
| 2023 | 26810 | JCCD - JC Conservation District | $2.53 | $2.53 | $0.00 | $0.00 | $5.06 | $0.00 |
| 2023 | 26810 | NWA - Noxious Weed Assessment | $2.15 | $2.15 | $0.00 | $0.00 | $4.30 | $0.00 |
| 2023 | 26810 | WAT - Clean Water District | $12.00 | $12.00 | $0.00 | $0.00 | $24.00 | $0.00 |
| 2023 | 26810 | TOTAL: | $80.12 | $80.05 | $0.00 | $0.00 | $160.17 | $0.00 |
|
| 2023 | 26810 | $80.12 | $80.05 | $0.00 | $0.00 | $160.17 | $0.00 |
Values
| (+) Improvement Homesite Value: | + | $0 | |
| (+) Improvement Non-Homesite Value: | + | $0 | |
| (+) Land Homesite Value: | + | $0 | |
| (+) Land Non-Homesite Value: | + | $17,640 | |
| (+) Curr Use (HS): | + | $0 | $0 |
| (+) Curr Use (NHS): | + | $0 | $0 |
| | | -------------------------- | |
| (=) Market Value: | = | $17,640 | |
| (–) Productivity Loss: | – | $0 | |
| | | -------------------------- | |
| (=) Subtotal: | = | $17,640 | |
| (+) Senior Appraised Value: | + | $0 | |
| (+) Non-Senior Appraised Value: | + | $17,640 | |
| | | -------------------------- | |
| (=) Total Appraised Value: | = | $17,640 | |
| (–) Senior Exemption Loss: | – | $0 | |
| (–) Exemption Loss: | – | $0 | |
| | | -------------------------- | |
| (=) Taxable Value: | = | $17,640 | |
Taxing Jurisdiction
| Owner: | FRITZ FAMILY TRUST | | |
| % Ownership: | 100.0000000000% | | |
| Total Value: | $17,640 | | |
| Tax Area: | 0441 - 1-46F4E4H2C1L1P2 |
| CE | COUNTY CURRENT EXPENSE | 0.9034619479 | $17,640 | $17,640 | $15.94 | | |
| CNTYDD | DEVELOPMENTAL DISABILITIES | 0.0052121823 | $17,640 | $17,640 | $0.09 | | |
| CNTYVET | VETERANS RELIEF | 0.0052777810 | $17,640 | $17,640 | $0.09 | | |
| MENTAL | MENTAL HEALTH | 0.0052121823 | $17,640 | $17,640 | $0.09 | | |
| ROADS | COUNTY ROADS | 0.7415066410 | $17,640 | $17,640 | $13.08 | | |
| ROADSCU | COUNTY ROADS TO CUR EXP | 0.0000000000 | $17,640 | $17,640 | $0.00 | | |
| HOSP2CASH | HOSP DIST #2 GENERAL | 0.0536075306 | $17,640 | $17,640 | $0.95 | | |
| SCH46MO | SCHOOL DIST #46 EP & O | 0.6890207067 | $17,640 | $17,640 | $12.15 | | |
| CEM1 | CEMETERY DIST #1 GENERAL | 0.0107168292 | $17,640 | $17,640 | $0.19 | | |
| CONSERVE | CONSERVATION FUTURES | 0.0275621078 | $17,640 | $17,640 | $0.49 | | |
| EMS4 | FIRE DIST #4 EMS | 0.4644216158 | $17,640 | $17,640 | $8.19 | | |
| FD4 | FIRE DIST #4 GENERAL | 1.3939598390 | $17,640 | $17,640 | $24.59 | | |
| FD4BOND | FIRE DIST #4 BOND 2019 | 0.2748466981 | $17,640 | $17,640 | $4.85 | | |
| LIB1 | LIBRARY DIST #1 GENERAL | 0.2868827388 | $17,640 | $17,640 | $5.06 | | |
| PORTPT | PORT OF PT GENERAL | 0.1134941229 | $17,640 | $17,640 | $2.00 | | |
| PORTPTIDD | PORT OF PT IDD 2019 | 0.2577346692 | $17,640 | $17,640 | $4.55 | | |
| PUD1 | PUD #1 GENERAL | 0.0597888892 | $17,640 | $17,640 | $1.05 | | |
| STATE | STATE SCHOOL PART 1 | 1.4940692947 | $17,640 | $17,640 | $26.36 | | |
| STATE2 | STATE SCHOOL PART 2 | 0.8050170049 | $17,640 | $17,640 | $14.20 | | |
| | Total Tax Rate: | 7.5917927814 | | | | | |
| | | | | Taxes w/Current Exemptions: | $133.92 | | |
| | | | | Taxes w/o Exemptions: | $133.92 | | |
Improvement / Building
Sketch
| No sketches available for this property. |
Property Image
Land
| 1 | 1250-1185L | | 0.0000 | 0.00 | 0.00 | 0.00 | 1.00 | $17,640 | $0 |
Roll Value History
| 2026 | N/A | N/A | N/A | N/A | N/A |
| 2025 | $0 | $17,640 | $0 | $17,640 | $17,640 |
| 2024 | $0 | $16,800 | $0 | $16,800 | $16,800 |
| 2023 | $0 | $16,800 | $0 | $16,800 | $16,800 |
| 2022 | $0 | $16,800 | $0 | $16,800 | $16,800 |
Deed and Sales History
| 1 | 08/19/2025 | WD | Warranty Deed | JADA FRITZ | FRITZ FAMILY TRUST | | | | 144784 | |
| 2 | 04/21/2006 | QCD | Quit Claim Deed | LENSING, GARRY, LENSING, | FRITZ, JADA | | | $12,000.00 | 106437 | 0 |
| 3 | 05/26/2004 | QCD | Quit Claim Deed | WIRT, RICHARD | LENSING, GARRY/ALAN | 0 | 0 | $0.00 | 101309 | 0 |
| 4 | 11/18/2003 | WD | Warranty Deed | LENSING, ANNA L ESTATE OF | WIRT, RICHARD E | 0 | 0 | $0.00 | 98944 | 0 |
Payout Agreement
| No payout information available.. |