Property
Account |
| Property ID: | 37450 | Abbreviated Legal Description: | OLYMPIC CANAL ADDITION 11 BLK 2 LOT 47 SUBJ/REST COVT #551482 |
| Parcel # / Geo ID: | 983100208 | Agent Code: | |
| Type: | Real | | |
| Tax Area: | 0441 - 1-46F4E4H2C1L1P2 | Land Use Code | 91 |
| Open Space: | N | DFL | N |
| Historic Property: | N | Remodel Property: | N |
| Multi-Family Redevelopment: | N | | |
| Township: | 25N | Section: | 21 |
| Range: | 2W |
Location |
| Address: | | Mapsco: | 024/045 |
| Neighborhood: | OLYMPIC CANAL TRACTS | Map ID: | |
| Neighborhood CD: | 1250 |
Owner |
| Name: | MYSTI C COCCIA-EDDY | Owner ID: | 109699 |
| Mailing Address: | MARK A EDDY 11042 23RD AVE NE SEATTLE, WA 98125-6630 | % Ownership: | 100.0000000000% |
| | | Exemptions: | |
Pay Tax Due
Select the appropriate checkbox next to the year to be paid. Multiple years may be selected.
*Convenience Fee not included
Taxes and Assessment Details
Property Tax Information as of
03/13/2026
Click on "Statement Details" to expand or collapse a tax statement.
* Please enter a valid date ** Please enter a valid date *
Statement Details |
| 2026 | 26657 | STATE - STATE LEVY (SCHOOL) | $18.25 | $18.25 | $0.00 | $0.00 | $0.00 | $36.50 |
| 2026 | 26657 | COUNTY - COUNTY LEVIES (CE, DD, VET, MH) | $7.29 | $7.29 | $0.00 | $0.00 | $0.00 | $14.58 |
| 2026 | 26657 | CONSERVE - CONSERVATION FUTURES | $0.22 | $0.22 | $0.00 | $0.00 | $0.00 | $0.44 |
| 2026 | 26657 | COROADS - COUNTY ROADS (ROADS, DIV TO CE) | $5.89 | $5.88 | $0.00 | $0.00 | $0.00 | $11.77 |
| 2026 | 26657 | PORTPT - PORT DISTRICT | $2.95 | $2.94 | $0.00 | $0.00 | $0.00 | $5.89 |
| 2026 | 26657 | PUD1 - PUD #1 | $0.48 | $0.47 | $0.00 | $0.00 | $0.00 | $0.95 |
| 2026 | 26657 | LIB1 - LIBRARY DIST #1 | $2.28 | $2.27 | $0.00 | $0.00 | $0.00 | $4.55 |
| 2026 | 26657 | HD2 - HOSP DIST #2 | $0.43 | $0.42 | $0.00 | $0.00 | $0.00 | $0.85 |
| 2026 | 26657 | SD46 - SCHOOL DIST #46 | $5.47 | $5.47 | $0.00 | $0.00 | $0.00 | $10.94 |
| 2026 | 26657 | FD4 - FIRE DISTRICT #4 | $13.25 | $13.24 | $0.00 | $0.00 | $0.00 | $26.49 |
| 2026 | 26657 | EMS4 - FIRE DIST #4 EMS | $3.69 | $3.68 | $0.00 | $0.00 | $0.00 | $7.37 |
| 2026 | 26657 | CEM1 - CEMETERY DIST #1 | $0.09 | $0.08 | $0.00 | $0.00 | $0.00 | $0.17 |
| 2026 | 26657 | FP - DNR Forest Fire Protection Assmt | $8.50 | $8.50 | $0.00 | $0.00 | $0.00 | $17.00 |
| 2026 | 26657 | FPLCA - DNR Landowner Contingency Assmt | $3.00 | $3.00 | $0.00 | $0.00 | $0.00 | $6.00 |
| 2026 | 26657 | JCCD - JC Conservation District | $2.53 | $2.53 | $0.00 | $0.00 | $0.00 | $5.06 |
| 2026 | 26657 | NWA - Noxious Weed Assessment | $2.98 | $2.97 | $0.00 | $0.00 | $0.00 | $5.95 |
| 2026 | 26657 | WAT - Clean Water District | $13.00 | $13.00 | $0.00 | $0.00 | $0.00 | $26.00 |
| 2026 | 26657 | FP ADMIN - FP ADMIN | $0.50 | $0.00 | $0.00 | $0.00 | $0.00 | $0.50 |
| 2026 | 26657 | TOTAL: | $90.80 | $90.21 | $0.00 | $0.00 | $0.00 | $181.01 |
|
| 2026 | 26657 | $90.80 | $90.21 | $0.00 | $0.00 | $0.00 | $181.01 |
Statement Details |
| 2025 | 26726 | STATE - STATE LEVY (SCHOOL) | $18.14 | $18.12 | $0.00 | $0.00 | $36.26 | $0.00 |
| 2025 | 26726 | COUNTY - COUNTY LEVIES (CE, DD, VET, MH) | $7.13 | $7.13 | $0.00 | $0.00 | $14.26 | $0.00 |
| 2025 | 26726 | CONSERVE - CONSERVATION FUTURES | $0.22 | $0.21 | $0.00 | $0.00 | $0.43 | $0.00 |
| 2025 | 26726 | COROADS - COUNTY ROADS (ROADS, DIV TO CE) | $5.72 | $5.70 | $0.00 | $0.00 | $11.42 | $0.00 |
| 2025 | 26726 | PORTPT - PORT DISTRICT | $2.91 | $2.91 | $0.00 | $0.00 | $5.82 | $0.00 |
| 2025 | 26726 | PUD1 - PUD #1 | $0.47 | $0.46 | $0.00 | $0.00 | $0.93 | $0.00 |
| 2025 | 26726 | LIB1 - LIBRARY DIST #1 | $2.21 | $2.21 | $0.00 | $0.00 | $4.42 | $0.00 |
| 2025 | 26726 | HD2 - HOSP DIST #2 | $0.42 | $0.41 | $0.00 | $0.00 | $0.83 | $0.00 |
| 2025 | 26726 | SD46 - SCHOOL DIST #46 | $4.79 | $4.79 | $0.00 | $0.00 | $9.58 | $0.00 |
| 2025 | 26726 | FD4 - FIRE DISTRICT #4 | $13.28 | $13.28 | $0.00 | $0.00 | $26.56 | $0.00 |
| 2025 | 26726 | EMS4 - FIRE DIST #4 EMS | $3.69 | $3.68 | $0.00 | $0.00 | $7.37 | $0.00 |
| 2025 | 26726 | CEM1 - CEMETERY DIST #1 | $0.09 | $0.08 | $0.00 | $0.00 | $0.17 | $0.00 |
| 2025 | 26726 | FP - DNR Forest Fire Protection Assmt | $8.50 | $8.50 | $0.00 | $0.00 | $17.00 | $0.00 |
| 2025 | 26726 | FPLCA - DNR Landowner Contingency Assmt | $3.00 | $3.00 | $0.00 | $0.00 | $6.00 | $0.00 |
| 2025 | 26726 | JCCD - JC Conservation District | $2.53 | $2.53 | $0.00 | $0.00 | $5.06 | $0.00 |
| 2025 | 26726 | NWA - Noxious Weed Assessment | $2.15 | $2.15 | $0.00 | $0.00 | $4.30 | $0.00 |
| 2025 | 26726 | WAT - Clean Water District | $13.00 | $13.00 | $0.00 | $0.00 | $26.00 | $0.00 |
| 2025 | 26726 | FP ADMIN - FP ADMIN | $0.50 | $0.00 | $0.00 | $0.00 | $0.50 | $0.00 |
| 2025 | 26726 | TOTAL: | $88.75 | $88.16 | $0.00 | $0.00 | $176.91 | $0.00 |
|
| 2025 | 26726 | $88.75 | $88.16 | $0.00 | $0.00 | $176.91 | $0.00 |
Statement Details |
| 2024 | 26781 | STATE - STATE LEVY (SCHOOL) | $17.50 | $17.48 | $0.00 | $0.00 | $34.98 | $0.00 |
| 2024 | 26781 | COUNTY - COUNTY LEVIES (CE, DD, VET, MH) | $7.49 | $7.47 | $0.00 | $0.00 | $14.96 | $0.00 |
| 2024 | 26781 | CONSERVE - CONSERVATION FUTURES | $0.23 | $0.22 | $0.00 | $0.00 | $0.45 | $0.00 |
| 2024 | 26781 | COROADS - COUNTY ROADS (ROADS, DIV TO CE) | $6.03 | $6.02 | $0.00 | $0.00 | $12.05 | $0.00 |
| 2024 | 26781 | PORTPT - PORT DISTRICT | $3.10 | $3.08 | $0.00 | $0.00 | $6.18 | $0.00 |
| 2024 | 26781 | PUD1 - PUD #1 | $0.49 | $0.49 | $0.00 | $0.00 | $0.98 | $0.00 |
| 2024 | 26781 | LIB1 - LIBRARY DIST #1 | $2.33 | $2.33 | $0.00 | $0.00 | $4.66 | $0.00 |
| 2024 | 26781 | HD2 - HOSP DIST #2 | $0.44 | $0.43 | $0.00 | $0.00 | $0.87 | $0.00 |
| 2024 | 26781 | SD46 - SCHOOL DIST #46 | $5.25 | $5.25 | $0.00 | $0.00 | $10.50 | $0.00 |
| 2024 | 26781 | FD4 - FIRE DISTRICT #4 | $13.57 | $13.56 | $0.00 | $0.00 | $27.13 | $0.00 |
| 2024 | 26781 | EMS4 - FIRE DIST #4 EMS | $3.78 | $3.78 | $0.00 | $0.00 | $7.56 | $0.00 |
| 2024 | 26781 | CEM1 - CEMETERY DIST #1 | $0.09 | $0.09 | $0.00 | $0.00 | $0.18 | $0.00 |
| 2024 | 26781 | FP - DNR Forest Fire Protection Assmt | $8.50 | $8.50 | $0.00 | $0.00 | $17.00 | $0.00 |
| 2024 | 26781 | FPLCA - DNR Landowner Contingency Assmt | $3.00 | $3.00 | $0.00 | $0.00 | $6.00 | $0.00 |
| 2024 | 26781 | JCCD - JC Conservation District | $2.53 | $2.53 | $0.00 | $0.00 | $5.06 | $0.00 |
| 2024 | 26781 | NWA - Noxious Weed Assessment | $2.15 | $2.15 | $0.00 | $0.00 | $4.30 | $0.00 |
| 2024 | 26781 | WAT - Clean Water District | $12.50 | $12.50 | $0.00 | $0.00 | $25.00 | $0.00 |
| 2024 | 26781 | FP ADMIN - FP ADMIN | $0.50 | $0.00 | $0.00 | $0.00 | $0.50 | $0.00 |
| 2024 | 26781 | TOTAL: | $89.48 | $88.88 | $0.00 | $0.00 | $178.36 | $0.00 |
|
| 2024 | 26781 | $89.48 | $88.88 | $0.00 | $0.00 | $178.36 | $0.00 |
Statement Details |
| 2023 | 26822 | STATE - STATE LEVY (SCHOOL) | $17.80 | $17.79 | $0.00 | $0.00 | $35.59 | $0.00 |
| 2023 | 26822 | COUNTY - COUNTY LEVIES (CE, DD, VET, MH) | $7.79 | $7.75 | $0.00 | $0.00 | $15.54 | $0.00 |
| 2023 | 26822 | CONSERVE - CONSERVATION FUTURES | $0.24 | $0.23 | $0.00 | $0.00 | $0.47 | $0.00 |
| 2023 | 26822 | COROADS - COUNTY ROADS (ROADS, DIV TO CE) | $6.29 | $6.27 | $0.00 | $0.00 | $12.56 | $0.00 |
| 2023 | 26822 | PORTPT - PORT DISTRICT | $3.28 | $3.27 | $0.00 | $0.00 | $6.55 | $0.00 |
| 2023 | 26822 | PUD1 - PUD #1 | $0.52 | $0.51 | $0.00 | $0.00 | $1.03 | $0.00 |
| 2023 | 26822 | LIB1 - LIBRARY DIST #1 | $2.43 | $2.43 | $0.00 | $0.00 | $4.86 | $0.00 |
| 2023 | 26822 | HD2 - HOSP DIST #2 | $0.46 | $0.44 | $0.00 | $0.00 | $0.90 | $0.00 |
| 2023 | 26822 | SD46 - SCHOOL DIST #46 | $5.81 | $5.81 | $0.00 | $0.00 | $11.62 | $0.00 |
| 2023 | 26822 | FD4 - FIRE DISTRICT #4 | $9.66 | $9.66 | $0.00 | $0.00 | $19.32 | $0.00 |
| 2023 | 26822 | EMS4 - FIRE DIST #4 EMS | $2.75 | $2.74 | $0.00 | $0.00 | $5.49 | $0.00 |
| 2023 | 26822 | CEM1 - CEMETERY DIST #1 | $0.10 | $0.09 | $0.00 | $0.00 | $0.19 | $0.00 |
| 2023 | 26822 | FP - DNR Forest Fire Protection Assmt | $8.50 | $8.50 | $0.00 | $0.00 | $17.00 | $0.00 |
| 2023 | 26822 | FPLCA - DNR Landowner Contingency Assmt | $3.00 | $3.00 | $0.00 | $0.00 | $6.00 | $0.00 |
| 2023 | 26822 | JCCD - JC Conservation District | $2.53 | $2.53 | $0.00 | $0.00 | $5.06 | $0.00 |
| 2023 | 26822 | NWA - Noxious Weed Assessment | $2.15 | $2.15 | $0.00 | $0.00 | $4.30 | $0.00 |
| 2023 | 26822 | WAT - Clean Water District | $12.00 | $12.00 | $0.00 | $0.00 | $24.00 | $0.00 |
| 2023 | 26822 | FP ADMIN - FP ADMIN | $0.50 | $0.00 | $0.00 | $0.00 | $0.50 | $0.00 |
| 2023 | 26822 | TOTAL: | $85.81 | $85.17 | $0.00 | $0.00 | $170.98 | $0.00 |
|
| 2023 | 26822 | $85.81 | $85.17 | $0.00 | $0.00 | $170.98 | $0.00 |
Values
| (+) Improvement Homesite Value: | + | $0 | |
| (+) Improvement Non-Homesite Value: | + | $0 | |
| (+) Land Homesite Value: | + | $0 | |
| (+) Land Non-Homesite Value: | + | $15,876 | |
| (+) Curr Use (HS): | + | $0 | $0 |
| (+) Curr Use (NHS): | + | $0 | $0 |
| | | -------------------------- | |
| (=) Market Value: | = | $15,876 | |
| (–) Productivity Loss: | – | $0 | |
| | | -------------------------- | |
| (=) Subtotal: | = | $15,876 | |
| (+) Senior Appraised Value: | + | $0 | |
| (+) Non-Senior Appraised Value: | + | $15,876 | |
| | | -------------------------- | |
| (=) Total Appraised Value: | = | $15,876 | |
| (–) Senior Exemption Loss: | – | $0 | |
| (–) Exemption Loss: | – | $0 | |
| | | -------------------------- | |
| (=) Taxable Value: | = | $15,876 | |
Taxing Jurisdiction
| Owner: | MYSTI C COCCIA-EDDY | | |
| % Ownership: | 100.0000000000% | | |
| Total Value: | $15,876 | | |
| Tax Area: | 0441 - 1-46F4E4H2C1L1P2 |
| CE | COUNTY CURRENT EXPENSE | 0.9034619479 | $15,876 | $15,876 | $14.34 | | |
| CNTYDD | DEVELOPMENTAL DISABILITIES | 0.0052121823 | $15,876 | $15,876 | $0.08 | | |
| CNTYVET | VETERANS RELIEF | 0.0052777810 | $15,876 | $15,876 | $0.08 | | |
| MENTAL | MENTAL HEALTH | 0.0052121823 | $15,876 | $15,876 | $0.08 | | |
| ROADS | COUNTY ROADS | 0.7415066410 | $15,876 | $15,876 | $11.77 | | |
| ROADSCU | COUNTY ROADS TO CUR EXP | 0.0000000000 | $15,876 | $15,876 | $0.00 | | |
| HOSP2CASH | HOSP DIST #2 GENERAL | 0.0536075306 | $15,876 | $15,876 | $0.85 | | |
| SCH46MO | SCHOOL DIST #46 EP & O | 0.6890207067 | $15,876 | $15,876 | $10.94 | | |
| CEM1 | CEMETERY DIST #1 GENERAL | 0.0107168292 | $15,876 | $15,876 | $0.17 | | |
| CONSERVE | CONSERVATION FUTURES | 0.0275621078 | $15,876 | $15,876 | $0.44 | | |
| EMS4 | FIRE DIST #4 EMS | 0.4644216158 | $15,876 | $15,876 | $7.37 | | |
| FD4 | FIRE DIST #4 GENERAL | 1.3939598390 | $15,876 | $15,876 | $22.13 | | |
| FD4BOND | FIRE DIST #4 BOND 2019 | 0.2748466981 | $15,876 | $15,876 | $4.36 | | |
| LIB1 | LIBRARY DIST #1 GENERAL | 0.2868827388 | $15,876 | $15,876 | $4.55 | | |
| PORTPT | PORT OF PT GENERAL | 0.1134941229 | $15,876 | $15,876 | $1.80 | | |
| PORTPTIDD | PORT OF PT IDD 2019 | 0.2577346692 | $15,876 | $15,876 | $4.09 | | |
| PUD1 | PUD #1 GENERAL | 0.0597888892 | $15,876 | $15,876 | $0.95 | | |
| STATE | STATE SCHOOL PART 1 | 1.4940692947 | $15,876 | $15,876 | $23.72 | | |
| STATE2 | STATE SCHOOL PART 2 | 0.8050170049 | $15,876 | $15,876 | $12.78 | | |
| | Total Tax Rate: | 7.5917927814 | | | | | |
| | | | | Taxes w/Current Exemptions: | $120.50 | | |
| | | | | Taxes w/o Exemptions: | $120.50 | | |
Improvement / Building
Sketch
| No sketches available for this property. |
Property Image
Land
| 1 | 1250-1185L | | 0.0000 | 0.00 | 0.00 | 0.00 | 1.00 | $15,876 | $0 |
Roll Value History
| 2026 | N/A | N/A | N/A | N/A | N/A |
| 2025 | $0 | $15,876 | $0 | $15,876 | $15,876 |
| 2024 | $0 | $15,120 | $0 | $15,120 | $15,120 |
| 2023 | $0 | $15,120 | $0 | $15,120 | $15,120 |
| 2022 | $0 | $15,120 | $0 | $15,120 | $15,120 |
Deed and Sales History
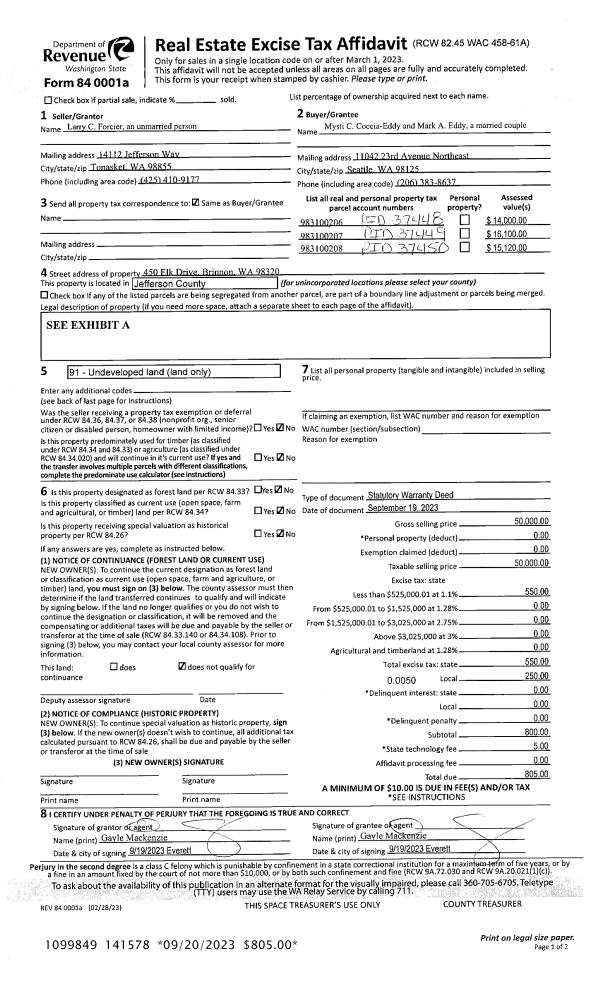
| 1 | 09/19/2023 | SWD | Statutory Warranty Deed | LARRY C FORCIER | MYSTI C COCCIA-EDDY | | | $50,000.00 | 141578 | |
|   | |
| 2 | 10/08/2019 | SWD | Statutory Warranty Deed | LARRY L HOWE TRUSTEE | LARRY C FORCIER | | | $32,500.00 | 133276 | |
|   | |
| 3 | 07/17/2006 | TRED | Trustee Deed | WICHMANN, BRAIN AAL | HOWE, LARRY L/TRUSTEE | | | $0.00 | 107146 | 0 |
| 4 | 06/19/2002 | SWD | Statutory Warranty Deed | FRANK L STUMPF | GARY E/LORETTA A FREILINGER | 0 | 0 | $8,000.00 | 95070 | 0 |
Payout Agreement
| No payout information available.. |