Property
Account |
| Property ID: | 37461 | Abbreviated Legal Description: | ONATRUE FARMS SUBDIVISION PARCEL 5 SUBJ/REST COVT #564347 |
| Parcel # / Geo ID: | 983200005 | Agent Code: | |
| Type: | Real | | |
| Tax Area: | 0111 - 1-50F1E1H2L1 | Land Use Code | 11 |
| Open Space: | N | DFL | N |
| Historic Property: | N | Remodel Property: | N |
| Multi-Family Redevelopment: | N | | |
| Township: | 30N | Section: | 8 |
| Range: | 1W |
Location |
| Address: | 159 JIMSON LN PORT TOWNSEND, WA 98368 | Mapsco: | 062/034 |
| Neighborhood: | S8 & 9 T30 R1W, BRIGGS, SYNDICATE, HOMESTEAD, KOZELISKY | Map ID: | |
| Neighborhood CD: | 5330 |
Owner |
| Name: | MATTHEW K STEVERSON & JANNEKE E PETERSEN | Owner ID: | 104241 |
| Mailing Address: | PO BOX 44 KEYPORT, WA 98345-0044 | % Ownership: | 100.0000000000% |
| | | Exemptions: | |
Pay Tax Due
Select the appropriate checkbox next to the year to be paid. Multiple years may be selected.
*Convenience Fee not included
Taxes and Assessment Details
Property Tax Information as of
03/11/2026
Click on "Statement Details" to expand or collapse a tax statement.
* Please enter a valid date ** Please enter a valid date *
Statement Details |
| 2026 | 26668 | STATE - STATE LEVY (SCHOOL) | $700.16 | $700.14 | $0.00 | $0.00 | $0.00 | $1400.30 |
| 2026 | 26668 | COUNTY - COUNTY LEVIES (CE, DD, VET, MH) | $279.93 | $279.89 | $0.00 | $0.00 | $0.00 | $559.82 |
| 2026 | 26668 | CONSERVE - CONSERVATION FUTURES | $8.40 | $8.39 | $0.00 | $0.00 | $0.00 | $16.79 |
| 2026 | 26668 | COROADS - COUNTY ROADS (ROADS, DIV TO CE) | $225.82 | $225.81 | $0.00 | $0.00 | $0.00 | $451.63 |
| 2026 | 26668 | PORTPT - PORT DISTRICT | $113.06 | $113.05 | $0.00 | $0.00 | $0.00 | $226.11 |
| 2026 | 26668 | PUD1 - PUD #1 | $18.21 | $18.21 | $0.00 | $0.00 | $0.00 | $36.42 |
| 2026 | 26668 | LIB1 - LIBRARY DIST #1 | $87.37 | $87.36 | $0.00 | $0.00 | $0.00 | $174.73 |
| 2026 | 26668 | HD2 - HOSP DIST #2 | $16.33 | $16.32 | $0.00 | $0.00 | $0.00 | $32.65 |
| 2026 | 26668 | SD50 - SCHOOL DIST #50 | $554.67 | $554.66 | $0.00 | $0.00 | $0.00 | $1109.33 |
| 2026 | 26668 | FD1 - FIRE DISTRICT #1 | $370.68 | $370.67 | $0.00 | $0.00 | $0.00 | $741.35 |
| 2026 | 26668 | EMS1 - FIRE DIST #1 EMS | $142.52 | $142.52 | $0.00 | $0.00 | $0.00 | $285.04 |
| 2026 | 26668 | FP - DNR Forest Fire Protection Assmt | $8.50 | $8.50 | $0.00 | $0.00 | $0.00 | $17.00 |
| 2026 | 26668 | FPLCA - DNR Landowner Contingency Assmt | $3.00 | $3.00 | $0.00 | $0.00 | $0.00 | $6.00 |
| 2026 | 26668 | JCCD - JC Conservation District | $2.75 | $2.75 | $0.00 | $0.00 | $0.00 | $5.50 |
| 2026 | 26668 | NWA - Noxious Weed Assessment | $3.88 | $3.87 | $0.00 | $0.00 | $0.00 | $7.75 |
| 2026 | 26668 | OSS - On Site Septic | $23.10 | $23.10 | $0.00 | $0.00 | $0.00 | $46.20 |
| 2026 | 26668 | WAT - Clean Water District | $13.00 | $13.00 | $0.00 | $0.00 | $0.00 | $26.00 |
| 2026 | 26668 | FP ADMIN - FP ADMIN | $0.50 | $0.00 | $0.00 | $0.00 | $0.00 | $0.50 |
| 2026 | 26668 | TOTAL: | $2571.88 | $2571.24 | $0.00 | $0.00 | $0.00 | $5143.12 |
|
| 2026 | 26668 | $2571.88 | $2571.24 | $0.00 | $0.00 | $0.00 | $5143.12 |
Statement Details |
| 2025 | 26737 | STATE - STATE LEVY (SCHOOL) | $730.28 | $730.28 | $0.00 | $0.00 | $1460.56 | $0.00 |
| 2025 | 26737 | COUNTY - COUNTY LEVIES (CE, DD, VET, MH) | $287.19 | $287.16 | $0.00 | $0.00 | $574.35 | $0.00 |
| 2025 | 26737 | CONSERVE - CONSERVATION FUTURES | $8.61 | $8.61 | $0.00 | $0.00 | $17.22 | $0.00 |
| 2025 | 26737 | COROADS - COUNTY ROADS (ROADS, DIV TO CE) | $230.08 | $230.07 | $0.00 | $0.00 | $460.15 | $0.00 |
| 2025 | 26737 | PORTPT - PORT DISTRICT | $117.19 | $117.18 | $0.00 | $0.00 | $234.37 | $0.00 |
| 2025 | 26737 | PUD1 - PUD #1 | $18.79 | $18.79 | $0.00 | $0.00 | $37.58 | $0.00 |
| 2025 | 26737 | LIB1 - LIBRARY DIST #1 | $89.02 | $89.01 | $0.00 | $0.00 | $178.03 | $0.00 |
| 2025 | 26737 | HD2 - HOSP DIST #2 | $16.76 | $16.75 | $0.00 | $0.00 | $33.51 | $0.00 |
| 2025 | 26737 | SD50 - SCHOOL DIST #50 | $533.72 | $533.71 | $0.00 | $0.00 | $1067.43 | $0.00 |
| 2025 | 26737 | FD1 - FIRE DISTRICT #1 | $378.96 | $378.96 | $0.00 | $0.00 | $757.92 | $0.00 |
| 2025 | 26737 | EMS1 - FIRE DIST #1 EMS | $145.76 | $145.76 | $0.00 | $0.00 | $291.52 | $0.00 |
| 2025 | 26737 | FP - DNR Forest Fire Protection Assmt | $8.50 | $8.50 | $0.00 | $0.00 | $17.00 | $0.00 |
| 2025 | 26737 | FPLCA - DNR Landowner Contingency Assmt | $3.00 | $3.00 | $0.00 | $0.00 | $6.00 | $0.00 |
| 2025 | 26737 | JCCD - JC Conservation District | $2.75 | $2.75 | $0.00 | $0.00 | $5.50 | $0.00 |
| 2025 | 26737 | NWA - Noxious Weed Assessment | $2.75 | $2.75 | $0.00 | $0.00 | $5.50 | $0.00 |
| 2025 | 26737 | OSS - On Site Septic | $21.50 | $21.50 | $0.00 | $0.00 | $43.00 | $0.00 |
| 2025 | 26737 | WAT - Clean Water District | $13.00 | $13.00 | $0.00 | $0.00 | $26.00 | $0.00 |
| 2025 | 26737 | FP ADMIN - FP ADMIN | $0.50 | $0.00 | $0.00 | $0.00 | $0.50 | $0.00 |
| 2025 | 26737 | TOTAL: | $2608.36 | $2607.78 | $0.00 | $0.00 | $5216.14 | $0.00 |
|
| 2025 | 26737 | $2608.36 | $2607.78 | $0.00 | $0.00 | $5216.14 | $0.00 |
Statement Details |
| 2024 | 26792 | STATE - STATE LEVY (SCHOOL) | $650.69 | $650.68 | $0.00 | $0.00 | $1301.37 | $0.00 |
| 2024 | 26792 | COUNTY - COUNTY LEVIES (CE, DD, VET, MH) | $278.43 | $278.43 | $0.00 | $0.00 | $556.86 | $0.00 |
| 2024 | 26792 | CONSERVE - CONSERVATION FUTURES | $8.35 | $8.35 | $0.00 | $0.00 | $16.70 | $0.00 |
| 2024 | 26792 | COROADS - COUNTY ROADS (ROADS, DIV TO CE) | $224.05 | $224.04 | $0.00 | $0.00 | $448.09 | $0.00 |
| 2024 | 26792 | PORTPT - PORT DISTRICT | $115.01 | $115.00 | $0.00 | $0.00 | $230.01 | $0.00 |
| 2024 | 26792 | PUD1 - PUD #1 | $18.29 | $18.29 | $0.00 | $0.00 | $36.58 | $0.00 |
| 2024 | 26792 | LIB1 - LIBRARY DIST #1 | $86.68 | $86.68 | $0.00 | $0.00 | $173.36 | $0.00 |
| 2024 | 26792 | HD2 - HOSP DIST #2 | $16.25 | $16.24 | $0.00 | $0.00 | $32.49 | $0.00 |
| 2024 | 26792 | SD50 - SCHOOL DIST #50 | $526.45 | $526.42 | $0.00 | $0.00 | $1052.87 | $0.00 |
| 2024 | 26792 | FD1 - FIRE DISTRICT #1 | $368.16 | $368.15 | $0.00 | $0.00 | $736.31 | $0.00 |
| 2024 | 26792 | EMS1 - FIRE DIST #1 EMS | $140.62 | $140.62 | $0.00 | $0.00 | $281.24 | $0.00 |
| 2024 | 26792 | FP - DNR Forest Fire Protection Assmt | $8.50 | $8.50 | $0.00 | $0.00 | $17.00 | $0.00 |
| 2024 | 26792 | FPLCA - DNR Landowner Contingency Assmt | $3.00 | $3.00 | $0.00 | $0.00 | $6.00 | $0.00 |
| 2024 | 26792 | JCCD - JC Conservation District | $2.75 | $2.75 | $0.00 | $0.00 | $5.50 | $0.00 |
| 2024 | 26792 | NWA - Noxious Weed Assessment | $2.75 | $2.75 | $0.00 | $0.00 | $5.50 | $0.00 |
| 2024 | 26792 | OSS - On Site Septic | $21.00 | $21.00 | $0.00 | $0.00 | $42.00 | $0.00 |
| 2024 | 26792 | WAT - Clean Water District | $12.50 | $12.50 | $0.00 | $0.00 | $25.00 | $0.00 |
| 2024 | 26792 | FP ADMIN - FP ADMIN | $0.50 | $0.00 | $0.00 | $0.00 | $0.50 | $0.00 |
| 2024 | 26792 | TOTAL: | $2483.98 | $2483.40 | $0.00 | $0.00 | $4967.38 | $0.00 |
|
| 2024 | 26792 | $2483.98 | $2483.40 | $0.00 | $0.00 | $4967.38 | $0.00 |
Statement Details |
| 2023 | 26833 | STATE - STATE LEVY (SCHOOL) | $602.52 | $602.50 | $0.00 | $0.00 | $1205.02 | $0.00 |
| 2023 | 26833 | COUNTY - COUNTY LEVIES (CE, DD, VET, MH) | $262.93 | $262.91 | $0.00 | $0.00 | $525.84 | $0.00 |
| 2023 | 26833 | CONSERVE - CONSERVATION FUTURES | $7.89 | $7.88 | $0.00 | $0.00 | $15.77 | $0.00 |
| 2023 | 26833 | COROADS - COUNTY ROADS (ROADS, DIV TO CE) | $212.72 | $212.71 | $0.00 | $0.00 | $425.43 | $0.00 |
| 2023 | 26833 | PORTPT - PORT DISTRICT | $110.76 | $110.75 | $0.00 | $0.00 | $221.51 | $0.00 |
| 2023 | 26833 | PUD1 - PUD #1 | $17.43 | $17.43 | $0.00 | $0.00 | $34.86 | $0.00 |
| 2023 | 26833 | LIB1 - LIBRARY DIST #1 | $82.30 | $82.30 | $0.00 | $0.00 | $164.60 | $0.00 |
| 2023 | 26833 | HD2 - HOSP DIST #2 | $15.35 | $15.34 | $0.00 | $0.00 | $30.69 | $0.00 |
| 2023 | 26833 | SD50 - SCHOOL DIST #50 | $478.11 | $478.10 | $0.00 | $0.00 | $956.21 | $0.00 |
| 2023 | 26833 | FD1 - FIRE DISTRICT #1 | $216.59 | $216.59 | $0.00 | $0.00 | $433.18 | $0.00 |
| 2023 | 26833 | EMS1 - FIRE DIST #1 EMS | $92.14 | $92.13 | $0.00 | $0.00 | $184.27 | $0.00 |
| 2023 | 26833 | FP - DNR Forest Fire Protection Assmt | $8.50 | $8.50 | $0.00 | $0.00 | $17.00 | $0.00 |
| 2023 | 26833 | FPLCA - DNR Landowner Contingency Assmt | $3.00 | $3.00 | $0.00 | $0.00 | $6.00 | $0.00 |
| 2023 | 26833 | JCCD - JC Conservation District | $2.75 | $2.75 | $0.00 | $0.00 | $5.50 | $0.00 |
| 2023 | 26833 | NWA - Noxious Weed Assessment | $2.75 | $2.75 | $0.00 | $0.00 | $5.50 | $0.00 |
| 2023 | 26833 | OSS - On Site Septic | $20.50 | $20.50 | $0.00 | $0.00 | $41.00 | $0.00 |
| 2023 | 26833 | WAT - Clean Water District | $12.00 | $12.00 | $0.00 | $0.00 | $24.00 | $0.00 |
| 2023 | 26833 | FP ADMIN - FP ADMIN | $0.50 | $0.00 | $0.00 | $0.00 | $0.50 | $0.00 |
| 2023 | 26833 | TOTAL: | $2148.74 | $2148.14 | $0.00 | $0.00 | $4296.88 | $0.00 |
|
| 2023 | 26833 | $2148.74 | $2148.14 | $0.00 | $0.00 | $4296.88 | $0.00 |
Values
| (+) Improvement Homesite Value: | + | $0 | |
| (+) Improvement Non-Homesite Value: | + | $413,370 | |
| (+) Land Homesite Value: | + | $0 | |
| (+) Land Non-Homesite Value: | + | $195,696 | |
| (+) Curr Use (HS): | + | $0 | $0 |
| (+) Curr Use (NHS): | + | $0 | $0 |
| | | -------------------------- | |
| (=) Market Value: | = | $609,066 | |
| (–) Productivity Loss: | – | $0 | |
| | | -------------------------- | |
| (=) Subtotal: | = | $609,066 | |
| (+) Senior Appraised Value: | + | $0 | |
| (+) Non-Senior Appraised Value: | + | $609,066 | |
| | | -------------------------- | |
| (=) Total Appraised Value: | = | $609,066 | |
| (–) Senior Exemption Loss: | – | $0 | |
| (–) Exemption Loss: | – | $0 | |
| | | -------------------------- | |
| (=) Taxable Value: | = | $609,066 | |
Taxing Jurisdiction
| Owner: | MATTHEW K STEVERSON & JANNEKE E PETERSEN | | |
| % Ownership: | 100.0000000000% | | |
| Total Value: | $609,066 | | |
| Tax Area: | 0111 - 1-50F1E1H2L1 |
| CE | COUNTY CURRENT EXPENSE | 0.9034619479 | $609,066 | $609,066 | $550.27 | | |
| CNTYDD | DEVELOPMENTAL DISABILITIES | 0.0052121823 | $609,066 | $609,066 | $3.17 | | |
| CNTYVET | VETERANS RELIEF | 0.0052777810 | $609,066 | $609,066 | $3.21 | | |
| MENTAL | MENTAL HEALTH | 0.0052121823 | $609,066 | $609,066 | $3.17 | | |
| ROADS | COUNTY ROADS | 0.7415066410 | $609,066 | $609,066 | $451.63 | | |
| ROADSCU | COUNTY ROADS TO CUR EXP | 0.0000000000 | $609,066 | $609,066 | $0.00 | | |
| HOSP2CASH | HOSP DIST #2 GENERAL | 0.0536075306 | $609,066 | $609,066 | $32.65 | | |
| SCH50BOND | SCHOOL DIST #50 BOND 2016 | 0.5377451389 | $609,066 | $609,066 | $327.52 | | |
| SCH50CP | SCHOOL DIST #50 CAP PROJ | 0.4573475088 | $609,066 | $609,066 | $278.55 | | |
| SCH50MO | SCHOOL DIST #50 EP & O | 0.8262822886 | $609,066 | $609,066 | $503.26 | | |
| CONSERVE | CONSERVATION FUTURES | 0.0275621078 | $609,066 | $609,066 | $16.79 | | |
| EMS1 | FIRE DIST #1 EMS | 0.4679948282 | $609,066 | $609,066 | $285.04 | | |
| FD1 | FIRE DIST #1 GENERAL | 1.2171942929 | $609,066 | $609,066 | $741.35 | | |
| LIB1 | LIBRARY DIST #1 GENERAL | 0.2868827388 | $609,066 | $609,066 | $174.73 | | |
| PORTPT | PORT OF PT GENERAL | 0.1134941229 | $609,066 | $609,066 | $69.13 | | |
| PORTPTIDD | PORT OF PT IDD 2019 | 0.2577346692 | $609,066 | $609,066 | $156.98 | | |
| PUD1 | PUD #1 GENERAL | 0.0597888892 | $609,066 | $609,066 | $36.42 | | |
| STATE | STATE SCHOOL PART 1 | 1.4940692947 | $609,066 | $609,066 | $909.99 | | |
| STATE2 | STATE SCHOOL PART 2 | 0.8050170049 | $609,066 | $609,066 | $490.31 | | |
| | Total Tax Rate: | 8.2653911500 | | | | | |
| | | | | Taxes w/Current Exemptions: | $5,034.17 | | |
| | | | | Taxes w/o Exemptions: | $5,034.17 | | |
Improvement / Building
| Improvement #1: | Residential Bldg | State Code: | 11 | 808.0 sqft | Value: | $294,714 |
| Bathrooms (#): | 2 (FULL) | Bedrooms (#): | 2 | | Exterior Wall: | SI/ST | Fireplace: | WD ST-GOOD | | Foundation: | CONPR | Heating/Cooling: | HPUMP | | Roof Cover: | COMP |   |   |
|
| | Type | Description | Class CD | Sub Class CD | Year Built | Area |
| | MA | Main Area | 4- | 1S | 2016 | 808.0 |
| | HWPOR | House Wood Porch | 4 | * | 2016 | 280.0 |
| | HWPOR | House Wood Porch | 4 | * | 2016 | 40.0 |
| | PATIO | House Patio | 4 | * | 2017 | 120.0 |
| | GDET | Detached Garage | 4 | * | 2017 | 560.0 |
| | CARPTF | Carport W/Floor | 4 | * | 2017 | 550.0 |
| Improvement #2: | Residential Bldg | State Code: | 11 | 400.0 sqft | Value: | $118,656 |
| Bathrooms (#): | 1 (FULL) | Bedrooms (#): | 1 | | Exterior Wall: | SI/ST | Foundation: | CONPR | | Heating/Cooling: | ELBB | Roof Cover: | COMP |
|
| | Type | Description | Class CD | Sub Class CD | Year Built | Area |
| | MA | Main Area | 3 | 1S | 2016 | 400.0 |
| | HWPOR | House Wood Porch | 3 | * | 2016 | 28.0 |
| | SHED | Shed (Table Not Dep) | 4 | * | 2016 | 36.0 |
| | HWPOR | House Wood Porch | 3 | * | 2016 | 84.0 |
| | HLOFT | House Loft | 3 | 1S | 2016 | 280.0 |
Sketch
Property Image
Land
| 1 | 1576A | | 3.9900 | 173804.40 | 0.00 | 0.00 | 0.00 | $41,696 | $0 |
| 2 | 5330-1373S | | 1.0000 | 43560.00 | 0.00 | 0.00 | 1.00 | $154,000 | $0 |
Roll Value History
| 2026 | N/A | N/A | N/A | N/A | N/A |
| 2025 | $413,370 | $195,696 | $0 | $609,066 | $609,066 |
| 2024 | $413,370 | $195,696 | $0 | $609,066 | $609,066 |
| 2023 | $383,030 | $179,456 | $0 | $562,486 | $562,486 |
| 2022 | $347,952 | $163,915 | $0 | $511,867 | $511,867 |
Deed and Sales History
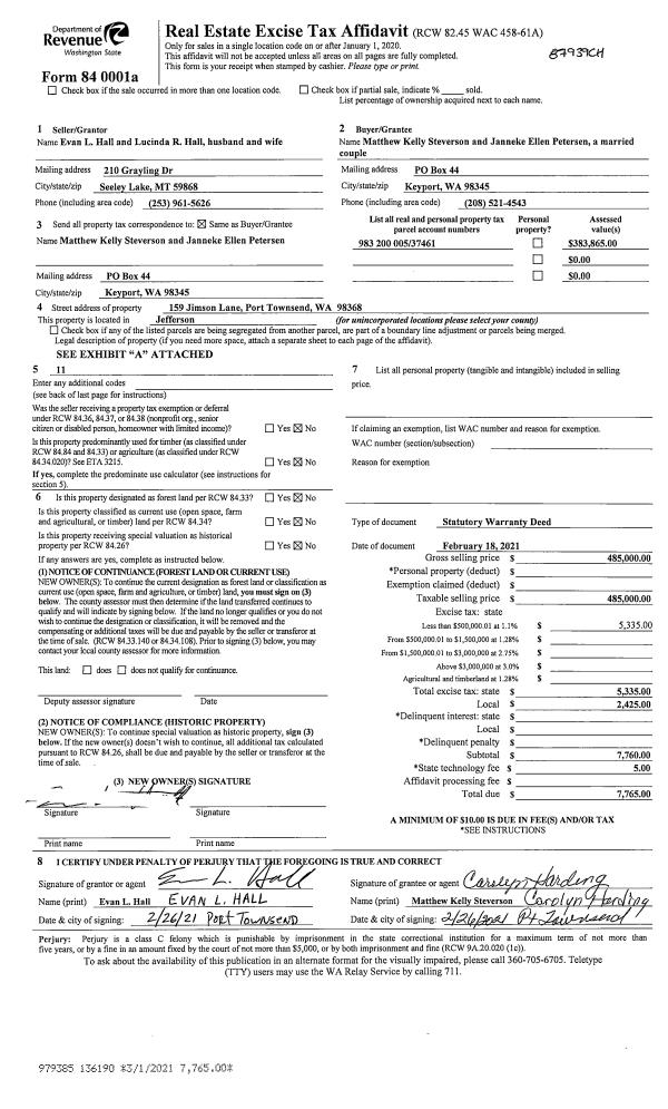
| 1 | 02/18/2021 | SWD | Statutory Warranty Deed | EVAN L HALL | MATTHEW K STEVERSON & JANNEKE E PETERSEN | | | $485,000.00 | 136190 | |
| 2 | 11/02/2015 | SWD | Statutory Warranty Deed | PAM PORT TOWNSEND ONE LLC | EVAN L HALL | | | $105,000.00 | 124336 | |
Payout Agreement
| No payout information available.. |