Property
Account |
| Property ID: | 37495 | Abbreviated Legal Description: | PARADISE BAY ESTATES BLK 3 LOTS 7 & 8 |
| Parcel # / Geo ID: | 983400307 | Agent Code: | |
| Type: | Real | | |
| Tax Area: | 0212 - 1-49F1E1W1H2L1 | Land Use Code | 18 |
| Open Space: | N | DFL | N |
| Historic Property: | N | Remodel Property: | N |
| Multi-Family Redevelopment: | N | | |
| Township: | 28N | Section: | 22 |
| Range: | 1E |
Location |
| Address: | 61 W HEMLOCK ST PORT LUDLOW, WA 98365 | Mapsco: | 084/029 |
| Neighborhood: | PARADISE BAY ESTATES; PARADISE VIEW ESTATES | Map ID: | |
| Neighborhood CD: | 3365 |
Owner |
| Name: | ETHAN LAWSON | Owner ID: | 110923 |
| Mailing Address: | 61 W HEMLOCK PORT LUDLOW, WA 98365 | % Ownership: | 100.0000000000% |
| | | Exemptions: | |
Pay Tax Due
There is currently No Amount Due on this property.
Taxes and Assessment Details
Property Tax Information as of
03/09/2026
Click on "Statement Details" to expand or collapse a tax statement.
* Please enter a valid date ** Please enter a valid date *
Statement Details |
| 2026 | 26701 | STATE - STATE LEVY (SCHOOL) | $72.14 | $72.12 | $0.00 | $0.00 | $144.26 | $0.00 |
| 2026 | 26701 | COUNTY - COUNTY LEVIES (CE, DD, VET, MH) | $28.86 | $28.82 | $0.00 | $0.00 | $57.68 | $0.00 |
| 2026 | 26701 | CONSERVE - CONSERVATION FUTURES | $0.87 | $0.86 | $0.00 | $0.00 | $1.73 | $0.00 |
| 2026 | 26701 | COROADS - COUNTY ROADS (ROADS, DIV TO CE) | $23.27 | $23.26 | $0.00 | $0.00 | $46.53 | $0.00 |
| 2026 | 26701 | PORTPT - PORT DISTRICT | $11.65 | $11.64 | $0.00 | $0.00 | $23.29 | $0.00 |
| 2026 | 26701 | PUD1 - PUD #1 | $1.88 | $1.87 | $0.00 | $0.00 | $3.75 | $0.00 |
| 2026 | 26701 | LIB1 - LIBRARY DIST #1 | $9.00 | $9.00 | $0.00 | $0.00 | $18.00 | $0.00 |
| 2026 | 26701 | HD2 - HOSP DIST #2 | $1.68 | $1.68 | $0.00 | $0.00 | $3.36 | $0.00 |
| 2026 | 26701 | SD49 - SCHOOL DIST #49 | $39.71 | $39.70 | $0.00 | $0.00 | $79.41 | $0.00 |
| 2026 | 26701 | FD1 - FIRE DISTRICT #1 | $38.19 | $38.18 | $0.00 | $0.00 | $76.37 | $0.00 |
| 2026 | 26701 | EMS1 - FIRE DIST #1 EMS | $14.68 | $14.68 | $0.00 | $0.00 | $29.36 | $0.00 |
| 2026 | 26701 | JCCD - JC Conservation District | $2.53 | $2.53 | $0.00 | $0.00 | $5.06 | $0.00 |
| 2026 | 26701 | NWA - Noxious Weed Assessment | $2.98 | $2.97 | $0.00 | $0.00 | $5.95 | $0.00 |
| 2026 | 26701 | OSS - On Site Septic | $23.10 | $23.10 | $0.00 | $0.00 | $46.20 | $0.00 |
| 2026 | 26701 | WAT - Clean Water District | $13.00 | $13.00 | $0.00 | $0.00 | $26.00 | $0.00 |
| 2026 | 26701 | TOTAL: | $283.54 | $283.41 | $0.00 | $0.00 | $566.95 | $0.00 |
|
| 2026 | 26701 | $283.54 | $283.41 | $0.00 | $0.00 | $566.95 | $0.00 |
Statement Details |
| 2025 | 26770 | STATE - STATE LEVY (SCHOOL) | $133.15 | $133.13 | $0.00 | $0.00 | $266.28 | $0.00 |
| 2025 | 26770 | COUNTY - COUNTY LEVIES (CE, DD, VET, MH) | $52.37 | $52.34 | $0.00 | $0.00 | $104.71 | $0.00 |
| 2025 | 26770 | CONSERVE - CONSERVATION FUTURES | $1.57 | $1.57 | $0.00 | $0.00 | $3.14 | $0.00 |
| 2025 | 26770 | COROADS - COUNTY ROADS (ROADS, DIV TO CE) | $41.95 | $41.94 | $0.00 | $0.00 | $83.89 | $0.00 |
| 2025 | 26770 | PORTPT - PORT DISTRICT | $21.37 | $21.36 | $0.00 | $0.00 | $42.73 | $0.00 |
| 2025 | 26770 | PUD1 - PUD #1 | $3.43 | $3.42 | $0.00 | $0.00 | $6.85 | $0.00 |
| 2025 | 26770 | LIB1 - LIBRARY DIST #1 | $16.23 | $16.23 | $0.00 | $0.00 | $32.46 | $0.00 |
| 2025 | 26770 | HD2 - HOSP DIST #2 | $3.06 | $3.05 | $0.00 | $0.00 | $6.11 | $0.00 |
| 2025 | 26770 | SD49 - SCHOOL DIST #49 | $71.36 | $71.35 | $0.00 | $0.00 | $142.71 | $0.00 |
| 2025 | 26770 | FD1 - FIRE DISTRICT #1 | $69.09 | $69.09 | $0.00 | $0.00 | $138.18 | $0.00 |
| 2025 | 26770 | EMS1 - FIRE DIST #1 EMS | $26.58 | $26.57 | $0.00 | $0.00 | $53.15 | $0.00 |
| 2025 | 26770 | JCCD - JC Conservation District | $2.55 | $2.55 | $0.00 | $0.00 | $5.10 | $0.00 |
| 2025 | 26770 | NWA - Noxious Weed Assessment | $2.15 | $2.15 | $0.00 | $0.00 | $4.30 | $0.00 |
| 2025 | 26770 | WAT - Clean Water District | $13.00 | $13.00 | $0.00 | $0.00 | $26.00 | $0.00 |
| 2025 | 26770 | TOTAL: | $457.86 | $457.75 | $0.00 | $0.00 | $915.61 | $0.00 |
|
| 2025 | 26770 | $457.86 | $457.75 | $0.00 | $0.00 | $915.61 | $0.00 |
Statement Details |
| 2024 | 26826 | STATE - STATE LEVY (SCHOOL) | $134.01 | $133.99 | $0.00 | $0.00 | $268.00 | $0.00 |
| 2024 | 26826 | COUNTY - COUNTY LEVIES (CE, DD, VET, MH) | $57.36 | $57.33 | $0.00 | $0.00 | $114.69 | $0.00 |
| 2024 | 26826 | CONSERVE - CONSERVATION FUTURES | $1.72 | $1.72 | $0.00 | $0.00 | $3.44 | $0.00 |
| 2024 | 26826 | COROADS - COUNTY ROADS (ROADS, DIV TO CE) | $46.15 | $46.13 | $0.00 | $0.00 | $92.28 | $0.00 |
| 2024 | 26826 | PORTPT - PORT DISTRICT | $23.69 | $23.68 | $0.00 | $0.00 | $47.37 | $0.00 |
| 2024 | 26826 | PUD1 - PUD #1 | $3.77 | $3.76 | $0.00 | $0.00 | $7.53 | $0.00 |
| 2024 | 26826 | LIB1 - LIBRARY DIST #1 | $17.85 | $17.85 | $0.00 | $0.00 | $35.70 | $0.00 |
| 2024 | 26826 | HD2 - HOSP DIST #2 | $3.35 | $3.34 | $0.00 | $0.00 | $6.69 | $0.00 |
| 2024 | 26826 | SD49 - SCHOOL DIST #49 | $59.85 | $59.83 | $0.00 | $0.00 | $119.68 | $0.00 |
| 2024 | 26826 | FD1 - FIRE DISTRICT #1 | $75.82 | $75.81 | $0.00 | $0.00 | $151.63 | $0.00 |
| 2024 | 26826 | EMS1 - FIRE DIST #1 EMS | $28.96 | $28.96 | $0.00 | $0.00 | $57.92 | $0.00 |
| 2024 | 26826 | JCCD - JC Conservation District | $2.55 | $2.55 | $0.00 | $0.00 | $5.10 | $0.00 |
| 2024 | 26826 | NWA - Noxious Weed Assessment | $2.15 | $2.15 | $0.00 | $0.00 | $4.30 | $0.00 |
| 2024 | 26826 | WAT - Clean Water District | $12.50 | $12.50 | $0.00 | $0.00 | $25.00 | $0.00 |
| 2024 | 26826 | TOTAL: | $469.73 | $469.60 | $0.00 | $0.00 | $939.33 | $0.00 |
|
| 2024 | 26826 | $469.73 | $469.60 | $0.00 | $0.00 | $939.33 | $0.00 |
Statement Details |
| 2023 | 26867 | STATE - STATE LEVY (SCHOOL) | $130.47 | $130.46 | $0.00 | $0.00 | $260.93 | $0.00 |
| 2023 | 26867 | COUNTY - COUNTY LEVIES (CE, DD, VET, MH) | $56.95 | $56.91 | $0.00 | $0.00 | $113.86 | $0.00 |
| 2023 | 26867 | CONSERVE - CONSERVATION FUTURES | $1.71 | $1.70 | $0.00 | $0.00 | $3.41 | $0.00 |
| 2023 | 26867 | COROADS - COUNTY ROADS (ROADS, DIV TO CE) | $46.06 | $46.06 | $0.00 | $0.00 | $92.12 | $0.00 |
| 2023 | 26867 | PORTPT - PORT DISTRICT | $23.98 | $23.98 | $0.00 | $0.00 | $47.96 | $0.00 |
| 2023 | 26867 | PUD1 - PUD #1 | $3.78 | $3.77 | $0.00 | $0.00 | $7.55 | $0.00 |
| 2023 | 26867 | LIB1 - LIBRARY DIST #1 | $17.82 | $17.82 | $0.00 | $0.00 | $35.64 | $0.00 |
| 2023 | 26867 | HD2 - HOSP DIST #2 | $3.33 | $3.31 | $0.00 | $0.00 | $6.64 | $0.00 |
| 2023 | 26867 | SD49 - SCHOOL DIST #49 | $60.99 | $60.98 | $0.00 | $0.00 | $121.97 | $0.00 |
| 2023 | 26867 | FD3 - FIRE DISTRICT #3 | $56.64 | $56.63 | $0.00 | $0.00 | $113.27 | $0.00 |
| 2023 | 26867 | EMS3 - FIRE DIST #3 EMS | $20.25 | $20.25 | $0.00 | $0.00 | $40.50 | $0.00 |
| 2023 | 26867 | JCCD - JC Conservation District | $2.55 | $2.55 | $0.00 | $0.00 | $5.10 | $0.00 |
| 2023 | 26867 | NWA - Noxious Weed Assessment | $2.15 | $2.15 | $0.00 | $0.00 | $4.30 | $0.00 |
| 2023 | 26867 | WAT - Clean Water District | $12.00 | $12.00 | $0.00 | $0.00 | $24.00 | $0.00 |
| 2023 | 26867 | TOTAL: | $438.68 | $438.57 | $0.00 | $0.00 | $877.25 | $0.00 |
|
| 2023 | 26867 | $438.68 | $438.57 | $0.00 | $0.00 | $877.25 | $0.00 |
Values
| (+) Improvement Homesite Value: | + | $0 | |
| (+) Improvement Non-Homesite Value: | + | $3,683 | |
| (+) Land Homesite Value: | + | $0 | |
| (+) Land Non-Homesite Value: | + | $59,063 | |
| (+) Curr Use (HS): | + | $0 | $0 |
| (+) Curr Use (NHS): | + | $0 | $0 |
| | | -------------------------- | |
| (=) Market Value: | = | $62,746 | |
| (–) Productivity Loss: | – | $0 | |
| | | -------------------------- | |
| (=) Subtotal: | = | $62,746 | |
| (+) Senior Appraised Value: | + | $0 | |
| (+) Non-Senior Appraised Value: | + | $62,746 | |
| | | -------------------------- | |
| (=) Total Appraised Value: | = | $62,746 | |
| (–) Senior Exemption Loss: | – | $0 | |
| (–) Exemption Loss: | – | $0 | |
| | | -------------------------- | |
| (=) Taxable Value: | = | $62,746 | |
Taxing Jurisdiction
| Owner: | ETHAN LAWSON | | |
| % Ownership: | 100.0000000000% | | |
| Total Value: | $62,746 | | |
| Tax Area: | 0212 - 1-49F1E1W1H2L1 |
| CE | COUNTY CURRENT EXPENSE | 0.9034619479 | $62,746 | $62,746 | $56.69 | | |
| CNTYDD | DEVELOPMENTAL DISABILITIES | 0.0052121823 | $62,746 | $62,746 | $0.33 | | |
| CNTYVET | VETERANS RELIEF | 0.0052777810 | $62,746 | $62,746 | $0.33 | | |
| MENTAL | MENTAL HEALTH | 0.0052121823 | $62,746 | $62,746 | $0.33 | | |
| ROADS | COUNTY ROADS | 0.7415066410 | $62,746 | $62,746 | $46.53 | | |
| ROADSCU | COUNTY ROADS TO CUR EXP | 0.0000000000 | $62,746 | $62,746 | $0.00 | | |
| HOSP2CASH | HOSP DIST #2 GENERAL | 0.0536075306 | $62,746 | $62,746 | $3.36 | | |
| SCH49CP | SCHOOL DIST #49 CAP PROJ | 0.6279093905 | $62,746 | $62,746 | $39.40 | | |
| SCH49MO | SCHOOL DIST #49 EP & O | 0.6376483602 | $62,746 | $62,746 | $40.01 | | |
| CONSERVE | CONSERVATION FUTURES | 0.0275621078 | $62,746 | $62,746 | $1.73 | | |
| EMS1 | FIRE DIST #1 EMS | 0.4679948282 | $62,746 | $62,746 | $29.36 | | |
| FD1 | FIRE DIST #1 GENERAL | 1.2171942929 | $62,746 | $62,746 | $76.37 | | |
| LIB1 | LIBRARY DIST #1 GENERAL | 0.2868827388 | $62,746 | $62,746 | $18.00 | | |
| PORTPT | PORT OF PT GENERAL | 0.1134941229 | $62,746 | $62,746 | $7.12 | | |
| PORTPTIDD | PORT OF PT IDD 2019 | 0.2577346692 | $62,746 | $62,746 | $16.17 | | |
| PUD1 | PUD #1 GENERAL | 0.0597888892 | $62,746 | $62,746 | $3.75 | | |
| STATE | STATE SCHOOL PART 1 | 1.4940692947 | $62,746 | $62,746 | $93.75 | | |
| STATE2 | STATE SCHOOL PART 2 | 0.8050170049 | $62,746 | $62,746 | $50.51 | | |
| | Total Tax Rate: | 7.7095739644 | | | | | |
| | | | | Taxes w/Current Exemptions: | $483.74 | | |
| | | | | Taxes w/o Exemptions: | $483.74 | | |
Improvement / Building
| Improvement #1: | Residential Bldg | State Code: | 18 | 276.0 sqft | Value: | $3,683 |
| Exterior Wall: | SI/ST | Roof Cover: | METAL |
|
Sketch
| No sketches available for this property. |
Property Image
Land
| 1 | 3365-1265S | | 0.0000 | 0.00 | 0.00 | 0.00 | 1.00 | $59,063 | $0 |
Roll Value History
| 2026 | N/A | N/A | N/A | N/A | N/A |
| 2025 | $3,683 | $59,063 | $0 | $62,746 | $62,746 |
| 2024 | $37,542 | $73,500 | $0 | $111,042 | $111,042 |
| 2023 | $35,835 | $80,000 | $0 | $115,835 | $115,835 |
| 2022 | $35,835 | $75,000 | $0 | $110,835 | $110,835 |
Deed and Sales History
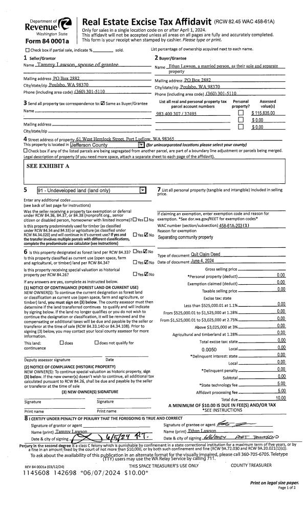
| 1 | 06/04/2024 | QCD | Quit Claim Deed | TAMMY LAWSON | ETHAN LAWSON | | | | 142698 | |
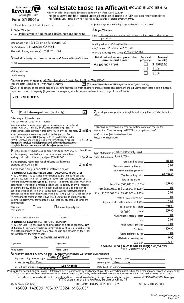
| 2 | 06/04/2024 | SWD | Statutory Warranty Deed | PAUL FERRARI & BARBARANN REAM | ETHAN LAWSON | | | $60,000.00 | 142699 | |
| 3 | 05/20/2021 | SWD | Statutory Warranty Deed | THOMAS RECORD | PAUL FERRARI & BARBARANN REAM | | | $120,000.00 | 136840 | |
| 4 | 09/24/2007 | SWD | Statutory Warranty Deed | DEMONTIGNY, CHARLES/ROXAN | RECORD, THOMAS/ROBIN | 0 | 0 | $49,500.00 | 110093 | 0 |
Payout Agreement
| No payout information available.. |