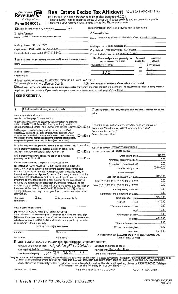
Property
Account |
| Property ID: | 37548 | Abbreviated Legal Description: | PARADISE BAY ESTATES BLK 6 LOTS 9 & 10 |
| Parcel # / Geo ID: | 983400608 | Agent Code: | |
| Type: | Real | | |
| Tax Area: | 0212 - 1-49F1E1W1H2L1 | Land Use Code | 18 |
| Open Space: | N | DFL | N |
| Historic Property: | N | Remodel Property: | N |
| Multi-Family Redevelopment: | N | | |
| Township: | 28N | Section: | 22 |
| Range: | 1E |
Location |
| Address: | 60 W HEMLOCK ST PORT LUDLOW, WA 98365 | Mapsco: | 085/034 |
| Neighborhood: | PARADISE BAY ESTATES; PARADISE VIEW ESTATES | Map ID: | |
| Neighborhood CD: | 3365 |
Owner |
| Name: | DONA JENNIGES | Owner ID: | 111895 |
| Mailing Address: | 60 W HEMLOCK ST PORT LUDLOW, WA 98365-9788 | % Ownership: | 100.0000000000% |
| | | Exemptions: | |
Pay Tax Due
Select the appropriate checkbox next to the year to be paid. Multiple years may be selected.
*Convenience Fee not included
Taxes and Assessment Details
Property Tax Information as of
03/12/2026
Click on "Statement Details" to expand or collapse a tax statement.
* Please enter a valid date ** Please enter a valid date *
Statement Details |
| 2026 | 26752 | STATE - STATE LEVY (SCHOOL) | $129.32 | $129.32 | $0.00 | $0.00 | $0.00 | $258.64 |
| 2026 | 26752 | COUNTY - COUNTY LEVIES (CE, DD, VET, MH) | $51.72 | $51.69 | $0.00 | $0.00 | $0.00 | $103.41 |
| 2026 | 26752 | CONSERVE - CONSERVATION FUTURES | $1.55 | $1.55 | $0.00 | $0.00 | $0.00 | $3.10 |
| 2026 | 26752 | COROADS - COUNTY ROADS (ROADS, DIV TO CE) | $41.71 | $41.71 | $0.00 | $0.00 | $0.00 | $83.42 |
| 2026 | 26752 | PORTPT - PORT DISTRICT | $20.89 | $20.87 | $0.00 | $0.00 | $0.00 | $41.76 |
| 2026 | 26752 | PUD1 - PUD #1 | $3.37 | $3.36 | $0.00 | $0.00 | $0.00 | $6.73 |
| 2026 | 26752 | LIB1 - LIBRARY DIST #1 | $16.14 | $16.13 | $0.00 | $0.00 | $0.00 | $32.27 |
| 2026 | 26752 | HD2 - HOSP DIST #2 | $3.02 | $3.01 | $0.00 | $0.00 | $0.00 | $6.03 |
| 2026 | 26752 | SD49 - SCHOOL DIST #49 | $71.19 | $71.18 | $0.00 | $0.00 | $0.00 | $142.37 |
| 2026 | 26752 | FD1 - FIRE DISTRICT #1 | $68.47 | $68.46 | $0.00 | $0.00 | $0.00 | $136.93 |
| 2026 | 26752 | EMS1 - FIRE DIST #1 EMS | $26.33 | $26.32 | $0.00 | $0.00 | $0.00 | $52.65 |
| 2026 | 26752 | JCCD - JC Conservation District | $2.53 | $2.53 | $0.00 | $0.00 | $0.00 | $5.06 |
| 2026 | 26752 | NWA - Noxious Weed Assessment | $2.98 | $2.97 | $0.00 | $0.00 | $0.00 | $5.95 |
| 2026 | 26752 | WAT - Clean Water District | $13.00 | $13.00 | $0.00 | $0.00 | $0.00 | $26.00 |
| 2026 | 26752 | TOTAL: | $452.22 | $452.10 | $0.00 | $0.00 | $0.00 | $904.32 |
|
| 2026 | 26752 | $452.22 | $452.10 | $0.00 | $0.00 | $0.00 | $904.32 |
Statement Details |
| 2025 | 26821 | STATE - STATE LEVY (SCHOOL) | $92.65 | $92.63 | $0.00 | $0.00 | $185.28 | $0.00 |
| 2025 | 26821 | COUNTY - COUNTY LEVIES (CE, DD, VET, MH) | $36.44 | $36.42 | $0.00 | $0.00 | $72.86 | $0.00 |
| 2025 | 26821 | CONSERVE - CONSERVATION FUTURES | $1.09 | $1.09 | $0.00 | $0.00 | $2.18 | $0.00 |
| 2025 | 26821 | COROADS - COUNTY ROADS (ROADS, DIV TO CE) | $29.20 | $29.18 | $0.00 | $0.00 | $58.38 | $0.00 |
| 2025 | 26821 | PORTPT - PORT DISTRICT | $14.87 | $14.87 | $0.00 | $0.00 | $29.74 | $0.00 |
| 2025 | 26821 | PUD1 - PUD #1 | $2.39 | $2.38 | $0.00 | $0.00 | $4.77 | $0.00 |
| 2025 | 26821 | LIB1 - LIBRARY DIST #1 | $11.29 | $11.29 | $0.00 | $0.00 | $22.58 | $0.00 |
| 2025 | 26821 | HD2 - HOSP DIST #2 | $2.13 | $2.12 | $0.00 | $0.00 | $4.25 | $0.00 |
| 2025 | 26821 | SD49 - SCHOOL DIST #49 | $49.65 | $49.65 | $0.00 | $0.00 | $99.30 | $0.00 |
| 2025 | 26821 | FD1 - FIRE DISTRICT #1 | $48.08 | $48.07 | $0.00 | $0.00 | $96.15 | $0.00 |
| 2025 | 26821 | EMS1 - FIRE DIST #1 EMS | $18.49 | $18.49 | $0.00 | $0.00 | $36.98 | $0.00 |
| 2025 | 26821 | JCCD - JC Conservation District | $2.55 | $2.55 | $0.00 | $0.00 | $5.10 | $0.00 |
| 2025 | 26821 | NWA - Noxious Weed Assessment | $2.15 | $2.15 | $0.00 | $0.00 | $4.30 | $0.00 |
| 2025 | 26821 | WAT - Clean Water District | $13.00 | $13.00 | $0.00 | $0.00 | $26.00 | $0.00 |
| 2025 | 26821 | TOTAL: | $323.98 | $323.89 | $0.00 | $0.00 | $647.87 | $0.00 |
|
| 2025 | 26821 | $323.98 | $323.89 | $0.00 | $0.00 | $647.87 | $0.00 |
Statement Details |
| 2024 | 26878 | STATE - STATE LEVY (SCHOOL) | $85.20 | $85.18 | $0.00 | $0.00 | $170.38 | $0.00 |
| 2024 | 26878 | COUNTY - COUNTY LEVIES (CE, DD, VET, MH) | $36.47 | $36.44 | $0.00 | $0.00 | $72.91 | $0.00 |
| 2024 | 26878 | CONSERVE - CONSERVATION FUTURES | $1.10 | $1.09 | $0.00 | $0.00 | $2.19 | $0.00 |
| 2024 | 26878 | COROADS - COUNTY ROADS (ROADS, DIV TO CE) | $29.34 | $29.32 | $0.00 | $0.00 | $58.66 | $0.00 |
| 2024 | 26878 | PORTPT - PORT DISTRICT | $15.06 | $15.05 | $0.00 | $0.00 | $30.11 | $0.00 |
| 2024 | 26878 | PUD1 - PUD #1 | $2.40 | $2.39 | $0.00 | $0.00 | $4.79 | $0.00 |
| 2024 | 26878 | LIB1 - LIBRARY DIST #1 | $11.35 | $11.35 | $0.00 | $0.00 | $22.70 | $0.00 |
| 2024 | 26878 | HD2 - HOSP DIST #2 | $2.13 | $2.12 | $0.00 | $0.00 | $4.25 | $0.00 |
| 2024 | 26878 | SD49 - SCHOOL DIST #49 | $38.05 | $38.03 | $0.00 | $0.00 | $76.08 | $0.00 |
| 2024 | 26878 | FD1 - FIRE DISTRICT #1 | $48.20 | $48.20 | $0.00 | $0.00 | $96.40 | $0.00 |
| 2024 | 26878 | EMS1 - FIRE DIST #1 EMS | $18.41 | $18.41 | $0.00 | $0.00 | $36.82 | $0.00 |
| 2024 | 26878 | JCCD - JC Conservation District | $2.55 | $2.55 | $0.00 | $0.00 | $5.10 | $0.00 |
| 2024 | 26878 | NWA - Noxious Weed Assessment | $2.15 | $2.15 | $0.00 | $0.00 | $4.30 | $0.00 |
| 2024 | 26878 | WAT - Clean Water District | $12.50 | $12.50 | $0.00 | $0.00 | $25.00 | $0.00 |
| 2024 | 26878 | TOTAL: | $304.91 | $304.78 | $0.00 | $0.00 | $609.69 | $0.00 |
|
| 2024 | 26878 | $304.91 | $304.78 | $0.00 | $0.00 | $609.69 | $0.00 |
Statement Details |
| 2023 | 26919 | STATE - STATE LEVY (SCHOOL) | $85.51 | $85.49 | $0.00 | $0.00 | $171.00 | $0.00 |
| 2023 | 26919 | COUNTY - COUNTY LEVIES (CE, DD, VET, MH) | $37.32 | $37.30 | $0.00 | $0.00 | $74.62 | $0.00 |
| 2023 | 26919 | CONSERVE - CONSERVATION FUTURES | $1.12 | $1.12 | $0.00 | $0.00 | $2.24 | $0.00 |
| 2023 | 26919 | COROADS - COUNTY ROADS (ROADS, DIV TO CE) | $30.19 | $30.18 | $0.00 | $0.00 | $60.37 | $0.00 |
| 2023 | 26919 | PORTPT - PORT DISTRICT | $15.72 | $15.71 | $0.00 | $0.00 | $31.43 | $0.00 |
| 2023 | 26919 | PUD1 - PUD #1 | $2.48 | $2.47 | $0.00 | $0.00 | $4.95 | $0.00 |
| 2023 | 26919 | LIB1 - LIBRARY DIST #1 | $11.68 | $11.68 | $0.00 | $0.00 | $23.36 | $0.00 |
| 2023 | 26919 | HD2 - HOSP DIST #2 | $2.18 | $2.17 | $0.00 | $0.00 | $4.35 | $0.00 |
| 2023 | 26919 | SD49 - SCHOOL DIST #49 | $39.97 | $39.96 | $0.00 | $0.00 | $79.93 | $0.00 |
| 2023 | 26919 | FD3 - FIRE DISTRICT #3 | $37.12 | $37.12 | $0.00 | $0.00 | $74.24 | $0.00 |
| 2023 | 26919 | EMS3 - FIRE DIST #3 EMS | $13.27 | $13.27 | $0.00 | $0.00 | $26.54 | $0.00 |
| 2023 | 26919 | JCCD - JC Conservation District | $2.55 | $2.55 | $0.00 | $0.00 | $5.10 | $0.00 |
| 2023 | 26919 | NWA - Noxious Weed Assessment | $2.15 | $2.15 | $0.00 | $0.00 | $4.30 | $0.00 |
| 2023 | 26919 | WAT - Clean Water District | $12.00 | $12.00 | $0.00 | $0.00 | $24.00 | $0.00 |
| 2023 | 26919 | TOTAL: | $293.26 | $293.17 | $0.00 | $0.00 | $586.43 | $0.00 |
|
| 2023 | 26919 | $293.26 | $293.17 | $0.00 | $0.00 | $586.43 | $0.00 |
Values
| (+) Improvement Homesite Value: | + | $0 | |
| (+) Improvement Non-Homesite Value: | + | $38,997 | |
| (+) Land Homesite Value: | + | $0 | |
| (+) Land Non-Homesite Value: | + | $73,500 | |
| (+) Curr Use (HS): | + | $0 | $0 |
| (+) Curr Use (NHS): | + | $0 | $0 |
| | | -------------------------- | |
| (=) Market Value: | = | $112,497 | |
| (–) Productivity Loss: | – | $0 | |
| | | -------------------------- | |
| (=) Subtotal: | = | $112,497 | |
| (+) Senior Appraised Value: | + | $0 | |
| (+) Non-Senior Appraised Value: | + | $112,497 | |
| | | -------------------------- | |
| (=) Total Appraised Value: | = | $112,497 | |
| (–) Senior Exemption Loss: | – | $0 | |
| (–) Exemption Loss: | – | $0 | |
| | | -------------------------- | |
| (=) Taxable Value: | = | $112,497 | |
Taxing Jurisdiction
| Owner: | DONA JENNIGES | | |
| % Ownership: | 100.0000000000% | | |
| Total Value: | $112,497 | | |
| Tax Area: | 0212 - 1-49F1E1W1H2L1 |
| CE | COUNTY CURRENT EXPENSE | 0.9034619479 | $112,497 | $112,497 | $101.64 | | |
| CNTYDD | DEVELOPMENTAL DISABILITIES | 0.0052121823 | $112,497 | $112,497 | $0.59 | | |
| CNTYVET | VETERANS RELIEF | 0.0052777810 | $112,497 | $112,497 | $0.59 | | |
| MENTAL | MENTAL HEALTH | 0.0052121823 | $112,497 | $112,497 | $0.59 | | |
| ROADS | COUNTY ROADS | 0.7415066410 | $112,497 | $112,497 | $83.42 | | |
| ROADSCU | COUNTY ROADS TO CUR EXP | 0.0000000000 | $112,497 | $112,497 | $0.00 | | |
| HOSP2CASH | HOSP DIST #2 GENERAL | 0.0536075306 | $112,497 | $112,497 | $6.03 | | |
| SCH49CP | SCHOOL DIST #49 CAP PROJ | 0.6279093905 | $112,497 | $112,497 | $70.64 | | |
| SCH49MO | SCHOOL DIST #49 EP & O | 0.6376483602 | $112,497 | $112,497 | $71.73 | | |
| CONSERVE | CONSERVATION FUTURES | 0.0275621078 | $112,497 | $112,497 | $3.10 | | |
| EMS1 | FIRE DIST #1 EMS | 0.4679948282 | $112,497 | $112,497 | $52.65 | | |
| FD1 | FIRE DIST #1 GENERAL | 1.2171942929 | $112,497 | $112,497 | $136.93 | | |
| LIB1 | LIBRARY DIST #1 GENERAL | 0.2868827388 | $112,497 | $112,497 | $32.27 | | |
| PORTPT | PORT OF PT GENERAL | 0.1134941229 | $112,497 | $112,497 | $12.77 | | |
| PORTPTIDD | PORT OF PT IDD 2019 | 0.2577346692 | $112,497 | $112,497 | $28.99 | | |
| PUD1 | PUD #1 GENERAL | 0.0597888892 | $112,497 | $112,497 | $6.73 | | |
| STATE | STATE SCHOOL PART 1 | 1.4940692947 | $112,497 | $112,497 | $168.08 | | |
| STATE2 | STATE SCHOOL PART 2 | 0.8050170049 | $112,497 | $112,497 | $90.56 | | |
| | Total Tax Rate: | 7.7095739644 | | | | | |
| | | | | Taxes w/Current Exemptions: | $867.31 | | |
| | | | | Taxes w/o Exemptions: | $867.31 | | |
Improvement / Building
| Improvement #1: | Residential Bldg | State Code: | 19 | 0.0 sqft | Value: | $38,997 |
| | Type | Description | Class CD | Sub Class CD | Year Built | Area |
| | SHED | Shed (Table Not Dep) | 3 | * | 1999 | 96.0 |
| | GDET | Detached Garage | 5 | * | 0 | 441.0 |
Sketch
| No sketches available for this property. |
Property Image
Land
| 1 | 3365-1265S | | 0.0000 | 0.00 | 0.00 | 0.00 | 1.00 | $73,500 | $0 |
Roll Value History
| 2026 | N/A | N/A | N/A | N/A | N/A |
| 2025 | $38,997 | $73,500 | $0 | $112,497 | $112,497 |
| 2024 | $24,767 | $52,500 | $0 | $77,267 | $77,267 |
| 2023 | $23,641 | $50,000 | $0 | $73,641 | $73,641 |
| 2022 | $23,641 | $49,000 | $0 | $72,641 | $72,641 |
Deed and Sales History
| 1 | 12/12/2024 | SWD | Statutory Warranty Deed | WENDI H WRINKLE | DONA JENNIGES | | | $149,000.00 | 143625 | |
| 2 | 08/07/2024 | DTH CERT | Death Certificate | JOSEPH J CHESLEDON | | | | | 143434 | |
| 3 | 10/16/2023 | TODD | TRANSFER ON DTH DEED | JOSEPH J CHESLEDON | WENDI H WRINKLE | | | | 0 | 662922 |
| 4 | 11/08/2021 | QCD | Quit Claim Deed | CRAIG DOTSON | JOSEPH J CHESLEDON | | | $59,000.00 | 137995 | |
| 5 | 11/19/2007 | SWD | Statutory Warranty Deed | ARDOIN, CONRAD M, ARDOIN, | DOTSON, CRAIG/MARA | 0 | 0 | $26,250.00 | 110499 | 0 |
| 6 | 10/07/1998 | REC | Real Estate Contract | YOUNG, JAMES A/LOIS G | ARDOIN, CONRAD/BILLY/KATHLEEN | 0 | 0 | $15,000.00 | 85491 | 0 |
Payout Agreement
| No payout information available.. |