Property
Account |
| Property ID: | 37561 | Abbreviated Legal Description: | PARADISE BAY ESTATES BLK 7 LOT 14 |
| Parcel # / Geo ID: | 983400713 | Agent Code: | |
| Type: | Real | | |
| Tax Area: | 0212 - 1-49F1E1W1H2L1 | Land Use Code | 18 |
| Open Space: | N | DFL | N |
| Historic Property: | N | Remodel Property: | N |
| Multi-Family Redevelopment: | N | | |
| Township: | 28N | Section: | 22 |
| Range: | 1E |
Location |
| Address: | 21 E SPRUCE ST PORT LUDLOW, WA 98365 | Mapsco: | 085/049 |
| Neighborhood: | PARADISE BAY ESTATES; PARADISE VIEW ESTATES | Map ID: | |
| Neighborhood CD: | 3365 |
Owner |
| Name: | TERRENCE REUSSER | Owner ID: | 25705 |
| Mailing Address: | CERA REUSSER PO BOX 65456 PORT LUDLOW, WA 98365-9267 | % Ownership: | 100.0000000000% |
| | | Exemptions: | |
Pay Tax Due
Select the appropriate checkbox next to the year to be paid. Multiple years may be selected.
*Convenience Fee not included
Taxes and Assessment Details
Property Tax Information as of
03/13/2026
Click on "Statement Details" to expand or collapse a tax statement.
* Please enter a valid date ** Please enter a valid date *
Statement Details |
| 2026 | 26764 | STATE - STATE LEVY (SCHOOL) | $81.84 | $81.83 | $0.00 | $0.00 | $0.00 | $163.67 |
| 2026 | 26764 | COUNTY - COUNTY LEVIES (CE, DD, VET, MH) | $32.73 | $32.70 | $0.00 | $0.00 | $0.00 | $65.43 |
| 2026 | 26764 | CONSERVE - CONSERVATION FUTURES | $0.98 | $0.98 | $0.00 | $0.00 | $0.00 | $1.96 |
| 2026 | 26764 | COROADS - COUNTY ROADS (ROADS, DIV TO CE) | $26.39 | $26.39 | $0.00 | $0.00 | $0.00 | $52.78 |
| 2026 | 26764 | PORTPT - PORT DISTRICT | $13.22 | $13.21 | $0.00 | $0.00 | $0.00 | $26.43 |
| 2026 | 26764 | PUD1 - PUD #1 | $2.13 | $2.13 | $0.00 | $0.00 | $0.00 | $4.26 |
| 2026 | 26764 | LIB1 - LIBRARY DIST #1 | $10.21 | $10.21 | $0.00 | $0.00 | $0.00 | $20.42 |
| 2026 | 26764 | HD2 - HOSP DIST #2 | $1.91 | $1.91 | $0.00 | $0.00 | $0.00 | $3.82 |
| 2026 | 26764 | SD49 - SCHOOL DIST #49 | $45.05 | $45.04 | $0.00 | $0.00 | $0.00 | $90.09 |
| 2026 | 26764 | FD1 - FIRE DISTRICT #1 | $43.33 | $43.32 | $0.00 | $0.00 | $0.00 | $86.65 |
| 2026 | 26764 | EMS1 - FIRE DIST #1 EMS | $16.66 | $16.65 | $0.00 | $0.00 | $0.00 | $33.31 |
| 2026 | 26764 | JCCD - JC Conservation District | $2.53 | $2.53 | $0.00 | $0.00 | $0.00 | $5.06 |
| 2026 | 26764 | NWA - Noxious Weed Assessment | $2.98 | $2.97 | $0.00 | $0.00 | $0.00 | $5.95 |
| 2026 | 26764 | WAT - Clean Water District | $13.00 | $13.00 | $0.00 | $0.00 | $0.00 | $26.00 |
| 2026 | 26764 | TOTAL: | $292.96 | $292.87 | $0.00 | $0.00 | $0.00 | $585.83 |
|
| 2026 | 26764 | $292.96 | $292.87 | $0.00 | $0.00 | $0.00 | $585.83 |
Statement Details |
| 2025 | 26833 | STATE - STATE LEVY (SCHOOL) | $85.36 | $85.34 | $0.00 | $0.00 | $170.70 | $0.00 |
| 2025 | 26833 | COUNTY - COUNTY LEVIES (CE, DD, VET, MH) | $33.56 | $33.56 | $0.00 | $0.00 | $67.12 | $0.00 |
| 2025 | 26833 | CONSERVE - CONSERVATION FUTURES | $1.01 | $1.00 | $0.00 | $0.00 | $2.01 | $0.00 |
| 2025 | 26833 | COROADS - COUNTY ROADS (ROADS, DIV TO CE) | $26.89 | $26.89 | $0.00 | $0.00 | $53.78 | $0.00 |
| 2025 | 26833 | PORTPT - PORT DISTRICT | $13.70 | $13.69 | $0.00 | $0.00 | $27.39 | $0.00 |
| 2025 | 26833 | PUD1 - PUD #1 | $2.20 | $2.19 | $0.00 | $0.00 | $4.39 | $0.00 |
| 2025 | 26833 | LIB1 - LIBRARY DIST #1 | $10.41 | $10.40 | $0.00 | $0.00 | $20.81 | $0.00 |
| 2025 | 26833 | HD2 - HOSP DIST #2 | $1.96 | $1.96 | $0.00 | $0.00 | $3.92 | $0.00 |
| 2025 | 26833 | SD49 - SCHOOL DIST #49 | $45.75 | $45.74 | $0.00 | $0.00 | $91.49 | $0.00 |
| 2025 | 26833 | FD1 - FIRE DISTRICT #1 | $44.29 | $44.29 | $0.00 | $0.00 | $88.58 | $0.00 |
| 2025 | 26833 | EMS1 - FIRE DIST #1 EMS | $17.04 | $17.03 | $0.00 | $0.00 | $34.07 | $0.00 |
| 2025 | 26833 | JCCD - JC Conservation District | $2.55 | $2.55 | $0.00 | $0.00 | $5.10 | $0.00 |
| 2025 | 26833 | NWA - Noxious Weed Assessment | $2.15 | $2.15 | $0.00 | $0.00 | $4.30 | $0.00 |
| 2025 | 26833 | WAT - Clean Water District | $13.00 | $13.00 | $0.00 | $0.00 | $26.00 | $0.00 |
| 2025 | 26833 | TOTAL: | $299.87 | $299.79 | $0.00 | $0.00 | $599.66 | $0.00 |
|
| 2025 | 26833 | $299.87 | $299.79 | $0.00 | $0.00 | $599.66 | $0.00 |
Statement Details |
| 2024 | 26890 | STATE - STATE LEVY (SCHOOL) | $76.18 | $76.17 | $0.00 | $0.00 | $152.35 | $0.00 |
| 2024 | 26890 | COUNTY - COUNTY LEVIES (CE, DD, VET, MH) | $32.61 | $32.58 | $0.00 | $0.00 | $65.19 | $0.00 |
| 2024 | 26890 | CONSERVE - CONSERVATION FUTURES | $0.98 | $0.97 | $0.00 | $0.00 | $1.95 | $0.00 |
| 2024 | 26890 | COROADS - COUNTY ROADS (ROADS, DIV TO CE) | $26.23 | $26.23 | $0.00 | $0.00 | $52.46 | $0.00 |
| 2024 | 26890 | PORTPT - PORT DISTRICT | $13.47 | $13.46 | $0.00 | $0.00 | $26.93 | $0.00 |
| 2024 | 26890 | PUD1 - PUD #1 | $2.14 | $2.14 | $0.00 | $0.00 | $4.28 | $0.00 |
| 2024 | 26890 | LIB1 - LIBRARY DIST #1 | $10.15 | $10.15 | $0.00 | $0.00 | $20.30 | $0.00 |
| 2024 | 26890 | HD2 - HOSP DIST #2 | $1.90 | $1.90 | $0.00 | $0.00 | $3.80 | $0.00 |
| 2024 | 26890 | SD49 - SCHOOL DIST #49 | $34.02 | $34.01 | $0.00 | $0.00 | $68.03 | $0.00 |
| 2024 | 26890 | FD1 - FIRE DISTRICT #1 | $43.10 | $43.10 | $0.00 | $0.00 | $86.20 | $0.00 |
| 2024 | 26890 | EMS1 - FIRE DIST #1 EMS | $16.47 | $16.46 | $0.00 | $0.00 | $32.93 | $0.00 |
| 2024 | 26890 | JCCD - JC Conservation District | $2.55 | $2.55 | $0.00 | $0.00 | $5.10 | $0.00 |
| 2024 | 26890 | NWA - Noxious Weed Assessment | $2.15 | $2.15 | $0.00 | $0.00 | $4.30 | $0.00 |
| 2024 | 26890 | WAT - Clean Water District | $12.50 | $12.50 | $0.00 | $0.00 | $25.00 | $0.00 |
| 2024 | 26890 | TOTAL: | $274.45 | $274.37 | $0.00 | $0.00 | $548.82 | $0.00 |
|
| 2024 | 26890 | $274.45 | $274.37 | $0.00 | $0.00 | $548.82 | $0.00 |
Statement Details |
| 2023 | 26931 | STATE - STATE LEVY (SCHOOL) | $73.98 | $73.98 | $0.00 | $0.00 | $147.96 | $0.00 |
| 2023 | 26931 | COUNTY - COUNTY LEVIES (CE, DD, VET, MH) | $32.30 | $32.27 | $0.00 | $0.00 | $64.57 | $0.00 |
| 2023 | 26931 | CONSERVE - CONSERVATION FUTURES | $0.97 | $0.97 | $0.00 | $0.00 | $1.94 | $0.00 |
| 2023 | 26931 | COROADS - COUNTY ROADS (ROADS, DIV TO CE) | $26.12 | $26.11 | $0.00 | $0.00 | $52.23 | $0.00 |
| 2023 | 26931 | PORTPT - PORT DISTRICT | $13.61 | $13.59 | $0.00 | $0.00 | $27.20 | $0.00 |
| 2023 | 26931 | PUD1 - PUD #1 | $2.14 | $2.14 | $0.00 | $0.00 | $4.28 | $0.00 |
| 2023 | 26931 | LIB1 - LIBRARY DIST #1 | $10.11 | $10.10 | $0.00 | $0.00 | $20.21 | $0.00 |
| 2023 | 26931 | HD2 - HOSP DIST #2 | $1.89 | $1.88 | $0.00 | $0.00 | $3.77 | $0.00 |
| 2023 | 26931 | SD49 - SCHOOL DIST #49 | $34.58 | $34.58 | $0.00 | $0.00 | $69.16 | $0.00 |
| 2023 | 26931 | FD3 - FIRE DISTRICT #3 | $32.12 | $32.11 | $0.00 | $0.00 | $64.23 | $0.00 |
| 2023 | 26931 | EMS3 - FIRE DIST #3 EMS | $11.48 | $11.48 | $0.00 | $0.00 | $22.96 | $0.00 |
| 2023 | 26931 | JCCD - JC Conservation District | $2.55 | $2.55 | $0.00 | $0.00 | $5.10 | $0.00 |
| 2023 | 26931 | NWA - Noxious Weed Assessment | $2.15 | $2.15 | $0.00 | $0.00 | $4.30 | $0.00 |
| 2023 | 26931 | WAT - Clean Water District | $12.00 | $12.00 | $0.00 | $0.00 | $24.00 | $0.00 |
| 2023 | 26931 | TOTAL: | $256.00 | $255.91 | $0.00 | $0.00 | $511.91 | $0.00 |
|
| 2023 | 26931 | $256.00 | $255.91 | $0.00 | $0.00 | $511.91 | $0.00 |
Values
| (+) Improvement Homesite Value: | + | $0 | |
| (+) Improvement Non-Homesite Value: | + | $25,117 | |
| (+) Land Homesite Value: | + | $0 | |
| (+) Land Non-Homesite Value: | + | $46,069 | |
| (+) Curr Use (HS): | + | $0 | $0 |
| (+) Curr Use (NHS): | + | $0 | $0 |
| | | -------------------------- | |
| (=) Market Value: | = | $71,186 | |
| (–) Productivity Loss: | – | $0 | |
| | | -------------------------- | |
| (=) Subtotal: | = | $71,186 | |
| (+) Senior Appraised Value: | + | $0 | |
| (+) Non-Senior Appraised Value: | + | $71,186 | |
| | | -------------------------- | |
| (=) Total Appraised Value: | = | $71,186 | |
| (–) Senior Exemption Loss: | – | $0 | |
| (–) Exemption Loss: | – | $0 | |
| | | -------------------------- | |
| (=) Taxable Value: | = | $71,186 | |
Taxing Jurisdiction
| Owner: | TERRENCE REUSSER | | |
| % Ownership: | 100.0000000000% | | |
| Total Value: | $71,186 | | |
| Tax Area: | 0212 - 1-49F1E1W1H2L1 |
| CE | COUNTY CURRENT EXPENSE | 0.9034619479 | $71,186 | $71,186 | $64.31 | | |
| CNTYDD | DEVELOPMENTAL DISABILITIES | 0.0052121823 | $71,186 | $71,186 | $0.37 | | |
| CNTYVET | VETERANS RELIEF | 0.0052777810 | $71,186 | $71,186 | $0.38 | | |
| MENTAL | MENTAL HEALTH | 0.0052121823 | $71,186 | $71,186 | $0.37 | | |
| ROADS | COUNTY ROADS | 0.7415066410 | $71,186 | $71,186 | $52.78 | | |
| ROADSCU | COUNTY ROADS TO CUR EXP | 0.0000000000 | $71,186 | $71,186 | $0.00 | | |
| HOSP2CASH | HOSP DIST #2 GENERAL | 0.0536075306 | $71,186 | $71,186 | $3.82 | | |
| SCH49CP | SCHOOL DIST #49 CAP PROJ | 0.6279093905 | $71,186 | $71,186 | $44.70 | | |
| SCH49MO | SCHOOL DIST #49 EP & O | 0.6376483602 | $71,186 | $71,186 | $45.39 | | |
| CONSERVE | CONSERVATION FUTURES | 0.0275621078 | $71,186 | $71,186 | $1.96 | | |
| EMS1 | FIRE DIST #1 EMS | 0.4679948282 | $71,186 | $71,186 | $33.31 | | |
| FD1 | FIRE DIST #1 GENERAL | 1.2171942929 | $71,186 | $71,186 | $86.65 | | |
| LIB1 | LIBRARY DIST #1 GENERAL | 0.2868827388 | $71,186 | $71,186 | $20.42 | | |
| PORTPT | PORT OF PT GENERAL | 0.1134941229 | $71,186 | $71,186 | $8.08 | | |
| PORTPTIDD | PORT OF PT IDD 2019 | 0.2577346692 | $71,186 | $71,186 | $18.35 | | |
| PUD1 | PUD #1 GENERAL | 0.0597888892 | $71,186 | $71,186 | $4.26 | | |
| STATE | STATE SCHOOL PART 1 | 1.4940692947 | $71,186 | $71,186 | $106.36 | | |
| STATE2 | STATE SCHOOL PART 2 | 0.8050170049 | $71,186 | $71,186 | $57.31 | | |
| | Total Tax Rate: | 7.7095739644 | | | | | |
| | | | | Taxes w/Current Exemptions: | $548.82 | | |
| | | | | Taxes w/o Exemptions: | $548.82 | | |
Improvement / Building
| Improvement #1: | Residential Bldg | State Code: | 19 | 0.0 sqft | Value: | $25,117 |
| | Type | Description | Class CD | Sub Class CD | Year Built | Area |
| | GDET | Detached Garage | 2 | * | 1993 | 630.0 |
| | CARPTN | Carport W/O Floor | 3 | * | 1993 | 330.0 |
| | SHED | Shed (Table Not Dep) | * | * | 1993 | 0.0 |
Sketch
| No sketches available for this property. |
Property Image
Land
| 1 | 3365-1265S | | 0.0000 | 0.00 | 0.00 | 0.00 | 1.00 | $46,069 | $0 |
Roll Value History
| 2026 | N/A | N/A | N/A | N/A | N/A |
| 2025 | $25,117 | $46,069 | $0 | $71,186 | $71,186 |
| 2024 | $25,117 | $46,069 | $0 | $71,186 | $71,186 |
| 2023 | $23,976 | $41,875 | $0 | $65,851 | $65,851 |
| 2022 | $23,976 | $38,875 | $0 | $62,851 | $62,851 |
Deed and Sales History
| 1 | 08/04/2021 | SWD | Statutory Warranty Deed | ROBERT L HOYLE III | TERRENCE REUSSER | | | $74,000.00 | 137377 | |
|   | |
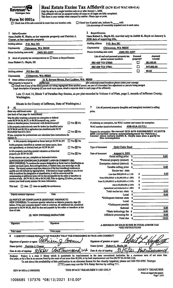
| 2 | 08/04/2021 | QCD | Quit Claim Deed | | | | | | 137376 | |
| 3 | 01/09/2020 | QCD | Quit Claim Deed | JUDITH K HOYLE | ROBERT L HOYLE III | | | | 133778 | |
| 4 | 12/25/2019 | PRD | Personal Representatives Deed | EUGENIA M LYLE | JUDITH K HOYLE | | | | 133777 | |
| 5 | 05/01/2018 | QCD | Quit Claim Deed | NORMAN C LYLE | EUGENIA M LYLE | | | | 130425 | |
Payout Agreement
| No payout information available.. |