Property
Account |
| Property ID: | 37609 | Abbreviated Legal Description: | PARADISE BAY ESTATES BLK 11 LOTS 3 THRU 5 |
| Parcel # / Geo ID: | 983401103 | Agent Code: | |
| Type: | Real | | |
| Tax Area: | 0212 - 1-49F1E1W1H2L1 | Land Use Code | 11 |
| Open Space: | N | DFL | N |
| Historic Property: | N | Remodel Property: | N |
| Multi-Family Redevelopment: | N | | |
| Township: | 28N | Section: | 22 |
| Range: | 1E |
Location |
| Address: | 3511 PARADISE BAY RD PORT LUDLOW, WA 98365 | Mapsco: | 087/003 |
| Neighborhood: | PARADISE BAY ESTATES; PARADISE VIEW ESTATES | Map ID: | |
| Neighborhood CD: | 3365 |
Owner |
| Name: | RAMON & ELENITA ANGELES | Owner ID: | 94691 |
| Mailing Address: | 21727 NW MONTEREY LOOP POULSBO, WA 98233-9805 | % Ownership: | 100.0000000000% |
| | | Exemptions: | |
Pay Tax Due
Select the appropriate checkbox next to the year to be paid. Multiple years may be selected.
*Convenience Fee not included
Taxes and Assessment Details
Property Tax Information as of
03/12/2026
Click on "Statement Details" to expand or collapse a tax statement.
* Please enter a valid date ** Please enter a valid date *
Statement Details |
| 2026 | 26808 | STATE - STATE LEVY (SCHOOL) | $468.46 | $468.45 | $0.00 | $0.00 | $0.00 | $936.91 |
| 2026 | 26808 | COUNTY - COUNTY LEVIES (CE, DD, VET, MH) | $187.29 | $187.27 | $0.00 | $0.00 | $0.00 | $374.56 |
| 2026 | 26808 | CONSERVE - CONSERVATION FUTURES | $5.62 | $5.61 | $0.00 | $0.00 | $0.00 | $11.23 |
| 2026 | 26808 | COROADS - COUNTY ROADS (ROADS, DIV TO CE) | $151.09 | $151.08 | $0.00 | $0.00 | $0.00 | $302.17 |
| 2026 | 26808 | PORTPT - PORT DISTRICT | $75.65 | $75.63 | $0.00 | $0.00 | $0.00 | $151.28 |
| 2026 | 26808 | PUD1 - PUD #1 | $12.18 | $12.18 | $0.00 | $0.00 | $0.00 | $24.36 |
| 2026 | 26808 | LIB1 - LIBRARY DIST #1 | $58.46 | $58.45 | $0.00 | $0.00 | $0.00 | $116.91 |
| 2026 | 26808 | HD2 - HOSP DIST #2 | $10.93 | $10.92 | $0.00 | $0.00 | $0.00 | $21.85 |
| 2026 | 26808 | SD49 - SCHOOL DIST #49 | $257.87 | $257.86 | $0.00 | $0.00 | $0.00 | $515.73 |
| 2026 | 26808 | FD1 - FIRE DISTRICT #1 | $248.01 | $248.01 | $0.00 | $0.00 | $0.00 | $496.02 |
| 2026 | 26808 | EMS1 - FIRE DIST #1 EMS | $95.36 | $95.35 | $0.00 | $0.00 | $0.00 | $190.71 |
| 2026 | 26808 | JCCD - JC Conservation District | $2.55 | $2.55 | $0.00 | $0.00 | $0.00 | $5.10 |
| 2026 | 26808 | NWA - Noxious Weed Assessment | $2.98 | $2.97 | $0.00 | $0.00 | $0.00 | $5.95 |
| 2026 | 26808 | OSS - On Site Septic | $23.10 | $23.10 | $0.00 | $0.00 | $0.00 | $46.20 |
| 2026 | 26808 | WAT - Clean Water District | $13.00 | $13.00 | $0.00 | $0.00 | $0.00 | $26.00 |
| 2026 | 26808 | TOTAL: | $1612.55 | $1612.43 | $0.00 | $0.00 | $0.00 | $3224.98 |
|
| 2026 | 26808 | $1612.55 | $1612.43 | $0.00 | $0.00 | $0.00 | $3224.98 |
Statement Details |
| 2025 | 26880 | STATE - STATE LEVY (SCHOOL) | $488.62 | $488.61 | $0.00 | $0.00 | $977.23 | $0.00 |
| 2025 | 26880 | COUNTY - COUNTY LEVIES (CE, DD, VET, MH) | $192.15 | $192.13 | $0.00 | $0.00 | $384.28 | $0.00 |
| 2025 | 26880 | CONSERVE - CONSERVATION FUTURES | $5.76 | $5.76 | $0.00 | $0.00 | $11.52 | $0.00 |
| 2025 | 26880 | COROADS - COUNTY ROADS (ROADS, DIV TO CE) | $153.95 | $153.93 | $0.00 | $0.00 | $307.88 | $0.00 |
| 2025 | 26880 | PORTPT - PORT DISTRICT | $78.41 | $78.40 | $0.00 | $0.00 | $156.81 | $0.00 |
| 2025 | 26880 | PUD1 - PUD #1 | $12.58 | $12.57 | $0.00 | $0.00 | $25.15 | $0.00 |
| 2025 | 26880 | LIB1 - LIBRARY DIST #1 | $59.56 | $59.55 | $0.00 | $0.00 | $119.11 | $0.00 |
| 2025 | 26880 | HD2 - HOSP DIST #2 | $11.21 | $11.21 | $0.00 | $0.00 | $22.42 | $0.00 |
| 2025 | 26880 | SD49 - SCHOOL DIST #49 | $261.87 | $261.86 | $0.00 | $0.00 | $523.73 | $0.00 |
| 2025 | 26880 | FD1 - FIRE DISTRICT #1 | $253.56 | $253.55 | $0.00 | $0.00 | $507.11 | $0.00 |
| 2025 | 26880 | EMS1 - FIRE DIST #1 EMS | $97.53 | $97.52 | $0.00 | $0.00 | $195.05 | $0.00 |
| 2025 | 26880 | JCCD - JC Conservation District | $2.55 | $2.55 | $0.00 | $0.00 | $5.10 | $0.00 |
| 2025 | 26880 | NWA - Noxious Weed Assessment | $2.15 | $2.15 | $0.00 | $0.00 | $4.30 | $0.00 |
| 2025 | 26880 | OSS - On Site Septic | $21.50 | $21.50 | $0.00 | $0.00 | $43.00 | $0.00 |
| 2025 | 26880 | WAT - Clean Water District | $13.00 | $13.00 | $0.00 | $0.00 | $26.00 | $0.00 |
| 2025 | 26880 | TOTAL: | $1654.40 | $1654.29 | $0.00 | $0.00 | $3308.69 | $0.00 |
|
| 2025 | 26880 | $1654.40 | $1654.29 | $0.00 | $0.00 | $3308.69 | $0.00 |
Statement Details |
| 2024 | 26937 | STATE - STATE LEVY (SCHOOL) | $443.48 | $443.46 | $0.00 | $0.00 | $886.94 | $0.00 |
| 2024 | 26937 | COUNTY - COUNTY LEVIES (CE, DD, VET, MH) | $189.77 | $189.75 | $0.00 | $0.00 | $379.52 | $0.00 |
| 2024 | 26937 | CONSERVE - CONSERVATION FUTURES | $5.69 | $5.69 | $0.00 | $0.00 | $11.38 | $0.00 |
| 2024 | 26937 | COROADS - COUNTY ROADS (ROADS, DIV TO CE) | $152.70 | $152.70 | $0.00 | $0.00 | $305.40 | $0.00 |
| 2024 | 26937 | PORTPT - PORT DISTRICT | $78.38 | $78.38 | $0.00 | $0.00 | $156.76 | $0.00 |
| 2024 | 26937 | PUD1 - PUD #1 | $12.47 | $12.46 | $0.00 | $0.00 | $24.93 | $0.00 |
| 2024 | 26937 | LIB1 - LIBRARY DIST #1 | $59.08 | $59.08 | $0.00 | $0.00 | $118.16 | $0.00 |
| 2024 | 26937 | HD2 - HOSP DIST #2 | $11.07 | $11.07 | $0.00 | $0.00 | $22.14 | $0.00 |
| 2024 | 26937 | SD49 - SCHOOL DIST #49 | $198.03 | $198.03 | $0.00 | $0.00 | $396.06 | $0.00 |
| 2024 | 26937 | FD1 - FIRE DISTRICT #1 | $250.92 | $250.91 | $0.00 | $0.00 | $501.83 | $0.00 |
| 2024 | 26937 | EMS1 - FIRE DIST #1 EMS | $95.84 | $95.84 | $0.00 | $0.00 | $191.68 | $0.00 |
| 2024 | 26937 | JCCD - JC Conservation District | $2.55 | $2.55 | $0.00 | $0.00 | $5.10 | $0.00 |
| 2024 | 26937 | NWA - Noxious Weed Assessment | $2.15 | $2.15 | $0.00 | $0.00 | $4.30 | $0.00 |
| 2024 | 26937 | OSS - On Site Septic | $21.00 | $21.00 | $0.00 | $0.00 | $42.00 | $0.00 |
| 2024 | 26937 | WAT - Clean Water District | $12.50 | $12.50 | $0.00 | $0.00 | $25.00 | $0.00 |
| 2024 | 26937 | TOTAL: | $1535.63 | $1535.57 | $0.00 | $0.00 | $3071.20 | $0.00 |
|
| 2024 | 26937 | $1535.63 | $1535.57 | $0.00 | $0.00 | $3071.20 | $0.00 |
Statement Details |
| 2023 | 26978 | STATE - STATE LEVY (SCHOOL) | $445.36 | $445.36 | $0.00 | $0.00 | $890.72 | $0.00 |
| 2023 | 26978 | COUNTY - COUNTY LEVIES (CE, DD, VET, MH) | $194.36 | $194.32 | $0.00 | $0.00 | $388.68 | $0.00 |
| 2023 | 26978 | CONSERVE - CONSERVATION FUTURES | $5.83 | $5.83 | $0.00 | $0.00 | $11.66 | $0.00 |
| 2023 | 26978 | COROADS - COUNTY ROADS (ROADS, DIV TO CE) | $157.24 | $157.23 | $0.00 | $0.00 | $314.47 | $0.00 |
| 2023 | 26978 | PORTPT - PORT DISTRICT | $81.87 | $81.86 | $0.00 | $0.00 | $163.73 | $0.00 |
| 2023 | 26978 | PUD1 - PUD #1 | $12.88 | $12.88 | $0.00 | $0.00 | $25.76 | $0.00 |
| 2023 | 26978 | LIB1 - LIBRARY DIST #1 | $60.84 | $60.83 | $0.00 | $0.00 | $121.67 | $0.00 |
| 2023 | 26978 | HD2 - HOSP DIST #2 | $11.34 | $11.34 | $0.00 | $0.00 | $22.68 | $0.00 |
| 2023 | 26978 | SD49 - SCHOOL DIST #49 | $208.19 | $208.17 | $0.00 | $0.00 | $416.36 | $0.00 |
| 2023 | 26978 | FD3 - FIRE DISTRICT #3 | $193.35 | $193.34 | $0.00 | $0.00 | $386.69 | $0.00 |
| 2023 | 26978 | EMS3 - FIRE DIST #3 EMS | $69.12 | $69.12 | $0.00 | $0.00 | $138.24 | $0.00 |
| 2023 | 26978 | JCCD - JC Conservation District | $2.55 | $2.55 | $0.00 | $0.00 | $5.10 | $0.00 |
| 2023 | 26978 | NWA - Noxious Weed Assessment | $2.15 | $2.15 | $0.00 | $0.00 | $4.30 | $0.00 |
| 2023 | 26978 | OSS - On Site Septic | $20.50 | $20.50 | $0.00 | $0.00 | $41.00 | $0.00 |
| 2023 | 26978 | WAT - Clean Water District | $12.00 | $12.00 | $0.00 | $0.00 | $24.00 | $0.00 |
| 2023 | 26978 | TOTAL: | $1477.58 | $1477.48 | $0.00 | $0.00 | $2955.06 | $0.00 |
|
| 2023 | 26978 | $1477.58 | $1477.48 | $0.00 | $0.00 | $2955.06 | $0.00 |
Values
| (+) Improvement Homesite Value: | + | $116,139 | |
| (+) Improvement Non-Homesite Value: | + | $0 | |
| (+) Land Homesite Value: | + | $291,375 | |
| (+) Land Non-Homesite Value: | + | $0 | |
| (+) Curr Use (HS): | + | $0 | $0 |
| (+) Curr Use (NHS): | + | $0 | $0 |
| | | -------------------------- | |
| (=) Market Value: | = | $407,514 | |
| (–) Productivity Loss: | – | $0 | |
| | | -------------------------- | |
| (=) Subtotal: | = | $407,514 | |
| (+) Senior Appraised Value: | + | $0 | |
| (+) Non-Senior Appraised Value: | + | $407,514 | |
| | | -------------------------- | |
| (=) Total Appraised Value: | = | $407,514 | |
| (–) Senior Exemption Loss: | – | $0 | |
| (–) Exemption Loss: | – | $0 | |
| | | -------------------------- | |
| (=) Taxable Value: | = | $407,514 | |
Taxing Jurisdiction
| Owner: | RAMON & ELENITA ANGELES | | |
| % Ownership: | 100.0000000000% | | |
| Total Value: | $407,514 | | |
| Tax Area: | 0212 - 1-49F1E1W1H2L1 |
| CE | COUNTY CURRENT EXPENSE | 0.9034619479 | $407,514 | $407,514 | $368.17 | | |
| CNTYDD | DEVELOPMENTAL DISABILITIES | 0.0052121823 | $407,514 | $407,514 | $2.12 | | |
| CNTYVET | VETERANS RELIEF | 0.0052777810 | $407,514 | $407,514 | $2.15 | | |
| MENTAL | MENTAL HEALTH | 0.0052121823 | $407,514 | $407,514 | $2.12 | | |
| ROADS | COUNTY ROADS | 0.7415066410 | $407,514 | $407,514 | $302.17 | | |
| ROADSCU | COUNTY ROADS TO CUR EXP | 0.0000000000 | $407,514 | $407,514 | $0.00 | | |
| HOSP2CASH | HOSP DIST #2 GENERAL | 0.0536075306 | $407,514 | $407,514 | $21.85 | | |
| SCH49CP | SCHOOL DIST #49 CAP PROJ | 0.6279093905 | $407,514 | $407,514 | $255.88 | | |
| SCH49MO | SCHOOL DIST #49 EP & O | 0.6376483602 | $407,514 | $407,514 | $259.85 | | |
| CONSERVE | CONSERVATION FUTURES | 0.0275621078 | $407,514 | $407,514 | $11.23 | | |
| EMS1 | FIRE DIST #1 EMS | 0.4679948282 | $407,514 | $407,514 | $190.71 | | |
| FD1 | FIRE DIST #1 GENERAL | 1.2171942929 | $407,514 | $407,514 | $496.02 | | |
| LIB1 | LIBRARY DIST #1 GENERAL | 0.2868827388 | $407,514 | $407,514 | $116.91 | | |
| PORTPT | PORT OF PT GENERAL | 0.1134941229 | $407,514 | $407,514 | $46.25 | | |
| PORTPTIDD | PORT OF PT IDD 2019 | 0.2577346692 | $407,514 | $407,514 | $105.03 | | |
| PUD1 | PUD #1 GENERAL | 0.0597888892 | $407,514 | $407,514 | $24.36 | | |
| STATE | STATE SCHOOL PART 1 | 1.4940692947 | $407,514 | $407,514 | $608.85 | | |
| STATE2 | STATE SCHOOL PART 2 | 0.8050170049 | $407,514 | $407,514 | $328.06 | | |
| | Total Tax Rate: | 7.7095739644 | | | | | |
| | | | | Taxes w/Current Exemptions: | $3,141.73 | | |
| | | | | Taxes w/o Exemptions: | $3,141.73 | | |
Improvement / Building
| Improvement #1: | Residential Bldg | State Code: | 11 | 768.0 sqft | Value: | $116,139 |
| Bathrooms (#): | 1 (FULL) | Bedrooms (#): | 1 | | Exterior Wall: | PL/T1 | Fireplace: | WD ST-GOOD | | Floor Construction: | FRAME | Foundation: | CONPR | | Heating/Cooling: | ELBB | Roof Cover: | COMP |
|
| | Type | Description | Class CD | Sub Class CD | Year Built | Area |
| | MA | Main Area | 3 | 1S | 1960 | 768.0 |
| | HDECK | House Deck | 3 | 1S | 1960 | 709.0 |
| | HENCL | House Enclosure | 3 | 1S | 1960 | 140.0 |
| | CARPTF | Carport W/Floor | 3 | 1S | 1960 | 360.0 |
| | SHED | Shed (Table Not Dep) | 3 | 1S | 1960 | 96.0 |
| | SHED | Shed (Table Not Dep) | 2 | 1S | 1960 | 96.0 |
Sketch
| No sketches available for this property. |
Property Image
Land
| 1 | 3365-1243S | | 0.0000 | 0.00 | 0.00 | 0.00 | 1.00 | $202,125 | $0 |
| 2 | 3365-1243S | | 0.0000 | 0.00 | 0.00 | 0.00 | 1.00 | $68,250 | $0 |
| 3 | 3365-1158L | | 0.0000 | 0.00 | 0.00 | 0.00 | 1.00 | $21,000 | $0 |
Roll Value History
| 2026 | N/A | N/A | N/A | N/A | N/A |
| 2025 | $116,139 | $291,375 | $0 | $407,514 | $407,514 |
| 2024 | $116,139 | $291,375 | $0 | $407,514 | $407,514 |
| 2023 | $110,860 | $272,500 | $0 | $383,360 | $383,360 |
| 2022 | $110,860 | $267,500 | $0 | $378,360 | $378,360 |
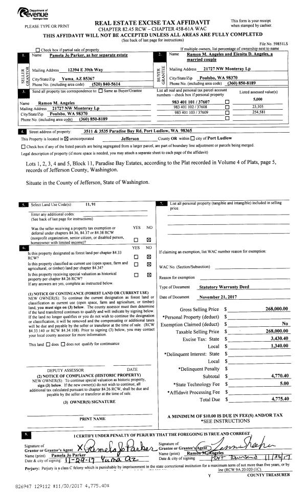
Deed and Sales History
| 1 | 11/21/2017 | SWD | Statutory Warranty Deed | PAMELA JO PARKER | RAMON & ELENITA ANGELES | | | $268,000.00 | 129112 | |
|   | |
| 2 | 06/22/1995 | SWD | Statutory Warranty Deed | LACHER REVOCABLE LIVING T | PARKER, ROBERT KENT/PAMELA JO | 0 | 0 | $90,500.00 | 77225 | 0 |
| 3 | 08/06/1993 | SWD | Statutory Warranty Deed | JACQUELINE D BARNARD ESTA | LACHER LIVING TRUST | 0 | 0 | $66,502.00 | 71843 | 0 |
Payout Agreement
| No payout information available.. |