Property
Account |
| Property ID: | 37634 | Abbreviated Legal Description: | PARADISE BAY ESTATES BLK 13 LOT 13 SUBJ/REST COV AFN 539077 |
| Parcel # / Geo ID: | 983401310 | Agent Code: | |
| Type: | Real | | |
| Tax Area: | 0212 - 1-49F1E1W1H2L1 | Land Use Code | 11 |
| Open Space: | N | DFL | N |
| Historic Property: | N | Remodel Property: | N |
| Multi-Family Redevelopment: | N | | |
| Township: | 28N | Section: | 23 |
| Range: | 1E |
Location |
| Address: | 131 SHORE DR PORT LUDLOW, WA 98365 | Mapsco: | 087/031 |
| Neighborhood: | PARADISE BAY ESTATES; PARADISE VIEW ESTATES | Map ID: | |
| Neighborhood CD: | 3365 |
Owner |
| Name: | RICHARD K INGLIN | Owner ID: | 113930 |
| Mailing Address: | SANDRA'S LAST SAY IN THE MATTER TRUST SANDRA M INGLIN 1605 22ND AVE SE OLYMPIA, WA 98501-3019 | % Ownership: | 100.0000000000% |
| | | Exemptions: | |
Pay Tax Due
Select the appropriate checkbox next to the year to be paid. Multiple years may be selected.
*Convenience Fee not included
Taxes and Assessment Details
Property Tax Information as of
03/11/2026
Click on "Statement Details" to expand or collapse a tax statement.
* Please enter a valid date ** Please enter a valid date *
Statement Details |
| 2026 | 26832 | STATE - STATE LEVY (SCHOOL) | $764.74 | $764.73 | $0.00 | $0.00 | $0.00 | $1529.47 |
| 2026 | 26832 | COUNTY - COUNTY LEVIES (CE, DD, VET, MH) | $305.76 | $305.72 | $0.00 | $0.00 | $0.00 | $611.48 |
| 2026 | 26832 | CONSERVE - CONSERVATION FUTURES | $9.17 | $9.17 | $0.00 | $0.00 | $0.00 | $18.34 |
| 2026 | 26832 | COROADS - COUNTY ROADS (ROADS, DIV TO CE) | $246.65 | $246.64 | $0.00 | $0.00 | $0.00 | $493.29 |
| 2026 | 26832 | PORTPT - PORT DISTRICT | $123.48 | $123.48 | $0.00 | $0.00 | $0.00 | $246.96 |
| 2026 | 26832 | PUD1 - PUD #1 | $19.89 | $19.88 | $0.00 | $0.00 | $0.00 | $39.77 |
| 2026 | 26832 | LIB1 - LIBRARY DIST #1 | $95.43 | $95.42 | $0.00 | $0.00 | $0.00 | $190.85 |
| 2026 | 26832 | HD2 - HOSP DIST #2 | $17.83 | $17.83 | $0.00 | $0.00 | $0.00 | $35.66 |
| 2026 | 26832 | SD49 - SCHOOL DIST #49 | $420.96 | $420.96 | $0.00 | $0.00 | $0.00 | $841.92 |
| 2026 | 26832 | FD1 - FIRE DISTRICT #1 | $404.87 | $404.87 | $0.00 | $0.00 | $0.00 | $809.74 |
| 2026 | 26832 | EMS1 - FIRE DIST #1 EMS | $155.67 | $155.66 | $0.00 | $0.00 | $0.00 | $311.33 |
| 2026 | 26832 | JCCD - JC Conservation District | $2.55 | $2.55 | $0.00 | $0.00 | $0.00 | $5.10 |
| 2026 | 26832 | NWA - Noxious Weed Assessment | $2.98 | $2.97 | $0.00 | $0.00 | $0.00 | $5.95 |
| 2026 | 26832 | OSS - On Site Septic | $23.10 | $23.10 | $0.00 | $0.00 | $0.00 | $46.20 |
| 2026 | 26832 | WAT - Clean Water District | $13.00 | $13.00 | $0.00 | $0.00 | $0.00 | $26.00 |
| 2026 | 26832 | TOTAL: | $2606.08 | $2605.98 | $0.00 | $0.00 | $0.00 | $5212.06 |
|
| 2026 | 26832 | $2606.08 | $2605.98 | $0.00 | $0.00 | $0.00 | $5212.06 |
Statement Details |
| 2025 | 26904 | STATE - STATE LEVY (SCHOOL) | $797.64 | $797.64 | $0.00 | $0.00 | $1595.28 | $0.00 |
| 2025 | 26904 | COUNTY - COUNTY LEVIES (CE, DD, VET, MH) | $313.68 | $313.65 | $0.00 | $0.00 | $627.33 | $0.00 |
| 2025 | 26904 | CONSERVE - CONSERVATION FUTURES | $9.41 | $9.40 | $0.00 | $0.00 | $18.81 | $0.00 |
| 2025 | 26904 | COROADS - COUNTY ROADS (ROADS, DIV TO CE) | $251.30 | $251.29 | $0.00 | $0.00 | $502.59 | $0.00 |
| 2025 | 26904 | PORTPT - PORT DISTRICT | $128.00 | $127.99 | $0.00 | $0.00 | $255.99 | $0.00 |
| 2025 | 26904 | PUD1 - PUD #1 | $20.53 | $20.52 | $0.00 | $0.00 | $41.05 | $0.00 |
| 2025 | 26904 | LIB1 - LIBRARY DIST #1 | $97.23 | $97.22 | $0.00 | $0.00 | $194.45 | $0.00 |
| 2025 | 26904 | HD2 - HOSP DIST #2 | $18.30 | $18.30 | $0.00 | $0.00 | $36.60 | $0.00 |
| 2025 | 26904 | SD49 - SCHOOL DIST #49 | $427.50 | $427.48 | $0.00 | $0.00 | $854.98 | $0.00 |
| 2025 | 26904 | FD1 - FIRE DISTRICT #1 | $413.92 | $413.92 | $0.00 | $0.00 | $827.84 | $0.00 |
| 2025 | 26904 | EMS1 - FIRE DIST #1 EMS | $159.21 | $159.20 | $0.00 | $0.00 | $318.41 | $0.00 |
| 2025 | 26904 | JCCD - JC Conservation District | $2.55 | $2.55 | $0.00 | $0.00 | $5.10 | $0.00 |
| 2025 | 26904 | NWA - Noxious Weed Assessment | $2.15 | $2.15 | $0.00 | $0.00 | $4.30 | $0.00 |
| 2025 | 26904 | OSS - On Site Septic | $21.50 | $21.50 | $0.00 | $0.00 | $43.00 | $0.00 |
| 2025 | 26904 | WAT - Clean Water District | $13.00 | $13.00 | $0.00 | $0.00 | $26.00 | $0.00 |
| 2025 | 26904 | TOTAL: | $2675.92 | $2675.81 | $0.00 | $0.00 | $5351.73 | $0.00 |
|
| 2025 | 26904 | $2675.92 | $2675.81 | $0.00 | $0.00 | $5351.73 | $0.00 |
Statement Details |
| 2024 | 26961 | STATE - STATE LEVY (SCHOOL) | $728.29 | $728.28 | $0.00 | $0.00 | $1456.57 | $0.00 |
| 2024 | 26961 | COUNTY - COUNTY LEVIES (CE, DD, VET, MH) | $311.64 | $311.64 | $0.00 | $0.00 | $623.28 | $0.00 |
| 2024 | 26961 | CONSERVE - CONSERVATION FUTURES | $9.35 | $9.34 | $0.00 | $0.00 | $18.69 | $0.00 |
| 2024 | 26961 | COROADS - COUNTY ROADS (ROADS, DIV TO CE) | $250.77 | $250.77 | $0.00 | $0.00 | $501.54 | $0.00 |
| 2024 | 26961 | PORTPT - PORT DISTRICT | $128.72 | $128.72 | $0.00 | $0.00 | $257.44 | $0.00 |
| 2024 | 26961 | PUD1 - PUD #1 | $20.47 | $20.47 | $0.00 | $0.00 | $40.94 | $0.00 |
| 2024 | 26961 | LIB1 - LIBRARY DIST #1 | $97.02 | $97.02 | $0.00 | $0.00 | $194.04 | $0.00 |
| 2024 | 26961 | HD2 - HOSP DIST #2 | $18.19 | $18.18 | $0.00 | $0.00 | $36.37 | $0.00 |
| 2024 | 26961 | SD49 - SCHOOL DIST #49 | $325.22 | $325.20 | $0.00 | $0.00 | $650.42 | $0.00 |
| 2024 | 26961 | FD1 - FIRE DISTRICT #1 | $412.06 | $412.06 | $0.00 | $0.00 | $824.12 | $0.00 |
| 2024 | 26961 | EMS1 - FIRE DIST #1 EMS | $157.39 | $157.39 | $0.00 | $0.00 | $314.78 | $0.00 |
| 2024 | 26961 | JCCD - JC Conservation District | $2.55 | $2.55 | $0.00 | $0.00 | $5.10 | $0.00 |
| 2024 | 26961 | NWA - Noxious Weed Assessment | $2.15 | $2.15 | $0.00 | $0.00 | $4.30 | $0.00 |
| 2024 | 26961 | OSS - On Site Septic | $21.00 | $21.00 | $0.00 | $0.00 | $42.00 | $0.00 |
| 2024 | 26961 | WAT - Clean Water District | $12.50 | $12.50 | $0.00 | $0.00 | $25.00 | $0.00 |
| 2024 | 26961 | TOTAL: | $2497.32 | $2497.27 | $0.00 | $0.00 | $4994.59 | $0.00 |
|
| 2024 | 26961 | $2497.32 | $2497.27 | $0.00 | $0.00 | $4994.59 | $0.00 |
Statement Details |
| 2023 | 27002 | STATE - STATE LEVY (SCHOOL) | $735.18 | $735.16 | $0.00 | $0.00 | $1470.34 | $0.00 |
| 2023 | 27002 | COUNTY - COUNTY LEVIES (CE, DD, VET, MH) | $320.81 | $320.79 | $0.00 | $0.00 | $641.60 | $0.00 |
| 2023 | 27002 | CONSERVE - CONSERVATION FUTURES | $9.62 | $9.62 | $0.00 | $0.00 | $19.24 | $0.00 |
| 2023 | 27002 | COROADS - COUNTY ROADS (ROADS, DIV TO CE) | $259.56 | $259.55 | $0.00 | $0.00 | $519.11 | $0.00 |
| 2023 | 27002 | PORTPT - PORT DISTRICT | $135.14 | $135.14 | $0.00 | $0.00 | $270.28 | $0.00 |
| 2023 | 27002 | PUD1 - PUD #1 | $21.27 | $21.26 | $0.00 | $0.00 | $42.53 | $0.00 |
| 2023 | 27002 | LIB1 - LIBRARY DIST #1 | $100.42 | $100.42 | $0.00 | $0.00 | $200.84 | $0.00 |
| 2023 | 27002 | HD2 - HOSP DIST #2 | $18.72 | $18.72 | $0.00 | $0.00 | $37.44 | $0.00 |
| 2023 | 27002 | SD49 - SCHOOL DIST #49 | $343.66 | $343.64 | $0.00 | $0.00 | $687.30 | $0.00 |
| 2023 | 27002 | FD3 - FIRE DISTRICT #3 | $319.16 | $319.15 | $0.00 | $0.00 | $638.31 | $0.00 |
| 2023 | 27002 | EMS3 - FIRE DIST #3 EMS | $114.10 | $114.10 | $0.00 | $0.00 | $228.20 | $0.00 |
| 2023 | 27002 | JCCD - JC Conservation District | $2.55 | $2.55 | $0.00 | $0.00 | $5.10 | $0.00 |
| 2023 | 27002 | NWA - Noxious Weed Assessment | $2.15 | $2.15 | $0.00 | $0.00 | $4.30 | $0.00 |
| 2023 | 27002 | OSS - On Site Septic | $20.50 | $20.50 | $0.00 | $0.00 | $41.00 | $0.00 |
| 2023 | 27002 | WAT - Clean Water District | $12.00 | $12.00 | $0.00 | $0.00 | $24.00 | $0.00 |
| 2023 | 27002 | TOTAL: | $2414.84 | $2414.75 | $0.00 | $0.00 | $4829.59 | $0.00 |
|
| 2023 | 27002 | $2414.84 | $2414.75 | $0.00 | $0.00 | $4829.59 | $0.00 |
Values
| (+) Improvement Homesite Value: | + | $0 | |
| (+) Improvement Non-Homesite Value: | + | $460,500 | |
| (+) Land Homesite Value: | + | $0 | |
| (+) Land Non-Homesite Value: | + | $204,750 | |
| (+) Curr Use (HS): | + | $0 | $0 |
| (+) Curr Use (NHS): | + | $0 | $0 |
| | | -------------------------- | |
| (=) Market Value: | = | $665,250 | |
| (–) Productivity Loss: | – | $0 | |
| | | -------------------------- | |
| (=) Subtotal: | = | $665,250 | |
| (+) Senior Appraised Value: | + | $0 | |
| (+) Non-Senior Appraised Value: | + | $665,250 | |
| | | -------------------------- | |
| (=) Total Appraised Value: | = | $665,250 | |
| (–) Senior Exemption Loss: | – | $0 | |
| (–) Exemption Loss: | – | $0 | |
| | | -------------------------- | |
| (=) Taxable Value: | = | $665,250 | |
Taxing Jurisdiction
| Owner: | RICHARD K INGLIN | | |
| % Ownership: | 100.0000000000% | | |
| Total Value: | $665,250 | | |
| Tax Area: | 0212 - 1-49F1E1W1H2L1 |
| CE | COUNTY CURRENT EXPENSE | 0.9034619479 | $665,250 | $665,250 | $601.03 | | |
| CNTYDD | DEVELOPMENTAL DISABILITIES | 0.0052121823 | $665,250 | $665,250 | $3.47 | | |
| CNTYVET | VETERANS RELIEF | 0.0052777810 | $665,250 | $665,250 | $3.51 | | |
| MENTAL | MENTAL HEALTH | 0.0052121823 | $665,250 | $665,250 | $3.47 | | |
| ROADS | COUNTY ROADS | 0.7415066410 | $665,250 | $665,250 | $493.29 | | |
| ROADSCU | COUNTY ROADS TO CUR EXP | 0.0000000000 | $665,250 | $665,250 | $0.00 | | |
| HOSP2CASH | HOSP DIST #2 GENERAL | 0.0536075306 | $665,250 | $665,250 | $35.66 | | |
| SCH49CP | SCHOOL DIST #49 CAP PROJ | 0.6279093905 | $665,250 | $665,250 | $417.72 | | |
| SCH49MO | SCHOOL DIST #49 EP & O | 0.6376483602 | $665,250 | $665,250 | $424.20 | | |
| CONSERVE | CONSERVATION FUTURES | 0.0275621078 | $665,250 | $665,250 | $18.34 | | |
| EMS1 | FIRE DIST #1 EMS | 0.4679948282 | $665,250 | $665,250 | $311.33 | | |
| FD1 | FIRE DIST #1 GENERAL | 1.2171942929 | $665,250 | $665,250 | $809.74 | | |
| LIB1 | LIBRARY DIST #1 GENERAL | 0.2868827388 | $665,250 | $665,250 | $190.85 | | |
| PORTPT | PORT OF PT GENERAL | 0.1134941229 | $665,250 | $665,250 | $75.50 | | |
| PORTPTIDD | PORT OF PT IDD 2019 | 0.2577346692 | $665,250 | $665,250 | $171.46 | | |
| PUD1 | PUD #1 GENERAL | 0.0597888892 | $665,250 | $665,250 | $39.77 | | |
| STATE | STATE SCHOOL PART 1 | 1.4940692947 | $665,250 | $665,250 | $993.93 | | |
| STATE2 | STATE SCHOOL PART 2 | 0.8050170049 | $665,250 | $665,250 | $535.54 | | |
| | Total Tax Rate: | 7.7095739644 | | | | | |
| | | | | Taxes w/Current Exemptions: | $5,128.81 | | |
| | | | | Taxes w/o Exemptions: | $5,128.81 | | |
Improvement / Building
| Improvement #1: | Residential Bldg | State Code: | 11 | 1626.0 sqft | Value: | $460,500 |
| Bathrooms (#): | 2 (FULL) | Bedrooms (#): | 2 | | Exterior Wall: | SI/ST | Floor Construction: | FRAME | | Foundation: | CONPR | Heating/Cooling: | HPUMP | | Roof Cover: | COMP |   |   |
|
| | Type | Description | Class CD | Sub Class CD | Year Built | Area |
| | MA | Main Area | 5- | 15SF | 2009 | 1106.0 |
| | MA2 | Second Floor Main Area | 5- | 15SF | 2009 | 520.0 |
| | HWPOR | House Wood Porch | 5 | 15SF | 2009 | 36.0 |
| | HDECK | House Deck | 5 | 15SF | 2009 | 488.0 |
| | GATT | House Attached Garage | 5 | 15SF | 2009 | 590.0 |
| | PATIO | House Patio | 5 | 15SF | 2009 | 260.0 |
Sketch
Property Image
Land
| 1 | 3365-1115L | | 0.0000 | 0.00 | 0.00 | 0.00 | 1.00 | $204,750 | $0 |
Roll Value History
| 2026 | N/A | N/A | N/A | N/A | N/A |
| 2025 | $460,500 | $204,750 | $0 | $665,250 | $665,250 |
| 2024 | $460,500 | $204,750 | $0 | $665,250 | $665,250 |
| 2023 | $439,568 | $190,000 | $0 | $629,568 | $629,568 |
| 2022 | $439,568 | $185,000 | $0 | $624,568 | $624,568 |
Deed and Sales History
| 1 | 01/13/2026 | WD | Warranty Deed | SANDRA M INGLIN | SANDRA'S LAST SAY IN THE MATTER TRUST | | | | 145504 | |
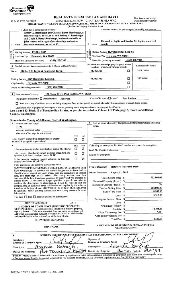
| 2 | 08/12/2019 | SWD | Statutory Warranty Deed | JEFFREY A REMBAUGH | RICHARD K & SANDRA M INGLIN | | | $702,000.00 | 133012 | |
|   | |
| 3 | 05/18/2007 | QCD | Quit Claim Deed | REMBAUGH, JEFFREY & GAYLE | REMBAUGH, JEFFREY/GAYLE | | | $0.00 | 109479 | 0 |
| 4 | 10/19/2004 | SPWD | Special Warranty Deed | FLETCHER, CHARLES A ESTAT | REMBAUGH, JEFFREY | 0 | 0 | $0.00 | 101835 | 0 |
| 5 | 02/14/2000 | WD | Warranty Deed | LARSON, VERNA E/EST | FLETCHER, CHARLES A | 0 | 0 | $0.00 | 89001 | 0 |
Payout Agreement
| No payout information available.. |