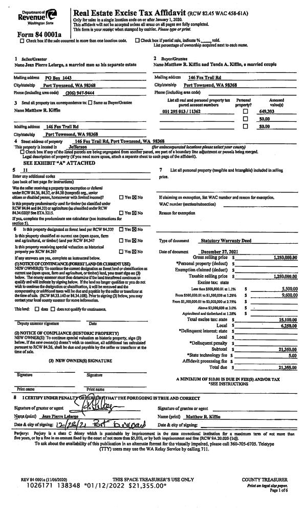
Property
Account |
| Property ID: | 37694 | Abbreviated Legal Description: | PARADISE VIEW ESTATES BLK B LOTS 1&2(TAX 4), 3(N50') & LOT 4(ALL) |
| Parcel # / Geo ID: | 984000203 | Agent Code: | |
| Type: | Real | | |
| Tax Area: | 0212 - 1-49F1E1W1H2L1 | Land Use Code | 11 |
| Open Space: | N | DFL | N |
| Historic Property: | N | Remodel Property: | N |
| Multi-Family Redevelopment: | N | | |
| Township: | 28N | Section: | 22 |
| Range: | 1E |
Location |
| Address: | 3230 PARADISE BAY RD PORT LUDLOW, WA 98365 | Mapsco: | 088/021 |
| Neighborhood: | PARADISE BAY ESTATES; PARADISE VIEW ESTATES | Map ID: | |
| Neighborhood CD: | 3365 |
Owner |
| Name: | CHAD & KIARA BUECHLER | Owner ID: | 105804 |
| Mailing Address: | 14703 SE 145TH PL RENTON, WA 98059-7336 | % Ownership: | 100.0000000000% |
| | | Exemptions: | |
Pay Tax Due
Select the appropriate checkbox next to the year to be paid. Multiple years may be selected.
*Convenience Fee not included
Taxes and Assessment Details
Property Tax Information as of
03/11/2026
Click on "Statement Details" to expand or collapse a tax statement.
* Please enter a valid date ** Please enter a valid date *
Statement Details |
| 2026 | 26889 | STATE - STATE LEVY (SCHOOL) | $335.89 | $335.88 | $0.00 | $0.00 | $0.00 | $671.77 |
| 2026 | 26889 | COUNTY - COUNTY LEVIES (CE, DD, VET, MH) | $134.28 | $134.28 | $0.00 | $0.00 | $0.00 | $268.56 |
| 2026 | 26889 | CONSERVE - CONSERVATION FUTURES | $4.03 | $4.02 | $0.00 | $0.00 | $0.00 | $8.05 |
| 2026 | 26889 | COROADS - COUNTY ROADS (ROADS, DIV TO CE) | $108.33 | $108.33 | $0.00 | $0.00 | $0.00 | $216.66 |
| 2026 | 26889 | PORTPT - PORT DISTRICT | $54.24 | $54.23 | $0.00 | $0.00 | $0.00 | $108.47 |
| 2026 | 26889 | PUD1 - PUD #1 | $8.74 | $8.73 | $0.00 | $0.00 | $0.00 | $17.47 |
| 2026 | 26889 | LIB1 - LIBRARY DIST #1 | $41.91 | $41.91 | $0.00 | $0.00 | $0.00 | $83.82 |
| 2026 | 26889 | HD2 - HOSP DIST #2 | $7.83 | $7.83 | $0.00 | $0.00 | $0.00 | $15.66 |
| 2026 | 26889 | SD49 - SCHOOL DIST #49 | $184.90 | $184.88 | $0.00 | $0.00 | $0.00 | $369.78 |
| 2026 | 26889 | FD1 - FIRE DISTRICT #1 | $177.83 | $177.82 | $0.00 | $0.00 | $0.00 | $355.65 |
| 2026 | 26889 | EMS1 - FIRE DIST #1 EMS | $68.37 | $68.37 | $0.00 | $0.00 | $0.00 | $136.74 |
| 2026 | 26889 | JCCD - JC Conservation District | $2.55 | $2.55 | $0.00 | $0.00 | $0.00 | $5.10 |
| 2026 | 26889 | NWA - Noxious Weed Assessment | $2.98 | $2.97 | $0.00 | $0.00 | $0.00 | $5.95 |
| 2026 | 26889 | OSS - On Site Septic | $23.10 | $23.10 | $0.00 | $0.00 | $0.00 | $46.20 |
| 2026 | 26889 | WAT - Clean Water District | $13.00 | $13.00 | $0.00 | $0.00 | $0.00 | $26.00 |
| 2026 | 26889 | TOTAL: | $1167.98 | $1167.90 | $0.00 | $0.00 | $0.00 | $2335.88 |
|
| 2026 | 26889 | $1167.98 | $1167.90 | $0.00 | $0.00 | $0.00 | $2335.88 |
Statement Details |
| 2025 | 26961 | STATE - STATE LEVY (SCHOOL) | $350.34 | $350.33 | $0.00 | $0.00 | $700.67 | $0.00 |
| 2025 | 26961 | COUNTY - COUNTY LEVIES (CE, DD, VET, MH) | $137.77 | $137.77 | $0.00 | $0.00 | $275.54 | $0.00 |
| 2025 | 26961 | CONSERVE - CONSERVATION FUTURES | $4.13 | $4.13 | $0.00 | $0.00 | $8.26 | $0.00 |
| 2025 | 26961 | COROADS - COUNTY ROADS (ROADS, DIV TO CE) | $110.38 | $110.37 | $0.00 | $0.00 | $220.75 | $0.00 |
| 2025 | 26961 | PORTPT - PORT DISTRICT | $56.22 | $56.21 | $0.00 | $0.00 | $112.43 | $0.00 |
| 2025 | 26961 | PUD1 - PUD #1 | $9.02 | $9.01 | $0.00 | $0.00 | $18.03 | $0.00 |
| 2025 | 26961 | LIB1 - LIBRARY DIST #1 | $42.71 | $42.70 | $0.00 | $0.00 | $85.41 | $0.00 |
| 2025 | 26961 | HD2 - HOSP DIST #2 | $8.04 | $8.04 | $0.00 | $0.00 | $16.08 | $0.00 |
| 2025 | 26961 | SD49 - SCHOOL DIST #49 | $187.76 | $187.76 | $0.00 | $0.00 | $375.52 | $0.00 |
| 2025 | 26961 | FD1 - FIRE DISTRICT #1 | $181.80 | $181.80 | $0.00 | $0.00 | $363.60 | $0.00 |
| 2025 | 26961 | EMS1 - FIRE DIST #1 EMS | $69.93 | $69.92 | $0.00 | $0.00 | $139.85 | $0.00 |
| 2025 | 26961 | JCCD - JC Conservation District | $2.55 | $2.55 | $0.00 | $0.00 | $5.10 | $0.00 |
| 2025 | 26961 | NWA - Noxious Weed Assessment | $2.15 | $2.15 | $0.00 | $0.00 | $4.30 | $0.00 |
| 2025 | 26961 | OSS - On Site Septic | $21.50 | $21.50 | $0.00 | $0.00 | $43.00 | $0.00 |
| 2025 | 26961 | WAT - Clean Water District | $13.00 | $13.00 | $0.00 | $0.00 | $26.00 | $0.00 |
| 2025 | 26961 | TOTAL: | $1197.30 | $1197.24 | $0.00 | $0.00 | $2394.54 | $0.00 |
|
| 2025 | 26961 | $1197.30 | $1197.24 | $0.00 | $0.00 | $2394.54 | $0.00 |
Statement Details |
| 2024 | 27019 | STATE - STATE LEVY (SCHOOL) | $316.55 | $316.53 | $0.00 | $0.00 | $633.08 | $0.00 |
| 2024 | 27019 | COUNTY - COUNTY LEVIES (CE, DD, VET, MH) | $135.47 | $135.43 | $0.00 | $0.00 | $270.90 | $0.00 |
| 2024 | 27019 | CONSERVE - CONSERVATION FUTURES | $4.06 | $4.06 | $0.00 | $0.00 | $8.12 | $0.00 |
| 2024 | 27019 | COROADS - COUNTY ROADS (ROADS, DIV TO CE) | $108.99 | $108.99 | $0.00 | $0.00 | $217.98 | $0.00 |
| 2024 | 27019 | PORTPT - PORT DISTRICT | $55.95 | $55.94 | $0.00 | $0.00 | $111.89 | $0.00 |
| 2024 | 27019 | PUD1 - PUD #1 | $8.90 | $8.89 | $0.00 | $0.00 | $17.79 | $0.00 |
| 2024 | 27019 | LIB1 - LIBRARY DIST #1 | $42.17 | $42.17 | $0.00 | $0.00 | $84.34 | $0.00 |
| 2024 | 27019 | HD2 - HOSP DIST #2 | $7.91 | $7.90 | $0.00 | $0.00 | $15.81 | $0.00 |
| 2024 | 27019 | SD49 - SCHOOL DIST #49 | $141.35 | $141.35 | $0.00 | $0.00 | $282.70 | $0.00 |
| 2024 | 27019 | FD1 - FIRE DISTRICT #1 | $179.10 | $179.10 | $0.00 | $0.00 | $358.20 | $0.00 |
| 2024 | 27019 | EMS1 - FIRE DIST #1 EMS | $68.41 | $68.41 | $0.00 | $0.00 | $136.82 | $0.00 |
| 2024 | 27019 | JCCD - JC Conservation District | $2.55 | $2.55 | $0.00 | $0.00 | $5.10 | $0.00 |
| 2024 | 27019 | NWA - Noxious Weed Assessment | $2.15 | $2.15 | $0.00 | $0.00 | $4.30 | $0.00 |
| 2024 | 27019 | OSS - On Site Septic | $21.00 | $21.00 | $0.00 | $0.00 | $42.00 | $0.00 |
| 2024 | 27019 | WAT - Clean Water District | $12.50 | $12.50 | $0.00 | $0.00 | $25.00 | $0.00 |
| 2024 | 27019 | TOTAL: | $1107.06 | $1106.97 | $0.00 | $0.00 | $2214.03 | $0.00 |
|
| 2024 | 27019 | $1107.06 | $1106.97 | $0.00 | $0.00 | $2214.03 | $0.00 |
Statement Details |
| 2023 | 27061 | STATE - STATE LEVY (SCHOOL) | $316.21 | $316.20 | $0.00 | $0.00 | $632.41 | $0.00 |
| 2023 | 27061 | COUNTY - COUNTY LEVIES (CE, DD, VET, MH) | $138.00 | $137.97 | $0.00 | $0.00 | $275.97 | $0.00 |
| 2023 | 27061 | CONSERVE - CONSERVATION FUTURES | $4.14 | $4.14 | $0.00 | $0.00 | $8.28 | $0.00 |
| 2023 | 27061 | COROADS - COUNTY ROADS (ROADS, DIV TO CE) | $111.65 | $111.63 | $0.00 | $0.00 | $223.28 | $0.00 |
| 2023 | 27061 | PORTPT - PORT DISTRICT | $58.13 | $58.12 | $0.00 | $0.00 | $116.25 | $0.00 |
| 2023 | 27061 | PUD1 - PUD #1 | $9.15 | $9.14 | $0.00 | $0.00 | $18.29 | $0.00 |
| 2023 | 27061 | LIB1 - LIBRARY DIST #1 | $43.19 | $43.19 | $0.00 | $0.00 | $86.38 | $0.00 |
| 2023 | 27061 | HD2 - HOSP DIST #2 | $8.06 | $8.05 | $0.00 | $0.00 | $16.11 | $0.00 |
| 2023 | 27061 | SD49 - SCHOOL DIST #49 | $147.81 | $147.80 | $0.00 | $0.00 | $295.61 | $0.00 |
| 2023 | 27061 | FD3 - FIRE DISTRICT #3 | $137.28 | $137.27 | $0.00 | $0.00 | $274.55 | $0.00 |
| 2023 | 27061 | EMS3 - FIRE DIST #3 EMS | $49.08 | $49.07 | $0.00 | $0.00 | $98.15 | $0.00 |
| 2023 | 27061 | JCCD - JC Conservation District | $2.55 | $2.55 | $0.00 | $0.00 | $5.10 | $0.00 |
| 2023 | 27061 | NWA - Noxious Weed Assessment | $2.15 | $2.15 | $0.00 | $0.00 | $4.30 | $0.00 |
| 2023 | 27061 | OSS - On Site Septic | $20.50 | $20.50 | $0.00 | $0.00 | $41.00 | $0.00 |
| 2023 | 27061 | WAT - Clean Water District | $12.00 | $12.00 | $0.00 | $0.00 | $24.00 | $0.00 |
| 2023 | 27061 | TOTAL: | $1059.90 | $1059.78 | $0.00 | $0.00 | $2119.68 | $0.00 |
|
| 2023 | 27061 | $1059.90 | $1059.78 | $0.00 | $0.00 | $2119.68 | $0.00 |
Values
| (+) Improvement Homesite Value: | + | $0 | |
| (+) Improvement Non-Homesite Value: | + | $166,189 | |
| (+) Land Homesite Value: | + | $0 | |
| (+) Land Non-Homesite Value: | + | $126,000 | |
| (+) Curr Use (HS): | + | $0 | $0 |
| (+) Curr Use (NHS): | + | $0 | $0 |
| | | -------------------------- | |
| (=) Market Value: | = | $292,189 | |
| (–) Productivity Loss: | – | $0 | |
| | | -------------------------- | |
| (=) Subtotal: | = | $292,189 | |
| (+) Senior Appraised Value: | + | $0 | |
| (+) Non-Senior Appraised Value: | + | $292,189 | |
| | | -------------------------- | |
| (=) Total Appraised Value: | = | $292,189 | |
| (–) Senior Exemption Loss: | – | $0 | |
| (–) Exemption Loss: | – | $0 | |
| | | -------------------------- | |
| (=) Taxable Value: | = | $292,189 | |
Taxing Jurisdiction
| Owner: | CHAD & KIARA BUECHLER | | |
| % Ownership: | 100.0000000000% | | |
| Total Value: | N/A | | |
| Tax Area: | 0212 - 1-49F1E1W1H2L1 |
| CE | COUNTY CURRENT EXPENSE | N/A | N/A | N/A | N/A | | |
| CNTYDD | DEVELOPMENTAL DISABILITIES | N/A | N/A | N/A | N/A | | |
| CNTYVET | VETERANS RELIEF | N/A | N/A | N/A | N/A | | |
| MENTAL | MENTAL HEALTH | N/A | N/A | N/A | N/A | | |
| ROADS | COUNTY ROADS | N/A | N/A | N/A | N/A | | |
| HOSP2CASH | HOSP DIST #2 GENERAL | N/A | N/A | N/A | N/A | | |
| SCH49CP | SCHOOL DIST #49 CAP PROJ | N/A | N/A | N/A | N/A | | |
| SCH49MO | SCHOOL DIST #49 EP & O | N/A | N/A | N/A | N/A | | |
| CONSERVE | CONSERVATION FUTURES | N/A | N/A | N/A | N/A | | |
| EMS1 | FIRE DIST #1 EMS | N/A | N/A | N/A | N/A | | |
| FD1 | FIRE DIST #1 GENERAL | N/A | N/A | N/A | N/A | | |
| LIB1 | LIBRARY DIST #1 GENERAL | N/A | N/A | N/A | N/A | | |
| PORTPT | PORT OF PT GENERAL | N/A | N/A | N/A | N/A | | |
| PORTPTIDD | PORT OF PT IDD 2019 | N/A | N/A | N/A | N/A | | |
| PUD1 | PUD #1 GENERAL | N/A | N/A | N/A | N/A | | |
| STATE | STATE SCHOOL PART 1 | N/A | N/A | N/A | N/A | | |
| STATE2 | STATE SCHOOL PART 2 | N/A | N/A | N/A | N/A | | |
| | Total Tax Rate: | N/A | | | | | |
| | | | | Taxes w/Current Exemptions: | N/A | | |
| | | | | Taxes w/o Exemptions: | N/A | | |
Improvement / Building
| Improvement #1: | Residential Bldg | State Code: | 11 | 560.0 sqft | Value: | $166,189 |
| Bathrooms (#): | 1 (FULL) | Bedrooms (#): | 2 | | Exterior Wall: | PL/T1 | Fireplace: | WD ST-GOOD | | Floor Construction: | FRAME | Foundation: | CONPR | | Heating/Cooling: | ELBB | Roof Cover: | METAL |
|
| | Type | Description | Class CD | Sub Class CD | Year Built | Area |
| | MA | Main Area | 4+ | 15SF | 1973 | 560.0 |
| | HDECK | House Deck | 4 | 15SF | 1973 | 370.0 |
| | HATTIC | House Attic | 4 | 15SF | 1973 | 280.0 |
Sketch
| No sketches available for this property. |
Property Image
Land
| 1 | 3365-1245S | | 0.0000 | 0.00 | 0.00 | 0.00 | 1.00 | $126,000 | $0 |
Roll Value History
| 2026 | N/A | N/A | N/A | N/A | N/A |
| 2025 | $166,189 | $126,000 | $0 | $292,189 | $292,189 |
| 2024 | $166,189 | $126,000 | $0 | $292,189 | $292,189 |
| 2023 | $158,635 | $115,000 | $0 | $273,635 | $273,635 |
| 2022 | $158,635 | $110,000 | $0 | $268,635 | $268,635 |
Deed and Sales History
| 1 | 09/28/2021 | SWD | Statutory Warranty Deed | EMILY J ADAMS | CHAD & KIARA BUECHLER | | | $400,000.00 | 137827 | |
|   | |
Payout Agreement
| No payout information available.. |