Property
Account |
| Property ID: | 37780 | Abbreviated Legal Description: | PARADISE VIEW ESTATES BLK H LOT 9 |
| Parcel # / Geo ID: | 984000807 | Agent Code: | |
| Type: | Real | | |
| Tax Area: | 0212 - 1-49F1E1W1H2L1 | Land Use Code | 91 |
| Open Space: | N | DFL | N |
| Historic Property: | N | Remodel Property: | N |
| Multi-Family Redevelopment: | N | | |
| Township: | 28N | Section: | 22 |
| Range: | 1E |
Location |
| Address: | | Mapsco: | 090/007 |
| Neighborhood: | PARADISE BAY ESTATES; PARADISE VIEW ESTATES | Map ID: | |
| Neighborhood CD: | 3365 |
Owner |
| Name: | VALERIE D SHORT | Owner ID: | 92105 |
| Mailing Address: | VIRGINIA M KUDRITZKI 5257 36TH AVE NE SEATTLE, WA 98105-3127 | % Ownership: | 100.0000000000% |
| | | Exemptions: | |
Pay Tax Due
Select the appropriate checkbox next to the year to be paid. Multiple years may be selected.
*Convenience Fee not included
Taxes and Assessment Details
Property Tax Information as of
03/12/2026
Click on "Statement Details" to expand or collapse a tax statement.
* Please enter a valid date ** Please enter a valid date *
Statement Details |
| 2026 | 26975 | STATE - STATE LEVY (SCHOOL) | $16.30 | $16.29 | $0.00 | $0.00 | $0.00 | $32.59 |
| 2026 | 26975 | COUNTY - COUNTY LEVIES (CE, DD, VET, MH) | $6.53 | $6.49 | $0.00 | $0.00 | $0.00 | $13.02 |
| 2026 | 26975 | CONSERVE - CONSERVATION FUTURES | $0.20 | $0.19 | $0.00 | $0.00 | $0.00 | $0.39 |
| 2026 | 26975 | COROADS - COUNTY ROADS (ROADS, DIV TO CE) | $5.26 | $5.25 | $0.00 | $0.00 | $0.00 | $10.51 |
| 2026 | 26975 | PORTPT - PORT DISTRICT | $2.64 | $2.62 | $0.00 | $0.00 | $0.00 | $5.26 |
| 2026 | 26975 | PUD1 - PUD #1 | $0.43 | $0.42 | $0.00 | $0.00 | $0.00 | $0.85 |
| 2026 | 26975 | LIB1 - LIBRARY DIST #1 | $2.04 | $2.03 | $0.00 | $0.00 | $0.00 | $4.07 |
| 2026 | 26975 | HD2 - HOSP DIST #2 | $0.38 | $0.38 | $0.00 | $0.00 | $0.00 | $0.76 |
| 2026 | 26975 | SD49 - SCHOOL DIST #49 | $8.97 | $8.97 | $0.00 | $0.00 | $0.00 | $17.94 |
| 2026 | 26975 | FD1 - FIRE DISTRICT #1 | $8.63 | $8.62 | $0.00 | $0.00 | $0.00 | $17.25 |
| 2026 | 26975 | EMS1 - FIRE DIST #1 EMS | $3.32 | $3.31 | $0.00 | $0.00 | $0.00 | $6.63 |
| 2026 | 26975 | JCCD - JC Conservation District | $2.53 | $2.53 | $0.00 | $0.00 | $0.00 | $5.06 |
| 2026 | 26975 | NWA - Noxious Weed Assessment | $2.98 | $2.97 | $0.00 | $0.00 | $0.00 | $5.95 |
| 2026 | 26975 | WAT - Clean Water District | $13.00 | $13.00 | $0.00 | $0.00 | $0.00 | $26.00 |
| 2026 | 26975 | TOTAL: | $73.21 | $73.07 | $0.00 | $0.00 | $0.00 | $146.28 |
|
| 2026 | 26975 | $73.21 | $73.07 | $0.00 | $0.00 | $0.00 | $146.28 |
Statement Details |
| 2025 | 27047 | STATE - STATE LEVY (SCHOOL) | $17.00 | $16.99 | $0.00 | $0.00 | $33.99 | $0.00 |
| 2025 | 27047 | COUNTY - COUNTY LEVIES (CE, DD, VET, MH) | $6.69 | $6.69 | $0.00 | $0.00 | $13.38 | $0.00 |
| 2025 | 27047 | CONSERVE - CONSERVATION FUTURES | $0.20 | $0.20 | $0.00 | $0.00 | $0.40 | $0.00 |
| 2025 | 27047 | COROADS - COUNTY ROADS (ROADS, DIV TO CE) | $5.36 | $5.35 | $0.00 | $0.00 | $10.71 | $0.00 |
| 2025 | 27047 | PORTPT - PORT DISTRICT | $2.73 | $2.72 | $0.00 | $0.00 | $5.45 | $0.00 |
| 2025 | 27047 | PUD1 - PUD #1 | $0.44 | $0.43 | $0.00 | $0.00 | $0.87 | $0.00 |
| 2025 | 27047 | LIB1 - LIBRARY DIST #1 | $2.07 | $2.07 | $0.00 | $0.00 | $4.14 | $0.00 |
| 2025 | 27047 | HD2 - HOSP DIST #2 | $0.39 | $0.39 | $0.00 | $0.00 | $0.78 | $0.00 |
| 2025 | 27047 | SD49 - SCHOOL DIST #49 | $9.11 | $9.11 | $0.00 | $0.00 | $18.22 | $0.00 |
| 2025 | 27047 | FD1 - FIRE DISTRICT #1 | $8.82 | $8.82 | $0.00 | $0.00 | $17.64 | $0.00 |
| 2025 | 27047 | EMS1 - FIRE DIST #1 EMS | $3.39 | $3.39 | $0.00 | $0.00 | $6.78 | $0.00 |
| 2025 | 27047 | JCCD - JC Conservation District | $2.53 | $2.53 | $0.00 | $0.00 | $5.06 | $0.00 |
| 2025 | 27047 | NWA - Noxious Weed Assessment | $2.15 | $2.15 | $0.00 | $0.00 | $4.30 | $0.00 |
| 2025 | 27047 | WAT - Clean Water District | $13.00 | $13.00 | $0.00 | $0.00 | $26.00 | $0.00 |
| 2025 | 27047 | TOTAL: | $73.88 | $73.84 | $0.00 | $0.00 | $147.72 | $0.00 |
|
| 2025 | 27047 | $73.88 | $73.84 | $0.00 | $0.00 | $147.72 | $0.00 |
Statement Details |
| 2024 | 27105 | STATE - STATE LEVY (SCHOOL) | $15.62 | $15.61 | $0.00 | $0.00 | $31.23 | $0.00 |
| 2024 | 27105 | COUNTY - COUNTY LEVIES (CE, DD, VET, MH) | $6.69 | $6.69 | $0.00 | $0.00 | $13.38 | $0.00 |
| 2024 | 27105 | CONSERVE - CONSERVATION FUTURES | $0.20 | $0.20 | $0.00 | $0.00 | $0.40 | $0.00 |
| 2024 | 27105 | COROADS - COUNTY ROADS (ROADS, DIV TO CE) | $5.38 | $5.37 | $0.00 | $0.00 | $10.75 | $0.00 |
| 2024 | 27105 | PORTPT - PORT DISTRICT | $2.77 | $2.75 | $0.00 | $0.00 | $5.52 | $0.00 |
| 2024 | 27105 | PUD1 - PUD #1 | $0.44 | $0.44 | $0.00 | $0.00 | $0.88 | $0.00 |
| 2024 | 27105 | LIB1 - LIBRARY DIST #1 | $2.08 | $2.08 | $0.00 | $0.00 | $4.16 | $0.00 |
| 2024 | 27105 | HD2 - HOSP DIST #2 | $0.39 | $0.39 | $0.00 | $0.00 | $0.78 | $0.00 |
| 2024 | 27105 | SD49 - SCHOOL DIST #49 | $6.98 | $6.97 | $0.00 | $0.00 | $13.95 | $0.00 |
| 2024 | 27105 | FD1 - FIRE DISTRICT #1 | $8.84 | $8.83 | $0.00 | $0.00 | $17.67 | $0.00 |
| 2024 | 27105 | EMS1 - FIRE DIST #1 EMS | $3.38 | $3.37 | $0.00 | $0.00 | $6.75 | $0.00 |
| 2024 | 27105 | JCCD - JC Conservation District | $2.53 | $2.53 | $0.00 | $0.00 | $5.06 | $0.00 |
| 2024 | 27105 | NWA - Noxious Weed Assessment | $2.15 | $2.15 | $0.00 | $0.00 | $4.30 | $0.00 |
| 2024 | 27105 | WAT - Clean Water District | $12.50 | $12.50 | $0.00 | $0.00 | $25.00 | $0.00 |
| 2024 | 27105 | TOTAL: | $69.95 | $69.88 | $0.00 | $0.00 | $139.83 | $0.00 |
|
| 2024 | 27105 | $69.95 | $69.88 | $0.00 | $0.00 | $139.83 | $0.00 |
Statement Details |
| 2023 | 27147 | STATE - STATE LEVY (SCHOOL) | $15.90 | $15.89 | $0.00 | $0.00 | $31.79 | $0.00 |
| 2023 | 27147 | COUNTY - COUNTY LEVIES (CE, DD, VET, MH) | $6.94 | $6.93 | $0.00 | $0.00 | $13.87 | $0.00 |
| 2023 | 27147 | CONSERVE - CONSERVATION FUTURES | $0.21 | $0.21 | $0.00 | $0.00 | $0.42 | $0.00 |
| 2023 | 27147 | COROADS - COUNTY ROADS (ROADS, DIV TO CE) | $5.62 | $5.60 | $0.00 | $0.00 | $11.22 | $0.00 |
| 2023 | 27147 | PORTPT - PORT DISTRICT | $2.93 | $2.91 | $0.00 | $0.00 | $5.84 | $0.00 |
| 2023 | 27147 | PUD1 - PUD #1 | $0.46 | $0.46 | $0.00 | $0.00 | $0.92 | $0.00 |
| 2023 | 27147 | LIB1 - LIBRARY DIST #1 | $2.17 | $2.17 | $0.00 | $0.00 | $4.34 | $0.00 |
| 2023 | 27147 | HD2 - HOSP DIST #2 | $0.41 | $0.40 | $0.00 | $0.00 | $0.81 | $0.00 |
| 2023 | 27147 | SD49 - SCHOOL DIST #49 | $7.43 | $7.42 | $0.00 | $0.00 | $14.85 | $0.00 |
| 2023 | 27147 | FD3 - FIRE DISTRICT #3 | $6.90 | $6.90 | $0.00 | $0.00 | $13.80 | $0.00 |
| 2023 | 27147 | EMS3 - FIRE DIST #3 EMS | $2.47 | $2.46 | $0.00 | $0.00 | $4.93 | $0.00 |
| 2023 | 27147 | JCCD - JC Conservation District | $2.53 | $2.53 | $0.00 | $0.00 | $5.06 | $0.00 |
| 2023 | 27147 | NWA - Noxious Weed Assessment | $2.15 | $2.15 | $0.00 | $0.00 | $4.30 | $0.00 |
| 2023 | 27147 | WAT - Clean Water District | $12.00 | $12.00 | $0.00 | $0.00 | $24.00 | $0.00 |
| 2023 | 27147 | TOTAL: | $68.12 | $68.03 | $0.00 | $0.00 | $136.15 | $0.00 |
|
| 2023 | 27147 | $68.12 | $68.03 | $0.00 | $0.00 | $136.15 | $0.00 |
Values
| (+) Improvement Homesite Value: | + | $0 | |
| (+) Improvement Non-Homesite Value: | + | $0 | |
| (+) Land Homesite Value: | + | $0 | |
| (+) Land Non-Homesite Value: | + | $14,175 | |
| (+) Curr Use (HS): | + | $0 | $0 |
| (+) Curr Use (NHS): | + | $0 | $0 |
| | | -------------------------- | |
| (=) Market Value: | = | $14,175 | |
| (–) Productivity Loss: | – | $0 | |
| | | -------------------------- | |
| (=) Subtotal: | = | $14,175 | |
| (+) Senior Appraised Value: | + | $0 | |
| (+) Non-Senior Appraised Value: | + | $14,175 | |
| | | -------------------------- | |
| (=) Total Appraised Value: | = | $14,175 | |
| (–) Senior Exemption Loss: | – | $0 | |
| (–) Exemption Loss: | – | $0 | |
| | | -------------------------- | |
| (=) Taxable Value: | = | $14,175 | |
Taxing Jurisdiction
| Owner: | VALERIE D SHORT | | |
| % Ownership: | 100.0000000000% | | |
| Total Value: | N/A | | |
| Tax Area: | 0212 - 1-49F1E1W1H2L1 |
| CE | COUNTY CURRENT EXPENSE | N/A | N/A | N/A | N/A | | |
| CNTYDD | DEVELOPMENTAL DISABILITIES | N/A | N/A | N/A | N/A | | |
| CNTYVET | VETERANS RELIEF | N/A | N/A | N/A | N/A | | |
| MENTAL | MENTAL HEALTH | N/A | N/A | N/A | N/A | | |
| ROADS | COUNTY ROADS | N/A | N/A | N/A | N/A | | |
| HOSP2CASH | HOSP DIST #2 GENERAL | N/A | N/A | N/A | N/A | | |
| SCH49CP | SCHOOL DIST #49 CAP PROJ | N/A | N/A | N/A | N/A | | |
| SCH49MO | SCHOOL DIST #49 EP & O | N/A | N/A | N/A | N/A | | |
| CONSERVE | CONSERVATION FUTURES | N/A | N/A | N/A | N/A | | |
| EMS1 | FIRE DIST #1 EMS | N/A | N/A | N/A | N/A | | |
| FD1 | FIRE DIST #1 GENERAL | N/A | N/A | N/A | N/A | | |
| LIB1 | LIBRARY DIST #1 GENERAL | N/A | N/A | N/A | N/A | | |
| PORTPT | PORT OF PT GENERAL | N/A | N/A | N/A | N/A | | |
| PORTPTIDD | PORT OF PT IDD 2019 | N/A | N/A | N/A | N/A | | |
| PUD1 | PUD #1 GENERAL | N/A | N/A | N/A | N/A | | |
| STATE | STATE SCHOOL PART 1 | N/A | N/A | N/A | N/A | | |
| STATE2 | STATE SCHOOL PART 2 | N/A | N/A | N/A | N/A | | |
| | Total Tax Rate: | N/A | | | | | |
| | | | | Taxes w/Current Exemptions: | N/A | | |
| | | | | Taxes w/o Exemptions: | N/A | | |
Improvement / Building
Sketch
| No sketches available for this property. |
Property Image
Land
| 1 | 3365-1275S | | 0.0000 | 0.00 | 0.00 | 0.00 | 1.00 | $14,175 | $0 |
Roll Value History
| 2026 | N/A | N/A | N/A | N/A | N/A |
| 2025 | $0 | $14,175 | $0 | $14,175 | $14,175 |
| 2024 | $0 | $14,175 | $0 | $14,175 | $14,175 |
| 2023 | $0 | $13,500 | $0 | $13,500 | $13,500 |
| 2022 | $0 | $13,500 | $0 | $13,500 | $13,500 |
Deed and Sales History
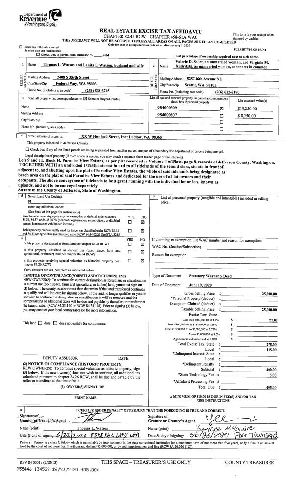
| 1 | 06/19/2020 | SWD | Statutory Warranty Deed | LANITA WATSON | VALERIE D SHORT | | | $25,000.00 | 134529 | |
|   | |
| 2 | 10/08/2007 | WD | Warranty Deed | NELSON, EMIL ESTATE OF | WATSON, LANITA | 0 | 0 | $0.00 | 110272 | 0 |
Payout Agreement
| No payout information available.. |