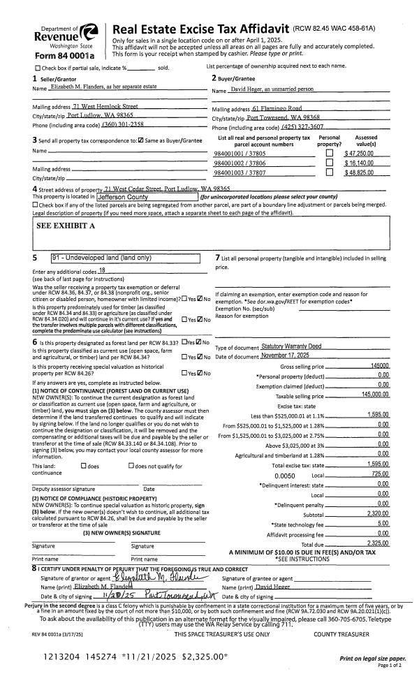
Property
Account |
| Property ID: | 37807 | Abbreviated Legal Description: | PARADISE VIEW ESTATES BLK J LOT 4 |
| Parcel # / Geo ID: | 984001003 | Agent Code: | |
| Type: | Real | | |
| Tax Area: | 0212 - 1-49F1E1W1H2L1 | Land Use Code | 91 |
| Open Space: | N | DFL | N |
| Historic Property: | N | Remodel Property: | N |
| Multi-Family Redevelopment: | N | | |
| Township: | 28N | Section: | 22 |
| Range: | 1E |
Location |
| Address: | | Mapsco: | 090/036 |
| Neighborhood: | PARADISE BAY ESTATES; PARADISE VIEW ESTATES | Map ID: | |
| Neighborhood CD: | 3365 |
Owner |
| Name: | DAVID HEGER | Owner ID: | 113693 |
| Mailing Address: | 61 FLAMINGO RD PORT TOWNSEND, WA 98368-9057 | % Ownership: | 100.0000000000% |
| | | Exemptions: | |
Pay Tax Due
Select the appropriate checkbox next to the year to be paid. Multiple years may be selected.
*Convenience Fee not included
Taxes and Assessment Details
Property Tax Information as of
03/11/2026
Click on "Statement Details" to expand or collapse a tax statement.
* Please enter a valid date ** Please enter a valid date *
Statement Details |
| 2026 | 27002 | STATE - STATE LEVY (SCHOOL) | $56.13 | $56.12 | $0.00 | $0.00 | $0.00 | $112.25 |
| 2026 | 27002 | COUNTY - COUNTY LEVIES (CE, DD, VET, MH) | $22.45 | $22.42 | $0.00 | $0.00 | $0.00 | $44.87 |
| 2026 | 27002 | CONSERVE - CONSERVATION FUTURES | $0.68 | $0.67 | $0.00 | $0.00 | $0.00 | $1.35 |
| 2026 | 27002 | COROADS - COUNTY ROADS (ROADS, DIV TO CE) | $18.10 | $18.10 | $0.00 | $0.00 | $0.00 | $36.20 |
| 2026 | 27002 | PORTPT - PORT DISTRICT | $9.06 | $9.06 | $0.00 | $0.00 | $0.00 | $18.12 |
| 2026 | 27002 | PUD1 - PUD #1 | $1.46 | $1.46 | $0.00 | $0.00 | $0.00 | $2.92 |
| 2026 | 27002 | LIB1 - LIBRARY DIST #1 | $7.01 | $7.00 | $0.00 | $0.00 | $0.00 | $14.01 |
| 2026 | 27002 | HD2 - HOSP DIST #2 | $1.31 | $1.31 | $0.00 | $0.00 | $0.00 | $2.62 |
| 2026 | 27002 | SD49 - SCHOOL DIST #49 | $30.90 | $30.89 | $0.00 | $0.00 | $0.00 | $61.79 |
| 2026 | 27002 | FD1 - FIRE DISTRICT #1 | $29.72 | $29.71 | $0.00 | $0.00 | $0.00 | $59.43 |
| 2026 | 27002 | EMS1 - FIRE DIST #1 EMS | $11.43 | $11.42 | $0.00 | $0.00 | $0.00 | $22.85 |
| 2026 | 27002 | JCCD - JC Conservation District | $2.53 | $2.53 | $0.00 | $0.00 | $0.00 | $5.06 |
| 2026 | 27002 | NWA - Noxious Weed Assessment | $2.98 | $2.97 | $0.00 | $0.00 | $0.00 | $5.95 |
| 2026 | 27002 | WAT - Clean Water District | $13.00 | $13.00 | $0.00 | $0.00 | $0.00 | $26.00 |
| 2026 | 27002 | TOTAL: | $206.76 | $206.66 | $0.00 | $0.00 | $0.00 | $413.42 |
|
| 2026 | 27002 | $206.76 | $206.66 | $0.00 | $0.00 | $0.00 | $413.42 |
Statement Details |
| 2025 | 27074 | STATE - STATE LEVY (SCHOOL) | $58.55 | $58.54 | $0.00 | $0.00 | $117.09 | $0.00 |
| 2025 | 27074 | COUNTY - COUNTY LEVIES (CE, DD, VET, MH) | $23.02 | $23.02 | $0.00 | $0.00 | $46.04 | $0.00 |
| 2025 | 27074 | CONSERVE - CONSERVATION FUTURES | $0.69 | $0.69 | $0.00 | $0.00 | $1.38 | $0.00 |
| 2025 | 27074 | COROADS - COUNTY ROADS (ROADS, DIV TO CE) | $18.45 | $18.44 | $0.00 | $0.00 | $36.89 | $0.00 |
| 2025 | 27074 | PORTPT - PORT DISTRICT | $9.40 | $9.39 | $0.00 | $0.00 | $18.79 | $0.00 |
| 2025 | 27074 | PUD1 - PUD #1 | $1.51 | $1.50 | $0.00 | $0.00 | $3.01 | $0.00 |
| 2025 | 27074 | LIB1 - LIBRARY DIST #1 | $7.14 | $7.13 | $0.00 | $0.00 | $14.27 | $0.00 |
| 2025 | 27074 | HD2 - HOSP DIST #2 | $1.35 | $1.34 | $0.00 | $0.00 | $2.69 | $0.00 |
| 2025 | 27074 | SD49 - SCHOOL DIST #49 | $31.38 | $31.37 | $0.00 | $0.00 | $62.75 | $0.00 |
| 2025 | 27074 | FD1 - FIRE DISTRICT #1 | $30.38 | $30.38 | $0.00 | $0.00 | $60.76 | $0.00 |
| 2025 | 27074 | EMS1 - FIRE DIST #1 EMS | $11.69 | $11.68 | $0.00 | $0.00 | $23.37 | $0.00 |
| 2025 | 27074 | JCCD - JC Conservation District | $2.53 | $2.53 | $0.00 | $0.00 | $5.06 | $0.00 |
| 2025 | 27074 | NWA - Noxious Weed Assessment | $2.15 | $2.15 | $0.00 | $0.00 | $4.30 | $0.00 |
| 2025 | 27074 | WAT - Clean Water District | $13.00 | $13.00 | $0.00 | $0.00 | $26.00 | $0.00 |
| 2025 | 27074 | TOTAL: | $211.24 | $211.16 | $0.00 | $0.00 | $422.40 | $0.00 |
|
| 2025 | 27074 | $211.24 | $211.16 | $0.00 | $0.00 | $422.40 | $0.00 |
Statement Details |
| 2024 | 27132 | STATE - STATE LEVY (SCHOOL) | $48.01 | $48.00 | $0.00 | $0.00 | $96.01 | $0.00 |
| 2024 | 27132 | COUNTY - COUNTY LEVIES (CE, DD, VET, MH) | $20.56 | $20.52 | $0.00 | $0.00 | $41.08 | $0.00 |
| 2024 | 27132 | CONSERVE - CONSERVATION FUTURES | $0.62 | $0.61 | $0.00 | $0.00 | $1.23 | $0.00 |
| 2024 | 27132 | COROADS - COUNTY ROADS (ROADS, DIV TO CE) | $16.54 | $16.52 | $0.00 | $0.00 | $33.06 | $0.00 |
| 2024 | 27132 | PORTPT - PORT DISTRICT | $8.49 | $8.48 | $0.00 | $0.00 | $16.97 | $0.00 |
| 2024 | 27132 | PUD1 - PUD #1 | $1.35 | $1.35 | $0.00 | $0.00 | $2.70 | $0.00 |
| 2024 | 27132 | LIB1 - LIBRARY DIST #1 | $6.40 | $6.39 | $0.00 | $0.00 | $12.79 | $0.00 |
| 2024 | 27132 | HD2 - HOSP DIST #2 | $1.20 | $1.20 | $0.00 | $0.00 | $2.40 | $0.00 |
| 2024 | 27132 | SD49 - SCHOOL DIST #49 | $21.44 | $21.43 | $0.00 | $0.00 | $42.87 | $0.00 |
| 2024 | 27132 | FD1 - FIRE DISTRICT #1 | $27.16 | $27.16 | $0.00 | $0.00 | $54.32 | $0.00 |
| 2024 | 27132 | EMS1 - FIRE DIST #1 EMS | $10.38 | $10.37 | $0.00 | $0.00 | $20.75 | $0.00 |
| 2024 | 27132 | JCCD - JC Conservation District | $2.53 | $2.53 | $0.00 | $0.00 | $5.06 | $0.00 |
| 2024 | 27132 | NWA - Noxious Weed Assessment | $2.15 | $2.15 | $0.00 | $0.00 | $4.30 | $0.00 |
| 2024 | 27132 | WAT - Clean Water District | $12.50 | $12.50 | $0.00 | $0.00 | $25.00 | $0.00 |
| 2024 | 27132 | TOTAL: | $179.33 | $179.21 | $0.00 | $0.00 | $358.54 | $0.00 |
|
| 2024 | 27132 | $179.33 | $179.21 | $0.00 | $0.00 | $358.54 | $0.00 |
Statement Details |
| 2023 | 27174 | STATE - STATE LEVY (SCHOOL) | $48.86 | $48.84 | $0.00 | $0.00 | $97.70 | $0.00 |
| 2023 | 27174 | COUNTY - COUNTY LEVIES (CE, DD, VET, MH) | $21.32 | $21.31 | $0.00 | $0.00 | $42.63 | $0.00 |
| 2023 | 27174 | CONSERVE - CONSERVATION FUTURES | $0.64 | $0.64 | $0.00 | $0.00 | $1.28 | $0.00 |
| 2023 | 27174 | COROADS - COUNTY ROADS (ROADS, DIV TO CE) | $17.25 | $17.24 | $0.00 | $0.00 | $34.49 | $0.00 |
| 2023 | 27174 | PORTPT - PORT DISTRICT | $8.98 | $8.98 | $0.00 | $0.00 | $17.96 | $0.00 |
| 2023 | 27174 | PUD1 - PUD #1 | $1.42 | $1.41 | $0.00 | $0.00 | $2.83 | $0.00 |
| 2023 | 27174 | LIB1 - LIBRARY DIST #1 | $6.67 | $6.67 | $0.00 | $0.00 | $13.34 | $0.00 |
| 2023 | 27174 | HD2 - HOSP DIST #2 | $1.25 | $1.23 | $0.00 | $0.00 | $2.48 | $0.00 |
| 2023 | 27174 | SD49 - SCHOOL DIST #49 | $22.84 | $22.83 | $0.00 | $0.00 | $45.67 | $0.00 |
| 2023 | 27174 | FD3 - FIRE DISTRICT #3 | $21.21 | $21.20 | $0.00 | $0.00 | $42.41 | $0.00 |
| 2023 | 27174 | EMS3 - FIRE DIST #3 EMS | $7.58 | $7.58 | $0.00 | $0.00 | $15.16 | $0.00 |
| 2023 | 27174 | JCCD - JC Conservation District | $2.53 | $2.53 | $0.00 | $0.00 | $5.06 | $0.00 |
| 2023 | 27174 | NWA - Noxious Weed Assessment | $2.15 | $2.15 | $0.00 | $0.00 | $4.30 | $0.00 |
| 2023 | 27174 | WAT - Clean Water District | $12.00 | $12.00 | $0.00 | $0.00 | $24.00 | $0.00 |
| 2023 | 27174 | TOTAL: | $174.70 | $174.61 | $0.00 | $0.00 | $349.31 | $0.00 |
|
| 2023 | 27174 | $174.70 | $174.61 | $0.00 | $0.00 | $349.31 | $0.00 |
Values
| (+) Improvement Homesite Value: | + | $0 | |
| (+) Improvement Non-Homesite Value: | + | $0 | |
| (+) Land Homesite Value: | + | $0 | |
| (+) Land Non-Homesite Value: | + | $48,825 | |
| (+) Curr Use (HS): | + | $0 | $0 |
| (+) Curr Use (NHS): | + | $0 | $0 |
| | | -------------------------- | |
| (=) Market Value: | = | $48,825 | |
| (–) Productivity Loss: | – | $0 | |
| | | -------------------------- | |
| (=) Subtotal: | = | $48,825 | |
| (+) Senior Appraised Value: | + | $0 | |
| (+) Non-Senior Appraised Value: | + | $48,825 | |
| | | -------------------------- | |
| (=) Total Appraised Value: | = | $48,825 | |
| (–) Senior Exemption Loss: | – | $0 | |
| (–) Exemption Loss: | – | $0 | |
| | | -------------------------- | |
| (=) Taxable Value: | = | $48,825 | |
Taxing Jurisdiction
| Owner: | DAVID HEGER | | |
| % Ownership: | 100.0000000000% | | |
| Total Value: | $48,825 | | |
| Tax Area: | 0212 - 1-49F1E1W1H2L1 |
| CE | COUNTY CURRENT EXPENSE | 0.9034619479 | $48,825 | $48,825 | $44.11 | | |
| CNTYDD | DEVELOPMENTAL DISABILITIES | 0.0052121823 | $48,825 | $48,825 | $0.25 | | |
| CNTYVET | VETERANS RELIEF | 0.0052777810 | $48,825 | $48,825 | $0.26 | | |
| MENTAL | MENTAL HEALTH | 0.0052121823 | $48,825 | $48,825 | $0.25 | | |
| ROADS | COUNTY ROADS | 0.7415066410 | $48,825 | $48,825 | $36.20 | | |
| ROADSCU | COUNTY ROADS TO CUR EXP | 0.0000000000 | $48,825 | $48,825 | $0.00 | | |
| HOSP2CASH | HOSP DIST #2 GENERAL | 0.0536075306 | $48,825 | $48,825 | $2.62 | | |
| SCH49CP | SCHOOL DIST #49 CAP PROJ | 0.6279093905 | $48,825 | $48,825 | $30.66 | | |
| SCH49MO | SCHOOL DIST #49 EP & O | 0.6376483602 | $48,825 | $48,825 | $31.13 | | |
| CONSERVE | CONSERVATION FUTURES | 0.0275621078 | $48,825 | $48,825 | $1.35 | | |
| EMS1 | FIRE DIST #1 EMS | 0.4679948282 | $48,825 | $48,825 | $22.85 | | |
| FD1 | FIRE DIST #1 GENERAL | 1.2171942929 | $48,825 | $48,825 | $59.43 | | |
| LIB1 | LIBRARY DIST #1 GENERAL | 0.2868827388 | $48,825 | $48,825 | $14.01 | | |
| PORTPT | PORT OF PT GENERAL | 0.1134941229 | $48,825 | $48,825 | $5.54 | | |
| PORTPTIDD | PORT OF PT IDD 2019 | 0.2577346692 | $48,825 | $48,825 | $12.58 | | |
| PUD1 | PUD #1 GENERAL | 0.0597888892 | $48,825 | $48,825 | $2.92 | | |
| STATE | STATE SCHOOL PART 1 | 1.4940692947 | $48,825 | $48,825 | $72.95 | | |
| STATE2 | STATE SCHOOL PART 2 | 0.8050170049 | $48,825 | $48,825 | $39.30 | | |
| | Total Tax Rate: | 7.7095739644 | | | | | |
| | | | | Taxes w/Current Exemptions: | $376.41 | | |
| | | | | Taxes w/o Exemptions: | $376.41 | | |
Improvement / Building
Sketch
| No sketches available for this property. |
Property Image
Land
| 1 | 3365-1275S | | 0.0000 | 0.00 | 0.00 | 0.00 | 1.00 | $48,825 | $0 |
Roll Value History
| 2026 | N/A | N/A | N/A | N/A | N/A |
| 2025 | $0 | $48,825 | $0 | $48,825 | $48,825 |
| 2024 | $0 | $48,825 | $0 | $48,825 | $48,825 |
| 2023 | $0 | $41,500 | $0 | $41,500 | $41,500 |
| 2022 | $0 | $41,500 | $0 | $41,500 | $41,500 |
Deed and Sales History
| 1 | 11/17/2025 | SWD | Statutory Warranty Deed | ELIZABETH M FLANDERS | DAVID HEGER | | | $145,000.00 | 145274 | |
|   | |
| 2 | 07/08/2024 | SWD | Statutory Warranty Deed | RICHARD & ELIZABETH JOHNSON | ELIZABETH M FLANDERS | | | $140,000.00 | 142853 | |
|   | |
| 3 | 03/07/2022 | SWD | Statutory Warranty Deed | ALAN MICHAELS | RICHARD & ELIZABETH JOHNSON | | | $140,000.00 | 138690 | |
|   | |
| 4 | 04/27/2021 | SWD | Statutory Warranty Deed | RIC H NAU | ALAN MICHAELS | | | $72,500.00 | 136626 | |
|   | |
| 5 | 05/05/2010 | SWD | Statutory Warranty Deed | JSPTL LLC | NAU, RIC H/CATHY | | | $56,500.00 | 114362 | 0 |
| 6 | 09/12/2005 | QCD | Quit Claim Deed | MARSH, JAMES J/STEPHANIE | JSPTL, LLC | 0 | 0 | $0.00 | 105398 | 0 |
| 7 | 07/08/2003 | SWD | Statutory Warranty Deed | JOHNSON, LARRY A/LORENE C | MARSH, JAMES J/STEPHANIE L | 0 | 0 | $0.00 | 97718 | 0 |
Payout Agreement
| No payout information available.. |