Property
Account |
| Property ID: | 37824 | Abbreviated Legal Description: | PEDERSEN ADD LOT 5 SUBJ/BLA #83882 W/EASE |
| Parcel # / Geo ID: | 984300005 | Agent Code: | |
| Type: | Real | | |
| Tax Area: | 0110 - C-50F1E1H2 | Land Use Code | 11 |
| Open Space: | N | DFL | N |
| Historic Property: | N | Remodel Property: | N |
| Multi-Family Redevelopment: | N | | |
| Township: | 30N | Section: | 3 |
| Range: | 1W |
Location |
| Address: | 407 26TH ST PORT TOWNSEND, WA 98368 | Mapsco: | 087/084 |
| Neighborhood: | ELLIS AND PEDERSEN ADD | Map ID: | |
| Neighborhood CD: | 6125 |
Owner |
| Name: | JEANNIE & MAXIMILLIAN SCHWANEKAMP | Owner ID: | 113122 |
| Mailing Address: | 407 26TH ST PORT TOWNSEND, WA 98368-6237 | % Ownership: | 100.0000000000% |
| | | Exemptions: | |
Pay Tax Due
Select the appropriate checkbox next to the year to be paid. Multiple years may be selected.
*Convenience Fee not included
Taxes and Assessment Details
Property Tax Information as of
03/10/2026
Click on "Statement Details" to expand or collapse a tax statement.
* Please enter a valid date ** Please enter a valid date *
Statement Details |
| 2026 | 27019 | STATE - STATE LEVY (SCHOOL) | $722.96 | $722.95 | $0.00 | $0.00 | $0.00 | $1445.91 |
| 2026 | 27019 | COUNTY - COUNTY LEVIES (CE, DD, VET, MH) | $289.04 | $289.03 | $0.00 | $0.00 | $0.00 | $578.07 |
| 2026 | 27019 | CONSERVE - CONSERVATION FUTURES | $8.67 | $8.66 | $0.00 | $0.00 | $0.00 | $17.33 |
| 2026 | 27019 | CITYPT - CITY OF PT | $410.26 | $410.26 | $0.00 | $0.00 | $0.00 | $820.52 |
| 2026 | 27019 | PORTPT - PORT DISTRICT | $116.74 | $116.73 | $0.00 | $0.00 | $0.00 | $233.47 |
| 2026 | 27019 | PUD1 - PUD #1 | $18.80 | $18.80 | $0.00 | $0.00 | $0.00 | $37.60 |
| 2026 | 27019 | HD2 - HOSP DIST #2 | $16.86 | $16.85 | $0.00 | $0.00 | $0.00 | $33.71 |
| 2026 | 27019 | SD50 - SCHOOL DIST #50 | $572.75 | $572.72 | $0.00 | $0.00 | $0.00 | $1145.47 |
| 2026 | 27019 | FD1 - FIRE DISTRICT #1 | $382.75 | $382.75 | $0.00 | $0.00 | $0.00 | $765.50 |
| 2026 | 27019 | EMS1 - FIRE DIST #1 EMS | $147.16 | $147.16 | $0.00 | $0.00 | $0.00 | $294.32 |
| 2026 | 27019 | JCCD - JC Conservation District | $2.55 | $2.55 | $0.00 | $0.00 | $0.00 | $5.10 |
| 2026 | 27019 | NWA - Noxious Weed Assessment | $2.98 | $2.97 | $0.00 | $0.00 | $0.00 | $5.95 |
| 2026 | 27019 | TOTAL: | $2691.52 | $2691.43 | $0.00 | $0.00 | $0.00 | $5382.95 |
|
| 2026 | 27019 | $2691.52 | $2691.43 | $0.00 | $0.00 | $0.00 | $5382.95 |
Statement Details |
| 2025 | 27091 | STATE - STATE LEVY (SCHOOL) | $701.06 | $701.05 | $0.00 | $0.00 | $1402.11 | $0.00 |
| 2025 | 27091 | COUNTY - COUNTY LEVIES (CE, DD, VET, MH) | $275.69 | $275.68 | $0.00 | $0.00 | $551.37 | $0.00 |
| 2025 | 27091 | CONSERVE - CONSERVATION FUTURES | $8.27 | $8.26 | $0.00 | $0.00 | $16.53 | $0.00 |
| 2025 | 27091 | CITYPT - CITY OF PT | $397.57 | $397.56 | $0.00 | $0.00 | $795.13 | $0.00 |
| 2025 | 27091 | PORTPT - PORT DISTRICT | $112.50 | $112.49 | $0.00 | $0.00 | $224.99 | $0.00 |
| 2025 | 27091 | PUD1 - PUD #1 | $18.04 | $18.04 | $0.00 | $0.00 | $36.08 | $0.00 |
| 2025 | 27091 | HD2 - HOSP DIST #2 | $16.09 | $16.08 | $0.00 | $0.00 | $32.17 | $0.00 |
| 2025 | 27091 | SD50 - SCHOOL DIST #50 | $512.36 | $512.34 | $0.00 | $0.00 | $1024.70 | $0.00 |
| 2025 | 27091 | FD1 - FIRE DISTRICT #1 | $363.80 | $363.79 | $0.00 | $0.00 | $727.59 | $0.00 |
| 2025 | 27091 | EMS1 - FIRE DIST #1 EMS | $139.93 | $139.92 | $0.00 | $0.00 | $279.85 | $0.00 |
| 2025 | 27091 | JCCD - JC Conservation District | $2.55 | $2.55 | $0.00 | $0.00 | $5.10 | $0.00 |
| 2025 | 27091 | NWA - Noxious Weed Assessment | $2.15 | $2.15 | $0.00 | $0.00 | $4.30 | $0.00 |
| 2025 | 27091 | TOTAL: | $2550.01 | $2549.91 | $0.00 | $0.00 | $5099.92 | $0.00 |
|
| 2025 | 27091 | $2550.01 | $2549.91 | $0.00 | $0.00 | $5099.92 | $0.00 |
Statement Details |
| 2024 | 27149 | STATE - STATE LEVY (SCHOOL) | $640.63 | $640.62 | $0.00 | $0.00 | $1281.25 | $0.00 |
| 2024 | 27149 | COUNTY - COUNTY LEVIES (CE, DD, VET, MH) | $274.14 | $274.12 | $0.00 | $0.00 | $548.26 | $0.00 |
| 2024 | 27149 | CONSERVE - CONSERVATION FUTURES | $8.22 | $8.22 | $0.00 | $0.00 | $16.44 | $0.00 |
| 2024 | 27149 | CITYPT - CITY OF PT | $391.70 | $391.69 | $0.00 | $0.00 | $783.39 | $0.00 |
| 2024 | 27149 | PORTPT - PORT DISTRICT | $113.23 | $113.23 | $0.00 | $0.00 | $226.46 | $0.00 |
| 2024 | 27149 | PUD1 - PUD #1 | $18.01 | $18.00 | $0.00 | $0.00 | $36.01 | $0.00 |
| 2024 | 27149 | HD2 - HOSP DIST #2 | $16.00 | $15.99 | $0.00 | $0.00 | $31.99 | $0.00 |
| 2024 | 27149 | SD50 - SCHOOL DIST #50 | $518.31 | $518.29 | $0.00 | $0.00 | $1036.60 | $0.00 |
| 2024 | 27149 | FD1 - FIRE DISTRICT #1 | $362.47 | $362.46 | $0.00 | $0.00 | $724.93 | $0.00 |
| 2024 | 27149 | EMS1 - FIRE DIST #1 EMS | $138.45 | $138.45 | $0.00 | $0.00 | $276.90 | $0.00 |
| 2024 | 27149 | JCCD - JC Conservation District | $2.55 | $2.55 | $0.00 | $0.00 | $5.10 | $0.00 |
| 2024 | 27149 | NWA - Noxious Weed Assessment | $2.15 | $2.15 | $0.00 | $0.00 | $4.30 | $0.00 |
| 2024 | 27149 | TOTAL: | $2485.86 | $2485.77 | $0.00 | $0.00 | $4971.63 | $0.00 |
|
| 2024 | 27149 | $2485.86 | $2485.77 | $0.00 | $0.00 | $4971.63 | $0.00 |
Statement Details |
| 2023 | 27191 | STATE - STATE LEVY (SCHOOL) | $645.97 | $645.97 | $0.00 | $0.00 | $1291.94 | $0.00 |
| 2023 | 27191 | COUNTY - COUNTY LEVIES (CE, DD, VET, MH) | $281.88 | $281.88 | $0.00 | $0.00 | $563.76 | $0.00 |
| 2023 | 27191 | CONSERVE - CONSERVATION FUTURES | $8.45 | $8.45 | $0.00 | $0.00 | $16.90 | $0.00 |
| 2023 | 27191 | CITYPT - CITY OF PT | $398.40 | $398.38 | $0.00 | $0.00 | $796.78 | $0.00 |
| 2023 | 27191 | PORTPT - PORT DISTRICT | $118.75 | $118.74 | $0.00 | $0.00 | $237.49 | $0.00 |
| 2023 | 27191 | PUD1 - PUD #1 | $18.69 | $18.68 | $0.00 | $0.00 | $37.37 | $0.00 |
| 2023 | 27191 | HD2 - HOSP DIST #2 | $16.45 | $16.44 | $0.00 | $0.00 | $32.89 | $0.00 |
| 2023 | 27191 | SD50 - SCHOOL DIST #50 | $512.59 | $512.58 | $0.00 | $0.00 | $1025.17 | $0.00 |
| 2023 | 27191 | FD1 - FIRE DISTRICT #1 | $232.22 | $232.21 | $0.00 | $0.00 | $464.43 | $0.00 |
| 2023 | 27191 | EMS1 - FIRE DIST #1 EMS | $98.78 | $98.78 | $0.00 | $0.00 | $197.56 | $0.00 |
| 2023 | 27191 | JCCD - JC Conservation District | $2.55 | $2.55 | $0.00 | $0.00 | $5.10 | $0.00 |
| 2023 | 27191 | NWA - Noxious Weed Assessment | $2.15 | $2.15 | $0.00 | $0.00 | $4.30 | $0.00 |
| 2023 | 27191 | TOTAL: | $2336.88 | $2336.81 | $0.00 | $0.00 | $4673.69 | $0.00 |
|
| 2023 | 27191 | $2336.88 | $2336.81 | $0.00 | $0.00 | $4673.69 | $0.00 |
Values
| (+) Improvement Homesite Value: | + | $0 | |
| (+) Improvement Non-Homesite Value: | + | $503,905 | |
| (+) Land Homesite Value: | + | $0 | |
| (+) Land Non-Homesite Value: | + | $125,000 | |
| (+) Curr Use (HS): | + | $0 | $0 |
| (+) Curr Use (NHS): | + | $0 | $0 |
| | | -------------------------- | |
| (=) Market Value: | = | $628,905 | |
| (–) Productivity Loss: | – | $0 | |
| | | -------------------------- | |
| (=) Subtotal: | = | $628,905 | |
| (+) Senior Appraised Value: | + | $0 | |
| (+) Non-Senior Appraised Value: | + | $628,905 | |
| | | -------------------------- | |
| (=) Total Appraised Value: | = | $628,905 | |
| (–) Senior Exemption Loss: | – | $0 | |
| (–) Exemption Loss: | – | $0 | |
| | | -------------------------- | |
| (=) Taxable Value: | = | $628,905 | |
Taxing Jurisdiction
| Owner: | JEANNIE & MAXIMILLIAN SCHWANEKAMP | | |
| % Ownership: | 100.0000000000% | | |
| Total Value: | $628,905 | | |
| Tax Area: | 0110 - C-50F1E1H2 |
| CE | COUNTY CURRENT EXPENSE | 0.9034619479 | $628,905 | $628,905 | $568.19 | | |
| CNTYDD | DEVELOPMENTAL DISABILITIES | 0.0052121823 | $628,905 | $628,905 | $3.28 | | |
| CNTYVET | VETERANS RELIEF | 0.0052777810 | $628,905 | $628,905 | $3.32 | | |
| MENTAL | MENTAL HEALTH | 0.0052121823 | $628,905 | $628,905 | $3.28 | | |
| PTGEN | CITY OF PT GENERAL | 0.8551967795 | $628,905 | $628,905 | $537.84 | | |
| PTLLL | CITY OF PT - LIBRARY LID LIFT | 0.4010114288 | $628,905 | $628,905 | $252.20 | | |
| PTMVBOND | CITY OF PT MV BOND | 0.0484717981 | $628,905 | $628,905 | $30.48 | | |
| HOSP2CASH | HOSP DIST #2 GENERAL | 0.0536075306 | $628,905 | $628,905 | $33.71 | | |
| SCH50BOND | SCHOOL DIST #50 BOND 2016 | 0.5377451389 | $628,905 | $628,905 | $338.19 | | |
| SCH50CP | SCHOOL DIST #50 CAP PROJ | 0.4573475088 | $628,905 | $628,905 | $287.63 | | |
| SCH50MO | SCHOOL DIST #50 EP & O | 0.8262822886 | $628,905 | $628,905 | $519.65 | | |
| CONSERVE | CONSERVATION FUTURES | 0.0275621078 | $628,905 | $628,905 | $17.33 | | |
| EMS1 | FIRE DIST #1 EMS | 0.4679948282 | $628,905 | $628,905 | $294.32 | | |
| FD1 | FIRE DIST #1 GENERAL | 1.2171942929 | $628,905 | $628,905 | $765.50 | | |
| PORTPT | PORT OF PT GENERAL | 0.1134941229 | $628,905 | $628,905 | $71.38 | | |
| PORTPTIDD | PORT OF PT IDD 2019 | 0.2577346692 | $628,905 | $628,905 | $162.09 | | |
| PUD1 | PUD #1 GENERAL | 0.0597888892 | $628,905 | $628,905 | $37.60 | | |
| STATE | STATE SCHOOL PART 1 | 1.4940692947 | $628,905 | $628,905 | $939.63 | | |
| STATE2 | STATE SCHOOL PART 2 | 0.8050170049 | $628,905 | $628,905 | $506.28 | | |
| | Total Tax Rate: | 8.5416817766 | | | | | |
| | | | | Taxes w/Current Exemptions: | $5,371.90 | | |
| | | | | Taxes w/o Exemptions: | $5,371.90 | | |
Improvement / Building
| Improvement #1: | Residential Bldg | State Code: | 11 | 1720.0 sqft | Value: | $503,905 |
| Exterior Wall: | SI/ST | Fireplace: | WD ST-AVG | | Floor Construction: | FRAME | Foundation: | CONPR | | Heating/Cooling: | ELBB | Roof Cover: | COMP |
|
| | Type | Description | Class CD | Sub Class CD | Year Built | Area |
| | MA | Main Area | 5 | 15SF | 1999 | 1160.0 |
| | MA2 | Second Floor Main Area | 5 | 15SF | 1999 | 560.0 |
| | HWPOR | House Wood Porch | 5 | * | 1999 | 28.0 |
| | HBAL | House Balcony | 5 | * | 1999 | 120.0 |
| | HDECK | House Deck | 5 | * | 1999 | 120.0 |
| | GATT | House Attached Garage | 5 | 15SF | 1999 | 480.0 |
Sketch
Property Image
Land
| 1 | 6125-1275S | | 0.0000 | 0.00 | 0.00 | 0.00 | 1.00 | $125,000 | $0 |
Roll Value History
| 2026 | N/A | N/A | N/A | N/A | N/A |
| 2025 | $503,905 | $125,000 | $0 | $628,905 | $628,905 |
| 2024 | $469,190 | $115,500 | $0 | $584,690 | $584,690 |
| 2023 | $448,790 | $105,000 | $0 | $553,790 | $553,790 |
| 2022 | $448,790 | $100,000 | $0 | $548,790 | $548,790 |
Deed and Sales History
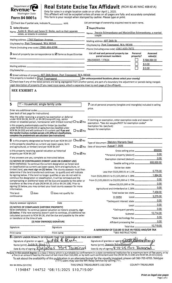
| 1 | 08/07/2025 | SWD | Statutory Warranty Deed | JUDITH B BLOCH & JAMES H BURKE | JEANNIE & MAXIMILLIAN SCHWANEKAMP | | | $655,000.00 | 144752 | |
| 2 | 08/05/2019 | SWD | Statutory Warranty Deed | JOHN H ESTES | JUDITH B BLOCH & JAMES H BURKE | | | $425,000.00 | 132900 | |
| 3 | 12/19/1998 | BLA | Boundary Line Adjustment | ESTES, JOHN/SUE | VANDERVORST, MERIDEE S/ROLAND | 0 | 0 | $0.00 | 83882 | 0 |
| 4 | 10/31/1997 | QCD | Quit Claim Deed | ESTES, JOHN H/SUE H | VANDERVORST, ROLAND/MERIDEE S | 0 | 0 | $0.00 | 83883 | 0 |
| 5 | 10/11/1996 | SWD | Statutory Warranty Deed | KUHNHAUSEN, DENIS L/ARDEN | ESTES, JOHN H/SUE H | 0 | 0 | $17,000.00 | 80625 | 0 |
Payout Agreement
| No payout information available.. |