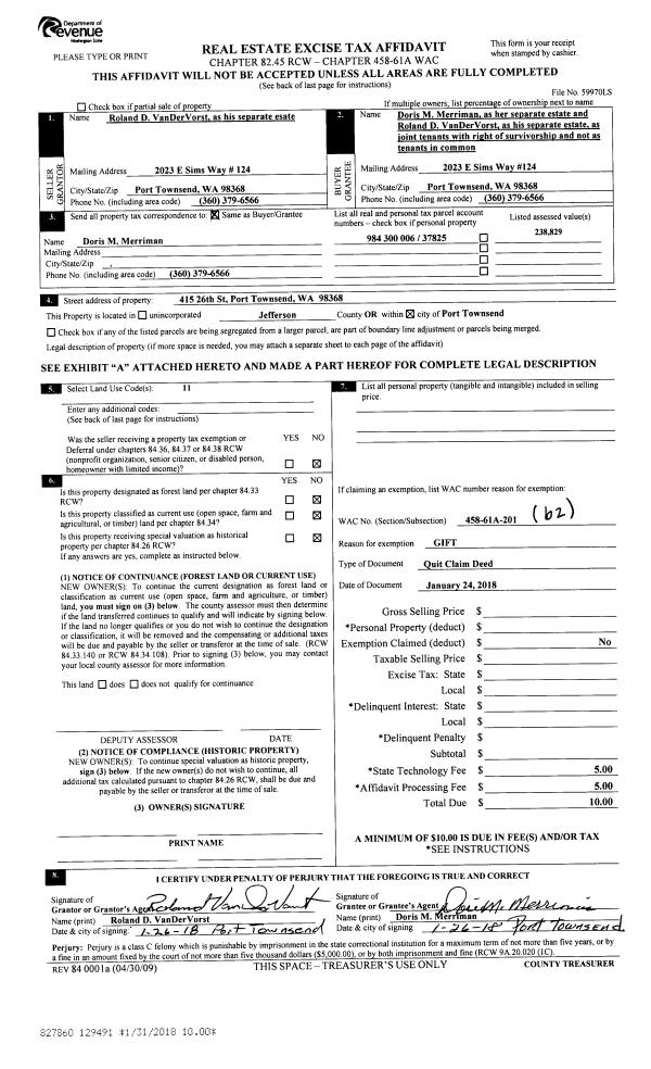
Property
Account |
| Property ID: | 37825 | Abbreviated Legal Description: | PEDERSEN ADD LOT 6 SUBJ/BLA #83882 W/EASE |
| Parcel # / Geo ID: | 984300006 | Agent Code: | |
| Type: | Real | | |
| Tax Area: | 0110 - C-50F1E1H2 | Land Use Code | 11 |
| Open Space: | N | DFL | N |
| Historic Property: | N | Remodel Property: | N |
| Multi-Family Redevelopment: | N | | |
| Township: | 30N | Section: | 3 |
| Range: | 1W |
Location |
| Address: | 415 26TH ST PORT TOWNSEND, WA 98368 | Mapsco: | 087/085 |
| Neighborhood: | ELLIS AND PEDERSEN ADD | Map ID: | |
| Neighborhood CD: | 6125 |
Owner |
| Name: | DORIS M MERRIMAN | Owner ID: | 98643 |
| Mailing Address: | ROLAND D VANDERVORST JTWROS 2023 E SIMS WAY #124 PORT TOWNSEND, WA 98368-6905 | % Ownership: | 100.0000000000% |
| | | Exemptions: | |
Pay Tax Due
Select the appropriate checkbox next to the year to be paid. Multiple years may be selected.
*Convenience Fee not included
Taxes and Assessment Details
Property Tax Information as of
03/10/2026
Click on "Statement Details" to expand or collapse a tax statement.
* Please enter a valid date ** Please enter a valid date *
Statement Details |
| 2026 | 27020 | STATE - STATE LEVY (SCHOOL) | $500.02 | $500.00 | $0.00 | $0.00 | $0.00 | $1000.02 |
| 2026 | 27020 | COUNTY - COUNTY LEVIES (CE, DD, VET, MH) | $199.92 | $199.89 | $0.00 | $0.00 | $0.00 | $399.81 |
| 2026 | 27020 | CONSERVE - CONSERVATION FUTURES | $6.00 | $5.99 | $0.00 | $0.00 | $0.00 | $11.99 |
| 2026 | 27020 | CITYPT - CITY OF PT | $283.75 | $283.74 | $0.00 | $0.00 | $0.00 | $567.49 |
| 2026 | 27020 | PORTPT - PORT DISTRICT | $80.75 | $80.73 | $0.00 | $0.00 | $0.00 | $161.48 |
| 2026 | 27020 | PUD1 - PUD #1 | $13.01 | $13.00 | $0.00 | $0.00 | $0.00 | $26.01 |
| 2026 | 27020 | HD2 - HOSP DIST #2 | $11.66 | $11.66 | $0.00 | $0.00 | $0.00 | $23.32 |
| 2026 | 27020 | SD50 - SCHOOL DIST #50 | $396.12 | $396.11 | $0.00 | $0.00 | $0.00 | $792.23 |
| 2026 | 27020 | FD1 - FIRE DISTRICT #1 | $264.72 | $264.72 | $0.00 | $0.00 | $0.00 | $529.44 |
| 2026 | 27020 | EMS1 - FIRE DIST #1 EMS | $101.78 | $101.78 | $0.00 | $0.00 | $0.00 | $203.56 |
| 2026 | 27020 | JCCD - JC Conservation District | $2.55 | $2.55 | $0.00 | $0.00 | $0.00 | $5.10 |
| 2026 | 27020 | NWA - Noxious Weed Assessment | $2.98 | $2.97 | $0.00 | $0.00 | $0.00 | $5.95 |
| 2026 | 27020 | TOTAL: | $1863.26 | $1863.14 | $0.00 | $0.00 | $0.00 | $3726.40 |
|
| 2026 | 27020 | $1863.26 | $1863.14 | $0.00 | $0.00 | $0.00 | $3726.40 |
Statement Details |
| 2025 | 27092 | STATE - STATE LEVY (SCHOOL) | $493.36 | $493.36 | $0.00 | $0.00 | $986.72 | $0.00 |
| 2025 | 27092 | COUNTY - COUNTY LEVIES (CE, DD, VET, MH) | $194.02 | $194.01 | $0.00 | $0.00 | $388.03 | $0.00 |
| 2025 | 27092 | CONSERVE - CONSERVATION FUTURES | $5.82 | $5.82 | $0.00 | $0.00 | $11.64 | $0.00 |
| 2025 | 27092 | CITYPT - CITY OF PT | $279.79 | $279.78 | $0.00 | $0.00 | $559.57 | $0.00 |
| 2025 | 27092 | PORTPT - PORT DISTRICT | $79.17 | $79.16 | $0.00 | $0.00 | $158.33 | $0.00 |
| 2025 | 27092 | PUD1 - PUD #1 | $12.70 | $12.69 | $0.00 | $0.00 | $25.39 | $0.00 |
| 2025 | 27092 | HD2 - HOSP DIST #2 | $11.32 | $11.32 | $0.00 | $0.00 | $22.64 | $0.00 |
| 2025 | 27092 | SD50 - SCHOOL DIST #50 | $360.57 | $360.56 | $0.00 | $0.00 | $721.13 | $0.00 |
| 2025 | 27092 | FD1 - FIRE DISTRICT #1 | $256.02 | $256.02 | $0.00 | $0.00 | $512.04 | $0.00 |
| 2025 | 27092 | EMS1 - FIRE DIST #1 EMS | $98.47 | $98.47 | $0.00 | $0.00 | $196.94 | $0.00 |
| 2025 | 27092 | JCCD - JC Conservation District | $2.55 | $2.55 | $0.00 | $0.00 | $5.10 | $0.00 |
| 2025 | 27092 | NWA - Noxious Weed Assessment | $2.15 | $2.15 | $0.00 | $0.00 | $4.30 | $0.00 |
| 2025 | 27092 | TOTAL: | $1795.94 | $1795.89 | $0.00 | $0.00 | $3591.83 | $0.00 |
|
| 2025 | 27092 | $1795.94 | $1795.89 | $0.00 | $0.00 | $3591.83 | $0.00 |
Statement Details |
| 2024 | 27150 | STATE - STATE LEVY (SCHOOL) | $448.96 | $448.96 | $0.00 | $0.00 | $897.92 | $0.00 |
| 2024 | 27150 | COUNTY - COUNTY LEVIES (CE, DD, VET, MH) | $192.13 | $192.10 | $0.00 | $0.00 | $384.23 | $0.00 |
| 2024 | 27150 | CONSERVE - CONSERVATION FUTURES | $5.76 | $5.76 | $0.00 | $0.00 | $11.52 | $0.00 |
| 2024 | 27150 | CITYPT - CITY OF PT | $274.51 | $274.50 | $0.00 | $0.00 | $549.01 | $0.00 |
| 2024 | 27150 | PORTPT - PORT DISTRICT | $79.35 | $79.35 | $0.00 | $0.00 | $158.70 | $0.00 |
| 2024 | 27150 | PUD1 - PUD #1 | $12.62 | $12.62 | $0.00 | $0.00 | $25.24 | $0.00 |
| 2024 | 27150 | HD2 - HOSP DIST #2 | $11.21 | $11.21 | $0.00 | $0.00 | $22.42 | $0.00 |
| 2024 | 27150 | SD50 - SCHOOL DIST #50 | $363.23 | $363.23 | $0.00 | $0.00 | $726.46 | $0.00 |
| 2024 | 27150 | FD1 - FIRE DISTRICT #1 | $254.02 | $254.02 | $0.00 | $0.00 | $508.04 | $0.00 |
| 2024 | 27150 | EMS1 - FIRE DIST #1 EMS | $97.03 | $97.02 | $0.00 | $0.00 | $194.05 | $0.00 |
| 2024 | 27150 | JCCD - JC Conservation District | $2.55 | $2.55 | $0.00 | $0.00 | $5.10 | $0.00 |
| 2024 | 27150 | NWA - Noxious Weed Assessment | $2.15 | $2.15 | $0.00 | $0.00 | $4.30 | $0.00 |
| 2024 | 27150 | TOTAL: | $1743.52 | $1743.47 | $0.00 | $0.00 | $3486.99 | $0.00 |
|
| 2024 | 27150 | $1743.52 | $1743.47 | $0.00 | $0.00 | $3486.99 | $0.00 |
Statement Details |
| 2023 | 27192 | STATE - STATE LEVY (SCHOOL) | $450.95 | $450.94 | $0.00 | $0.00 | $901.89 | $0.00 |
| 2023 | 27192 | COUNTY - COUNTY LEVIES (CE, DD, VET, MH) | $196.79 | $196.76 | $0.00 | $0.00 | $393.55 | $0.00 |
| 2023 | 27192 | CONSERVE - CONSERVATION FUTURES | $5.90 | $5.90 | $0.00 | $0.00 | $11.80 | $0.00 |
| 2023 | 27192 | CITYPT - CITY OF PT | $278.12 | $278.11 | $0.00 | $0.00 | $556.23 | $0.00 |
| 2023 | 27192 | PORTPT - PORT DISTRICT | $82.90 | $82.88 | $0.00 | $0.00 | $165.78 | $0.00 |
| 2023 | 27192 | PUD1 - PUD #1 | $13.05 | $13.04 | $0.00 | $0.00 | $26.09 | $0.00 |
| 2023 | 27192 | HD2 - HOSP DIST #2 | $11.48 | $11.48 | $0.00 | $0.00 | $22.96 | $0.00 |
| 2023 | 27192 | SD50 - SCHOOL DIST #50 | $357.84 | $357.82 | $0.00 | $0.00 | $715.66 | $0.00 |
| 2023 | 27192 | FD1 - FIRE DISTRICT #1 | $162.11 | $162.10 | $0.00 | $0.00 | $324.21 | $0.00 |
| 2023 | 27192 | EMS1 - FIRE DIST #1 EMS | $68.96 | $68.95 | $0.00 | $0.00 | $137.91 | $0.00 |
| 2023 | 27192 | JCCD - JC Conservation District | $2.55 | $2.55 | $0.00 | $0.00 | $5.10 | $0.00 |
| 2023 | 27192 | NWA - Noxious Weed Assessment | $2.15 | $2.15 | $0.00 | $0.00 | $4.30 | $0.00 |
| 2023 | 27192 | TOTAL: | $1632.80 | $1632.68 | $0.00 | $0.00 | $3265.48 | $0.00 |
|
| 2023 | 27192 | $1632.80 | $1632.68 | $0.00 | $0.00 | $3265.48 | $0.00 |
Values
| (+) Improvement Homesite Value: | + | $0 | |
| (+) Improvement Non-Homesite Value: | + | $309,964 | |
| (+) Land Homesite Value: | + | $0 | |
| (+) Land Non-Homesite Value: | + | $125,000 | |
| (+) Curr Use (HS): | + | $0 | $0 |
| (+) Curr Use (NHS): | + | $0 | $0 |
| | | -------------------------- | |
| (=) Market Value: | = | $434,964 | |
| (–) Productivity Loss: | – | $0 | |
| | | -------------------------- | |
| (=) Subtotal: | = | $434,964 | |
| (+) Senior Appraised Value: | + | $0 | |
| (+) Non-Senior Appraised Value: | + | $434,964 | |
| | | -------------------------- | |
| (=) Total Appraised Value: | = | $434,964 | |
| (–) Senior Exemption Loss: | – | $0 | |
| (–) Exemption Loss: | – | $0 | |
| | | -------------------------- | |
| (=) Taxable Value: | = | $434,964 | |
Taxing Jurisdiction
| Owner: | DORIS M MERRIMAN | | |
| % Ownership: | 100.0000000000% | | |
| Total Value: | $434,964 | | |
| Tax Area: | 0110 - C-50F1E1H2 |
| CE | COUNTY CURRENT EXPENSE | 0.9034619479 | $434,964 | $434,964 | $392.97 | | |
| CNTYDD | DEVELOPMENTAL DISABILITIES | 0.0052121823 | $434,964 | $434,964 | $2.27 | | |
| CNTYVET | VETERANS RELIEF | 0.0052777810 | $434,964 | $434,964 | $2.30 | | |
| MENTAL | MENTAL HEALTH | 0.0052121823 | $434,964 | $434,964 | $2.27 | | |
| PTGEN | CITY OF PT GENERAL | 0.8551967795 | $434,964 | $434,964 | $371.98 | | |
| PTLLL | CITY OF PT - LIBRARY LID LIFT | 0.4010114288 | $434,964 | $434,964 | $174.43 | | |
| PTMVBOND | CITY OF PT MV BOND | 0.0484717981 | $434,964 | $434,964 | $21.08 | | |
| HOSP2CASH | HOSP DIST #2 GENERAL | 0.0536075306 | $434,964 | $434,964 | $23.32 | | |
| SCH50BOND | SCHOOL DIST #50 BOND 2016 | 0.5377451389 | $434,964 | $434,964 | $233.90 | | |
| SCH50CP | SCHOOL DIST #50 CAP PROJ | 0.4573475088 | $434,964 | $434,964 | $198.93 | | |
| SCH50MO | SCHOOL DIST #50 EP & O | 0.8262822886 | $434,964 | $434,964 | $359.40 | | |
| CONSERVE | CONSERVATION FUTURES | 0.0275621078 | $434,964 | $434,964 | $11.99 | | |
| EMS1 | FIRE DIST #1 EMS | 0.4679948282 | $434,964 | $434,964 | $203.56 | | |
| FD1 | FIRE DIST #1 GENERAL | 1.2171942929 | $434,964 | $434,964 | $529.44 | | |
| PORTPT | PORT OF PT GENERAL | 0.1134941229 | $434,964 | $434,964 | $49.37 | | |
| PORTPTIDD | PORT OF PT IDD 2019 | 0.2577346692 | $434,964 | $434,964 | $112.11 | | |
| PUD1 | PUD #1 GENERAL | 0.0597888892 | $434,964 | $434,964 | $26.01 | | |
| STATE | STATE SCHOOL PART 1 | 1.4940692947 | $434,964 | $434,964 | $649.87 | | |
| STATE2 | STATE SCHOOL PART 2 | 0.8050170049 | $434,964 | $434,964 | $350.15 | | |
| | Total Tax Rate: | 8.5416817766 | | | | | |
| | | | | Taxes w/Current Exemptions: | $3,715.35 | | |
| | | | | Taxes w/o Exemptions: | $3,715.35 | | |
Improvement / Building
| Improvement #1: | Residential Bldg | State Code: | 11 | 1508.0 sqft | Value: | $309,964 |
| Bathrooms (#): | 2 (FULL) | Bedrooms (#): | 3 | | Exterior Wall: | PL/T1 | Fireplace: | SIN 1-AVG | | Floor Construction: | FRAME | Foundation: | CONPR | | Heating/Cooling: | ELBB | Inside Verify: | YES-FIX | | Roof Cover: | SHNGL |   |   |
|
| | Type | Description | Class CD | Sub Class CD | Year Built | Area |
| | MA | Main Area | 3+ | 1S | 1983 | 1508.0 |
| | HDECK | House Deck | 3 | * | 1983 | 618.0 |
| | GATT | House Attached Garage | 3 | 1S | 1983 | 280.0 |
| | GARAG | Garage (Table Not Dep) | 4 | * | 1983 | 816.0 |
Sketch
Property Image
Land
| 1 | 6125-1275S | | 0.0000 | 0.00 | 0.00 | 0.00 | 1.00 | $125,000 | $0 |
Roll Value History
| 2026 | N/A | N/A | N/A | N/A | N/A |
| 2025 | $309,964 | $125,000 | $0 | $434,964 | $434,964 |
| 2024 | $295,974 | $115,500 | $0 | $411,474 | $411,474 |
| 2023 | $283,106 | $105,000 | $0 | $388,106 | $388,106 |
| 2022 | $283,106 | $100,000 | $0 | $383,106 | $383,106 |
Deed and Sales History
| 1 | 01/24/2018 | QCD | Quit Claim Deed | ROLAND D VANDERVORST | DORIS M MERRIMAN | | | | 129491 | |
| 2 | 01/24/2018 | QCD | Quit Claim Deed | | | | | | 129619 | |
| 3 | 12/19/1998 | BLA | Boundary Line Adjustment | ESTES, JOHN/SUE | VANDERVORST, MERIDEE S/ROLAND | 0 | 0 | $0.00 | 83882 | 0 |
Payout Agreement
| No payout information available.. |