Property
Account |
| Property ID: | 37861 | Abbreviated Legal Description: | AL PETTYGROVE ADDITION BLK 7 LOT 3(E 1/2) SUBJ/EASE |
| Parcel # / Geo ID: | 984600702 | Agent Code: | |
| Type: | Real | | |
| Tax Area: | 0110 - C-50F1E1H2 | Land Use Code | 91 |
| Open Space: | N | DFL | N |
| Historic Property: | N | Remodel Property: | N |
| Multi-Family Redevelopment: | N | | |
| Township: | 30N | Section: | 2 |
| Range: | 1W |
Location |
| Address: | | Mapsco: | 089/031 |
| Neighborhood: | AL PETTYGROVE'S SMITH'S & DRUMMOND'S | Map ID: | |
| Neighborhood CD: | 6310 |
Owner |
| Name: | PETER & MARILU FINDLEY DECLARATION TRUST | Owner ID: | 110954 |
| Mailing Address: | MARILU FINDLEY TRUSTEE 816 TAFT ST PORT TOWNSEND, WA 98368-5431 | % Ownership: | 100.0000000000% |
| | | Exemptions: | |
Pay Tax Due
Select the appropriate checkbox next to the year to be paid. Multiple years may be selected.
*Convenience Fee not included
Taxes and Assessment Details
Property Tax Information as of
03/11/2026
Click on "Statement Details" to expand or collapse a tax statement.
* Please enter a valid date ** Please enter a valid date *
Statement Details |
| 2026 | 27055 | STATE - STATE LEVY (SCHOOL) | $61.46 | $61.45 | $0.00 | $0.00 | $0.00 | $122.91 |
| 2026 | 27055 | COUNTY - COUNTY LEVIES (CE, DD, VET, MH) | $24.57 | $24.57 | $0.00 | $0.00 | $0.00 | $49.14 |
| 2026 | 27055 | CONSERVE - CONSERVATION FUTURES | $0.74 | $0.73 | $0.00 | $0.00 | $0.00 | $1.47 |
| 2026 | 27055 | CITYPT - CITY OF PT | $34.88 | $34.87 | $0.00 | $0.00 | $0.00 | $69.75 |
| 2026 | 27055 | PORTPT - PORT DISTRICT | $9.93 | $9.92 | $0.00 | $0.00 | $0.00 | $19.85 |
| 2026 | 27055 | PUD1 - PUD #1 | $1.60 | $1.60 | $0.00 | $0.00 | $0.00 | $3.20 |
| 2026 | 27055 | HD2 - HOSP DIST #2 | $1.44 | $1.43 | $0.00 | $0.00 | $0.00 | $2.87 |
| 2026 | 27055 | SD50 - SCHOOL DIST #50 | $48.70 | $48.67 | $0.00 | $0.00 | $0.00 | $97.37 |
| 2026 | 27055 | FD1 - FIRE DISTRICT #1 | $32.54 | $32.53 | $0.00 | $0.00 | $0.00 | $65.07 |
| 2026 | 27055 | EMS1 - FIRE DIST #1 EMS | $12.51 | $12.51 | $0.00 | $0.00 | $0.00 | $25.02 |
| 2026 | 27055 | JCCD - JC Conservation District | $2.53 | $2.53 | $0.00 | $0.00 | $0.00 | $5.06 |
| 2026 | 27055 | NWA - Noxious Weed Assessment | $2.98 | $2.97 | $0.00 | $0.00 | $0.00 | $5.95 |
| 2026 | 27055 | WAT - Clean Water District | $13.00 | $13.00 | $0.00 | $0.00 | $0.00 | $26.00 |
| 2026 | 27055 | TOTAL: | $246.88 | $246.78 | $0.00 | $0.00 | $0.00 | $493.66 |
|
| 2026 | 27055 | $246.88 | $246.78 | $0.00 | $0.00 | $0.00 | $493.66 |
Statement Details |
| 2025 | 27127 | STATE - STATE LEVY (SCHOOL) | $62.68 | $62.67 | $0.00 | $0.00 | $125.35 | $0.00 |
| 2025 | 27127 | COUNTY - COUNTY LEVIES (CE, DD, VET, MH) | $24.65 | $24.64 | $0.00 | $0.00 | $49.29 | $0.00 |
| 2025 | 27127 | CONSERVE - CONSERVATION FUTURES | $0.74 | $0.74 | $0.00 | $0.00 | $1.48 | $0.00 |
| 2025 | 27127 | CITYPT - CITY OF PT | $35.55 | $35.54 | $0.00 | $0.00 | $71.09 | $0.00 |
| 2025 | 27127 | PORTPT - PORT DISTRICT | $10.07 | $10.05 | $0.00 | $0.00 | $20.12 | $0.00 |
| 2025 | 27127 | PUD1 - PUD #1 | $1.62 | $1.61 | $0.00 | $0.00 | $3.23 | $0.00 |
| 2025 | 27127 | HD2 - HOSP DIST #2 | $1.44 | $1.44 | $0.00 | $0.00 | $2.88 | $0.00 |
| 2025 | 27127 | SD50 - SCHOOL DIST #50 | $45.81 | $45.80 | $0.00 | $0.00 | $91.61 | $0.00 |
| 2025 | 27127 | FD1 - FIRE DISTRICT #1 | $32.53 | $32.52 | $0.00 | $0.00 | $65.05 | $0.00 |
| 2025 | 27127 | EMS1 - FIRE DIST #1 EMS | $12.51 | $12.51 | $0.00 | $0.00 | $25.02 | $0.00 |
| 2025 | 27127 | JCCD - JC Conservation District | $2.53 | $2.53 | $0.00 | $0.00 | $5.06 | $0.00 |
| 2025 | 27127 | NWA - Noxious Weed Assessment | $2.15 | $2.15 | $0.00 | $0.00 | $4.30 | $0.00 |
| 2025 | 27127 | WAT - Clean Water District | $13.00 | $13.00 | $0.00 | $0.00 | $26.00 | $0.00 |
| 2025 | 27127 | TOTAL: | $245.28 | $245.20 | $0.00 | $0.00 | $490.48 | $0.00 |
|
| 2025 | 27127 | $245.28 | $245.20 | $0.00 | $0.00 | $490.48 | $0.00 |
Statement Details |
| 2024 | 27185 | STATE - STATE LEVY (SCHOOL) | $57.72 | $57.71 | $0.00 | $0.00 | $115.43 | $0.00 |
| 2024 | 27185 | COUNTY - COUNTY LEVIES (CE, DD, VET, MH) | $24.70 | $24.70 | $0.00 | $0.00 | $49.40 | $0.00 |
| 2024 | 27185 | CONSERVE - CONSERVATION FUTURES | $0.74 | $0.74 | $0.00 | $0.00 | $1.48 | $0.00 |
| 2024 | 27185 | CITYPT - CITY OF PT | $35.30 | $35.28 | $0.00 | $0.00 | $70.58 | $0.00 |
| 2024 | 27185 | PORTPT - PORT DISTRICT | $10.20 | $10.20 | $0.00 | $0.00 | $20.40 | $0.00 |
| 2024 | 27185 | PUD1 - PUD #1 | $1.62 | $1.62 | $0.00 | $0.00 | $3.24 | $0.00 |
| 2024 | 27185 | HD2 - HOSP DIST #2 | $1.44 | $1.44 | $0.00 | $0.00 | $2.88 | $0.00 |
| 2024 | 27185 | SD50 - SCHOOL DIST #50 | $46.70 | $46.69 | $0.00 | $0.00 | $93.39 | $0.00 |
| 2024 | 27185 | FD1 - FIRE DISTRICT #1 | $32.66 | $32.66 | $0.00 | $0.00 | $65.32 | $0.00 |
| 2024 | 27185 | EMS1 - FIRE DIST #1 EMS | $12.48 | $12.47 | $0.00 | $0.00 | $24.95 | $0.00 |
| 2024 | 27185 | JCCD - JC Conservation District | $2.53 | $2.53 | $0.00 | $0.00 | $5.06 | $0.00 |
| 2024 | 27185 | NWA - Noxious Weed Assessment | $2.15 | $2.15 | $0.00 | $0.00 | $4.30 | $0.00 |
| 2024 | 27185 | WAT - Clean Water District | $12.50 | $12.50 | $0.00 | $0.00 | $25.00 | $0.00 |
| 2024 | 27185 | TOTAL: | $240.74 | $240.69 | $0.00 | $0.00 | $481.43 | $0.00 |
|
| 2024 | 27185 | $240.74 | $240.69 | $0.00 | $0.00 | $481.43 | $0.00 |
Statement Details |
| 2023 | 27227 | STATE - STATE LEVY (SCHOOL) | $55.93 | $55.93 | $0.00 | $0.00 | $111.86 | $0.00 |
| 2023 | 27227 | COUNTY - COUNTY LEVIES (CE, DD, VET, MH) | $24.41 | $24.41 | $0.00 | $0.00 | $48.82 | $0.00 |
| 2023 | 27227 | CONSERVE - CONSERVATION FUTURES | $0.73 | $0.73 | $0.00 | $0.00 | $1.46 | $0.00 |
| 2023 | 27227 | CITYPT - CITY OF PT | $34.50 | $34.49 | $0.00 | $0.00 | $68.99 | $0.00 |
| 2023 | 27227 | PORTPT - PORT DISTRICT | $10.29 | $10.28 | $0.00 | $0.00 | $20.57 | $0.00 |
| 2023 | 27227 | PUD1 - PUD #1 | $1.62 | $1.62 | $0.00 | $0.00 | $3.24 | $0.00 |
| 2023 | 27227 | HD2 - HOSP DIST #2 | $1.43 | $1.42 | $0.00 | $0.00 | $2.85 | $0.00 |
| 2023 | 27227 | SD50 - SCHOOL DIST #50 | $44.39 | $44.38 | $0.00 | $0.00 | $88.77 | $0.00 |
| 2023 | 27227 | FD1 - FIRE DISTRICT #1 | $20.11 | $20.11 | $0.00 | $0.00 | $40.22 | $0.00 |
| 2023 | 27227 | EMS1 - FIRE DIST #1 EMS | $8.56 | $8.55 | $0.00 | $0.00 | $17.11 | $0.00 |
| 2023 | 27227 | JCCD - JC Conservation District | $2.53 | $2.53 | $0.00 | $0.00 | $5.06 | $0.00 |
| 2023 | 27227 | NWA - Noxious Weed Assessment | $2.15 | $2.15 | $0.00 | $0.00 | $4.30 | $0.00 |
| 2023 | 27227 | WAT - Clean Water District | $12.00 | $12.00 | $0.00 | $0.00 | $24.00 | $0.00 |
| 2023 | 27227 | TOTAL: | $218.65 | $218.60 | $0.00 | $0.00 | $437.25 | $0.00 |
|
| 2023 | 27227 | $218.65 | $218.60 | $0.00 | $0.00 | $437.25 | $0.00 |
Values
| (+) Improvement Homesite Value: | + | $0 | |
| (+) Improvement Non-Homesite Value: | + | $0 | |
| (+) Land Homesite Value: | + | $0 | |
| (+) Land Non-Homesite Value: | + | $53,460 | |
| (+) Curr Use (HS): | + | $0 | $0 |
| (+) Curr Use (NHS): | + | $0 | $0 |
| | | -------------------------- | |
| (=) Market Value: | = | $53,460 | |
| (–) Productivity Loss: | – | $0 | |
| | | -------------------------- | |
| (=) Subtotal: | = | $53,460 | |
| (+) Senior Appraised Value: | + | $0 | |
| (+) Non-Senior Appraised Value: | + | $53,460 | |
| | | -------------------------- | |
| (=) Total Appraised Value: | = | $53,460 | |
| (–) Senior Exemption Loss: | – | $0 | |
| (–) Exemption Loss: | – | $0 | |
| | | -------------------------- | |
| (=) Taxable Value: | = | $53,460 | |
Taxing Jurisdiction
| Owner: | PETER & MARILU FINDLEY DECLARATION TRUST | | |
| % Ownership: | 100.0000000000% | | |
| Total Value: | $53,460 | | |
| Tax Area: | 0110 - C-50F1E1H2 |
| CE | COUNTY CURRENT EXPENSE | 0.9034619479 | $53,460 | $53,460 | $48.30 | | |
| CNTYDD | DEVELOPMENTAL DISABILITIES | 0.0052121823 | $53,460 | $53,460 | $0.28 | | |
| CNTYVET | VETERANS RELIEF | 0.0052777810 | $53,460 | $53,460 | $0.28 | | |
| MENTAL | MENTAL HEALTH | 0.0052121823 | $53,460 | $53,460 | $0.28 | | |
| PTGEN | CITY OF PT GENERAL | 0.8551967795 | $53,460 | $53,460 | $45.72 | | |
| PTLLL | CITY OF PT - LIBRARY LID LIFT | 0.4010114288 | $53,460 | $53,460 | $21.44 | | |
| PTMVBOND | CITY OF PT MV BOND | 0.0484717981 | $53,460 | $53,460 | $2.59 | | |
| HOSP2CASH | HOSP DIST #2 GENERAL | 0.0536075306 | $53,460 | $53,460 | $2.87 | | |
| SCH50BOND | SCHOOL DIST #50 BOND 2016 | 0.5377451389 | $53,460 | $53,460 | $28.75 | | |
| SCH50CP | SCHOOL DIST #50 CAP PROJ | 0.4573475088 | $53,460 | $53,460 | $24.45 | | |
| SCH50MO | SCHOOL DIST #50 EP & O | 0.8262822886 | $53,460 | $53,460 | $44.17 | | |
| CONSERVE | CONSERVATION FUTURES | 0.0275621078 | $53,460 | $53,460 | $1.47 | | |
| EMS1 | FIRE DIST #1 EMS | 0.4679948282 | $53,460 | $53,460 | $25.02 | | |
| FD1 | FIRE DIST #1 GENERAL | 1.2171942929 | $53,460 | $53,460 | $65.07 | | |
| PORTPT | PORT OF PT GENERAL | 0.1134941229 | $53,460 | $53,460 | $6.07 | | |
| PORTPTIDD | PORT OF PT IDD 2019 | 0.2577346692 | $53,460 | $53,460 | $13.78 | | |
| PUD1 | PUD #1 GENERAL | 0.0597888892 | $53,460 | $53,460 | $3.20 | | |
| STATE | STATE SCHOOL PART 1 | 1.4940692947 | $53,460 | $53,460 | $79.87 | | |
| STATE2 | STATE SCHOOL PART 2 | 0.8050170049 | $53,460 | $53,460 | $43.04 | | |
| | Total Tax Rate: | 8.5416817766 | | | | | |
| | | | | Taxes w/Current Exemptions: | $456.65 | | |
| | | | | Taxes w/o Exemptions: | $456.65 | | |
Improvement / Building
Sketch
| No sketches available for this property. |
Property Image
Land
| 1 | 6310-1185L | | 0.0000 | 0.00 | 0.00 | 0.00 | 1.00 | $53,460 | $0 |
Roll Value History
| 2026 | N/A | N/A | N/A | N/A | N/A |
| 2025 | $0 | $53,460 | $0 | $53,460 | $53,460 |
| 2024 | $0 | $52,272 | $0 | $52,272 | $52,272 |
| 2023 | $0 | $49,896 | $0 | $49,896 | $49,896 |
| 2022 | $0 | $47,520 | $0 | $47,520 | $47,520 |
Deed and Sales History
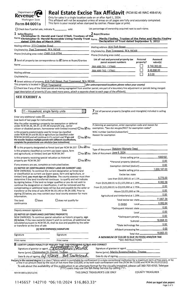
| 1 | 06/06/2024 | SWD | Statutory Warranty Deed | CHRISTOPHER D HEROLD TRUSTEE | PETER & MARILU FINDLEY DECLARATION TRUST | | | $1,000,187.00 | 142710 | |
|   | |
| 2 | 03/13/2001 | QCD | Quit Claim Deed | HEROLD, CHRISTOPHER D | HEROLD, CHRISTOPHER D, TRUSTEE | 0 | 0 | $0.00 | 92190 | 0 |
| 3 | 10/22/1998 | SWD | Statutory Warranty Deed | STRANDBERG, DOUGLAS F | HEROLD, CHRISTOPHER | 0 | 0 | $250,000.00 | 85598 | 0 |
|   | |
| 4 | 08/11/1993 | SWD | Statutory Warranty Deed | JONES, RICHARD DON/LEIGH | STRANDBERG, DOUGLAS F | 0 | 0 | $190,000.00 | 71936 | 0 |
|   | |
Payout Agreement
| No payout information available.. |