Property
Account |
| Property ID: | 37946 | Abbreviated Legal Description: | PETTYGROVE'S 1ST ADDITION BLK 2 LOTS 1&3(ALL),2&4(S30'EA), 5(E10'),6(S30'OF E10') |
| Parcel # / Geo ID: | 984900201 | Agent Code: | |
| Type: | Real | | |
| Tax Area: | 0110 - C-50F1E1H2 | Land Use Code | 11 |
| Open Space: | N | DFL | N |
| Historic Property: | N | Remodel Property: | N |
| Multi-Family Redevelopment: | N | | |
| Township: | 30N | Section: | 2 |
| Range: | 1W |
Location |
| Address: | 718 F ST PORT TOWNSEND, WA 98368 | Mapsco: | 092/005 |
| Neighborhood: | PETTYGROVES 1ST & PETTYGROVES PARK | Map ID: | |
| Neighborhood CD: | 6300 |
Owner |
| Name: | GRISMAN FAMILY REVOCABLE LIVING TRUST | Owner ID: | 99067 |
| Mailing Address: | DAVID J GRISMAN TRUSTEE TRACY B GRISMAN TRUSTEE 718 F ST PORT TOWNSEND, WA 98368-5211 | % Ownership: | 100.0000000000% |
| | | Exemptions: | |
Pay Tax Due
Select the appropriate checkbox next to the year to be paid. Multiple years may be selected.
*Convenience Fee not included
Taxes and Assessment Details
Property Tax Information as of
03/11/2026
Click on "Statement Details" to expand or collapse a tax statement.
* Please enter a valid date ** Please enter a valid date *
Statement Details |
| 2026 | 27140 | STATE - STATE LEVY (SCHOOL) | $1178.58 | $1178.57 | $0.00 | $0.00 | $0.00 | $2357.15 |
| 2026 | 27140 | COUNTY - COUNTY LEVIES (CE, DD, VET, MH) | $471.19 | $471.18 | $0.00 | $0.00 | $0.00 | $942.37 |
| 2026 | 27140 | CONSERVE - CONSERVATION FUTURES | $14.13 | $14.13 | $0.00 | $0.00 | $0.00 | $28.26 |
| 2026 | 27140 | CITYPT - CITY OF PT | $668.82 | $668.81 | $0.00 | $0.00 | $0.00 | $1337.63 |
| 2026 | 27140 | PORTPT - PORT DISTRICT | $190.30 | $190.30 | $0.00 | $0.00 | $0.00 | $380.60 |
| 2026 | 27140 | PUD1 - PUD #1 | $30.65 | $30.65 | $0.00 | $0.00 | $0.00 | $61.30 |
| 2026 | 27140 | HD2 - HOSP DIST #2 | $27.48 | $27.48 | $0.00 | $0.00 | $0.00 | $54.96 |
| 2026 | 27140 | SD50 - SCHOOL DIST #50 | $933.70 | $933.68 | $0.00 | $0.00 | $0.00 | $1867.38 |
| 2026 | 27140 | FD1 - FIRE DISTRICT #1 | $623.97 | $623.96 | $0.00 | $0.00 | $0.00 | $1247.93 |
| 2026 | 27140 | EMS1 - FIRE DIST #1 EMS | $239.91 | $239.90 | $0.00 | $0.00 | $0.00 | $479.81 |
| 2026 | 27140 | JCCD - JC Conservation District | $2.55 | $2.55 | $0.00 | $0.00 | $0.00 | $5.10 |
| 2026 | 27140 | NWA - Noxious Weed Assessment | $2.98 | $2.97 | $0.00 | $0.00 | $0.00 | $5.95 |
| 2026 | 27140 | TOTAL: | $4384.26 | $4384.18 | $0.00 | $0.00 | $0.00 | $8768.44 |
|
| 2026 | 27140 | $4384.26 | $4384.18 | $0.00 | $0.00 | $0.00 | $8768.44 |
Statement Details |
| 2025 | 27212 | STATE - STATE LEVY (SCHOOL) | $1181.34 | $1181.34 | $0.00 | $0.00 | $2362.68 | $0.00 |
| 2025 | 27212 | COUNTY - COUNTY LEVIES (CE, DD, VET, MH) | $464.56 | $464.55 | $0.00 | $0.00 | $929.11 | $0.00 |
| 2025 | 27212 | CONSERVE - CONSERVATION FUTURES | $13.93 | $13.93 | $0.00 | $0.00 | $27.86 | $0.00 |
| 2025 | 27212 | CITYPT - CITY OF PT | $669.95 | $669.93 | $0.00 | $0.00 | $1339.88 | $0.00 |
| 2025 | 27212 | PORTPT - PORT DISTRICT | $189.57 | $189.56 | $0.00 | $0.00 | $379.13 | $0.00 |
| 2025 | 27212 | PUD1 - PUD #1 | $30.40 | $30.40 | $0.00 | $0.00 | $60.80 | $0.00 |
| 2025 | 27212 | HD2 - HOSP DIST #2 | $27.11 | $27.10 | $0.00 | $0.00 | $54.21 | $0.00 |
| 2025 | 27212 | SD50 - SCHOOL DIST #50 | $863.37 | $863.35 | $0.00 | $0.00 | $1726.72 | $0.00 |
| 2025 | 27212 | FD1 - FIRE DISTRICT #1 | $613.03 | $613.03 | $0.00 | $0.00 | $1226.06 | $0.00 |
| 2025 | 27212 | EMS1 - FIRE DIST #1 EMS | $235.79 | $235.79 | $0.00 | $0.00 | $471.58 | $0.00 |
| 2025 | 27212 | JCCD - JC Conservation District | $2.55 | $2.55 | $0.00 | $0.00 | $5.10 | $0.00 |
| 2025 | 27212 | NWA - Noxious Weed Assessment | $2.15 | $2.15 | $0.00 | $0.00 | $4.30 | $0.00 |
| 2025 | 27212 | TOTAL: | $4293.75 | $4293.68 | $0.00 | $0.00 | $8587.43 | $0.00 |
|
| 2025 | 27212 | $4293.75 | $4293.68 | $0.00 | $0.00 | $8587.43 | $0.00 |
Statement Details |
| 2024 | 27270 | STATE - STATE LEVY (SCHOOL) | $1086.50 | $1086.50 | $0.00 | $0.00 | $2173.00 | $0.00 |
| 2024 | 27270 | COUNTY - COUNTY LEVIES (CE, DD, VET, MH) | $464.94 | $464.91 | $0.00 | $0.00 | $929.85 | $0.00 |
| 2024 | 27270 | CONSERVE - CONSERVATION FUTURES | $13.94 | $13.94 | $0.00 | $0.00 | $27.88 | $0.00 |
| 2024 | 27270 | CITYPT - CITY OF PT | $664.32 | $664.30 | $0.00 | $0.00 | $1328.62 | $0.00 |
| 2024 | 27270 | PORTPT - PORT DISTRICT | $192.04 | $192.02 | $0.00 | $0.00 | $384.06 | $0.00 |
| 2024 | 27270 | PUD1 - PUD #1 | $30.54 | $30.54 | $0.00 | $0.00 | $61.08 | $0.00 |
| 2024 | 27270 | HD2 - HOSP DIST #2 | $27.13 | $27.12 | $0.00 | $0.00 | $54.25 | $0.00 |
| 2024 | 27270 | SD50 - SCHOOL DIST #50 | $879.04 | $879.01 | $0.00 | $0.00 | $1758.05 | $0.00 |
| 2024 | 27270 | FD1 - FIRE DISTRICT #1 | $614.74 | $614.74 | $0.00 | $0.00 | $1229.48 | $0.00 |
| 2024 | 27270 | EMS1 - FIRE DIST #1 EMS | $234.81 | $234.81 | $0.00 | $0.00 | $469.62 | $0.00 |
| 2024 | 27270 | JCCD - JC Conservation District | $2.55 | $2.55 | $0.00 | $0.00 | $5.10 | $0.00 |
| 2024 | 27270 | NWA - Noxious Weed Assessment | $2.15 | $2.15 | $0.00 | $0.00 | $4.30 | $0.00 |
| 2024 | 27270 | TOTAL: | $4212.70 | $4212.59 | $0.00 | $0.00 | $8425.29 | $0.00 |
|
| 2024 | 27270 | $4212.70 | $4212.59 | $0.00 | $0.00 | $8425.29 | $0.00 |
Statement Details |
| 2023 | 27312 | STATE - STATE LEVY (SCHOOL) | $1051.96 | $1051.96 | $0.00 | $0.00 | $2103.92 | $0.00 |
| 2023 | 27312 | COUNTY - COUNTY LEVIES (CE, DD, VET, MH) | $459.05 | $459.03 | $0.00 | $0.00 | $918.08 | $0.00 |
| 2023 | 27312 | CONSERVE - CONSERVATION FUTURES | $13.77 | $13.76 | $0.00 | $0.00 | $27.53 | $0.00 |
| 2023 | 27312 | CITYPT - CITY OF PT | $648.79 | $648.78 | $0.00 | $0.00 | $1297.57 | $0.00 |
| 2023 | 27312 | PORTPT - PORT DISTRICT | $193.38 | $193.37 | $0.00 | $0.00 | $386.75 | $0.00 |
| 2023 | 27312 | PUD1 - PUD #1 | $30.43 | $30.43 | $0.00 | $0.00 | $60.86 | $0.00 |
| 2023 | 27312 | HD2 - HOSP DIST #2 | $26.80 | $26.78 | $0.00 | $0.00 | $53.58 | $0.00 |
| 2023 | 27312 | SD50 - SCHOOL DIST #50 | $834.75 | $834.74 | $0.00 | $0.00 | $1669.49 | $0.00 |
| 2023 | 27312 | FD1 - FIRE DISTRICT #1 | $378.16 | $378.16 | $0.00 | $0.00 | $756.32 | $0.00 |
| 2023 | 27312 | EMS1 - FIRE DIST #1 EMS | $160.86 | $160.86 | $0.00 | $0.00 | $321.72 | $0.00 |
| 2023 | 27312 | JCCD - JC Conservation District | $2.55 | $2.55 | $0.00 | $0.00 | $5.10 | $0.00 |
| 2023 | 27312 | NWA - Noxious Weed Assessment | $2.15 | $2.15 | $0.00 | $0.00 | $4.30 | $0.00 |
| 2023 | 27312 | TOTAL: | $3802.65 | $3802.57 | $0.00 | $0.00 | $7605.22 | $0.00 |
|
| 2023 | 27312 | $3802.65 | $3802.57 | $0.00 | $0.00 | $7605.22 | $0.00 |
Values
| (+) Improvement Homesite Value: | + | $0 | |
| (+) Improvement Non-Homesite Value: | + | $777,954 | |
| (+) Land Homesite Value: | + | $0 | |
| (+) Land Non-Homesite Value: | + | $247,300 | |
| (+) Curr Use (HS): | + | $0 | $0 |
| (+) Curr Use (NHS): | + | $0 | $0 |
| | | -------------------------- | |
| (=) Market Value: | = | $1,025,254 | |
| (–) Productivity Loss: | – | $0 | |
| | | -------------------------- | |
| (=) Subtotal: | = | $1,025,254 | |
| (+) Senior Appraised Value: | + | $0 | |
| (+) Non-Senior Appraised Value: | + | $1,025,254 | |
| | | -------------------------- | |
| (=) Total Appraised Value: | = | $1,025,254 | |
| (–) Senior Exemption Loss: | – | $0 | |
| (–) Exemption Loss: | – | $0 | |
| | | -------------------------- | |
| (=) Taxable Value: | = | $1,025,254 | |
Taxing Jurisdiction
| Owner: | GRISMAN FAMILY REVOCABLE LIVING TRUST | | |
| % Ownership: | 100.0000000000% | | |
| Total Value: | $1,025,254 | | |
| Tax Area: | 0110 - C-50F1E1H2 |
| CE | COUNTY CURRENT EXPENSE | 0.9034619479 | $1,025,254 | $1,025,254 | $926.28 | | |
| CNTYDD | DEVELOPMENTAL DISABILITIES | 0.0052121823 | $1,025,254 | $1,025,254 | $5.34 | | |
| CNTYVET | VETERANS RELIEF | 0.0052777810 | $1,025,254 | $1,025,254 | $5.41 | | |
| MENTAL | MENTAL HEALTH | 0.0052121823 | $1,025,254 | $1,025,254 | $5.34 | | |
| PTGEN | CITY OF PT GENERAL | 0.8551967795 | $1,025,254 | $1,025,254 | $876.79 | | |
| PTLLL | CITY OF PT - LIBRARY LID LIFT | 0.4010114288 | $1,025,254 | $1,025,254 | $411.14 | | |
| PTMVBOND | CITY OF PT MV BOND | 0.0484717981 | $1,025,254 | $1,025,254 | $49.70 | | |
| HOSP2CASH | HOSP DIST #2 GENERAL | 0.0536075306 | $1,025,254 | $1,025,254 | $54.96 | | |
| SCH50BOND | SCHOOL DIST #50 BOND 2016 | 0.5377451389 | $1,025,254 | $1,025,254 | $551.33 | | |
| SCH50CP | SCHOOL DIST #50 CAP PROJ | 0.4573475088 | $1,025,254 | $1,025,254 | $468.90 | | |
| SCH50MO | SCHOOL DIST #50 EP & O | 0.8262822886 | $1,025,254 | $1,025,254 | $847.15 | | |
| CONSERVE | CONSERVATION FUTURES | 0.0275621078 | $1,025,254 | $1,025,254 | $28.26 | | |
| EMS1 | FIRE DIST #1 EMS | 0.4679948282 | $1,025,254 | $1,025,254 | $479.81 | | |
| FD1 | FIRE DIST #1 GENERAL | 1.2171942929 | $1,025,254 | $1,025,254 | $1,247.93 | | |
| PORTPT | PORT OF PT GENERAL | 0.1134941229 | $1,025,254 | $1,025,254 | $116.36 | | |
| PORTPTIDD | PORT OF PT IDD 2019 | 0.2577346692 | $1,025,254 | $1,025,254 | $264.24 | | |
| PUD1 | PUD #1 GENERAL | 0.0597888892 | $1,025,254 | $1,025,254 | $61.30 | | |
| STATE | STATE SCHOOL PART 1 | 1.4940692947 | $1,025,254 | $1,025,254 | $1,531.80 | | |
| STATE2 | STATE SCHOOL PART 2 | 0.8050170049 | $1,025,254 | $1,025,254 | $825.35 | | |
| | Total Tax Rate: | 8.5416817766 | | | | | |
| | | | | Taxes w/Current Exemptions: | $8,757.39 | | |
| | | | | Taxes w/o Exemptions: | $8,757.39 | | |
Improvement / Building
| Improvement #1: | Residential Bldg | State Code: | 11 | 3538.0 sqft | Value: | $777,954 |
| Bathrooms (#): | 6 (FULL) | Bathrooms (#): | 1 (HALF) | | Bedrooms (#): | 6 | Exterior Wall: | SI/ST | | Fireplace: | SIN 2-GOOD | Floor Construction: | FRAME | | Foundation: | CONPR | Heating/Cooling: | F/A | | Inside Verify: | YES-FIX | Roof Cover: | COMP |
|
| | Type | Description | Class CD | Sub Class CD | Year Built | Area |
| | MA | Main Area | 5- | 2S | 1885 | 1997.0 |
| | MA2 | Second Floor Main Area | 5- | 2S | 1885 | 1541.0 |
| | HWPOR | House Wood Porch | 5 | * | 1885 | 256.0 |
| | HBAL | House Balcony | 5 | * | 1885 | 40.0 |
| | DECK | Deck (Table Not Dep) | 4 | * | 1885 | 240.0 |
| | CARPT | Carport (Table Not Dep) | 4 | * | 1885 | 400.0 |
| | OTHER | Other | * | * | 1885 | 0.0 |
| | BSMTF | House basement finished | 2 | * | 1885 | 212.0 |
| | BSMTU | House basement unfinished | 2 | * | 1885 | 53.0 |
Sketch
Property Image
Land
| 1 | 6300-1177L | | 0.0000 | 0.00 | 0.00 | 0.00 | 1.00 | $150,000 | $0 |
| 2 | 6300-1177L | | 0.0000 | 0.00 | 0.00 | 0.00 | 1.00 | $50,000 | $0 |
| 3 | 6300-1179L | | 0.0000 | 0.00 | 0.00 | 0.00 | 1.00 | $47,300 | $0 |
Roll Value History
| 2026 | N/A | N/A | N/A | N/A | N/A |
| 2025 | $777,954 | $247,300 | $0 | $1,025,254 | $1,025,254 |
| 2024 | $734,459 | $250,800 | $0 | $985,259 | $985,259 |
| 2023 | $705,080 | $234,150 | $0 | $939,230 | $939,230 |
| 2022 | $675,702 | $218,000 | $0 | $893,702 | $893,702 |
Deed and Sales History
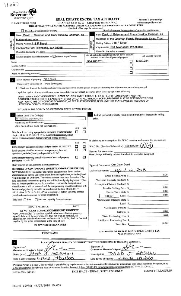
| 1 | 04/12/2018 | QCD | Quit Claim Deed | DAVID J GRISMAN & TRACY BIGELOW GRISMAN | GRISMAN FAMILY REVOCABLE LIVING TRUST | | | | 129966 | |
| 2 | 12/17/2012 | SWD | Statutory Warranty Deed | MARTIN E MAC GILLONIE | DAVID J GRISMAN & TRACY BIGELOW GRISMAN | | | $375,000.00 | 118521 | |
| 3 | 04/16/2001 | SWD | Statutory Warranty Deed | RANEY, MARK A/DEBORAH L | MAC GILLONIE, MARTIN E/JENNIFE | 0 | 0 | $457,500.00 | 92001 | 0 |
| 4 | 10/22/1998 | SWD | Statutory Warranty Deed | BORINO, NANCY | RANEY, MARK A/DEBORAH L | 0 | 0 | $368,000.00 | 85612 | 0 |
| 5 | 10/26/1994 | SWD | Statutory Warranty Deed | SWENSON, JOHN E/JULIETTE | BORINO, NANCY | 0 | 0 | $360,000.00 | 75431 | 0 |
| 6 | 03/04/1993 | SWD | Statutory Warranty Deed | DORNAN, JAMES E/LINDA | SWENSON, JOHN E/JULIETTE V | 0 | 0 | $265,000.00 | 70616 | 0 |
Payout Agreement
| No payout information available.. |