Property
Account |
| Property ID: | 37983 | Abbreviated Legal Description: | PETTYGROVE'S 1ST ADDITION BLK 10 LOT 4(LS E25' & LS S10'), LT 6(LS S10') BND TGTH THRU LLA#123207 |
| Parcel # / Geo ID: | 984901004 | Agent Code: | |
| Type: | Real | | |
| Tax Area: | 0110 - C-50F1E1H2 | Land Use Code | 11 |
| Open Space: | N | DFL | N |
| Historic Property: | N | Remodel Property: | N |
| Multi-Family Redevelopment: | N | | |
| Township: | 30N | Section: | 2 |
| Range: | 1W |
Location |
| Address: | 715 J ST PORT TOWNSEND, WA 98368 | Mapsco: | 092/039 |
| Neighborhood: | PETTYGROVES 1ST & PETTYGROVES PARK | Map ID: | |
| Neighborhood CD: | 6300 |
Owner |
| Name: | NATHANIEL S WALKER & SARAH M DOYLE | Owner ID: | 102503 |
| Mailing Address: | 715 J ST PORT TOWNSEND, WA 98368-5222 | % Ownership: | 100.0000000000% |
| | | Exemptions: | |
Pay Tax Due
Select the appropriate checkbox next to the year to be paid. Multiple years may be selected.
*Convenience Fee not included
Taxes and Assessment Details
Property Tax Information as of
03/10/2026
Click on "Statement Details" to expand or collapse a tax statement.
* Please enter a valid date ** Please enter a valid date *
Statement Details |
| 2026 | 27176 | STATE - STATE LEVY (SCHOOL) | $431.70 | $431.70 | $0.00 | $0.00 | $0.00 | $863.40 |
| 2026 | 27176 | COUNTY - COUNTY LEVIES (CE, DD, VET, MH) | $172.60 | $172.59 | $0.00 | $0.00 | $0.00 | $345.19 |
| 2026 | 27176 | CONSERVE - CONSERVATION FUTURES | $5.18 | $5.17 | $0.00 | $0.00 | $0.00 | $10.35 |
| 2026 | 27176 | CITYPT - CITY OF PT | $244.98 | $244.98 | $0.00 | $0.00 | $0.00 | $489.96 |
| 2026 | 27176 | PORTPT - PORT DISTRICT | $69.71 | $69.70 | $0.00 | $0.00 | $0.00 | $139.41 |
| 2026 | 27176 | PUD1 - PUD #1 | $11.23 | $11.22 | $0.00 | $0.00 | $0.00 | $22.45 |
| 2026 | 27176 | HD2 - HOSP DIST #2 | $10.07 | $10.06 | $0.00 | $0.00 | $0.00 | $20.13 |
| 2026 | 27176 | SD50 - SCHOOL DIST #50 | $342.00 | $341.99 | $0.00 | $0.00 | $0.00 | $683.99 |
| 2026 | 27176 | FD1 - FIRE DISTRICT #1 | $228.55 | $228.55 | $0.00 | $0.00 | $0.00 | $457.10 |
| 2026 | 27176 | EMS1 - FIRE DIST #1 EMS | $87.88 | $87.87 | $0.00 | $0.00 | $0.00 | $175.75 |
| 2026 | 27176 | JCCD - JC Conservation District | $2.55 | $2.55 | $0.00 | $0.00 | $0.00 | $5.10 |
| 2026 | 27176 | NWA - Noxious Weed Assessment | $2.98 | $2.97 | $0.00 | $0.00 | $0.00 | $5.95 |
| 2026 | 27176 | TOTAL: | $1609.43 | $1609.35 | $0.00 | $0.00 | $0.00 | $3218.78 |
|
| 2026 | 27176 | $1609.43 | $1609.35 | $0.00 | $0.00 | $0.00 | $3218.78 |
Statement Details |
| 2025 | 27248 | STATE - STATE LEVY (SCHOOL) | $436.48 | $436.47 | $0.00 | $0.00 | $872.95 | $0.00 |
| 2025 | 27248 | COUNTY - COUNTY LEVIES (CE, DD, VET, MH) | $171.65 | $171.63 | $0.00 | $0.00 | $343.28 | $0.00 |
| 2025 | 27248 | CONSERVE - CONSERVATION FUTURES | $5.15 | $5.14 | $0.00 | $0.00 | $10.29 | $0.00 |
| 2025 | 27248 | CITYPT - CITY OF PT | $247.54 | $247.52 | $0.00 | $0.00 | $495.06 | $0.00 |
| 2025 | 27248 | PORTPT - PORT DISTRICT | $70.05 | $70.03 | $0.00 | $0.00 | $140.08 | $0.00 |
| 2025 | 27248 | PUD1 - PUD #1 | $11.23 | $11.23 | $0.00 | $0.00 | $22.46 | $0.00 |
| 2025 | 27248 | HD2 - HOSP DIST #2 | $10.02 | $10.01 | $0.00 | $0.00 | $20.03 | $0.00 |
| 2025 | 27248 | SD50 - SCHOOL DIST #50 | $319.01 | $318.98 | $0.00 | $0.00 | $637.99 | $0.00 |
| 2025 | 27248 | FD1 - FIRE DISTRICT #1 | $226.50 | $226.50 | $0.00 | $0.00 | $453.00 | $0.00 |
| 2025 | 27248 | EMS1 - FIRE DIST #1 EMS | $87.12 | $87.12 | $0.00 | $0.00 | $174.24 | $0.00 |
| 2025 | 27248 | JCCD - JC Conservation District | $2.55 | $2.55 | $0.00 | $0.00 | $5.10 | $0.00 |
| 2025 | 27248 | NWA - Noxious Weed Assessment | $2.15 | $2.15 | $0.00 | $0.00 | $4.30 | $0.00 |
| 2025 | 27248 | TOTAL: | $1589.45 | $1589.33 | $0.00 | $0.00 | $3178.78 | $0.00 |
|
| 2025 | 27248 | $1589.45 | $1589.33 | $0.00 | $0.00 | $3178.78 | $0.00 |
Statement Details |
| 2024 | 27306 | STATE - STATE LEVY (SCHOOL) | $397.26 | $397.24 | $0.00 | $0.00 | $794.50 | $0.00 |
| 2024 | 27306 | COUNTY - COUNTY LEVIES (CE, DD, VET, MH) | $169.99 | $169.98 | $0.00 | $0.00 | $339.97 | $0.00 |
| 2024 | 27306 | CONSERVE - CONSERVATION FUTURES | $5.10 | $5.09 | $0.00 | $0.00 | $10.19 | $0.00 |
| 2024 | 27306 | CITYPT - CITY OF PT | $242.90 | $242.88 | $0.00 | $0.00 | $485.78 | $0.00 |
| 2024 | 27306 | PORTPT - PORT DISTRICT | $70.22 | $70.21 | $0.00 | $0.00 | $140.43 | $0.00 |
| 2024 | 27306 | PUD1 - PUD #1 | $11.17 | $11.16 | $0.00 | $0.00 | $22.33 | $0.00 |
| 2024 | 27306 | HD2 - HOSP DIST #2 | $9.92 | $9.92 | $0.00 | $0.00 | $19.84 | $0.00 |
| 2024 | 27306 | SD50 - SCHOOL DIST #50 | $321.40 | $321.39 | $0.00 | $0.00 | $642.79 | $0.00 |
| 2024 | 27306 | FD1 - FIRE DISTRICT #1 | $224.77 | $224.76 | $0.00 | $0.00 | $449.53 | $0.00 |
| 2024 | 27306 | EMS1 - FIRE DIST #1 EMS | $85.85 | $85.85 | $0.00 | $0.00 | $171.70 | $0.00 |
| 2024 | 27306 | JCCD - JC Conservation District | $2.55 | $2.55 | $0.00 | $0.00 | $5.10 | $0.00 |
| 2024 | 27306 | NWA - Noxious Weed Assessment | $2.15 | $2.15 | $0.00 | $0.00 | $4.30 | $0.00 |
| 2024 | 27306 | TOTAL: | $1543.28 | $1543.18 | $0.00 | $0.00 | $3086.46 | $0.00 |
|
| 2024 | 27306 | $1543.28 | $1543.18 | $0.00 | $0.00 | $3086.46 | $0.00 |
Statement Details |
| 2023 | 27348 | STATE - STATE LEVY (SCHOOL) | $380.53 | $380.52 | $0.00 | $0.00 | $761.05 | $0.00 |
| 2023 | 27348 | COUNTY - COUNTY LEVIES (CE, DD, VET, MH) | $166.07 | $166.04 | $0.00 | $0.00 | $332.11 | $0.00 |
| 2023 | 27348 | CONSERVE - CONSERVATION FUTURES | $4.98 | $4.98 | $0.00 | $0.00 | $9.96 | $0.00 |
| 2023 | 27348 | CITYPT - CITY OF PT | $234.69 | $234.68 | $0.00 | $0.00 | $469.37 | $0.00 |
| 2023 | 27348 | PORTPT - PORT DISTRICT | $69.96 | $69.94 | $0.00 | $0.00 | $139.90 | $0.00 |
| 2023 | 27348 | PUD1 - PUD #1 | $11.01 | $11.00 | $0.00 | $0.00 | $22.01 | $0.00 |
| 2023 | 27348 | HD2 - HOSP DIST #2 | $9.70 | $9.68 | $0.00 | $0.00 | $19.38 | $0.00 |
| 2023 | 27348 | SD50 - SCHOOL DIST #50 | $301.96 | $301.95 | $0.00 | $0.00 | $603.91 | $0.00 |
| 2023 | 27348 | FD1 - FIRE DISTRICT #1 | $136.79 | $136.79 | $0.00 | $0.00 | $273.58 | $0.00 |
| 2023 | 27348 | EMS1 - FIRE DIST #1 EMS | $58.19 | $58.19 | $0.00 | $0.00 | $116.38 | $0.00 |
| 2023 | 27348 | JCCD - JC Conservation District | $2.55 | $2.55 | $0.00 | $0.00 | $5.10 | $0.00 |
| 2023 | 27348 | NWA - Noxious Weed Assessment | $2.15 | $2.15 | $0.00 | $0.00 | $4.30 | $0.00 |
| 2023 | 27348 | TOTAL: | $1378.58 | $1378.47 | $0.00 | $0.00 | $2757.05 | $0.00 |
|
| 2023 | 27348 | $1378.58 | $1378.47 | $0.00 | $0.00 | $2757.05 | $0.00 |
Values
| (+) Improvement Homesite Value: | + | $0 | |
| (+) Improvement Non-Homesite Value: | + | $228,039 | |
| (+) Land Homesite Value: | + | $0 | |
| (+) Land Non-Homesite Value: | + | $147,500 | |
| (+) Curr Use (HS): | + | $0 | $0 |
| (+) Curr Use (NHS): | + | $0 | $0 |
| | | -------------------------- | |
| (=) Market Value: | = | $375,539 | |
| (–) Productivity Loss: | – | $0 | |
| | | -------------------------- | |
| (=) Subtotal: | = | $375,539 | |
| (+) Senior Appraised Value: | + | $0 | |
| (+) Non-Senior Appraised Value: | + | $375,539 | |
| | | -------------------------- | |
| (=) Total Appraised Value: | = | $375,539 | |
| (–) Senior Exemption Loss: | – | $0 | |
| (–) Exemption Loss: | – | $0 | |
| | | -------------------------- | |
| (=) Taxable Value: | = | $375,539 | |
Taxing Jurisdiction
| Owner: | NATHANIEL S WALKER & SARAH M DOYLE | | |
| % Ownership: | 100.0000000000% | | |
| Total Value: | $375,539 | | |
| Tax Area: | 0110 - C-50F1E1H2 |
| CE | COUNTY CURRENT EXPENSE | 0.9034619479 | $375,539 | $375,539 | $339.29 | | |
| CNTYDD | DEVELOPMENTAL DISABILITIES | 0.0052121823 | $375,539 | $375,539 | $1.96 | | |
| CNTYVET | VETERANS RELIEF | 0.0052777810 | $375,539 | $375,539 | $1.98 | | |
| MENTAL | MENTAL HEALTH | 0.0052121823 | $375,539 | $375,539 | $1.96 | | |
| PTGEN | CITY OF PT GENERAL | 0.8551967795 | $375,539 | $375,539 | $321.16 | | |
| PTLLL | CITY OF PT - LIBRARY LID LIFT | 0.4010114288 | $375,539 | $375,539 | $150.60 | | |
| PTMVBOND | CITY OF PT MV BOND | 0.0484717981 | $375,539 | $375,539 | $18.20 | | |
| HOSP2CASH | HOSP DIST #2 GENERAL | 0.0536075306 | $375,539 | $375,539 | $20.13 | | |
| SCH50BOND | SCHOOL DIST #50 BOND 2016 | 0.5377451389 | $375,539 | $375,539 | $201.94 | | |
| SCH50CP | SCHOOL DIST #50 CAP PROJ | 0.4573475088 | $375,539 | $375,539 | $171.75 | | |
| SCH50MO | SCHOOL DIST #50 EP & O | 0.8262822886 | $375,539 | $375,539 | $310.30 | | |
| CONSERVE | CONSERVATION FUTURES | 0.0275621078 | $375,539 | $375,539 | $10.35 | | |
| EMS1 | FIRE DIST #1 EMS | 0.4679948282 | $375,539 | $375,539 | $175.75 | | |
| FD1 | FIRE DIST #1 GENERAL | 1.2171942929 | $375,539 | $375,539 | $457.10 | | |
| PORTPT | PORT OF PT GENERAL | 0.1134941229 | $375,539 | $375,539 | $42.62 | | |
| PORTPTIDD | PORT OF PT IDD 2019 | 0.2577346692 | $375,539 | $375,539 | $96.79 | | |
| PUD1 | PUD #1 GENERAL | 0.0597888892 | $375,539 | $375,539 | $22.45 | | |
| STATE | STATE SCHOOL PART 1 | 1.4940692947 | $375,539 | $375,539 | $561.08 | | |
| STATE2 | STATE SCHOOL PART 2 | 0.8050170049 | $375,539 | $375,539 | $302.32 | | |
| | Total Tax Rate: | 8.5416817766 | | | | | |
| | | | | Taxes w/Current Exemptions: | $3,207.73 | | |
| | | | | Taxes w/o Exemptions: | $3,207.73 | | |
Improvement / Building
| Improvement #1: | Residential Bldg | State Code: | 11 | 972.0 sqft | Value: | $228,039 |
| Bathrooms (#): | 1 (FULL) | Bedrooms (#): | 2 | | Exterior Wall: | SI/ST | Floor Construction: | FRAME | | Foundation: | PO&BL | Heating/Cooling: | ELBB | | Inside Verify: | YES-FIX | Roof Cover: | COMP |
|
| | Type | Description | Class CD | Sub Class CD | Year Built | Area |
| | MA | Main Area | 3+ | 1S | 1942 | 972.0 |
| | HDECK | House Deck | 3 | * | 1942 | 112.0 |
| | GARAG | Garage (Table Not Dep) | 4 | * | 1942 | 280.0 |
Sketch
Property Image
Land
| 1 | 6300-1177L | | 0.0000 | 0.00 | 0.00 | 0.00 | 1.00 | $130,000 | $0 |
| 2 | 6300-1177L | | 0.0000 | 0.00 | 0.00 | 0.00 | 1.00 | $17,500 | $0 |
Roll Value History
| 2026 | N/A | N/A | N/A | N/A | N/A |
| 2025 | $228,039 | $147,500 | $0 | $375,539 | $375,539 |
| 2024 | $214,705 | $149,325 | $0 | $364,030 | $364,030 |
| 2023 | $206,117 | $137,288 | $0 | $343,405 | $343,405 |
| 2022 | $197,529 | $125,750 | $0 | $323,279 | $323,279 |
Deed and Sales History
| 1 | 03/30/2020 | SWD | Statutory Warranty Deed | KATHERINE L STEVENSON | NATHANIEL S WALKER & SARAH M DOYLE | | | $161,000.00 | 134160 | |
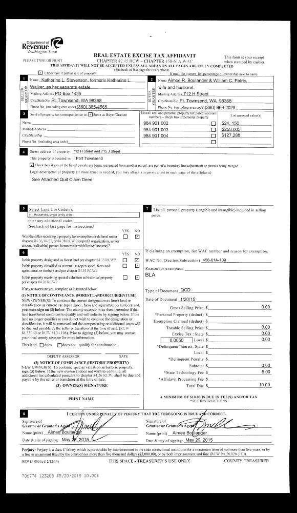
| 2 | 01/20/2015 | BLA | Boundary Line Adjustment | KATHERINE L STEVENSON | | | | | 123208 | |
| 3 | 09/19/2014 | QCD | Quit Claim Deed | | | | | | 121910 | |
| 4 | 03/16/1995 | SWD | Statutory Warranty Deed | KENYON, CAROL J | WALKER, SCOTT GORDON/KATHERINE | 0 | 0 | $0.00 | 76459 | 0 |
Payout Agreement
| No payout information available.. |