Property
Account |
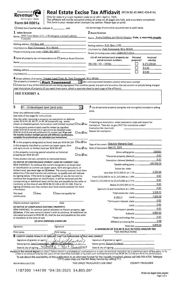
| Property ID: | 38006 | Abbreviated Legal Description: | PETTYGROVE'S 1ST ADDITION BLK 17 LOTS 1 & 3, TAX 140 |
| Parcel # / Geo ID: | 984901701 | Agent Code: | |
| Type: | Real | | |
| Tax Area: | 0110 - C-50F1E1H2 | Land Use Code | 91 |
| Open Space: | N | DFL | N |
| Historic Property: | N | Remodel Property: | N |
| Multi-Family Redevelopment: | N | | |
| Township: | 30N | Section: | 2 |
| Range: | 1W |
Location |
| Address: | | Mapsco: | 093/055 |
| Neighborhood: | PETTYGROVES 1ST & PETTYGROVES PARK | Map ID: | |
| Neighborhood CD: | 6300 |
Owner |
| Name: | MARTIN G COLE | Owner ID: | 99774 |
| Mailing Address: | KAREN A GOTTBERG PO BOX 1198 PORT TOWNSEND, WA 98368-0998 | % Ownership: | 100.0000000000% |
| | | Exemptions: | |
Pay Tax Due
Select the appropriate checkbox next to the year to be paid. Multiple years may be selected.
*Convenience Fee not included
Taxes and Assessment Details
Property Tax Information as of
03/10/2026
Click on "Statement Details" to expand or collapse a tax statement.
* Please enter a valid date ** Please enter a valid date *
Statement Details |
| 2026 | 27199 | STATE - STATE LEVY (SCHOOL) | $310.38 | $310.37 | $0.00 | $0.00 | $0.00 | $620.75 |
| 2026 | 27199 | COUNTY - COUNTY LEVIES (CE, DD, VET, MH) | $124.11 | $124.07 | $0.00 | $0.00 | $0.00 | $248.18 |
| 2026 | 27199 | CONSERVE - CONSERVATION FUTURES | $3.72 | $3.72 | $0.00 | $0.00 | $0.00 | $7.44 |
| 2026 | 27199 | CITYPT - CITY OF PT | $176.14 | $176.12 | $0.00 | $0.00 | $0.00 | $352.26 |
| 2026 | 27199 | PORTPT - PORT DISTRICT | $50.12 | $50.11 | $0.00 | $0.00 | $0.00 | $100.23 |
| 2026 | 27199 | PUD1 - PUD #1 | $8.07 | $8.07 | $0.00 | $0.00 | $0.00 | $16.14 |
| 2026 | 27199 | HD2 - HOSP DIST #2 | $7.24 | $7.23 | $0.00 | $0.00 | $0.00 | $14.47 |
| 2026 | 27199 | SD50 - SCHOOL DIST #50 | $245.89 | $245.88 | $0.00 | $0.00 | $0.00 | $491.77 |
| 2026 | 27199 | FD1 - FIRE DISTRICT #1 | $164.32 | $164.32 | $0.00 | $0.00 | $0.00 | $328.64 |
| 2026 | 27199 | EMS1 - FIRE DIST #1 EMS | $63.18 | $63.18 | $0.00 | $0.00 | $0.00 | $126.36 |
| 2026 | 27199 | JCCD - JC Conservation District | $2.53 | $2.53 | $0.00 | $0.00 | $0.00 | $5.06 |
| 2026 | 27199 | NWA - Noxious Weed Assessment | $2.98 | $2.97 | $0.00 | $0.00 | $0.00 | $5.95 |
| 2026 | 27199 | WAT - Clean Water District | $13.00 | $13.00 | $0.00 | $0.00 | $0.00 | $26.00 |
| 2026 | 27199 | TOTAL: | $1171.68 | $1171.57 | $0.00 | $0.00 | $0.00 | $2343.25 |
|
| 2026 | 27199 | $1171.68 | $1171.57 | $0.00 | $0.00 | $0.00 | $2343.25 |
Statement Details |
| 2025 | 27271 | STATE - STATE LEVY (SCHOOL) | $326.43 | $326.43 | $0.00 | $0.00 | $652.86 | $0.00 |
| 2025 | 27271 | COUNTY - COUNTY LEVIES (CE, DD, VET, MH) | $128.38 | $128.35 | $0.00 | $0.00 | $256.73 | $0.00 |
| 2025 | 27271 | CONSERVE - CONSERVATION FUTURES | $3.85 | $3.85 | $0.00 | $0.00 | $7.70 | $0.00 |
| 2025 | 27271 | CITYPT - CITY OF PT | $185.13 | $185.11 | $0.00 | $0.00 | $370.24 | $0.00 |
| 2025 | 27271 | PORTPT - PORT DISTRICT | $52.38 | $52.38 | $0.00 | $0.00 | $104.76 | $0.00 |
| 2025 | 27271 | PUD1 - PUD #1 | $8.40 | $8.40 | $0.00 | $0.00 | $16.80 | $0.00 |
| 2025 | 27271 | HD2 - HOSP DIST #2 | $7.49 | $7.49 | $0.00 | $0.00 | $14.98 | $0.00 |
| 2025 | 27271 | SD50 - SCHOOL DIST #50 | $238.58 | $238.56 | $0.00 | $0.00 | $477.14 | $0.00 |
| 2025 | 27271 | FD1 - FIRE DISTRICT #1 | $169.40 | $169.39 | $0.00 | $0.00 | $338.79 | $0.00 |
| 2025 | 27271 | EMS1 - FIRE DIST #1 EMS | $65.16 | $65.15 | $0.00 | $0.00 | $130.31 | $0.00 |
| 2025 | 27271 | JCCD - JC Conservation District | $2.53 | $2.53 | $0.00 | $0.00 | $5.06 | $0.00 |
| 2025 | 27271 | NWA - Noxious Weed Assessment | $2.15 | $2.15 | $0.00 | $0.00 | $4.30 | $0.00 |
| 2025 | 27271 | WAT - Clean Water District | $13.00 | $13.00 | $0.00 | $0.00 | $26.00 | $0.00 |
| 2025 | 27271 | TOTAL: | $1202.88 | $1202.79 | $0.00 | $0.00 | $2405.67 | $0.00 |
|
| 2025 | 27271 | $1202.88 | $1202.79 | $0.00 | $0.00 | $2405.67 | $0.00 |
Statement Details |
| 2024 | 27329 | STATE - STATE LEVY (SCHOOL) | $300.63 | $300.62 | $0.00 | $0.00 | $601.25 | $0.00 |
| 2024 | 27329 | COUNTY - COUNTY LEVIES (CE, DD, VET, MH) | $128.65 | $128.62 | $0.00 | $0.00 | $257.27 | $0.00 |
| 2024 | 27329 | CONSERVE - CONSERVATION FUTURES | $3.86 | $3.85 | $0.00 | $0.00 | $7.71 | $0.00 |
| 2024 | 27329 | CITYPT - CITY OF PT | $183.81 | $183.80 | $0.00 | $0.00 | $367.61 | $0.00 |
| 2024 | 27329 | PORTPT - PORT DISTRICT | $53.14 | $53.13 | $0.00 | $0.00 | $106.27 | $0.00 |
| 2024 | 27329 | PUD1 - PUD #1 | $8.45 | $8.45 | $0.00 | $0.00 | $16.90 | $0.00 |
| 2024 | 27329 | HD2 - HOSP DIST #2 | $7.51 | $7.50 | $0.00 | $0.00 | $15.01 | $0.00 |
| 2024 | 27329 | SD50 - SCHOOL DIST #50 | $243.23 | $243.21 | $0.00 | $0.00 | $486.44 | $0.00 |
| 2024 | 27329 | FD1 - FIRE DISTRICT #1 | $170.09 | $170.09 | $0.00 | $0.00 | $340.18 | $0.00 |
| 2024 | 27329 | EMS1 - FIRE DIST #1 EMS | $64.97 | $64.97 | $0.00 | $0.00 | $129.94 | $0.00 |
| 2024 | 27329 | JCCD - JC Conservation District | $2.53 | $2.53 | $0.00 | $0.00 | $5.06 | $0.00 |
| 2024 | 27329 | NWA - Noxious Weed Assessment | $2.15 | $2.15 | $0.00 | $0.00 | $4.30 | $0.00 |
| 2024 | 27329 | WAT - Clean Water District | $12.50 | $12.50 | $0.00 | $0.00 | $25.00 | $0.00 |
| 2024 | 27329 | TOTAL: | $1181.52 | $1181.42 | $0.00 | $0.00 | $2362.94 | $0.00 |
|
| 2024 | 27329 | $1181.52 | $1181.42 | $0.00 | $0.00 | $2362.94 | $0.00 |
Statement Details |
| 2023 | 27371 | STATE - STATE LEVY (SCHOOL) | $291.34 | $291.32 | $0.00 | $0.00 | $582.66 | $0.00 |
| 2023 | 27371 | COUNTY - COUNTY LEVIES (CE, DD, VET, MH) | $127.12 | $127.12 | $0.00 | $0.00 | $254.24 | $0.00 |
| 2023 | 27371 | CONSERVE - CONSERVATION FUTURES | $3.81 | $3.81 | $0.00 | $0.00 | $7.62 | $0.00 |
| 2023 | 27371 | CITYPT - CITY OF PT | $179.67 | $179.67 | $0.00 | $0.00 | $359.34 | $0.00 |
| 2023 | 27371 | PORTPT - PORT DISTRICT | $53.56 | $53.54 | $0.00 | $0.00 | $107.10 | $0.00 |
| 2023 | 27371 | PUD1 - PUD #1 | $8.43 | $8.42 | $0.00 | $0.00 | $16.85 | $0.00 |
| 2023 | 27371 | HD2 - HOSP DIST #2 | $7.43 | $7.41 | $0.00 | $0.00 | $14.84 | $0.00 |
| 2023 | 27371 | SD50 - SCHOOL DIST #50 | $231.18 | $231.18 | $0.00 | $0.00 | $462.36 | $0.00 |
| 2023 | 27371 | FD1 - FIRE DISTRICT #1 | $104.73 | $104.72 | $0.00 | $0.00 | $209.45 | $0.00 |
| 2023 | 27371 | EMS1 - FIRE DIST #1 EMS | $44.55 | $44.55 | $0.00 | $0.00 | $89.10 | $0.00 |
| 2023 | 27371 | JCCD - JC Conservation District | $2.53 | $2.53 | $0.00 | $0.00 | $5.06 | $0.00 |
| 2023 | 27371 | NWA - Noxious Weed Assessment | $2.15 | $2.15 | $0.00 | $0.00 | $4.30 | $0.00 |
| 2023 | 27371 | WAT - Clean Water District | $12.00 | $12.00 | $0.00 | $0.00 | $24.00 | $0.00 |
| 2023 | 27371 | TOTAL: | $1068.50 | $1068.42 | $0.00 | $0.00 | $2136.92 | $0.00 |
|
| 2023 | 27371 | $1068.50 | $1068.42 | $0.00 | $0.00 | $2136.92 | $0.00 |
Values
| (+) Improvement Homesite Value: | + | $0 | |
| (+) Improvement Non-Homesite Value: | + | $0 | |
| (+) Land Homesite Value: | + | $0 | |
| (+) Land Non-Homesite Value: | + | $270,000 | |
| (+) Curr Use (HS): | + | $0 | $0 |
| (+) Curr Use (NHS): | + | $0 | $0 |
| | | -------------------------- | |
| (=) Market Value: | = | $270,000 | |
| (–) Productivity Loss: | – | $0 | |
| | | -------------------------- | |
| (=) Subtotal: | = | $270,000 | |
| (+) Senior Appraised Value: | + | $0 | |
| (+) Non-Senior Appraised Value: | + | $270,000 | |
| | | -------------------------- | |
| (=) Total Appraised Value: | = | $270,000 | |
| (–) Senior Exemption Loss: | – | $0 | |
| (–) Exemption Loss: | – | $0 | |
| | | -------------------------- | |
| (=) Taxable Value: | = | $270,000 | |
Taxing Jurisdiction
| Owner: | MARTIN G COLE | | |
| % Ownership: | 100.0000000000% | | |
| Total Value: | $270,000 | | |
| Tax Area: | 0110 - C-50F1E1H2 |
| CE | COUNTY CURRENT EXPENSE | 0.9034619479 | $270,000 | $270,000 | $243.93 | | |
| CNTYDD | DEVELOPMENTAL DISABILITIES | 0.0052121823 | $270,000 | $270,000 | $1.41 | | |
| CNTYVET | VETERANS RELIEF | 0.0052777810 | $270,000 | $270,000 | $1.43 | | |
| MENTAL | MENTAL HEALTH | 0.0052121823 | $270,000 | $270,000 | $1.41 | | |
| PTGEN | CITY OF PT GENERAL | 0.8551967795 | $270,000 | $270,000 | $230.90 | | |
| PTLLL | CITY OF PT - LIBRARY LID LIFT | 0.4010114288 | $270,000 | $270,000 | $108.27 | | |
| PTMVBOND | CITY OF PT MV BOND | 0.0484717981 | $270,000 | $270,000 | $13.09 | | |
| HOSP2CASH | HOSP DIST #2 GENERAL | 0.0536075306 | $270,000 | $270,000 | $14.47 | | |
| SCH50BOND | SCHOOL DIST #50 BOND 2016 | 0.5377451389 | $270,000 | $270,000 | $145.19 | | |
| SCH50CP | SCHOOL DIST #50 CAP PROJ | 0.4573475088 | $270,000 | $270,000 | $123.48 | | |
| SCH50MO | SCHOOL DIST #50 EP & O | 0.8262822886 | $270,000 | $270,000 | $223.10 | | |
| CONSERVE | CONSERVATION FUTURES | 0.0275621078 | $270,000 | $270,000 | $7.44 | | |
| EMS1 | FIRE DIST #1 EMS | 0.4679948282 | $270,000 | $270,000 | $126.36 | | |
| FD1 | FIRE DIST #1 GENERAL | 1.2171942929 | $270,000 | $270,000 | $328.64 | | |
| PORTPT | PORT OF PT GENERAL | 0.1134941229 | $270,000 | $270,000 | $30.64 | | |
| PORTPTIDD | PORT OF PT IDD 2019 | 0.2577346692 | $270,000 | $270,000 | $69.59 | | |
| PUD1 | PUD #1 GENERAL | 0.0597888892 | $270,000 | $270,000 | $16.14 | | |
| STATE | STATE SCHOOL PART 1 | 1.4940692947 | $270,000 | $270,000 | $403.40 | | |
| STATE2 | STATE SCHOOL PART 2 | 0.8050170049 | $270,000 | $270,000 | $217.35 | | |
| | Total Tax Rate: | 8.5416817766 | | | | | |
| | | | | Taxes w/Current Exemptions: | $2,306.24 | | |
| | | | | Taxes w/o Exemptions: | $2,306.24 | | |
Improvement / Building
Sketch
| No sketches available for this property. |
Property Image
Land
| 1 | 6300-1171L | | 0.0000 | 0.00 | 0.00 | 0.00 | 1.00 | $180,000 | $0 |
| 2 | 6300-1171L | | 0.0000 | 0.00 | 0.00 | 0.00 | 1.00 | $90,000 | $0 |
Roll Value History
| 2026 | N/A | N/A | N/A | N/A | N/A |
| 2025 | $0 | $270,000 | $0 | $270,000 | $270,000 |
| 2024 | $0 | $272,250 | $0 | $272,250 | $272,250 |
| 2023 | $0 | $259,875 | $0 | $259,875 | $259,875 |
| 2022 | $0 | $247,500 | $0 | $247,500 | $247,500 |
Deed and Sales History
| 1 | 04/23/2025 | SWD | Statutory Warranty Deed | 9999 TYLER ST LLC | MARTIN G COLE | | | $300,000.00 | 144199 | |
| 2 | 02/25/2020 | SWD | Statutory Warranty Deed | LOWELL E BOGART | 9999 TYLER ST LLC | | | $200,000.00 | 134046 | |
Payout Agreement
| No payout information available.. |