Property
Account |
| Property ID: | 38029 | Abbreviated Legal Description: | PETTYGROVE'S 1ST ADDITION BLK 22 LOT 1(ALL), 3(E15') |
| Parcel # / Geo ID: | 984902201 | Agent Code: | |
| Type: | Real | | |
| Tax Area: | 0110 - C-50F1E1H2 | Land Use Code | 11 |
| Open Space: | N | DFL | N |
| Historic Property: | N | Remodel Property: | N |
| Multi-Family Redevelopment: | N | | |
| Township: | 30N | Section: | 2 |
| Range: | 1W |
Location |
| Address: | 806 L ST PORT TOWNSEND, WA 98368 | Mapsco: | 093/091 |
| Neighborhood: | PETTYGROVES 1ST & PETTYGROVES PARK | Map ID: | |
| Neighborhood CD: | 6300 |
Owner |
| Name: | BETH L JULEN | Owner ID: | 113187 |
| Mailing Address: | 806 L ST PORT TOWNSEND, WA 98368 | % Ownership: | 100.0000000000% |
| | | Exemptions: | |
Pay Tax Due
Select the appropriate checkbox next to the year to be paid. Multiple years may be selected.
*Convenience Fee not included
Taxes and Assessment Details
Property Tax Information as of
03/11/2026
Click on "Statement Details" to expand or collapse a tax statement.
* Please enter a valid date ** Please enter a valid date *
Statement Details |
| 2026 | 27221 | STATE - STATE LEVY (SCHOOL) | $617.19 | $617.18 | $0.00 | $0.00 | $617.19 | $617.18 |
| 2026 | 27221 | COUNTY - COUNTY LEVIES (CE, DD, VET, MH) | $246.75 | $246.74 | $0.00 | $0.00 | $246.75 | $246.74 |
| 2026 | 27221 | CONSERVE - CONSERVATION FUTURES | $7.40 | $7.40 | $0.00 | $0.00 | $7.40 | $7.40 |
| 2026 | 27221 | CITYPT - CITY OF PT | $350.24 | $350.23 | $0.00 | $0.00 | $350.24 | $350.23 |
| 2026 | 27221 | PORTPT - PORT DISTRICT | $99.66 | $99.65 | $0.00 | $0.00 | $99.66 | $99.65 |
| 2026 | 27221 | PUD1 - PUD #1 | $16.05 | $16.05 | $0.00 | $0.00 | $16.05 | $16.05 |
| 2026 | 27221 | HD2 - HOSP DIST #2 | $14.39 | $14.39 | $0.00 | $0.00 | $14.39 | $14.39 |
| 2026 | 27221 | SD50 - SCHOOL DIST #50 | $488.96 | $488.93 | $0.00 | $0.00 | $488.96 | $488.93 |
| 2026 | 27221 | FD1 - FIRE DISTRICT #1 | $326.76 | $326.75 | $0.00 | $0.00 | $326.76 | $326.75 |
| 2026 | 27221 | EMS1 - FIRE DIST #1 EMS | $125.63 | $125.63 | $0.00 | $0.00 | $125.63 | $125.63 |
| 2026 | 27221 | JCCD - JC Conservation District | $2.55 | $2.55 | $0.00 | $0.00 | $2.55 | $2.55 |
| 2026 | 27221 | NWA - Noxious Weed Assessment | $2.98 | $2.97 | $0.00 | $0.00 | $2.98 | $2.97 |
| 2026 | 27221 | TOTAL: | $2298.56 | $2298.47 | $0.00 | $0.00 | $2298.56 | $2298.47 |
|
| 2026 | 27221 | $2298.56 | $2298.47 | $0.00 | $0.00 | $2298.56 | $2298.47 |
Statement Details |
| 2025 | 27293 | STATE - STATE LEVY (SCHOOL) | $504.08 | $504.07 | $0.00 | $0.00 | $1008.15 | $0.00 |
| 2025 | 27293 | COUNTY - COUNTY LEVIES (CE, DD, VET, MH) | $198.23 | $198.21 | $0.00 | $0.00 | $396.44 | $0.00 |
| 2025 | 27293 | CONSERVE - CONSERVATION FUTURES | $5.95 | $5.94 | $0.00 | $0.00 | $11.89 | $0.00 |
| 2025 | 27293 | CITYPT - CITY OF PT | $285.86 | $285.86 | $0.00 | $0.00 | $571.72 | $0.00 |
| 2025 | 27293 | PORTPT - PORT DISTRICT | $80.89 | $80.88 | $0.00 | $0.00 | $161.77 | $0.00 |
| 2025 | 27293 | PUD1 - PUD #1 | $12.97 | $12.97 | $0.00 | $0.00 | $25.94 | $0.00 |
| 2025 | 27293 | HD2 - HOSP DIST #2 | $11.57 | $11.56 | $0.00 | $0.00 | $23.13 | $0.00 |
| 2025 | 27293 | SD50 - SCHOOL DIST #50 | $368.40 | $368.39 | $0.00 | $0.00 | $736.79 | $0.00 |
| 2025 | 27293 | FD1 - FIRE DISTRICT #1 | $261.58 | $261.57 | $0.00 | $0.00 | $523.15 | $0.00 |
| 2025 | 27293 | EMS1 - FIRE DIST #1 EMS | $100.61 | $100.61 | $0.00 | $0.00 | $201.22 | $0.00 |
| 2025 | 27293 | JCCD - JC Conservation District | $2.55 | $2.55 | $0.00 | $0.00 | $5.10 | $0.00 |
| 2025 | 27293 | NWA - Noxious Weed Assessment | $2.15 | $2.15 | $0.00 | $0.00 | $4.30 | $0.00 |
| 2025 | 27293 | TOTAL: | $1834.84 | $1834.76 | $0.00 | $0.00 | $3669.60 | $0.00 |
|
| 2025 | 27293 | $1834.84 | $1834.76 | $0.00 | $0.00 | $3669.60 | $0.00 |
Statement Details |
| 2024 | 27351 | STATE - STATE LEVY (SCHOOL) | $919.74 | $0.00 | $0.00 | $0.00 | $919.74 | $0.00 |
| 2024 | 27351 | COUNTY - COUNTY LEVIES (CE, DD, VET, MH) | $393.56 | $0.00 | $0.00 | $0.00 | $393.56 | $0.00 |
| 2024 | 27351 | CONSERVE - CONSERVATION FUTURES | $11.80 | $0.00 | $0.00 | $0.00 | $11.80 | $0.00 |
| 2024 | 27351 | CITYPT - CITY OF PT | $562.35 | $0.00 | $0.00 | $0.00 | $562.35 | $0.00 |
| 2024 | 27351 | PORTPT - PORT DISTRICT | $162.56 | $0.00 | $0.00 | $0.00 | $162.56 | $0.00 |
| 2024 | 27351 | PUD1 - PUD #1 | $25.85 | $0.00 | $0.00 | $0.00 | $25.85 | $0.00 |
| 2024 | 27351 | HD2 - HOSP DIST #2 | $22.96 | $0.00 | $0.00 | $0.00 | $22.96 | $0.00 |
| 2024 | 27351 | SD50 - SCHOOL DIST #50 | $744.12 | $0.00 | $0.00 | $0.00 | $744.12 | $0.00 |
| 2024 | 27351 | FD1 - FIRE DISTRICT #1 | $520.39 | $0.00 | $0.00 | $0.00 | $520.39 | $0.00 |
| 2024 | 27351 | EMS1 - FIRE DIST #1 EMS | $198.77 | $0.00 | $0.00 | $0.00 | $198.77 | $0.00 |
| 2024 | 27351 | JCCD - JC Conservation District | $5.10 | $0.00 | $0.00 | $0.00 | $5.10 | $0.00 |
| 2024 | 27351 | NWA - Noxious Weed Assessment | $4.30 | $0.00 | $0.00 | $0.00 | $4.30 | $0.00 |
| 2024 | 27351 | TOTAL: | $3571.50 | $0.00 | $0.00 | $0.00 | $3571.50 | $0.00 |
|
| 2024 | 27351 | $3571.50 | $0.00 | $0.00 | $0.00 | $3571.50 | $0.00 |
Statement Details |
| 2023 | 27393 | STATE - STATE LEVY (SCHOOL) | $441.62 | $441.60 | $0.00 | $0.00 | $883.22 | $0.00 |
| 2023 | 27393 | COUNTY - COUNTY LEVIES (CE, DD, VET, MH) | $192.72 | $192.69 | $0.00 | $0.00 | $385.41 | $0.00 |
| 2023 | 27393 | CONSERVE - CONSERVATION FUTURES | $5.78 | $5.78 | $0.00 | $0.00 | $11.56 | $0.00 |
| 2023 | 27393 | CITYPT - CITY OF PT | $272.36 | $272.35 | $0.00 | $0.00 | $544.71 | $0.00 |
| 2023 | 27393 | PORTPT - PORT DISTRICT | $81.19 | $81.17 | $0.00 | $0.00 | $162.36 | $0.00 |
| 2023 | 27393 | PUD1 - PUD #1 | $12.78 | $12.77 | $0.00 | $0.00 | $25.55 | $0.00 |
| 2023 | 27393 | HD2 - HOSP DIST #2 | $11.25 | $11.24 | $0.00 | $0.00 | $22.49 | $0.00 |
| 2023 | 27393 | SD50 - SCHOOL DIST #50 | $350.43 | $350.41 | $0.00 | $0.00 | $700.84 | $0.00 |
| 2023 | 27393 | FD1 - FIRE DISTRICT #1 | $158.75 | $158.75 | $0.00 | $0.00 | $317.50 | $0.00 |
| 2023 | 27393 | EMS1 - FIRE DIST #1 EMS | $67.53 | $67.53 | $0.00 | $0.00 | $135.06 | $0.00 |
| 2023 | 27393 | JCCD - JC Conservation District | $2.55 | $2.55 | $0.00 | $0.00 | $5.10 | $0.00 |
| 2023 | 27393 | NWA - Noxious Weed Assessment | $2.15 | $2.15 | $0.00 | $0.00 | $4.30 | $0.00 |
| 2023 | 27393 | TOTAL: | $1599.11 | $1598.99 | $0.00 | $0.00 | $3198.10 | $0.00 |
|
| 2023 | 27393 | $1599.11 | $1598.99 | $0.00 | $0.00 | $3198.10 | $0.00 |
Values
| (+) Improvement Homesite Value: | + | $0 | |
| (+) Improvement Non-Homesite Value: | + | $351,645 | |
| (+) Land Homesite Value: | + | $0 | |
| (+) Land Non-Homesite Value: | + | $185,250 | |
| (+) Curr Use (HS): | + | $0 | $0 |
| (+) Curr Use (NHS): | + | $0 | $0 |
| | | -------------------------- | |
| (=) Market Value: | = | $536,895 | |
| (–) Productivity Loss: | – | $0 | |
| | | -------------------------- | |
| (=) Subtotal: | = | $536,895 | |
| (+) Senior Appraised Value: | + | $0 | |
| (+) Non-Senior Appraised Value: | + | $536,895 | |
| | | -------------------------- | |
| (=) Total Appraised Value: | = | $536,895 | |
| (–) Senior Exemption Loss: | – | $0 | |
| (–) Exemption Loss: | – | $0 | |
| | | -------------------------- | |
| (=) Taxable Value: | = | $536,895 | |
Taxing Jurisdiction
| Owner: | BETH L JULEN | | |
| % Ownership: | 100.0000000000% | | |
| Total Value: | $536,895 | | |
| Tax Area: | 0110 - C-50F1E1H2 |
| CE | COUNTY CURRENT EXPENSE | 0.9034619479 | $536,895 | $536,895 | $485.06 | | |
| CNTYDD | DEVELOPMENTAL DISABILITIES | 0.0052121823 | $536,895 | $536,895 | $2.80 | | |
| CNTYVET | VETERANS RELIEF | 0.0052777810 | $536,895 | $536,895 | $2.83 | | |
| MENTAL | MENTAL HEALTH | 0.0052121823 | $536,895 | $536,895 | $2.80 | | |
| PTGEN | CITY OF PT GENERAL | 0.8551967795 | $536,895 | $536,895 | $459.15 | | |
| PTLLL | CITY OF PT - LIBRARY LID LIFT | 0.4010114288 | $536,895 | $536,895 | $215.30 | | |
| PTMVBOND | CITY OF PT MV BOND | 0.0484717981 | $536,895 | $536,895 | $26.02 | | |
| HOSP2CASH | HOSP DIST #2 GENERAL | 0.0536075306 | $536,895 | $536,895 | $28.78 | | |
| SCH50BOND | SCHOOL DIST #50 BOND 2016 | 0.5377451389 | $536,895 | $536,895 | $288.71 | | |
| SCH50CP | SCHOOL DIST #50 CAP PROJ | 0.4573475088 | $536,895 | $536,895 | $245.55 | | |
| SCH50MO | SCHOOL DIST #50 EP & O | 0.8262822886 | $536,895 | $536,895 | $443.63 | | |
| CONSERVE | CONSERVATION FUTURES | 0.0275621078 | $536,895 | $536,895 | $14.80 | | |
| EMS1 | FIRE DIST #1 EMS | 0.4679948282 | $536,895 | $536,895 | $251.26 | | |
| FD1 | FIRE DIST #1 GENERAL | 1.2171942929 | $536,895 | $536,895 | $653.51 | | |
| PORTPT | PORT OF PT GENERAL | 0.1134941229 | $536,895 | $536,895 | $60.93 | | |
| PORTPTIDD | PORT OF PT IDD 2019 | 0.2577346692 | $536,895 | $536,895 | $138.38 | | |
| PUD1 | PUD #1 GENERAL | 0.0597888892 | $536,895 | $536,895 | $32.10 | | |
| STATE | STATE SCHOOL PART 1 | 1.4940692947 | $536,895 | $536,895 | $802.16 | | |
| STATE2 | STATE SCHOOL PART 2 | 0.8050170049 | $536,895 | $536,895 | $432.21 | | |
| | Total Tax Rate: | 8.5416817766 | | | | | |
| | | | | Taxes w/Current Exemptions: | $4,585.98 | | |
| | | | | Taxes w/o Exemptions: | $4,585.98 | | |
Improvement / Building
| Improvement #1: | Residential Bldg | State Code: | 11 | 1648.0 sqft | Value: | $351,645 |
| Bathrooms (#): | 2 (FULL) | Bedrooms (#): | 3 | | Exterior Wall: | SI/ST | Fireplace: | SIN 1-GOOD | | Floor Construction: | FRAME | Foundation: | CONPR | | Heating/Cooling: | F/A | Inside Verify: | YES-FIX | | Roof Cover: | COMP |   |   |
|
| | Type | Description | Class CD | Sub Class CD | Year Built | Area |
| | MA | Main Area | 3+ | 1S | 1953 | 1648.0 |
| | HCPOR | House Concrete Porch | 3 | * | 1953 | 69.0 |
| | GATT | House Attached Garage | 3 | 1S | 1953 | 400.0 |
Sketch
Property Image
Land
| 1 | 6300-1175L | | 0.0000 | 0.00 | 0.00 | 0.00 | 1.00 | $165,000 | $0 |
| 2 | 6300-1175L | | 0.0000 | 0.00 | 0.00 | 0.00 | 1.00 | $20,250 | $0 |
Roll Value History
| 2026 | N/A | N/A | N/A | N/A | N/A |
| 2025 | $351,645 | $185,250 | $0 | $536,895 | $536,895 |
| 2024 | $273,555 | $146,850 | $0 | $420,405 | $420,405 |
| 2023 | $262,613 | $134,925 | $0 | $397,538 | $397,538 |
| 2022 | $251,671 | $123,500 | $0 | $375,171 | $375,171 |
Deed and Sales History
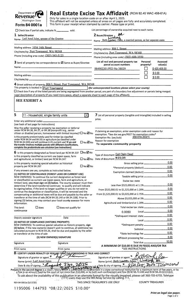
| 1 | 08/21/2025 | QCD | Quit Claim Deed | LEIF A JULEN | BETH L JULEN | | | | 144793 | |
| 2 | 08/19/2025 | SWD | Statutory Warranty Deed | ELLA SANDVIG | BETH L JULEN | | | $615,000.00 | 144790 | |
Payout Agreement
| No payout information available.. |