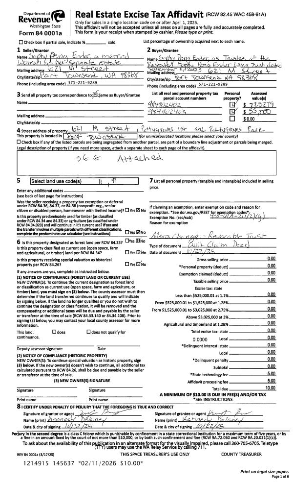
Property
Account |
| Property ID: | 38043 | Abbreviated Legal Description: | PETTYGROVE'S 1ST ADDITION BLK 24 LOTS 6 & 8(N1/2 OF EA) |
| Parcel # / Geo ID: | 984902402 | Agent Code: | |
| Type: | Real | | |
| Tax Area: | 0110 - C-50F1E1H2 | Land Use Code | 11 |
| Open Space: | N | DFL | N |
| Historic Property: | N | Remodel Property: | N |
| Multi-Family Redevelopment: | N | | |
| Township: | 30N | Section: | 2 |
| Range: | 1W |
Location |
| Address: | 621 M ST PORT TOWNSEND, WA 98368 | Mapsco: | 094/015 |
| Neighborhood: | PETTYGROVES 1ST & PETTYGROVES PARK | Map ID: | |
| Neighborhood CD: | 6300 |
Owner |
| Name: | SOPHY P ENDER LIVING TRUST | Owner ID: | 114050 |
| Mailing Address: | SOPHY P ENDER TRUSTEE 621 M ST PORT TOWNSEND, WA 98368-4124 | % Ownership: | 100.0000000000% |
| | | Exemptions: | |
Pay Tax Due
Select the appropriate checkbox next to the year to be paid. Multiple years may be selected.
*Convenience Fee not included
Taxes and Assessment Details
Property Tax Information as of
03/12/2026
Click on "Statement Details" to expand or collapse a tax statement.
* Please enter a valid date ** Please enter a valid date *
Statement Details |
| 2026 | 27234 | STATE - STATE LEVY (SCHOOL) | $833.74 | $833.74 | $0.00 | $0.00 | $0.00 | $1667.48 |
| 2026 | 27234 | COUNTY - COUNTY LEVIES (CE, DD, VET, MH) | $333.33 | $333.32 | $0.00 | $0.00 | $0.00 | $666.65 |
| 2026 | 27234 | CONSERVE - CONSERVATION FUTURES | $10.00 | $9.99 | $0.00 | $0.00 | $0.00 | $19.99 |
| 2026 | 27234 | CITYPT - CITY OF PT | $473.14 | $473.13 | $0.00 | $0.00 | $0.00 | $946.27 |
| 2026 | 27234 | PORTPT - PORT DISTRICT | $134.63 | $134.61 | $0.00 | $0.00 | $0.00 | $269.24 |
| 2026 | 27234 | PUD1 - PUD #1 | $21.68 | $21.68 | $0.00 | $0.00 | $0.00 | $43.36 |
| 2026 | 27234 | HD2 - HOSP DIST #2 | $19.44 | $19.44 | $0.00 | $0.00 | $0.00 | $38.88 |
| 2026 | 27234 | SD50 - SCHOOL DIST #50 | $660.51 | $660.50 | $0.00 | $0.00 | $0.00 | $1321.01 |
| 2026 | 27234 | FD1 - FIRE DISTRICT #1 | $441.41 | $441.40 | $0.00 | $0.00 | $0.00 | $882.81 |
| 2026 | 27234 | EMS1 - FIRE DIST #1 EMS | $169.72 | $169.71 | $0.00 | $0.00 | $0.00 | $339.43 |
| 2026 | 27234 | JCCD - JC Conservation District | $2.55 | $2.55 | $0.00 | $0.00 | $0.00 | $5.10 |
| 2026 | 27234 | NWA - Noxious Weed Assessment | $2.98 | $2.97 | $0.00 | $0.00 | $0.00 | $5.95 |
| 2026 | 27234 | TOTAL: | $3103.13 | $3103.04 | $0.00 | $0.00 | $0.00 | $6206.17 |
|
| 2026 | 27234 | $3103.13 | $3103.04 | $0.00 | $0.00 | $0.00 | $6206.17 |
Statement Details |
| 2025 | 27306 | STATE - STATE LEVY (SCHOOL) | $792.55 | $792.53 | $0.00 | $0.00 | $1585.08 | $0.00 |
| 2025 | 27306 | COUNTY - COUNTY LEVIES (CE, DD, VET, MH) | $311.68 | $311.65 | $0.00 | $0.00 | $623.33 | $0.00 |
| 2025 | 27306 | CONSERVE - CONSERVATION FUTURES | $9.35 | $9.34 | $0.00 | $0.00 | $18.69 | $0.00 |
| 2025 | 27306 | CITYPT - CITY OF PT | $449.46 | $449.44 | $0.00 | $0.00 | $898.90 | $0.00 |
| 2025 | 27306 | PORTPT - PORT DISTRICT | $127.19 | $127.17 | $0.00 | $0.00 | $254.36 | $0.00 |
| 2025 | 27306 | PUD1 - PUD #1 | $20.40 | $20.39 | $0.00 | $0.00 | $40.79 | $0.00 |
| 2025 | 27306 | HD2 - HOSP DIST #2 | $18.19 | $18.18 | $0.00 | $0.00 | $36.37 | $0.00 |
| 2025 | 27306 | SD50 - SCHOOL DIST #50 | $579.22 | $579.21 | $0.00 | $0.00 | $1158.43 | $0.00 |
| 2025 | 27306 | FD1 - FIRE DISTRICT #1 | $411.28 | $411.27 | $0.00 | $0.00 | $822.55 | $0.00 |
| 2025 | 27306 | EMS1 - FIRE DIST #1 EMS | $158.19 | $158.18 | $0.00 | $0.00 | $316.37 | $0.00 |
| 2025 | 27306 | JCCD - JC Conservation District | $2.55 | $2.55 | $0.00 | $0.00 | $5.10 | $0.00 |
| 2025 | 27306 | NWA - Noxious Weed Assessment | $2.15 | $2.15 | $0.00 | $0.00 | $4.30 | $0.00 |
| 2025 | 27306 | TOTAL: | $2882.21 | $2882.06 | $0.00 | $0.00 | $5764.27 | $0.00 |
|
| 2025 | 27306 | $2882.21 | $2882.06 | $0.00 | $0.00 | $5764.27 | $0.00 |
Statement Details |
| 2024 | 27364 | STATE - STATE LEVY (SCHOOL) | $726.95 | $726.93 | $0.00 | $0.00 | $1453.88 | $0.00 |
| 2024 | 27364 | COUNTY - COUNTY LEVIES (CE, DD, VET, MH) | $311.08 | $311.05 | $0.00 | $0.00 | $622.13 | $0.00 |
| 2024 | 27364 | CONSERVE - CONSERVATION FUTURES | $9.33 | $9.33 | $0.00 | $0.00 | $18.66 | $0.00 |
| 2024 | 27364 | CITYPT - CITY OF PT | $444.48 | $444.46 | $0.00 | $0.00 | $888.94 | $0.00 |
| 2024 | 27364 | PORTPT - PORT DISTRICT | $128.49 | $128.48 | $0.00 | $0.00 | $256.97 | $0.00 |
| 2024 | 27364 | PUD1 - PUD #1 | $20.43 | $20.43 | $0.00 | $0.00 | $40.86 | $0.00 |
| 2024 | 27364 | HD2 - HOSP DIST #2 | $18.15 | $18.15 | $0.00 | $0.00 | $36.30 | $0.00 |
| 2024 | 27364 | SD50 - SCHOOL DIST #50 | $588.14 | $588.11 | $0.00 | $0.00 | $1176.25 | $0.00 |
| 2024 | 27364 | FD1 - FIRE DISTRICT #1 | $411.30 | $411.30 | $0.00 | $0.00 | $822.60 | $0.00 |
| 2024 | 27364 | EMS1 - FIRE DIST #1 EMS | $157.10 | $157.10 | $0.00 | $0.00 | $314.20 | $0.00 |
| 2024 | 27364 | JCCD - JC Conservation District | $2.55 | $2.55 | $0.00 | $0.00 | $5.10 | $0.00 |
| 2024 | 27364 | NWA - Noxious Weed Assessment | $2.15 | $2.15 | $0.00 | $0.00 | $4.30 | $0.00 |
| 2024 | 27364 | TOTAL: | $2820.15 | $2820.04 | $0.00 | $0.00 | $5640.19 | $0.00 |
|
| 2024 | 27364 | $2820.15 | $2820.04 | $0.00 | $0.00 | $5640.19 | $0.00 |
Statement Details |
| 2023 | 27406 | STATE - STATE LEVY (SCHOOL) | $701.92 | $701.90 | $0.00 | $0.00 | $1403.82 | $0.00 |
| 2023 | 27406 | COUNTY - COUNTY LEVIES (CE, DD, VET, MH) | $306.30 | $306.29 | $0.00 | $0.00 | $612.59 | $0.00 |
| 2023 | 27406 | CONSERVE - CONSERVATION FUTURES | $9.19 | $9.18 | $0.00 | $0.00 | $18.37 | $0.00 |
| 2023 | 27406 | CITYPT - CITY OF PT | $432.91 | $432.88 | $0.00 | $0.00 | $865.79 | $0.00 |
| 2023 | 27406 | PORTPT - PORT DISTRICT | $129.03 | $129.03 | $0.00 | $0.00 | $258.06 | $0.00 |
| 2023 | 27406 | PUD1 - PUD #1 | $20.31 | $20.30 | $0.00 | $0.00 | $40.61 | $0.00 |
| 2023 | 27406 | HD2 - HOSP DIST #2 | $17.87 | $17.87 | $0.00 | $0.00 | $35.74 | $0.00 |
| 2023 | 27406 | SD50 - SCHOOL DIST #50 | $556.99 | $556.97 | $0.00 | $0.00 | $1113.96 | $0.00 |
| 2023 | 27406 | FD1 - FIRE DISTRICT #1 | $252.33 | $252.32 | $0.00 | $0.00 | $504.65 | $0.00 |
| 2023 | 27406 | EMS1 - FIRE DIST #1 EMS | $107.34 | $107.33 | $0.00 | $0.00 | $214.67 | $0.00 |
| 2023 | 27406 | JCCD - JC Conservation District | $2.55 | $2.55 | $0.00 | $0.00 | $5.10 | $0.00 |
| 2023 | 27406 | NWA - Noxious Weed Assessment | $2.15 | $2.15 | $0.00 | $0.00 | $4.30 | $0.00 |
| 2023 | 27406 | TOTAL: | $2538.89 | $2538.77 | $0.00 | $0.00 | $5077.66 | $0.00 |
|
| 2023 | 27406 | $2538.89 | $2538.77 | $0.00 | $0.00 | $5077.66 | $0.00 |
Values
| (+) Improvement Homesite Value: | + | $0 | |
| (+) Improvement Non-Homesite Value: | + | $560,279 | |
| (+) Land Homesite Value: | + | $0 | |
| (+) Land Non-Homesite Value: | + | $165,000 | |
| (+) Curr Use (HS): | + | $0 | $0 |
| (+) Curr Use (NHS): | + | $0 | $0 |
| | | -------------------------- | |
| (=) Market Value: | = | $725,279 | |
| (–) Productivity Loss: | – | $0 | |
| | | -------------------------- | |
| (=) Subtotal: | = | $725,279 | |
| (+) Senior Appraised Value: | + | $0 | |
| (+) Non-Senior Appraised Value: | + | $725,279 | |
| | | -------------------------- | |
| (=) Total Appraised Value: | = | $725,279 | |
| (–) Senior Exemption Loss: | – | $0 | |
| (–) Exemption Loss: | – | $0 | |
| | | -------------------------- | |
| (=) Taxable Value: | = | $725,279 | |
Taxing Jurisdiction
| | Total Tax Rate: | N/A | | | | | |
| | | | | Taxes w/Current Exemptions: | N/A | | |
| | | | | Taxes w/o Exemptions: | N/A | | |
Improvement / Building
| Improvement #1: | Residential Bldg | State Code: | 11 | 1344.0 sqft | Value: | $560,279 |
| Bathrooms (#): | 3 (FULL) | Bedrooms (#): | 3 | | Exterior Wall: | SI/ST | Fireplace: | SIN 2-AVG | | Floor Construction: | FRAME | Foundation: | CONPR | | Heating/Cooling: | ELBB | Roof Cover: | COMP |
|
| | Type | Description | Class CD | Sub Class CD | Year Built | Area |
| | MA | Main Area | 5 | 15SF | 1990 | 896.0 |
| | MA2 | Second Floor Main Area | 5 | 15SF | 1990 | 448.0 |
| | HDECK | House Deck | 4 | * | 1990 | 480.0 |
| | GBSMT | Basement Garage | 4 | 15SF | 1990 | 616.0 |
| | BSMTF | House basement finished | 5 | * | 1990 | 448.0 |
Sketch
Property Image
Land
| 1 | 6300-1175L | | 0.0000 | 0.00 | 0.00 | 0.00 | 1.00 | $165,000 | $0 |
Roll Value History
| 2026 | N/A | N/A | N/A | N/A | N/A |
| 2025 | $560,279 | $165,000 | $0 | $725,279 | $725,279 |
| 2024 | $495,996 | $165,000 | $0 | $660,996 | $660,996 |
| 2023 | $476,156 | $152,250 | $0 | $628,406 | $628,406 |
| 2022 | $456,316 | $140,000 | $0 | $596,316 | $596,316 |
Deed and Sales History
| 1 | 10/22/2025 | QCD | Quit Claim Deed | SOPHY P ENDER | SOPHY P ENDER LIVING TRUST | | | | 145637 | |
| 2 | 09/18/2023 | QCD | Quit Claim Deed | FREDERICK T ENDER | SOPHY P ENDER | | | | 141649 | |
| 3 | 10/02/2023 | SWD | Statutory Warranty Deed | JOSEPH C YOUNG | SOPHY P ENDER | | | $772,000.00 | 141648 | |
|   | |
| 4 | 10/24/2011 | SWD | Statutory Warranty Deed | SCOULLER, JOHN/AMBER | YOUNG, JOSEPH C/NANCY O'LALLY | 0 | 0 | $315,000.00 | 116725 | 0 |
| 5 | 12/22/2006 | SWD | Statutory Warranty Deed | GILMORE, TODD & LANTZ, YV | SCOULLER, JOHN & AMBER | 0 | 0 | $338,000.00 | 108344 | 0 |
| 6 | 05/05/2005 | SWD | Statutory Warranty Deed | MC MONIGLE, SARAH E | GILMORE, TODD/LANTZ, YVETTE | | | $299,000.00 | 103459 | 0 |
| 7 | 07/06/1995 | QCD | Quit Claim Deed | PILLING, JOHN | MCMONIGLE, SARAH E | 0 | 0 | $0.00 | 77296 | 0 |
Payout Agreement
| No payout information available.. |