Property
Account |
| Property ID: | 38076 | Abbreviated Legal Description: | PETTYGROVE'S 1ST ADDITION BLK 34 LOTS 1 & 3 |
| Parcel # / Geo ID: | 984903401 | Agent Code: | |
| Type: | Real | | |
| Tax Area: | 0110 - C-50F1E1H2 | Land Use Code | 11 |
| Open Space: | N | DFL | N |
| Historic Property: | N | Remodel Property: | N |
| Multi-Family Redevelopment: | N | | |
| Township: | 30N | Section: | 2 |
| Range: | 1W |
Location |
| Address: | 1411 WILLOW ST PORT TOWNSEND, WA 98368 | Mapsco: | 094/078 |
| Neighborhood: | PETTYGROVES 1ST & PETTYGROVES PARK | Map ID: | |
| Neighborhood CD: | 6300 |
Owner |
| Name: | JOAN VANCE | Owner ID: | 84527 |
| Mailing Address: | 1411 WILLOW ST PORT TOWNSEND, WA 98368-4114 | % Ownership: | 100.0000000000% |
| | | Exemptions: | |
Pay Tax Due
Select the appropriate checkbox next to the year to be paid. Multiple years may be selected.
*Convenience Fee not included
Taxes and Assessment Details
Property Tax Information as of
03/10/2026
Click on "Statement Details" to expand or collapse a tax statement.
* Please enter a valid date ** Please enter a valid date *
Statement Details |
| 2026 | 27267 | STATE - STATE LEVY (SCHOOL) | $817.28 | $817.26 | $0.00 | $0.00 | $0.00 | $1634.54 |
| 2026 | 27267 | COUNTY - COUNTY LEVIES (CE, DD, VET, MH) | $326.76 | $326.73 | $0.00 | $0.00 | $0.00 | $653.49 |
| 2026 | 27267 | CONSERVE - CONSERVATION FUTURES | $9.80 | $9.80 | $0.00 | $0.00 | $0.00 | $19.60 |
| 2026 | 27267 | CITYPT - CITY OF PT | $463.78 | $463.78 | $0.00 | $0.00 | $0.00 | $927.56 |
| 2026 | 27267 | PORTPT - PORT DISTRICT | $131.97 | $131.96 | $0.00 | $0.00 | $0.00 | $263.93 |
| 2026 | 27267 | PUD1 - PUD #1 | $21.26 | $21.25 | $0.00 | $0.00 | $0.00 | $42.51 |
| 2026 | 27267 | HD2 - HOSP DIST #2 | $19.06 | $19.05 | $0.00 | $0.00 | $0.00 | $38.11 |
| 2026 | 27267 | SD50 - SCHOOL DIST #50 | $647.47 | $647.44 | $0.00 | $0.00 | $0.00 | $1294.91 |
| 2026 | 27267 | FD1 - FIRE DISTRICT #1 | $432.68 | $432.68 | $0.00 | $0.00 | $0.00 | $865.36 |
| 2026 | 27267 | EMS1 - FIRE DIST #1 EMS | $166.36 | $166.36 | $0.00 | $0.00 | $0.00 | $332.72 |
| 2026 | 27267 | JCCD - JC Conservation District | $2.55 | $2.55 | $0.00 | $0.00 | $0.00 | $5.10 |
| 2026 | 27267 | NWA - Noxious Weed Assessment | $2.98 | $2.97 | $0.00 | $0.00 | $0.00 | $5.95 |
| 2026 | 27267 | TOTAL: | $3041.95 | $3041.83 | $0.00 | $0.00 | $0.00 | $6083.78 |
|
| 2026 | 27267 | $3041.95 | $3041.83 | $0.00 | $0.00 | $0.00 | $6083.78 |
Statement Details |
| 2025 | 27339 | STATE - STATE LEVY (SCHOOL) | $765.38 | $765.37 | $0.00 | $0.00 | $1530.75 | $0.00 |
| 2025 | 27339 | COUNTY - COUNTY LEVIES (CE, DD, VET, MH) | $301.00 | $300.97 | $0.00 | $0.00 | $601.97 | $0.00 |
| 2025 | 27339 | CONSERVE - CONSERVATION FUTURES | $9.03 | $9.02 | $0.00 | $0.00 | $18.05 | $0.00 |
| 2025 | 27339 | CITYPT - CITY OF PT | $434.05 | $434.03 | $0.00 | $0.00 | $868.08 | $0.00 |
| 2025 | 27339 | PORTPT - PORT DISTRICT | $122.83 | $122.81 | $0.00 | $0.00 | $245.64 | $0.00 |
| 2025 | 27339 | PUD1 - PUD #1 | $19.70 | $19.69 | $0.00 | $0.00 | $39.39 | $0.00 |
| 2025 | 27339 | HD2 - HOSP DIST #2 | $17.56 | $17.56 | $0.00 | $0.00 | $35.12 | $0.00 |
| 2025 | 27339 | SD50 - SCHOOL DIST #50 | $559.37 | $559.35 | $0.00 | $0.00 | $1118.72 | $0.00 |
| 2025 | 27339 | FD1 - FIRE DISTRICT #1 | $397.18 | $397.17 | $0.00 | $0.00 | $794.35 | $0.00 |
| 2025 | 27339 | EMS1 - FIRE DIST #1 EMS | $152.77 | $152.76 | $0.00 | $0.00 | $305.53 | $0.00 |
| 2025 | 27339 | JCCD - JC Conservation District | $2.55 | $2.55 | $0.00 | $0.00 | $5.10 | $0.00 |
| 2025 | 27339 | NWA - Noxious Weed Assessment | $2.15 | $2.15 | $0.00 | $0.00 | $4.30 | $0.00 |
| 2025 | 27339 | TOTAL: | $2783.57 | $2783.43 | $0.00 | $0.00 | $5567.00 | $0.00 |
|
| 2025 | 27339 | $2783.57 | $2783.43 | $0.00 | $0.00 | $5567.00 | $0.00 |
Statement Details |
| 2024 | 27397 | STATE - STATE LEVY (SCHOOL) | $701.36 | $701.35 | $0.00 | $0.00 | $1402.71 | $0.00 |
| 2024 | 27397 | COUNTY - COUNTY LEVIES (CE, DD, VET, MH) | $300.14 | $300.10 | $0.00 | $0.00 | $600.24 | $0.00 |
| 2024 | 27397 | CONSERVE - CONSERVATION FUTURES | $9.00 | $9.00 | $0.00 | $0.00 | $18.00 | $0.00 |
| 2024 | 27397 | CITYPT - CITY OF PT | $428.84 | $428.81 | $0.00 | $0.00 | $857.65 | $0.00 |
| 2024 | 27397 | PORTPT - PORT DISTRICT | $123.97 | $123.95 | $0.00 | $0.00 | $247.92 | $0.00 |
| 2024 | 27397 | PUD1 - PUD #1 | $19.72 | $19.71 | $0.00 | $0.00 | $39.43 | $0.00 |
| 2024 | 27397 | HD2 - HOSP DIST #2 | $17.51 | $17.51 | $0.00 | $0.00 | $35.02 | $0.00 |
| 2024 | 27397 | SD50 - SCHOOL DIST #50 | $567.44 | $567.43 | $0.00 | $0.00 | $1134.87 | $0.00 |
| 2024 | 27397 | FD1 - FIRE DISTRICT #1 | $396.83 | $396.82 | $0.00 | $0.00 | $793.65 | $0.00 |
| 2024 | 27397 | EMS1 - FIRE DIST #1 EMS | $151.58 | $151.57 | $0.00 | $0.00 | $303.15 | $0.00 |
| 2024 | 27397 | JCCD - JC Conservation District | $2.55 | $2.55 | $0.00 | $0.00 | $5.10 | $0.00 |
| 2024 | 27397 | NWA - Noxious Weed Assessment | $2.15 | $2.15 | $0.00 | $0.00 | $4.30 | $0.00 |
| 2024 | 27397 | TOTAL: | $2721.09 | $2720.95 | $0.00 | $0.00 | $5442.04 | $0.00 |
|
| 2024 | 27397 | $2721.09 | $2720.95 | $0.00 | $0.00 | $5442.04 | $0.00 |
Statement Details |
| 2023 | 27439 | STATE - STATE LEVY (SCHOOL) | $676.53 | $676.52 | $0.00 | $0.00 | $1353.05 | $0.00 |
| 2023 | 27439 | COUNTY - COUNTY LEVIES (CE, DD, VET, MH) | $295.23 | $295.19 | $0.00 | $0.00 | $590.42 | $0.00 |
| 2023 | 27439 | CONSERVE - CONSERVATION FUTURES | $8.85 | $8.85 | $0.00 | $0.00 | $17.70 | $0.00 |
| 2023 | 27439 | CITYPT - CITY OF PT | $417.24 | $417.23 | $0.00 | $0.00 | $834.47 | $0.00 |
| 2023 | 27439 | PORTPT - PORT DISTRICT | $124.36 | $124.36 | $0.00 | $0.00 | $248.72 | $0.00 |
| 2023 | 27439 | PUD1 - PUD #1 | $19.57 | $19.57 | $0.00 | $0.00 | $39.14 | $0.00 |
| 2023 | 27439 | HD2 - HOSP DIST #2 | $17.24 | $17.22 | $0.00 | $0.00 | $34.46 | $0.00 |
| 2023 | 27439 | SD50 - SCHOOL DIST #50 | $536.85 | $536.82 | $0.00 | $0.00 | $1073.67 | $0.00 |
| 2023 | 27439 | FD1 - FIRE DISTRICT #1 | $243.20 | $243.20 | $0.00 | $0.00 | $486.40 | $0.00 |
| 2023 | 27439 | EMS1 - FIRE DIST #1 EMS | $103.45 | $103.45 | $0.00 | $0.00 | $206.90 | $0.00 |
| 2023 | 27439 | JCCD - JC Conservation District | $2.55 | $2.55 | $0.00 | $0.00 | $5.10 | $0.00 |
| 2023 | 27439 | NWA - Noxious Weed Assessment | $2.15 | $2.15 | $0.00 | $0.00 | $4.30 | $0.00 |
| 2023 | 27439 | TOTAL: | $2447.22 | $2447.11 | $0.00 | $0.00 | $4894.33 | $0.00 |
|
| 2023 | 27439 | $2447.22 | $2447.11 | $0.00 | $0.00 | $4894.33 | $0.00 |
Values
| (+) Improvement Homesite Value: | + | $0 | |
| (+) Improvement Non-Homesite Value: | + | $478,450 | |
| (+) Land Homesite Value: | + | $0 | |
| (+) Land Non-Homesite Value: | + | $232,500 | |
| (+) Curr Use (HS): | + | $0 | $0 |
| (+) Curr Use (NHS): | + | $0 | $0 |
| | | -------------------------- | |
| (=) Market Value: | = | $710,950 | |
| (–) Productivity Loss: | – | $0 | |
| | | -------------------------- | |
| (=) Subtotal: | = | $710,950 | |
| (+) Senior Appraised Value: | + | $0 | |
| (+) Non-Senior Appraised Value: | + | $710,950 | |
| | | -------------------------- | |
| (=) Total Appraised Value: | = | $710,950 | |
| (–) Senior Exemption Loss: | – | $0 | |
| (–) Exemption Loss: | – | $0 | |
| | | -------------------------- | |
| (=) Taxable Value: | = | $710,950 | |
Taxing Jurisdiction
| Owner: | JOAN VANCE | | |
| % Ownership: | 100.0000000000% | | |
| Total Value: | $710,950 | | |
| Tax Area: | 0110 - C-50F1E1H2 |
| CE | COUNTY CURRENT EXPENSE | 0.9034619479 | $710,950 | $710,950 | $642.32 | | |
| CNTYDD | DEVELOPMENTAL DISABILITIES | 0.0052121823 | $710,950 | $710,950 | $3.71 | | |
| CNTYVET | VETERANS RELIEF | 0.0052777810 | $710,950 | $710,950 | $3.75 | | |
| MENTAL | MENTAL HEALTH | 0.0052121823 | $710,950 | $710,950 | $3.71 | | |
| PTGEN | CITY OF PT GENERAL | 0.8551967795 | $710,950 | $710,950 | $608.00 | | |
| PTLLL | CITY OF PT - LIBRARY LID LIFT | 0.4010114288 | $710,950 | $710,950 | $285.10 | | |
| PTMVBOND | CITY OF PT MV BOND | 0.0484717981 | $710,950 | $710,950 | $34.46 | | |
| HOSP2CASH | HOSP DIST #2 GENERAL | 0.0536075306 | $710,950 | $710,950 | $38.11 | | |
| SCH50BOND | SCHOOL DIST #50 BOND 2016 | 0.5377451389 | $710,950 | $710,950 | $382.31 | | |
| SCH50CP | SCHOOL DIST #50 CAP PROJ | 0.4573475088 | $710,950 | $710,950 | $325.15 | | |
| SCH50MO | SCHOOL DIST #50 EP & O | 0.8262822886 | $710,950 | $710,950 | $587.45 | | |
| CONSERVE | CONSERVATION FUTURES | 0.0275621078 | $710,950 | $710,950 | $19.60 | | |
| EMS1 | FIRE DIST #1 EMS | 0.4679948282 | $710,950 | $710,950 | $332.72 | | |
| FD1 | FIRE DIST #1 GENERAL | 1.2171942929 | $710,950 | $710,950 | $865.36 | | |
| PORTPT | PORT OF PT GENERAL | 0.1134941229 | $710,950 | $710,950 | $80.69 | | |
| PORTPTIDD | PORT OF PT IDD 2019 | 0.2577346692 | $710,950 | $710,950 | $183.24 | | |
| PUD1 | PUD #1 GENERAL | 0.0597888892 | $710,950 | $710,950 | $42.51 | | |
| STATE | STATE SCHOOL PART 1 | 1.4940692947 | $710,950 | $710,950 | $1,062.21 | | |
| STATE2 | STATE SCHOOL PART 2 | 0.8050170049 | $710,950 | $710,950 | $572.33 | | |
| | Total Tax Rate: | 8.5416817766 | | | | | |
| | | | | Taxes w/Current Exemptions: | $6,072.73 | | |
| | | | | Taxes w/o Exemptions: | $6,072.73 | | |
Improvement / Building
| Improvement #1: | Residential Bldg | State Code: | 11 | 1638.0 sqft | Value: | $478,450 |
| Bathrooms (#): | 2 (FULL) | Bathrooms (#): | 1 (HALF) | | Bedrooms (#): | 3 | Exterior Wall: | SI/ST | | Fireplace: | DBL 2-AVG | Fireplace: | WD ST-GOOD | | Floor Construction: | FRAME | Foundation: | CONPR | | Heating/Cooling: | F/A | Inside Verify: | YES-FIX | | Roof Cover: | COMP |   |   |
|
| | Type | Description | Class CD | Sub Class CD | Year Built | Area |
| | MA | Main Area | 4- | 1S | 1966 | 1638.0 |
| | HCPOR | House Concrete Porch | 4 | * | 1966 | 125.0 |
| | HDECK | House Deck | 4 | * | 1966 | 246.0 |
| | GBSMT | Basement Garage | 3 | 1S | 1966 | 220.0 |
| | BSMTF | House basement finished | 3 | * | 1966 | 1158.0 |
| | SOLAR | Solar Panel | 3 | * | 1966 | 0.0 |
Sketch
Property Image
Land
| 1 | 6300-1175L | | 0.0000 | 0.00 | 0.00 | 0.00 | 1.00 | $165,000 | $0 |
| 2 | 6300-1175L | | 0.0000 | 0.00 | 0.00 | 0.00 | 1.00 | $67,500 | $0 |
Roll Value History
| 2026 | N/A | N/A | N/A | N/A | N/A |
| 2025 | $478,450 | $232,500 | $0 | $710,950 | $710,950 |
| 2024 | $407,335 | $231,000 | $0 | $638,335 | $638,335 |
| 2023 | $391,042 | $215,250 | $0 | $606,292 | $606,292 |
| 2022 | $374,748 | $200,000 | $0 | $574,748 | $574,748 |
Deed and Sales History
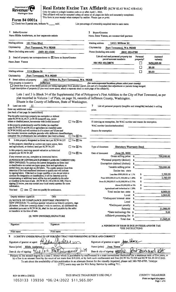
| 1 | 06/20/2022 | SWD | Statutory Warranty Deed | HILDA ANDERSON | JOAN VANCE | | | $700,000.00 | 139350 | |
| 2 | 04/29/2022 | LOP | Lack of Probate | BARRY ANDERSON | HILDA ANDERSON | | | | 0 | 653480 |
| 3 | 11/07/1996 | SWD | Statutory Warranty Deed | FUTHEY, JOHN/ERICKSON, JU | ANDERSON, BARRY/HILDA | 0 | 0 | $189,000.00 | 80813 | 0 |
| 4 | 04/01/1994 | SWD | Statutory Warranty Deed | CUNNINGHAM, ALLAN R | FUTHEY, JOHN/ERICKSON, JUDITH | 0 | 0 | $142,000.00 | 73891 | 0 |
Payout Agreement
| No payout information available.. |