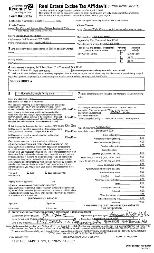
Property
Account |
| Property ID: | 38079 | Abbreviated Legal Description: | PETTYGROVE'S 1ST ADDITION BLK 34 LOTS 6 & 8 |
| Parcel # / Geo ID: | 984903404 | Agent Code: | |
| Type: | Real | | |
| Tax Area: | 0110 - C-50F1E1H2 | Land Use Code | 11 |
| Open Space: | N | DFL | N |
| Historic Property: | N | Remodel Property: | N |
| Multi-Family Redevelopment: | N | | |
| Township: | 30N | Section: | 2 |
| Range: | 1W |
Location |
| Address: | 1428 ROSE ST PORT TOWNSEND, WA 98368 | Mapsco: | 094/084 |
| Neighborhood: | PETTYGROVES 1ST & PETTYGROVES PARK | Map ID: | |
| Neighborhood CD: | 6300 |
Owner |
| Name: | SUZANNE WIGHT WILSON | Owner ID: | 113303 |
| Mailing Address: | 1428 ROSE ST PORT TOWNSEND, WA 98368-4028 | % Ownership: | 100.0000000000% |
| | | Exemptions: | |
Pay Tax Due
There is currently No Amount Due on this property.
Taxes and Assessment Details
Property Tax Information as of
03/12/2026
Click on "Statement Details" to expand or collapse a tax statement.
* Please enter a valid date ** Please enter a valid date *
Statement Details |
| | TOTAL: | $0.00 | $0.00 | $0.00 | $0.00 | $0.00 | $0.00 |
|
| | $0.00 | $0.00 | $0.00 | $0.00 | $0.00 | $0.00 |
Values
| (+) Improvement Homesite Value: | + | $0 | |
| (+) Improvement Non-Homesite Value: | + | $544,894 | |
| (+) Land Homesite Value: | + | $0 | |
| (+) Land Non-Homesite Value: | + | $262,500 | |
| (+) Curr Use (HS): | + | $0 | $0 |
| (+) Curr Use (NHS): | + | $0 | $0 |
| | | -------------------------- | |
| (=) Market Value: | = | $807,394 | |
| (–) Productivity Loss: | – | $0 | |
| | | -------------------------- | |
| (=) Subtotal: | = | $807,394 | |
| (+) Senior Appraised Value: | + | $0 | |
| (+) Non-Senior Appraised Value: | + | $807,394 | |
| | | -------------------------- | |
| (=) Total Appraised Value: | = | $807,394 | |
| (–) Senior Exemption Loss: | – | $0 | |
| (–) Exemption Loss: | – | $0 | |
| | | -------------------------- | |
| (=) Taxable Value: | = | $807,394 | |
Taxing Jurisdiction
| Owner: | SUZANNE WIGHT WILSON | | |
| % Ownership: | 100.0000000000% | | |
| Total Value: | $807,394 | | |
| Tax Area: | 0110 - C-50F1E1H2 |
| CE | COUNTY CURRENT EXPENSE | 0.9034619479 | $807,394 | $807,394 | $729.45 | | |
| CNTYDD | DEVELOPMENTAL DISABILITIES | 0.0052121823 | $807,394 | $807,394 | $4.21 | | |
| CNTYVET | VETERANS RELIEF | 0.0052777810 | $807,394 | $807,394 | $4.26 | | |
| MENTAL | MENTAL HEALTH | 0.0052121823 | $807,394 | $807,394 | $4.21 | | |
| PTGEN | CITY OF PT GENERAL | 0.8551967795 | $807,394 | $807,394 | $690.48 | | |
| PTLLL | CITY OF PT - LIBRARY LID LIFT | 0.4010114288 | $807,394 | $807,394 | $323.77 | | |
| PTMVBOND | CITY OF PT MV BOND | 0.0484717981 | $807,394 | $807,394 | $39.14 | | |
| HOSP2CASH | HOSP DIST #2 GENERAL | 0.0536075306 | $807,394 | $807,394 | $43.28 | | |
| SCH50BOND | SCHOOL DIST #50 BOND 2016 | 0.5377451389 | $807,394 | $807,394 | $434.17 | | |
| SCH50CP | SCHOOL DIST #50 CAP PROJ | 0.4573475088 | $807,394 | $807,394 | $369.26 | | |
| SCH50MO | SCHOOL DIST #50 EP & O | 0.8262822886 | $807,394 | $807,394 | $667.14 | | |
| CONSERVE | CONSERVATION FUTURES | 0.0275621078 | $807,394 | $807,394 | $22.25 | | |
| EMS1 | FIRE DIST #1 EMS | 0.4679948282 | $807,394 | $807,394 | $377.86 | | |
| FD1 | FIRE DIST #1 GENERAL | 1.2171942929 | $807,394 | $807,394 | $982.76 | | |
| PORTPT | PORT OF PT GENERAL | 0.1134941229 | $807,394 | $807,394 | $91.63 | | |
| PORTPTIDD | PORT OF PT IDD 2019 | 0.2577346692 | $807,394 | $807,394 | $208.09 | | |
| PUD1 | PUD #1 GENERAL | 0.0597888892 | $807,394 | $807,394 | $48.27 | | |
| STATE | STATE SCHOOL PART 1 | 1.4940692947 | $807,394 | $807,394 | $1,206.30 | | |
| STATE2 | STATE SCHOOL PART 2 | 0.8050170049 | $807,394 | $807,394 | $649.97 | | |
| | Total Tax Rate: | 8.5416817766 | | | | | |
| | | | | Taxes w/Current Exemptions: | $6,896.50 | | |
| | | | | Taxes w/o Exemptions: | $6,896.50 | | |
Improvement / Building
| Improvement #1: | Residential Bldg | State Code: | 11 | 1216.0 sqft | Value: | $544,894 |
| Bathrooms (#): | 2 (FULL) | Bedrooms (#): | 4 | | Exterior Wall: | SI/ST | Fireplace: | SIN 1-GOOD | | Floor Construction: | FRAME | Foundation: | CONPR | | Heating/Cooling: | F/A | Inside Verify: | YES-FIX | | Roof Cover: | COMP |   |   |
|
| | Type | Description | Class CD | Sub Class CD | Year Built | Area |
| | MA | Main Area | 4+ | 1S | 1963 | 1216.0 |
| | HCPOR | House Concrete Porch | 4 | * | 1963 | 42.0 |
| | HDECK | House Deck | 4 | * | 1963 | 432.0 |
| | ADDN | Addition (Table Not Dep) | 4 | * | 1963 | 432.0 |
| | OTHER | Other | * | * | 1963 | 0.0 |
| | BSMTF | House basement finished | 4 | * | 1963 | 1176.0 |
Sketch
Property Image
Land
| 1 | 6300-1173L | Pettygroves Area Terr(Good) | 0.0000 | 0.00 | 0.00 | 0.00 | 1.00 | $185,000 | $0 |
| 2 | 6300-1173L | Pettygroves Area Terr(Good) | 0.0000 | 0.00 | 0.00 | 0.00 | 1.00 | $77,500 | $0 |
Roll Value History
| 2026 | N/A | N/A | N/A | N/A | N/A |
| 2025 | $544,894 | $262,500 | $0 | $807,394 | $807,394 |
| 2024 | $505,513 | $264,000 | $0 | $769,513 | $769,513 |
| 2023 | $485,292 | $246,750 | $0 | $732,042 | $732,042 |
| 2022 | $465,071 | $230,000 | $0 | $695,071 | $695,071 |
Deed and Sales History
| 1 | 09/05/2025 | QCD | Quit Claim Deed | WIGHT WILSON FAMILY TRUST | SUZANNE WIGHT WILSON | | | | 144913 | |
| 2 | 09/05/2025 | QCD | Quit Claim Deed | BEN WILSON | SUZANNE WIGHT WILSON | | | | 144914 | |
| 3 | 10/07/2022 | QCD | Quit Claim Deed | BEN & SUZANNE WILSON | WIGHT WILSON FAMILY TRUST | | | | 140057 | |
| 4 | 05/12/2022 | SWD | Statutory Warranty Deed | MOLLI E HINKLE | BEN & SUZANNE WILSON | | | $830,000.00 | 139107 | |
| 5 | 04/28/2004 | SWD | Statutory Warranty Deed | ONEIL, LOUCHARD/TRUST | HINKLE, MOLLI & IAN | 0 | 0 | $240,000.00 | 100094 | 0 |
| 6 | 04/20/2002 | SWD | Statutory Warranty Deed | RAYETTA JEAN THOMAS | O'NEILL D LOUCHARD TRUSTEE OF | 0 | 0 | $178,500.00 | 94532 | 0 |
Payout Agreement
| No payout information available.. |