Property
Account |
| Property ID: | 38119 | Abbreviated Legal Description: | PETTYGROVE'S 1ST ADDITION BLK 43 LOT 2 INC PTN VAC Q & ROSE STS ADJ CERT/LOTS OF REC #516153 |
| Parcel # / Geo ID: | 984904305 | Agent Code: | |
| Type: | Real | | |
| Tax Area: | 0110 - C-50F1E1H2 | Land Use Code | 11 |
| Open Space: | N | DFL | N |
| Historic Property: | N | Remodel Property: | N |
| Multi-Family Redevelopment: | N | | |
| Township: | 30N | Section: | 2 |
| Range: | 1W |
Location |
| Address: | 1642 CHERRY ST PORT TOWNSEND, WA 98368 | Mapsco: | 095/050 |
| Neighborhood: | PETTYGROVES 1ST & PETTYGROVES PARK | Map ID: | |
| Neighborhood CD: | 6300 |
Owner |
| Name: | SANDRA L TAYLOR | Owner ID: | 112771 |
| Mailing Address: | DAVID E WAGNER JTWROS PO BOX 225 PORT TOWNSEND, WA 98368-0225 | % Ownership: | 100.0000000000% |
| | | Exemptions: | |
Pay Tax Due
Select the appropriate checkbox next to the year to be paid. Multiple years may be selected.
*Convenience Fee not included
Taxes and Assessment Details
Property Tax Information as of
03/10/2026
Click on "Statement Details" to expand or collapse a tax statement.
* Please enter a valid date ** Please enter a valid date *
Statement Details |
| 2026 | 27309 | STATE - STATE LEVY (SCHOOL) | $658.93 | $658.92 | $0.00 | $0.00 | $0.00 | $1317.85 |
| 2026 | 27309 | COUNTY - COUNTY LEVIES (CE, DD, VET, MH) | $263.46 | $263.42 | $0.00 | $0.00 | $0.00 | $526.88 |
| 2026 | 27309 | CONSERVE - CONSERVATION FUTURES | $7.90 | $7.90 | $0.00 | $0.00 | $0.00 | $15.80 |
| 2026 | 27309 | CITYPT - CITY OF PT | $373.93 | $373.92 | $0.00 | $0.00 | $0.00 | $747.85 |
| 2026 | 27309 | PORTPT - PORT DISTRICT | $106.40 | $106.40 | $0.00 | $0.00 | $0.00 | $212.80 |
| 2026 | 27309 | PUD1 - PUD #1 | $17.14 | $17.13 | $0.00 | $0.00 | $0.00 | $34.27 |
| 2026 | 27309 | HD2 - HOSP DIST #2 | $15.37 | $15.36 | $0.00 | $0.00 | $0.00 | $30.73 |
| 2026 | 27309 | SD50 - SCHOOL DIST #50 | $522.02 | $522.01 | $0.00 | $0.00 | $0.00 | $1044.03 |
| 2026 | 27309 | FD1 - FIRE DISTRICT #1 | $348.86 | $348.85 | $0.00 | $0.00 | $0.00 | $697.71 |
| 2026 | 27309 | EMS1 - FIRE DIST #1 EMS | $134.13 | $134.13 | $0.00 | $0.00 | $0.00 | $268.26 |
| 2026 | 27309 | JCCD - JC Conservation District | $2.55 | $2.55 | $0.00 | $0.00 | $0.00 | $5.10 |
| 2026 | 27309 | NWA - Noxious Weed Assessment | $2.98 | $2.97 | $0.00 | $0.00 | $0.00 | $5.95 |
| 2026 | 27309 | TOTAL: | $2453.67 | $2453.56 | $0.00 | $0.00 | $0.00 | $4907.23 |
|
| 2026 | 27309 | $2453.67 | $2453.56 | $0.00 | $0.00 | $0.00 | $4907.23 |
Statement Details |
| 2025 | 27381 | STATE - STATE LEVY (SCHOOL) | $640.11 | $640.09 | $0.00 | $0.00 | $1280.20 | $0.00 |
| 2025 | 27381 | COUNTY - COUNTY LEVIES (CE, DD, VET, MH) | $251.73 | $251.70 | $0.00 | $0.00 | $503.43 | $0.00 |
| 2025 | 27381 | CONSERVE - CONSERVATION FUTURES | $7.55 | $7.55 | $0.00 | $0.00 | $15.10 | $0.00 |
| 2025 | 27381 | CITYPT - CITY OF PT | $363.01 | $363.00 | $0.00 | $0.00 | $726.01 | $0.00 |
| 2025 | 27381 | PORTPT - PORT DISTRICT | $102.72 | $102.71 | $0.00 | $0.00 | $205.43 | $0.00 |
| 2025 | 27381 | PUD1 - PUD #1 | $16.47 | $16.47 | $0.00 | $0.00 | $32.94 | $0.00 |
| 2025 | 27381 | HD2 - HOSP DIST #2 | $14.69 | $14.68 | $0.00 | $0.00 | $29.37 | $0.00 |
| 2025 | 27381 | SD50 - SCHOOL DIST #50 | $467.82 | $467.80 | $0.00 | $0.00 | $935.62 | $0.00 |
| 2025 | 27381 | FD1 - FIRE DISTRICT #1 | $332.17 | $332.17 | $0.00 | $0.00 | $664.34 | $0.00 |
| 2025 | 27381 | EMS1 - FIRE DIST #1 EMS | $127.76 | $127.76 | $0.00 | $0.00 | $255.52 | $0.00 |
| 2025 | 27381 | JCCD - JC Conservation District | $2.55 | $2.55 | $0.00 | $0.00 | $5.10 | $0.00 |
| 2025 | 27381 | NWA - Noxious Weed Assessment | $2.15 | $2.15 | $0.00 | $0.00 | $4.30 | $0.00 |
| 2025 | 27381 | TOTAL: | $2328.73 | $2328.63 | $0.00 | $0.00 | $4657.36 | $0.00 |
|
| 2025 | 27381 | $2328.73 | $2328.63 | $0.00 | $0.00 | $4657.36 | $0.00 |
Statement Details |
| 2024 | 27439 | STATE - STATE LEVY (SCHOOL) | $585.30 | $585.30 | $0.00 | $0.00 | $1170.60 | $0.00 |
| 2024 | 27439 | COUNTY - COUNTY LEVIES (CE, DD, VET, MH) | $250.47 | $250.44 | $0.00 | $0.00 | $500.91 | $0.00 |
| 2024 | 27439 | CONSERVE - CONSERVATION FUTURES | $7.51 | $7.51 | $0.00 | $0.00 | $15.02 | $0.00 |
| 2024 | 27439 | CITYPT - CITY OF PT | $357.87 | $357.86 | $0.00 | $0.00 | $715.73 | $0.00 |
| 2024 | 27439 | PORTPT - PORT DISTRICT | $103.46 | $103.44 | $0.00 | $0.00 | $206.90 | $0.00 |
| 2024 | 27439 | PUD1 - PUD #1 | $16.45 | $16.45 | $0.00 | $0.00 | $32.90 | $0.00 |
| 2024 | 27439 | HD2 - HOSP DIST #2 | $14.62 | $14.61 | $0.00 | $0.00 | $29.23 | $0.00 |
| 2024 | 27439 | SD50 - SCHOOL DIST #50 | $473.54 | $473.53 | $0.00 | $0.00 | $947.07 | $0.00 |
| 2024 | 27439 | FD1 - FIRE DISTRICT #1 | $331.16 | $331.16 | $0.00 | $0.00 | $662.32 | $0.00 |
| 2024 | 27439 | EMS1 - FIRE DIST #1 EMS | $126.49 | $126.49 | $0.00 | $0.00 | $252.98 | $0.00 |
| 2024 | 27439 | JCCD - JC Conservation District | $2.55 | $2.55 | $0.00 | $0.00 | $5.10 | $0.00 |
| 2024 | 27439 | NWA - Noxious Weed Assessment | $2.15 | $2.15 | $0.00 | $0.00 | $4.30 | $0.00 |
| 2024 | 27439 | TOTAL: | $2271.57 | $2271.49 | $0.00 | $0.00 | $4543.06 | $0.00 |
|
| 2024 | 27439 | $2271.57 | $2271.49 | $0.00 | $0.00 | $4543.06 | $0.00 |
Statement Details |
| 2023 | 27481 | STATE - STATE LEVY (SCHOOL) | $563.32 | $563.31 | $0.00 | $0.00 | $1126.63 | $0.00 |
| 2023 | 27481 | COUNTY - COUNTY LEVIES (CE, DD, VET, MH) | $245.83 | $245.80 | $0.00 | $0.00 | $491.63 | $0.00 |
| 2023 | 27481 | CONSERVE - CONSERVATION FUTURES | $7.37 | $7.37 | $0.00 | $0.00 | $14.74 | $0.00 |
| 2023 | 27481 | CITYPT - CITY OF PT | $347.43 | $347.41 | $0.00 | $0.00 | $694.84 | $0.00 |
| 2023 | 27481 | PORTPT - PORT DISTRICT | $103.55 | $103.55 | $0.00 | $0.00 | $207.10 | $0.00 |
| 2023 | 27481 | PUD1 - PUD #1 | $16.30 | $16.29 | $0.00 | $0.00 | $32.59 | $0.00 |
| 2023 | 27481 | HD2 - HOSP DIST #2 | $14.35 | $14.34 | $0.00 | $0.00 | $28.69 | $0.00 |
| 2023 | 27481 | SD50 - SCHOOL DIST #50 | $447.01 | $446.99 | $0.00 | $0.00 | $894.00 | $0.00 |
| 2023 | 27481 | FD1 - FIRE DISTRICT #1 | $202.50 | $202.50 | $0.00 | $0.00 | $405.00 | $0.00 |
| 2023 | 27481 | EMS1 - FIRE DIST #1 EMS | $86.14 | $86.14 | $0.00 | $0.00 | $172.28 | $0.00 |
| 2023 | 27481 | JCCD - JC Conservation District | $2.55 | $2.55 | $0.00 | $0.00 | $5.10 | $0.00 |
| 2023 | 27481 | NWA - Noxious Weed Assessment | $2.15 | $2.15 | $0.00 | $0.00 | $4.30 | $0.00 |
| 2023 | 27481 | TOTAL: | $2038.50 | $2038.40 | $0.00 | $0.00 | $4076.90 | $0.00 |
|
| 2023 | 27481 | $2038.50 | $2038.40 | $0.00 | $0.00 | $4076.90 | $0.00 |
Values
| (+) Improvement Homesite Value: | + | $0 | |
| (+) Improvement Non-Homesite Value: | + | $335,308 | |
| (+) Land Homesite Value: | + | $0 | |
| (+) Land Non-Homesite Value: | + | $237,900 | |
| (+) Curr Use (HS): | + | $0 | $0 |
| (+) Curr Use (NHS): | + | $0 | $0 |
| | | -------------------------- | |
| (=) Market Value: | = | $573,208 | |
| (–) Productivity Loss: | – | $0 | |
| | | -------------------------- | |
| (=) Subtotal: | = | $573,208 | |
| (+) Senior Appraised Value: | + | $0 | |
| (+) Non-Senior Appraised Value: | + | $573,208 | |
| | | -------------------------- | |
| (=) Total Appraised Value: | = | $573,208 | |
| (–) Senior Exemption Loss: | – | $0 | |
| (–) Exemption Loss: | – | $0 | |
| | | -------------------------- | |
| (=) Taxable Value: | = | $573,208 | |
Taxing Jurisdiction
| Owner: | SANDRA L TAYLOR | | |
| % Ownership: | 100.0000000000% | | |
| Total Value: | $573,208 | | |
| Tax Area: | 0110 - C-50F1E1H2 |
| CE | COUNTY CURRENT EXPENSE | 0.9034619479 | $573,208 | $573,208 | $517.87 | | |
| CNTYDD | DEVELOPMENTAL DISABILITIES | 0.0052121823 | $573,208 | $573,208 | $2.99 | | |
| CNTYVET | VETERANS RELIEF | 0.0052777810 | $573,208 | $573,208 | $3.03 | | |
| MENTAL | MENTAL HEALTH | 0.0052121823 | $573,208 | $573,208 | $2.99 | | |
| PTGEN | CITY OF PT GENERAL | 0.8551967795 | $573,208 | $573,208 | $490.21 | | |
| PTLLL | CITY OF PT - LIBRARY LID LIFT | 0.4010114288 | $573,208 | $573,208 | $229.86 | | |
| PTMVBOND | CITY OF PT MV BOND | 0.0484717981 | $573,208 | $573,208 | $27.78 | | |
| HOSP2CASH | HOSP DIST #2 GENERAL | 0.0536075306 | $573,208 | $573,208 | $30.73 | | |
| SCH50BOND | SCHOOL DIST #50 BOND 2016 | 0.5377451389 | $573,208 | $573,208 | $308.24 | | |
| SCH50CP | SCHOOL DIST #50 CAP PROJ | 0.4573475088 | $573,208 | $573,208 | $262.16 | | |
| SCH50MO | SCHOOL DIST #50 EP & O | 0.8262822886 | $573,208 | $573,208 | $473.63 | | |
| CONSERVE | CONSERVATION FUTURES | 0.0275621078 | $573,208 | $573,208 | $15.80 | | |
| EMS1 | FIRE DIST #1 EMS | 0.4679948282 | $573,208 | $573,208 | $268.26 | | |
| FD1 | FIRE DIST #1 GENERAL | 1.2171942929 | $573,208 | $573,208 | $697.71 | | |
| PORTPT | PORT OF PT GENERAL | 0.1134941229 | $573,208 | $573,208 | $65.06 | | |
| PORTPTIDD | PORT OF PT IDD 2019 | 0.2577346692 | $573,208 | $573,208 | $147.74 | | |
| PUD1 | PUD #1 GENERAL | 0.0597888892 | $573,208 | $573,208 | $34.27 | | |
| STATE | STATE SCHOOL PART 1 | 1.4940692947 | $573,208 | $573,208 | $856.41 | | |
| STATE2 | STATE SCHOOL PART 2 | 0.8050170049 | $573,208 | $573,208 | $461.44 | | |
| | Total Tax Rate: | 8.5416817766 | | | | | |
| | | | | Taxes w/Current Exemptions: | $4,896.18 | | |
| | | | | Taxes w/o Exemptions: | $4,896.18 | | |
Improvement / Building
| Improvement #1: | Residential Bldg | State Code: | 11 | 1040.0 sqft | Value: | $335,308 |
| Bathrooms (#): | 1 (FULL) | Bedrooms (#): | 1 | | Exterior Wall: | SI/ST | Foundation: | CONPR | | Heating/Cooling: | HPUMP | Roof Cover: | COMP |
|
| | Type | Description | Class CD | Sub Class CD | Year Built | Area |
| | MA | Main Area | 5- | 15SF | 2021 | 848.0 |
| | MA2 | Second Floor Main Area | 5- | 15SF | 2021 | 192.0 |
| | HCPOR | House Concrete Porch | 4 | 15SF | 2021 | 66.0 |
| | CARPTF | Carport W/Floor | 4 | 15SF | 2021 | 140.0 |
| | PATIO | House Patio | 4 | * | 2021 | 221.0 |
Sketch
Property Image
Land
| 1 | 6300-1175L | | 0.0000 | 0.00 | 0.00 | 0.00 | 1.00 | $165,000 | $0 |
| 2 | 6300-1175L | | 0.0000 | 0.00 | 0.00 | 0.00 | 1.00 | $40,500 | $0 |
| 3 | 6300-1175L | | 0.0000 | 0.00 | 0.00 | 0.00 | 1.00 | $32,400 | $0 |
Roll Value History
| 2026 | N/A | N/A | N/A | N/A | N/A |
| 2025 | $335,308 | $237,900 | $0 | $573,208 | $573,208 |
| 2024 | $297,579 | $236,280 | $0 | $533,859 | $533,859 |
| 2023 | $285,676 | $220,290 | $0 | $505,966 | $505,966 |
| 2022 | $273,772 | $204,800 | $0 | $478,572 | $478,572 |
Deed and Sales History
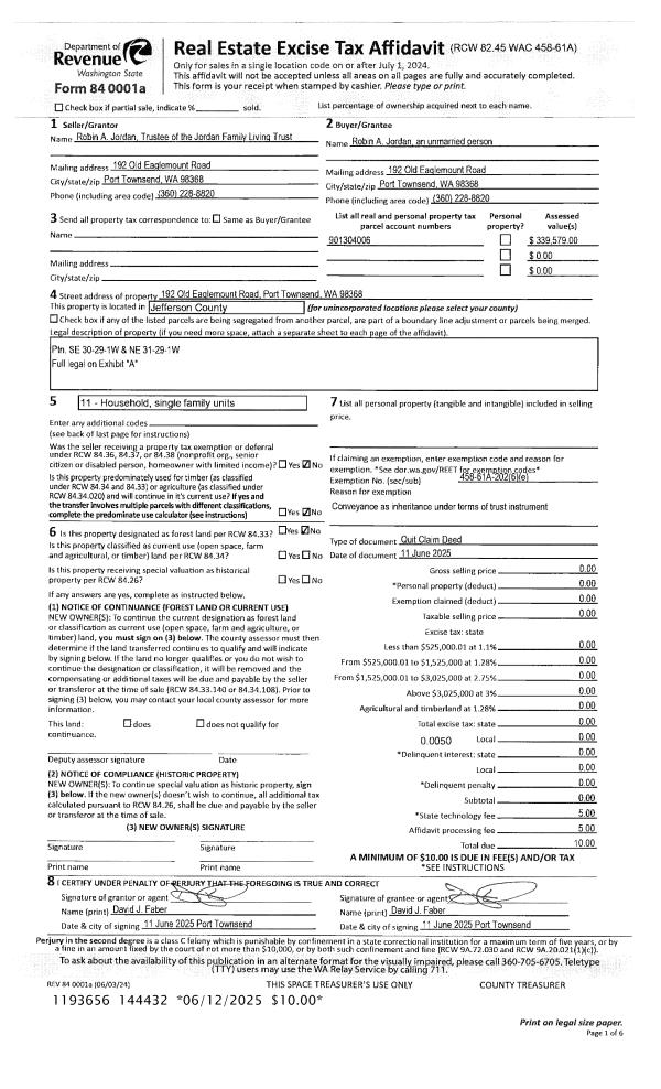
| 1 | 06/11/2025 | QCD | Quit Claim Deed | SANDRA L TAYLOR | SANDRA L TAYLOR | | | | 144426 | |
| 2 | 04/11/2025 | SWD | Statutory Warranty Deed | HEIDI J SEWALL | SANDRA L TAYLOR | | | $639,000.00 | 144162 | |
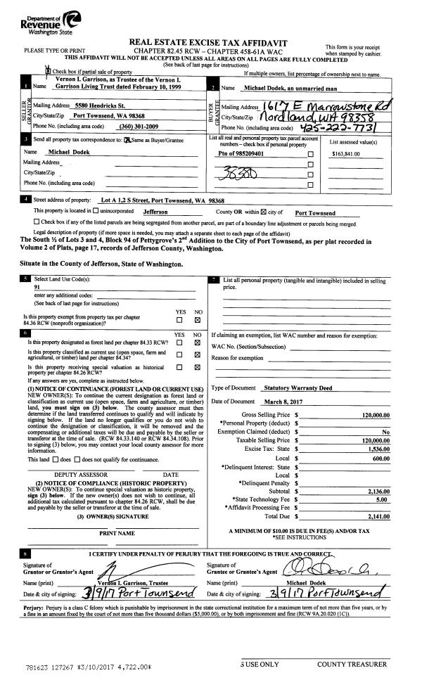
| 3 | 03/14/2017 | SWD | Statutory Warranty Deed | SCOTT D THOMPSON | HEIDI J SEWALL | | | $93,000.00 | 127327 | |
| 4 | 01/02/2007 | SWD | Statutory Warranty Deed | GARRISON, VERNON I LLC | THOMPSON,SCOTT/MULDER,PATRICIA | 0 | 0 | $200,000.00 | 108431 | 0 |
Payout Agreement
| No payout information available.. |