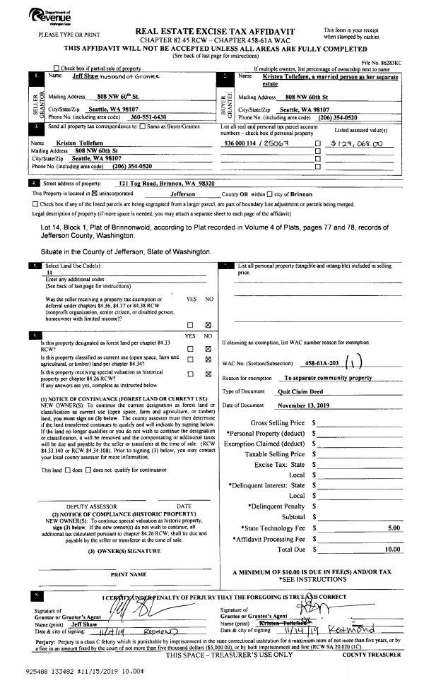
Property
Account |
| Property ID: | 38218 | Abbreviated Legal Description: | PETTYGROVE'S 2ND ADDITION BLK 17 LOTS 3 & 4 |
| Parcel # / Geo ID: | 985201702 | Agent Code: | |
| Type: | Real | | |
| Tax Area: | 0110 - C-50F1E1H2 | Land Use Code | 11 |
| Open Space: | N | DFL | N |
| Historic Property: | N | Remodel Property: | N |
| Multi-Family Redevelopment: | N | | |
| Township: | 31N | Section: | 35 |
| Range: | 1W |
Location |
| Address: | 1309 W ST PORT TOWNSEND, WA 98368 | Mapsco: | 097/036 |
| Neighborhood: | PORTION PETTYGROVES 2ND LYING W OF CHERRY,QED SP | Map ID: | |
| Neighborhood CD: | 6410 |
Owner |
| Name: | AMY I DAHLBERG | Owner ID: | 14035 |
| Mailing Address: | PO BOX 502 PORT TOWNSEND, WA 98368-0502 | % Ownership: | 100.0000000000% |
| | | Exemptions: | |
Pay Tax Due
Select the appropriate checkbox next to the year to be paid. Multiple years may be selected.
*Convenience Fee not included
Taxes and Assessment Details
Property Tax Information as of
03/10/2026
Click on "Statement Details" to expand or collapse a tax statement.
* Please enter a valid date ** Please enter a valid date *
Statement Details |
| 2026 | 27404 | STATE - STATE LEVY (SCHOOL) | $601.14 | $601.12 | $0.00 | $0.00 | $0.00 | $1202.26 |
| 2026 | 27404 | COUNTY - COUNTY LEVIES (CE, DD, VET, MH) | $240.35 | $240.32 | $0.00 | $0.00 | $0.00 | $480.67 |
| 2026 | 27404 | CONSERVE - CONSERVATION FUTURES | $7.21 | $7.20 | $0.00 | $0.00 | $0.00 | $14.41 |
| 2026 | 27404 | CITYPT - CITY OF PT | $341.14 | $341.12 | $0.00 | $0.00 | $0.00 | $682.26 |
| 2026 | 27404 | PORTPT - PORT DISTRICT | $97.07 | $97.06 | $0.00 | $0.00 | $0.00 | $194.13 |
| 2026 | 27404 | PUD1 - PUD #1 | $15.64 | $15.63 | $0.00 | $0.00 | $0.00 | $31.27 |
| 2026 | 27404 | HD2 - HOSP DIST #2 | $14.02 | $14.01 | $0.00 | $0.00 | $0.00 | $28.03 |
| 2026 | 27404 | SD50 - SCHOOL DIST #50 | $476.23 | $476.22 | $0.00 | $0.00 | $0.00 | $952.45 |
| 2026 | 27404 | FD1 - FIRE DISTRICT #1 | $318.26 | $318.25 | $0.00 | $0.00 | $0.00 | $636.51 |
| 2026 | 27404 | EMS1 - FIRE DIST #1 EMS | $122.37 | $122.36 | $0.00 | $0.00 | $0.00 | $244.73 |
| 2026 | 27404 | JCCD - JC Conservation District | $2.55 | $2.55 | $0.00 | $0.00 | $0.00 | $5.10 |
| 2026 | 27404 | NWA - Noxious Weed Assessment | $2.98 | $2.97 | $0.00 | $0.00 | $0.00 | $5.95 |
| 2026 | 27404 | TOTAL: | $2238.96 | $2238.81 | $0.00 | $0.00 | $0.00 | $4477.77 |
|
| 2026 | 27404 | $2238.96 | $2238.81 | $0.00 | $0.00 | $0.00 | $4477.77 |
Statement Details |
| 2025 | 27476 | STATE - STATE LEVY (SCHOOL) | $636.00 | $635.99 | $0.00 | $0.00 | $1271.99 | $0.00 |
| 2025 | 27476 | COUNTY - COUNTY LEVIES (CE, DD, VET, MH) | $250.12 | $250.09 | $0.00 | $0.00 | $500.21 | $0.00 |
| 2025 | 27476 | CONSERVE - CONSERVATION FUTURES | $7.50 | $7.50 | $0.00 | $0.00 | $15.00 | $0.00 |
| 2025 | 27476 | CITYPT - CITY OF PT | $360.68 | $360.67 | $0.00 | $0.00 | $721.35 | $0.00 |
| 2025 | 27476 | PORTPT - PORT DISTRICT | $102.06 | $102.05 | $0.00 | $0.00 | $204.11 | $0.00 |
| 2025 | 27476 | PUD1 - PUD #1 | $16.37 | $16.36 | $0.00 | $0.00 | $32.73 | $0.00 |
| 2025 | 27476 | HD2 - HOSP DIST #2 | $14.59 | $14.59 | $0.00 | $0.00 | $29.18 | $0.00 |
| 2025 | 27476 | SD50 - SCHOOL DIST #50 | $464.82 | $464.79 | $0.00 | $0.00 | $929.61 | $0.00 |
| 2025 | 27476 | FD1 - FIRE DISTRICT #1 | $330.04 | $330.03 | $0.00 | $0.00 | $660.07 | $0.00 |
| 2025 | 27476 | EMS1 - FIRE DIST #1 EMS | $126.94 | $126.94 | $0.00 | $0.00 | $253.88 | $0.00 |
| 2025 | 27476 | JCCD - JC Conservation District | $2.55 | $2.55 | $0.00 | $0.00 | $5.10 | $0.00 |
| 2025 | 27476 | NWA - Noxious Weed Assessment | $2.15 | $2.15 | $0.00 | $0.00 | $4.30 | $0.00 |
| 2025 | 27476 | TOTAL: | $2313.82 | $2313.71 | $0.00 | $0.00 | $4627.53 | $0.00 |
|
| 2025 | 27476 | $2313.82 | $2313.71 | $0.00 | $0.00 | $4627.53 | $0.00 |
Statement Details |
| 2024 | 27534 | STATE - STATE LEVY (SCHOOL) | $581.32 | $581.31 | $0.00 | $0.00 | $1162.63 | $0.00 |
| 2024 | 27534 | COUNTY - COUNTY LEVIES (CE, DD, VET, MH) | $248.76 | $248.74 | $0.00 | $0.00 | $497.50 | $0.00 |
| 2024 | 27534 | CONSERVE - CONSERVATION FUTURES | $7.46 | $7.46 | $0.00 | $0.00 | $14.92 | $0.00 |
| 2024 | 27534 | CITYPT - CITY OF PT | $355.44 | $355.42 | $0.00 | $0.00 | $710.86 | $0.00 |
| 2024 | 27534 | PORTPT - PORT DISTRICT | $102.75 | $102.74 | $0.00 | $0.00 | $205.49 | $0.00 |
| 2024 | 27534 | PUD1 - PUD #1 | $16.34 | $16.34 | $0.00 | $0.00 | $32.68 | $0.00 |
| 2024 | 27534 | HD2 - HOSP DIST #2 | $14.52 | $14.51 | $0.00 | $0.00 | $29.03 | $0.00 |
| 2024 | 27534 | SD50 - SCHOOL DIST #50 | $470.32 | $470.30 | $0.00 | $0.00 | $940.62 | $0.00 |
| 2024 | 27534 | FD1 - FIRE DISTRICT #1 | $328.91 | $328.91 | $0.00 | $0.00 | $657.82 | $0.00 |
| 2024 | 27534 | EMS1 - FIRE DIST #1 EMS | $125.63 | $125.63 | $0.00 | $0.00 | $251.26 | $0.00 |
| 2024 | 27534 | JCCD - JC Conservation District | $2.55 | $2.55 | $0.00 | $0.00 | $5.10 | $0.00 |
| 2024 | 27534 | NWA - Noxious Weed Assessment | $2.15 | $2.15 | $0.00 | $0.00 | $4.30 | $0.00 |
| 2024 | 27534 | TOTAL: | $2256.15 | $2256.06 | $0.00 | $0.00 | $4512.21 | $0.00 |
|
| 2024 | 27534 | $2256.15 | $2256.06 | $0.00 | $0.00 | $4512.21 | $0.00 |
Statement Details |
| 2023 | 27576 | STATE - STATE LEVY (SCHOOL) | $546.71 | $546.71 | $0.00 | $0.00 | $1093.42 | $0.00 |
| 2023 | 27576 | COUNTY - COUNTY LEVIES (CE, DD, VET, MH) | $238.58 | $238.55 | $0.00 | $0.00 | $477.13 | $0.00 |
| 2023 | 27576 | CONSERVE - CONSERVATION FUTURES | $7.16 | $7.15 | $0.00 | $0.00 | $14.31 | $0.00 |
| 2023 | 27576 | CITYPT - CITY OF PT | $337.18 | $337.17 | $0.00 | $0.00 | $674.35 | $0.00 |
| 2023 | 27576 | PORTPT - PORT DISTRICT | $100.50 | $100.49 | $0.00 | $0.00 | $200.99 | $0.00 |
| 2023 | 27576 | PUD1 - PUD #1 | $15.82 | $15.81 | $0.00 | $0.00 | $31.63 | $0.00 |
| 2023 | 27576 | HD2 - HOSP DIST #2 | $13.93 | $13.91 | $0.00 | $0.00 | $27.84 | $0.00 |
| 2023 | 27576 | SD50 - SCHOOL DIST #50 | $433.82 | $433.82 | $0.00 | $0.00 | $867.64 | $0.00 |
| 2023 | 27576 | FD1 - FIRE DISTRICT #1 | $196.53 | $196.53 | $0.00 | $0.00 | $393.06 | $0.00 |
| 2023 | 27576 | EMS1 - FIRE DIST #1 EMS | $83.60 | $83.60 | $0.00 | $0.00 | $167.20 | $0.00 |
| 2023 | 27576 | JCCD - JC Conservation District | $2.55 | $2.55 | $0.00 | $0.00 | $5.10 | $0.00 |
| 2023 | 27576 | NWA - Noxious Weed Assessment | $2.15 | $2.15 | $0.00 | $0.00 | $4.30 | $0.00 |
| 2023 | 27576 | TOTAL: | $1978.53 | $1978.44 | $0.00 | $0.00 | $3956.97 | $0.00 |
|
| 2023 | 27576 | $1978.53 | $1978.44 | $0.00 | $0.00 | $3956.97 | $0.00 |
Values
| (+) Improvement Homesite Value: | + | $0 | |
| (+) Improvement Non-Homesite Value: | + | $260,430 | |
| (+) Land Homesite Value: | + | $0 | |
| (+) Land Non-Homesite Value: | + | $262,500 | |
| (+) Curr Use (HS): | + | $0 | $0 |
| (+) Curr Use (NHS): | + | $0 | $0 |
| | | -------------------------- | |
| (=) Market Value: | = | $522,930 | |
| (–) Productivity Loss: | – | $0 | |
| | | -------------------------- | |
| (=) Subtotal: | = | $522,930 | |
| (+) Senior Appraised Value: | + | $0 | |
| (+) Non-Senior Appraised Value: | + | $522,930 | |
| | | -------------------------- | |
| (=) Total Appraised Value: | = | $522,930 | |
| (–) Senior Exemption Loss: | – | $0 | |
| (–) Exemption Loss: | – | $0 | |
| | | -------------------------- | |
| (=) Taxable Value: | = | $522,930 | |
Taxing Jurisdiction
| Owner: | AMY I DAHLBERG | | |
| % Ownership: | 100.0000000000% | | |
| Total Value: | $522,930 | | |
| Tax Area: | 0110 - C-50F1E1H2 |
| CE | COUNTY CURRENT EXPENSE | 0.9034619479 | $522,930 | $522,930 | $472.45 | | |
| CNTYDD | DEVELOPMENTAL DISABILITIES | 0.0052121823 | $522,930 | $522,930 | $2.73 | | |
| CNTYVET | VETERANS RELIEF | 0.0052777810 | $522,930 | $522,930 | $2.76 | | |
| MENTAL | MENTAL HEALTH | 0.0052121823 | $522,930 | $522,930 | $2.73 | | |
| PTGEN | CITY OF PT GENERAL | 0.8551967795 | $522,930 | $522,930 | $447.21 | | |
| PTLLL | CITY OF PT - LIBRARY LID LIFT | 0.4010114288 | $522,930 | $522,930 | $209.70 | | |
| PTMVBOND | CITY OF PT MV BOND | 0.0484717981 | $522,930 | $522,930 | $25.35 | | |
| HOSP2CASH | HOSP DIST #2 GENERAL | 0.0536075306 | $522,930 | $522,930 | $28.03 | | |
| SCH50BOND | SCHOOL DIST #50 BOND 2016 | 0.5377451389 | $522,930 | $522,930 | $281.20 | | |
| SCH50CP | SCHOOL DIST #50 CAP PROJ | 0.4573475088 | $522,930 | $522,930 | $239.16 | | |
| SCH50MO | SCHOOL DIST #50 EP & O | 0.8262822886 | $522,930 | $522,930 | $432.09 | | |
| CONSERVE | CONSERVATION FUTURES | 0.0275621078 | $522,930 | $522,930 | $14.41 | | |
| EMS1 | FIRE DIST #1 EMS | 0.4679948282 | $522,930 | $522,930 | $244.73 | | |
| FD1 | FIRE DIST #1 GENERAL | 1.2171942929 | $522,930 | $522,930 | $636.51 | | |
| PORTPT | PORT OF PT GENERAL | 0.1134941229 | $522,930 | $522,930 | $59.35 | | |
| PORTPTIDD | PORT OF PT IDD 2019 | 0.2577346692 | $522,930 | $522,930 | $134.78 | | |
| PUD1 | PUD #1 GENERAL | 0.0597888892 | $522,930 | $522,930 | $31.27 | | |
| STATE | STATE SCHOOL PART 1 | 1.4940692947 | $522,930 | $522,930 | $781.29 | | |
| STATE2 | STATE SCHOOL PART 2 | 0.8050170049 | $522,930 | $522,930 | $420.97 | | |
| | Total Tax Rate: | 8.5416817766 | | | | | |
| | | | | Taxes w/Current Exemptions: | $4,466.72 | | |
| | | | | Taxes w/o Exemptions: | $4,466.72 | | |
Improvement / Building
| Improvement #1: | Residential Bldg | State Code: | 11 | 1400.0 sqft | Value: | $260,430 |
| Bathrooms (#): | 1 (FULL) | Bathrooms (#): | 1 (HALF) | | Bedrooms (#): | 3 | Exterior Wall: | SI/ST | | Fireplace: | SIN 1-AVG | Floor Construction: | FRAME | | Foundation: | CONPR | Heating/Cooling: | ELBB | | Inside Verify: | YES-FIX | Roof Cover: | COMP |
|
| | Type | Description | Class CD | Sub Class CD | Year Built | Area |
| | MA | Main Area | 3+ | 1S | 1975 | 1400.0 |
| | HDECK | House Deck | 3 | * | 1975 | 96.0 |
Sketch
Property Image
Land
| 1 | 6410-1175L | | 0.0000 | 0.00 | 0.00 | 0.00 | 1.00 | $185,000 | $0 |
| 2 | 6410-1175L | | 0.0000 | 0.00 | 0.00 | 0.00 | 1.00 | $77,500 | $0 |
Roll Value History
| 2026 | N/A | N/A | N/A | N/A | N/A |
| 2025 | $260,430 | $262,500 | $0 | $522,930 | $522,930 |
| 2024 | $266,431 | $264,000 | $0 | $530,431 | $530,431 |
| 2023 | $255,774 | $246,750 | $0 | $502,524 | $502,524 |
| 2022 | $234,460 | $230,000 | $0 | $464,460 | $464,460 |
Deed and Sales History
| 1 | 10/09/2003 | SWD | Statutory Warranty Deed | THACKER, JEFFREY J | DAHLBERG, AMY I | 0 | 0 | $189,000.00 | 98578 | 0 |
Payout Agreement
| No payout information available.. |