Property
Account |
| Property ID: | 38226 | Abbreviated Legal Description: | PETTYGROVE'S 2ND ADDITION BLK 18 LOTS 2(LS W16'), 3(LS E16') |
| Parcel # / Geo ID: | 985201805 | Agent Code: | |
| Type: | Real | | |
| Tax Area: | 0110 - C-50F1E1H2 | Land Use Code | 11 |
| Open Space: | N | DFL | N |
| Historic Property: | N | Remodel Property: | N |
| Multi-Family Redevelopment: | N | | |
| Township: | 31N | Section: | 35 |
| Range: | 1W |
Location |
| Address: | 1319 V ST PORT TOWNSEND, WA 98368 | Mapsco: | 097/041 |
| Neighborhood: | PORTION PETTYGROVES 2ND LYING W OF CHERRY,QED SP | Map ID: | |
| Neighborhood CD: | 6410 |
Owner |
| Name: | JESSICA M ALLEN | Owner ID: | 107259 |
| Mailing Address: | JAMES A HENWOOD 1319 V ST PORT TOWNSEND, WA 98368-2738 | % Ownership: | 100.0000000000% |
| | | Exemptions: | |
Pay Tax Due
Select the appropriate checkbox next to the year to be paid. Multiple years may be selected.
*Convenience Fee not included
Taxes and Assessment Details
Property Tax Information as of
03/12/2026
Click on "Statement Details" to expand or collapse a tax statement.
* Please enter a valid date ** Please enter a valid date *
Statement Details |
| 2026 | 27412 | STATE - STATE LEVY (SCHOOL) | $737.60 | $737.60 | $0.00 | $0.00 | $0.00 | $1475.20 |
| 2026 | 27412 | COUNTY - COUNTY LEVIES (CE, DD, VET, MH) | $294.89 | $294.88 | $0.00 | $0.00 | $0.00 | $589.77 |
| 2026 | 27412 | CONSERVE - CONSERVATION FUTURES | $8.85 | $8.84 | $0.00 | $0.00 | $0.00 | $17.69 |
| 2026 | 27412 | CITYPT - CITY OF PT | $418.58 | $418.56 | $0.00 | $0.00 | $0.00 | $837.14 |
| 2026 | 27412 | PORTPT - PORT DISTRICT | $119.10 | $119.09 | $0.00 | $0.00 | $0.00 | $238.19 |
| 2026 | 27412 | PUD1 - PUD #1 | $19.18 | $19.18 | $0.00 | $0.00 | $0.00 | $38.36 |
| 2026 | 27412 | HD2 - HOSP DIST #2 | $17.20 | $17.20 | $0.00 | $0.00 | $0.00 | $34.40 |
| 2026 | 27412 | SD50 - SCHOOL DIST #50 | $584.34 | $584.34 | $0.00 | $0.00 | $0.00 | $1168.68 |
| 2026 | 27412 | FD1 - FIRE DISTRICT #1 | $390.51 | $390.50 | $0.00 | $0.00 | $0.00 | $781.01 |
| 2026 | 27412 | EMS1 - FIRE DIST #1 EMS | $150.15 | $150.14 | $0.00 | $0.00 | $0.00 | $300.29 |
| 2026 | 27412 | JCCD - JC Conservation District | $2.55 | $2.55 | $0.00 | $0.00 | $0.00 | $5.10 |
| 2026 | 27412 | NWA - Noxious Weed Assessment | $2.98 | $2.97 | $0.00 | $0.00 | $0.00 | $5.95 |
| 2026 | 27412 | TOTAL: | $2745.93 | $2745.85 | $0.00 | $0.00 | $0.00 | $5491.78 |
|
| 2026 | 27412 | $2745.93 | $2745.85 | $0.00 | $0.00 | $0.00 | $5491.78 |
Statement Details |
| 2025 | 27484 | STATE - STATE LEVY (SCHOOL) | $744.90 | $744.89 | $0.00 | $0.00 | $1489.79 | $0.00 |
| 2025 | 27484 | COUNTY - COUNTY LEVIES (CE, DD, VET, MH) | $292.94 | $292.91 | $0.00 | $0.00 | $585.85 | $0.00 |
| 2025 | 27484 | CONSERVE - CONSERVATION FUTURES | $8.79 | $8.78 | $0.00 | $0.00 | $17.57 | $0.00 |
| 2025 | 27484 | CITYPT - CITY OF PT | $422.44 | $422.42 | $0.00 | $0.00 | $844.86 | $0.00 |
| 2025 | 27484 | PORTPT - PORT DISTRICT | $119.53 | $119.53 | $0.00 | $0.00 | $239.06 | $0.00 |
| 2025 | 27484 | PUD1 - PUD #1 | $19.17 | $19.16 | $0.00 | $0.00 | $38.33 | $0.00 |
| 2025 | 27484 | HD2 - HOSP DIST #2 | $17.09 | $17.09 | $0.00 | $0.00 | $34.18 | $0.00 |
| 2025 | 27484 | SD50 - SCHOOL DIST #50 | $544.40 | $544.39 | $0.00 | $0.00 | $1088.79 | $0.00 |
| 2025 | 27484 | FD1 - FIRE DISTRICT #1 | $386.55 | $386.55 | $0.00 | $0.00 | $773.10 | $0.00 |
| 2025 | 27484 | EMS1 - FIRE DIST #1 EMS | $148.68 | $148.67 | $0.00 | $0.00 | $297.35 | $0.00 |
| 2025 | 27484 | JCCD - JC Conservation District | $2.55 | $2.55 | $0.00 | $0.00 | $5.10 | $0.00 |
| 2025 | 27484 | NWA - Noxious Weed Assessment | $2.15 | $2.15 | $0.00 | $0.00 | $4.30 | $0.00 |
| 2025 | 27484 | TOTAL: | $2709.19 | $2709.09 | $0.00 | $0.00 | $5418.28 | $0.00 |
|
| 2025 | 27484 | $2709.19 | $2709.09 | $0.00 | $0.00 | $5418.28 | $0.00 |
Statement Details |
| 2024 | 27542 | STATE - STATE LEVY (SCHOOL) | $682.21 | $682.20 | $0.00 | $0.00 | $1364.41 | $0.00 |
| 2024 | 27542 | COUNTY - COUNTY LEVIES (CE, DD, VET, MH) | $291.93 | $291.93 | $0.00 | $0.00 | $583.86 | $0.00 |
| 2024 | 27542 | CONSERVE - CONSERVATION FUTURES | $8.76 | $8.75 | $0.00 | $0.00 | $17.51 | $0.00 |
| 2024 | 27542 | CITYPT - CITY OF PT | $417.12 | $417.11 | $0.00 | $0.00 | $834.23 | $0.00 |
| 2024 | 27542 | PORTPT - PORT DISTRICT | $120.58 | $120.57 | $0.00 | $0.00 | $241.15 | $0.00 |
| 2024 | 27542 | PUD1 - PUD #1 | $19.18 | $19.17 | $0.00 | $0.00 | $38.35 | $0.00 |
| 2024 | 27542 | HD2 - HOSP DIST #2 | $17.04 | $17.03 | $0.00 | $0.00 | $34.07 | $0.00 |
| 2024 | 27542 | SD50 - SCHOOL DIST #50 | $551.95 | $551.92 | $0.00 | $0.00 | $1103.87 | $0.00 |
| 2024 | 27542 | FD1 - FIRE DISTRICT #1 | $385.99 | $385.99 | $0.00 | $0.00 | $771.98 | $0.00 |
| 2024 | 27542 | EMS1 - FIRE DIST #1 EMS | $147.44 | $147.43 | $0.00 | $0.00 | $294.87 | $0.00 |
| 2024 | 27542 | JCCD - JC Conservation District | $2.55 | $2.55 | $0.00 | $0.00 | $5.10 | $0.00 |
| 2024 | 27542 | NWA - Noxious Weed Assessment | $2.15 | $2.15 | $0.00 | $0.00 | $4.30 | $0.00 |
| 2024 | 27542 | TOTAL: | $2646.90 | $2646.80 | $0.00 | $0.00 | $5293.70 | $0.00 |
|
| 2024 | 27542 | $2646.90 | $2646.80 | $0.00 | $0.00 | $5293.70 | $0.00 |
Statement Details |
| 2023 | 27584 | STATE - STATE LEVY (SCHOOL) | $585.62 | $585.60 | $0.00 | $0.00 | $1171.22 | $0.00 |
| 2023 | 27584 | COUNTY - COUNTY LEVIES (CE, DD, VET, MH) | $255.55 | $255.54 | $0.00 | $0.00 | $511.09 | $0.00 |
| 2023 | 27584 | CONSERVE - CONSERVATION FUTURES | $7.67 | $7.66 | $0.00 | $0.00 | $15.33 | $0.00 |
| 2023 | 27584 | CITYPT - CITY OF PT | $361.18 | $361.16 | $0.00 | $0.00 | $722.34 | $0.00 |
| 2023 | 27584 | PORTPT - PORT DISTRICT | $107.66 | $107.64 | $0.00 | $0.00 | $215.30 | $0.00 |
| 2023 | 27584 | PUD1 - PUD #1 | $16.94 | $16.94 | $0.00 | $0.00 | $33.88 | $0.00 |
| 2023 | 27584 | HD2 - HOSP DIST #2 | $14.92 | $14.91 | $0.00 | $0.00 | $29.83 | $0.00 |
| 2023 | 27584 | SD50 - SCHOOL DIST #50 | $464.70 | $464.69 | $0.00 | $0.00 | $929.39 | $0.00 |
| 2023 | 27584 | FD1 - FIRE DISTRICT #1 | $210.52 | $210.51 | $0.00 | $0.00 | $421.03 | $0.00 |
| 2023 | 27584 | EMS1 - FIRE DIST #1 EMS | $89.55 | $89.55 | $0.00 | $0.00 | $179.10 | $0.00 |
| 2023 | 27584 | JCCD - JC Conservation District | $2.55 | $2.55 | $0.00 | $0.00 | $5.10 | $0.00 |
| 2023 | 27584 | NWA - Noxious Weed Assessment | $2.15 | $2.15 | $0.00 | $0.00 | $4.30 | $0.00 |
| 2023 | 27584 | TOTAL: | $2119.01 | $2118.90 | $0.00 | $0.00 | $4237.91 | $0.00 |
|
| 2023 | 27584 | $2119.01 | $2118.90 | $0.00 | $0.00 | $4237.91 | $0.00 |
Values
| (+) Improvement Homesite Value: | + | $0 | |
| (+) Improvement Non-Homesite Value: | + | $381,546 | |
| (+) Land Homesite Value: | + | $0 | |
| (+) Land Non-Homesite Value: | + | $260,100 | |
| (+) Curr Use (HS): | + | $0 | $0 |
| (+) Curr Use (NHS): | + | $0 | $0 |
| | | -------------------------- | |
| (=) Market Value: | = | $641,646 | |
| (–) Productivity Loss: | – | $0 | |
| | | -------------------------- | |
| (=) Subtotal: | = | $641,646 | |
| (+) Senior Appraised Value: | + | $0 | |
| (+) Non-Senior Appraised Value: | + | $641,646 | |
| | | -------------------------- | |
| (=) Total Appraised Value: | = | $641,646 | |
| (–) Senior Exemption Loss: | – | $0 | |
| (–) Exemption Loss: | – | $0 | |
| | | -------------------------- | |
| (=) Taxable Value: | = | $641,646 | |
Taxing Jurisdiction
| Owner: | JESSICA M ALLEN | | |
| % Ownership: | 100.0000000000% | | |
| Total Value: | $641,646 | | |
| Tax Area: | 0110 - C-50F1E1H2 |
| CE | COUNTY CURRENT EXPENSE | 0.9034619479 | $641,646 | $641,646 | $579.70 | | |
| CNTYDD | DEVELOPMENTAL DISABILITIES | 0.0052121823 | $641,646 | $641,646 | $3.34 | | |
| CNTYVET | VETERANS RELIEF | 0.0052777810 | $641,646 | $641,646 | $3.39 | | |
| MENTAL | MENTAL HEALTH | 0.0052121823 | $641,646 | $641,646 | $3.34 | | |
| PTGEN | CITY OF PT GENERAL | 0.8551967795 | $641,646 | $641,646 | $548.73 | | |
| PTLLL | CITY OF PT - LIBRARY LID LIFT | 0.4010114288 | $641,646 | $641,646 | $257.31 | | |
| PTMVBOND | CITY OF PT MV BOND | 0.0484717981 | $641,646 | $641,646 | $31.10 | | |
| HOSP2CASH | HOSP DIST #2 GENERAL | 0.0536075306 | $641,646 | $641,646 | $34.40 | | |
| SCH50BOND | SCHOOL DIST #50 BOND 2016 | 0.5377451389 | $641,646 | $641,646 | $345.04 | | |
| SCH50CP | SCHOOL DIST #50 CAP PROJ | 0.4573475088 | $641,646 | $641,646 | $293.46 | | |
| SCH50MO | SCHOOL DIST #50 EP & O | 0.8262822886 | $641,646 | $641,646 | $530.18 | | |
| CONSERVE | CONSERVATION FUTURES | 0.0275621078 | $641,646 | $641,646 | $17.69 | | |
| EMS1 | FIRE DIST #1 EMS | 0.4679948282 | $641,646 | $641,646 | $300.29 | | |
| FD1 | FIRE DIST #1 GENERAL | 1.2171942929 | $641,646 | $641,646 | $781.01 | | |
| PORTPT | PORT OF PT GENERAL | 0.1134941229 | $641,646 | $641,646 | $72.82 | | |
| PORTPTIDD | PORT OF PT IDD 2019 | 0.2577346692 | $641,646 | $641,646 | $165.37 | | |
| PUD1 | PUD #1 GENERAL | 0.0597888892 | $641,646 | $641,646 | $38.36 | | |
| STATE | STATE SCHOOL PART 1 | 1.4940692947 | $641,646 | $641,646 | $958.66 | | |
| STATE2 | STATE SCHOOL PART 2 | 0.8050170049 | $641,646 | $641,646 | $516.54 | | |
| | Total Tax Rate: | 8.5416817766 | | | | | |
| | | | | Taxes w/Current Exemptions: | $5,480.73 | | |
| | | | | Taxes w/o Exemptions: | $5,480.73 | | |
Improvement / Building
| Improvement #1: | Residential Bldg | State Code: | 11 | 1214.0 sqft | Value: | $381,546 |
| Bathrooms (#): | 1 (FULL) | Bathrooms (#): | 1 (HALF) | | Bedrooms (#): | 3 | Exterior Wall: | PL/T1 | | Fireplace: | WD ST-GOOD | Floor Construction: | FRAME | | Foundation: | CONPR | Heating/Cooling: | ELBB | | Roof Cover: | COMP |   |   |
|
| | Type | Description | Class CD | Sub Class CD | Year Built | Area |
| | MA | Main Area | 5 | 2S | 1986 | 563.0 |
| | MA2 | Second Floor Main Area | 5 | 2S | 1986 | 651.0 |
| | GATT | House Attached Garage | 5 | 2S | 1986 | 275.0 |
| | CONCD | Concrete Drive | 3 | * | 1986 | 375.0 |
| | HDECK | House Deck | 3 | 2S | 1986 | 96.0 |
Sketch
Property Image
Land
| 1 | 6410-1173L | | 0.0000 | 0.00 | 0.00 | 0.00 | 1.00 | $225,000 | $0 |
| 2 | 6410-1173L | | 0.0000 | 0.00 | 0.00 | 0.00 | 1.00 | $35,100 | $0 |
Roll Value History
| 2026 | N/A | N/A | N/A | N/A | N/A |
| 2025 | $381,546 | $260,100 | $0 | $641,646 | $641,646 |
| 2024 | $361,108 | $260,150 | $0 | $621,258 | $621,258 |
| 2023 | $346,663 | $243,075 | $0 | $589,738 | $589,738 |
| 2022 | $271,014 | $226,500 | $0 | $497,514 | $497,514 |
Deed and Sales History
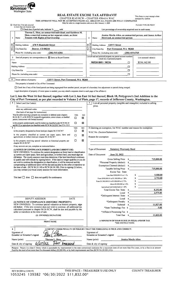
| 1 | 06/22/2022 | SWD | Statutory Warranty Deed | THERESA L SHEA | JESSICA M ALLEN | | | $715,000.00 | 139382 | |
| 2 | 06/22/2017 | QCD | Quit Claim Deed | | | | | | 128010 | |
| 3 | 06/22/2017 | SWD | Statutory Warranty Deed | JAMES F CHARLIER | THERESA L SHEA | | | $279,000.00 | 128007 | |
| 4 | 09/14/2010 | WD | Warranty Deed | DEUTSCHE BANK NATL TRST C | CHARLIER, JAMES F | 0 | 0 | $188,800.00 | 115012 | 0 |
| 5 | 07/02/2010 | TRED | Trustee Deed | REGIONAL TRUSTEE SERVICES | DEUTSCHE BANK NATIONAL TRUST C | | | $0.00 | 114622 | 0 |
| 6 | 10/25/2006 | SWD | Statutory Warranty Deed | SIDLE, CARL D/SUSAN B TRU | CHOHRACH, ADAM | 0 | 0 | $255,000.00 | 108049 | 0 |
Payout Agreement
| No payout information available.. |