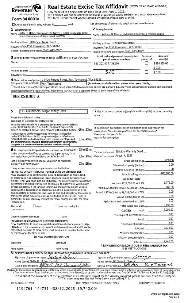
Property
Account |
| Property ID: | 38230 | Abbreviated Legal Description: | PETTYGROVE'S 2ND ADDITION BLK 20 LOTS 5 TO 8 |
| Parcel # / Geo ID: | 985202005 | Agent Code: | |
| Type: | Real | | |
| Tax Area: | 0110 - C-50F1E1H2 | Land Use Code | 11 |
| Open Space: | N | DFL | N |
| Historic Property: | N | Remodel Property: | N |
| Multi-Family Redevelopment: | N | | |
| Township: | 31N | Section: | 35 |
| Range: | 1W |
Location |
| Address: | 1920 SPRUCE ST PORT TOWNSEND, WA 98368 | Mapsco: | 097/050 |
| Neighborhood: | PORTION PETTYGROVES 2ND LYING W OF CHERRY,QED SP | Map ID: | |
| Neighborhood CD: | 6410 |
Owner |
| Name: | WILLIAM S GEORGE | Owner ID: | 113228 |
| Mailing Address: | SARAH CHAPMAN 1920 SPRUCE ST PORT TOWNSEND, WA 98368 | % Ownership: | 100.0000000000% |
| | | Exemptions: | |
Pay Tax Due
Select the appropriate checkbox next to the year to be paid. Multiple years may be selected.
*Convenience Fee not included
Taxes and Assessment Details
Property Tax Information as of
03/11/2026
Click on "Statement Details" to expand or collapse a tax statement.
* Please enter a valid date ** Please enter a valid date *
Statement Details |
| 2026 | 27416 | STATE - STATE LEVY (SCHOOL) | $587.73 | $587.72 | $0.00 | $0.00 | $0.00 | $1175.45 |
| 2026 | 27416 | COUNTY - COUNTY LEVIES (CE, DD, VET, MH) | $234.97 | $234.96 | $0.00 | $0.00 | $0.00 | $469.93 |
| 2026 | 27416 | CONSERVE - CONSERVATION FUTURES | $7.05 | $7.04 | $0.00 | $0.00 | $0.00 | $14.09 |
| 2026 | 27416 | CITYPT - CITY OF PT | $333.52 | $333.52 | $0.00 | $0.00 | $0.00 | $667.04 |
| 2026 | 27416 | PORTPT - PORT DISTRICT | $94.91 | $94.89 | $0.00 | $0.00 | $0.00 | $189.80 |
| 2026 | 27416 | PUD1 - PUD #1 | $15.29 | $15.28 | $0.00 | $0.00 | $0.00 | $30.57 |
| 2026 | 27416 | HD2 - HOSP DIST #2 | $13.71 | $13.70 | $0.00 | $0.00 | $0.00 | $27.41 |
| 2026 | 27416 | SD50 - SCHOOL DIST #50 | $465.62 | $465.59 | $0.00 | $0.00 | $0.00 | $931.21 |
| 2026 | 27416 | FD1 - FIRE DISTRICT #1 | $311.16 | $311.15 | $0.00 | $0.00 | $0.00 | $622.31 |
| 2026 | 27416 | EMS1 - FIRE DIST #1 EMS | $119.64 | $119.63 | $0.00 | $0.00 | $0.00 | $239.27 |
| 2026 | 27416 | JCCD - JC Conservation District | $2.55 | $2.55 | $0.00 | $0.00 | $0.00 | $5.10 |
| 2026 | 27416 | NWA - Noxious Weed Assessment | $2.98 | $2.97 | $0.00 | $0.00 | $0.00 | $5.95 |
| 2026 | 27416 | TOTAL: | $2189.13 | $2189.00 | $0.00 | $0.00 | $0.00 | $4378.13 |
|
| 2026 | 27416 | $2189.13 | $2189.00 | $0.00 | $0.00 | $0.00 | $4378.13 |
Statement Details |
| 2025 | 27488 | STATE - STATE LEVY (SCHOOL) | $576.22 | $0.00 | $0.00 | $0.00 | $576.22 | $0.00 |
| 2025 | 27488 | COUNTY - COUNTY LEVIES (CE, DD, VET, MH) | $251.39 | $0.00 | $0.00 | $0.00 | $251.39 | $0.00 |
| 2025 | 27488 | CONSERVE - CONSERVATION FUTURES | $7.54 | $0.00 | $0.00 | $0.00 | $7.54 | $0.00 |
| 2025 | 27488 | CITYPT - CITY OF PT | $358.70 | $0.00 | $0.00 | $0.00 | $358.70 | $0.00 |
| 2025 | 27488 | PORTPT - PORT DISTRICT | $102.58 | $0.00 | $0.00 | $0.00 | $102.58 | $0.00 |
| 2025 | 27488 | PUD1 - PUD #1 | $16.45 | $0.00 | $0.00 | $0.00 | $16.45 | $0.00 |
| 2025 | 27488 | HD2 - HOSP DIST #2 | $14.67 | $0.00 | $0.00 | $0.00 | $14.67 | $0.00 |
| 2025 | 27488 | SD50 - SCHOOL DIST #50 | $335.48 | $0.00 | $0.00 | $0.00 | $335.48 | $0.00 |
| 2025 | 27488 | FD1 - FIRE DISTRICT #1 | $331.75 | $0.00 | $0.00 | $0.00 | $331.75 | $0.00 |
| 2025 | 27488 | EMS1 - FIRE DIST #1 EMS | $127.60 | $0.00 | $0.00 | $0.00 | $127.60 | $0.00 |
| 2025 | 27488 | TOTAL: | $2122.38 | $0.00 | $0.00 | $0.00 | $2122.38 | $0.00 |
|
| 2025 | 27488 | $2122.38 | $0.00 | $0.00 | $0.00 | $2122.38 | $0.00 |
Statement Details |
| 2024 | 27546 | STATE - STATE LEVY (SCHOOL) | $92.22 | $92.22 | $0.00 | $0.00 | $184.44 | $0.00 |
| 2024 | 27546 | COUNTY - COUNTY LEVIES (CE, DD, VET, MH) | $60.63 | $60.62 | $0.00 | $0.00 | $121.25 | $0.00 |
| 2024 | 27546 | CONSERVE - CONSERVATION FUTURES | $1.82 | $1.82 | $0.00 | $0.00 | $3.64 | $0.00 |
| 2024 | 27546 | CITYPT - CITY OF PT | $83.31 | $83.31 | $0.00 | $0.00 | $166.62 | $0.00 |
| 2024 | 27546 | PORTPT - PORT DISTRICT | $25.05 | $25.03 | $0.00 | $0.00 | $50.08 | $0.00 |
| 2024 | 27546 | PUD1 - PUD #1 | $3.98 | $3.98 | $0.00 | $0.00 | $7.96 | $0.00 |
| 2024 | 27546 | HD2 - HOSP DIST #2 | $3.54 | $3.54 | $0.00 | $0.00 | $7.08 | $0.00 |
| 2024 | 27546 | SD50 - SCHOOL DIST #50 | $0.00 | $0.00 | $0.00 | $0.00 | $0.00 | $0.00 |
| 2024 | 27546 | FD1 - FIRE DISTRICT #1 | $80.17 | $80.16 | $0.00 | $0.00 | $160.33 | $0.00 |
| 2024 | 27546 | EMS1 - FIRE DIST #1 EMS | $30.62 | $30.62 | $0.00 | $0.00 | $61.24 | $0.00 |
| 2024 | 27546 | TOTAL: | $381.34 | $381.30 | $0.00 | $0.00 | $762.64 | $0.00 |
|
| 2024 | 27546 | $381.34 | $381.30 | $0.00 | $0.00 | $762.64 | $0.00 |
Statement Details |
| 2023 | 27588 | STATE - STATE LEVY (SCHOOL) | $93.93 | $93.93 | $0.00 | $0.00 | $187.86 | $0.00 |
| 2023 | 27588 | COUNTY - COUNTY LEVIES (CE, DD, VET, MH) | $62.92 | $62.89 | $0.00 | $0.00 | $125.81 | $0.00 |
| 2023 | 27588 | CONSERVE - CONSERVATION FUTURES | $1.89 | $1.88 | $0.00 | $0.00 | $3.77 | $0.00 |
| 2023 | 27588 | CITYPT - CITY OF PT | $85.41 | $85.40 | $0.00 | $0.00 | $170.81 | $0.00 |
| 2023 | 27588 | PORTPT - PORT DISTRICT | $26.51 | $26.50 | $0.00 | $0.00 | $53.01 | $0.00 |
| 2023 | 27588 | PUD1 - PUD #1 | $4.17 | $4.17 | $0.00 | $0.00 | $8.34 | $0.00 |
| 2023 | 27588 | HD2 - HOSP DIST #2 | $3.68 | $3.66 | $0.00 | $0.00 | $7.34 | $0.00 |
| 2023 | 27588 | SD50 - SCHOOL DIST #50 | $0.00 | $0.00 | $0.00 | $0.00 | $0.00 | $0.00 |
| 2023 | 27588 | FD1 - FIRE DISTRICT #1 | $51.83 | $51.82 | $0.00 | $0.00 | $103.65 | $0.00 |
| 2023 | 27588 | EMS1 - FIRE DIST #1 EMS | $22.05 | $22.04 | $0.00 | $0.00 | $44.09 | $0.00 |
| 2023 | 27588 | TOTAL: | $352.39 | $352.29 | $0.00 | $0.00 | $704.68 | $0.00 |
|
| 2023 | 27588 | $352.39 | $352.29 | $0.00 | $0.00 | $704.68 | $0.00 |
Values
| (+) Improvement Homesite Value: | + | $206,269 | |
| (+) Improvement Non-Homesite Value: | + | $0 | |
| (+) Land Homesite Value: | + | $305,000 | |
| (+) Land Non-Homesite Value: | + | $0 | |
| (+) Curr Use (HS): | + | $0 | $0 |
| (+) Curr Use (NHS): | + | $0 | $0 |
| | | -------------------------- | |
| (=) Market Value: | = | $511,269 | |
| (–) Productivity Loss: | – | $0 | |
| | | -------------------------- | |
| (=) Subtotal: | = | $511,269 | |
| (+) Senior Appraised Value: | + | $0 | |
| (+) Non-Senior Appraised Value: | + | $511,269 | |
| | | -------------------------- | |
| (=) Total Appraised Value: | = | $511,269 | |
| (–) Senior Exemption Loss: | – | $0 | |
| (–) Exemption Loss: | – | $0 | |
| | | -------------------------- | |
| (=) Taxable Value: | = | $511,269 | |
Taxing Jurisdiction
| Owner: | WILLIAM S GEORGE | | |
| % Ownership: | 100.0000000000% | | |
| Total Value: | $511,269 | | |
| Tax Area: | 0110 - C-50F1E1H2 |
| CE | COUNTY CURRENT EXPENSE | 0.9034619479 | $511,269 | $511,269 | $461.91 | | |
| CNTYDD | DEVELOPMENTAL DISABILITIES | 0.0052121823 | $511,269 | $511,269 | $2.66 | | |
| CNTYVET | VETERANS RELIEF | 0.0052777810 | $511,269 | $511,269 | $2.70 | | |
| MENTAL | MENTAL HEALTH | 0.0052121823 | $511,269 | $511,269 | $2.66 | | |
| PTGEN | CITY OF PT GENERAL | 0.8551967795 | $511,269 | $511,269 | $437.24 | | |
| PTLLL | CITY OF PT - LIBRARY LID LIFT | 0.4010114288 | $511,269 | $511,269 | $205.02 | | |
| PTMVBOND | CITY OF PT MV BOND | 0.0484717981 | $511,269 | $511,269 | $24.78 | | |
| HOSP2CASH | HOSP DIST #2 GENERAL | 0.0536075306 | $511,269 | $511,269 | $27.41 | | |
| SCH50BOND | SCHOOL DIST #50 BOND 2016 | 0.5377451389 | $511,269 | $511,269 | $274.93 | | |
| SCH50CP | SCHOOL DIST #50 CAP PROJ | 0.4573475088 | $511,269 | $511,269 | $233.83 | | |
| SCH50MO | SCHOOL DIST #50 EP & O | 0.8262822886 | $511,269 | $511,269 | $422.45 | | |
| CONSERVE | CONSERVATION FUTURES | 0.0275621078 | $511,269 | $511,269 | $14.09 | | |
| EMS1 | FIRE DIST #1 EMS | 0.4679948282 | $511,269 | $511,269 | $239.27 | | |
| FD1 | FIRE DIST #1 GENERAL | 1.2171942929 | $511,269 | $511,269 | $622.31 | | |
| PORTPT | PORT OF PT GENERAL | 0.1134941229 | $511,269 | $511,269 | $58.03 | | |
| PORTPTIDD | PORT OF PT IDD 2019 | 0.2577346692 | $511,269 | $511,269 | $131.77 | | |
| PUD1 | PUD #1 GENERAL | 0.0597888892 | $511,269 | $511,269 | $30.57 | | |
| STATE | STATE SCHOOL PART 1 | 1.4940692947 | $511,269 | $511,269 | $763.87 | | |
| STATE2 | STATE SCHOOL PART 2 | 0.8050170049 | $511,269 | $511,269 | $411.58 | | |
| | Total Tax Rate: | 8.5416817766 | | | | | |
| | | | | Taxes w/Current Exemptions: | $4,367.08 | | |
| | | | | Taxes w/o Exemptions: | $4,367.08 | | |
Improvement / Building
| Improvement #1: | Residential Bldg | State Code: | 11 | 880.0 sqft | Value: | $206,269 |
| Bathrooms (#): | 1 (FULL) | Bedrooms (#): | 2 | | Exterior Wall: | PL/T1 | Floor Construction: | FRAME | | Foundation: | CONPR | Heating/Cooling: | HPUMP | | Inside Verify: | YES-FIX | Roof Cover: | COMP |
|
| | Type | Description | Class CD | Sub Class CD | Year Built | Area |
| | MA | Main Area | 4 | 2S | 1997 | 440.0 |
| | MA2 | Second Floor Main Area | 4 | 2S | 1997 | 440.0 |
| | SHED | Shed (Table Not Dep) | 6 | * | 1997 | 180.0 |
| | SHED | Shed (Table Not Dep) | 4 | 2S | 1997 | 80.0 |
| | HRPO | House Roof Patio | 3 | * | 1997 | 48.0 |
Sketch
Property Image
Land
| 1 | 6410-1177L | | 0.0000 | 0.00 | 0.00 | 0.00 | 1.00 | $62,500 | $0 |
| 2 | 6410-1177L | | 0.0000 | 0.00 | 0.00 | 0.00 | 2.00 | $87,500 | $0 |
| 3 | 6410-1177L | | 0.0000 | 0.00 | 0.00 | 0.00 | 1.00 | $155,000 | $0 |
Roll Value History
| 2026 | N/A | N/A | N/A | N/A | N/A |
| 2025 | $206,269 | $305,000 | $0 | $511,269 | $511,269 |
| 2024 | $196,330 | $299,200 | $0 | $495,530 | $122,482 |
| 2023 | $188,477 | $280,350 | $0 | $468,827 | $122,482 |
| 2022 | $172,770 | $262,000 | $0 | $434,770 | $122,482 |
Deed and Sales History
| 1 | 08/04/2025 | SWD | Statutory Warranty Deed | SALLY H HOLM TRUSTEE | WILLIAM S GEORGE | | | $600,000.00 | 144731 | |
| 2 | 12/09/2002 | QCD | Quit Claim Deed | HOLM, SALLY H | HOLM REV TRUST, SALLY H | 0 | 0 | $0.00 | 96199 | 0 |
| 3 | 12/17/1998 | QCD | Quit Claim Deed | HOLM, NIELS T | HOLM, SALLY H | 0 | 0 | $0.00 | 86234 | 0 |
Payout Agreement
| No payout information available.. |