Property
Account |
| Property ID: | 38258 | Abbreviated Legal Description: | PETTYGROVE'S 2ND ADDITIONBLK 35 LTS 1 & 2CITY DSD LETTERCON @ OWNER'S REQ 7/13 |
| Parcel # / Geo ID: | 985203502 | Agent Code: | |
| Type: | Real | | |
| Tax Area: | 0110 - C-50F1E1H2 | Land Use Code | 11 |
| Open Space: | N | DFL | N |
| Historic Property: | N | Remodel Property: | N |
| Multi-Family Redevelopment: | N | | |
| Township: | 31N | Section: | 35 |
| Range: | 1W |
Location |
| Address: | 2250 ASH ST PORT TOWNSEND, WA 98368 | Mapsco: | 098/026 |
| Neighborhood: | PORTION PETTYGROVES 2ND LYING W OF CHERRY,QED SP | Map ID: | |
| Neighborhood CD: | 6410 |
Owner |
| Name: | MARR FAMILY REVOCABLE LIVING TRUST | Owner ID: | 100764 |
| Mailing Address: | CECIL W MARR TRUSTEE PATRICIA MEADE MARR TRUSTEE 2250 ASH ST PORT TOWNSEND, WA 98368-3310 | % Ownership: | 100.0000000000% |
| | | Exemptions: | |
Pay Tax Due
Select the appropriate checkbox next to the year to be paid. Multiple years may be selected.
*Convenience Fee not included
Taxes and Assessment Details
Property Tax Information as of
03/11/2026
Click on "Statement Details" to expand or collapse a tax statement.
* Please enter a valid date ** Please enter a valid date *
Statement Details |
| 2026 | 27443 | STATE - STATE LEVY (SCHOOL) | $1330.05 | $1330.04 | $0.00 | $0.00 | $0.00 | $2660.09 |
| 2026 | 27443 | COUNTY - COUNTY LEVIES (CE, DD, VET, MH) | $531.76 | $531.73 | $0.00 | $0.00 | $0.00 | $1063.49 |
| 2026 | 27443 | CONSERVE - CONSERVATION FUTURES | $15.95 | $15.94 | $0.00 | $0.00 | $0.00 | $31.89 |
| 2026 | 27443 | CITYPT - CITY OF PT | $754.77 | $754.77 | $0.00 | $0.00 | $0.00 | $1509.54 |
| 2026 | 27443 | PORTPT - PORT DISTRICT | $214.76 | $214.76 | $0.00 | $0.00 | $0.00 | $429.52 |
| 2026 | 27443 | PUD1 - PUD #1 | $34.59 | $34.59 | $0.00 | $0.00 | $0.00 | $69.18 |
| 2026 | 27443 | HD2 - HOSP DIST #2 | $31.02 | $31.01 | $0.00 | $0.00 | $0.00 | $62.03 |
| 2026 | 27443 | SD50 - SCHOOL DIST #50 | $1053.69 | $1053.68 | $0.00 | $0.00 | $0.00 | $2107.37 |
| 2026 | 27443 | FD1 - FIRE DISTRICT #1 | $704.16 | $704.16 | $0.00 | $0.00 | $0.00 | $1408.32 |
| 2026 | 27443 | EMS1 - FIRE DIST #1 EMS | $270.74 | $270.74 | $0.00 | $0.00 | $0.00 | $541.48 |
| 2026 | 27443 | JCCD - JC Conservation District | $2.55 | $2.55 | $0.00 | $0.00 | $0.00 | $5.10 |
| 2026 | 27443 | NWA - Noxious Weed Assessment | $2.98 | $2.97 | $0.00 | $0.00 | $0.00 | $5.95 |
| 2026 | 27443 | TOTAL: | $4947.02 | $4946.94 | $0.00 | $0.00 | $0.00 | $9893.96 |
|
| 2026 | 27443 | $4947.02 | $4946.94 | $0.00 | $0.00 | $0.00 | $9893.96 |
Statement Details |
| 2025 | 27515 | STATE - STATE LEVY (SCHOOL) | $1375.55 | $1375.54 | $0.00 | $0.00 | $2751.09 | $0.00 |
| 2025 | 27515 | COUNTY - COUNTY LEVIES (CE, DD, VET, MH) | $540.93 | $540.92 | $0.00 | $0.00 | $1081.85 | $0.00 |
| 2025 | 27515 | CONSERVE - CONSERVATION FUTURES | $16.22 | $16.22 | $0.00 | $0.00 | $32.44 | $0.00 |
| 2025 | 27515 | CITYPT - CITY OF PT | $780.08 | $780.06 | $0.00 | $0.00 | $1560.14 | $0.00 |
| 2025 | 27515 | PORTPT - PORT DISTRICT | $220.73 | $220.72 | $0.00 | $0.00 | $441.45 | $0.00 |
| 2025 | 27515 | PUD1 - PUD #1 | $35.40 | $35.39 | $0.00 | $0.00 | $70.79 | $0.00 |
| 2025 | 27515 | HD2 - HOSP DIST #2 | $31.56 | $31.56 | $0.00 | $0.00 | $63.12 | $0.00 |
| 2025 | 27515 | SD50 - SCHOOL DIST #50 | $1005.30 | $1005.29 | $0.00 | $0.00 | $2010.59 | $0.00 |
| 2025 | 27515 | FD1 - FIRE DISTRICT #1 | $713.81 | $713.81 | $0.00 | $0.00 | $1427.62 | $0.00 |
| 2025 | 27515 | EMS1 - FIRE DIST #1 EMS | $274.55 | $274.55 | $0.00 | $0.00 | $549.10 | $0.00 |
| 2025 | 27515 | JCCD - JC Conservation District | $2.55 | $2.55 | $0.00 | $0.00 | $5.10 | $0.00 |
| 2025 | 27515 | NWA - Noxious Weed Assessment | $2.15 | $2.15 | $0.00 | $0.00 | $4.30 | $0.00 |
| 2025 | 27515 | TOTAL: | $4998.83 | $4998.76 | $0.00 | $0.00 | $9997.59 | $0.00 |
|
| 2025 | 27515 | $4998.83 | $4998.76 | $0.00 | $0.00 | $9997.59 | $0.00 |
Statement Details |
| 2024 | 27573 | STATE - STATE LEVY (SCHOOL) | $1265.93 | $1265.92 | $0.00 | $0.00 | $2531.85 | $0.00 |
| 2024 | 27573 | COUNTY - COUNTY LEVIES (CE, DD, VET, MH) | $541.71 | $541.70 | $0.00 | $0.00 | $1083.41 | $0.00 |
| 2024 | 27573 | CONSERVE - CONSERVATION FUTURES | $16.25 | $16.24 | $0.00 | $0.00 | $32.49 | $0.00 |
| 2024 | 27573 | CITYPT - CITY OF PT | $774.03 | $774.00 | $0.00 | $0.00 | $1548.03 | $0.00 |
| 2024 | 27573 | PORTPT - PORT DISTRICT | $223.75 | $223.74 | $0.00 | $0.00 | $447.49 | $0.00 |
| 2024 | 27573 | PUD1 - PUD #1 | $35.58 | $35.58 | $0.00 | $0.00 | $71.16 | $0.00 |
| 2024 | 27573 | HD2 - HOSP DIST #2 | $31.61 | $31.60 | $0.00 | $0.00 | $63.21 | $0.00 |
| 2024 | 27573 | SD50 - SCHOOL DIST #50 | $1024.20 | $1024.19 | $0.00 | $0.00 | $2048.39 | $0.00 |
| 2024 | 27573 | FD1 - FIRE DISTRICT #1 | $716.26 | $716.26 | $0.00 | $0.00 | $1432.52 | $0.00 |
| 2024 | 27573 | EMS1 - FIRE DIST #1 EMS | $273.59 | $273.58 | $0.00 | $0.00 | $547.17 | $0.00 |
| 2024 | 27573 | JCCD - JC Conservation District | $2.55 | $2.55 | $0.00 | $0.00 | $5.10 | $0.00 |
| 2024 | 27573 | NWA - Noxious Weed Assessment | $2.15 | $2.15 | $0.00 | $0.00 | $4.30 | $0.00 |
| 2024 | 27573 | TOTAL: | $4907.61 | $4907.51 | $0.00 | $0.00 | $9815.12 | $0.00 |
|
| 2024 | 27573 | $4907.61 | $4907.51 | $0.00 | $0.00 | $9815.12 | $0.00 |
Statement Details |
| 2023 | 27615 | STATE - STATE LEVY (SCHOOL) | $1187.59 | $1187.58 | $0.00 | $0.00 | $2375.17 | $0.00 |
| 2023 | 27615 | COUNTY - COUNTY LEVIES (CE, DD, VET, MH) | $518.22 | $518.22 | $0.00 | $0.00 | $1036.44 | $0.00 |
| 2023 | 27615 | CONSERVE - CONSERVATION FUTURES | $15.54 | $15.54 | $0.00 | $0.00 | $31.08 | $0.00 |
| 2023 | 27615 | CITYPT - CITY OF PT | $732.43 | $732.42 | $0.00 | $0.00 | $1464.85 | $0.00 |
| 2023 | 27615 | PORTPT - PORT DISTRICT | $218.31 | $218.30 | $0.00 | $0.00 | $436.61 | $0.00 |
| 2023 | 27615 | PUD1 - PUD #1 | $34.35 | $34.35 | $0.00 | $0.00 | $68.70 | $0.00 |
| 2023 | 27615 | HD2 - HOSP DIST #2 | $30.25 | $30.23 | $0.00 | $0.00 | $60.48 | $0.00 |
| 2023 | 27615 | SD50 - SCHOOL DIST #50 | $942.38 | $942.35 | $0.00 | $0.00 | $1884.73 | $0.00 |
| 2023 | 27615 | FD1 - FIRE DISTRICT #1 | $426.92 | $426.91 | $0.00 | $0.00 | $853.83 | $0.00 |
| 2023 | 27615 | EMS1 - FIRE DIST #1 EMS | $181.60 | $181.60 | $0.00 | $0.00 | $363.20 | $0.00 |
| 2023 | 27615 | JCCD - JC Conservation District | $2.55 | $2.55 | $0.00 | $0.00 | $5.10 | $0.00 |
| 2023 | 27615 | NWA - Noxious Weed Assessment | $2.15 | $2.15 | $0.00 | $0.00 | $4.30 | $0.00 |
| 2023 | 27615 | TOTAL: | $4292.29 | $4292.20 | $0.00 | $0.00 | $8584.49 | $0.00 |
|
| 2023 | 27615 | $4292.29 | $4292.20 | $0.00 | $0.00 | $8584.49 | $0.00 |
Values
| (+) Improvement Homesite Value: | + | $0 | |
| (+) Improvement Non-Homesite Value: | + | $834,521 | |
| (+) Land Homesite Value: | + | $0 | |
| (+) Land Non-Homesite Value: | + | $322,500 | |
| (+) Curr Use (HS): | + | $0 | $0 |
| (+) Curr Use (NHS): | + | $0 | $0 |
| | | -------------------------- | |
| (=) Market Value: | = | $1,157,021 | |
| (–) Productivity Loss: | – | $0 | |
| | | -------------------------- | |
| (=) Subtotal: | = | $1,157,021 | |
| (+) Senior Appraised Value: | + | $0 | |
| (+) Non-Senior Appraised Value: | + | $1,157,021 | |
| | | -------------------------- | |
| (=) Total Appraised Value: | = | $1,157,021 | |
| (–) Senior Exemption Loss: | – | $0 | |
| (–) Exemption Loss: | – | $0 | |
| | | -------------------------- | |
| (=) Taxable Value: | = | $1,157,021 | |
Taxing Jurisdiction
| Owner: | MARR FAMILY REVOCABLE LIVING TRUST | | |
| % Ownership: | 100.0000000000% | | |
| Total Value: | $1,157,021 | | |
| Tax Area: | 0110 - C-50F1E1H2 |
| CE | COUNTY CURRENT EXPENSE | 0.9034619479 | $1,157,021 | $1,157,021 | $1,045.32 | | |
| CNTYDD | DEVELOPMENTAL DISABILITIES | 0.0052121823 | $1,157,021 | $1,157,021 | $6.03 | | |
| CNTYVET | VETERANS RELIEF | 0.0052777810 | $1,157,021 | $1,157,021 | $6.11 | | |
| MENTAL | MENTAL HEALTH | 0.0052121823 | $1,157,021 | $1,157,021 | $6.03 | | |
| PTGEN | CITY OF PT GENERAL | 0.8551967795 | $1,157,021 | $1,157,021 | $989.48 | | |
| PTLLL | CITY OF PT - LIBRARY LID LIFT | 0.4010114288 | $1,157,021 | $1,157,021 | $463.98 | | |
| PTMVBOND | CITY OF PT MV BOND | 0.0484717981 | $1,157,021 | $1,157,021 | $56.08 | | |
| HOSP2CASH | HOSP DIST #2 GENERAL | 0.0536075306 | $1,157,021 | $1,157,021 | $62.03 | | |
| SCH50BOND | SCHOOL DIST #50 BOND 2016 | 0.5377451389 | $1,157,021 | $1,157,021 | $622.18 | | |
| SCH50CP | SCHOOL DIST #50 CAP PROJ | 0.4573475088 | $1,157,021 | $1,157,021 | $529.16 | | |
| SCH50MO | SCHOOL DIST #50 EP & O | 0.8262822886 | $1,157,021 | $1,157,021 | $956.03 | | |
| CONSERVE | CONSERVATION FUTURES | 0.0275621078 | $1,157,021 | $1,157,021 | $31.89 | | |
| EMS1 | FIRE DIST #1 EMS | 0.4679948282 | $1,157,021 | $1,157,021 | $541.48 | | |
| FD1 | FIRE DIST #1 GENERAL | 1.2171942929 | $1,157,021 | $1,157,021 | $1,408.32 | | |
| PORTPT | PORT OF PT GENERAL | 0.1134941229 | $1,157,021 | $1,157,021 | $131.32 | | |
| PORTPTIDD | PORT OF PT IDD 2019 | 0.2577346692 | $1,157,021 | $1,157,021 | $298.20 | | |
| PUD1 | PUD #1 GENERAL | 0.0597888892 | $1,157,021 | $1,157,021 | $69.18 | | |
| STATE | STATE SCHOOL PART 1 | 1.4940692947 | $1,157,021 | $1,157,021 | $1,728.67 | | |
| STATE2 | STATE SCHOOL PART 2 | 0.8050170049 | $1,157,021 | $1,157,021 | $931.42 | | |
| | Total Tax Rate: | 8.5416817766 | | | | | |
| | | | | Taxes w/Current Exemptions: | $9,882.91 | | |
| | | | | Taxes w/o Exemptions: | $9,882.91 | | |
Improvement / Building
| Improvement #1: | Residential Bldg | State Code: | 11 | 2610.0 sqft | Value: | $834,521 |
| Bathrooms (#): | 2 (FULL) | Bathrooms (#): | 1 (HALF) | | Bedrooms (#): | 3 | Exterior Wall: | SI/ST | | Fireplace: | SIN 1-AVG | Floor Construction: | FRAME | | Foundation: | CONPR | Heating/Cooling: | HTWTR | | Inside Verify: | YES-FIX | Roof Cover: | COMP |
|
| | Type | Description | Class CD | Sub Class CD | Year Built | Area |
| | MA | Main Area | 4 | 1S | 2004 | 2610.0 |
| | HDECK | House Deck | 4 | * | 2004 | 608.0 |
| | GATT | House Attached Garage | 4 | 1S | 2004 | 462.0 |
| | BSMTF | House basement finished | 3 | * | 2004 | 1952.0 |
| | HRPO | House Roof Patio | 4 | * | 2004 | 464.0 |
Sketch
Property Image
Land
| 1 | 6410-1173L | | 0.0000 | 0.00 | 0.00 | 0.00 | 1.00 | $225,000 | $0 |
| 2 | 6410-1173L | | 0.0000 | 0.00 | 0.00 | 0.00 | 1.00 | $97,500 | $0 |
Roll Value History
| 2026 | N/A | N/A | N/A | N/A | N/A |
| 2025 | $834,521 | $322,500 | $0 | $1,157,021 | $1,157,021 |
| 2024 | $825,480 | $321,750 | $0 | $1,147,230 | $1,147,230 |
| 2023 | $792,461 | $301,875 | $0 | $1,094,336 | $1,094,336 |
| 2022 | $726,422 | $282,500 | $0 | $1,008,922 | $1,008,922 |
Deed and Sales History
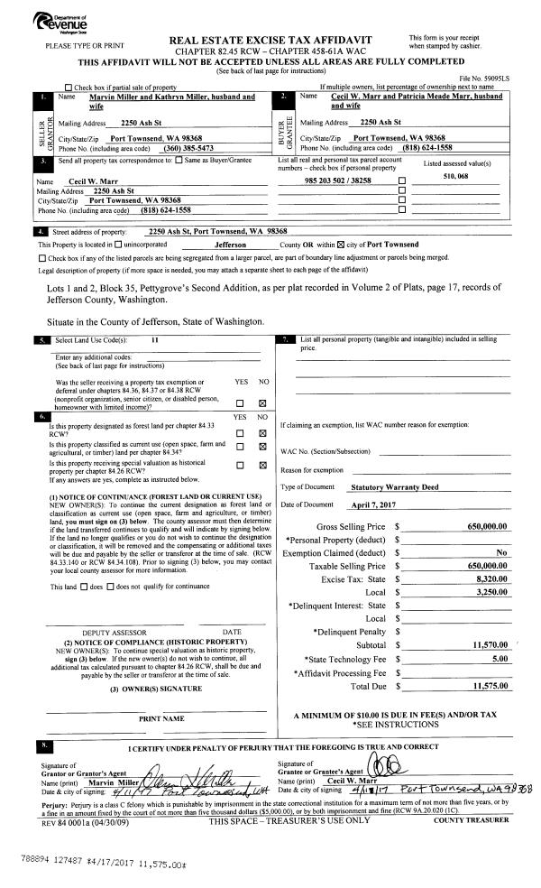
| 1 | 03/27/2019 | QCD | Quit Claim Deed | CECIL W & PATRICIA M MARR | MARR FAMILY REVOCABLE LIVING TRUST | | | | 132044 | |
| 2 | 04/07/2017 | SWD | Statutory Warranty Deed | MARVIN MILLER | CECIL W & PATRICIA M MARR | | | $650,000.00 | 127487 | |
| 3 | 07/08/2003 | SWD | Statutory Warranty Deed | GARRISON, VERNON I/TRUSTE | MILLER, MARVIN/KATHRYN | 0 | 0 | $137,030.00 | 97770 | 0 |
| 4 | 03/26/2002 | SWD | Statutory Warranty Deed | SARAH D BARDER TRUSTEE | GARRISON, VERNON I | 0 | 0 | $40,000.00 | 94322 | 0 |
Payout Agreement
| No payout information available.. |