Property
Account |
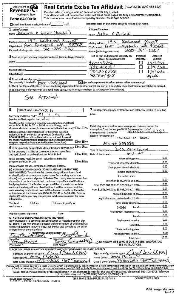
| Property ID: | 38275 | Abbreviated Legal Description: | PETTYGROVE'S 2ND ADDITION BLK 38 LOTS 1 & 2 |
| Parcel # / Geo ID: | 985203801 | Agent Code: | |
| Type: | Real | | |
| Tax Area: | 0110 - C-50F1E1H2 | Land Use Code | 91 |
| Open Space: | N | DFL | N |
| Historic Property: | N | Remodel Property: | N |
| Multi-Family Redevelopment: | N | | |
| Township: | 31N | Section: | 35 |
| Range: | 1W |
Location |
| Address: | | Mapsco: | 098/041 |
| Neighborhood: | PORTION PETTYGROVES 2ND LYING W OF CHERRY,QED SP | Map ID: | |
| Neighborhood CD: | 6410 |
Owner |
| Name: | HELEN E BRINK | Owner ID: | 112783 |
| Mailing Address: | 1931 REDWOOD ST PORT TOWNSEND, WA 98368-3414 | % Ownership: | 100.0000000000% |
| | | Exemptions: | |
Pay Tax Due
Select the appropriate checkbox next to the year to be paid. Multiple years may be selected.
*Convenience Fee not included
Taxes and Assessment Details
Property Tax Information as of
03/13/2026
Click on "Statement Details" to expand or collapse a tax statement.
* Please enter a valid date ** Please enter a valid date *
Statement Details |
| 2026 | 27460 | STATE - STATE LEVY (SCHOOL) | $107.78 | $107.76 | $0.00 | $0.00 | $0.00 | $215.54 |
| 2026 | 27460 | COUNTY - COUNTY LEVIES (CE, DD, VET, MH) | $43.10 | $43.07 | $0.00 | $0.00 | $0.00 | $86.17 |
| 2026 | 27460 | CONSERVE - CONSERVATION FUTURES | $1.29 | $1.29 | $0.00 | $0.00 | $0.00 | $2.58 |
| 2026 | 27460 | CITYPT - CITY OF PT | $61.16 | $61.14 | $0.00 | $0.00 | $0.00 | $122.30 |
| 2026 | 27460 | PORTPT - PORT DISTRICT | $17.40 | $17.40 | $0.00 | $0.00 | $0.00 | $34.80 |
| 2026 | 27460 | PUD1 - PUD #1 | $2.81 | $2.80 | $0.00 | $0.00 | $0.00 | $5.61 |
| 2026 | 27460 | HD2 - HOSP DIST #2 | $2.52 | $2.51 | $0.00 | $0.00 | $0.00 | $5.03 |
| 2026 | 27460 | SD50 - SCHOOL DIST #50 | $85.38 | $85.37 | $0.00 | $0.00 | $0.00 | $170.75 |
| 2026 | 27460 | FD1 - FIRE DISTRICT #1 | $57.06 | $57.05 | $0.00 | $0.00 | $0.00 | $114.11 |
| 2026 | 27460 | EMS1 - FIRE DIST #1 EMS | $21.94 | $21.93 | $0.00 | $0.00 | $0.00 | $43.87 |
| 2026 | 27460 | JCCD - JC Conservation District | $2.53 | $2.53 | $0.00 | $0.00 | $0.00 | $5.06 |
| 2026 | 27460 | NWA - Noxious Weed Assessment | $2.98 | $2.97 | $0.00 | $0.00 | $0.00 | $5.95 |
| 2026 | 27460 | WAT - Clean Water District | $13.00 | $13.00 | $0.00 | $0.00 | $0.00 | $26.00 |
| 2026 | 27460 | TOTAL: | $418.95 | $418.82 | $0.00 | $0.00 | $0.00 | $837.77 |
|
| 2026 | 27460 | $418.95 | $418.82 | $0.00 | $0.00 | $0.00 | $837.77 |
Statement Details |
| 2025 | 27532 | STATE - STATE LEVY (SCHOOL) | $108.82 | $108.80 | $0.00 | $0.00 | $217.62 | $0.00 |
| 2025 | 27532 | COUNTY - COUNTY LEVIES (CE, DD, VET, MH) | $42.79 | $42.78 | $0.00 | $0.00 | $85.57 | $0.00 |
| 2025 | 27532 | CONSERVE - CONSERVATION FUTURES | $1.29 | $1.28 | $0.00 | $0.00 | $2.57 | $0.00 |
| 2025 | 27532 | CITYPT - CITY OF PT | $61.71 | $61.70 | $0.00 | $0.00 | $123.41 | $0.00 |
| 2025 | 27532 | PORTPT - PORT DISTRICT | $17.47 | $17.45 | $0.00 | $0.00 | $34.92 | $0.00 |
| 2025 | 27532 | PUD1 - PUD #1 | $2.80 | $2.80 | $0.00 | $0.00 | $5.60 | $0.00 |
| 2025 | 27532 | HD2 - HOSP DIST #2 | $2.50 | $2.49 | $0.00 | $0.00 | $4.99 | $0.00 |
| 2025 | 27532 | SD50 - SCHOOL DIST #50 | $79.53 | $79.52 | $0.00 | $0.00 | $159.05 | $0.00 |
| 2025 | 27532 | FD1 - FIRE DISTRICT #1 | $56.47 | $56.46 | $0.00 | $0.00 | $112.93 | $0.00 |
| 2025 | 27532 | EMS1 - FIRE DIST #1 EMS | $21.72 | $21.72 | $0.00 | $0.00 | $43.44 | $0.00 |
| 2025 | 27532 | JCCD - JC Conservation District | $2.53 | $2.53 | $0.00 | $0.00 | $5.06 | $0.00 |
| 2025 | 27532 | NWA - Noxious Weed Assessment | $2.15 | $2.15 | $0.00 | $0.00 | $4.30 | $0.00 |
| 2025 | 27532 | WAT - Clean Water District | $13.00 | $13.00 | $0.00 | $0.00 | $26.00 | $0.00 |
| 2025 | 27532 | TOTAL: | $412.78 | $412.68 | $0.00 | $0.00 | $825.46 | $0.00 |
|
| 2025 | 27532 | $412.78 | $412.68 | $0.00 | $0.00 | $825.46 | $0.00 |
Statement Details |
| 2024 | 27590 | STATE - STATE LEVY (SCHOOL) | $100.21 | $100.20 | $0.00 | $0.00 | $200.41 | $0.00 |
| 2024 | 27590 | COUNTY - COUNTY LEVIES (CE, DD, VET, MH) | $42.88 | $42.87 | $0.00 | $0.00 | $85.75 | $0.00 |
| 2024 | 27590 | CONSERVE - CONSERVATION FUTURES | $1.29 | $1.28 | $0.00 | $0.00 | $2.57 | $0.00 |
| 2024 | 27590 | CITYPT - CITY OF PT | $61.27 | $61.26 | $0.00 | $0.00 | $122.53 | $0.00 |
| 2024 | 27590 | PORTPT - PORT DISTRICT | $17.72 | $17.70 | $0.00 | $0.00 | $35.42 | $0.00 |
| 2024 | 27590 | PUD1 - PUD #1 | $2.82 | $2.81 | $0.00 | $0.00 | $5.63 | $0.00 |
| 2024 | 27590 | HD2 - HOSP DIST #2 | $2.50 | $2.50 | $0.00 | $0.00 | $5.00 | $0.00 |
| 2024 | 27590 | SD50 - SCHOOL DIST #50 | $81.08 | $81.06 | $0.00 | $0.00 | $162.14 | $0.00 |
| 2024 | 27590 | FD1 - FIRE DISTRICT #1 | $56.70 | $56.69 | $0.00 | $0.00 | $113.39 | $0.00 |
| 2024 | 27590 | EMS1 - FIRE DIST #1 EMS | $21.66 | $21.65 | $0.00 | $0.00 | $43.31 | $0.00 |
| 2024 | 27590 | JCCD - JC Conservation District | $2.53 | $2.53 | $0.00 | $0.00 | $5.06 | $0.00 |
| 2024 | 27590 | NWA - Noxious Weed Assessment | $2.15 | $2.15 | $0.00 | $0.00 | $4.30 | $0.00 |
| 2024 | 27590 | WAT - Clean Water District | $12.50 | $12.50 | $0.00 | $0.00 | $25.00 | $0.00 |
| 2024 | 27590 | TOTAL: | $405.31 | $405.20 | $0.00 | $0.00 | $810.51 | $0.00 |
|
| 2024 | 27590 | $405.31 | $405.20 | $0.00 | $0.00 | $810.51 | $0.00 |
Statement Details |
| 2023 | 27632 | STATE - STATE LEVY (SCHOOL) | $97.11 | $97.11 | $0.00 | $0.00 | $194.22 | $0.00 |
| 2023 | 27632 | COUNTY - COUNTY LEVIES (CE, DD, VET, MH) | $42.38 | $42.37 | $0.00 | $0.00 | $84.75 | $0.00 |
| 2023 | 27632 | CONSERVE - CONSERVATION FUTURES | $1.27 | $1.27 | $0.00 | $0.00 | $2.54 | $0.00 |
| 2023 | 27632 | CITYPT - CITY OF PT | $59.90 | $59.88 | $0.00 | $0.00 | $119.78 | $0.00 |
| 2023 | 27632 | PORTPT - PORT DISTRICT | $17.85 | $17.85 | $0.00 | $0.00 | $35.70 | $0.00 |
| 2023 | 27632 | PUD1 - PUD #1 | $2.81 | $2.81 | $0.00 | $0.00 | $5.62 | $0.00 |
| 2023 | 27632 | HD2 - HOSP DIST #2 | $2.48 | $2.47 | $0.00 | $0.00 | $4.95 | $0.00 |
| 2023 | 27632 | SD50 - SCHOOL DIST #50 | $77.07 | $77.05 | $0.00 | $0.00 | $154.12 | $0.00 |
| 2023 | 27632 | FD1 - FIRE DISTRICT #1 | $34.91 | $34.91 | $0.00 | $0.00 | $69.82 | $0.00 |
| 2023 | 27632 | EMS1 - FIRE DIST #1 EMS | $14.85 | $14.85 | $0.00 | $0.00 | $29.70 | $0.00 |
| 2023 | 27632 | JCCD - JC Conservation District | $2.53 | $2.53 | $0.00 | $0.00 | $5.06 | $0.00 |
| 2023 | 27632 | NWA - Noxious Weed Assessment | $2.15 | $2.15 | $0.00 | $0.00 | $4.30 | $0.00 |
| 2023 | 27632 | WAT - Clean Water District | $12.00 | $12.00 | $0.00 | $0.00 | $24.00 | $0.00 |
| 2023 | 27632 | TOTAL: | $367.31 | $367.25 | $0.00 | $0.00 | $734.56 | $0.00 |
|
| 2023 | 27632 | $367.31 | $367.25 | $0.00 | $0.00 | $734.56 | $0.00 |
Values
| (+) Improvement Homesite Value: | + | $0 | |
| (+) Improvement Non-Homesite Value: | + | $0 | |
| (+) Land Homesite Value: | + | $0 | |
| (+) Land Non-Homesite Value: | + | $93,750 | |
| (+) Curr Use (HS): | + | $0 | $0 |
| (+) Curr Use (NHS): | + | $0 | $0 |
| | | -------------------------- | |
| (=) Market Value: | = | $93,750 | |
| (–) Productivity Loss: | – | $0 | |
| | | -------------------------- | |
| (=) Subtotal: | = | $93,750 | |
| (+) Senior Appraised Value: | + | $0 | |
| (+) Non-Senior Appraised Value: | + | $93,750 | |
| | | -------------------------- | |
| (=) Total Appraised Value: | = | $93,750 | |
| (–) Senior Exemption Loss: | – | $0 | |
| (–) Exemption Loss: | – | $0 | |
| | | -------------------------- | |
| (=) Taxable Value: | = | $93,750 | |
Taxing Jurisdiction
| Owner: | HELEN E BRINK | | |
| % Ownership: | 100.0000000000% | | |
| Total Value: | $93,750 | | |
| Tax Area: | 0110 - C-50F1E1H2 |
| CE | COUNTY CURRENT EXPENSE | 0.9034619479 | $93,750 | $93,750 | $84.70 | | |
| CNTYDD | DEVELOPMENTAL DISABILITIES | 0.0052121823 | $93,750 | $93,750 | $0.49 | | |
| CNTYVET | VETERANS RELIEF | 0.0052777810 | $93,750 | $93,750 | $0.49 | | |
| MENTAL | MENTAL HEALTH | 0.0052121823 | $93,750 | $93,750 | $0.49 | | |
| PTGEN | CITY OF PT GENERAL | 0.8551967795 | $93,750 | $93,750 | $80.17 | | |
| PTLLL | CITY OF PT - LIBRARY LID LIFT | 0.4010114288 | $93,750 | $93,750 | $37.59 | | |
| PTMVBOND | CITY OF PT MV BOND | 0.0484717981 | $93,750 | $93,750 | $4.54 | | |
| HOSP2CASH | HOSP DIST #2 GENERAL | 0.0536075306 | $93,750 | $93,750 | $5.03 | | |
| SCH50BOND | SCHOOL DIST #50 BOND 2016 | 0.5377451389 | $93,750 | $93,750 | $50.41 | | |
| SCH50CP | SCHOOL DIST #50 CAP PROJ | 0.4573475088 | $93,750 | $93,750 | $42.88 | | |
| SCH50MO | SCHOOL DIST #50 EP & O | 0.8262822886 | $93,750 | $93,750 | $77.46 | | |
| CONSERVE | CONSERVATION FUTURES | 0.0275621078 | $93,750 | $93,750 | $2.58 | | |
| EMS1 | FIRE DIST #1 EMS | 0.4679948282 | $93,750 | $93,750 | $43.87 | | |
| FD1 | FIRE DIST #1 GENERAL | 1.2171942929 | $93,750 | $93,750 | $114.11 | | |
| PORTPT | PORT OF PT GENERAL | 0.1134941229 | $93,750 | $93,750 | $10.64 | | |
| PORTPTIDD | PORT OF PT IDD 2019 | 0.2577346692 | $93,750 | $93,750 | $24.16 | | |
| PUD1 | PUD #1 GENERAL | 0.0597888892 | $93,750 | $93,750 | $5.61 | | |
| STATE | STATE SCHOOL PART 1 | 1.4940692947 | $93,750 | $93,750 | $140.07 | | |
| STATE2 | STATE SCHOOL PART 2 | 0.8050170049 | $93,750 | $93,750 | $75.47 | | |
| | Total Tax Rate: | 8.5416817766 | | | | | |
| | | | | Taxes w/Current Exemptions: | $800.76 | | |
| | | | | Taxes w/o Exemptions: | $800.76 | | |
Improvement / Building
Sketch
| No sketches available for this property. |
Property Image
Land
| 1 | 6410-1177L | | 0.0000 | 0.00 | 0.00 | 0.00 | 2.00 | $93,750 | $0 |
Roll Value History
| 2026 | N/A | N/A | N/A | N/A | N/A |
| 2025 | $0 | $93,750 | $0 | $93,750 | $93,750 |
| 2024 | $0 | $90,750 | $0 | $90,750 | $90,750 |
| 2023 | $0 | $86,625 | $0 | $86,625 | $86,625 |
| 2022 | $0 | $82,500 | $0 | $82,500 | $82,500 |
Deed and Sales History
| 1 | 06/02/2025 | DTH CERT | Death Certificate | KENNETH D BRINK | | | | | 0 | |
Payout Agreement
| No payout information available.. |