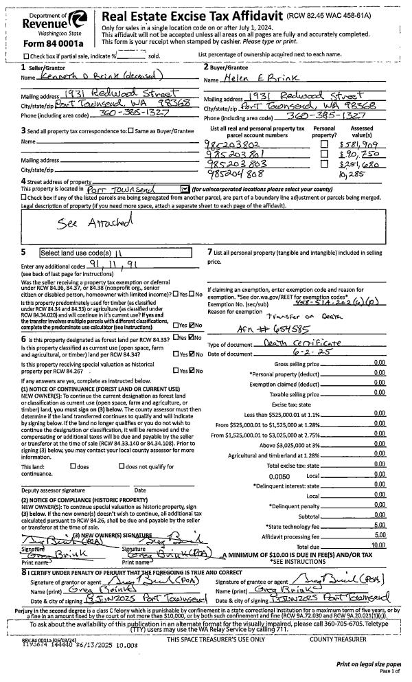
Property
Account |
| Property ID: | 38276 | Abbreviated Legal Description: | PETTYGROVE'S 2ND ADDITION BLK 38 LOTS 3 & 4 W1/2 VAC REDWOOD ST ADJ |
| Parcel # / Geo ID: | 985203802 | Agent Code: | |
| Type: | Real | | |
| Tax Area: | 0110 - C-50F1E1H2 | Land Use Code | 11 |
| Open Space: | N | DFL | N |
| Historic Property: | N | Remodel Property: | N |
| Multi-Family Redevelopment: | N | | |
| Township: | 31N | Section: | 35 |
| Range: | 1W |
Location |
| Address: | 1931 REDWOOD ST PORT TOWNSEND, WA 98368 | Mapsco: | 098/042 |
| Neighborhood: | PORTION PETTYGROVES 2ND LYING W OF CHERRY,QED SP | Map ID: | |
| Neighborhood CD: | 6410 |
Owner |
| Name: | HELEN E BRINK | Owner ID: | 112783 |
| Mailing Address: | 1931 REDWOOD ST PORT TOWNSEND, WA 98368-3414 | % Ownership: | 100.0000000000% |
| | | Exemptions: | |
Pay Tax Due
Select the appropriate checkbox next to the year to be paid. Multiple years may be selected.
*Convenience Fee not included
Taxes and Assessment Details
Property Tax Information as of
03/12/2026
Click on "Statement Details" to expand or collapse a tax statement.
* Please enter a valid date ** Please enter a valid date *
Statement Details |
| 2026 | 27461 | STATE - STATE LEVY (SCHOOL) | $673.65 | $673.64 | $0.00 | $0.00 | $0.00 | $1347.29 |
| 2026 | 27461 | COUNTY - COUNTY LEVIES (CE, DD, VET, MH) | $269.33 | $269.30 | $0.00 | $0.00 | $0.00 | $538.63 |
| 2026 | 27461 | CONSERVE - CONSERVATION FUTURES | $8.08 | $8.07 | $0.00 | $0.00 | $0.00 | $16.15 |
| 2026 | 27461 | CITYPT - CITY OF PT | $382.28 | $382.27 | $0.00 | $0.00 | $0.00 | $764.55 |
| 2026 | 27461 | PORTPT - PORT DISTRICT | $108.78 | $108.76 | $0.00 | $0.00 | $0.00 | $217.54 |
| 2026 | 27461 | PUD1 - PUD #1 | $17.52 | $17.52 | $0.00 | $0.00 | $0.00 | $35.04 |
| 2026 | 27461 | HD2 - HOSP DIST #2 | $15.71 | $15.70 | $0.00 | $0.00 | $0.00 | $31.41 |
| 2026 | 27461 | SD50 - SCHOOL DIST #50 | $533.68 | $533.66 | $0.00 | $0.00 | $0.00 | $1067.34 |
| 2026 | 27461 | FD1 - FIRE DISTRICT #1 | $356.65 | $356.64 | $0.00 | $0.00 | $0.00 | $713.29 |
| 2026 | 27461 | EMS1 - FIRE DIST #1 EMS | $137.13 | $137.12 | $0.00 | $0.00 | $0.00 | $274.25 |
| 2026 | 27461 | JCCD - JC Conservation District | $2.55 | $2.55 | $0.00 | $0.00 | $0.00 | $5.10 |
| 2026 | 27461 | NWA - Noxious Weed Assessment | $2.98 | $2.97 | $0.00 | $0.00 | $0.00 | $5.95 |
| 2026 | 27461 | TOTAL: | $2508.34 | $2508.20 | $0.00 | $0.00 | $0.00 | $5016.54 |
|
| 2026 | 27461 | $2508.34 | $2508.20 | $0.00 | $0.00 | $0.00 | $5016.54 |
Statement Details |
| 2025 | 27533 | STATE - STATE LEVY (SCHOOL) | $719.90 | $719.88 | $0.00 | $0.00 | $1439.78 | $0.00 |
| 2025 | 27533 | COUNTY - COUNTY LEVIES (CE, DD, VET, MH) | $283.09 | $283.08 | $0.00 | $0.00 | $566.17 | $0.00 |
| 2025 | 27533 | CONSERVE - CONSERVATION FUTURES | $8.49 | $8.49 | $0.00 | $0.00 | $16.98 | $0.00 |
| 2025 | 27533 | CITYPT - CITY OF PT | $408.25 | $408.25 | $0.00 | $0.00 | $816.50 | $0.00 |
| 2025 | 27533 | PORTPT - PORT DISTRICT | $115.53 | $115.51 | $0.00 | $0.00 | $231.04 | $0.00 |
| 2025 | 27533 | PUD1 - PUD #1 | $18.53 | $18.52 | $0.00 | $0.00 | $37.05 | $0.00 |
| 2025 | 27533 | HD2 - HOSP DIST #2 | $16.52 | $16.51 | $0.00 | $0.00 | $33.03 | $0.00 |
| 2025 | 27533 | SD50 - SCHOOL DIST #50 | $526.13 | $526.11 | $0.00 | $0.00 | $1052.24 | $0.00 |
| 2025 | 27533 | FD1 - FIRE DISTRICT #1 | $373.57 | $373.57 | $0.00 | $0.00 | $747.14 | $0.00 |
| 2025 | 27533 | EMS1 - FIRE DIST #1 EMS | $143.69 | $143.68 | $0.00 | $0.00 | $287.37 | $0.00 |
| 2025 | 27533 | JCCD - JC Conservation District | $2.55 | $2.55 | $0.00 | $0.00 | $5.10 | $0.00 |
| 2025 | 27533 | NWA - Noxious Weed Assessment | $2.15 | $2.15 | $0.00 | $0.00 | $4.30 | $0.00 |
| 2025 | 27533 | TOTAL: | $2618.40 | $2618.30 | $0.00 | $0.00 | $5236.70 | $0.00 |
|
| 2025 | 27533 | $2618.40 | $2618.30 | $0.00 | $0.00 | $5236.70 | $0.00 |
Statement Details |
| 2024 | 27591 | STATE - STATE LEVY (SCHOOL) | $659.13 | $659.11 | $0.00 | $0.00 | $1318.24 | $0.00 |
| 2024 | 27591 | COUNTY - COUNTY LEVIES (CE, DD, VET, MH) | $282.04 | $282.04 | $0.00 | $0.00 | $564.08 | $0.00 |
| 2024 | 27591 | CONSERVE - CONSERVATION FUTURES | $8.46 | $8.45 | $0.00 | $0.00 | $16.91 | $0.00 |
| 2024 | 27591 | CITYPT - CITY OF PT | $403.01 | $403.00 | $0.00 | $0.00 | $806.01 | $0.00 |
| 2024 | 27591 | PORTPT - PORT DISTRICT | $116.50 | $116.49 | $0.00 | $0.00 | $232.99 | $0.00 |
| 2024 | 27591 | PUD1 - PUD #1 | $18.53 | $18.52 | $0.00 | $0.00 | $37.05 | $0.00 |
| 2024 | 27591 | HD2 - HOSP DIST #2 | $16.46 | $16.45 | $0.00 | $0.00 | $32.91 | $0.00 |
| 2024 | 27591 | SD50 - SCHOOL DIST #50 | $533.27 | $533.26 | $0.00 | $0.00 | $1066.53 | $0.00 |
| 2024 | 27591 | FD1 - FIRE DISTRICT #1 | $372.93 | $372.93 | $0.00 | $0.00 | $745.86 | $0.00 |
| 2024 | 27591 | EMS1 - FIRE DIST #1 EMS | $142.45 | $142.44 | $0.00 | $0.00 | $284.89 | $0.00 |
| 2024 | 27591 | JCCD - JC Conservation District | $2.55 | $2.55 | $0.00 | $0.00 | $5.10 | $0.00 |
| 2024 | 27591 | NWA - Noxious Weed Assessment | $2.15 | $2.15 | $0.00 | $0.00 | $4.30 | $0.00 |
| 2024 | 27591 | TOTAL: | $2557.48 | $2557.39 | $0.00 | $0.00 | $5114.87 | $0.00 |
|
| 2024 | 27591 | $2557.48 | $2557.39 | $0.00 | $0.00 | $5114.87 | $0.00 |
Statement Details |
| 2023 | 27633 | STATE - STATE LEVY (SCHOOL) | $618.63 | $618.62 | $0.00 | $0.00 | $1237.25 | $0.00 |
| 2023 | 27633 | COUNTY - COUNTY LEVIES (CE, DD, VET, MH) | $269.94 | $269.94 | $0.00 | $0.00 | $539.88 | $0.00 |
| 2023 | 27633 | CONSERVE - CONSERVATION FUTURES | $8.10 | $8.09 | $0.00 | $0.00 | $16.19 | $0.00 |
| 2023 | 27633 | CITYPT - CITY OF PT | $381.53 | $381.53 | $0.00 | $0.00 | $763.06 | $0.00 |
| 2023 | 27633 | PORTPT - PORT DISTRICT | $113.72 | $113.71 | $0.00 | $0.00 | $227.43 | $0.00 |
| 2023 | 27633 | PUD1 - PUD #1 | $17.90 | $17.89 | $0.00 | $0.00 | $35.79 | $0.00 |
| 2023 | 27633 | HD2 - HOSP DIST #2 | $15.76 | $15.74 | $0.00 | $0.00 | $31.50 | $0.00 |
| 2023 | 27633 | SD50 - SCHOOL DIST #50 | $490.90 | $490.88 | $0.00 | $0.00 | $981.78 | $0.00 |
| 2023 | 27633 | FD1 - FIRE DISTRICT #1 | $222.39 | $222.38 | $0.00 | $0.00 | $444.77 | $0.00 |
| 2023 | 27633 | EMS1 - FIRE DIST #1 EMS | $94.60 | $94.60 | $0.00 | $0.00 | $189.20 | $0.00 |
| 2023 | 27633 | JCCD - JC Conservation District | $2.55 | $2.55 | $0.00 | $0.00 | $5.10 | $0.00 |
| 2023 | 27633 | NWA - Noxious Weed Assessment | $2.15 | $2.15 | $0.00 | $0.00 | $4.30 | $0.00 |
| 2023 | 27633 | TOTAL: | $2238.17 | $2238.08 | $0.00 | $0.00 | $4476.25 | $0.00 |
|
| 2023 | 27633 | $2238.17 | $2238.08 | $0.00 | $0.00 | $4476.25 | $0.00 |
Values
| (+) Improvement Homesite Value: | + | $0 | |
| (+) Improvement Non-Homesite Value: | + | $334,134 | |
| (+) Land Homesite Value: | + | $0 | |
| (+) Land Non-Homesite Value: | + | $251,875 | |
| (+) Curr Use (HS): | + | $0 | $0 |
| (+) Curr Use (NHS): | + | $0 | $0 |
| | | -------------------------- | |
| (=) Market Value: | = | $586,009 | |
| (–) Productivity Loss: | – | $0 | |
| | | -------------------------- | |
| (=) Subtotal: | = | $586,009 | |
| (+) Senior Appraised Value: | + | $0 | |
| (+) Non-Senior Appraised Value: | + | $586,009 | |
| | | -------------------------- | |
| (=) Total Appraised Value: | = | $586,009 | |
| (–) Senior Exemption Loss: | – | $0 | |
| (–) Exemption Loss: | – | $0 | |
| | | -------------------------- | |
| (=) Taxable Value: | = | $586,009 | |
Taxing Jurisdiction
| Owner: | HELEN E BRINK | | |
| % Ownership: | 100.0000000000% | | |
| Total Value: | $586,009 | | |
| Tax Area: | 0110 - C-50F1E1H2 |
| CE | COUNTY CURRENT EXPENSE | 0.9034619479 | $586,009 | $586,009 | $529.44 | | |
| CNTYDD | DEVELOPMENTAL DISABILITIES | 0.0052121823 | $586,009 | $586,009 | $3.05 | | |
| CNTYVET | VETERANS RELIEF | 0.0052777810 | $586,009 | $586,009 | $3.09 | | |
| MENTAL | MENTAL HEALTH | 0.0052121823 | $586,009 | $586,009 | $3.05 | | |
| PTGEN | CITY OF PT GENERAL | 0.8551967795 | $586,009 | $586,009 | $501.15 | | |
| PTLLL | CITY OF PT - LIBRARY LID LIFT | 0.4010114288 | $586,009 | $586,009 | $235.00 | | |
| PTMVBOND | CITY OF PT MV BOND | 0.0484717981 | $586,009 | $586,009 | $28.40 | | |
| HOSP2CASH | HOSP DIST #2 GENERAL | 0.0536075306 | $586,009 | $586,009 | $31.41 | | |
| SCH50BOND | SCHOOL DIST #50 BOND 2016 | 0.5377451389 | $586,009 | $586,009 | $315.12 | | |
| SCH50CP | SCHOOL DIST #50 CAP PROJ | 0.4573475088 | $586,009 | $586,009 | $268.01 | | |
| SCH50MO | SCHOOL DIST #50 EP & O | 0.8262822886 | $586,009 | $586,009 | $484.21 | | |
| CONSERVE | CONSERVATION FUTURES | 0.0275621078 | $586,009 | $586,009 | $16.15 | | |
| EMS1 | FIRE DIST #1 EMS | 0.4679948282 | $586,009 | $586,009 | $274.25 | | |
| FD1 | FIRE DIST #1 GENERAL | 1.2171942929 | $586,009 | $586,009 | $713.29 | | |
| PORTPT | PORT OF PT GENERAL | 0.1134941229 | $586,009 | $586,009 | $66.51 | | |
| PORTPTIDD | PORT OF PT IDD 2019 | 0.2577346692 | $586,009 | $586,009 | $151.03 | | |
| PUD1 | PUD #1 GENERAL | 0.0597888892 | $586,009 | $586,009 | $35.04 | | |
| STATE | STATE SCHOOL PART 1 | 1.4940692947 | $586,009 | $586,009 | $875.54 | | |
| STATE2 | STATE SCHOOL PART 2 | 0.8050170049 | $586,009 | $586,009 | $471.75 | | |
| | Total Tax Rate: | 8.5416817766 | | | | | |
| | | | | Taxes w/Current Exemptions: | $5,005.49 | | |
| | | | | Taxes w/o Exemptions: | $5,005.49 | | |
Improvement / Building
| Improvement #1: | Residential Bldg | State Code: | 11 | 1218.0 sqft | Value: | $334,134 |
| Bathrooms (#): | 2 (FULL) | Bedrooms (#): | 3 | | Exterior Wall: | SI/ST | Fireplace: | SIN 2-AVG | | Floor Construction: | FRAME | Foundation: | CONPR | | Heating/Cooling: | F/A | Inside Verify: | YES-FIX | | Roof Cover: | COMP |   |   |
|
| | Type | Description | Class CD | Sub Class CD | Year Built | Area |
| | MA | Main Area | 3+ | 1S | 1966 | 1218.0 |
| | HWPOR | House Wood Porch | 3 | * | 1966 | 268.0 |
| | GATT | House Attached Garage | 3 | 1S | 1966 | 540.0 |
| | SHED | Shed (Table Not Dep) | 6 | * | 1966 | 576.0 |
| | GARAG | Garage (Table Not Dep) | 1 | * | 1966 | 816.0 |
| | BSMTF | House basement finished | 2 | * | 1966 | 1188.3 |
| | BSMTU | House basement unfinished | 2 | * | 1966 | 209.7 |
Sketch
Property Image
Land
| 1 | 6410-1177L | | 0.0000 | 0.00 | 0.00 | 0.00 | 1.00 | $155,000 | $0 |
| 2 | 6410-1177L | | 0.0000 | 0.00 | 0.00 | 0.00 | 1.00 | $96,875 | $0 |
Roll Value History
| 2026 | N/A | N/A | N/A | N/A | N/A |
| 2025 | $334,134 | $251,875 | $0 | $586,009 | $586,009 |
| 2024 | $352,625 | $247,775 | $0 | $600,400 | $600,400 |
| 2023 | $338,520 | $231,263 | $0 | $569,783 | $569,783 |
| 2022 | $310,310 | $215,250 | $0 | $525,560 | $525,560 |
Deed and Sales History
| 1 | 07/02/2025 | DTH CERT | Death Certificate | KENNETH D BRINK | | | | | 0 | 671941 |
Payout Agreement
| No payout information available.. |