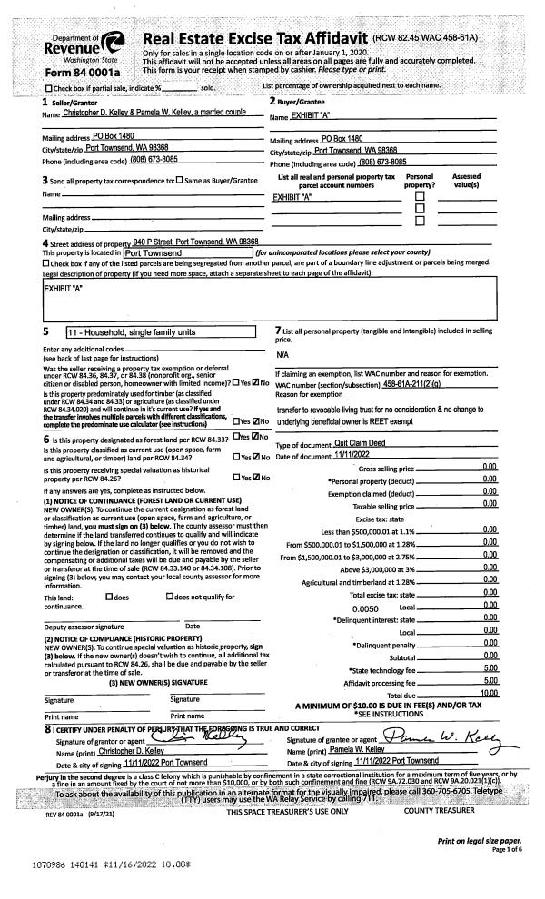
| 1 | 11/11/2022 | QCD | Quit Claim Deed | CHRISTOPHER & PAMELA KELLEY | CHRISTOPHER & PAMELA KELLEY LIVING TRUST | | | | 140141 | |
| 2 | 07/18/2019 | SWD | Statutory Warranty Deed | BARBARA M MERICLE | CHRISTOPHER & PAMELA KELLEY | | | $830,000.00 | 132779 | |
|   | |
| 3 | 06/17/2011 | QCD | Quit Claim Deed | MERICLE, JOHN L | MERICLE, BARBARA M | | | $0.00 | 116145 | 0 |
| 4 | 04/20/2009 | SWD | Statutory Warranty Deed | WAGNER, JOSEPH M/CLAUDIA | MERICLE, JOHN L/BARBARA L | | | $530,000.00 | 112794 | 0 |
| 5 | 07/10/2000 | SWD | Statutory Warranty Deed | WALKER, BRADLEY T/SARAH V | WAGNER, JOSEPH M/CLAUDIA B | 0 | 0 | $0.00 | 90222 | 0 |