Property
Account |
| Property ID: | 38321 | Abbreviated Legal Description: | PETTYGROVE'S 2ND ADDITION BLK 64 TAX 168(REVISED) LLA AFN 521716 |
| Parcel # / Geo ID: | 985206402 | Agent Code: | |
| Type: | Real | | |
| Tax Area: | 0110 - C-50F1E1H2 | Land Use Code | 11 |
| Open Space: | N | DFL | N |
| Historic Property: | N | Remodel Property: | N |
| Multi-Family Redevelopment: | N | | |
| Township: | 30N | Section: | 2 |
| Range: | 1W |
Location |
| Address: | 1507 CHERRY ST PORT TOWNSEND, WA 98368 | Mapsco: | 099/034 |
| Neighborhood: | PORTION PETTYGROVES 2ND LYING W OF CHERRY,QED SP | Map ID: | |
| Neighborhood CD: | 6410 |
Owner |
| Name: | CHRISTINA SIX & MICHAEL A CONKLIN | Owner ID: | 105578 |
| Mailing Address: | 1507 CHERRY ST PORT TOWNSEND, WA 98368-3701 | % Ownership: | 100.0000000000% |
| | | Exemptions: | |
Pay Tax Due
Select the appropriate checkbox next to the year to be paid. Multiple years may be selected.
*Convenience Fee not included
Taxes and Assessment Details
Property Tax Information as of
03/13/2026
Click on "Statement Details" to expand or collapse a tax statement.
* Please enter a valid date ** Please enter a valid date *
Statement Details |
| 2026 | 27505 | STATE - STATE LEVY (SCHOOL) | $709.69 | $709.68 | $0.00 | $0.00 | $0.00 | $1419.37 |
| 2026 | 27505 | COUNTY - COUNTY LEVIES (CE, DD, VET, MH) | $283.73 | $283.73 | $0.00 | $0.00 | $0.00 | $567.46 |
| 2026 | 27505 | CONSERVE - CONSERVATION FUTURES | $8.51 | $8.51 | $0.00 | $0.00 | $0.00 | $17.02 |
| 2026 | 27505 | CITYPT - CITY OF PT | $402.74 | $402.72 | $0.00 | $0.00 | $0.00 | $805.46 |
| 2026 | 27505 | PORTPT - PORT DISTRICT | $114.60 | $114.59 | $0.00 | $0.00 | $0.00 | $229.19 |
| 2026 | 27505 | PUD1 - PUD #1 | $18.46 | $18.45 | $0.00 | $0.00 | $0.00 | $36.91 |
| 2026 | 27505 | HD2 - HOSP DIST #2 | $16.55 | $16.55 | $0.00 | $0.00 | $0.00 | $33.10 |
| 2026 | 27505 | SD50 - SCHOOL DIST #50 | $562.23 | $562.21 | $0.00 | $0.00 | $0.00 | $1124.44 |
| 2026 | 27505 | FD1 - FIRE DISTRICT #1 | $375.73 | $375.72 | $0.00 | $0.00 | $0.00 | $751.45 |
| 2026 | 27505 | EMS1 - FIRE DIST #1 EMS | $144.46 | $144.46 | $0.00 | $0.00 | $0.00 | $288.92 |
| 2026 | 27505 | JCCD - JC Conservation District | $2.55 | $2.55 | $0.00 | $0.00 | $0.00 | $5.10 |
| 2026 | 27505 | NWA - Noxious Weed Assessment | $2.98 | $2.97 | $0.00 | $0.00 | $0.00 | $5.95 |
| 2026 | 27505 | TOTAL: | $2642.23 | $2642.14 | $0.00 | $0.00 | $0.00 | $5284.37 |
|
| 2026 | 27505 | $2642.23 | $2642.14 | $0.00 | $0.00 | $0.00 | $5284.37 |
Statement Details |
| 2025 | 27577 | STATE - STATE LEVY (SCHOOL) | $710.67 | $710.67 | $0.00 | $0.00 | $1421.34 | $0.00 |
| 2025 | 27577 | COUNTY - COUNTY LEVIES (CE, DD, VET, MH) | $279.47 | $279.46 | $0.00 | $0.00 | $558.93 | $0.00 |
| 2025 | 27577 | CONSERVE - CONSERVATION FUTURES | $8.38 | $8.38 | $0.00 | $0.00 | $16.76 | $0.00 |
| 2025 | 27577 | CITYPT - CITY OF PT | $403.03 | $403.01 | $0.00 | $0.00 | $806.04 | $0.00 |
| 2025 | 27577 | PORTPT - PORT DISTRICT | $114.04 | $114.03 | $0.00 | $0.00 | $228.07 | $0.00 |
| 2025 | 27577 | PUD1 - PUD #1 | $18.29 | $18.28 | $0.00 | $0.00 | $36.57 | $0.00 |
| 2025 | 27577 | HD2 - HOSP DIST #2 | $16.31 | $16.30 | $0.00 | $0.00 | $32.61 | $0.00 |
| 2025 | 27577 | SD50 - SCHOOL DIST #50 | $519.39 | $519.37 | $0.00 | $0.00 | $1038.76 | $0.00 |
| 2025 | 27577 | FD1 - FIRE DISTRICT #1 | $368.79 | $368.78 | $0.00 | $0.00 | $737.57 | $0.00 |
| 2025 | 27577 | EMS1 - FIRE DIST #1 EMS | $141.85 | $141.84 | $0.00 | $0.00 | $283.69 | $0.00 |
| 2025 | 27577 | JCCD - JC Conservation District | $2.55 | $2.55 | $0.00 | $0.00 | $5.10 | $0.00 |
| 2025 | 27577 | NWA - Noxious Weed Assessment | $2.15 | $2.15 | $0.00 | $0.00 | $4.30 | $0.00 |
| 2025 | 27577 | TOTAL: | $2584.92 | $2584.82 | $0.00 | $0.00 | $5169.74 | $0.00 |
|
| 2025 | 27577 | $2584.92 | $2584.82 | $0.00 | $0.00 | $5169.74 | $0.00 |
Statement Details |
| 2024 | 27635 | STATE - STATE LEVY (SCHOOL) | $650.54 | $650.52 | $0.00 | $0.00 | $1301.06 | $0.00 |
| 2024 | 27635 | COUNTY - COUNTY LEVIES (CE, DD, VET, MH) | $278.37 | $278.36 | $0.00 | $0.00 | $556.73 | $0.00 |
| 2024 | 27635 | CONSERVE - CONSERVATION FUTURES | $8.35 | $8.34 | $0.00 | $0.00 | $16.69 | $0.00 |
| 2024 | 27635 | CITYPT - CITY OF PT | $397.76 | $397.74 | $0.00 | $0.00 | $795.50 | $0.00 |
| 2024 | 27635 | PORTPT - PORT DISTRICT | $114.98 | $114.97 | $0.00 | $0.00 | $229.95 | $0.00 |
| 2024 | 27635 | PUD1 - PUD #1 | $18.29 | $18.28 | $0.00 | $0.00 | $36.57 | $0.00 |
| 2024 | 27635 | HD2 - HOSP DIST #2 | $16.24 | $16.24 | $0.00 | $0.00 | $32.48 | $0.00 |
| 2024 | 27635 | SD50 - SCHOOL DIST #50 | $526.32 | $526.30 | $0.00 | $0.00 | $1052.62 | $0.00 |
| 2024 | 27635 | FD1 - FIRE DISTRICT #1 | $368.07 | $368.07 | $0.00 | $0.00 | $736.14 | $0.00 |
| 2024 | 27635 | EMS1 - FIRE DIST #1 EMS | $140.59 | $140.59 | $0.00 | $0.00 | $281.18 | $0.00 |
| 2024 | 27635 | JCCD - JC Conservation District | $2.55 | $2.55 | $0.00 | $0.00 | $5.10 | $0.00 |
| 2024 | 27635 | NWA - Noxious Weed Assessment | $2.15 | $2.15 | $0.00 | $0.00 | $4.30 | $0.00 |
| 2024 | 27635 | TOTAL: | $2524.21 | $2524.11 | $0.00 | $0.00 | $5048.32 | $0.00 |
|
| 2024 | 27635 | $2524.21 | $2524.11 | $0.00 | $0.00 | $5048.32 | $0.00 |
Statement Details |
| 2023 | 27677 | STATE - STATE LEVY (SCHOOL) | $610.98 | $610.97 | $0.00 | $0.00 | $1221.95 | $0.00 |
| 2023 | 27677 | COUNTY - COUNTY LEVIES (CE, DD, VET, MH) | $266.63 | $266.60 | $0.00 | $0.00 | $533.23 | $0.00 |
| 2023 | 27677 | CONSERVE - CONSERVATION FUTURES | $8.00 | $7.99 | $0.00 | $0.00 | $15.99 | $0.00 |
| 2023 | 27677 | CITYPT - CITY OF PT | $376.82 | $376.80 | $0.00 | $0.00 | $753.62 | $0.00 |
| 2023 | 27677 | PORTPT - PORT DISTRICT | $112.31 | $112.31 | $0.00 | $0.00 | $224.62 | $0.00 |
| 2023 | 27677 | PUD1 - PUD #1 | $17.68 | $17.67 | $0.00 | $0.00 | $35.35 | $0.00 |
| 2023 | 27677 | HD2 - HOSP DIST #2 | $15.56 | $15.55 | $0.00 | $0.00 | $31.11 | $0.00 |
| 2023 | 27677 | SD50 - SCHOOL DIST #50 | $484.82 | $484.82 | $0.00 | $0.00 | $969.64 | $0.00 |
| 2023 | 27677 | FD1 - FIRE DISTRICT #1 | $219.64 | $219.63 | $0.00 | $0.00 | $439.27 | $0.00 |
| 2023 | 27677 | EMS1 - FIRE DIST #1 EMS | $93.43 | $93.43 | $0.00 | $0.00 | $186.86 | $0.00 |
| 2023 | 27677 | JCCD - JC Conservation District | $2.55 | $2.55 | $0.00 | $0.00 | $5.10 | $0.00 |
| 2023 | 27677 | NWA - Noxious Weed Assessment | $2.15 | $2.15 | $0.00 | $0.00 | $4.30 | $0.00 |
| 2023 | 27677 | TOTAL: | $2210.57 | $2210.47 | $0.00 | $0.00 | $4421.04 | $0.00 |
|
| 2023 | 27677 | $2210.57 | $2210.47 | $0.00 | $0.00 | $4421.04 | $0.00 |
Values
| (+) Improvement Homesite Value: | + | $0 | |
| (+) Improvement Non-Homesite Value: | + | $356,111 | |
| (+) Land Homesite Value: | + | $0 | |
| (+) Land Non-Homesite Value: | + | $261,250 | |
| (+) Curr Use (HS): | + | $0 | $0 |
| (+) Curr Use (NHS): | + | $0 | $0 |
| | | -------------------------- | |
| (=) Market Value: | = | $617,361 | |
| (–) Productivity Loss: | – | $0 | |
| | | -------------------------- | |
| (=) Subtotal: | = | $617,361 | |
| (+) Senior Appraised Value: | + | $0 | |
| (+) Non-Senior Appraised Value: | + | $617,361 | |
| | | -------------------------- | |
| (=) Total Appraised Value: | = | $617,361 | |
| (–) Senior Exemption Loss: | – | $0 | |
| (–) Exemption Loss: | – | $0 | |
| | | -------------------------- | |
| (=) Taxable Value: | = | $617,361 | |
Taxing Jurisdiction
| Owner: | CHRISTINA SIX & MICHAEL A CONKLIN | | |
| % Ownership: | 100.0000000000% | | |
| Total Value: | $617,361 | | |
| Tax Area: | 0110 - C-50F1E1H2 |
| CE | COUNTY CURRENT EXPENSE | 0.9034619479 | $617,361 | $617,361 | $557.76 | | |
| CNTYDD | DEVELOPMENTAL DISABILITIES | 0.0052121823 | $617,361 | $617,361 | $3.22 | | |
| CNTYVET | VETERANS RELIEF | 0.0052777810 | $617,361 | $617,361 | $3.26 | | |
| MENTAL | MENTAL HEALTH | 0.0052121823 | $617,361 | $617,361 | $3.22 | | |
| PTGEN | CITY OF PT GENERAL | 0.8551967795 | $617,361 | $617,361 | $527.97 | | |
| PTLLL | CITY OF PT - LIBRARY LID LIFT | 0.4010114288 | $617,361 | $617,361 | $247.57 | | |
| PTMVBOND | CITY OF PT MV BOND | 0.0484717981 | $617,361 | $617,361 | $29.92 | | |
| HOSP2CASH | HOSP DIST #2 GENERAL | 0.0536075306 | $617,361 | $617,361 | $33.10 | | |
| SCH50BOND | SCHOOL DIST #50 BOND 2016 | 0.5377451389 | $617,361 | $617,361 | $331.98 | | |
| SCH50CP | SCHOOL DIST #50 CAP PROJ | 0.4573475088 | $617,361 | $617,361 | $282.35 | | |
| SCH50MO | SCHOOL DIST #50 EP & O | 0.8262822886 | $617,361 | $617,361 | $510.11 | | |
| CONSERVE | CONSERVATION FUTURES | 0.0275621078 | $617,361 | $617,361 | $17.02 | | |
| EMS1 | FIRE DIST #1 EMS | 0.4679948282 | $617,361 | $617,361 | $288.92 | | |
| FD1 | FIRE DIST #1 GENERAL | 1.2171942929 | $617,361 | $617,361 | $751.45 | | |
| PORTPT | PORT OF PT GENERAL | 0.1134941229 | $617,361 | $617,361 | $70.07 | | |
| PORTPTIDD | PORT OF PT IDD 2019 | 0.2577346692 | $617,361 | $617,361 | $159.12 | | |
| PUD1 | PUD #1 GENERAL | 0.0597888892 | $617,361 | $617,361 | $36.91 | | |
| STATE | STATE SCHOOL PART 1 | 1.4940692947 | $617,361 | $617,361 | $922.38 | | |
| STATE2 | STATE SCHOOL PART 2 | 0.8050170049 | $617,361 | $617,361 | $496.99 | | |
| | Total Tax Rate: | 8.5416817766 | | | | | |
| | | | | Taxes w/Current Exemptions: | $5,273.32 | | |
| | | | | Taxes w/o Exemptions: | $5,273.32 | | |
Improvement / Building
| Improvement #1: | Residential Bldg | State Code: | 11 | 1510.0 sqft | Value: | $356,111 |
| Bathrooms (#): | 2 (FULL) | Bathrooms (#): | 1 (HALF) | | Bedrooms (#): | 5 | Exterior Wall: | PL/T1 | | Fireplace: | DBL 1-AVG | Floor Construction: | FRAME | | Foundation: | CONPR | Heating/Cooling: | F/A | | Inside Verify: | YES-FIX | Roof Cover: | BLTUP |
|
| | Type | Description | Class CD | Sub Class CD | Year Built | Area |
| | MA | Main Area | 3+ | HSPL | 1967 | 955.0 |
| | MA2 | Second Floor Main Area | 3+ | HSPL | 1967 | 555.0 |
| | HBAL | House Balcony | 3 | * | 1967 | 27.0 |
| | HCPOR | House Concrete Porch | 3 | * | 1967 | 28.0 |
| | HDECK | House Deck | 3 | * | 1967 | 512.0 |
| | GATT | House Attached Garage | 3 | HSPL | 1967 | 456.0 |
| | BSMTF | House basement finished | 3 | * | 1967 | 1510.0 |
| | HRPO | House Roof Patio | 3 | * | 1967 | 27.0 |
Sketch
Property Image
Land
| 1 | 6410-1177L | | 0.0000 | 0.00 | 0.00 | 0.00 | 1.00 | $155,000 | $0 |
| 2 | 6410-1177L | | 0.0000 | 0.00 | 0.00 | 0.00 | 1.00 | $106,250 | $0 |
Roll Value History
| 2026 | N/A | N/A | N/A | N/A | N/A |
| 2025 | $356,111 | $261,250 | $0 | $617,361 | $617,361 |
| 2024 | $335,863 | $256,850 | $0 | $592,713 | $592,713 |
| 2023 | $322,428 | $239,925 | $0 | $562,353 | $562,353 |
| 2022 | $295,559 | $223,500 | $0 | $519,059 | $519,059 |
Deed and Sales History
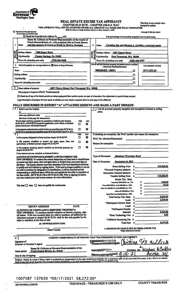
| 1 | 09/08/2021 | SWD | Statutory Warranty Deed | FRANK BROWN | CHRISTINA SIX & MICHAEL A CONKLIN | | | $515,000.00 | 137639 | |
| 2 | 02/25/2021 | DTH CERT | Death Certificate | | FRANK BROWN | | | | 0 | |
| 3 | 02/21/1992 | SWD | Statutory Warranty Deed | PARKER, JAMES N/COLLEEN A | BROWN, FRANK/MARGERY | 0 | 0 | $125,000.00 | 67788 | 0 |
Payout Agreement
| No payout information available.. |