Property
Account |
| Property ID: | 38324 | Abbreviated Legal Description: | PETTYGROVE'S 2ND ADDITION BLK 65 LOTS 2(E10'),3 & 4(ALL) & PTN VAC 0 ST FRTG |
| Parcel # / Geo ID: | 985206502 | Agent Code: | |
| Type: | Real | | |
| Tax Area: | 0110 - C-50F1E1H2 | Land Use Code | 11 |
| Open Space: | N | DFL | N |
| Historic Property: | N | Remodel Property: | N |
| Multi-Family Redevelopment: | N | | |
| Township: | 30N | Section: | 2 |
| Range: | 1W |
Location |
| Address: | 1431 CHERRY ST PORT TOWNSEND, WA 98368 | Mapsco: | 099/038 |
| Neighborhood: | PORTION PETTYGROVES 2ND LYING W OF CHERRY,QED SP | Map ID: | |
| Neighborhood CD: | 6410 |
Owner |
| Name: | KRISTA F MYERS JT | Owner ID: | 108374 |
| Mailing Address: | MATTHEW R HOEHN 1431 CHERRY ST PORT TOWNSEND, WA 98368-4018 | % Ownership: | 100.0000000000% |
| | | Exemptions: | |
Pay Tax Due
Select the appropriate checkbox next to the year to be paid. Multiple years may be selected.
*Convenience Fee not included
Taxes and Assessment Details
Property Tax Information as of
03/11/2026
Click on "Statement Details" to expand or collapse a tax statement.
* Please enter a valid date ** Please enter a valid date *
Statement Details |
| 2026 | 27508 | STATE - STATE LEVY (SCHOOL) | $661.14 | $661.13 | $0.00 | $0.00 | $0.00 | $1322.27 |
| 2026 | 27508 | COUNTY - COUNTY LEVIES (CE, DD, VET, MH) | $264.33 | $264.32 | $0.00 | $0.00 | $0.00 | $528.65 |
| 2026 | 27508 | CONSERVE - CONSERVATION FUTURES | $7.93 | $7.92 | $0.00 | $0.00 | $0.00 | $15.85 |
| 2026 | 27508 | CITYPT - CITY OF PT | $375.19 | $375.17 | $0.00 | $0.00 | $0.00 | $750.36 |
| 2026 | 27508 | PORTPT - PORT DISTRICT | $106.76 | $106.74 | $0.00 | $0.00 | $0.00 | $213.50 |
| 2026 | 27508 | PUD1 - PUD #1 | $17.20 | $17.19 | $0.00 | $0.00 | $0.00 | $34.39 |
| 2026 | 27508 | HD2 - HOSP DIST #2 | $15.42 | $15.41 | $0.00 | $0.00 | $0.00 | $30.83 |
| 2026 | 27508 | SD50 - SCHOOL DIST #50 | $523.77 | $523.75 | $0.00 | $0.00 | $0.00 | $1047.52 |
| 2026 | 27508 | FD1 - FIRE DISTRICT #1 | $350.02 | $350.02 | $0.00 | $0.00 | $0.00 | $700.04 |
| 2026 | 27508 | EMS1 - FIRE DIST #1 EMS | $134.58 | $134.58 | $0.00 | $0.00 | $0.00 | $269.16 |
| 2026 | 27508 | JCCD - JC Conservation District | $2.55 | $2.55 | $0.00 | $0.00 | $0.00 | $5.10 |
| 2026 | 27508 | NWA - Noxious Weed Assessment | $2.98 | $2.97 | $0.00 | $0.00 | $0.00 | $5.95 |
| 2026 | 27508 | TOTAL: | $2461.87 | $2461.75 | $0.00 | $0.00 | $0.00 | $4923.62 |
|
| 2026 | 27508 | $2461.87 | $2461.75 | $0.00 | $0.00 | $0.00 | $4923.62 |
Statement Details |
| 2025 | 27580 | STATE - STATE LEVY (SCHOOL) | $664.77 | $664.77 | $0.00 | $0.00 | $1329.54 | $0.00 |
| 2025 | 27580 | COUNTY - COUNTY LEVIES (CE, DD, VET, MH) | $261.42 | $261.42 | $0.00 | $0.00 | $522.84 | $0.00 |
| 2025 | 27580 | CONSERVE - CONSERVATION FUTURES | $7.84 | $7.84 | $0.00 | $0.00 | $15.68 | $0.00 |
| 2025 | 27580 | CITYPT - CITY OF PT | $377.00 | $376.98 | $0.00 | $0.00 | $753.98 | $0.00 |
| 2025 | 27580 | PORTPT - PORT DISTRICT | $106.68 | $106.67 | $0.00 | $0.00 | $213.35 | $0.00 |
| 2025 | 27580 | PUD1 - PUD #1 | $17.11 | $17.10 | $0.00 | $0.00 | $34.21 | $0.00 |
| 2025 | 27580 | HD2 - HOSP DIST #2 | $15.25 | $15.25 | $0.00 | $0.00 | $30.50 | $0.00 |
| 2025 | 27580 | SD50 - SCHOOL DIST #50 | $485.84 | $485.83 | $0.00 | $0.00 | $971.67 | $0.00 |
| 2025 | 27580 | FD1 - FIRE DISTRICT #1 | $344.97 | $344.97 | $0.00 | $0.00 | $689.94 | $0.00 |
| 2025 | 27580 | EMS1 - FIRE DIST #1 EMS | $132.69 | $132.68 | $0.00 | $0.00 | $265.37 | $0.00 |
| 2025 | 27580 | JCCD - JC Conservation District | $2.55 | $2.55 | $0.00 | $0.00 | $5.10 | $0.00 |
| 2025 | 27580 | NWA - Noxious Weed Assessment | $2.15 | $2.15 | $0.00 | $0.00 | $4.30 | $0.00 |
| 2025 | 27580 | TOTAL: | $2418.27 | $2418.21 | $0.00 | $0.00 | $4836.48 | $0.00 |
|
| 2025 | 27580 | $2418.27 | $2418.21 | $0.00 | $0.00 | $4836.48 | $0.00 |
Statement Details |
| 2024 | 27638 | STATE - STATE LEVY (SCHOOL) | $607.98 | $607.98 | $0.00 | $0.00 | $1215.96 | $0.00 |
| 2024 | 27638 | COUNTY - COUNTY LEVIES (CE, DD, VET, MH) | $260.17 | $260.15 | $0.00 | $0.00 | $520.32 | $0.00 |
| 2024 | 27638 | CONSERVE - CONSERVATION FUTURES | $7.80 | $7.80 | $0.00 | $0.00 | $15.60 | $0.00 |
| 2024 | 27638 | CITYPT - CITY OF PT | $371.74 | $371.72 | $0.00 | $0.00 | $743.46 | $0.00 |
| 2024 | 27638 | PORTPT - PORT DISTRICT | $107.47 | $107.45 | $0.00 | $0.00 | $214.92 | $0.00 |
| 2024 | 27638 | PUD1 - PUD #1 | $17.09 | $17.09 | $0.00 | $0.00 | $34.18 | $0.00 |
| 2024 | 27638 | HD2 - HOSP DIST #2 | $15.18 | $15.18 | $0.00 | $0.00 | $30.36 | $0.00 |
| 2024 | 27638 | SD50 - SCHOOL DIST #50 | $491.89 | $491.87 | $0.00 | $0.00 | $983.76 | $0.00 |
| 2024 | 27638 | FD1 - FIRE DISTRICT #1 | $344.00 | $343.99 | $0.00 | $0.00 | $687.99 | $0.00 |
| 2024 | 27638 | EMS1 - FIRE DIST #1 EMS | $131.40 | $131.39 | $0.00 | $0.00 | $262.79 | $0.00 |
| 2024 | 27638 | JCCD - JC Conservation District | $2.55 | $2.55 | $0.00 | $0.00 | $5.10 | $0.00 |
| 2024 | 27638 | NWA - Noxious Weed Assessment | $2.15 | $2.15 | $0.00 | $0.00 | $4.30 | $0.00 |
| 2024 | 27638 | TOTAL: | $2359.42 | $2359.32 | $0.00 | $0.00 | $4718.74 | $0.00 |
|
| 2024 | 27638 | $2359.42 | $2359.32 | $0.00 | $0.00 | $4718.74 | $0.00 |
Statement Details |
| 2023 | 27680 | STATE - STATE LEVY (SCHOOL) | $571.53 | $571.53 | $0.00 | $0.00 | $1143.06 | $0.00 |
| 2023 | 27680 | COUNTY - COUNTY LEVIES (CE, DD, VET, MH) | $249.41 | $249.38 | $0.00 | $0.00 | $498.79 | $0.00 |
| 2023 | 27680 | CONSERVE - CONSERVATION FUTURES | $7.48 | $7.48 | $0.00 | $0.00 | $14.96 | $0.00 |
| 2023 | 27680 | CITYPT - CITY OF PT | $352.49 | $352.48 | $0.00 | $0.00 | $704.97 | $0.00 |
| 2023 | 27680 | PORTPT - PORT DISTRICT | $105.07 | $105.05 | $0.00 | $0.00 | $210.12 | $0.00 |
| 2023 | 27680 | PUD1 - PUD #1 | $16.53 | $16.53 | $0.00 | $0.00 | $33.06 | $0.00 |
| 2023 | 27680 | HD2 - HOSP DIST #2 | $14.56 | $14.55 | $0.00 | $0.00 | $29.11 | $0.00 |
| 2023 | 27680 | SD50 - SCHOOL DIST #50 | $453.53 | $453.50 | $0.00 | $0.00 | $907.03 | $0.00 |
| 2023 | 27680 | FD1 - FIRE DISTRICT #1 | $205.46 | $205.45 | $0.00 | $0.00 | $410.91 | $0.00 |
| 2023 | 27680 | EMS1 - FIRE DIST #1 EMS | $87.40 | $87.39 | $0.00 | $0.00 | $174.79 | $0.00 |
| 2023 | 27680 | JCCD - JC Conservation District | $2.55 | $2.55 | $0.00 | $0.00 | $5.10 | $0.00 |
| 2023 | 27680 | NWA - Noxious Weed Assessment | $2.15 | $2.15 | $0.00 | $0.00 | $4.30 | $0.00 |
| 2023 | 27680 | TOTAL: | $2068.16 | $2068.04 | $0.00 | $0.00 | $4136.20 | $0.00 |
|
| 2023 | 27680 | $2068.16 | $2068.04 | $0.00 | $0.00 | $4136.20 | $0.00 |
Values
| (+) Improvement Homesite Value: | + | $0 | |
| (+) Improvement Non-Homesite Value: | + | $307,628 | |
| (+) Land Homesite Value: | + | $0 | |
| (+) Land Non-Homesite Value: | + | $267,500 | |
| (+) Curr Use (HS): | + | $0 | $0 |
| (+) Curr Use (NHS): | + | $0 | $0 |
| | | -------------------------- | |
| (=) Market Value: | = | $575,128 | |
| (–) Productivity Loss: | – | $0 | |
| | | -------------------------- | |
| (=) Subtotal: | = | $575,128 | |
| (+) Senior Appraised Value: | + | $0 | |
| (+) Non-Senior Appraised Value: | + | $575,128 | |
| | | -------------------------- | |
| (=) Total Appraised Value: | = | $575,128 | |
| (–) Senior Exemption Loss: | – | $0 | |
| (–) Exemption Loss: | – | $0 | |
| | | -------------------------- | |
| (=) Taxable Value: | = | $575,128 | |
Taxing Jurisdiction
| Owner: | KRISTA F MYERS JT | | |
| % Ownership: | 100.0000000000% | | |
| Total Value: | $575,128 | | |
| Tax Area: | 0110 - C-50F1E1H2 |
| CE | COUNTY CURRENT EXPENSE | 0.9034619479 | $575,128 | $575,128 | $519.61 | | |
| CNTYDD | DEVELOPMENTAL DISABILITIES | 0.0052121823 | $575,128 | $575,128 | $3.00 | | |
| CNTYVET | VETERANS RELIEF | 0.0052777810 | $575,128 | $575,128 | $3.04 | | |
| MENTAL | MENTAL HEALTH | 0.0052121823 | $575,128 | $575,128 | $3.00 | | |
| PTGEN | CITY OF PT GENERAL | 0.8551967795 | $575,128 | $575,128 | $491.85 | | |
| PTLLL | CITY OF PT - LIBRARY LID LIFT | 0.4010114288 | $575,128 | $575,128 | $230.63 | | |
| PTMVBOND | CITY OF PT MV BOND | 0.0484717981 | $575,128 | $575,128 | $27.88 | | |
| HOSP2CASH | HOSP DIST #2 GENERAL | 0.0536075306 | $575,128 | $575,128 | $30.83 | | |
| SCH50BOND | SCHOOL DIST #50 BOND 2016 | 0.5377451389 | $575,128 | $575,128 | $309.27 | | |
| SCH50CP | SCHOOL DIST #50 CAP PROJ | 0.4573475088 | $575,128 | $575,128 | $263.03 | | |
| SCH50MO | SCHOOL DIST #50 EP & O | 0.8262822886 | $575,128 | $575,128 | $475.22 | | |
| CONSERVE | CONSERVATION FUTURES | 0.0275621078 | $575,128 | $575,128 | $15.85 | | |
| EMS1 | FIRE DIST #1 EMS | 0.4679948282 | $575,128 | $575,128 | $269.16 | | |
| FD1 | FIRE DIST #1 GENERAL | 1.2171942929 | $575,128 | $575,128 | $700.04 | | |
| PORTPT | PORT OF PT GENERAL | 0.1134941229 | $575,128 | $575,128 | $65.27 | | |
| PORTPTIDD | PORT OF PT IDD 2019 | 0.2577346692 | $575,128 | $575,128 | $148.23 | | |
| PUD1 | PUD #1 GENERAL | 0.0597888892 | $575,128 | $575,128 | $34.39 | | |
| STATE | STATE SCHOOL PART 1 | 1.4940692947 | $575,128 | $575,128 | $859.28 | | |
| STATE2 | STATE SCHOOL PART 2 | 0.8050170049 | $575,128 | $575,128 | $462.99 | | |
| | Total Tax Rate: | 8.5416817766 | | | | | |
| | | | | Taxes w/Current Exemptions: | $4,912.57 | | |
| | | | | Taxes w/o Exemptions: | $4,912.57 | | |
Improvement / Building
| Improvement #1: | Residential Bldg | State Code: | 11 | 1431.2 sqft | Value: | $307,628 |
| Bathrooms (#): | 1 (FULL) | Bathrooms (#): | 1 (HALF) | | Bedrooms (#): | 3 | Exterior Wall: | SI/ST | | Fireplace: | SIN 1-GOOD | Floor Construction: | FRAME | | Foundation: | CONPR | Heating/Cooling: | HPUMP | | Inside Verify: | YES-FIX | Roof Cover: | COMP |
|
| | Type | Description | Class CD | Sub Class CD | Year Built | Area |
| | MA | Main Area | 3+ | 1S | 1965 | 1431.2 |
| | PATIO | House Patio | 3 | * | 1965 | 340.0 |
| | HCPOR | House Concrete Porch | 3 | * | 1965 | 14.0 |
| | GDET | Detached Garage | 3 | 1S | 1965 | 720.0 |
| | SHED | Shed (Table Not Dep) | 4 | * | 1965 | 100.0 |
Sketch
Property Image
Land
| 1 | 6410-1177L | | 0.0000 | 0.00 | 0.00 | 0.00 | 1.00 | $155,000 | $0 |
| 2 | 6410-1177L | | 0.0000 | 0.00 | 0.00 | 0.00 | 1.00 | $112,500 | $0 |
Roll Value History
| 2026 | N/A | N/A | N/A | N/A | N/A |
| 2025 | $307,628 | $267,500 | $0 | $575,128 | $575,128 |
| 2024 | $291,531 | $262,900 | $0 | $554,431 | $554,431 |
| 2023 | $279,870 | $245,700 | $0 | $525,570 | $525,570 |
| 2022 | $256,547 | $229,000 | $0 | $485,547 | $485,547 |
Deed and Sales History
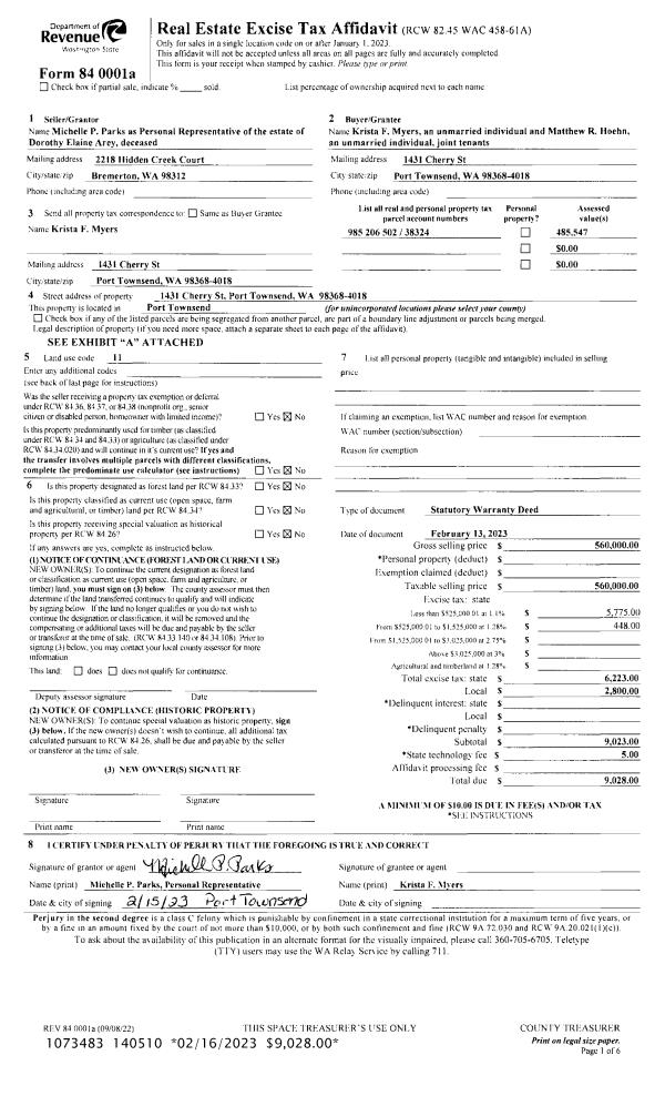
| 1 | 02/13/2023 | SWD | Statutory Warranty Deed | MICHELLE P PARKS PERSONAL REPRESENTATIVE | KRISTA F MYERS JT | | | $560,000.00 | 140510 | |
| 2 | 10/12/2022 | LOP | Lack of Probate | LEE ALLAN AREY | DOROTHY ELAINE AREY | | | | 0 | 656949 |
Payout Agreement
| No payout information available.. |