Property
Account |
| Property ID: | 38327 | Abbreviated Legal Description: | PETTYGROVE'S 2ND ADDITION BLK 66 LOTS 2(ALL), 3(W1/2) |
| Parcel # / Geo ID: | 985206601 | Agent Code: | |
| Type: | Real | | |
| Tax Area: | 0110 - C-50F1E1H2 | Land Use Code | 12 |
| Open Space: | N | DFL | N |
| Historic Property: | N | Remodel Property: | N |
| Multi-Family Redevelopment: | N | | |
| Township: | 30N | Section: | 2 |
| Range: | 1W |
Location |
| Address: | 1328 BEECH ST PORT TOWNSEND, WA 98368 | Mapsco: | 099/042 |
| Neighborhood: | PORTION PETTYGROVES 2ND LYING W OF CHERRY,QED SP | Map ID: | |
| Neighborhood CD: | 6410 |
Owner |
| Name: | EZRA WILSON | Owner ID: | 107563 |
| Mailing Address: | 334 BLOSSOM LN PORT TOWNSEND, WA 98368-9630 | % Ownership: | 100.0000000000% |
| | | Exemptions: | |
Pay Tax Due
Select the appropriate checkbox next to the year to be paid. Multiple years may be selected.
*Convenience Fee not included
Taxes and Assessment Details
Property Tax Information as of
03/10/2026
Click on "Statement Details" to expand or collapse a tax statement.
* Please enter a valid date ** Please enter a valid date *
Statement Details |
| 2026 | 27511 | STATE - STATE LEVY (SCHOOL) | $443.11 | $443.10 | $0.00 | $0.00 | $0.00 | $886.21 |
| 2026 | 27511 | COUNTY - COUNTY LEVIES (CE, DD, VET, MH) | $177.17 | $177.13 | $0.00 | $0.00 | $0.00 | $354.30 |
| 2026 | 27511 | CONSERVE - CONSERVATION FUTURES | $5.31 | $5.31 | $0.00 | $0.00 | $0.00 | $10.62 |
| 2026 | 27511 | CITYPT - CITY OF PT | $251.46 | $251.45 | $0.00 | $0.00 | $0.00 | $502.91 |
| 2026 | 27511 | PORTPT - PORT DISTRICT | $71.56 | $71.54 | $0.00 | $0.00 | $0.00 | $143.10 |
| 2026 | 27511 | PUD1 - PUD #1 | $11.53 | $11.52 | $0.00 | $0.00 | $0.00 | $23.05 |
| 2026 | 27511 | HD2 - HOSP DIST #2 | $10.33 | $10.33 | $0.00 | $0.00 | $0.00 | $20.66 |
| 2026 | 27511 | SD50 - SCHOOL DIST #50 | $351.04 | $351.03 | $0.00 | $0.00 | $0.00 | $702.07 |
| 2026 | 27511 | FD1 - FIRE DISTRICT #1 | $234.59 | $234.59 | $0.00 | $0.00 | $0.00 | $469.18 |
| 2026 | 27511 | EMS1 - FIRE DIST #1 EMS | $90.20 | $90.19 | $0.00 | $0.00 | $0.00 | $180.39 |
| 2026 | 27511 | JCCD - JC Conservation District | $2.55 | $2.55 | $0.00 | $0.00 | $0.00 | $5.10 |
| 2026 | 27511 | NWA - Noxious Weed Assessment | $2.98 | $2.97 | $0.00 | $0.00 | $0.00 | $5.95 |
| 2026 | 27511 | WAT - Clean Water District | $13.00 | $13.00 | $0.00 | $0.00 | $0.00 | $26.00 |
| 2026 | 27511 | TOTAL: | $1664.83 | $1664.71 | $0.00 | $0.00 | $0.00 | $3329.54 |
|
| 2026 | 27511 | $1664.83 | $1664.71 | $0.00 | $0.00 | $0.00 | $3329.54 |
Statement Details |
| 2025 | 27583 | STATE - STATE LEVY (SCHOOL) | $451.94 | $451.93 | $0.00 | $0.00 | $903.87 | $0.00 |
| 2025 | 27583 | COUNTY - COUNTY LEVIES (CE, DD, VET, MH) | $177.73 | $177.71 | $0.00 | $0.00 | $355.44 | $0.00 |
| 2025 | 27583 | CONSERVE - CONSERVATION FUTURES | $5.33 | $5.33 | $0.00 | $0.00 | $10.66 | $0.00 |
| 2025 | 27583 | CITYPT - CITY OF PT | $256.30 | $256.28 | $0.00 | $0.00 | $512.58 | $0.00 |
| 2025 | 27583 | PORTPT - PORT DISTRICT | $72.53 | $72.51 | $0.00 | $0.00 | $145.04 | $0.00 |
| 2025 | 27583 | PUD1 - PUD #1 | $11.63 | $11.63 | $0.00 | $0.00 | $23.26 | $0.00 |
| 2025 | 27583 | HD2 - HOSP DIST #2 | $10.37 | $10.37 | $0.00 | $0.00 | $20.74 | $0.00 |
| 2025 | 27583 | SD50 - SCHOOL DIST #50 | $330.30 | $330.27 | $0.00 | $0.00 | $660.57 | $0.00 |
| 2025 | 27583 | FD1 - FIRE DISTRICT #1 | $234.52 | $234.52 | $0.00 | $0.00 | $469.04 | $0.00 |
| 2025 | 27583 | EMS1 - FIRE DIST #1 EMS | $90.21 | $90.20 | $0.00 | $0.00 | $180.41 | $0.00 |
| 2025 | 27583 | JCCD - JC Conservation District | $2.55 | $2.55 | $0.00 | $0.00 | $5.10 | $0.00 |
| 2025 | 27583 | NWA - Noxious Weed Assessment | $2.15 | $2.15 | $0.00 | $0.00 | $4.30 | $0.00 |
| 2025 | 27583 | WAT - Clean Water District | $13.00 | $13.00 | $0.00 | $0.00 | $26.00 | $0.00 |
| 2025 | 27583 | TOTAL: | $1658.56 | $1658.45 | $0.00 | $0.00 | $3317.01 | $0.00 |
|
| 2025 | 27583 | $1658.56 | $1658.45 | $0.00 | $0.00 | $3317.01 | $0.00 |
Statement Details |
| 2024 | 27641 | STATE - STATE LEVY (SCHOOL) | $411.28 | $411.27 | $0.00 | $0.00 | $822.55 | $0.00 |
| 2024 | 27641 | COUNTY - COUNTY LEVIES (CE, DD, VET, MH) | $176.01 | $175.97 | $0.00 | $0.00 | $351.98 | $0.00 |
| 2024 | 27641 | CONSERVE - CONSERVATION FUTURES | $5.28 | $5.27 | $0.00 | $0.00 | $10.55 | $0.00 |
| 2024 | 27641 | CITYPT - CITY OF PT | $251.47 | $251.46 | $0.00 | $0.00 | $502.93 | $0.00 |
| 2024 | 27641 | PORTPT - PORT DISTRICT | $72.69 | $72.69 | $0.00 | $0.00 | $145.38 | $0.00 |
| 2024 | 27641 | PUD1 - PUD #1 | $11.56 | $11.56 | $0.00 | $0.00 | $23.12 | $0.00 |
| 2024 | 27641 | HD2 - HOSP DIST #2 | $10.27 | $10.27 | $0.00 | $0.00 | $20.54 | $0.00 |
| 2024 | 27641 | SD50 - SCHOOL DIST #50 | $332.74 | $332.74 | $0.00 | $0.00 | $665.48 | $0.00 |
| 2024 | 27641 | FD1 - FIRE DISTRICT #1 | $232.70 | $232.70 | $0.00 | $0.00 | $465.40 | $0.00 |
| 2024 | 27641 | EMS1 - FIRE DIST #1 EMS | $88.88 | $88.88 | $0.00 | $0.00 | $177.76 | $0.00 |
| 2024 | 27641 | JCCD - JC Conservation District | $2.55 | $2.55 | $0.00 | $0.00 | $5.10 | $0.00 |
| 2024 | 27641 | NWA - Noxious Weed Assessment | $2.15 | $2.15 | $0.00 | $0.00 | $4.30 | $0.00 |
| 2024 | 27641 | WAT - Clean Water District | $12.50 | $12.50 | $0.00 | $0.00 | $25.00 | $0.00 |
| 2024 | 27641 | TOTAL: | $1610.08 | $1610.01 | $0.00 | $0.00 | $3220.09 | $0.00 |
|
| 2024 | 27641 | $1610.08 | $1610.01 | $0.00 | $0.00 | $3220.09 | $0.00 |
Statement Details |
| 2023 | 27683 | STATE - STATE LEVY (SCHOOL) | $385.35 | $385.33 | $0.00 | $0.00 | $770.68 | $0.00 |
| 2023 | 27683 | COUNTY - COUNTY LEVIES (CE, DD, VET, MH) | $168.17 | $168.13 | $0.00 | $0.00 | $336.30 | $0.00 |
| 2023 | 27683 | CONSERVE - CONSERVATION FUTURES | $5.04 | $5.04 | $0.00 | $0.00 | $10.08 | $0.00 |
| 2023 | 27683 | CITYPT - CITY OF PT | $237.65 | $237.65 | $0.00 | $0.00 | $475.30 | $0.00 |
| 2023 | 27683 | PORTPT - PORT DISTRICT | $70.83 | $70.83 | $0.00 | $0.00 | $141.66 | $0.00 |
| 2023 | 27683 | PUD1 - PUD #1 | $11.15 | $11.14 | $0.00 | $0.00 | $22.29 | $0.00 |
| 2023 | 27683 | HD2 - HOSP DIST #2 | $9.82 | $9.81 | $0.00 | $0.00 | $19.63 | $0.00 |
| 2023 | 27683 | SD50 - SCHOOL DIST #50 | $305.79 | $305.76 | $0.00 | $0.00 | $611.55 | $0.00 |
| 2023 | 27683 | FD1 - FIRE DISTRICT #1 | $138.53 | $138.52 | $0.00 | $0.00 | $277.05 | $0.00 |
| 2023 | 27683 | EMS1 - FIRE DIST #1 EMS | $58.93 | $58.92 | $0.00 | $0.00 | $117.85 | $0.00 |
| 2023 | 27683 | JCCD - JC Conservation District | $2.55 | $2.55 | $0.00 | $0.00 | $5.10 | $0.00 |
| 2023 | 27683 | NWA - Noxious Weed Assessment | $2.15 | $2.15 | $0.00 | $0.00 | $4.30 | $0.00 |
| 2023 | 27683 | WAT - Clean Water District | $12.00 | $12.00 | $0.00 | $0.00 | $24.00 | $0.00 |
| 2023 | 27683 | TOTAL: | $1407.96 | $1407.83 | $0.00 | $0.00 | $2815.79 | $0.00 |
|
| 2023 | 27683 | $1407.96 | $1407.83 | $0.00 | $0.00 | $2815.79 | $0.00 |
Values
| (+) Improvement Homesite Value: | + | $0 | |
| (+) Improvement Non-Homesite Value: | + | $189,213 | |
| (+) Land Homesite Value: | + | $0 | |
| (+) Land Non-Homesite Value: | + | $196,250 | |
| (+) Curr Use (HS): | + | $0 | $0 |
| (+) Curr Use (NHS): | + | $0 | $0 |
| | | -------------------------- | |
| (=) Market Value: | = | $385,463 | |
| (–) Productivity Loss: | – | $0 | |
| | | -------------------------- | |
| (=) Subtotal: | = | $385,463 | |
| (+) Senior Appraised Value: | + | $0 | |
| (+) Non-Senior Appraised Value: | + | $385,463 | |
| | | -------------------------- | |
| (=) Total Appraised Value: | = | $385,463 | |
| (–) Senior Exemption Loss: | – | $0 | |
| (–) Exemption Loss: | – | $0 | |
| | | -------------------------- | |
| (=) Taxable Value: | = | $385,463 | |
Taxing Jurisdiction
| Owner: | EZRA WILSON | | |
| % Ownership: | 100.0000000000% | | |
| Total Value: | $385,463 | | |
| Tax Area: | 0110 - C-50F1E1H2 |
| CE | COUNTY CURRENT EXPENSE | 0.9034619479 | $385,463 | $385,463 | $348.25 | | |
| CNTYDD | DEVELOPMENTAL DISABILITIES | 0.0052121823 | $385,463 | $385,463 | $2.01 | | |
| CNTYVET | VETERANS RELIEF | 0.0052777810 | $385,463 | $385,463 | $2.03 | | |
| MENTAL | MENTAL HEALTH | 0.0052121823 | $385,463 | $385,463 | $2.01 | | |
| PTGEN | CITY OF PT GENERAL | 0.8551967795 | $385,463 | $385,463 | $329.65 | | |
| PTLLL | CITY OF PT - LIBRARY LID LIFT | 0.4010114288 | $385,463 | $385,463 | $154.58 | | |
| PTMVBOND | CITY OF PT MV BOND | 0.0484717981 | $385,463 | $385,463 | $18.68 | | |
| HOSP2CASH | HOSP DIST #2 GENERAL | 0.0536075306 | $385,463 | $385,463 | $20.66 | | |
| SCH50BOND | SCHOOL DIST #50 BOND 2016 | 0.5377451389 | $385,463 | $385,463 | $207.28 | | |
| SCH50CP | SCHOOL DIST #50 CAP PROJ | 0.4573475088 | $385,463 | $385,463 | $176.29 | | |
| SCH50MO | SCHOOL DIST #50 EP & O | 0.8262822886 | $385,463 | $385,463 | $318.50 | | |
| CONSERVE | CONSERVATION FUTURES | 0.0275621078 | $385,463 | $385,463 | $10.62 | | |
| EMS1 | FIRE DIST #1 EMS | 0.4679948282 | $385,463 | $385,463 | $180.39 | | |
| FD1 | FIRE DIST #1 GENERAL | 1.2171942929 | $385,463 | $385,463 | $469.18 | | |
| PORTPT | PORT OF PT GENERAL | 0.1134941229 | $385,463 | $385,463 | $43.75 | | |
| PORTPTIDD | PORT OF PT IDD 2019 | 0.2577346692 | $385,463 | $385,463 | $99.35 | | |
| PUD1 | PUD #1 GENERAL | 0.0597888892 | $385,463 | $385,463 | $23.05 | | |
| STATE | STATE SCHOOL PART 1 | 1.4940692947 | $385,463 | $385,463 | $575.91 | | |
| STATE2 | STATE SCHOOL PART 2 | 0.8050170049 | $385,463 | $385,463 | $310.30 | | |
| | Total Tax Rate: | 8.5416817766 | | | | | |
| | | | | Taxes w/Current Exemptions: | $3,292.49 | | |
| | | | | Taxes w/o Exemptions: | $3,292.49 | | |
Improvement / Building
| Improvement #1: | Residential Bldg | State Code: | 12 | 520.0 sqft | Value: | $189,213 |
| Bathrooms (#): | 1 (FULL) | Bedrooms (#): | 2 | | Exterior Wall: | SI/ST | Fireplace: | WD ST-GOOD | | Floor Construction: | FRAME | Foundation: | CONPR | | Heating/Cooling: | ELBB | Inside Verify: | YES-FIX | | Roof Cover: | COMP |   |   |
|
| | Type | Description | Class CD | Sub Class CD | Year Built | Area |
| | MA | Main Area | 3+ | D1S | 1942 | 520.0 |
| | HDECK | House Deck | 3 | * | 1942 | 280.0 |
| | DBSMTU | Duplex Basement Unfinished | 1 | * | 1942 | 520.0 |
Sketch
Property Image
Land
| 1 | 6410-1177L | | 0.0000 | 0.00 | 0.00 | 0.00 | 1.00 | $165,000 | $0 |
| 2 | 6410-1177L | | 0.0000 | 0.00 | 0.00 | 0.00 | 1.00 | $31,250 | $0 |
Roll Value History
| 2026 | N/A | N/A | N/A | N/A | N/A |
| 2025 | $189,213 | $196,250 | $0 | $385,463 | $385,463 |
| 2024 | $181,670 | $195,250 | $0 | $376,920 | $376,920 |
| 2023 | $174,403 | $181,125 | $0 | $355,528 | $355,528 |
| 2022 | $159,870 | $167,500 | $0 | $327,370 | $327,370 |
Deed and Sales History
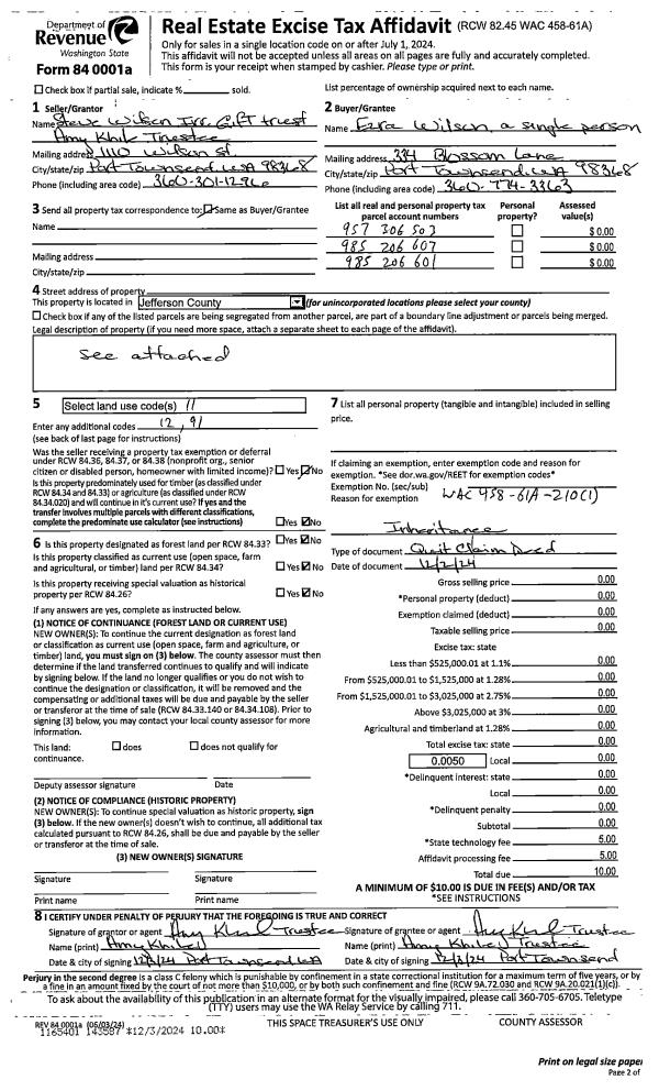
| 1 | 12/02/2024 | QCD | Quit Claim Deed | STEVEN J WILSON IRREVOCABLE GIFT TRUST | EZRA WILSON | | | | 143587 | |
| 2 | 04/27/2023 | PRD | Personal Representatives Deed | AMY J KHILE PERSONAL REPRESENTATIVE | STEVEN J WILSON IRREVOCABLE GIFT TRUST | | | | 140816 | |
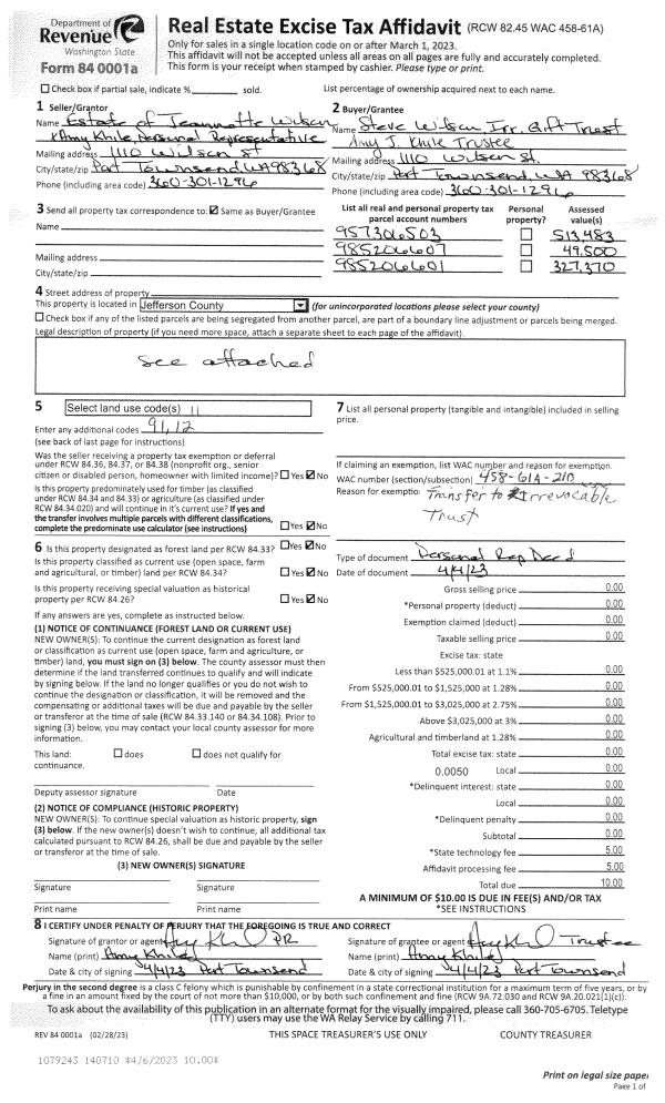
| 3 | 04/04/2023 | PRD | Personal Representatives Deed | | STEVEN J WILSON IRREVOCABLE GIFT TRUST | | | | 140710 | |
Payout Agreement
| No payout information available.. |